Optimization of Water Distribution Network Demand Patterns Using Real-Coded Genetic Algorithms
Abstract
1. Introduction
2. Theoretical Background and Methods
2.1. Overview of Genetic Algorithm
2.2. Real-Coded Genetic Algorithm
2.2.1. Fitness Evaluation
2.2.2. Reproduction Operator
2.2.3. Crossover Operator
2.2.4. Mutation Operator
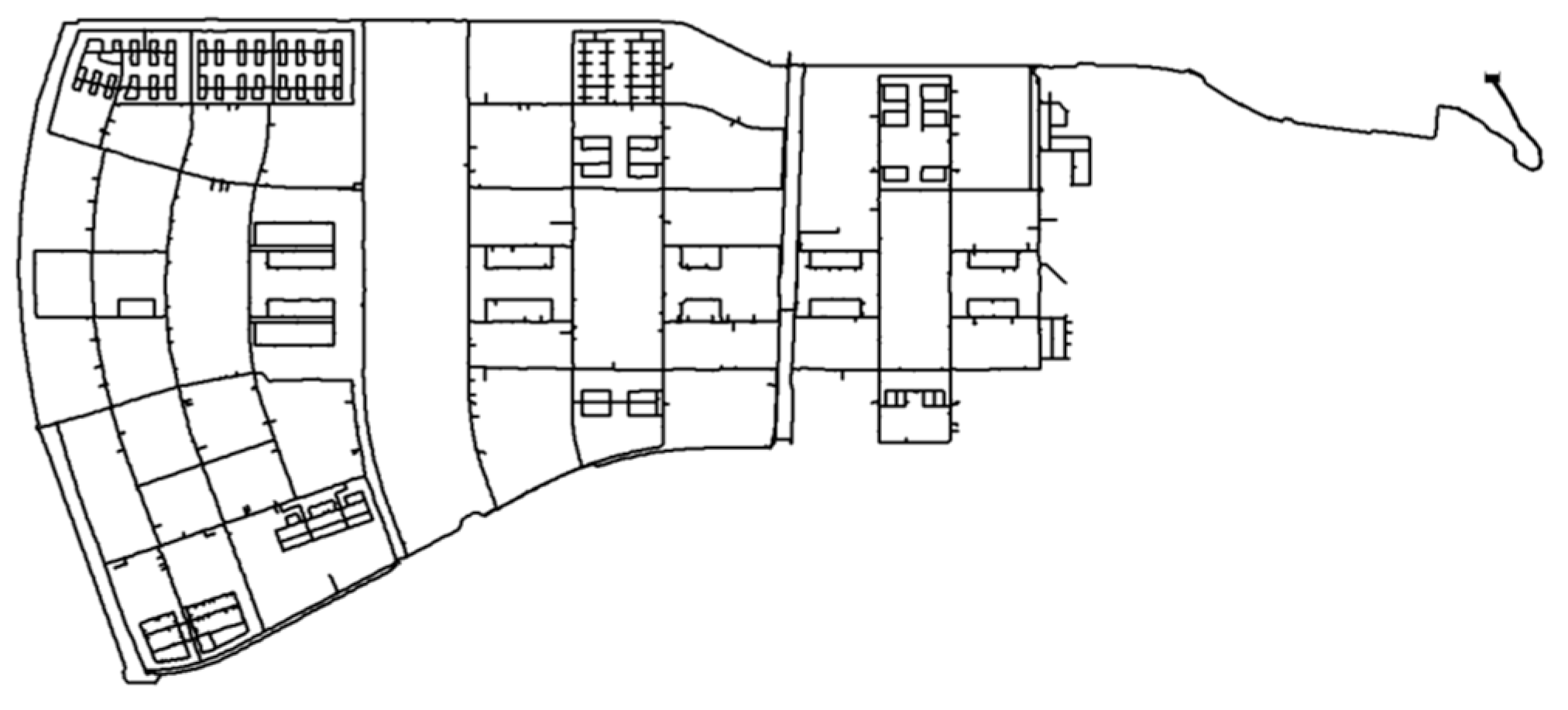
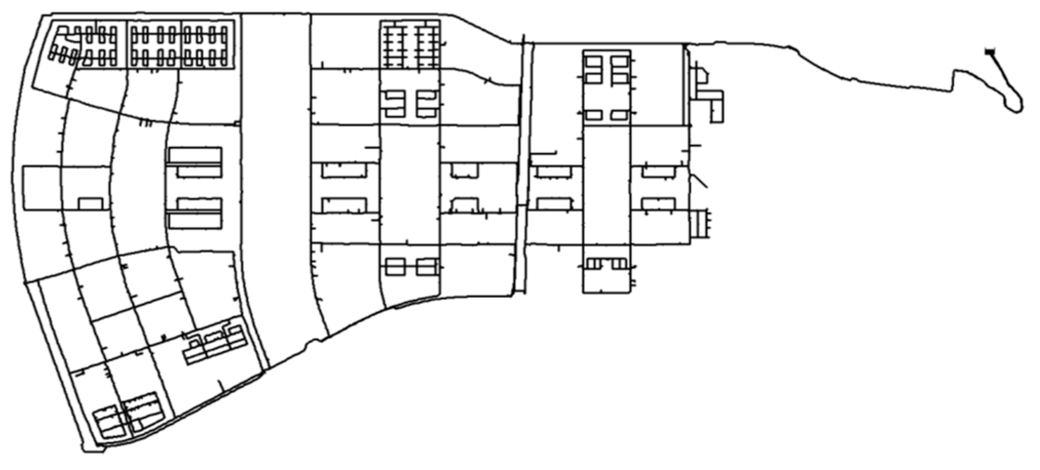
2.3. Selection of the Target Area and Collection of Baseline Data
2.3.1. Status of the Target Area
2.3.2. Current Electricity Tariff Status
2.4. Model Construction
2.4.1. Genetic Algorithm Default Factor Settings
2.4.2. Generation of the Initial Group
2.4.3. Objective Function Setting
2.4.4. Fitness Evaluation Function Setting
2.4.5. Selection Operator
2.4.6. Crossover Operator Setting
2.4.7. Mutation Operator Setting
3. Results
3.1. Results of Optimized Demand Pattern Calculation
3.2. Evaluation of the Effectiveness of the Optimized Demand Patterns
3.2.1. Analysis of Supply Flow Rates per Time
3.2.2. Calculation of the Required Pump Power per Time and Energy Costs
3.2.3. Evaluation of Water Supply Stability via Pressure Analysis at Nodes
- (1)
- Distribution of Pressure Heads within the Entire Network per Vulnerable Time Zone
- (2)
- Distribution of Pressure Head per Time (Hour) at Main Nodes
4. Discussion
5. Conclusions
- The real-coded genetic algorithm was applied to derive optimized demand patterns for the water distribution network by utilizing water tanks within the target area. The patterns exhibited higher values during off-peak times and lower values during standard and peak times, indicating optimization influenced by hourly electricity tariffs.
- Optimization patterns were applied to calculate the flow rate supplied to the water network within the target area. Through this process, this study computed the required power of the pump used for water supply and the total energy usage charges per hour. Consequently, 9% of the total energy usage charges of the network with optimized demand patterns were saved.
- Hourly pressures at main nodes in the network with optimized demand patterns within the target area were analyzed. The pressures generated at the nodes were found to be distributed within the range of hydrodynamic pressure suggested in a water supply design standard, indicating satisfaction of water supply stability.
- The strategic management of water storage and distribution not only upholds system efficiency but also promotes sustainability. By reducing operational demands on pumps and minimizing leakage through optimal pressure management, the system’s overall environmental footprint is significantly lowered.
Author Contributions
Funding
Data Availability Statement
Conflicts of Interest
References
- Cembrano, G.; Wells, G.; Quevedo, J.; Pérez, R.; Argelaguet, R. Optimal control of a water distribution network in a supervisory control system. Control Eng. Pract. 2000, 8, 1177–1188. [Google Scholar] [CrossRef]
- Shin, J.H.; Kim, S.H.; Choi, Y.J. A Study on the Energy Cost Reduction Method by Scheduling of Water Pump. Seoul Waterworks Auth. Seoul Water 2018, 241–303. (In Korean) [Google Scholar]
- Chase, D.V.; Ormsbee, L.E. Optimal pump operation of water distribution systems with multiple storage tanks. In Proceedings of the 1990 ASCE Conference on Water Resource Planning and Management; ASCE: New York, NY, USA, 1989; pp. 733–736. [Google Scholar]
- Eiger, G.; Shamir, U.; Ben-Tal, A. Optimal design of water distribution networks. Water Resour. Res. 1994, 30, 2637–2646. [Google Scholar] [CrossRef]
- Biscos, C.; Mulholland, M.; Le Lann, M.V.; Buckley, C.A.; Brouckaert, C.J. Optimal Operation of Water Distribution Networks by Predictive Control Using MINLP. Water SA 2003, 29, 393–404. [Google Scholar] [CrossRef][Green Version]
- Cunha, M.D.C.; Sousa, J. Water distribution network design optimization: Simulated annealing approach. J. Water Resour. Plan. Manag. 1999, 125, 215–221. [Google Scholar] [CrossRef]
- Lee, E.H.; Yoo, D.G.; Choi, Y.H.; Kim, J.H. Development of the New Meta-heuristic Optimization Algorithm Inspired by a Vision Correction Procedure: Vision Correction Algorithm. J. Korea Acad.-Ind. Coop. Soc. 2016, 17, 117–126. [Google Scholar]
- Louati, M.H.; Benabdallah, S.; Lebdi, F.; Milutin, D. Application of a genetic algorithm for the optimization of a complex reservoir system in Tunisia. Water Resour. Manag. 2011, 25, 2387–2404. [Google Scholar] [CrossRef]
- Lee, K.S.; Chung, E.S. Optimal operation rules for multireservoir systems using genetic algorithm. KSCE J. Civ. Eng. B 2004, 24, 9–17. [Google Scholar]
- Afshar, M.H. Improving the efficiency of ant algorithms using adaptive refinement: Application to storm water network design. Adv. Water Resour. 2006, 29, 1371–1382. [Google Scholar] [CrossRef]
- Botella, L.A.; Choi, Y.G.; Kim, K.S.; Jang, D.W. Application of the harmony search algorithm for optimization of WDN and assessment of pipe deterioration. Appl. Sci. 2022, 12, 3550. [Google Scholar] [CrossRef]
- De Paola, F.; Fontana, N.; Giugni, M.; Marini, G.; Pugliese, F. An application of the Harmony-Search Multi-Objective (HSMO) optimization algorithm for the solution of pump scheduling problem. Procedia Eng. 2016, 162, 494–502. [Google Scholar] [CrossRef]
- Haghighi, A.; Samani, H.M.; Samani, Z.M. GA-ILP method for optimization of water distribution networks. Water Resour. Manag. 2011, 25, 1791–1808. [Google Scholar] [CrossRef]
- Reca, J.; Martínez, J. Genetic algorithms for the design of looped irrigation water distribution networks. Water Resour. Res. 2006, 42. [Google Scholar] [CrossRef]
- Geem, Z.W. Optimal cost design of water distribution networks using harmony search. Eng. Optim. 2006, 38, 259–277. [Google Scholar] [CrossRef]
- Park, S.H.; Choi, H.S.; Koo, J.Y. Research Field Application of Least Cost Design Model on Water Distribution Systems using Ant Colony Optimization Algorithm. J. Korean Soc. Water Wastewater 2013, 27, 413–428. [Google Scholar] [CrossRef][Green Version]
- Ostfeld, A.; Tubaltzev, A. Ant colony optimization for least-cost design and operation of pumping water distribution systems. J. Water Resour. Plan. Manag. 2008, 134, 107–118. [Google Scholar] [CrossRef]
- Jang, Y.G. Demand Patterns Optimization of Water Storage Facilities for Saving Energy Costs in Water Distribution Systems. Ph.D. Thesis, Incheon National University, Incheon, Republic of Korea, 2013. Unpublished. [Google Scholar]
- Kim, K.M.; Choi, J.W.; Jung, D.H.; Kang, D.S. Sensitivity Analysis of Pump and Tank Sizes on Water Network Operation and Water Age. J. Korea Water Resour. Assoc. 2017, 50, 803–813. [Google Scholar]
- Rossman, L.A. EPANET 2: Users Manual; United States Environmental Protection Agency: Cincinnati, OH, USA, 2000. [Google Scholar]
- Booker, L.B.; Goldberg, D.E.; Holland, J.H. Classifier systems and genetic algorithms. Artif. Intell. 1989, 40, 235–282. [Google Scholar]
- Goldberg, D.E.; Korb, B.; Deb, K. Messy Genetic Algorithms: Motivation, Analysis, and First Results. Complex Syst. 1989, 3, 493–530. [Google Scholar]
- McCormick, G.; Powell, R.S. Optimal pump scheduling in water supply systems with maximum demand charges. J. Water Resour. Plan. Manag. 2003, 129, 372–379. [Google Scholar] [CrossRef]
- Cho, C.H.; Gong, S.G. Structure Optimization of a Feedforward Neural Controller using the Genetic Algorithm. J. Korea Inst. Telemat. Electron. 1996, 33, 95–105. [Google Scholar]
- Grefenstette, J.J. Optimization of Control Parameters for Genetic Algorithms. IEEE Trans. Syst. Man Cybern. B 1986, 16, 122–128. [Google Scholar] [CrossRef]
- Jin, G.G.; Joo, S.R. A Study on a Real-coded Genetic Algorithm. Int. J. Control Autom. Syst. 2000, 6, 268–275. [Google Scholar]
- Kim, C.W.; Choi, J.C.; Park, K.C.; Lee, W.J. Success Mechanism of Attracting and Accumulating High-tech Industries in IFEZ. Korea Bus. Rev. 2021, 25, 155–193. [Google Scholar]
- Korea Electric Power Corporation. 2023. Available online: https://online.kepco.co.kr/ (accessed on 1 July 2024).
- Chandramouli, S. MATLAB code for linking genetic algorithm and EPANET for reliability based optimal design of a water distribution network. In Water Resources and Environmental Engineering I; Springer: Singapore, 2019; pp. 183–194. [Google Scholar]











| Steps | Operators | Parameters |
|---|---|---|
| Coding method | Real-coded | Length of chromosome = 24 Population in 1 generation = 20 Total generations = 50 |
| Generating initial group | Random selection | Average of initial group = 1 Range = 0 to 2 |
| Objective function | Penalty function | Influence parameter of penalty function a = 75 |
| Fitness evaluation | Scaling window | Number of past generations = 1 |
| Reproduction | Gradient-like selector | Searching range parameter = 1.7 |
| Modified simple crossover | Possibility of crossover = 0.9 | |
| Dynamic mutation | Possibility of mutation = 0.1 |
| Time Zone | Original Demand Pattern (m3/Day) | Optimized Demand Pattern (m3/Day) | Variance |
|---|---|---|---|
| Off-peak time | 187,647 | 326,282 | +74% |
| Standard time | 284,583 | 211,475 | −26% |
| Peak time | 176,815 | 130,513 | −26% |
| Time Zone | Original Demand Pattern | Optimized Demand Pattern |
|---|---|---|
| Power of pump (kW) | 6089 | 6270 |
| Energy cost (KRW) | 873,097 | 798,536 |
Disclaimer/Publisher’s Note: The statements, opinions and data contained in all publications are solely those of the individual author(s) and contributor(s) and not of MDPI and/or the editor(s). MDPI and/or the editor(s) disclaim responsibility for any injury to people or property resulting from any ideas, methods, instructions or products referred to in the content. |
© 2024 by the authors. Licensee MDPI, Basel, Switzerland. This article is an open access article distributed under the terms and conditions of the Creative Commons Attribution (CC BY) license (https://creativecommons.org/licenses/by/4.0/).
Share and Cite
Kim, D.-H.; Jang, D.-W. Optimization of Water Distribution Network Demand Patterns Using Real-Coded Genetic Algorithms. Water 2024, 16, 2971. https://doi.org/10.3390/w16202971
Kim D-H, Jang D-W. Optimization of Water Distribution Network Demand Patterns Using Real-Coded Genetic Algorithms. Water. 2024; 16(20):2971. https://doi.org/10.3390/w16202971
Chicago/Turabian StyleKim, Dong-Hwi, and Dong-Woo Jang. 2024. "Optimization of Water Distribution Network Demand Patterns Using Real-Coded Genetic Algorithms" Water 16, no. 20: 2971. https://doi.org/10.3390/w16202971
APA StyleKim, D.-H., & Jang, D.-W. (2024). Optimization of Water Distribution Network Demand Patterns Using Real-Coded Genetic Algorithms. Water, 16(20), 2971. https://doi.org/10.3390/w16202971

