On the Necessity for Improving Water Efficiency in Commercial Buildings: A Green Design Approach in Hot Humid Climates
Abstract
1. Introduction
2. Literature Review
2.1. Rainwater Harvesting System (RWHS)
2.2. Utilization of Efficient Water Fixtures
2.3. Selection of Native Plants and Appropriate Irrigation Systems for Landscaping
2.4. Utilization of Greywater
2.5. Other Strategies
3. Methodology
3.1. Research Methodology
3.2. Overall Approach Used to Implement the Case-Study-Based Research
3.3. Methodologies Used to Improve Water Efficiency for the Case Study Construction Project
3.3.1. Implementation of RWHS as an Alternative Source of Potable Water
3.3.2. Outdoor Water-Use Reduction
- Option 1. No irrigation required—Show that the landscape does not require a permanent irrigation system beyond a maximum two-year establishment period.
- Option 2. Reduced irrigation—Reduce the project’s landscape water requirement by at least 30% from the calculated baseline for the site’s peak watering month. Reductions must be achieved through plant species selection and irrigation system efficiency, as calculated by the Environmental Protection Agency (EPA) WaterSense Water Budget Tool.
3.3.3. Indoor Water-Use Reduction
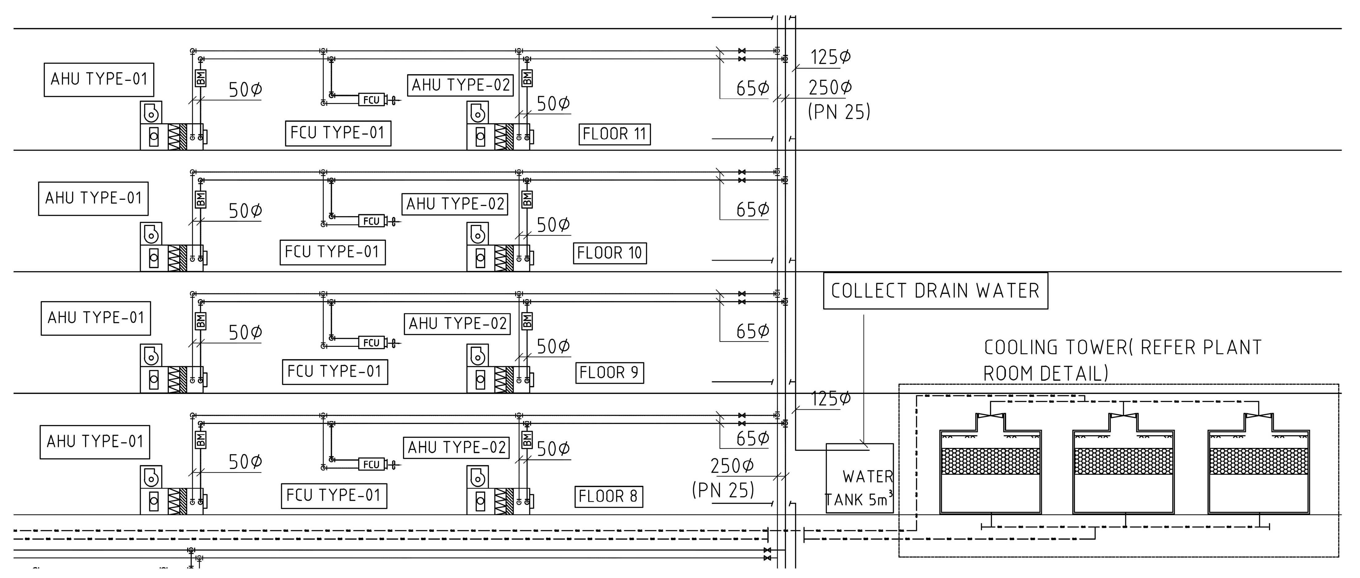
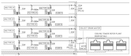
3.3.4. Greywater Reuse System
- (A)
- Reuse of condensed water in cooling towers make-up water (GWRS).
- (B)
- Reduction in water loss in cooling towers.
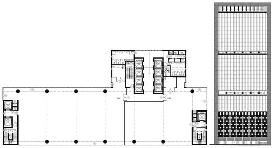
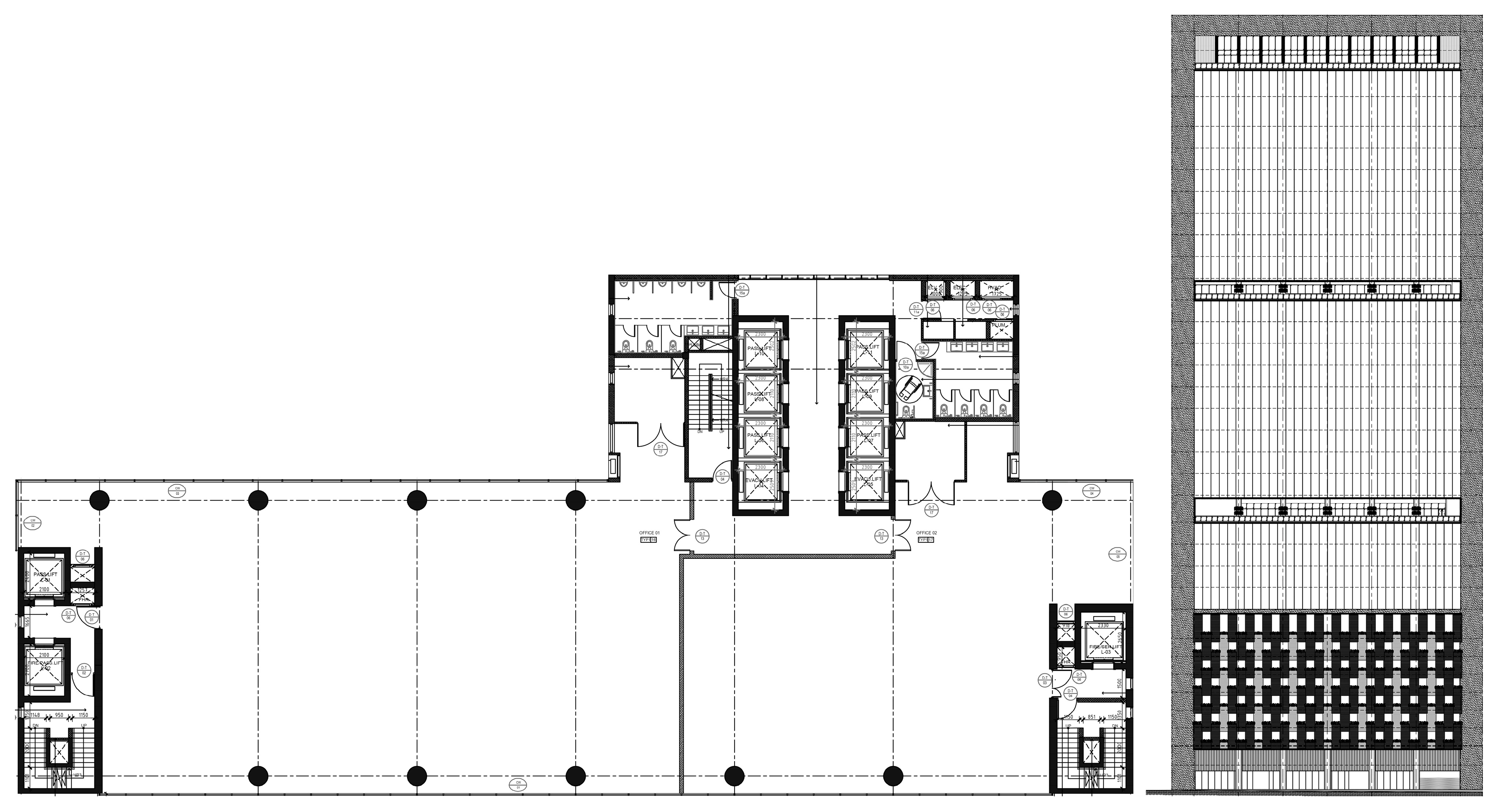
3.4. Description of the Case Study Building Construction Project Used for Water Efficiency Improvement
4. Data Collection
4.1. Rainwater Harvesting System
4.2. Outdoor Water-Use Reduction—Option 2: Reduced Irrigation
4.3. Indoor Water-Use Reduction
- Building occupancy.
- Gender ratio.
- Days of operation.
- Fixture types used in the project.
5. Results of the Analysis
5.1. Implementation of a Rainwater Harvesting System
5.2. Outdoor Water-Use Reduction
5.3. Indoor Water-Use Reduction
5.3.1. Use of Efficient Fittings and Fixtures
5.3.2. Use of Rainwater for the Flush-Water System
5.3.3. Indoor Water Loss Reduction in MVAC System
6. Discussion
- Cost of construction of rooftop rainwater harvesting tank and the related rainwater collected system. However, the cost reduction in the reduced capacity of the water tanks is to be considered to ascertain the net impact. Furthermore, it should be noted that the cost of installation of a rainwater treatment plant and its maintenance cost include chemical costs.
- Cost of construction of a separate flush water network.
- Cost of construction of a ground water tank and its operational and maintenance cost. However, the reduction in the capacity of the water sump is to be considered to ascertain the net impact.
- Incremental cost of fittings and fixtures.
- Cost of construction of a condensed water network in collecting and diverting to a cooling tower make-up water tank from each AHU and FCU located on each floor. However, it should be noted that the condensed water from AHUs and FCUs should be taken out from each floor.
- Cost of installation and maintenance of the chemical dosing system to treat the condensed water of the cooling tower system.
7. Conclusions
8. Recommendations
Supplementary Materials
Author Contributions
Funding
Data Availability Statement
Conflicts of Interest
References
- Liu, J.; Yang, H.; Gosling, S.N.; Kummu, M.; Flörke, M.; Pfister, S.; Hanasaki, N.; Wada, Y.; Zhang, X.; Zheng, C.; et al. Water scarcity assessments in the past, present, and future. Earth’s Future 2017, 5, 545–559. [Google Scholar] [CrossRef]
- Mekonnen, M.M.; Hoekstra, A.Y. Four billion people facing severe water scarcity. Sci. Adv. 2016, 2, e1500323. [Google Scholar] [CrossRef]
- Peydayesh, M.; Mezzenga, R. The circular economy of water across the six continents. Chem. Soc. Rev. 2024, 53, 4333–4348. [Google Scholar] [CrossRef]
- Baynes, T.M.; Crawford, R.H.; Schinabeck, J.; Bontinck, P.-A.; Stephan, A.; Wiedmann, T.; Lenzen, M.; Kenway, S.; Yu, M.; Teh, S.H.; et al. The Australian industrial ecology virtual laboratory and multi-scale assessment of buildings and construction. Energy Build. 2018, 164, 14–20. [Google Scholar] [CrossRef]
- World Resources Institute, What’s the Difference Between Water Use and Water Consumption? Available online: https://clarity.ai/research-and-insights/climate/understanding-the-impact-of-water-water-consumption-vs-water-withdrawal/ (accessed on 21 January 2024).
- Miller, S.A.; Horvath, A.; Monteiro, P.J. Impacts of booming concrete production on water resources worldwide. Nat. Sustain. 2018, 1, 69–76. [Google Scholar] [CrossRef]
- Stoker, P.; Rothfeder, R. Drivers of urban water use. Sustain. Cities Soc. 2014, 12, 1–8. [Google Scholar] [CrossRef]
- Statista Research Department, Water Consumption of the Real Estate Sector in Europe in 2020, by Building Type. Available online: https://www.statista.com/statistics/1312154/water-intensity-of-real-estate-by-type-europe/ (accessed on 21 June 2024).
- Bannister, P.; Munzinger, M.; Bloomfield, C. Water Benchmarks for Offices and Public Buildings. Department of Environment and Heritage. Canberra Australia. September 2005. Available online: www.deh.gov.au (accessed on 8 August 2023).
- Zhou, H.; Zhao, Y.; Zhang, Z.; Geng, Y.; Yu, J.; Lin, B. Post occupancy investigation of 40 certified green buildings in Beijing: Results, lessons and policy suggestions. J. Build. Eng. 2022, 60, 105153. [Google Scholar] [CrossRef]
- Assaf, S.; Nour, M. Potential of energy and water efficiency improvement in Abu Dhabi’s building sector–Analysis of Estidama pearl rating system. Renew. Energy 2015, 82, 100–107. [Google Scholar] [CrossRef]
- Belhassan, K. Water scarcity management. In Water Safety, Security and Sustainability: Threat Detection and Mitigation; Springer International Publishing: Cham, Switzerland, 2021; pp. 443–462. [Google Scholar]
- Hoekstra, A.Y.; Mekonnen, M.M. The water footprint of humanity. Proc. Natl. Acad. Sci. USA 2012, 109, 3232–3237. [Google Scholar] [CrossRef]
- Plebankiewicz, E.; Juszczyk, M.; Kozik, R. Trends, costs, and benefits of green certification of office buildings: A Polish perspective. Sustainability 2019, 11, 2359. [Google Scholar] [CrossRef]
- Miraj, P.; Berawi, M.A.; Utami, S.R. Economic feasibility of green office building: Combining life cycle cost analysis and cost–benefit evaluation. Build. Res. Inf. 2021, 49, 624–638. [Google Scholar] [CrossRef]
- Wuni, I.Y.; Shen, G.Q.; Osei-Kyei, R. Scientometric review of global research trends on green buildings in construction journals from 1992 to 2018. Energy Build. 2019, 190, 69–85. [Google Scholar] [CrossRef]
- Proença, L.C.; Ghisi, E.; da Fonseca Tavares, D.; Coelho, G.M. Potential for electricity savings by reducing potable water consumption in a city scale. Resour. Conserv. Recycl. 2011, 55, 960–965. [Google Scholar] [CrossRef]
- Ramesh, T.; Prakash, R.; Shukla, K.K. Life cycle energy analysis of buildings: An overview. Energy Build. 2010, 42, 1592–1600. [Google Scholar] [CrossRef]
- Mishra, R.K. Fresh water availability and its global challenge. Br. J. Multidiscip. Adv. Stud. 2023, 4, 1–78. [Google Scholar] [CrossRef]
- Shi, X.; Liao, X.; Li, Y. Quantification of fresh water consumption and scarcity footprints of hydrogen from water electrolysis: A methodology framework. Renew. Energy 2020, 154, 786–796. [Google Scholar] [CrossRef]
- Dolan, F.; Lamontagne, J.; Link, R.; Hejazi, M.; Reed, P.; Edmonds, J. Evaluating the economic impact of water scarcity in a changing world. Nat. Commun. 2021, 12, 1915. [Google Scholar] [CrossRef] [PubMed]
- Hoekstra, A.Y.; Mekonnen, M.M.; Chapagain, A.K.; Mathews, R.E.; Richter, B.D. Global monthly water scarcity: Blue water footprints versus blue water availability. PLoS ONE 2012, 7, e32688. [Google Scholar] [CrossRef]
- Sood, A.; Prathapar, S.A.; Smakhtin, V. Green and blue water. In Key Concepts in Water Resource Management; Routledge: London, UK, 2014; pp. 91–102. [Google Scholar]
- Chanan, V.; White, S.; Howe, C.; Jha, M. Sustainable water management in commercial office buildings. In Proceedings of the Innovations in Water: Ozwater Convention & Exhibition, Perth, Australia, 6–10 April 2003; pp. 6–10. [Google Scholar]
- Fulazzaky, M.A.; Syafiuddin, A.; Roestamy, M.; Yusop, Z.; Jonbi, J.; Prasetyo, D.D. Reliability and Economic Analysis of a Rainwater-Harvesting System for a Commercial Building with a Large Rooftop Area. ACS EST Water 2022, 2, 604–615. [Google Scholar] [CrossRef]
- Abas, P.E.; Mahlia, T.M.I. Techno-economic and sensitivity analysis of rainwater harvesting system as alternative water source. Sustainability 2019, 11, 2365. [Google Scholar] [CrossRef]
- United States Environmental Protection Agency. Water Conservation at EPA. Available online: https://www.google.com/imgres?imgurl=https%3A%2F%2F19january2021snapshot.epa.gov%2Fsites%2Fstatic%2Ffiles%2Fstyles%2Flarge%2Fpublic%2F2015-09%2Fwc_l2_office_water_uses.jpg&tbnid=v05kXHvvAD-hwM&vet=10CAIQxiAoAGoXChMIyJKsz8eHiAMVAAAAAB0AAAAAEBc..i&imgrefurl=https%3A%2F%2F19january2021snapshot.epa.gov%2Fgreeningepa%2Fwater-conservation-epa&docid=nwdfo1bLZNjztM&w=800&h=739&itg=1&q=united%20states%20Environmental%20Protection%20Agency%20(2023)%2C%20water%20use%20in%20building%2C%20indoor%2050%25%2C%20MVAC%2028%25&ved=0CAIQxiAoAGoXChMIyJKsz8eHiAMVAAAAAB0AAAAAEBc (accessed on 22 January 2024).
- Mannan, M.; Al-Ghamdi, S.G. Environmental impact of water-use in buildings: Latest developments from a life-cycle assessment perspective. J. Environ. Manag. 2020, 261, 110198. [Google Scholar] [CrossRef] [PubMed]
- Proença, L.C.; Ghisi, E. Water end-uses in Brazilian office buildings. Resour. Conserv. Recycl. 2010, 54, 489–500. [Google Scholar] [CrossRef]
- Teston, A.; Geraldi, M.S.; Colasio, B.M.; Ghisi, E. Rainwater harvesting in buildings in Brazil: A literature review. Water 2018, 10, 471. [Google Scholar] [CrossRef]
- Mohd Zaini, F.; Kwong, Q.J.; Jack, L.B. Water efficiency in Malaysian commercial buildings: A green initiative and cost–benefit approach. Int. J. Build. Pathol. Adapt. 2021, 39, 702–719. [Google Scholar] [CrossRef]
- Wu, Z.; Wu, Z.; Li, H.; Zhang, X.; Jiang, M. Developing a strategic framework for adopting water-saving measures in construction projects. Environ. Geochem. Health 2020, 42, 955–968. [Google Scholar] [CrossRef]
- Das, O.; Bera, P.; Moulick, S. Water conservation aspects of green buildings. Int. J. Res. Eng. Technol 2015, 4, 75–79. [Google Scholar]
- Hafizi Md Lani, N.; Yusop, Z.; Syafiuddin, A. A review of rainwater harvesting in Malaysia: Prospects and challenges. Water 2018, 10, 506. [Google Scholar] [CrossRef]
- Adnan, A.; Ahmad, A.C.; Teriman, S. Rainwater Harvesting (RWH) installation for buildings: A systematic review and meta-analysis approach. Malays. J. Sustain. Environ. 2020, 6, 89–108. [Google Scholar] [CrossRef]
- Lopes, V.A.; Marques, G.F.; Dornelles, F.; Medellin-Azuara, J. Performance of rainwater harvesting systems under scenarios of non-potable water demand and roof area typologies using a stochastic approach. J. Clean. Prod. 2017, 148, 304–313. [Google Scholar] [CrossRef]
- Fane, S.A.; Liu, A.; Falletta, J. Assessing minimum water efficiency standards for plumbing products in homes and business. Water Supply 2024, 24, 1164–1175. [Google Scholar] [CrossRef]
- Ribeiro, J.M.P.; Bocasanta, S.L.; Ávila, B.O.; Magtoto, M.; Jonck, A.V.; Gabriel, G.M.; de Andrade, J.B.S.O. The adoption of strategies for sustainable cities: A comparative study between Seattle and Florianopolis legislation for energy and water efficiency in buildings. J. Clean. Prod. 2018, 197, 366–378. [Google Scholar] [CrossRef]
- Zhao, J.; Xie, X.; Liu, R.; Sun, Y.; Wu, M.; Gu, J. Water and energy saving potential by adopting pressure-reducing measures in high-rise building: A case analysis. Build. Serv. Eng. Res. Technol. 2018, 39, 505–517. [Google Scholar] [CrossRef]
- Rayno, V. The Water Efficient Landscape, the Water Efficient Landscape. 2016. Available online: https://stud.epsilon.slu.se/8791/11/rayno_v_160205.pdf (accessed on 23 April 2024).
- Özyavuz, A.; Özyavuz, M. Xeriscape in landscape design. Landsc. Plan. 2012, 353–360. Available online: http://www.intechopen.com/books/landscape-planning/xeriscape-in-landscape-design (accessed on 20 June 2024).
- Rafi, Z.N.; Kazemi, F.; Tehranifar, A. Public preferences toward water-wise landscape design in a summer season. Urban For. Urban Green. 2019, 48, 126563. [Google Scholar] [CrossRef]
- United States Environmental Protection Agency. Water Efficiency Management Guide Landscaping and Irrigation, WaterSense. 2017. Available online: https://nepis.epa.gov/Exe/ZyPURL.cgi?Dockey=P100TFYF.txt (accessed on 23 April 2024).
- Office Complex Reduces Outdoor Water Use. Watersense. 2014. Available online: https://www.epa.gov/sites/production/files/2017-01/documents/ws-commercial-casestudy-granite-park-office.pdf (accessed on 23 April 2024).
- Blanchard, D. Application of the Simplified Landscape Irrigation Design Estimation (Slide) Rule for Outdoor Water Conservation for the Industrial, Commercial, and Institutional (Ici) Sector. PrePrints 2023. [Google Scholar]
- Filali, H.; Barsan, N.; Souguir, D.; Nedeff, V.; Tomozei, C.; Hachicha, M. Greywater as an alternative solution for a sustainable management of water resources—A review. Sustainability 2022, 14, 665. [Google Scholar] [CrossRef]
- Khanam, K.; Patidar, S.K. Greywater characteristics in developed and developing countries. Mater. Today Proc. 2022, 57, 1494–1499. [Google Scholar] [CrossRef]
- Maimon, A.; Gross, A. Greywater: Limitations and perspective. Curr. Opin. Environ. Sci. Health 2018, 2, 1–6. [Google Scholar] [CrossRef]
- Yoonus, H.; Al-Ghamdi, S.G. Environmental performance of building integrated grey water reuse systems based on Life-Cycle Assessment: A systematic and bibliographic analysis. Sci. Total Environ. 2020, 712, 136535. [Google Scholar] [CrossRef]
- Salim, S.H.; Al-Anbari, R.H.; Haider, A.J. Calculation of the amount of greywater production and demands from the Iraqi government office buildings. In Proceedings of the AIP Conference Proceedings, Kuala Lumpur, Malaysia, 24–25 June 2023; AIP Publishing: Melville, NY, USA, 2023; Volume 2820. [Google Scholar]
- Habibullah, N.; Sahrir, S.; Ponrahono, Z. Integrating rainwater harvesting and greywater recycling to increase water efficiency in office buildings. Plan. Malays. 2023, 21, 253–266. [Google Scholar] [CrossRef]
- Leggett, D.J.; Shaffer, P. Buildings that save water—Rainwater and greywater use. In Proceedings of the Institution of Civil Engineers-Municipal Engineer, September 2002; Thomas Telford Ltd.: London, UK, 2015; Volume 151, pp. 189–196. [Google Scholar]
- Yoshikawa, N.; Shimizu, T.; Amano, K.; Nakajima, J. Evaluation of greywater reclamation and reuse system in a Japanese university building. J. Asia-Jpn. Res. Inst. Ritsumeikan Univ. 2019, 1, 44–55. [Google Scholar]
- Tayara, A.; Shanableh, A.; Atieh, M.A.; Abdallah, M.; Battacharjee, S.; Mustafa, A.; Al Bardan, M. Feasibility and impact of greywater recycling in four types of buildings in Sharjah, United Arab Emirates. In IOP Conference Series: Earth and Environmental Science; IOP Publishing: Bristol, UK, 2021; Volume 725, p. 012009. [Google Scholar]
- García Cutillas, C.; Ruiz Ramírez, J.; Lucas Miralles, M. Optimum design and operation of an HVAC cooling tower for energy and water conservation. Energies 2017, 10, 299. [Google Scholar] [CrossRef]
- Basil, A.A.M.; Agu, A.O.; Agbo, C.E. Water Use Efficiency and Conservation in Green Buildings. J. Environ. Manag. Saf. 2022, 13, 12. [Google Scholar]
- Roccaro, P.; Falciglia, P.P.; Vagliasindi, F.G.A. Effectiveness of water saving devices and educational programs in urban buildings. Water Sci. Technol. 2011, 63, 1357–1365. [Google Scholar] [CrossRef] [PubMed]
- Sousa, V.; Silva, C.M.; Meireles, I. Performance of water efficiency measures in commercial buildings. Resour. Conserv. Recycl. 2019, 143, 251–259. [Google Scholar] [CrossRef]
- Wolfe, S.E.; Hendriks, E. Building towards water efficiency: The influence of capacity and capability on innovation adoption in the Canadian home-building and resale industries. J. Hous. Built Environ. 2011, 26, 47–72. [Google Scholar] [CrossRef]
- Adeyeye, K. Water policy and regulations: A UK perspective. In Water Efficiency in Buildings: Theory and Practice; Wiley: Hoboken, NJ, USA, 2013; pp. 5–23. [Google Scholar]
- Milman, A.; Polsky, C. Policy frameworks influencing outdoor water-use restrictions. JAWRA J. Am. Water Resour. Assoc. 2016, 52, 605–619. [Google Scholar] [CrossRef]
- Bertone, E.; Stewart, R.A.; Sahin, O.; Alam, M.; Zou, P.X.; Buntine, C.; Marshall, C. Guidelines, barriers and strategies for energy and water retrofits of public buildings. J. Clean. Prod. 2018, 174, 1064–1078. [Google Scholar] [CrossRef]
- Yin, R.K. Case Study Research and Applications; Sage: Thousand Oaks, CA, USA, 2018; Volume 6. [Google Scholar]
- Karim, M.R.; Sakib, B.S.; Sakib, S.S.; Imteaz, M.A. Rainwater harvesting potentials in commercial buildings in Dhaka: Reliability and economic analysis. Hydrology 2021, 8, 9. [Google Scholar] [CrossRef]
- Silva-Afonso, A.; Pimentel-Rodrigues, C. The importance of water efficiency in buildings in Mediterranean countries. The Portuguese experience. Int. J. Syst. Appl. Eng. Dev. 2011, 5, 17–24. [Google Scholar]
- Council-USGBC. LEED Reference Guide for Building Design and Construction, 4th ed.; Green Building Council: Washington, DC, USA, 2013; pp. 259–266. [Google Scholar]
- Begum, M.S.; Kumar Bala, S.; Saiful Islam, A.K.M. Effect of Performance of Water Stashes Irrigation Approaches on Selected Species of Plant’s Water Productivity in Urban Rooftop Agriculture with Respect to Climate Change. Water 2021, 14, 7. [Google Scholar] [CrossRef]
- LEED v4 Indoor Water Use Reduction Calculator. US Green Building Council. 2014. Available online: https://www.usgbc.org/resources/leed-v4-indoor-water-use-reduction-calculator (accessed on 3 August 2024).
- Silva-Afonso, A.; Rodrigues, F.; Pimentel-Rodrigues, C. Water efficiency in buildings: Assessment of its impact on energy efficiency and reducing GHG emissions. In Proceedings of the 6th IASME/WSEAS International Conference on Energy & Environment—EE, Cambridge, UK, 23–25 February 2011; Volume 11. [Google Scholar]
- World Bank Group. Climate Change Knowledge Portal, World Bank Climate Change Knowledge Portal. 2021. Available online: https://climateknowledgeportal.worldbank.org/country/sri-lanka/climate-data-historical#:~:text=Sri%20Lanka’s%20commercial%20capital%2C%20Colombo,%C2%B0C%20all%20year%20round (accessed on 9 February 2024).
- Tharinda, W.M.; Ruwangika, N.R.A.; Jayasingha, K.P.; Aponsu, G.L.M.; Rathnayake, U. Statistical and Graphical Comparison of Relative Humidity in the Wet Zone of Sri Lanka. J. Sci. Res. Dev. 2022, 5, 1040–1050. [Google Scholar]
- Department of Meteorology—Sri Lanka. 2024. Climate of Sri Lanka, Meteo.gov.lk. Available online: https://www.meteo.gov.lk/index.php?option=com_content%26view=article%26id=94%26Itemid=310%26lang=en (accessed on 10 February 2024).
- World Meteorological Organization. Water, World Meteorological Organization. 2024. Available online: https://wmo.int/ (accessed on 28 January 2024).
- World Weather Information Service. 2020. Available online: http://worldweather.wmo.int/en/city.html?cityId=227 (accessed on 6 February 2020).
- ETo Calculator | Land & Water|Food and Agriculture Organization of the United Nations|Land & Water|Food and Agriculture Organization of the United Nations, Fao.org. 2020. Available online: http://www.fao.org/land-water/databases-and-software/eto-calculator/en/ (accessed on 6 February 2020).
- Department of Census and Statistics (No Date) Sri Lanka Labour Force Survey 1st Quarter. 2020. Available online: http://www.statistics.gov.lk/Resource/en/LabourForce/Bulletins/LFS_Q1_Bulletin_2020 (accessed on 5 August 2023).
- Alkhaledi, K.; Arnold, A.; Means, K.; Kim, I.J.; Bendak, S. A novel multicriteria decision making model for sustainable stormwater management. Sustainability 2020, 12, 9508. [Google Scholar] [CrossRef]
- Leksono, B.; Windyarini, E.; Hasnah, T.; Rahman, S.; Baral, H. Calophyllum inophyllum for green energy and landscape restoration: Plant growth, biofuel content, associate waste utilization and agroforestry prospect. In Proceedings of the 2018 International Conference and Utility Exhibition on Green Energy for Sustainable Development (ICUE), Phuket, Thailand, 24–26 October 2018; IEEE: Piscataway, NJ, USA, 2018; pp. 1–7. [Google Scholar]
- Morris, P.; Langdon, D. What does green really cost. PREA Q. 2007, 1, 55–60. [Google Scholar]
- Gabay, H.; Meir, I.A.; Schwartz, M.; Werzberger, E. Cost-benefit analysis of green buildings: An Israeli office buildings case study. Energy Build. 2014, 76, 558–564. [Google Scholar] [CrossRef]
- Azhar, S.; Khalfan, M.; Maqsood, T. Building information modeling (BIM): Now and beyond. Australas. J. Constr. Econ. Build. 2012, 12, 15–28. [Google Scholar]
- Englart, S.; Jedlikowski, A. The influence of different water efficiency ratings of taps and mixers on energy and water consumption in buildings. SN Appl. Sci. 2019, 1, 525. [Google Scholar] [CrossRef]
- Hashim, H.; Hudzori, A.; Yusop, Z.; Ho, W.S. Simulation based programming for optimization of large-scale rainwater harvesting system: Malaysia case study. Resour. Conserv. Recycl. 2013, 80, 1–9. [Google Scholar] [CrossRef]
- Leong, J.Y.C.; Chong, M.N.; Poh, P.E.; Vieritz, A.; Talei, A.; Chow, M.F. Quantification of mains water savings from decentralised rainwater, greywater, and hybrid rainwater-greywater systems in tropical climatic conditions. J. Clean. Prod. 2018, 176, 946–958. [Google Scholar] [CrossRef]
- Khan, S.A.; Al Abri, A.H.; Badr, A. Recycling Chilled Water Condensate From A/C Units to Reduce Water Scarcity in Oman. In Towards a Sustainable Water Future: Proceedings of Oman’s International Conference on Water Engineering and Management of Water Resources; ICE Publishing: London, UK, 2021; pp. 221–232. [Google Scholar]
- Algarni, S.; Saleel, C.A.; Mujeebu, M.A. Air-conditioning condensate recovery and applications—Current developments and challenges ahead. Sustain. Cities Soc. 2018, 37, 263–274. [Google Scholar] [CrossRef]
- Eades, W.G. Energy and water recovery using air-handling unit condensate from laboratory HVAC systems. Sustain. Cities Soc. 2018, 42, 162–175. [Google Scholar] [CrossRef]
- Licina, D.; Sekhar, C. Energy and water conservation from air handling unit condensate in hot and humid climates. Energy Build. 2012, 45, 257–263. [Google Scholar] [CrossRef]
- Ibrahim, H.; Elsayed, M.S.; Moustafa, W.S.; Abdou, H.M. Functional analysis as a method on sustainable building design: A case study in educational buildings implementing the triple bottom line. Alex. Eng. J. 2023, 62, 63–73. [Google Scholar] [CrossRef]
- Batista, L.T.; Franco, J.R.Q.; Fakury, R.H.; Porto, M.F.; Braga, C.M.P. Methodology for Determining Sustainable Water Consumption Indicators for Buildings. Sustainability 2022, 14, 5695. [Google Scholar] [CrossRef]
- Ward, S.; Memon, F.A.; Butler, D. Performance of a large building rainwater harvesting system. Water Res. 2012, 46, 5127–5134. [Google Scholar] [CrossRef]
- Thomollari, X.; Bahadır, Ü.; Toğan, V.; Tokdemir, O.B. Reducing water consumption with sustainable building design; a case study. Turk. J. Occup./Environ. Med. Saf. 2017, 2, 444–453. [Google Scholar]
- Bint, L.; Garnett, A.; Siggins, A.; Jaques, R. Alternative water sources in New Zealand’s commercial buildings. Water Supply 2019, 19, 371–381. [Google Scholar] [CrossRef]
- Lani, N.H.M.; Syafiuddin, A.; Yusop, Z.; bin Mat Amin, M.Z. Performance of small and large scales rainwater harvesting systems in commercial buildings under different reliability and future water tariff scenarios. Sci. Total Environ. 2018, 636, 1171–1179. [Google Scholar] [CrossRef] [PubMed]
- Barnard, P.; Darkins, T.; Earl, B.; Adeyeye, O. Retrofitting for water efficiency: A hotel case study. In Proceedings of the Water Efficiency Conference 2014, Brighton, UK, 9–11 September 2014; WATEF Network/University of Brighton. pp. 29–38. [Google Scholar]
- Varma, V.G. Water-efficient technologies for sustainable development. In Current Directions in Water Scarcity Research; Elsevier: Amsterdam, The Netherlands, 2022; Volume 6, pp. 101–128. [Google Scholar]
- Proença, L.C.; Ghisi, E. Assessment of potable water savings in office buildings considering embodied energy. Water Resour. Manag. 2013, 27, 581–599. [Google Scholar] [CrossRef]
- Ilemobade, A.A.; Olanrewaju, O.O.; Griffioen, M.L. Greywater Reuse for Toilet Flushing in High-Density Urban Buildings in South Africa: A Pilot Study; Water Research Comission: Johannesburg, South Africa, 2012; pp. 1–194. [Google Scholar]
- Alkhalidi, A.; Aljolani, O. Do green buildings provide benefits to the residential sector in Jordan? Yes, but…. Int. J. Low-Carbon Technol. 2020, 15, 319–327. [Google Scholar] [CrossRef]
- Zhang, Y.; Grant, A.; Sharma, A.; Chen, D.; Chen, L. Assessment of rainwater use and greywater reuse in high-rise buildings in a brownfield site. Water Sci. Technol. 2009, 60, 575–581. [Google Scholar] [CrossRef]
- Imteaz, M.; Shanableh, A. Feasibility of recycling grey-water in multi-storey buildings in Melbourne. In Proceedings of the World Sustainability Forum, 29 October 2012. pp. 1–7. Available online: www.sciforum.net (accessed on 20 June 2024).
- Prajapati, R.; Pandya, I.; Maitreya, B. Comparison of Normal Landscaping and Water-Wise Landscaping of Selected Farm in the Ahmedabad Area. Int. Assoc. Biol. Comput. Dig. 2023, 2, 211–214. [Google Scholar] [CrossRef]
- Al-Sulbi, A. Cost Estimation of Wastage Irrigation Water in Arid Public Landscape Areas King Abdullah Park–Dammam, Saudi Arabia. Emir. J. Eng. Res. 2020, 26, 4. [Google Scholar]
- Pauku, R.L. Barringtonia procera (cutnut). In Traditional Trees of Pacific Islands: Their Culture, Environment and Use; Permanent Agriculture Resources (PAR): Hōlualoa, HI, USA, 2006; pp. 153–170. [Google Scholar]
- Hasan, R.; Yeo, L.B.; Othmani, N.I.; Mohamed, S.A.; Awang, A.; Aziz, N.D. Improving Campus Sustainability and Resilience by Selecting Climate-Appropriate Plants. In BIO Web of Conferences; EDP Sciences: Les Ulis, France, 2023; Volume 73, p. 03006. [Google Scholar]
- Ikhsan, M.; Hadi, U.K.; Soviana, S. Diversity and distribution bromeliads plants as breeding habitat for mosquito larvae (Diptera: Culicidae) in Bogor, Indonesia. Biodiversitas J. Biol. Divers. 2020, 21, 3494–3498. [Google Scholar] [CrossRef]
- Tapia-Campos, E.; Rodriguez-Dominguez, J.M.; Revuelta-Arreola, M.M.; Van Tuyl, J.M.; Barba-Gonzalez, R. Mexican Geophytes II. The Genera Hymenocallis, Sprekelia and Zephyranthes. Floric. Ornam. Biotechnol. 2012, 6 (Suppl. S1), 129–139. [Google Scholar]
- Backhaus, R.A.; Pettit, G.R., III; Huang, D.S.; Pettit, G.R.; Groszek, G.; Odgers, J.C.; Ho, J.; Meerow, A. Biosynthesis of the antineoplastic pancratistatin following tissue culture of Hymenocallis littoralis (Amaryllidaceae). In Proceedings of the International Symposium on Medicinal and Aromatic Plants, XXIII IHC 306; International Society for Horticultural Science: Budapest, Hungary; Firenze, Italy, 1992; pp. 364–366. [Google Scholar]
- He, B.; Guo, T.; Huang, H.; Xi, W.; Chen, X. Physiological responses of Scaevola Aemula seedlings under high-temperature stress. S. Afr. J. Bot. 2017, 112, 203–209. [Google Scholar] [CrossRef]
- Starman, T.; Lombardini, L. Growth, gas exchange, and chlorophyll fluorescence of four ornamental herbaceous perennials during water deficit conditions. J. Am. Soc. Hortic. Sci. 2006, 131, 469–475. [Google Scholar] [CrossRef]
- Akinniyi, G.; Lee, J.; Kim, H.; Lee, J.G.; Yang, I. A medicinal halophyte Ipomoea pescaprae (Linn.) r. br.: A review of its botany, traditional uses, phytochemistry, and bioactivity. Mar. Drugs 2022, 20, 329. [Google Scholar] [CrossRef]
- EuroAsia (Agro) Pvt Ltd.; Clerodendron Inerme EuroAsia Biotechnology, EuroAsia Agro (Pvt) Ltd. 2020. Available online: https://euroasiaplantbiotec.com/clerodendron-inerme#:~:text=Clerodendrum%20is%20a%20genus%20of,%2C%20bagflower%20and%20bleeding%2Dheart (accessed on 16 December 2023).










| Location | Toilet-Flushing/Indoor Usage | MVAC | Irrigation | Reference |
|---|---|---|---|---|
| Malaysia | Approximately 28% | 57.1% | 14.3% | [25] |
| California | 31% | 48% | 18% | [24] |
| USA | 50% | 28% | 22% | [27] |
| USA | NA | The highest consumption | [28] | |
| Florianópolis, Southern Brazil | 52% to 84% | NA | [29] | |
| Occupancy | Operation Days | Operation | ||
|---|---|---|---|---|
| Employees | Transients | |||
| Office | 1076 | - | 260 | Monday–Friday 8.00 AM to 6.00 PM |
| Restaurant | 34 | 150 | 365 | Every day 8.00 AM to 11.00 PM |
| Service (Bank) | 37 | 174 | 260 | Monday–Friday 8.00 AM to 6.00 PM |
| Total | 1147 | 324 | ||
| Level | Vegetation Footprint Area (m2) | ||
|---|---|---|---|
| Trees | Plants | Total Area | |
| Ground level | 261.51 | 42.00 | 303.51 |
| Level 8 | 56.54 | 62.50 | 119.04 |
| Level 32 | 117.78 | 5.40 | 123.18 |
| Zone ID | Landscape Feature Area (sq m) | Plant Type or Landscape Feature | Water Requirement | Landscape Coefficient (KL) | Irrigation Type | Distribution Uniformity (DULQ) | Landscape Water Requirement; LWRH/(L/Month) |
|---|---|---|---|---|---|---|---|
| G1 T1 | 791.8 | Trees | Low | 0.2 | No irrigation | N/A | 0 |
| G1 T2 | 254.5 | Trees | Low | 0.2 | N/A | 0 | |
| G1 T3 | 15.7 | Trees | Medium | 0.5 | Drip | 70% | 1134 |
| G1 P1 | 84.0 | Shrubs | Low | 0.2 | Drip | 70% | 1379 |
| G1 P2 | 5.5 | Shrubs | Medium | 0.5 | Drip | 70% | 397 |
| L1 P3 | 14.5 | Shrubs | Low | 0.2 | Drip | 70% | 238 |
| L1 P4 | 7.0 | Shrubs | Low | 0.2 | Drip | 70% | 115 |
| L2 P4 | 21.5 | Shrubs | Low | 0.2 | Drip | 70% | 353 |
| L3 P3 | 14.5 | Shrubs | Low | 0.2 | Drip | 70% | 238 |
| L3 P4 | 7.0 | Shrubs | Low | 0.2 | Drip | 70% | 115 |
| L4 P4 | 21.5 | Shrubs | Low | 0.2 | Drip | 70% | 353 |
| L5 P3 | 14.5 | Shrubs | Low | 0.2 | Drip | 70% | 238 |
| L5 P4 | 7.0 | Shrubs | Low | 0.2 | Drip | 70% | 115 |
| L6 P4 | 21.5 | Shrubs | Low | 0.2 | Drip | 70% | 353 |
| L7 P3 | 62.5 | Shrubs | Low | 0.2 | Drip | 70% | 1026 |
| L11 P2 | 12.0 | Shrubs | Medium | 0.5 | Drip | 70% | 867 |
| L11 P4 | 12.0 | Trees | Low | 0.2 | Drip | 70% | 197 |
| L11 P5 | 13.3 | Shrubs | Medium | 0.5 | Drip | 70% | 960 |
| L21 P2 | 9.0 | Shrubs | Medium | 0.5 | Drip | 70% | 650 |
| L21 P4 | 9.0 | Shrubs | Low | 0.2 | Drip | 70% | 148 |
| L21 P5 | 8.0 | Shrubs | Medium | 0.5 | Drip | 70% | 579 |
| L30 T5 | 19.6 | Shrubs | Medium | 0.5 | Drip | 70% | 1418 |
| L30 T6 | 21.2 | Shrubs | Low | 0.2 | Drip | 70% | 348 |
| L30 P2 | 22.5 | Shrubs | Medium | 0.5 | Drip | 70% | 1625 |
| L30 P5 | 9.0 | Trees | Medium | 0.5 | Drip | 70% | 650 |
| L30M P5 | 3.2 | Trees | Medium | 0.5 | Drip | 70% | 228 |
| Total landscape feature area (m2) | 1482 | ||||||
| Landscape water requirement based on the site’s peak watering month (L/month) | 13,723 | ||||||
| Fitting | Baseline | Values of Selected Fittings | Reduction % | ||
|---|---|---|---|---|---|
| Shower heads | 2.50 | gpm | 1.10 | gpm | 56% |
| Basin taps and mixers (public) | 0.50 | gpm | 0.32 | gpm | 36% |
| Basin taps and mixers (private) | 2.20 | gpm | 1.40 | gpm | 36% |
| WC flush valves (per flush) low and high | 1.60 | gpf | 0.79 | gpf | 51% |
| Urinal flush valves (per flush) | 1.00 | gpf | 0.13 | gpf | 87% |
| Kitchen sink | 2.20 | gpm | 1.00 | gpm | 55% |
| Average reduction | 53% | ||||
| Group Name | Baseline Case/(Gallons/Year) | Design Case/(Gallons/Year) | ||||
|---|---|---|---|---|---|---|
| Annual Flush Volume | Annual Flow Volume | Annual Consumption | Annual Flush Volume | Annual Flow Volume | Annual Consumption | |
| Service (Bank) | 71,307.60 | 30,186.00 | 101,493.60 | 28,502.76 | 15,932.80 | 44,435.56 |
| Restaurant | 89,724.30 | 38,489.25 | 128,213.55 | 36,029.88 | 20,264.80 | 56,294.68 |
| Office | 1,183,384.80 | 713,388.00 | 1,896,772.80 | 487,621.68 | 358,092.80 | 845,714.48 |
| Annual baseline water consumption (gallons/year) | 2,126,479.95 | |||||
| Annual design (reduced) water consumption of the case study (gallons/year) | 946,444.72 | |||||
| Percentage of water-use reduction | 55.49% | |||||
| TAG | Total Capacity/kW | Condensate Water Flow Rate L/h | Number of Equipment | Total Condensed Water Flow Rate L/h | |
|---|---|---|---|---|---|
| FCU-30M-1 | 10.0 | 6.2 | 2 | 12.5 | |
| FCU-30M-2 | 8.1 | 6.3 | 2 | 12.6 | |
| FCU-30M-3 | 9.8 | 7.6 | 1 | 7.6 | |
| IU-R-01 | 5.3 | 2.8 | 1 | 2.8 | |
| IU-R-02 | 3.0 | 1.4 | 1 | 1.4 | |
| IU-R-03 | 7.0 | 3.7 | 1 | 3.7 | |
| FCU-30-01 | 18.4 | −0.6 | 3 | −1.9 | |
| FCU-30-02 | 2.64 | 0.1 | 1 | 0.1 | |
| FCU-29M | 4.7 | 0.1 | 2 | 0.2 | |
| FCU-28-01 | 3.2 | 3.1 | 1 | 3.1 | |
| FCU-22-01 | 4.1 | 0.1 | 14 | 1.5 | |
| FCU-22-01 | 3.2 | 3.1 | 1 | 3.1 | |
| FCU-11-01 | 9.1 | 4.7 | 14 | 65.3 | |
| FCU-11-02 | 3.2 | 3.1 | 1 | 3.1 | |
| FCU-01 | 3.2 | 3.1 | 4 | 12.4 | |
| FCU-01 | 3.2 | 3.1 | 14 | 43.5 | |
| FCU-L7-01 | 3.2 | 3.1 | 1 | 3.1 | |
| AHU-29-01 | 85.0 | 260.2 | 1 | 260.2 | |
| AHU-28-01 | 53.9 | 3.1 | 1 | 3.1 | |
| AHU-28-02 | 31.1 | 2.8 | 1 | 2.8 | |
| FAHU-11-1 | 260.7 | 246.3 | 1 | 246.3 | |
| FAHU-11-2 | 167.1 | 158.3 | 1 | 158.3 | |
| AHU-Typ-1 | 53.9 | 3.1 | 19 | 59.4 | |
| AHU-Typ-2 | 31.1 | 2.8 | 19 | 52.3 | |
| Condensed water flow rate based on the peak cooling load | L/h | 956 | |||
| L/s | 0.26 | ||||
| 15 May—Time Period | Cooling Load (RT) | Cooling Load Factor Considered | Condenser Water Flow Rate (L/Min) | Flow Rate Contributes to the Water Loss of 1% | Condensed Water Loss (L/min) per Cooling Tower | Condensed Water Loss (L/S) per Cooling Tower | Condensed Water Loss (L/S) in the Cooling Tower System | Condensed Water Loss or Make-Up Water Needs in L |
|---|---|---|---|---|---|---|---|---|
| 8:30 | 577.64 | 0.83 | 4220 | 3508.21 | 35.08 | 0.58 | 1.17 | 4210 |
| 9:30 | 579.77 | 0.83 | 4220 | 3521.12 | 35.21 | 0.59 | 1.17 | 4225 |
| 10:30 | 680.92 | 0.98 | 4220 | 4135.48 | 41.35 | 0.69 | 1.38 | 4963 |
| 11:30 | 694.87 | 1.00 | 4220 | 4220.21 | 42.20 | 0.70 | 1.41 | 5064 |
| 12:30 | 674.82 | 0.97 | 4220 | 4098.39 | 40.98 | 0.68 | 1.37 | 4918 |
| 13:30 | 689.42 | 0.99 | 4220 | 4187.08 | 41.87 | 0.70 | 1.40 | 5024 |
| 14:30 | 691.08 | 0.99 | 4220 | 4197.17 | 41.97 | 0.70 | 1.40 | 5037 |
| 15:30 | 650.27 | 0.94 | 4220 | 3949.30 | 39.49 | 0.66 | 1.32 | 4739 |
| 16:30 | 670.08 | 0.96 | 4220 | 4069.64 | 40.70 | 0.68 | 1.36 | 4884 |
| 17:30 | 583.26 | 0.84 | 4220 | 3542.31 | 35.42 | 0.59 | 1.18 | 4251 |
| Total make-up water needs in L on the date on which the peak cooling load was recorded | 47,315 | |||||||
| 15 May—Time Period | Cooling Load (RT) | Factor Considered | Collection of Condensed Water Based on Peak Demand | Collection of Condensed Water Based on Varying Cooling Load | Hourly Condensed Water Collection in L |
|---|---|---|---|---|---|
| 8:30 | 577.64 | 0.83 | 0.266 | 0.221 | 796.0 |
| 9:30 | 579.77 | 0.83 | 0.266 | 0.222 | 799.0 |
| 10:30 | 680.92 | 0.98 | 0.266 | 0.261 | 938.4 |
| 11:30 | 694.87 | 1.00 | 0.266 | 0.266 | 957.6 |
| 12:30 | 674.82 | 0.97 | 0.266 | 0.258 | 930.0 |
| 13:30 | 689.42 | 0.99 | 0.266 | 0.264 | 950.1 |
| 14:30 | 691.08 | 0.99 | 0.266 | 0.265 | 952.4 |
| 15:30 | 650.27 | 0.94 | 0.266 | 0.249 | 896.1 |
| 16:30 | 670.08 | 0.96 | 0.266 | 0.257 | 923.4 |
| 17:30 | 583.26 | 0.84 | 0.266 | 0.223 | 803.8 |
| Total condensed water collection on the date on which the peak cooling load was recorded (L) | 8947 | ||||
| Category | Water Consumption (L/month) | |
|---|---|---|
| Baseline [66] | Case Study | |
| Outdoor (Landscape) | 192,930 | 13,723 |
| Indoor | 670,800 | 298,557 |
| MVAC system | 1,182,867 | 959,197 |
| Total | 2,046,597 | 1,271,477 |
| Water efficiency excluding MVAC system | 72.92% | |
| Water efficiency including MVAC system | 37.87% | |
| No of units saving per month | 775 | |
| Tariff rate in LKR | 150 | |
| Cost of saving of potable water per month in USD | 790 | |
| Cost of saving of potable water per annum in USD | 9496 | |
Disclaimer/Publisher’s Note: The statements, opinions and data contained in all publications are solely those of the individual author(s) and contributor(s) and not of MDPI and/or the editor(s). MDPI and/or the editor(s) disclaim responsibility for any injury to people or property resulting from any ideas, methods, instructions or products referred to in the content. |
© 2024 by the authors. Licensee MDPI, Basel, Switzerland. This article is an open access article distributed under the terms and conditions of the Creative Commons Attribution (CC BY) license (https://creativecommons.org/licenses/by/4.0/).
Share and Cite
Thebuwena, A.C.H.J.; Samarakoon, S.M.S.M.K.; Ratnayake, R.M.C. On the Necessity for Improving Water Efficiency in Commercial Buildings: A Green Design Approach in Hot Humid Climates. Water 2024, 16, 2396. https://doi.org/10.3390/w16172396
Thebuwena ACHJ, Samarakoon SMSMK, Ratnayake RMC. On the Necessity for Improving Water Efficiency in Commercial Buildings: A Green Design Approach in Hot Humid Climates. Water. 2024; 16(17):2396. https://doi.org/10.3390/w16172396
Chicago/Turabian StyleThebuwena, A. Chandana Hemantha J., S. M. Samindi M. K. Samarakoon, and R. M. Chandima Ratnayake. 2024. "On the Necessity for Improving Water Efficiency in Commercial Buildings: A Green Design Approach in Hot Humid Climates" Water 16, no. 17: 2396. https://doi.org/10.3390/w16172396
APA StyleThebuwena, A. C. H. J., Samarakoon, S. M. S. M. K., & Ratnayake, R. M. C. (2024). On the Necessity for Improving Water Efficiency in Commercial Buildings: A Green Design Approach in Hot Humid Climates. Water, 16(17), 2396. https://doi.org/10.3390/w16172396

