Abstract
This paper takes the deep foundation pit project of Lanzhou Hospital of Traditional Chinese Medicine as the background. The design and construction of the foundation pit is relatively difficult due to the complex environment around the pit, the dense surrounding buildings, the complex underground soil layer and the influence of groundwater on the pit. In order to detect problems in the construction process, the pit was monitored in real time through an automated monitoring system for the whole process of excavation and backfilling of the pit. The analysis of the actual monitoring data shows that: (i) the support scheme of bored pile + prestressed anchor cable support combined with concrete corner bracing can meet the design of this type of foundation pit without causing disturbance to the surrounding buildings; (ii) combined with the actual case of the influence of groundwater on the excavation process of the foundation pit, it proves that the real-time measurement by the robot can timely detect the safety hazards caused by external factors during the construction process of the foundation pit. The project is a very important one for deep pits and complex pits. This project provides a good reference case for deep foundation pits and foundation pit projects in complex environments.
1. Introduction
With the continuous development of urbanization in the western region, the foundation pit projects in the west of loess area have gradually increased. Because the topography and geomorphology region of the west of China are relatively complex, the available land resources are relatively small, and the requirements for the foundation pit project are becoming more and more stringent. In addition, because the safety performance requirements of deep foundation pits are relatively high, and the impact on the surrounding existing buildings is rather large, it makes it a complex problem in geotechnical engineering research. To have a more specific understanding of the deep foundation pit project, scholars have created comprehensive monitoring of the foundation pit project to ensure safe progress of the foundation pit project.
Dmochowski, G. et al. [1] analyse various risk factors for the implementation of infill buildings and the revival of historic buildings using only facades. In addition, examples of modern solutions for fixing existing building walls are presented, as well as methods for monitoring vertical deformations using a hydrostatic level (HLC) system. Zhandos Y. Orazalin, et al. [2] analytically highlighted the effects of three-dimensional excavation and support geometry on wall and ground movements by simulating the basement of the Stata Center building on the MIT campus. L. Sebastian Bryson, et al. [3] proposed a relative stiffness ratio theory and analysed several case studies using 3D finite element analysis. The new relative stiffness ratio performed well in predicting the bending stiffness of the braced system and the lateral deformation caused by the actual excavation of the braced system. Luca Masini et al. [4] using the Rome Metro Line C as a case study, and through extensive instrumental testing during construction, as well as field observations, concluded that a robust retaining system and strict control of the construction sequence were key to minimising the impact of deep excavation. T. SCHWAMB et al. [5] numerical simulations of a circular shaft in London were carried out and compared with pre-monitoring data in order to understand the performance of the shaft during excavation and to draw conclusions for the future design of similar structures. L. Sebastian Bryson et al. [6] presented a case study, using the results of a three-dimensional (3D) finite element (FE) analysis of the study, which involved the observed response of a building in the vicinity of a deep foundation pit. Panpan Guo, Xiaonan Gong et al. [7] report on a rare deep braced approach in the context of deep foundation excavation in Suzhou, China, which is facing severe constraints from underground facilities or structures, and provide a comprehensive analysis of the performance of this deep excavation, which provides a good case study for practical engineering. Panpan Guoa, Xiaonan Gong et al. [8] With the aim of revealing the displacement and force behaviour of deep foundation support under asymmetric overload loading, the displacement and force behaviour of diaphragm walls, AM piles and ground were analysed using the finite difference method through a metro interchange station in Hefei, China, as the engineering background. The validity of the finite element method was verified by comparison with the field monitoring results and the elastic foundation beam method.
Zhou Yong et al. [9] took the pile bracing support structure of the deep foundation pit at Dongfanghong Square Station of Lanzhou Metro Line 1 as the engineering background and analysed the displacement variation law of the enclosure structure, surrounding buildings and ground settlement based on the field monitoring results and numerical calculation. Ye Shuaihua et al. [10] relied on the foundation pit project of a station in Lanzhou Metro to monitor the horizontal and vertical displacement of pile top, surface settlement, steel support axial force, and groundwater level during the foundation pit construction, and systematically analyzed the monitoring data. Mitew-Czajewska, M. [11] describes four excavation scenarios carried out in the immediate vicinity of an existing metro structure, with a special description and analysis of the experimental data and a discussion of the displacements, leading to conclusions about the effects of deep excavation on the structure in the vicinity of the excavation. In addition, the 2D finite element modelling of the selected example is described in detail and the displacement results of the tunnel are compared with the measured results. Jarosław Rybak et al. [12] based on previous experience, outline typical damage occurring in the construction of supporting walls (sheet pile driving, diaphragm wall driving and formation) and in tunnelling. Other damage is caused by unloading of the soil (caused by the excavation phase) and horizontal loads during prestressing of columns or ground anchors. Selected case studies of sheet pile wall installations are given for typical failures caused by unplanned excavations and their effects on adjacent structures. Miłosz Just, presents [13] the results of deep foundation pit analysis using the finite element method and the effects of underground diaphragm wall construction on surrounding objects. Paolo Castaldo et al. [14] Using the design of a new underground station in Naples (Italy) as a research context, the structural safety of existing buildings in the vicinity of deep excavations is assessed by calculating the probability of exceedance for different damage criteria in a simplified probabilistic approach based on univariate or multivariate probabilistic analysis, using the results of a numerical model for boundary value problems. Ryszard Dachowski et al. [15] propose the application of the Preference Ranking Organisation Method for Enriched Evaluation (PROMETHEE) II when selecting the best solution and ranking the selected foundation underpinning methods. the analysis of the selected foundation support methods is based on a complex decision problem that includes aspects of the three pillars of sustainability and it is extended to include technical and construction criteria. Maria Mrowczynska et al. [16] By presenting a method of measuring and processing the results, it has been made possible to determine the vertical displacement of the measurement and control network points inside and outside the building, where variations in the form of scratches and cracks in the external and internal walls are noted.
Ye Shuaihua et al. [17] relied on the deep and large foundation pit project in a complex environment in Lanzhou City, and analyzed the deformation characteristics of the foundation pit and the influence of foundation pit excavation on adjacent buildings during the excavation process according to the monitoring data of the soil, supporting structure, adjacent buildings around the foundation pit and the numerical simulation of foundation pit excavation, To provide a reference for the design of deep and large foundation pit projects in complex environments. Yin Lijie, Li Yujie, Zhu Yanpeng [18] and others proposed a diaphragm wall with internal bracing support system for deep foundation pits in red sandstone using the Lanzhou Metro Yan Yuan Road Station as an example. Numerical simulations of the excavation process were carried out using Midas GTS finite element software, and the simulated data and monitoring data were compared and analysed. The results of the study can provide experience reference for the design of similar red sandstone foundation pit support structures encountered in the subsequent construction of Lanzhou Metro. Ye Shuaihua et al. [19] took a deep foundation pit project of China Mobile Gansu Company as an example, and analysed the deformation characteristics of three types of support structures, namely composite soil nail walls with soil nails plus prestressed anchors, soil nail walls and row piles plus prestressed anchors, respectively, based on the monitoring results, which showed the practicality of such support effects in similar areas.
This paper is based on the deep foundation pit project of Lanzhou Hospital of Traditional Chinese Medicine; because the surrounding environment of the foundation pit is relatively complex, it is necessary to fully consider the influence of surrounding buildings, complex strata, and groundwater on the deep foundation pit project. In order to ensure safety during the construction of foundation pits and to gain experience in working with deep foundation pits in complex environments. By automatically monitoring the vertical and horizontal displacement, deep horizontal displacement, settlement deformation of foundation pit, internal force of bolts, settlement of surrounding buildings and surrounding pipelines, and groundwater level of supporting structures and analyzing the monitoring data, this paper provides a good case for similar foundation pit projects in loess areas, and also provides a reference for the design and construction of deep and large foundation pit projects in complex environments.
2. Project Overview
2.1. Site Overview
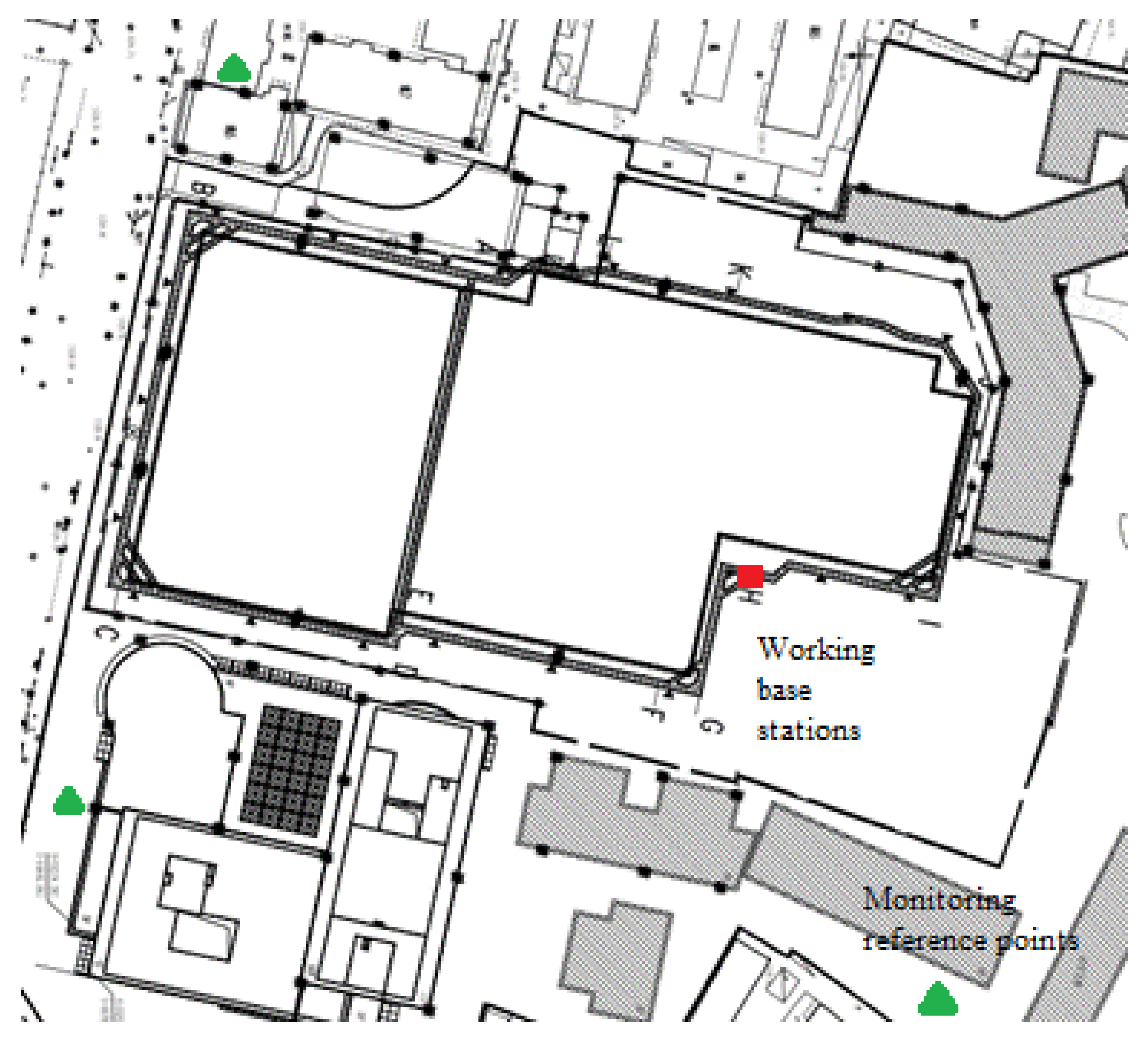
The Northwest Regional Medical Center Project of Gansu Provincial Hospital of Traditional Chinese Medicine is located in Qilihe District, Lanzhou City, and the project is close to urban roads. The ground elevation of the site is 1528.88~1528.35 m, considering the thickness of 0.1 m cushion + 0.1 m waterproof layer, the depth of the podium pit of the medical part on the north side is 12.0~12.5 m, the depth of the foundation pit of the main building of the medical interest on the north side is 13.1 m. The depth of the foundation pit of the three-dimensional garage on the south side is 22.3 m. The surrounding environment of the foundation pit is complex and there are many buildings. Part: (1) a medical area, (2) an underground garage, the surrounding environment as shown in Figure 1.
Figure 1.
Map of the surrounding environment of the foundation pit.
The medical area is located on the north side of the underground garage; the foundation pit is in the shape of an “L”, the west and north sides are all D Block Inpatient Building, pile raft foundation, buried about 10.0 m, the west side is about 15 m from the outdoor basement wall, and the north side is about 4.7 m from the outdoor basement wall. The east side of the site is spacious, the closest buildings to the foundation pit are residential buildings 6 and 7, which are about 13 m~18 m away from the outer wall of the underground garage, and the pile foundation is buried at a depth of about 11 m.
The underground garage area has a rectangular plan and a depth of 22.3 m. On the west side, there is a 6-story frame house, an independent foundation, buried about 2.0 m deep. It is about 12.6 m from the outer wall of the underground garage. The south side is 8.4 m away from the outer wall of the underground garage for Guazhou Road, with heavy traffic. On the east side, the podium of the Medical Technology Complex Building (Building A) of the Provincial Hospital of Traditional Chinese Medicine is adjacent to the foundation pit, and the nearest distance is about 7.7 m from the outer wall of the underground garage. 2 basement floors with independent foundation. The main building of the Medical Technology Complex Building (Building A) is a pile raft foundation, buried 12 m deep.
2.2. Hydrogeological Conditions
The maximum excavation depth of the foundation pit of this project is about 22.3 m, and the lithology of the site strata within the proposed site is composed of the fourth series of new artificial fill and alluvium, which is divided into 6 main engineering geological layers and 4 engineering sublayers according to its engineering geological characteristics, which are now described as follows: ① Miscellaneous fill (Q4ml): variegated, slightly wet, loose, uneven soil quality, the surface layer of 0.10~0.20 m is mostly concrete ground, the overall backfill is uneven, irregular, the backfill contains silt, bricks, concrete blocks, white ash, gravel, Coal ash and dark impurities, etc. ② Plain fill (Q4ml): yellow-brown, slightly wet, slightly dense, mainly backfill silt, containing a small amount of gravel, construction waste, etc. ③ Loess-like silt (Q4al+pl): black-brown, slightly wet-wet, slightly dense, extremely uneven soil, the composition is mainly fine sand, local powder and clay particles are interlayered, hand rubbing has a sticky feeling, smell. ③-1 Gravelly sand (Q4al+pl): distributed in the form of sandwich or lens body, blue-gray, slightly wet, slightly dense, uneven particle size, particle size greater than 2 mm particle content accounts for about 30.0~45.0%. ④ Peaty silty fine san (Q4al+pl): black-brown, slightly wet-wet, slightly dense, extremely uneven soil, the composition is mainly silty sand, local powder and clay particles are interlayered, hand rubbing has a sticky feeling, smelly smell. ⑤ Fine sand (Q4al+pl): blue-gray, wet ~ saturated, slightly dense, locally sandwiched with a thin layer of silt. ⑤-1 Round gravel (Q4al+pl): distributed in the form of sandwich or lens body, blue-gray, wet ~ saturated, medium dense. The general particle size is about 2~20 mm, accounting for more than 50% of the total amount; the maximum visible particle size is more than 30 mm, sub-circular, good roundness, general sorting, large sand content, most of the medium coarse sand filling, local sand filling. ⑥ Cobble (Q4al+pl): blue-gray, wet ~ saturated, medium dense. See the boulder; the maximum particle size seen in the borehole is more than 300 mm. It is sub-circular, the roundness is good, the sorting is general, and most of the medium coarse sand filling, is local sand filling. There is a thin layer of fine sand or a thin layer of silt, and the whole field is continuously distributed. ⑥-1 fine sand (Q4al+pl): distributed in the form of sandwich or lens body, blue-gray, wet ~ saturated, slightly dense, the core is discrete, sandwiched with individual small gravel. ⑥-2 Round gravel (Q4al+pl): distributed in the form of sandwich or lens body, blue-gray, wet ~ saturated, medium dense, general particle size in 2~20 mm, the maximum visible particle size is more than 40 mm, sub-circular, general sorting, large sand content. The thickness and physical and mechanical parameters of each soil layer in the foundation pit are shown in Table 1.
Table 1.
Basic parameters of each rock and soil layer.
A layer of groundwater was exposed at the depth of exploration, and the groundwater type was Quaternary loose rock pore diving. It is mainly found in the pores of the pebble layer, and the amount of water is relatively abundant. During the survey, the groundwater level was buried at a depth of 10.20~12.20 m, and the elevation was 1516.84~1517.85 m. The water inflow of a single well is 700~2000 m3/d. The permeability coefficient of the pebble layer is 30~50 m/d. The primary recharge sources are the lateral replenishment of the Yellow River in the west and north of the site, followed by atmospheric precipitation, lateral replenishment of the Huangyugou south of the site, irrigation infiltration, and infiltration of residents’ production and domestic water, which is discharged from the west, south to northeast of the site, and the groundwater variation is 1.00~1.50 m.
3. Pit Support Design Scheme and Construction
3.1. Selection of Supporting Structure
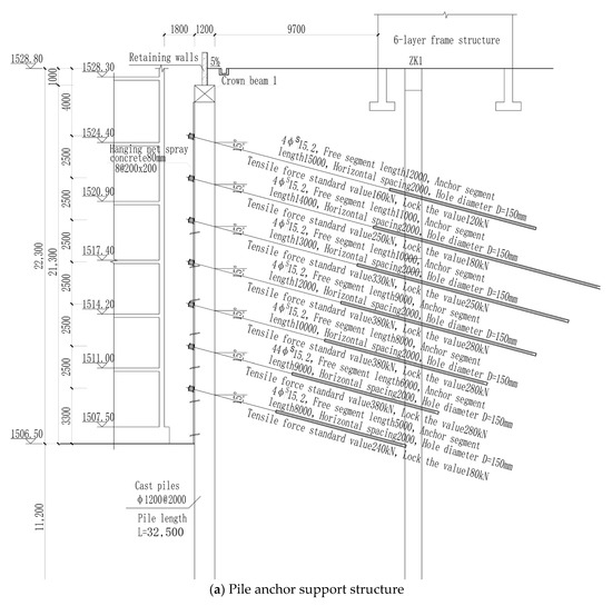
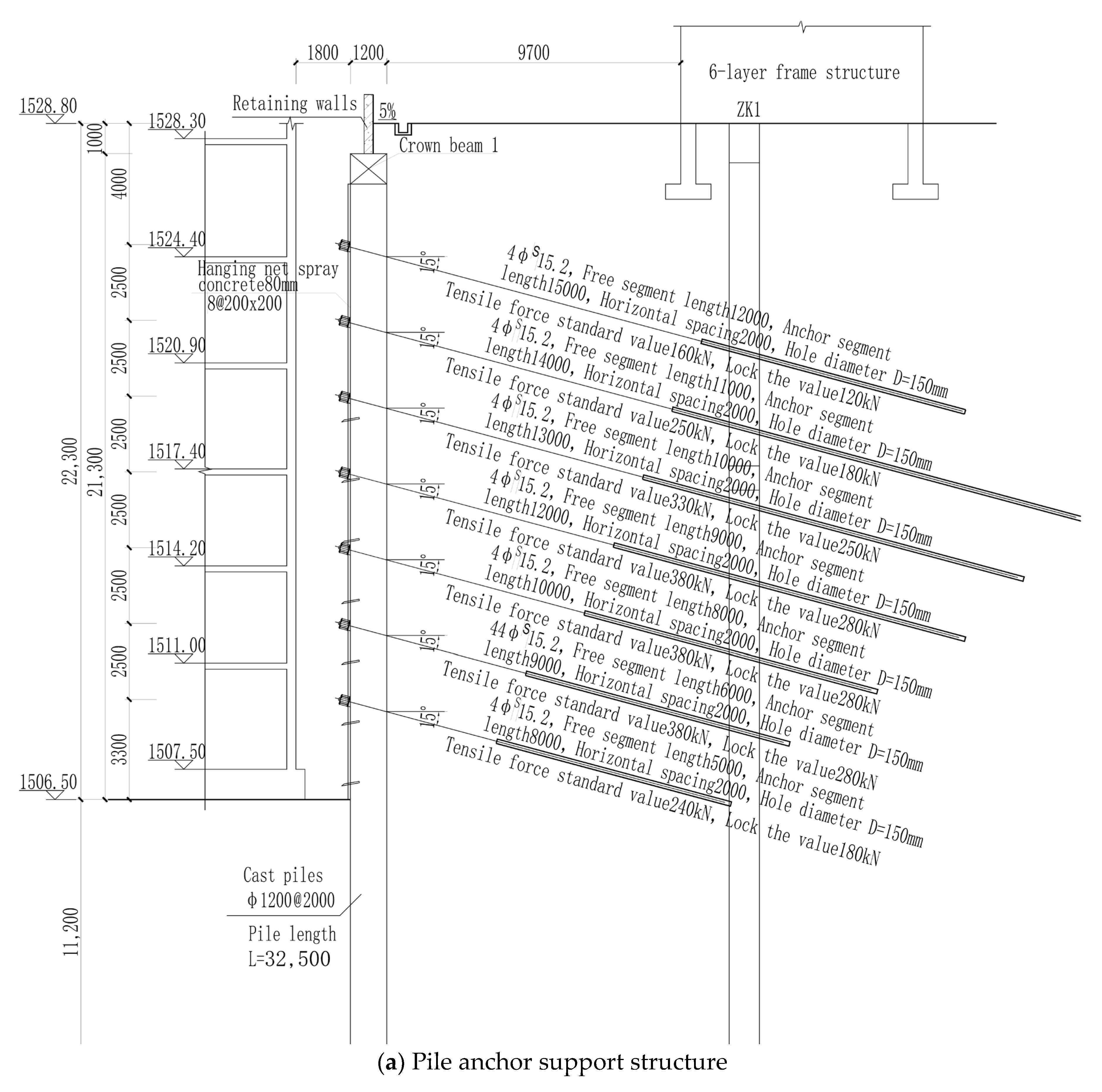
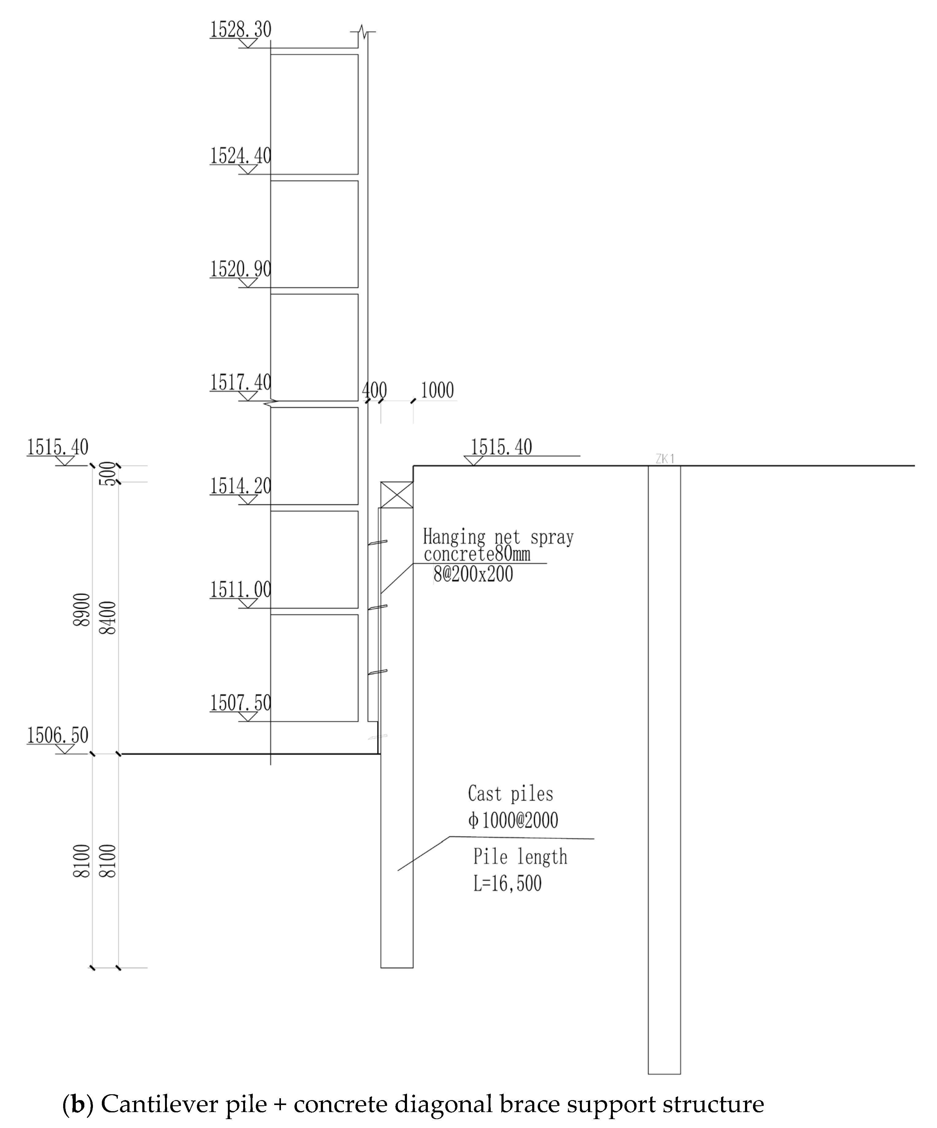
The excavation depth of the foundation pit project is considerable, the soil layer is relatively complex, the influence of the groundwater table is profound, the surrounding buildings are dense, and the deformation requirements are strict. Comprehensively considering the safety, economic rationality, and construction convenience of the project, the foundation pit is divided into nine sections, and two design schemes are adopted: bored pile + prestressed anchor cable foundation pit support and cantilever pile + concrete diagonal brace foundation pit support.
A~B, B~C, D~E section, C~D section, E~F section, F~G section, G~H~I section, I~J, J~K section, K~L section and L~A section adopt bored pile + prestressed anchor foundation pit support scheme, and area A~E adopts cantilever pile + concrete diagonal brace foundation pit support form. A typical profile is shown in Figure 2. According to the geological survey report, the groundwater level around the foundation pit is buried at a depth of about 10 m. The precipitation scheme of the tube well outside the hole + catchment well in the hole is adopted.

Figure 2.
Profile view of a typical support structure.
3.2. Reinforced Concrete Support Piles
Support pile is a commonly used support method in foundation pit engineering, which mainly bears the active earth pressure of the foundation pit and combines with the crown beam to form a stable support structure [20,21]. The plane size of the foundation pit is large, and the working space is sufficient, so a reinforced concrete support pile + prestressed anchor cable is used to form an effective support scheme.
To ensure the construction quality, the primary reinforcement of the supporting pile is preferably connected by straight threaded sleeves, and lap welding connections can also be used; The relationship of longitudinal steel bar of the crown beam can be connected by lap welding. The welding adopts double-sided welding; the length of the help strip is not less than 5 d, the weld height is not less than 0.3 d, and the weld width is not less than 0.8 d. When welding, the joints should be staggered, the common area of the same section should not exceed 50%, and the interval arrangement; And must first do the welding test, qualified before formal welding. The main steel bar combinations are shown in Table 2.
Table 2.
Reinforcement table of support piles by section.
3.3. Prestressed Anchor Cables
In this foundation pit project, the combination of prestressed anchor cable and supporting pile produces a more effective supporting effect for the foundation pit project. In this foundation pit project, the anchor cable adopts a 15.2 mm diameter steel strand, and the hole diameter is 150 mm. When applying to prestress to the anchor cable, it is necessary to wait for the strength of the grouting consolidation body of the anchor section to reach 20 MPa or reach more than 80% of the design strength and for the supporting pile gets more than 80% of the design strength, and the anchor cable can be tensioned and locked, and the five-stage tension is carried out according to the locking value, and the specific construction process is shown in Figure 3.
Figure 3.
Drilling construction of anchor cable.
3.4. Crown Beam, Angle Brace
Considering the safety, economy, and stability of the foundation pit, the A–E sections are connected by an angle brace, and Figure 4 is the construction drawing of the corner brace site. The primary function of the crown beam is to communicate between stressed members and structure’s integrity, and the node connection is shown in Figure 5.
Figure 4.
On-site construction of corner braces.
Figure 5.
Construction drawings of angular braces/diagonal braces and crown joints.
The crown beam and angle brace of the foundation pit project are made of reinforced concrete material, and the bottom elevation position of the support beam is first excavated during its construction; the foundation is rammed, the bottom mold of the support beam is installed, and then the steel bar is installed on the bottom mold, and when the steel bar is installed, the support beam and the waist beam node should be connected as a whole, and the concrete is poured as a whole. For concrete braces, arching is used during construction, and the arching height is L/400.
3.5. Foundation Pit Precipitation
The garage on the south side of the foundation pit of Gansu Provincial Hospital of Traditional Chinese Medicine is about 22.3 m deep, so the garage foundation pit needs to be designed for precipitation; after the rain of the foundation pit on the south side, the medical area on the north side does not need rain, so no precipitation wells are set up, and the medical room on the north side only sets up blind ditches and catchment wells in the space of the fertilizer trough, and Figure 6 and Figure 7 are the effect drawings of the construction process and the completion of construction. The tube well precipitation + open drainage scheme in the foundation pit of this project is adopted, and the catchment wells need to be laid at a distance of 30 m around the bottom of the hole. The precipitation cycle of the foundation pit is determined according to the construction progress, and the precipitation well near the post-pouring belt is considered according to the specific situation after the excavation of the foundation. The well is sealed after the post-pouring belt is poured, and waterproof measures such as waterproof rings should be set up. After the precipitation outside the pit, the lower part is backfilled with graded sand and gravel to prevent the formation of groundwater channels and cause the foundation of surrounding buildings to collapse.
Figure 6.
Borehole downpipe-buried.
Figure 7.
Tubewell lowering diagram.
4. On-Site Monitoring and Data Analysis
Considering the density of surrounding buildings and their low water level, the horizontal displacement of deep soil, water level change, horizontal removal of supporting piles, vertical displacement of supporting banks, settlement of surrounding buildings, settlement of surrounding pipelines, the axial force of anchor cables, and monitoring of cracks at the top and around the supporting structure were monitored in this foundation pit project. To ensure the accuracy of monitoring, the foundation pit monitoring adopts automatic monitoring instruments and quantitative equipment monitoring (see Figure 8 for the work schematic diagram), the manual patrol inspection is qualitatively combined, and the selected measuring robot meets the accuracy requirements of the polar coordinate method for the total station, and the distance between the on-site work base station and the monitoring point is controlled within 150 m. Set up a data automatic collection base station at the site; the monitoring cycle of the foundation pit project starts on 1 September 2020, a period of 25 months of monitoring; the whole monitoring process adopts automatic reading, uploading, recording, alarm, the layout plan of the foundation pit monitoring point is shown in Figure 9, and the number of monitoring points is detailed in Table 3.
Figure 8.
Schematic diagram of foundation pit online monitoring system.
Figure 9.
Layout plan of monitoring points of foundation pit.
Table 3.
Summary of monitoring points.
The data of each monitoring point can be obtained by measuring the robot monitoring foundation pit, and the data processing center has a variety of functional requirements according to its object orientation. Its available composition structure is shown in Figure 10. The data of each monitoring point can be summarized to plot the change curve of the monitoring point quickly.
Figure 10.
Function structure diagram of the automatic monitoring system.
4.1. Settlement and Horizontal Displacement Monitoring of Supporting Structures
The settlement and horizontal displacement monitoring of the supporting structure were monitored by the Tianbao S9 measurement robot. Due to the significant disturbance and more changes in the excavation process of the foundation pit, the measurement robot can monitor the foundation pit in an all-around and full-time real-time manner to ensure a timely and effective discovery, and the robot details are shown in Figure 11.
Figure 11.
Ten Pao S9 measuring robot.
The measuring robot is based on the principle of establishing a planar control network within the pit, establishing a corresponding planar coordinate system and setting up control points in undisturbed areas around the pit. The measuring robot will set up the corresponding stations and monitor the monitoring points in the pit one by one, obtaining distances and angles, back-calculating the corresponding coordinates X,Y,H as the initial measurement values and comparing them with the data taken at a later stage to see if there are any changes in the data and whether the pit has settled or not.
When the horizontal displacement of the supporting structure is carried out, a total of 22 displacement monitoring points are arranged, and the XY value measured by the robot is further converted into horizontal displacement. Combined with the monitoring data analysis, it can be seen that the main distribution range of the cumulative change of horizontal displacement is 0.000 mm~38.54 mm, the cumulative value of the early warning value of horizontal displacement is 25 mm, and the change rate is 2 mm/d, so it can be concluded that the incremental change obtained by the flat displacement monitoring point of the supporting structure during the entire monitoring period exceeds the range of the allowable early warning value of the specification.
Through data observation, the horizontal displacement of the supporting structure mainly occurred in the excavation stage of the foundation pit, during which the cumulative value of the horizontal displacement of each monitoring point was 14.52~19.83 mm, and its deformation accounted for about 60% of the entire monitoring cycle. After the foundation pit is excavated to the foundation, a certain amount of horizontal displacement is continuously generated in adjusting the internal force of the supporting structure system. After the cumulative deformation value of each monitoring point exceeds the early warning range, the staff of the project department encrypts the monitoring point and strengthens the on-site inspection frequency; according to the monitoring data and inspection results, the side wall of the foundation pit is not abnormal in the subsequent construction until the foundation pit is backfilled, the deformation rate of each monitoring point is less than 2 mm/d, and the monitored deformation data converges until the horizontal displacement of the supporting structure is stable (see Figure 12 for the specific change of monitoring point).
Figure 12.
Horizontal displacement monitoring results of supporting structures.
Figure 13 shows the change curve of the vertica displacement monitoring point of the supporting structure. A total of 22 vertical displacement monitoring points at the top of the foundation pit support structure were arranged. The vertical displacement measured by the static level sensor was combined with the H value measured by the measuring robot, which was converted into vertical displacement for comparative analysis.
Figure 13.
Monitoring results of vertical displacement of supporting structures.
By measuring the value obtained by the robot for analysis, the cumulative value of settlement displacement of each monitoring point is 4.00 mm~33.600 mm; according to the requirements of the specification, the vertical displacement early warning value is a cumulative value of 15 mm, and the change rate is 2 mm/d, which can be judged that the incremental change of some monitoring points of all monitoring points in the foundation pit during the entire settlement displacement monitoring period exceeds the allowable warning value range of the specification. After the cumulative deformation value exceeds the scope of the early warning value, the on-site monitoring point is encrypted monitoring, and the on-site inspection is strengthened; the side wall of the foundation pit has not been continuously deformed, and the surrounding cracks have not continued to develop, and the monitoring points with large vertical deformation after analysis are all at the edge road and passage, there are edge loads and vehicle vibrations, and the construction unit removes the edge load, eliminating the potential safety hazards around the foundation pit and the foundation pit.
4.2. Horizontal Displacement of the Soil of the Foundation Pit
When monitoring the horizontal displacement of the soil mass of the foundation pit, a total of 6 flat displacement monitoring points of the bottomless foundation pit were arranged (three groups of horizontal displacement of deep soil and three groups of horizontal displacement of the deep pile), and the sinusoidal function of the inclination angle on the standard spacing L of the upper and lower guide wheels of the inclinometer was converted into horizontal displacement.
As shown in Figure 14 and Figure 15, when the sensitive axis of the accelerometer is on a horizontal plane, the projection of the vector g on the sensitive axis is zero and the output of the accelerometer is zero. When there is a tilt angle θ between the sensitive axis of the accelerometer and the horizontal plane, the accelerometer outputs a voltage signal.
where: K0 is the accelerometer bias value; K is the accelerometer sensitivity; g is the acceleration of gravity.
A+ = K0 + KgSin
Figure 14.
Oblique-gauge.
Figure 15.
How inclinometers work.
To eliminate the effect of K0, the probe can be turned 180° and a second measurement can be taken at the point where the text following an equation need not be a new paragraph. Please punctuate equations as regular text.
A− = K0 − KgSin
(1) − (2) Eliminate the bias value K0 to obtain the difference; (1) + (2) cancels out the projection of the accelerometer’s inclination, leaving only two times the bias value, called the ‘difference’.
When these incremental horizontal deviations are added up and plotted from the bottom of the borehole, the result is a curve of the change in horizontal offset between the initial observation and any subsequent observation, representing the deformation of the soil during this observation, i.e., the horizontal displacement.
By observing the monitoring data, it can be seen that the cumulative change of deep horizontal displacement is mainly distributed in 0.000 mm~11.876 mm, and the flat displacement changes occur at all monitoring points. According to the existing specifications, the early warning value of the deep horizontal displacement of the foundation pit is 0.3% h~0.4% h, and h is the excavation depth of the foundation pit. The rate of change is 2 mm/d~3 mm/d. Through the monitoring data, it can be judged that the amount of change, individual change rate, and an individual cumulative change of all monitoring points of the foundation pit during the monitoring period are beyond the range of the allowable warning value of the specification. Still alarm value is not reached, which does not affect the safety of the foundation pit.
In the process of on-site monitoring, according to the apparent findings of the monitoring data, the deep horizontal displacement has no influence on the external environment during the monitoring process, the on-site data changes are more sensitive, and the data provided are more timely and accurate; Moreover, the deep horizontal displacement of the three groups of piles is relatively stable, and there is no huge fluctuation, but the change of the flat displacement data of the three groups of soil is slightly more significant than that of the horizontal displacement of the pile body. Still, they are all within the safe and controllable range of the foundation pit. The deep horizontal removal of the pile and the horizontal displacement of the soil are shown in Figure 16.
Figure 16.
Deep horizontal displacement plot.
According to the automatic early warning system of the monitoring system, it was found that on 17 December 2020, the water pipeline of the pump room on the west side of the site foundation pit ruptured, resulting in a change in the horizontal displacement data at this location (Figure 17 and Figure 18). Through the timely warning of the monitoring system, the relevant units immediately take corresponding treatment measures to eliminate the risk of the foundation pit in time.
Figure 17.
Ruptured pipe on site.
Figure 18.
Pit site conditions.
4.3. Vertical Displacement Monitoring of the Static Level
This time, a total of 22 foundation pit static level displacement monitoring points were arranged, of which Figure 19 is the static curve of the foundation pit, and it can be seen from data observation: 1. The cumulative change of vertical displacement of static level in all monitoring points is mainly distributed in 0.000 mm~−32.297 mm. The existing specifications stipulate that the early warning value is 0.4% h~0.6% h, and h is the excavation depth of the foundation pit; The rate of change is 2 mm/d~3 mm/d. It can be judged that the amount of change, individual change rate, and an individual cumulative change of all monitoring points of the foundation pit during the whole monitoring period are beyond the allowable alarm value range of the specification. After data analysis according to the site situation, it was judged that the cumulative change exceeded the capacity, and corresponding measures were taken on the site in time, and the data change was mainly concentrated in the early excavation process, and the data change in the later excavation process was stable, which did not affect the safety of the foundation pit, and the foundation pit as a whole was in a steady state.
Figure 19.
Static graph.
After the pit raft has been poured, the elevation of the datum points monitored by the static level around the pit is in a stable state and the elevation measured by the static level is compared with the real-time monitoring data from the measurement robot in the direction H of each monitoring point. The monitoring data obtained by two different monitoring methods can see that the two sets of monitoring data change are the same, which has been verified with each other, indicating that there are indeed changes in the excavation process of the foundation pit. Still, the amount of change is within the controllable range, which does not affect the safe use of the foundation pit.
4.4. Perimeter Pipeline Monitoring
Figure 20 shows the pipeline monitoring map around the foundation pit, and a total of 18 pipeline monitoring points around the foundation pit are arranged in this foundation pit. The elevation of the measurement point can be calculated by measuring the height of the reference point.
Figure 20.
Perimeter pipeline monitoring diagram.
Through the observation data, the cumulative changes of pipeline monitoring around the foundation pit were mainly distributed in 0.000 mm~−1.140 mm, and vertical displacement changes occurred in all monitoring points. According to the existing specifications, the surrounding pipeline monitoring alarm value can be known: the cumulative settlement is 10 mm, and the settlement rate is continuously greater than 1 mm/d. It can be judged that the amount of change, individual change rate, and an individual cumulative change of all monitoring points of the foundation pit during the whole monitoring period have not exceeded the range of the allowable alarm value of the specification; After data analysis according to the site situation, it was judged that the cumulative data change was mainly concentrated in the early excavation process, and the data change was stable during the later excavation process, which did not affect the safety of the pipelines around the foundation pit. The channels around the foundation pit were in a stable state as a whole.
After the pouring of the foundation pit raft slab, the pipeline monitoring data around the foundation pit is in a stable and safe state, and the construction in the foundation pit at that time does not affect the safety of the pipeline around the foundation pit, through the means of manual patrol and the monitoring data comparison, the surrounding channel does not have displacement and damage, although there is a slight vibration caused by a tiny settlement, the settlement change is within the controllable range, does not affect the safe use of the pipeline around the foundation pit.
4.5. Internal Force Monitoring of Anchor Cables
Figure 21 shows the value of the internal force of the anchor cable in the pit. For the anchor cable in the pit, the frequency of each monitoring point is measured by a vibrating string strain gauge (the vibrating string gauge has several vibrating string strain gauges distributed on the force measuring cylinder. The electromagnetic coil excites the vibrating chord and measures its vibration frequency. The frequency signal is transmitted via cable to the reading device, where the strain variable causing the deformation of the stressed steel cylinder can be measured and the load value felt by the anchor cable gauge can be calculated by substituting the calibration coefficient.) The load values are calculated and 7 sets of internal force monitoring points are arranged for the anchor cable internal force monitoring in the pit.
Figure 21.
Anchor cable internal force monitoring curve.
Through the observation and monitoring data, the cumulative change of internal force of the anchor cable is mainly distributed in 0.00 kN~25.77 kN; according to the existing specifications, it can be seen that the early warning value of the internal force detection value of anchor cable in the foundation pit is the cumulative value (60%~80%), the maximum value f2, and f2 is the load design value. Rate of change (70%~80%)f2. It can be judged that the amount of change, change rate, and a cumulative change of all monitoring points of the foundation pit during the entire internal force monitoring period does not exceed the allowable alarm value range of the specification.
In the early monitoring process, it was found that the locking value of all anchor cables did not reach the design locking value, and there would be an inevitable loss of internal force during the pressure relief process after closing, which was preliminarily judged to be the loss of internal power generated at the lock and clamp. Therefore, in the later stage of monitoring, the tensile force value is increased to offset the internal force loss caused in the last stage in the process of pressure relief, so that the final locking value can reach the designed locking value.
4.6. Water Level Monitoring
Figure 22 is the analysis chart of the water level monitoring of the foundation pit, and a total of 3 groups of monitoring points are arranged during the water level monitoring of the foundation pit. Advanced isolated diffused silicon sensitive elements or ceramic capacitive pressure sensing sensors are used for monitoring. The static pressure is converted into an electrical signal using a sensor. Then temperature compensation and linear correction are carried out to convert it into a standard electrical signal, based on the principle that the water pressure is proportional to the height of the water.
Figure 22.
Curve of water level change in foundation pit.
Taking point 0 as the precipitation reference point, through observing the monitoring data, the cumulative change of the water level gauge is mainly distributed in 0.00 mm~0.386 mm; according to the existing specifications, it can be known that the incremental change early warning value of water level is 1000~2000 mm, the change rate is 500 mm/d, all monitoring points have water level changes, and the amount of change, change rate and a cumulative change of all monitoring points in the foundation pit during the entire water level monitoring period individually exceed the range of allowable alarm values of the specification.
As can be seen from Figure 20, the water level at point 3 of water level monitoring has a significant change, with a maximum variation of 3.718 m. The most significant groundwater increase occurred on 29 March 2021, 1.749 m higher than the designed scheduled water level, due to damage to the pumping pump in the local precipitation well, and the pumping volume was less than the recharge, resulting in the site being flooded with groundwater. In the later stage, the construction party strengthened the pumping capacity of the pump, reduced the water level to 0.5 m below the design foundation elevation, and the water level changed steadily.
4.7. Vertical Displacement of Surrounding Buildings
There are many complex buildings around this foundation pit, and it is necessary to monitor them in this foundation pit project. The foundation pit project used static level sensors to watch the surrounding buildings, and 58 monitoring points were deployed. The subsidence observation uses the observation point and the reference point to form a closed level route for observation, the reference point is selected as the starting point, counter-clockwise direction measurement and control, the route will be the road, the surrounding buildings and structures, underground pipelines monitoring points in an orderly manner as one, the final starting point closed as a circular route.
By observing the settlement data of surrounding buildings, it can be seen that the settlement generated by every single building is relatively uniform, and its difference value and cumulative value do not exceed the specification. Combined with the results of the wall crack survey of surrounding buildings, the excavation of the foundation pit did not have a significant impact on the surrounding buildings, and the whole was in a stable state.
For monitoring different buildings, the monitoring results are shown in Table 4, and the maximum cumulative settlement is displayed for different measurement results of the same building; see Figure 23 for details. Due to the large area of the family hospital on the west side of the foundation pit, has a significant impact on the foundation pit, so it is divided into 6 groups of different location measurement points for monitoring. The inpatient building on the north side of the foundation pit is monitored in two groups of varying location measurement points.
Table 4.
Cumulative settlement by building.

Figure 23.
Curve of settlement of surrounding buildings.
Real time monitoring is more responsive to realism than the simulation of the pit using finite elements in [6]. However it is necessary to carry out finite element analysis in the design of the pit.
5. Conclusions
A new automated monitoring system was adopted for the foundation pit support project of the Lanzhou City Chinese Hospital in Gansu Province, enabling real-time collection of monitoring data, automatic calculation and transmission to a data processing platform via radio signals. In order to ensure the safety of the pit and at the same time to prevent the safety of the surrounding buildings and pipelines from being affected by the construction of the pit. Data processing was carried out for vertical and horizontal displacements of the support structure, deep horizontal displacements, vertical displacements of the static level, surrounding pipelines, internal forces of anchor cables, groundwater level and settlement monitoring results of surrounding buildings respectively. Based on the analysis of the data obtained, the following summary can be obtained:
- (1)
- Although the vertical and horizontal displacements of the support structure exceeded the specified warning values, the pit side walls were not continuously deformed and the surrounding cracks were not continuously developed through the later encrypted monitoring and on-site inspection by the site personnel, and the pit could be safely carried out. Therefore, it is suggested that the construction process of the foundation pit needs to focus on monitoring the displacement of the supporting structure to ensure the safety of the foundation pit.
- (2)
- The deep horizontal displacement monitoring point of the foundation pit partially exceeds the early warning value, but does not reach the alarm value, which does not affect the safety of the foundation pit and the safety of the foundation pit, and the impact of the water pipeline rupture on the horizontal displacement of the foundation pit is found in time through the early warning of the online monitoring system. It can be proved that the real-time monitoring system can timely discover the influence of external unfavourable factors on the foundation pit.
- (3)
- All monitoring points have been vertically displaced, and some displacement values exceed the early warning value. However, the foundation pit is still in a stable state, which does not affect the safety of the foundation pit.
- (4)
- Through the internal force monitoring of the prestressed anchor cable, it can be obtained that the prestress loss will occur after the anchor cable is locked. The tensile force value of the anchor cable monitoring can be increased to ensure that the locking value can reach the design lock value.
- (5)
- By comparing the precipitation reference points, it is found that the individual monitoring data exceeded the warning range during the water level monitoring period, which was due to the damage of the pumping pump in the local precipitation well. The pumping pump collection and drainage capacity was strengthened in time in the later stage to stabilize the water level change.
- (6)
- During the excavation of the foundation pit, the surrounding pipelines, and surrounding buildings have obvious impacts, and the settlement occurs within the controllable range to ensure that the whole is in a stable state.
Author Contributions
Conceptualization, J.W. and S.Y.; methodology, J.W.; validation, J.W. and S.Y.; formal analysis, J.W.; investigation, Z.W.; resources, S.Y.; data curation, D.Y.; writing—original draft preparation, S.Y.; writing—review and editing, S.Y.; supervision, J.W.; project administration, S.Y.; funding acquisition, S.Y. All authors have read and agreed to the published version of the manuscript.
Funding
This research was funded by National Natural Science Foundation of China (Grant No. 52168050).
Data Availability Statement
Due to legal issues and trade secrets, the monitoring data in this article cannot be provided free of charge. Nevertheless, all concepts and data are explained in the submitted studies, and some studies are available upon request.
Conflicts of Interest
Declare The authors declare no conflict of interest.
References
- Dmochowski, G.; Szolomicki, J. Technical and structural problems related to the interaction between a deep excavation and adjacent existing buildings. Appl. Sci. 2021, 11, 481. [Google Scholar] [CrossRef]
- Zhandos, Y.; Orazalin, M.; Andrew, J.; Whittle, M.; Matthew, B.; Olsen, M. Three-Dimensional Analyses of Excavation Support System for the Stata Center Basement on the MIT Campus. J. Geotech. Geoenviron. Eng. 2015, 141, 05015001. [Google Scholar] [CrossRef]
- Sebastian Bryson, M.; David, G.; Zapata-Medina, S. Method for Estimating System Stiffness for Excavation Support Walls. J. Geotech. Geoenviron. Eng. 2012, 138, 1104–1115. [Google Scholar] [CrossRef]
- Masini, L.; Gaudio, D.; Rampello, S.; Romani, E. Observed Performance of a Deep Excavation in the Historical Center of Rome. J. Geotech. Geoenviron. Eng. 2021, 147, 05020015. [Google Scholar] [CrossRef]
- Schwamb, T.; Soga, K. Numerical modelling of a deep circular excavation at Abbey Mills in London. Géotechnique 2015, 65, 604–619. [Google Scholar] [CrossRef]
- Sebastian Bryson, L.; Michael, J.; Kotheimer, M. Cracking in Walls of a Building Adjacent to a Deep Excavation. J. Perform. Constr. Facil. 2011, 25, 491–503. [Google Scholar] [CrossRef]
- Guo, P.; Gong, X.; Wang, Y.; Lin, H.; Zhao, Y. Analysis of observed performance of a deep excavation straddled by shallowly buried pressurized pipelines and underneath traversed by planned tunnels. Tunn. Undergr. Space Technol. 2023, 132, 104946. [Google Scholar] [CrossRef]
- Guoa, P.; Gong, X.; Wang, Y. Displacement and force analyses of braced structure of deep excavation considering unsymmetrical surcharge effect. Comput. Geotech. 2019, 113, 103102. [Google Scholar] [CrossRef]
- Zhou, Y.; Wang, H.; Zhu, Y. Construction Mechanics Behavior Analysis of Pile—Strut Supporting Structureof a Subway Deep Foundation Pit. J. Railw. Eng. Soc. 2019, 1, 86–92. [Google Scholar]
- Ye, S.; Ding, S.; Gong, X.; Gao, S.; Chen, C. Monitoring and numerical simulation of deep foundation pit of a subway station in Lanzhou. Chin. J. Geotech. Eng. 2018, 40 (Suppl. 1), 177–182. [Google Scholar]
- Mitew-Czajewska, M. A study of displacements of structures in the vicinity of deep excavation. Arch. Civ. Mech. Eng. 2019, 19, 547–556. [Google Scholar] [CrossRef]
- Rybak, J.; Ivannikov, A.; Kulikova, E.; Żyrek, T. Deep excavation in urban areas—Defects of surrounding buildings at various stages of construction. MATEC Web Conf. 2018, 146, 02012. [Google Scholar] [CrossRef]
- Just, M. Analysis of a Deep Excavation in Diaphragm Walls, on Surrounding Buildings. Arch. Inst. Civil Eng. 2018, 86–104. [Google Scholar] [CrossRef]
- Castaldo, P.; Calvello, M.; Palazzo, B. Structural safety of existing buildings near deep excavations. Int. J. Struct. Eng. 2014, 5, 163–187. [Google Scholar] [CrossRef]
- Dachowski, R.; Gałek, K. Selection of the Best Method for Underpinning Foundations Using the Promethee II Method. Sustainability 2020, 12, 5373. [Google Scholar] [CrossRef]
- Mrowczynska, M.; Grochowska, E.; Gibowski, S. Monitoring V ertical Displacements of an Engineeriong Object with Masonry Walls. J. Civ. Eng. Environ. Arch. 2018, 65, 53–62. [Google Scholar]
- Ye, S.; Li, D. Monitoring and simulation analysis of deep and large foundation pit excavation in complex environment. CHINA Civ. Eng. J. 2019, 52, 117–126. [Google Scholar]
- Yin, L.; Li, Y.; Zhu, Y.; Huo, B.; Yang, Z.; Duan, Q. Monitoring and numerical simulation of support for foundation pit at Yanyuan Road Station of Lanzhou Metro. Chin. J. Geotech. Eng. 2021, 43 (Suppl. 1), 111–116. [Google Scholar]
- Ye, S.; Chen, C.; Kou, W.; Zhu, Y. Displacement monitoring and deformation characteristics of a deep foundation pit in Lanzhou. Chin. J. Geotech. Eng. 2014, 36 (Suppl. 1), 440–445. [Google Scholar]
- Liu, L.; Mo, H.; Cao, H. Analysis and Application of Circular Section Prestressed Reinforced Concrete Cantilever Retaining Piles. J. Build. Struct. 2005, 35, 42–44. [Google Scholar]
- Wang, T.; Zhou, L.; Sun, H. Simplified calculation of asymmetrical reinforcement of circular section reinforced concrete support piles. J. China Foreign Highw. 2014, 34, 206–209. [Google Scholar]
Disclaimer/Publisher’s Note: The statements, opinions and data contained in all publications are solely those of the individual author(s) and contributor(s) and not of MDPI and/or the editor(s). MDPI and/or the editor(s) disclaim responsibility for any injury to people or property resulting from any ideas, methods, instructions or products referred to in the content. |
© 2023 by the authors. Licensee MDPI, Basel, Switzerland. This article is an open access article distributed under the terms and conditions of the Creative Commons Attribution (CC BY) license (https://creativecommons.org/licenses/by/4.0/).