Axial Compression Behavior of Ferrocement Geopolymer HSC Columns
Abstract
:1. Introduction
2. Experimental Study
2.1. Materials
- Fine aggregate:
- Coarse aggregate:
- Recycled Rice-Straw–Ash (RSA): RSA with a specific gravity 2.91 g/cm2, and specific surface area of 5200 cm2/g.
- Water: used for mixing and curing.
- Alkaline activator: sodium meta-silicate (Na2SiO3) and sodium hydroxide (NaOH).
- Steel RFT: Two types of steel were used. Plain bars (24/35) with a 6 mm diameter, and deformed bars (42/60) with a 12 mm diameter.
- Steel wire-meshes:
- (a)
- Welded and expanded wire-mesh:
- (b)
- Polyethylene (Tensar)-mesh:This mesh is made from the high density polyethylene, “Geogrid CE 121”, as shown in Figure 4, with an opening size of 6 mm × 8 mm, thickness of 3.3 mm, volume fraction of 2.04%, and weight of 725 gm/m2.
- (c)
- Fiber glass mesh:Gavazzi “V3-133-A” was used with an opening dimension of 12.5 mm × 11.5 mm. The cross-section dimension 1.66 mm × 0.66 mm (longitudinal direction) and 1.0 mm × 0.5 mm (transverse direction) as shown in Figure 5. The mesh has a volume fraction of 0.535% and weight of 123 gm/m2.
2.2. Design of Mix
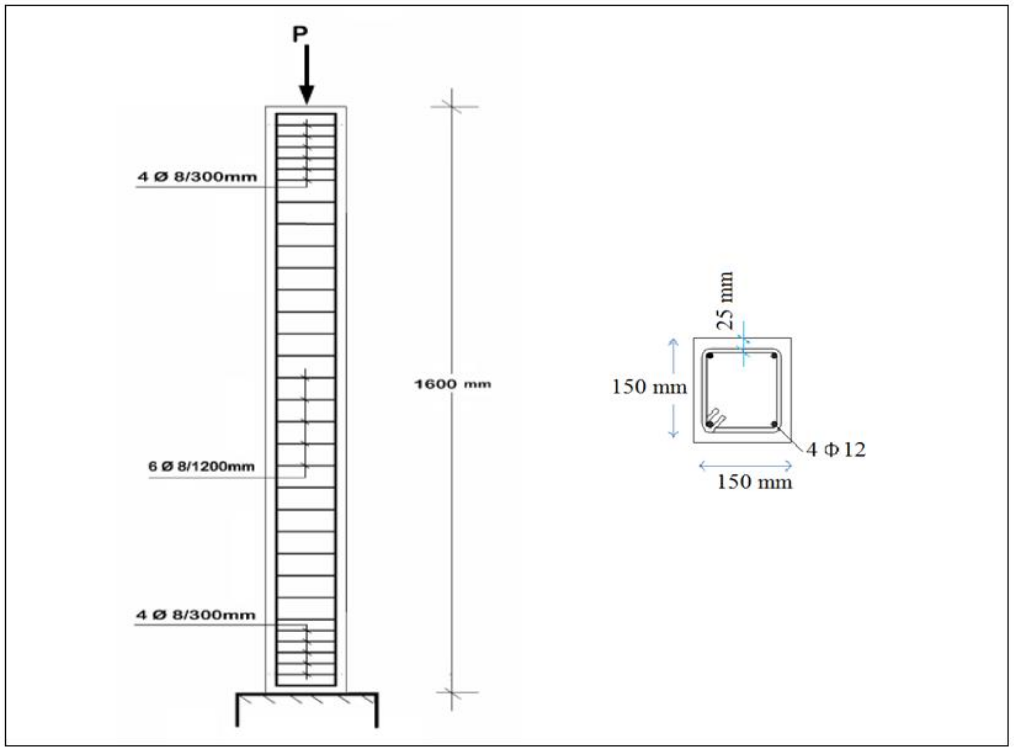
2.3. Column Sample Description
2.4. Test Setup
3. Discussion of Results
3.1. Ultimate Load
3.2. Ultimate Deflection
3.3. Load–Deflection Relationship
- Elastic behavior until the first cracking. The load–deflection relationship in this stage is linear. The slope of the load deflection curve in this stage varies with different types of test specimens. The end of this stage is marked by the deviation from linearity.
- In the second stage, the load–deflection curve slope changed slowly as a result of the samples’ stiffness reduction due to the multiple cracking.
- In the third stage, large plastic deformation occurred as the result of the yielding of the reinforcing bars and the large extension in the reinforcing mesh of the ferrocement columns. This stage is terminated by failure of the test columns.
3.4. Energy Absorption
3.5. Crack Pattern
4. Analytical Analysis
4.1. Types of Elements
4.2. Properties of Modeled Materials
- The material properties for concrete:
- The material properties for reinforcing steel bars:
- The properties for welded mire mesh:
- Volumetric ratio of one layer = 0.0027
- Volumetric ratio of two layers = 0.0054
- Volumetric ratio of three layers = 0.0081
- The material properties for Expanded wire mesh:
- Volumetric ratio of one layer = 0.00753
- Volumetric ratio of two layers = 0.01510
- The material properties for Tensar mesh:
- Volumetric ratio of one layer = 0.02040
- The material properties for glass fiber mesh:
- Volumetric ratio of one layer = 0.00535
- Volumetric ratio of two layers = 0.01070
4.3. Specimens Modeling
4.4. Analytical Results and Discussion
4.4.1. Ultimate Load
4.4.2. Ultimate Deflection
4.4.3. Load–Deflection Relationship
4.4.4. Energy Absorption
4.4.5. Crack Pattern
5. Comparisons between Analytical and Experimental Results
5.1. Ultimate Failure Load
5.2. Ultimate Deflection
5.3. Cracking Patterns
6. Conclusions
- Because of the lighter and easier handling of wire meshes compared with steel reinforcement, all wire meshes offer several improvements, especially for structures with complex shapes.
- Increasing the volume fraction of the wire mesh reinforcement increased the initial cracks, ultimate loads, energy absorption, and ductility index.
- Ferrocement geopolymer columns achieved higher ultimate load, ductility, and energy absorption compared to the steel reinforced concrete control column.
- Cracks with greater number and narrower widths were observed for those ferrocement geopolymer columns compared with the steel geopolymer columns.
- Expanded or welded ferrocement geopolymer columns showed greater ultimate failure loads than the control column. Additionally, using expanded or welded columns had a considerable effect on the ultimate failure loads, where welded wire mesh exhibited almost 28.10% compared with expanded wire mesh.
- Column reinforced with one-layer of nonmetallic Tensar-mesh obtained the highest ultimate failure load out of all the tested columns without concrete cover spalling. Consequently, increasing the volume fraction had the main result of postponing the incidence of crack development with higher corrosion protection and high loading carrying capacity than columns reinforced with metallic reinforcement.
- Column reinforced with one layer of fiber glass mesh obtained the smallest ultimate failure load compared with the control column.
- The analytical procedures for first crack and ultimate load computations obtained good prediction for these loads and the column failure modes. Consequently, there were improved strength, deformation characteristics, and cracking behavior with great savings of reinforcement.
- The comparison of the crack patterns obtained by the FE and experimental models led to identical crack propagation for the two approaches up to failure. The inclination of the failure surfaces and the concentration of cracks of all columns were the same in both patterns.
- The established ferrocement geopolymer columns could be successfully used as an alternative to the traditional RC columns, which could be of true merit in both developed and developing countries aside from its anticipated economic and environmental merits.
Funding
Conflicts of Interest
References
- Dattatreya, J.K.; Rajamane, N.P.; Sabitha, D.; Ambily, P.S.; Nataraja, M.C. Flexural behaviour of reinforced Geopolymer concrete beams. Int. J. Civ. Struct. Eng. 2011, 2, 138–159. [Google Scholar]
- El-Sayed, T.A.; Erfan, A.M.; Abd El-Naby, R.M. Influence of Rice, Wheat Straw Ash & Rice Husk Ash on The properties of Concrete Mixes. Jokull 2017, 67, 103–119. [Google Scholar]
- El-Sayed, T.A.; Erfan, A.M.; El-Naby, R.M.A. Recycled rice & wheat straw ash as cement replacement materials. J. Eng. Res. Rep. 2019, 5, 1–9. [Google Scholar]
- El-Sayed, T.A.; MErfan, A.; MErfan, A.; El-Naby, R. Flexural Behavior of RC Beams by Using Agricultural Waste as a Cement Reinforcement Materials. J. Eng. Res. Rep. 2019, 7, 1–12. [Google Scholar] [CrossRef]
- El-Sayed, T.A.; Shaheen, Y.B. Flexural performance of recycled wheat straw ash-based geopolymer RC beams and containing recycled steel fiber. Structures 2020, 28, 1713–1728. [Google Scholar] [CrossRef]
- Davidovits, J. Geopolymers: Inorganic polymeric new materials. J. Therm. Anal. Calorim. 1991, 37, 1633–1656. [Google Scholar] [CrossRef]
- Duxson, P.; Jimenez, A.M.F.; Provis, J.; Lukey, G.C.; Palomo, Á.; Van Deventer, J.S.J. Geopolymer technology: The current state of the art. J. Mater. Sci. 2006, 42, 2917–2933. [Google Scholar] [CrossRef]
- Sofi, A.; Phanikumar, B. An experimental investigation on flexural behaviour of fibre-reinforced pond ash-modified concrete. Ain Shams Eng. J. 2015, 6, 1133–1142. [Google Scholar] [CrossRef] [Green Version]
- Chun, L.B.; Sung, K.J.; Sang, K.T.; Chae, S.T. A study on the fundamental properties of concrete incorporating pond-ash in Korea. In Proceedings of the 3rd ACF International Conference- ACF/VCA, HoChiMinh, Vietnam, 11–13 November 2008. [Google Scholar]
- Hardjito, D.; Rangan, B.V. Development and Properties of Low-Calcium Fly Ash-Based Geopolymer Concrete; Research Report GC1; Faculty of Engineering, Curtin University of Technology: Perth, Australia, 2005. [Google Scholar]
- Bakharev, T. Geopolymeric materials prepared using Class F fly ash and elevated temperature curing. Cem. Concr. Res. 2005, 35, 1224–1232. [Google Scholar] [CrossRef]
- Palomo, A.; Grutzeck, M.; Blanco-Varela, M.T. Alkali-activated fly ashes: A cement for the future. Cem. Concr. Res. 1999, 29, 1323–1329. [Google Scholar] [CrossRef]
- van Jaarsveld, J.; van Deventer, J.; Lukey, G. The effect of composition and temperature on the properties of fly ash- and kaolinite-based geopolymers. Chem. Eng. J. 2002, 89, 63–73. [Google Scholar] [CrossRef]
- Sofi, M.; van Deventer, J.; Mendis, P.; Lukey, G. Engineering properties of inorganic polymer concretes (IPCs). Cem. Concr. Res. 2007, 37, 251–257. [Google Scholar] [CrossRef]
- Wallah, S.; Rangan, B.V. Low-Calcium Fly Ash-Based Geopolymer Concrete: Long-Term Properties; Research Report GC 2; Faculty of Engineering, Curtin University of Technology: Perth, Australia, 2006. [Google Scholar]
- Bakharev, T. Resistance of geopolymer materials to acid attack. Cem. Concr. Res. 2005, 35, 658–670. [Google Scholar] [CrossRef]
- Mansur, M.N.; Paramasivam, P. Ferro-cement Short Columns under Axial and Eccentric Compression. ACI Struct. J. 1990, 84, 523. [Google Scholar]
- Kaushik, S.K.; Prakash, A.; Singh, K.K. Inelastic Buckling of Ferro-cement Encased Columns. In Proceedings of the Fifth International Symposium on Ferrcement, Manchester, UK, 6–9 September 1994; pp. 327–341. [Google Scholar]
- Nedwell, P.J.; Ramesht, M.H.; Rafei-Taghanaki, S. Investigation into the Repair of Short Square Columns using Ferro-cement. In Proceedings of the Fifth International Symposium on Ferrcement, Manchester, UK, 6–9 September 1994; pp. 277–285. [Google Scholar]
- Fahmy, E.; Shaheen, Y.B.; Korany, Y. Repairing Reinforced Concrete Columns Using Ferro-cement Laminates. J. Ferro-Cem. 1999, 29, 115–124. [Google Scholar]
- Erfan, A.M.; Ahmed, H.H.; Mina, B.A.; El-Sayed, T.A. Structural Performance of Eccentric Ferrocement Reinforced Concrete Columns. Nanosci. Nanotechnol. Lett. 2019, 11, 1213–1225. [Google Scholar] [CrossRef]
- Erfan, A.M.; Elnaby, R.M.A.; Elhawary, A.; El-Sayed, T.A. Improving the compressive behavior of RC walls reinforced with ferrocement composites under centric and eccentric loading. Case Stud. Constr. Mater. 2021, 14, e00541. [Google Scholar]
- Hussin, A.A.; Erfan, A.M.; El-Sayed, T.A.; Abd El-Naby, R.M. Experimental and Analytical Analysis of Lightweight Fe rrocement Composite Slabs. Eng. Res. J. 2019, 1, 88–96. [Google Scholar]
- Erfan, A.M.; El-Sayed, T.A. Structural Shear Behavior of Composite Box Beams Using Advanced Innovated Materials. J. Eng. Res. Rep. 2019, 5, 1–14. [Google Scholar] [CrossRef]
- Erfan, A.M.; El-Sayed, T.A. Shear Strength of Ferrocement Composite Box Section Concrete Beams. Int. J. Sci. Eng. Res. 2019, 10, 260–279. [Google Scholar]
- El-Sayed, T.A.; Shaheen, Y.B.; Ahmed, H.H.; Yussef, A.K. Flexural performance of GGBS-based geopolymer ferrocement beams. Int. J. Sci. Eng. Res. 2021, 12, 1–40. [Google Scholar]
- El-Sayed, T.A. Performance of Porous Slabs Using Recycled Ash. Polymers 2021, 13, 3319. [Google Scholar] [CrossRef]
- E.C.P. 203/2020. Egyptian Code of Practice: Design and Construction for Reinforced Concrete Structures; Housing and Building National Research Center: Cairo, Egypt, 2020.
- El-Sayed, T.A.; Erfan, A.M. Improving shear strength of beams using ferrocement composite. Constr. Build. Mater. 2018, 172, 608–617. [Google Scholar] [CrossRef]
- ANSYS. Engineering Analysis System User’s Manual, Vol. 1&2, and Theoretical Manual; Revision 8.0; Swanson Analysis System Inc.: Houston, PA, USA, 2005. [Google Scholar]



































| Property | Results | ESS Acceptance Limits |
|---|---|---|
| Specific gravity (kg/m3) | 2.55 | - |
| Bulk density (kg/m3) | 1780 | - |
| Materials finer than no. 200, sieve (0.074 mm)% | 1.4 | Less than 4% |
| Property | Results | ESS Acceptance Limits |
|---|---|---|
| Specific gravity (kg/m3) | 2.2.60 | - |
| Unit weight (kg/m3) | 1750 | - |
| Absorption Percentage | 1.46% | No more than 2.5% |
| Welded Wire Mesh | Expanded Wire Mesh | ||
|---|---|---|---|
| Dimensions size | 12.5 × 12.5 mm | Dimensions size | 16.5 × 31 mm |
| Weight | 600 gm/m2 | Weight | 1660 gm/m2 |
| Thickness | 0.7 mm | Wire Diameter | 1.25 mm |
| Young’s Modulus | 17000 N/mm2 | Young’s Modulus | 12000 N/mm2 |
| Yield Stress | 400 N/mm2 | Yield Stress | 250 N/mm2 |
| Yield Strain | 1.17 × 10−3 | Yield Strain | 9.7 × 10−3 |
| Ultimate Strength | 600 N/mm2 | Ultimate Strength | 380 N/mm2 |
| Ultimate Strain | 58.5 × 10−3 | Ultimate Strain | 59.2 × 10−3 |
| Item | RSA | Coarse Aggregate | Fine Aggregate | NaOH | Na2SiO3 | Water |
|---|---|---|---|---|---|---|
| (kg/m3) | (kg/m3) | (kg/m3) | (kg/m3) | (kg/m3) | (kg/m3) | |
| Per m3 of concrete | 400 | 1150 | 650 | 50 | 150 | 47 |
| Series | Sample | Sample Description | Volume of Fraction | RFT. | Stirrups |
|---|---|---|---|---|---|
| ID | |||||
| Control | C1 | Control | --------- | 4 φ 12 | 6 φ 8/’ |
| Group A: Welded wire-mesh | C1-A | 1-layer welded | 0.00270 | 4 φ 12 | ------ |
| C2-A | 2-layers welded | 0.00540 | 4 φ 12 | ------ | |
| C3-A | 3-layers welded | 0.00810 | 4 φ12 | ------ | |
| Group B: Expanded wire-mesh | C4-B | 1-layer expanded | 0.00753 | 4 φ 12 | ------ |
| C5-B | 2-layers expanded | 0.01510 | 4 φ 12 | ------ | |
| Group C: Tensar-mesh | C6-C | 1-layer Tensar | 0.02040 | 4 φ 12 | ------ |
| Group D: Fiber glass-mesh | C7-D | 1-layer fiber glass | 0.00535 | 4 φ 12 | ------ |
| C8-D | 2-layers fiber glass | 0.01070 | 4 φ 12 | ------ |
| Sample | Tested Columns Reinforcement Configurations |
|---|---|
| ID | |
| C1 | ![]() |
| C1-A | ![]() |
| C2-A | ![]() |
| C3-A | ![]() |
| C4-B | ![]() |
| C5-B | ![]() |
| C6-C | ![]() |
| C7-D | ![]() |
| C8-D | ![]() |
| Column | First Crack Load | Serviceability Load | Ultimate Load | Def. at First Crack Load | Def. at Ult. load | Ductility Ratio | Energy Absorption (kN·mm) |
|---|---|---|---|---|---|---|---|
| ID | (kN) | (kN) | (kN) | (mm) | (mm) | --- | |
| C1 | 296.00 | 460.59 | 738.70 | 3.80 | 12.02 | 3.16 | 6320.08 |
| C1-A | 325.00 | 481.27 | 771.80 | 4.30 | 12.72 | 2.96 | 9201.48 |
| C2-A | 380.00 | 525.46 | 842.50 | 4.70 | 14.36 | 3.06 | 9353.37 |
| C3-A | 455.00 | 596.15 | 955.60 | 5.20 | 14.50 | 2.79 | 10,380.91 |
| C4-B | 443.00 | 507.46 | 813.70 | 5.90 | 15.45 | 2.62 | 10,122.72 |
| C5-B | 449.00 | 574.96 | 921.70 | 6.30 | 16.96 | 2.69 | 12,008.52 |
| C6-C | 515.00 | 640.90 | 1027.20 | 4.40 | 13.55 | 3.08 | 10,414.93 |
| C7-D | 391.00 | 496.65 | 796.40 | 3.90 | 12.08 | 3.10 | 6983.16 |
| C8-D | 378.00 | 524.71 | 841.30 | 4.50 | 14.07 | 3.13 | 9179.36 |
| Column | First Crack Load | Ultimate Load | Def. at First Crack Load | Def. at Ult. Load | Ductility Ratio | Energy Absorption (kN·mm) |
|---|---|---|---|---|---|---|
| ID | (kN) | (kN) | (mm) | (mm) | --- | |
| C1 | 260.30 | 812.57 | 2.85 | 8.12 | 2.85 | 4104.8310 |
| C1-A | 260.30 | 848.98 | 3.23 | 10.30 | 3.19 | 6200.2411 |
| C2-A | 260.30 | 906.95 | 3.53 | 10.50 | 2.98 | 7055.3147 |
| C3-A | 260.30 | 1051.16 | 3.90 | 10.31 | 2.64 | 7303.0707 |
| C4-B | 260.30 | 995.07 | 4.43 | 10.49 | 2.37 | 6899.9601 |
| C5-B | 260.30 | 1013.87 | 4.73 | 9.63 | 2.04 | 6396.8092 |
| C6-C | 260.30 | 1129.90 | 3.30 | 7.30 | 2.21 | 4933.7318 |
| C7-D | 260.30 | 876.04 | 2.93 | 7.76 | 2.65 | 4237.6949 |
| C8-D | 260.30 | 925.43 | 3.38 | 6.82 | 2.02 | 3782.9131 |
| Column | First Crack Load | First Crack Load | Ultimate Load | Ultimate Load | Def. at Ult. Load | Def. at Ult. Load |
|---|---|---|---|---|---|---|
| ID | (kN) | (kN) | (kN) | (kN) | (mm) | (mm) |
| NLA. | EXP. | NLA. | EXP. | NLA. | EXP. | |
| C1 | 260.30 | 296.00 | 812.57 | 738.70 | 8.12 | 12.02 |
| C1-A | 260.30 | 325.00 | 848.98 | 771.80 | 10.30 | 12.72 |
| C2-A | 260.30 | 380.00 | 906.95 | 842.50 | 10.50 | 14.36 |
| C3-A | 260.30 | 455.00 | 1051.16 | 955.60 | 10.31 | 14.50 |
| C4-B | 260.30 | 443.00 | 995.07 | 813.70 | 10.49 | 15.45 |
| C5-B | 260.30 | 449.00 | 1013.87 | 921.70 | 9.63 | 16.96 |
| C6-C | 260.30 | 515.00 | 1129.90 | 1027.20 | 7.30 | 13.55 |
| C7-D | 260.30 | 391.00 | 876.04 | 796.40 | 7.76 | 12.08 |
| C8-D | 260.30 | 378.00 | 925.43 | 841.30 | 6.82 | 14.07 |
Publisher’s Note: MDPI stays neutral with regard to jurisdictional claims in published maps and institutional affiliations. |
© 2021 by the author. Licensee MDPI, Basel, Switzerland. This article is an open access article distributed under the terms and conditions of the Creative Commons Attribution (CC BY) license (https://creativecommons.org/licenses/by/4.0/).
Share and Cite
El-Sayed, T.A. Axial Compression Behavior of Ferrocement Geopolymer HSC Columns. Polymers 2021, 13, 3789. https://doi.org/10.3390/polym13213789
El-Sayed TA. Axial Compression Behavior of Ferrocement Geopolymer HSC Columns. Polymers. 2021; 13(21):3789. https://doi.org/10.3390/polym13213789
Chicago/Turabian StyleEl-Sayed, Taha Awadallah. 2021. "Axial Compression Behavior of Ferrocement Geopolymer HSC Columns" Polymers 13, no. 21: 3789. https://doi.org/10.3390/polym13213789
APA StyleEl-Sayed, T. A. (2021). Axial Compression Behavior of Ferrocement Geopolymer HSC Columns. Polymers, 13(21), 3789. https://doi.org/10.3390/polym13213789









