Mechanical Strength of Thermoplastic Polyamide Welded by Nd:YAG Laser
Abstract
1. Introduction
2. Materials and Methods
2.1. Laser Welding
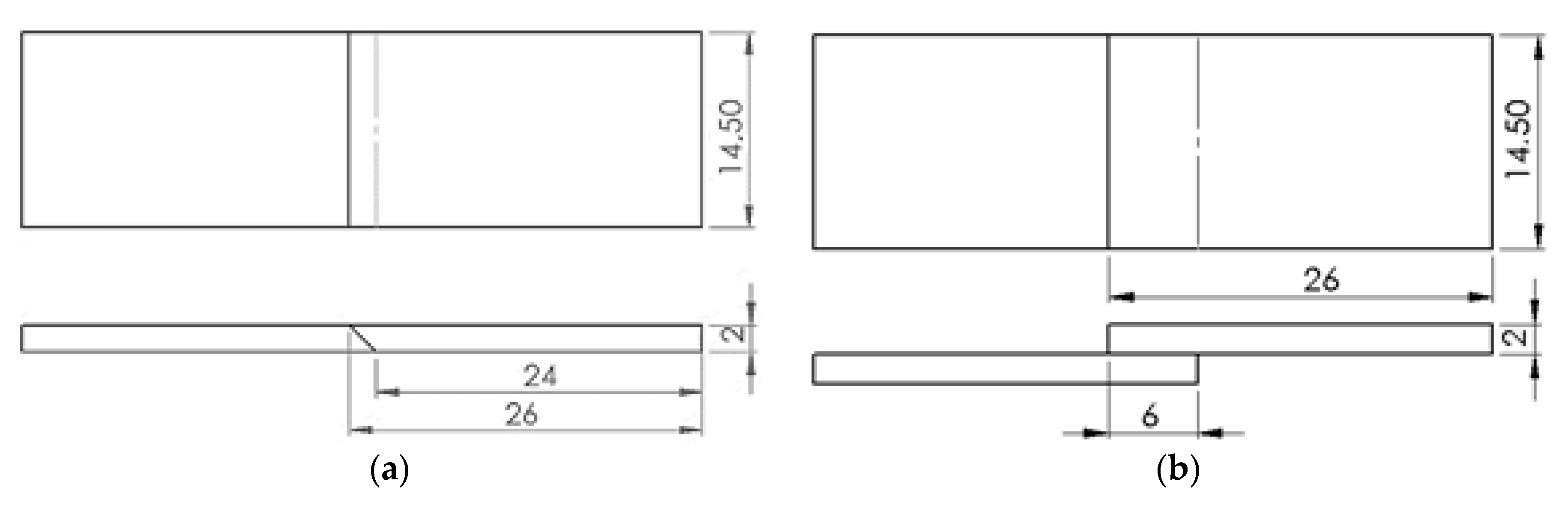
2.1.1. Joints
2.1.2. Clamp System
2.2. Microscopic Analysis
2.3. Mechanical Testing
3. Results
3.1. Microscopic Analysis
3.2. Mechanical Testing
3.2.1. Base Material
3.2.2. Joints
4. Conclusions
- There was a significant reduction of the laser beam diameter along the transmission through the transparent part. This resulted in considerably narrower weld beads, i.e., diameter reductions of more than 50% were observed;
- As expected, the single-weld pass scarf joint was more efficient than the single-weld pass lap joint;
- Adding one weld pass to a lap joint nearly doubled the joint strength;
- The average failure shear stress of the lap joint welds reached a considerable 55% of the base material tensile strength. This indicates good-quality welds.
Author Contributions
Funding
Acknowledgments
Conflicts of Interest
References
- De Pelsmaeker, J.; Graulus, G.J.; Van Vlierberghe, S.; Thienpont, H.; Van Hemelrijck, D.; Dubruel, P.; Ottevaere, H. Clear to clear laser welding for joining thermoplastic polymers: A comparative study based on physicochemical characterization. J. Mater. Process. Technol. 2018, 255, 808–815. [Google Scholar] [CrossRef]
- Spancken, D.; Wacker, J.; Büter, A.; Melz, T. Multiaxial loading of thermoplastic laser welds. Weld. World 2016, 60, 1261–1268. [Google Scholar] [CrossRef]
- Bîrdeanu, A.V.; Ciuca, C. Pulsed laser welding of dissimilar thermoplastic materials. In Proceedings of the Academy of Technical Sciences in Romania International Conference “Astr Days—2011”, the VIth Edition, Timișoara, Romania, 22–23 September 2011. [Google Scholar]
- Dawes, C. Light and lasers. In Laser Welding—A Practical Guide, Woodhead Publishing Series in Welding and Other Joining Technologies; Woodhead Publishing: Cambridge, UK, 1992; pp. 1–15. [Google Scholar]
- Amanat, N.; James, N.L.; McKenzie, D.R. Welding methods for joining thermoplastic polymers for the hermetic enclosure of medical devices. Med. Eng. Phys. 2010, 32, 690–699. [Google Scholar] [CrossRef] [PubMed]
- Kagan, V.A.; Bray, R.G.; Kuhn, W.P. Laser Transmission Welding of Semi-Crystalline Thermoplastics—Part I: Optical Characterization of Nylon Based Plastics. J. Reinf. Plast. Compos. 2002, 21, 1101–1122. [Google Scholar] [CrossRef]
- Yousefpour, A.; Hojjati, M.; Immarigeon, J.P. Fusion Bonding/Welding of Thermoplastic Composites. J. Thermoplast. Compos. Mater. 2004, 17, 303–341. [Google Scholar] [CrossRef]
- LPKF. Laser Plastic Welding, Design Guidelines Manual; Version 4.0; LPKF Laser & Electronics NA: Tualatin, OR, USA.
- van de Ven, J.D.; Erdman, A.G. Laser Transmission Welding of Thermoplastics—Part I: Temperature and Pressure Modeling. J. Manuf. Sci. Eng. 2007, 129, 849. [Google Scholar] [CrossRef]
- Acherjee, B.; Misra, D.; Bose, D.; Venkadeshwaran, K. Prediction of weld strength and seam width for laser transmission welding of thermoplastic using response surface methodology. Opt. Laser Technol. 2009, 41, 956–967. [Google Scholar] [CrossRef]
- Hopmann, C.; Weber, M. New concepts for laser transmission welding of dissimilar thermoplastics. Prog. Rubber Plast. Recycl. Technol. 2012, 28, 157–172. [Google Scholar] [CrossRef]
- Knapp, W.; Clement, S.; Franz, C.; Oumarou, M.; Renard, J. Laser-bonding of long fiber thermoplastic composites for structural assemblies. Phys. Procedia 2010, 5, 163–171. [Google Scholar] [CrossRef]
- da Costa, A.P.; Botelho, E.C.; Costa, M.L.; Narita, N.E.; Tarpani, J.R. A review of welding technologies for thermoplastic composites in aerospace applications. J. Aerosp. Technol. Manag. 2012, 4, 255–265. [Google Scholar] [CrossRef]
- Berger, S.; Oefele, F.; Schmidt, M. Laser transmission welding of carbon fiber reinforced thermoplastic using filler material—A fundamental study. J. Laser Appl. 2015, 27, S29009. [Google Scholar] [CrossRef]
- Jaeschke, P.; Wippo, V.; Suttmann, O.; Overmeyer, L. Advanced laser welding of high-performance thermoplastic composites. J. Laser Appl. 2015, 27, S29004. [Google Scholar] [CrossRef]
- Friedrich, K. Carbon fiber reinforced thermoplastic composites for future automotive applications. AIP Conf. Proc. 2016, 1736, 020001. [Google Scholar]
- Wippo, V.; Winter, Y.; Jaeschke, P.; Suttmann, O.; Overmeyer, L. The influence of laser welding processes on the weld seam quality of thermoplastic composites with high moisture content. Phys. Procedia 2016, 83, 1064–1072. [Google Scholar] [CrossRef][Green Version]
- Kagan, V.A.; Kocheny, S.A.; Macur, J.E. Moisture effects on mechanical performance of laser-welded polyamide. J. Reinf. Plast. Compos. 2005, 24, 1213–1223. [Google Scholar] [CrossRef]
- Page, I.B. Polyamides as Engineering Thermoplastic Materials; Rapra Technology Ltd.: Shawbury, UK, 2000. [Google Scholar]
- Olabisi, O.; Adewale, K. Handbook of Thermoplastics; CRC press: Boca Raton, FL, USA, 2016. [Google Scholar]
- Fernandes, F.A.O.; Oliveira, D.F.; Pereira, A.B. Optimal parameters for laser welding of advanced high-strength steels used in the automotive industry. Procedia Manuf. 2017, 13, 219–226. [Google Scholar] [CrossRef]
- Pereira, A.B.; Cabrinha, A.; Rocha, F.; Marques, P.; Fernandes, F.A.; Alves de Sousa, R.J. Dissimilar Metals Laser Welding between DP1000 Steel and Aluminum Alloy 1050. Metals 2019, 9, 102. [Google Scholar] [CrossRef]
- Parodi, E.; Peters, G.; Govaert, L.; Parodi, E.; Peters, G.W.M.; Govaert, L.E. Structure–Properties Relations for Polyamide 6, Part 1: Influence of the Thermal History during Compression Moulding on Deformation and Failure Kinetics. Polymers 2018, 10, 710. [Google Scholar] [CrossRef]
- Fernandes, F.A.O.; Alves de Sousa, R.; Ptak, M.; Migueis, G. Helmet Design Based on the Optimization of Biocomposite Energy-Absorbing Liners under Multi-Impact Loading. Appl. Sci. 2019, 9, 735. [Google Scholar] [CrossRef]
- Ptak, M.; Wilhelm, J.; Sawicki, M. Safety analysis of children transported on bicycle-mounted seat during traffic accidents. Int. J. Crashworthiness 2019. in Press. [Google Scholar] [CrossRef]










| Density (g·m−3) | Refractive Index | Heat Capacity (J·K−1) | Thermal Conductivity (W·m−1·K−1) | Crystallinity (%) | Melting Temp. (°C) | Peak Absorbance (μm) |
|---|---|---|---|---|---|---|
| 1.13 | 1.53 | 1.5 | 0.23 | 15–45 | 222 | 1.39 |
| Peak Power (W) | Pulse (ms) | Overlapping (%) | Beam Diameter (mm) | Welding Speed (mm/s) |
|---|---|---|---|---|
| 360 | 10 | 65 | 2 | 5 |
© 2019 by the authors. Licensee MDPI, Basel, Switzerland. This article is an open access article distributed under the terms and conditions of the Creative Commons Attribution (CC BY) license (http://creativecommons.org/licenses/by/4.0/).
Share and Cite
Pereira, A.B.; Fernandes, F.A.O.; de Morais, A.B.; Quintão, J. Mechanical Strength of Thermoplastic Polyamide Welded by Nd:YAG Laser. Polymers 2019, 11, 1381. https://doi.org/10.3390/polym11091381
Pereira AB, Fernandes FAO, de Morais AB, Quintão J. Mechanical Strength of Thermoplastic Polyamide Welded by Nd:YAG Laser. Polymers. 2019; 11(9):1381. https://doi.org/10.3390/polym11091381
Chicago/Turabian StylePereira, António B., Fábio A. O. Fernandes, Alfredo B. de Morais, and João Quintão. 2019. "Mechanical Strength of Thermoplastic Polyamide Welded by Nd:YAG Laser" Polymers 11, no. 9: 1381. https://doi.org/10.3390/polym11091381
APA StylePereira, A. B., Fernandes, F. A. O., de Morais, A. B., & Quintão, J. (2019). Mechanical Strength of Thermoplastic Polyamide Welded by Nd:YAG Laser. Polymers, 11(9), 1381. https://doi.org/10.3390/polym11091381

