Next Article in Journal
Market Participation and Agro-Biodiversity Loss: The Case of Native Chili Varieties in the Amazon Rainforest of Peru
Next Article in Special Issue
Economic Feasibility Analysis of the Application of Geothermal Energy Facilities to Public Building Structures
Previous Article in Journal
Understanding the Role of Built Environment in Reducing Vehicle Miles Traveled Accounting for Spatial Heterogeneity
 
 
Font Type:
Arial Georgia Verdana
Font Size:
Aa Aa Aa
Line Spacing:
Column Width:
Background:
Article

A Multi-Objective (Energy, Economic and Environmental Performance) Life Cycle Analysis for Better Building Design

Faculty of Architectural, Civil Engineering and Environment, Ningbo University, Ningbo, China
Sustainability 2014, 6(2), 602-614; https://doi.org/10.3390/su6020602
Submission received: 24 November 2013 / Revised: 20 January 2014 / Accepted: 23 January 2014 / Published: 27 January 2014
(This article belongs to the Special Issue Green Building)

Abstract

:
Design improvement is critical for achieving a low-cost and high energy-efficient building with low carbon emissions. Thus, designers need to consider many factors (such as energy, economic and environmental performance) in the early design stage. This paper presents a multi-objective analysis for better building design and compares the EDH-based design improvements (introduced by the author in a previous work, EDH means energy difference between households) with seven potential improvement measures commonly used in achieving a better overall performance for the energy, economy and environment. A typical residential building in China was modeled for a number of simulations, and the simulation results were used to carry out a life cycle-based performance analysis. Seven potential improvement options that are commonly used are compared, and the results show that it is difficult to identify an option that has a better performance in all these three aspects. On the other hand, EDH-based design improvement achieves relatively high energy, economic and environmental performance compared to the former seven options. Moreover, EDH-based design improvement can provide designers with flexible options to select from in order to address diverse demands for building aesthetics, function, and so on, or to avoid potential difficulties when some kinds of materials or measures that are planned to be used are unavailable locally.

1. Introduction

The building sector accounts for about 46.7% of the total energy use in China [1] and has enormous direct and indirect impacts on the environment in terms of energy use, greenhouse gas emissions (mainly CO2 emissions, which contribute to nearly 50% of the global warming problem [2]), the use of raw materials and many other factors. This is because buildings use energy in the whole life cycle, including building material production, construction, operation and maintenance and demolition [3,4]. Before the construction of a building, building design has a significant influence on building energy demands and its environmental impacts. Thus, a good design will be an efficient and economical strategy to reduce the dependence of a building on fossil energy resources and to lessen its impacts on climate change.
It has been recognized that a very good design for buildings should try to maximize the energy, economic and environmental performance [5]. At present, building energy evaluation in the early design stage has to be done by designers in China, due to regulations and building codes. However, these design standards only require a 50% savings compared to buildings built in the 1980s, without considering the life cycle energy, economic and environmental performance. This may lead to a non-cost-effective building energy design. This is because designers in China usually adopt commonly used energy efficiency measures for designing buildings when performing building energy simulations, without considering the suitability of measures for different buildings. For example, low emissivity (Low-E) windows with a solar shading coefficient (SC) lower than 0.3 are usually not suitable for residential buildings, since the visible light transmittance might be too low to maintain comfortable indoor visual conditions. Nevertheless, the fact is that Low-E windows with very low SC are commonly used for all four facades of buildings in China to meet the 50% energy savings target without analyzing the different needs of energy efficiency measures for different parts of the building envelope, due to the lack of function support by PKPM (an administration authorized simulation software based on the DOE-2 engine).
Although many studies reported the improvement of building designs, these studies in the literature focused on only one or two aspects of these three (energy, economic and environmental) performances. For example, Ihm et al. [6] used a sequential search technique to optimize the design of residential buildings in Tunisia. They tried to minimize life cycle energy costs, while increasing building energy efficiency. Xing et al. [7] adopted the genetic algorithm to optimize building energy design, and their target was to minimize the space conditioning load of an office building located in China. Other researchers also reported improvements on one of these aspects [8,9,10]. Wang et al. [11] carried out a multi-objective optimization and improvement of building design. Their study is to assist designers in achieving cost-effective green building design based on the life cycle analysis methodology. To our knowledge, there is no research focused on the design improvement of buildings (especially for apartment buildings in China) that takes into account the three aspects of energy, economic and environmental performance, and this has led to the present study.
The improvement of building designs for the overall performance of the energy, economy and environment is very important for lowering costs and for reducing energy consumption and related greenhouse gas emissions. Thus, there is a great need to find an effective solution that not only achieves better energy, economic and environmental performance, but also guides designers toward high efficiency improvement measures by providing determinate information about which kind of improvements (such as insulation or ventilation) for which parts of the building envelope (such as south-facing walls or west-facing walls) are needed. This is especially useful in China, where most of the new built residential buildings are large-scale high-rise apartments, because different parts of the building envelope may need different insulation and solar shading levels, depending on the solar radiation, building orientation, building shape, building geometry, etc.
To guide designers toward lower energy demand buildings, the author has previously introduced an important index EDH (energy difference between households), which shows its advantage in helping designers to find the weak spots in the energy design of the building envelope for most apartments in China [12]. EDHc means cooling energy difference between households, while EDHh indicates heating energy difference between households, and EDHt is used for the total energy difference. According to the type of EDH (EDHc, EDHh or EDHt), designers will be informed of which kind of improvement measures need to be applied. Moreover, the magnitude of EDH will further tell designers whether the potential measures need to be strengthened. With the help of the EDH index, designers will find improvement directions, possible measures and their effectiveness in diminishing the energy difference between different housing units and in decreasing whole building energy demands. For example, an EDHc of 10% between a west housing unit and a middle housing unit tells designers that the west housing unit consumes more cooling energy by 10% than the middle one, and thus, cooling measures, such as adding movable solar shading, should be enhanced for a west housing unit. Then, the EDHc may be reduced to 2% with a reduction of the total energy consumption of the whole building, indicating that an effective design improvement is obtained based on the EDH index. Therefore, EDH will help designers towards better energy performance for buildings and, finally, lowered to an acceptable level after several EDH-based design improvement iterations.
The advantages of an EDH analysis are equivalent to the advantages of defining a proper thermal zoning in building energy simulation. The east, west and middle apartments in the following analysis, in a proper simulation, are the east, west and middle thermal zones, which are expected to perform differently, precisely due to their different solar orientations. This way, as in the EDH method, different zones get different design improvement measures. Since the focus of this paper is to give a multi-objective life cycle analysis for better building design, the analysis of the energy, economic and environmental performance of a typical building with different design options will be carried out. When selecting design improvement options, the EDH method was adopted and compared with the conventional one.

2. Methodology

2.1. Typical Residential Building

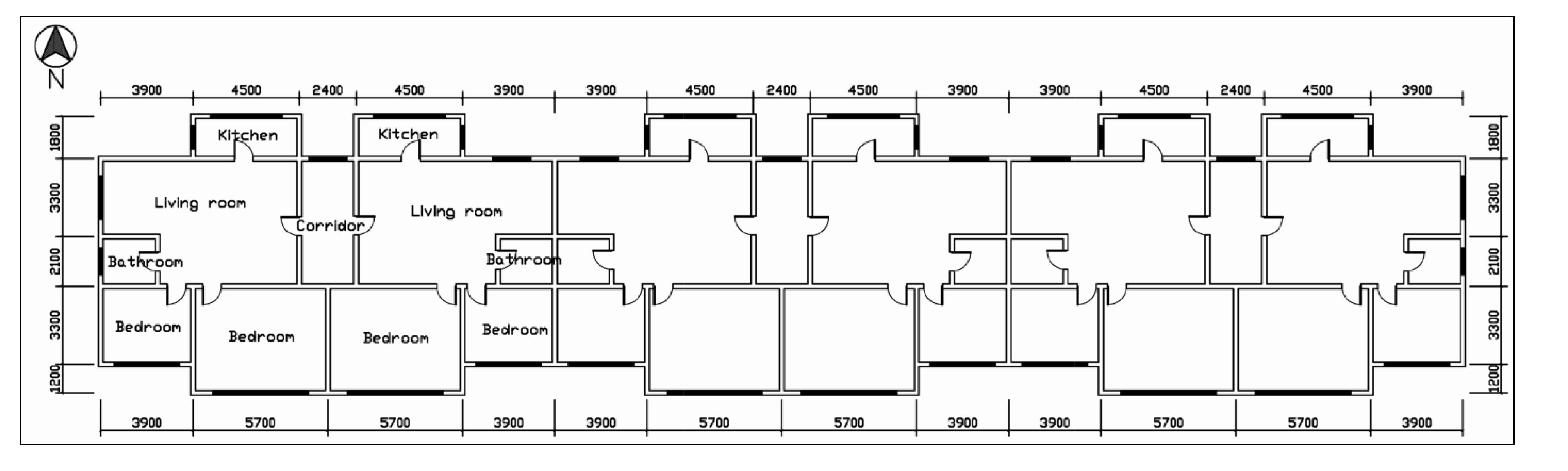
A typical twelve-story residential building, including one living room, two bedrooms, one bathroom and one kitchen in each housing unit, as shown in Figure 1, in a hot summer and cold winter zone in China, was considered. The details of the typical building are described in Table 1.
Figure 1. The residential building plan [12].
Figure 1. The residential building plan [12].
Sustainability 06 00602 g001
Table 1. Details of the typical building.
Table 1. Details of the typical building.
DescriptionParameter
Number of story12
Floor area1182 m2
Dimensions and heights57.6 × 11.7 m, floor-to-floor = 2.8 m, window-to-wall ratio (WWR) = 0.38 for south windows, 0.27 for north windows and 0.15 for east and west windows
Construction of building envelope(a) External walls: 20-mm cement and sand plaster layer + 200-mm reinforced concrete layer + 15-mm extruded polystyrene + 20-mm cement and sand plaster layer; U-value = 1.45 W/m2K;
(b) Roof: 20-mm internal plaster + 120-mm heavyweight concrete + 80-mm lightweight concrete + 20-mm cement and sand plaster layer + 30-mm extruded polystyrene + 20-mm cement and sand plaster layer; U-value = 0.97 W/m2K;
(c) Windows: U-value = 2.5 W/m2K for south and north windows and 3.2 W/m2K for east and west windows; shading coefficient (SC) = 0.84
HVAC systemsCooling temperature = 26 °C; heating temperature = 18 °C; air conditioner: EER = 2.3, COP = 1.9; miscellaneous loads = 4.3 W/m2
The settings in Table 1 are in accordance with the design standard in this region [13] with an outdoor design temperature of −2.7 °C and 32.3 °C for heating and cooling [14], respectively, and heating degree-days of 1647 and cooling degree-days of 196 [13]. The dynamic thermal simulation program used in this paper is DeST-h, which has been validated by comparison with both well-known international thermal simulation programs and experimental results [15,16], and it was used to evaluate the overall performance of different design options. The typical meteorological year (TMY) data of Hangzhou City were used for the building simulation [17]. The simulation result with the settings in Table 1 was defined as the baseline for further comparison with improvement measures.

2.2. Potential Improvement Measures

As described in the author’s previous paper [12], nine design options, available in this region and listed in Table 2, were considered as possible improvement measures. The first seven options are often adopted by designers in China, since they are potential improvement options that one may think about, while Option 8 is designed according to EDHc, and Option 9 is based on both EDHc and EDHh.
Table 2. Potential improvement measures [12].
Table 2. Potential improvement measures [12].
OptionMeasures
1reduce the SC value of the south facing windows to 0.5
2reduce the U-value of the external walls to 0.8 W/m2K
3change the building orientation to 15° south by east
4change the building orientation to 15° south by west
5reduce the U-value of the east and west facing windows to 2.5 W/m2K
6reduce the solar absorption coefficient of the west- and east-facing external walls to 0.4
7reduce the SC value of the east- and west-facing windows to 0.5
8add movable internal shadings for the east- and west-facing windows with their SC values of 0.3 during the daytime from 1 June to 30 September and 1.0 at other times
9add movable internal shadings for the east-facing windows (with its SC values of 0.35 during the daytime from 1 June to 30 September and 1.0 at other times) and west-facing windows (with its SC values of 0.25 during the daytime from
1 June to 30 September and 1.0 at other times), and reduce the U-values of the east walls and west-facing windows to 1.0 and 2.5 W/m2K, respectively

2.3. Life Cycle Analysis

2.3.1. Energy Aspect

A simplified life cycle analysis method was adopted in this paper. It considered life cycle energy savings (the energy aspect) in the whole operation stage, as well as embodied energy from material extraction and production, which is denoted by the equation:
ELC = Eo - EME = Eannual × 40 − EME
where Eo is the energy saving compared to the baseline during the operation stage, Eannual is the annual energy savings of the building compared to the baseline, 40 means its life cycle (currently, the life cycle of a building in China is about 40 years) and EME is the embodied energy (calculated compared to the baseline). The embodied energy (EME) for the 9 options are from material extraction and production, and since these options have a higher embodied energy than the baseline, the difference (EME) will need to be subtracted to get the real, actual life cycle energy saving.

2.3.2. Economic Aspect

The economic performance of building energy efficiency improvement measures (LCE also means life cycle energy bill savings) was influenced by the saved money in each year during the operation stage. Therefore, the life cycle economic performance analysis should take into account the time value of money and the whole range of costs. Here, the widely used present worth method [18,19] was adopted, and LCE thus can be calculated as the net present value (NPV):
Sustainability 06 00602 i001
Where LCS is the money savings during the operation stage, due to the reduced energy consumption, and LCC, similar to EME, is the life cycle cost of improvement measures and represents the extra money paid for having these options compared to the baseline. Additionally, LCS can be further calculated as:
Sustainability 06 00602 i002
where P is the price of energy (0.53 RMB per kWh and 1 USD is about 6.3 RMB), i is the annual energy inflation rate (here, it is considered as 0.04, according to the literature [20]), d is the market discount rate (here, it is considered to be equal to the long-term interest rate of 0.0655 in China) and N is the useful life of the building (here, it is 40 years). A life cycle cost analysis should take into account the “time value of money” by discounting further costs by considering inflation and discount rates.
This can be expressed as [21]:
Sustainability 06 00602 i003
where Ct is the cost of the t year, C is the initial cost and e is the average inflation rate of 5.84% in China [22]. For the first seven options, there is no additional cost in the operation stage, and thus, there is only one value of 0 for t in Equation (4). However, Options 8 and 9 both need a replacement cost for internal shadings after 20 years, and thus, there are two values for t: 0 and 20. Therefore, LCE should be calculated by subtracting LCC from the energy bill savings from the life cycle electricity reduction for cooling and heating (the item LCS in Equation (2)).
The initial cost of a potential improvement measure can be obtained by the following equation:
C = (Price/unit) × Quantity
The thickness and density of these materials are referenced from the design standard [13]. Then, the quantity of materials can be calculated by the equation:
Quantity = thickness × density × area

2.3.3. Environmental Aspect

The environmental performance takes into account CO2 emissions not only from the operation stage, but also the embodied CO2 during the stage of the production of building materials and of the demolition of the building.
The CO2 emissions from electricity production and materials in China are taken from the literature [23,24,25,26] and are shown in Table 3. Since the possible recycling of materials will be considered in the conversion factors, CO2 emissions from the demolition of the building are not incorporated in the simplified life cycle analysis in this paper. Therefore, the environmental performance (life cycle CO2 reductions compared to the baseline) can be calculated as:
LCCO2 = Eannual × 0.95 × 40 − EMCO2
where 0.95 is the conversion factor for electricity and EMCO2 is embodied CO2 and means extra CO2 emission from material extraction and production, due to improved measures compared to the baseline. The item Eannual × 0.95 × 40 in Equation (5) represents the CO2 emission reduction during the 40-year operation stage, due to reduced energy consumption compared to the baseline. Therefore, similar to Equation (2), LCCO2 should be calculated by subtracting EMCO2 from the first item in Equation (5).
The conversion factors of embodied energy for these materials are collected from the literature [27]; the conversion factor for Low-E coating is considered as 0, since different types of glass have very close values. Therefore, the incremental embodied energy for Low-E windows can be neglected compared to the baseline. Consequently, their embodied CO2 is not considered in this paper.
Table 3. Conversion factor for CO2 emission and embodied energy.
Table 3. Conversion factor for CO2 emission and embodied energy.
TypeUnitEmbodied energy (MJ/kg)CO2 emission (kg/Unit)
ElectricitykWh-0.95
Polystyrenekg11717.25
Aluminumkg2011.02
Paintkg90.41.63

3. Results and Discussion

3.1. Energy Performance

The embodied energy (EME) for the nine options is listed in Table 4. Some options have 0 EME, since these options only change the orientation of the building or enlarge the air gap between two glass panes, etc. Then, the life cycle energy savings of potential improvement options can be calculated according to Equation (1) and are shown in Figure 2. Option 9 has the largest energy savings potential (267.1 MWh), followed by Options 1 (173.8 MWh) and 8 (152.4 MWh), while the remaining options have negative impacts on energy savings (increase energy demands). In a conventional design improvement without the EDH method, designers would have adopted Option 1 as the best, since this measure leads to the best energy performance compared to the other six (Options 2 to 7) conventional measures.
Figure 2. Life cycle energy savings for potential improvement options.
Figure 2. Life cycle energy savings for potential improvement options.
Sustainability 06 00602 g002

3.2. Economic Performance

The quantity of the materials is estimated from the technical drawings of the building, and the price of these materials is collected from local market and presented in Table 4. According to the Chinese design standards [13], the lifetime is 20 years for internal shadings, and other materials can be used for more than 40 years. Thus, the options including internal shadings need to be retrofitted one time.
To achieve a cost-effective improvement option, life cycle costs for potential improved measures have an important impact on the economic performance. Figure 3 illustrates the life cycle costs for different potential improvement options. Options 3 and 4 have no incremental cost, since they only adjusted the orientation of the building. Option 1 has the highest life cycle cost, because the price for Low-E windows is high and the substituted area of south-facing windows is large. The remaining options have a life cycle cost of less than half the price of Option 1. From this chart alone, it cannot be concluded that Options 3 and 4 are better than the other eight measures in terms of economics, since bill savings from improved building energy performance should also be taken into consideration.
Figure 3. Life cycle costs for potential improvement options.
Figure 3. Life cycle costs for potential improvement options.
Sustainability 06 00602 g003
Bill savings from the life cycle electricity reduction for cooling and heating can be calculated according to the above-mentioned equation (LCS). It is subtracted by the life cycle cost to obtain the life cycle energy bill savings (LCE), which are presented in Table 3 and Figure 4. It can be seen that none of these seven conventional options is worthy from the view point of economics, since these options all increase the occupants’ bills (NPV < 0). On the other hand, design of Option 9 shows its cost effectiveness, with an LCE (NPV) higher than zero, indicating that this design option is financially viable. Although the LCE for Option 8 is not as good as Option 9, it is still much better than the first seven options.
Figure 4. Life cycle energy bill savings (LCE) for potential improvement options.
Figure 4. Life cycle energy bill savings (LCE) for potential improvement options.
Sustainability 06 00602 g004

3.3. Environmental Performance

The embodied CO2 of each option can be calculated according to the quantity of materials and the conversion factor in Table 3 and is shown in Table 4. Options 3 and 4 have no embodied CO2, since they do not require additional materials, and Option 5 can also be considered without additional embodied CO2, since it can be accomplished by widening the length of the air gap between two glass panes. Other measures have embodied CO2 ranging from 251 to 45,782 kg.
Table 4. Life cycle costs and embodied CO2 for potential improvement options compared with the baseline.
Table 4. Life cycle costs and embodied CO2 for potential improvement options compared with the baseline.
OptionLife cycle cost (dollar)Embodied CO2 (kg) and energy (kWh)
Dollar/m2Area20-year costDuration in yearsRetrofit time40-year costTypeQuantityCO2Energy
147.6 858 40,857 40 0 40,857 0 0 0
22.4 4,916 11,704 40 0 11,704 Polystyrene2,654 45,78286,255
30.0 0 0 40 0 0 0 0 0
40.0 0 0 40 0 0 0 0 0
523.8 358 8,534 40 0 8,534 0 0 0
63.2 1,612 5,117 40 0 5,117 Paint322 526 8,086
747.6 358 17,068 40 0 17,068 0 0 0
815.9 358 5,689 20 1 10,666 Aluminum537 1,095 29,982
915.9 358 5,689 20 1 10,666 Aluminum537 1,095 29,982
1.3 806 1,023 40 0 1,023 Polystyrene1,179 20,33838,317
23.8 179 4,267 40 0 4,267 0 0 0
Note: Option 9 used three energy efficiency measures.
Considering both the embodied CO2 in materials production and the CO2 emission reduction in usage, only Option 1 achieves a final reduction of CO2 emissions among all conventional options, as shown in Figure 5. Options 2–7 have an increase of CO2 emissions, ranging from 48–403 tons. However, Options 8 and 9 both perform better than Option 1, due to their higher energy reductions. The summary of energy, economic and environmental performance for different potential improvement options is also listed in Table 5, in order to give a clear comparison of the different options in these three aspects.
Figure 5. Life cycle CO2 reductions for potential improvement options.
Figure 5. Life cycle CO2 reductions for potential improvement options.
Sustainability 06 00602 g005
Table 5. The summary of energy, economic and environmental performance for potential improvement options. LCC, life cycle cost.
Table 5. The summary of energy, economic and environmental performance for potential improvement options. LCC, life cycle cost.
TypeOption
123456789
Eannual (MWh)4.35 −0.88 −9.18 −10.62 −3.37 −1.26 −5.97 4.56 8.39
ELC (MWh)173.8−121.6−367.4−424.7−135.0−58.6−238.7152.4267.1
LCC (dollar)40,857 11,704 0 0 8,534 5,117 17,068 10,666 15,956
LCE (dollar)−31,606 −13,586 −19,555 −22,606 −15,717 −7,804 −29,772 −960 1,896
LCCO2 emissions reduction (ton)165 −79 −349 −403 −128 −48 −227 172 297

4. Multi-Objective Analysis

The above discussions only consider each aspect individually. In this section, comparisons of different potential improvement options are ranked by their performance according to the order of the alphabet, with A meaning the best one, as shown in Table 6 and Table 7. To be seen clearly, the best two options for each aspect are marked by shaded cells.
Table 6. Results comparison of potential improvement options commonly used.
Table 6. Results comparison of potential improvement options commonly used.
TypeOption
1234567
ELC (MWh)ACFGDBE
LCE (dollar)DBEFCAG
LCCO2 reduction (ton)ACFGDBE
Note: an underlined letter means that its value is positive; a letter without it means that its value is negative.
Table 7. Results comparison of the energy difference between households (EDH)-based design improvement.
Table 7. Results comparison of the energy difference between households (EDH)-based design improvement.
TypeOption
123456789
ELC (MWh)BEHIFDGCA
LCE (dollar)FDGHECIBA
LCCO2 reduction (ton)CEHIFDGBA
Note: underlined letter means its value is positive, letter without it means its value is negative.
For potential improvement options commonly used without considering EDH, the best options for energy, economic and environmental performance are 1, 6 and 1, respectively, as shown in Table 8. This means different options contribute to different aspects, and thus, it may be impossible or require numerous attempts to identify a balanced option that has a better performance in these three aspects than the other eight measures. This is because the focus of building design is the aesthetic performance of the building for designers in China. Designers generally take a lot of time (about several months) to improve the appearance design of the building (energy efficiency design is usually not integrated or considered in this stage, but begins after the building appearance design is determined), and once it is finished, it usually takes only several hours to select commonly used energy efficiency measures to apply in the building energy simulation for the 50% energy savings target. Therefore, they pay little attention to the building performance improvement. At present, although the annual energy performance can be calculated by PKPM, it is very likely that designers evaluate different potential design improvements based on the annual energy performance, and this will guide designers to select Option 1 as the most suitable measure (see Table 5). Nevertheless, this option will not be selected by designers, due to the relatively high life cycle cost (see Figure 3) if cost is the major consideration. This may challenge designers when trying to select a better option with low costs and high energy efficiency. Therefore, a multi-objective design improvement (for example, energy, economic and environmental performance in this paper) would be even more difficult to accomplish, since PKPM does not integrate the function of calculating the economic and environmental performance, nor are designers familiar with the above-mentioned manual calculations.
On the other hand, EDH-based design improvement shows its advantage over the conventional one. The tailored improvement, Option 9, based on the EDH method (both EDHc and EDHh) achieves a better performance in terms of energy, economy and environment than the other eight measures, followed by Option 8 (see Table 7), which is also designed based on the EDH method, but only considering EDHc (heating improvement is not considered). This indicates that EDH-based or partially-based design improvements contribute to a combined higher performance in terms of energy, economy and environment. This further means that this method can provide designers with flexible improvement options to select from in order to address the diverse demands for building aesthetics, function, and so on or to avoid potential difficulties when some kinds of materials or measures that are planned to be used are unavailable locally. Though part of the measures of Options 8 and 9 might be devised without the EDH analysis, tailored measures, such as adding movable internal shadings and reducing the U-values of walls, simultaneously and for certain periods and certain values, can hardly be considered for conventional design improvements.
Although the results shown in Figure 5 seem perfectly correlated to the results shown in Figure 2, there is a difference between these two aspects, according to Equation (6). The environmental performance needs to consider embodied CO2 emissions, which are different, as shown in Table 4, for different energy saving measures. For example, the difference between Options 2 and 5 for Figure 2 is less than 15 MWh, while it reaches 49 tons for Figure 5, which is three times higher than the former. Therefore, multi-objective analysis will lead us to better building energy design.
Table 8. Better option in terms of energy, economic and environmental performance.
Table 8. Better option in terms of energy, economic and environmental performance.
TypeImprovement methodPerformance (index)
EnergyEconomicEnvironmental
Better optionConventional161
EDH based999

5. Conclusions

This paper carried out a multi-objective life cycle analysis for a better building design by conducting a number of building simulations, and three aspects (energy, economic and environmental performance) were discussed. When selecting design improvement options, the EDH method was adopted and compared with the conventional one. Seven potential improvement options commonly used are compared, and the results show that it is difficult to identify an option that has relatively high performance in these three aspects. On the other hand, EDH-based design improvement achieves better energy, economic and environmental performance than the seven conventional ones. Moreover, EDH-based design improvements can provide designers with flexible options to select from in order to address the diverse demands for building aesthetics, function, and so on, even in conditions with few improvement measures available locally. In future works, the author will try to incorporate the EDH method in PKPM to improve the current design in China.

Acknowledgments

This work was supported by the natural science foundation of Ningbo (2012A610158) and Zhejiang Province (LQ13E080009) and by the K.C. Wong Magna Fund in Ningbo University.

Conflicts of Interest

The author declares no conflict of interest.

References

  1. Li, Y.; Zhang, C. Prediction and analysis of the energy saving tendency in China’s building. Economist 2010, 3, 20–22. (in Chinese). [Google Scholar]
  2. Dincer, I.; Rosen, M.A. Energy, environment and sustainable development. App. Energ. 1999, 64, 427–440. [Google Scholar] [CrossRef]
  3. Jiao, Y.; Lloyd, C.R.; Wakes, S.J. The relationship between total embodied energy and cost of commercial buildings. Energ. Buildings 2012, 52, 20–27. [Google Scholar] [CrossRef]
  4. Sartori, I.; Napolitano, A.; Voss, K. Net zero energy buildings: A consistent definition framework. Energ. Buildings 2012, 48, 220–232. [Google Scholar] [CrossRef]
  5. Wang, Q. Optimization and Evaluation of Building Energy-saving Technology Integration (in Chinese). Master Thesis, Wuhan University of Technology, Wuhan, China, 2009. [Google Scholar]
  6. Ihm, P.; Krarti, M. Design optimization of energy efficient residential buildings in Tunisia. Building Environ. 2012, 58, 81–90. [Google Scholar] [CrossRef]
  7. Xing, S. Design optimization of insulation usage and space conditioning load using energy simulation and genetic algorithm. Energy 2011, 36, 1659–1667. [Google Scholar] [CrossRef]
  8. Gong, X.; Akashi, Y.; Sumiyoshi, D. Optimization of passive design measures for residential buildings in different Chinese areas. Building Environ. 2012, 58, 46–57. [Google Scholar] [CrossRef]
  9. Znouda, E.; Ghrab-Morcos, N.; Hadj-Alouane, A. Optimization of Mediterranean building design using genetic algorithms. Energ. Buildings 2007, 39, 148–153. [Google Scholar] [CrossRef]
  10. Dombayci, O.; Golcu, M.; Pancar, Y. Optimization of insulation thickness for external walls using different energy-sources. Appl. Energ. 2006, 83, 921–928. [Google Scholar] [CrossRef]
  11. Wang, W.; Zmeureanu, R.; Rivard, H. Applying multi-objective genetic algorithms in green building design optimization. Building Environ. 2005, 40, 1512–1525. [Google Scholar] [CrossRef]
  12. Yao, J. Energy optimization of building design for different housing units in apartment buildings. Appl. Energ. 2012, 94, 330–337. [Google Scholar] [CrossRef]
  13. China Academy of Building Research. Design Standard for Energy Efficiency of Residential Buildings in Hot Summer and Cold Winter Zone; (in Chinese). China Architecture and Building Press: Beijing, China, 2010. [Google Scholar]
  14. China Academy of Building Research. Design Code for Heating Ventilation and Air Conditioning of Civil Buildings; (in Chinese). China Architecture and Building Press: Beijing, China, 2012. [Google Scholar]
  15. Yan, D.; Xia, J.; Tang, W.; Song, F.; Zhang, X.; Jiang, Y. DeST—An integrated building simulation toolkit Part I: Fundamentals. Building Simul. 2008, 1, 95–110. [Google Scholar] [CrossRef]
  16. Zhang, X.; Xia, J.; Jiang, Z.; Huang, J.; Qin, R.; Zhang, Y.; Liu, Y.; Jiang, Y. DeST—An integrated building simulation toolkit Part II: Applications. Building Simul. 2008, 1, 193–209. [Google Scholar] [CrossRef]
  17. China Meteorological Bureau-Climate Information Center, Tsinghua University. Standard Weather Data for Analyzing Building Thermal Conditions; (in Chinese). China Architecture and Building Press: Beijing, China, 2005. [Google Scholar]
  18. Floridesa, G.A.; Tassoub, S.A.; Kalogiroua, S.A.; Wrobel, L.C. Measures used to lower building energy consumption and their cost effectiveness. Appl. Energ. 2002, 73, 299–328. [Google Scholar] [CrossRef]
  19. Ren, G.; Li, Q. Life cycle cost analysis for optimizing insulation thickness of external walls. Water Resour. Power. 2008, 26, 138–140. (in Chinese). [Google Scholar]
  20. An increase of 2 cents on electricity price can not overcome the shortage of electricity (in Chinese). Available online: http://news.163.com/special/reviews/comercialeprice.html (accessed on 24 November 2013).
  21. Eisenberger, I.; Remer, D.S.; Lorden, G. The Role of Interest and Inflation Rates in Life-Cycle Cost Analysis; National Aeronautics and Space Administration: California, CA, USA, 1977; pp. 105–109, The Deep Space Network Progress Report. [Google Scholar]
  22. China Inflation Rate. Available online: http://www.tradingeconomics.com/china/inflation-cpi (accessed on 24 November 2013).
  23. Zhao, P.; Tong, J.; Ma, J. The research on the system of the building material environment load index and evaluation. China Build. Mat. Sci. Tech. 2004, 13, 1–7. (in Chinese). [Google Scholar]
  24. Gong, Z.; Zhang, Z. A study on embodied environmental profile during the life cycle of cement. China Civil Eng. J. 2004, 37, 86–91. (in Chinese). [Google Scholar]
  25. Chen, H.; Hao, W.; Sing, F.; Wang, T. Life cycle assessment of several typical macromolecular materials. Acta Sciential Circumst. 2004, 24, 545–549. (in Chinese). [Google Scholar]
  26. Liu, S. Study on the Environmental Impact Assessment and Improvement of Cement & Concrete Systems (in Chinese). Ph.D. Thesis, Wuhan University of Technology, Wuhan, China, 2000. [Google Scholar]
  27. Table of Embodied Energy Coefficients. Available online: http://www.victoria.ac.nz/cbpr/resources/index.aspx (accessed on 24 November 2013).

Share and Cite

MDPI and ACS Style

Yao, J. A Multi-Objective (Energy, Economic and Environmental Performance) Life Cycle Analysis for Better Building Design. Sustainability 2014, 6, 602-614. https://doi.org/10.3390/su6020602

AMA Style

Yao J. A Multi-Objective (Energy, Economic and Environmental Performance) Life Cycle Analysis for Better Building Design. Sustainability. 2014; 6(2):602-614. https://doi.org/10.3390/su6020602

Chicago/Turabian Style

Yao, Jian. 2014. "A Multi-Objective (Energy, Economic and Environmental Performance) Life Cycle Analysis for Better Building Design" Sustainability 6, no. 2: 602-614. https://doi.org/10.3390/su6020602

APA Style

Yao, J. (2014). A Multi-Objective (Energy, Economic and Environmental Performance) Life Cycle Analysis for Better Building Design. Sustainability, 6(2), 602-614. https://doi.org/10.3390/su6020602

Article Metrics

Back to TopTop