Green Building Renovation Through the Benefits of the 110% Superbonus: Process, Technical and Economic-Appraisal Aspects
Abstract
1. Introduction
2. The “Superbonus 110%”: Opportunities and Criticalities of Its Implementation
- -
- to fight undeclared work in the building trade;
- -
- to lift national output by using construction as a lever;
- -
- to meet European energy goals;
- -
- to make homes safer against earthquakes [31].
- 1.
- “Ecobonus”, in force until the end of 2024, which provides for an Irpef deduction over ten years of expenses for energy redevelopment interventions on real estate units and buildings (including those not intended as a main residence) incurred by the owner or occupant (tenant);
- 2.
- 3.
2.1. Main Difference Between “Ecobonus” and “Sismabonus” with the New “Superbonus 110%”
2.2. “Superbonus 110%” Eligibility Criteria and Approval Processes
3. Ecological Renovation Intervention Under the Superbonus 110%: A Real Case from Southern Italy
3.1. State of the Art
3.2. The Bio Ecological Intervention
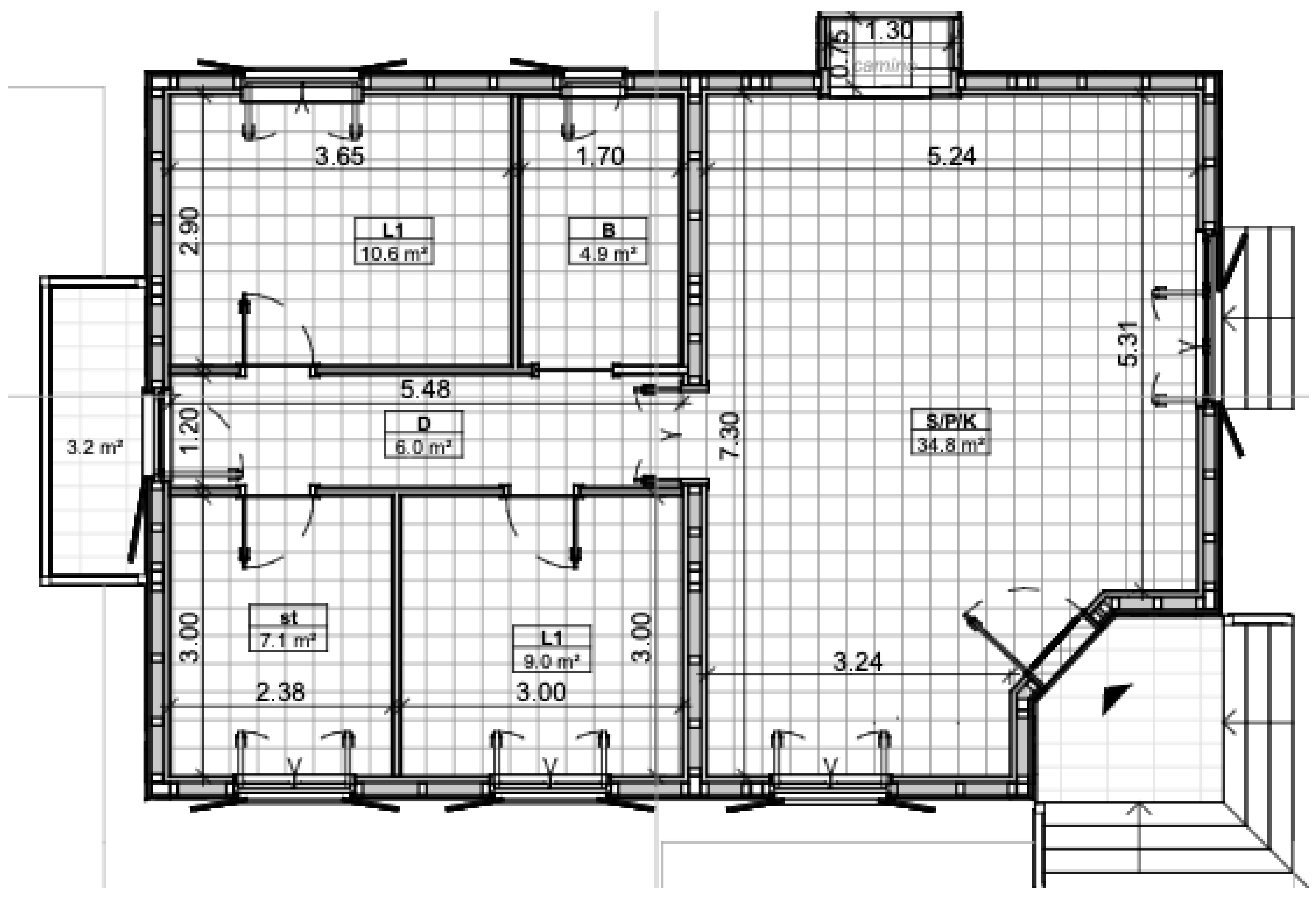
3.2.1. Geometric Characteristics
3.2.2. Thermal Characteristics
4. Bio Ecological Intervention. Outcomes of the Integrated Valuation
- seismic safety through the use of seismic-resistant wooden structures;
- energy efficiency by creating a balance between energy consumed and produced close to zero with a consequent increase in the market value of the property.
4.1. Ecological Valuation
- -
- Energy Plus (Version 8.9) together with Design Builder (Version 6.1.0.006), trial;
- -
- Termolog (Version 13); academy;
- -
- Termus Bim (Version 51.00u); educational;
- -
- Blumatica Bim ArchIt (Version 1.5.0.22); trial;
- -
- DOCET v.3.19.10.51; free.
- -
- EPH the energy performance index for winter heating (kWh/m2 year);
- -
- EPC the energy performance index for summer cooling (kWh/m2 year);
- -
- EPW the primary energy for domestic hot water (kWh/m2 year);
- -
- EPV the energy performance index for ventilation (kWh/m2 year);
- -
- EPL the energy performance index for artificial lighting (kWh/m2 year);
- -
- EPT the energy performance index for people’s transportation (kWh/m2 year).
- -
- H′T the mean overall heat transfer coefficient by transmission per unit of envelope area (W/m2K);
- -
- Asol,est/Asup,utile the equivalent summer solar area per unit of useful floor area;
- -
- H the average seasonal efficiency of the winter heating system;
- -
- W the average seasonal efficiency of the domestic hot water system;
- -
- FERw the percentage of renewable energy coverage for domestic hot water production;
- -
- FERgl the percentage of renewable energy coverage for total energy needs (heating, cooling, and domestic hot water).
4.2. Economic Valuation: The Metric Appraisal Computation (MAC)
- -
- estimating the overall cost of the intervention and the associated fiscal deduction;
- -
- checking compliance with the cost ceilings legally defined for each process;
- -
- verifying the maximum eligible expenditure for each subsidized intervention;
- -
- defining the costs of professional services proportionally to the specific works undertaken;
- -
- certifying the adequacy of expenditures through Work Progress Reports (Stati di Avanzamento Lavori, SAL) of at least 30% of the eligible amount;
- -
- validating the expenses incurred for the execution of the subsidized measures.
The 110% Deduction in Application of the Superbonus 110%
5. Discussion
6. Conclusions
- -
- prescribe the use of only nature-based ecological products;
- -
- require a degree of financial participation by beneficiaries (20%), in order to trigger virtuous cycles among stakeholders;
- -
- be more calibrated to expected total costs and be proportionated to the socio-economic conditions of households;
- -
- be designed as ordinary, predictable, and long-term measures, without unrealistic deadlines in consistent with building processes;
- -
- pursue goals of geographic equity and redistribution, taking into account the significant regional and social disparities across Italy.
Author Contributions
Funding
Institutional Review Board Statement
Informed Consent Statement
Data Availability Statement
Acknowledgments
Conflicts of Interest
References
- IEA. CO2 Emissions in 2023. 2023. Available online: https://www.iea.org/reports/co2-emissions-in-2023/executive-summary (accessed on 1 February 2024).
- European Commission. A Renovation Wave for Europe—Greening our Buildings, Creating Jobs, Improving Lives. COM 662 final. 2020. Available online: https://eur-lex.europa.eu/legal-content/EN/TXT/?uri=celex:52020DC0662 (accessed on 1 February 2024).
- Stern, N. The Economics of Climate Change. Stern Review; Cambridge. University Press: Cambridge, UK, 2006; pp. 1–37. [Google Scholar]
- Clarkson, R.; Deyes, K. Estimating the Social Cost of Carbon Emissions; Department of Environment, Food and Rural Affairs: London, UK, 2002. [Google Scholar]
- Watkiss, P.; Anthoff, D.; Downing, T. The Social Costs of Carbon (SCC) Review: Methodological Approaches for Using SCC Estimates in Policy Assessment; AEA Technology Environment, Department for Environment, Food and Rural Affairs: London, UK, 2005. [Google Scholar]
- Hanemann, M. What is the Economic Cost of Climate Change? UC-Berkeley: New Heaven, CT, USA, 2009. [Google Scholar]
- Ackerman, F.; Stanton, E. The Social Cost of Carbon. Report. for the Economics for Equity and the Environment Network. Real-World Econ. Rev. 2010. [Google Scholar]
- Wolverton, A. Estimating the “Social Cost of Carbon” for Regulatory Impact Analysis; Weekly Policy Commentary; Resources for the Future: Washington, DC, USA, 2010. [Google Scholar]
- Ackerman, F.; Stanton, E. Climate Risks and Carbon Prices: Revising the Social Cost of Carbon. Econ: Open-Access Open-Assess. E-J. 2012, 6, 1–25. [Google Scholar] [CrossRef]
- Ceronsky, M.; Revesz, R.; Keohane, N.; Cleetus, R.; Convery, F.; Schwartz, J.; Howard, P.; Sterner, T.; Johnson, L.; Wagner, G. Comments on the U.S. Social Cost of Carbon; Columbia University Academic Commons: New York, NY, USA, 2014. [Google Scholar]
- ENEA. Rapporto Annuale Sull’efficienza Energetica: Analisi e Risultati Delle Policy di Efficienza Energetica del Nostro Paese. 2023. Available online: https://www.efficienzaenergetica.enea.it/component/jdownloads/?task=download.send&id=554&catid=9&Itemid=101 (accessed on 1 February 2024).
- Ministero della Transizione Ecologica La Situazione Energetica Nazionale nel 2022. 2023. Available online: https://dgsaie.mise.gov.it/pub/sen/relazioni/relazione_annuale_situazione_energetica_nazionale_dati_2020.pdf (accessed on 1 February 2024).
- ARERA. Relazione Annuale Sullo Stato dei Servizi e Sull’attività Svolta. 2023. Available online: https://www.arera.it/it/relaz_ann/21/21.htm (accessed on 1 February 2024).
- Šarkan, B.; Jaśkiewicz, M.; Kubiak, P.; Tarnapowicz, D.; Loman, M. Exhaust Emissions Measurement of a Vehicle with Retrofitted LPG System. Energies 2022, 15, 1184. [Google Scholar] [CrossRef]
- Bottero, M.; Bravi, M.; Dell’Anna, F.; Mondini, G. Valuing buildings energy efficiency through Hedonic Prices Method: Are spatial effects relevant? Valori Valutazioni 2018, 21, 28–39. [Google Scholar]
- Monetti, V. Scalable Dynamic Simulation-Based Methodology for the Energy Retrofit of Existing Buildings. Ph.D Thesis, Politecnico di Torino, Torino Energy Department, Torino, Italy, 2015. [Google Scholar]
- Fabbri, K.; Tronchin, L.; Tarabusi, V. Energy retrofit and economic evaluation priorities applied at an Italian case study. Energy Procedia 2014, 45, 379–384. [Google Scholar] [CrossRef]
- Intorbida, S. La Riqualificazione Energetica Integrata ed Economicamente Sostenibile Strategie. Per La Valorizzazione Del Patrimonio Edilizlo Pubblico e Privato Mediante la. Riqualificazione Energetica Archit. Integrata e la Relativa Finanziabilita ad iso Risorse; Legislazione Tecnica: Rome, Italy, 2013; ISBN 978-88-6219-1609. [Google Scholar]
- Pallis, P.; Gkonis, N.; Varvagiannis, E.; Braimakis, K.; Karellas, S.; Katsaros, M.; Vourliotis, P.; Sarafianos, D. Towards NZEB in Greece: A comparative study between cost optimality and energy efficiency for newly constructed residential buildings. Energy Build. 2019, 198, 396–411. [Google Scholar] [CrossRef]
- Camera dei Deputati. Il Recupero e la Riqualificazione Energetica del Patrimonio Edilizio: Una Stima Dell’impatto Delle Misure di Incentivazione; n. 32/1, Rapporto Online; Camera dei Deputati: Rome, Italy, 2019. [Google Scholar]
- Camera dei Deputati. Il Recupero e la Riqualificazione Energetica del Patrimonio Edilizio: Una Stima Dell’impatto Delle Misure di Incentivazione; n. 32/3, Rapporto Online; Camera dei Deputati: Rome, Italy, 2021. [Google Scholar]
- ENEA. Progettare la Riqualificazione Energetica Degli Edifici Storici. 2023. Available online: https://www.efficienzaenergetica.enea.it/vi-segnaliamo/la-sfida-della-riqualificazione-energetica-degli-edifici-storici-presentata-al-saie-2023.html (accessed on 1 February 2024).
- Pietrzyk, T.; Georgi, M.; Schlittmeier, S.; Schmitz, K. Psychoacoustic Evaluation of Hydraulic Pumps. Sustainability 2021, 13, 7320. [Google Scholar] [CrossRef]
- de Blasio, G.; Fiori, R.; Lavecchia, L.; Loberto, M.; Michelangeli, V.; Padovani, E.; Tommasino, P. Il Miglioramento Dell’efficienza Energetica Delle Abitazioni in Italia: Lo Stato Dell’arte e Alcune Considerazioni Per Gli Interventi Pubblici; Questioni di Economia e Finanza (occasional paper); Banca d’Italia, eurosistema: Rome, Italy, 2024; n. 845. [Google Scholar]
- Commissione Europea. Il Green Deal Europeo Bruxelles: Commissione Europea. 2019. Available online: https://eur-lex.europa.eu/legal-content/IT/TXT/?uri=CELEX:52019DC0640 (accessed on 1 February 2024).
- Wen, D.; Gao, W.; Kuroki, S.; Gu, Q.; Ren, J. The effects of the new Feed-In Tariff Act for solar photovoltaic (PV) energy in the wake of the Fukushima accident in Japan. Energy Policy 2021, 156, 112414. [Google Scholar] [CrossRef]
- Lockwood, M.; Mitchell, C.; Hoggett, R. Incumbent lobbying as a barrier to forward-looking regulation: The case of demand-side response in the GB capacity market for electricity. Energy Policy 2020, 140, 111426. [Google Scholar] [CrossRef]
- Yazdani, S.; Salimipour, E.; Moghaddam, M.S. A comparison between a natural gas power plant and a municipal solid waste incineration power plant based on an emergy analysis. J. Clean. Prod. 2020, 276, 123158. [Google Scholar] [CrossRef]
- ENEA. Rapporto Superbonus 110%: Monitoring dei Lavori e Impatto Economico. 2022. Available online: https://www.efficienzaenergetica.enea.it/detrazioni-fiscali/superbonus/risultati-superbonus.html (accessed on 1 February 2024).
- Tonin, S. Revitalizing Italy’s Housing Stock: Policies and Economic Strategies for Energy Efficiency and Social Equity. Land 2025, 14, 1151. [Google Scholar] [CrossRef]
- Codogno, L. Italy’s Superbonus 110%: Messing Up with Demand Stimulus and the Need to Reinvent Fiscal Policy LEAP Working Paper 12/2024 Institute for European Analysis and Policy, Rome, Italy, 15 July 2024. Available online: https://leap.luiss.it/wp-content/uploads/2024/07/WP12.24-Italys-Superbonus-110.pdf (accessed on 1 February 2025).
- Zikirya, B.; Wang, J.; Zhou, C. The Relationship between CO2 Emissions, Air Pollution, and Tourism Flows in China: A Panel Data Analysis of Chinese Provinces. Sustainability 2021, 13, 11408. [Google Scholar] [CrossRef]
- Ministero delle Infrastrutture e dei Trasporti (MIT). Linee Guida per il Sismabonus e la Classificazione del Rischio Sismico Delle Costruzioni; MIT: Rome, Italy, 2020. [Google Scholar]
- Gotta, A. The Application of a Superbonus Tax Incentive to Heritage Buildings. Land 2023, 12, 1130. [Google Scholar] [CrossRef]
- Forni, L.; Fortuna, F.; Giarda, E.; Giovanardi, F.; Panarello, D. The ‘Green buildings’ Directive: A quantification of its costs and benefits in two Italian regions. J. Hous. Econ. 2025, 68, 102057. [Google Scholar] [CrossRef]
- Di Nardo, T.; Saggese, P.; Zanetti, E. L’impatto Economico del Superbonus 110% e il Costo Effettivo Per lo Stato dei Bonus Edilizi; Fondazione Nazionale dei Commercialisti: Rome, Italy, 2022. [Google Scholar]
- Codogno, L. The Italian Superbonus: Costs, Benefits and Economic Distortions; LUISS School of European Political Economy Working Papers: Rome, Italy, 2024. [Google Scholar]
- Parliamentary Budget Office (PBO). Rapporto Sulla Spesa Fiscale: Superbonus ed Ecobonus. Ufficio Parlamentare di Bilancio. 2022. Available online: https://www.upbilancio.it/rapporto-sulla-politica-di-bilancio-2022/ (accessed on 23 October 2025).
- Massimo, D.E. Stima del green premium per la sostenibilità architettonica mediante Market Comparison Approach. Valori Valutazioni 2011, 6, 127–144. [Google Scholar]
- Massimo, D.E. Emerging issues in real estate appraisal: Market premium for building sustainability. Aestimum 2013, 653–673. [Google Scholar] [CrossRef]
- Massimo, D.E.; Del Giudice, V.; Malerba, A.; Bernardo, C.; Musolino, M.; De Paola, P. Valuation of ecological retrofitting technology in existing buildings: A real-world case study. Sustainability 2021, 13, 7001. [Google Scholar] [CrossRef]
- Massimo, D.E.; De Paola, P.; Musolino, M.; Malerba, A.; Del Giudice, F.P. Green and Gold Buildings? Detecting Real Estate Market Premium for Green Buildings through Evolutionary Polynomial Regression. Buildings 2022, 12, 621. [Google Scholar] [CrossRef]
- Musolino, M.; Massimo, D.E.; Marino, C.; De Paola, P.; Errigo, R.; Malerba, A.; Del Giudice, F.P. Appraisal of energy saving in Green Buildings, supported by BIM new platforms. Valori E Valutazioni 2023, 34, 3–29. [Google Scholar] [CrossRef]
- Musolino, M.; Massimo, D.E.; Calabrò, F.; De Paola, P.; Errigo, R.; Malerba, A. Appraisal of Sustainable Retrofitting of Historical Settlements: Less than 60% Unexpected Outcomes. Sustainability 2025, 17, 5695. [Google Scholar] [CrossRef]
- Corsello, F.; Ercolani, V. The Impact of the Superbonus on Italian Construction Costs. VoxEU/CEPR 2025. Available online: https://cepr.org/voxeu/columns/impact-superbonus-italian-construction-costs (accessed on 1 April 2025).
- Nomisma. 110% Monitor: L’analisi Nomisma per Misurare L’impatto Economico Della Misura del Superbonus 110%. Comunicazione stampa Nomisma: Bologna, Italy, 2023; Available online: https://www.nomisma.it/press-area/superbonus-nomisma-comunicato-stampa/ (accessed on 1 February 2024).
- European Court of Auditors. Energy Efficiency in Buildings: Greater Focus on Cost-Effectiveness Still Needed; Special Report No. 11/2020; Publications Office of the European Union: Luxembourg, 2020; Available online: https://op.europa.eu/webpub/eca/special-reports/energy-efficiency-11-2020/en/ (accessed on 1 February 2024).
- ENEA. Le Detrazioni Fiscali per L’efficienza Energetica e L’utilizzo Delle Fonti Rinnovabili di Energia Negli Edifici Esistenti; Rapporto Annuale 2019; ENEA: Rome, Italy, 2020. [Google Scholar]
- ENEA. Rapporto Annuale Superbonus 110%; Agenzia Nazionale per le Nuove Tecnologie, L’energia e lo Sviluppo Economico Sostenibile: Rome, Italy, 2023; Available online: https://www.efficienzaenergetica.enea.it (accessed on 1 February 2024).
- ENEA. Efficienza Energetica e Incentivi: Ecobonus e Sismabonus Agenzia Nazionale per le Nuove Tecnologie, L’energia e lo Sviluppo Economico Sostenibile; ENEA: Rome, Italy, 2024; Available online: https://www.enea.it (accessed on 1 February 2025).
- Magnani, N.; Carrosio, G.; Osti, G. Energy retrofitting of urban buildings: A socio-spatial analysis of three mid-sized Italian cities. Energy Policy 2020, 139, 111341. [Google Scholar] [CrossRef]
- Perrone, A.; Zanfi, F.; Daglio, L.; Rusci, S. Bonus Edilizi: Diversificazione e Integrazione Con Politiche Urbane e Territoriali. In Ricomporre i Divari. Politiche e Progetti Territoriali Control le Disuguaglianze e per la Transizione Ecologica; Coppola, M., Del Fabbro, A., Lanzani, G., Pessina, E., Zanfi, F., Eds.; Il Mulino: Bologna, Italy, 2021; pp. 149–162. [Google Scholar]
- Agenzia delle Entrate. Guida Alle Agevolazioni Fiscali per il Risparmio Energetico (Ecobonus); MEF: Rome, Italy, 2024. Available online: https://www.agenziaentrate.gov.it (accessed on 1 February 2025).
- ISTAT. Edilizia Residenziale e Patrimonio Abitativo in Italia; Istituto Nazionale di Statistica: Rome, Italy, 2022; Available online: http://dati-censimentopopolazione.istat.it/Index.aspx?DataSetCode=DICA_EDIFICIRES (accessed on 1 February 2025).
- European Commission. Directive (EU) 2018/844 on the Energy Performance of Buildings (EPBD Recast); Official Journal of the European Union: Luxemburg, 2022; Available online: https://energy.ec.europa.eu/topics/energy-efficiency/energy-performance-buildings/energy-performance-buildings-directive_en (accessed on 23 October 2025).
- Faccioli, M.; Lucarelli, C.; Mazzoli, C.; Severini, S. What are the policy drivers to undertake green retrofitting investments? Evidence from Italy. In Ital. Econ. J.; 2024; Volume 11, pp. 1211–1237. [Google Scholar] [CrossRef]
- Corte dei Conti. Relazione sul Superbonus 110% e Altri Incentivi Fiscali in Edilizia; Corte dei Conti: Rome, Italy, 2023; Available online: https://www.corteconti.it/Download?id=644d75b9-86aa-4c52-a1eb-cc9f3b71278a (accessed on 1 February 2024).
- Lee, J.; Jun, S.P.; Lee, C. Does demand-side innovation policy drive lock-in? Global evidence from solar energy in 155 countries. Energy Res. Soc. Sci. 2022, 89, 102539. [Google Scholar] [CrossRef]
- Briard, J.; Ayrault, S.; Baron, S.; Bordier, L.; Roy-Barman, M.; Syvilay, D.; L’Héritier, M. Historical monuments and lead pollution: Lessons from the case of Notre-Dame de Paris and Sainte-Chapelle. J. Cult. Herit. 2023, 65, 99–106. [Google Scholar] [CrossRef]
- Huerto-Cárdenas, H.E.; Aste, N.; Buzzetti, M.; Del Pero, C.; Leonforte, F.; Miglioli, A. Examining the role of the Superbonus 110% incentive in Italy through analyses of two residential buildings. E3S Web Conf. 2024, 546, 02007. [Google Scholar] [CrossRef]
- Li, M.; He, L.; Yang, G.; Lian, Z. Profit-Sharing Contracts for Fresh Agricultural Products Supply Chain Considering Spatio-Temporal Costs. Sustainability 2022, 14, 2315. [Google Scholar] [CrossRef]
- Pedersen, R.H.; Andersen, O.W. A contested agenda: Energy transitions in lower-income African countries. Energy Policy 2023, 176, 113496. [Google Scholar] [CrossRef]
- Su, X.; Tan, J. Regional energy transition path and the role of government support and resource endowment in China. Renew. Sustain. Energy Rev. 2023, 175, 113150. [Google Scholar] [CrossRef]
- Sevim, O.; Alakara, E.H.; Guzelkucuk, S. Fresh and Hardened Properties of Cementitious Composites Incorporating Firebrick Powder from Construction and Demolition Waste. Buildings 2023, 13, 45. [Google Scholar] [CrossRef]
- Clemett, N.; Carofilis Gallo, W.W.; Gabbianelli, G.; O’Reilly, G.J.; Monteiro, R. Optimal combined seismic and energy efficiency retrofitting for existing buildings in Italy. J. Struct. Eng. 2023, 149, 04022207. [Google Scholar] [CrossRef]
- Ministero dello Sviluppo Economico. Applicazione Delle Metodologie di Calcolo Delle Prestazioni Energetiche e Definizione Delle Prescrizioni e dei Requisiti Minimi Degli Edifici. 2015. Available online: https://www.mimit.gov.it/index.php/it/normativa/decreti-interministeriali/decreto-interministeriale-26-giugno-2015-applicazione-delle-metodologie-di-calcolo-delle-prestazioni-energetiche-e-definizione-delle-prescrizioni-e-dei-requisiti-minimi-degli-edifici (accessed on 1 February 2024).
- UNI TS 11300-1; Prestazioni Energetiche Degli Edifici–Determinazione del Fabbisogno di Energia per il Riscaldamento e il Raffrescamento Ambiente. UNI: Milano, Italy, 2015. Available online: https://biblus.acca.it/uni-ts-11300-1/ (accessed on 1 February 2024).
- UNI TS 11300-2; Prestazioni Energetiche Degli Edifici–Determinazione del Fabbisogno di Energia per la Preparazione Acqua Calda Sanitaria, dei Rendimenti e del Fabbisogno di Energia Primaria per Riscaldamento ed Acqua Calda Sanitaria. UNI: Milano, Italy, 2015. Available online: https://biblus.acca.it/uni-ts-11300-2/ (accessed on 1 February 2024).
- UNI TS 11300-3; Prestazioni Energetiche Degli Edifici–Determinazione dei Rendimenti e dei Fabbisogni di Energia Primaria per la Climatizzazione estiva. UNI: Milano, Italy, 2015. Available online: https://www.infobuildenergia.it/Allegati/1045.pdf (accessed on 1 February 2024).
- UNI TS 11300-4; Prestazioni Energetiche Degli Edifici–Utilizzo di Energie Rinnovabili e di Altri Metodi di Generazione per Riscaldamento di Ambienti e Preparazione Acqua Calda Sanitaria. UNI: Milano, Italy, 2015. Available online: https://store.uni.com/uni-ts-11300-4-2016 (accessed on 1 February 2024).
- Italian Republic. Legislative Decree 36/2023. New Public Procurement Code. Gazzetta Ufficiale. 2023. Available online: https://www.dlapiper.com/en-us/insights/publications/law-in-tech/the-new-italian-public-contracts-code (accessed on 1 February 2024).
- Italian Republic. Law 77/2020. Conversion into Law of Decree-Law 34/2020 (Relaunch Decree). Gazzetta Ufficiale. 2020. Available online: https://www.gazzettaufficiale.it/eli/id/2020/07/18/20G00095/sg (accessed on 1 February 2024).
- Regione Calabria. Price List for Public Works (Resolution No. 344/2022). Available online: https://eur-lex.europa.eu/legal-content/PT/TXT/HTML/?uri=OJ:C:2022:344:FULL&from=EN (accessed on 1 February 2024).
- Ministry of Economic Development (MiSE). Ministerial Decree 06/08/2020, Annex I and Annex, A. Available online: https://def.finanze.it/DocTribFrontend/getAttoNormativoDetail.do?ACTION=getArticolo&id=%7BE2783020-6CAF-4F5E-B6E5-DE344A5EED32%7D&codiceOrdinamento=050000000000000&articolo=Preambolo (accessed on 1 February 2024).
- Dorotić, H.; Ban, M.; Pukšec, T.; Duić, N. Impact of wind penetration in electricity markets on optimal power-to-heat capacities in a local district heating system. Renew. Sustain. Energy Rev. 2020, 132, 110095. [Google Scholar] [CrossRef]
- Soava, G.; Mehedintu, A.; Sterpu, M.; Raduteanu, M. Impact of Employed Labor Force, Investment, and Remittances on Economic Growth in EU Countries. Sustainability 2020, 12, 10141. [Google Scholar] [CrossRef]
- Sevim, Y.E.; Taki, A.; Abuzeinab, A. Examining energy efficiency and retrofit strategies for historic buildings in the UK. Sustainability 2025, 17, 3002. [Google Scholar] [CrossRef]
- Fawcett, T. Residential retrofit in the climate emergency: The role of metrics. Build. Cities 2020, 1, 107–128. [Google Scholar] [CrossRef]
- Elsayed, M.; Romagnoni, P.; Pelsmakers, S.; Castaño-Rosa, R.; Klammsteiner, U. The actual performance of retrofitted residential apartments. Build. Res. Inf. 2023, 51, 411–429. [Google Scholar] [CrossRef]
- Ürge-Vorsatz, D.; Kelemen, A.; Tirado Herrero, S.; Thomas, S.; Thema, J.; Yuba, A. Measuring multiple impacts of low-carbon energy options in a green economy context. Appl. Energy 2020, 261, 114200. [Google Scholar] [CrossRef]
- Buratti, C.; Belloni, E.; Merli, F.; Zinzi, M. Aerogel glazing systems for building applications: A review. Energy Build. 2021, 231, 110587. [Google Scholar] [CrossRef]
- ANCE. Superbonus 110%: Quanto Costa Davvero allo Stato? Contributo All’indagine Conoscitiva Sugli Effetti Macroeconomici e di Finanza Pubblica Degli Incentivi Fiscali in Edilizia; Rapporto online; ANCE: Rome, Italy, 2023; Available online: https://ance.it/wp-content/uploads/allegati/Effetti_macro_Superbonus.pdf (accessed on 1 February 2024).











| Features | Ecobonus | Sismabonus | Superbonus 110% | 
|---|---|---|---|
| Introduction Year | 2007 | 2017 | 2020 | 
| Tax Deduction Rate | - 50–65% for most energy upgrades; - 70–75% for condominiums | - 50–70% for single units; - up to 85% for condominiums; - fixed cap €96,000 per unit/year | - 110% (2020–2022), then 90% (2023), 70% (2024), 65% (2025); - repayment over 4 years | 
| Application Scope | Energy efficiency measures in residential and non-residential buildings, such as: thermal insulation, windows, heating system replacement, building automation | Seismic risk reduction works in seismic hazard zones (classified area 1, 2 and 3): seismic strengthening, demolition and reconstruction permitted | Integrated energy and seismic renovation of residential buildings (extended also to some non-residential uses): combined energy and seismic works, mandatory two-class energy upgrade, integrated driving and driven measures | 
| Beneficiaries Target | - Owners or tenants of residential units; - no primary residence requirement | - Owners of residential and non-residential properties in seismic zones; - both individuals and condominiums | - Wider population due to credit transfer/invoice discount; - households with limited fiscal capacity included | 
| Incentive Mechanism | Deduction spread over 10 years; no credit transfer | Deduction spread over 5 years; capped expenditures | Deduction spread over 4 years; credit transfer and invoice discount enabled (later restricted in 2023) | 
| Policy Objective | Incremental energy efficiency and fossil fuel reduction | Seismic safety enhancement and structural resilience | Deep retrofit with dual aim: decarbonization and seismic resilience, while boosting economic recovery | 
| Total Built Area | Heated Area | Total Average Height | Total Thickness Slabs | Net Average Height | Total Built Volume | Heated Volume | 
|---|---|---|---|---|---|---|
| m2 | m2 | m | m | m | m3 | m3 | 
| 94.00 | 87.11 | 4.00 | 1.30 | 2.70 | 376.00 | 235.20 | 
| External Walls | Floor | Ventilated Roof | |
|---|---|---|---|
| U [W/m2K]: 0.21 | U [W/m2K]: 0.28 | U [W/m2K]: 0.26 | |
| Thickness [m]: 0.28 | Thickness [m]: 0.62 | Thickness [m]: 0.22 | |
|  |  |  | |
| Stratigraphy | Stratigraphy | Stratigraphy | |
| (1) External plaster of Natural Hydraulic lime (NHL), 8 mm; (2) Cork panels, 60 mm; (3) Pressed wood chip panels 15 mm; (4) Rock wool panels 120 mm; (5) Pressed wood chip panels 15 mm; (6) Unventilated air 50 mm; (7) Internal plaster, 8 mm. | (1) Floor, 12 mm; (2) Steel sheet 2 mm; (3) Radial Alu G panel 38 mm; (4) Cork panels, 60 mm; (5) Vapour barrier 4 mm; (6) Concrete slab, 100 mm; (7) Waterproofing in PVC 3 mm; (8) Reinforced concrete slab 400 mm. | (1) Fir wood, 20 mm; (2) Vapour barrier in PVC 1 mm; (3) Cork panels 100 mm; (4) Fir wood, 30 mm; (5) Pressed wood chip panels 12 mm; (6) Waterproofing, 5 mm; (7) Canadian roof tile 50 mm. | |
| Windows (120 × 120) | Windows (220 × 180) | Windows (220 × 90) | Windows (120 × 60) | 
| UW [W/m2K]: 1.50 | UW [W/m2K]: 1.50 | UW [W/m2K]: 1.50 | UW [W/m2K]: 1.50 | 
| Thickness [m]: 120 × 120 | Thickness [m]: 220 × 180 | Thickness [m]: 220 × 90 | Thickness [m]: 120 × 60 | 
|  |  |  |  | 
| Stratigraphy | Stratigraphy | Stratigraphy | Stratigraphy | 
| (1) PVC frame; (2) Double-glazed window with an air gap in between layers | (1) PVC frame; (2) Double-glazed window with an air gap in between layers | (1) PVC frame; (2) Double-glazed window with an air gap in between layers | (1) PVC frame; (2) Double-glazed window with an air gap in between layers | 
| Type of Intervention | Technical Threshold Requirements | 
|---|---|
| Horizontal opaque structures: roof insulation (calculation according to UNI EN ISO 6946 standards) | ≤0.27 W/m2 K | 
| Horizontal opaque structures: floor insulation (calculation according to UNI EN ISO 6946 standards) | ≤0.30 W/m2 K | 
| Vertical opaque structures: insulation of perimeter walls (calculation according to UNI EN ISO 6946 standards) | ≤0.30 W/m2 K | 
| Replacement of windows including frames: (calculation according to UNI EN ISO 10077-1 standards) | ≤1.75 W/m2 K | 
| Building Element | U-Value Limit 2020 [W/m2 K] | U-Value Achieved [W/m2 K] | |
|---|---|---|---|
| 1 | External walls | ≤0.30 | 0.21 | 
| 2 | Roof | ≤0.27 | 0.22 | 
| 3 | Floor | ≤0.30 | 0.28 | 
| 4 | Windows | ≤1.75 | 1.50 | 
| Parameter | Biomass Fireplace Boiler (Thermofireplace) | Heat Pump Water Heater (HPWH—Haier) | |
|---|---|---|---|
| 1 | Application | Space heating + DHW | DHW only | 
| 2 | Fuel/Energy source | Solid biomass (pellet/wood) | Electricity | 
| 3 | Heat useful thermal output | Water | Water | 
| 4 | Storage volume | - | 200–300 L | 
| 5 | Nominal useful thermal output | 23.4 kW | 0.6 kW | 
| 6 | Electrical input | - | 0.2 kW | 
| 7 | Useful efficiency at 100% load | 91.8% (EN 303-5) | - | 
| 8 | COP | - | 2.60 (A15/W55, EN 16147) | 
| 9 | System role | Primary generator for space heating and DHW | Dedicated DHW production; complementary to biomass unit | 
| Parameter | Value | |
|---|---|---|
| 1 | Module type | Monocrystalline silicon | 
| 2 | Ventilation | Moderately ventilated | 
| 3 | Collector surface | 12.00 m2 | 
| 4 | Nominal peak power 8Wp) | 4.8 kW | 
| 5 | Orientation (Azimuth) | South | 
| 6 | Tilt (inclination) | Horizontal (p = 0°) | 
| 7 | Environmental reflection (albedo) | 0.20 | 
| 8 | Shading | None | 
| 9 | Annual irradiance on modules | 1765.7 kWh/m2 | 
| 10 | Annual PV output (Eel,pv,out) | 6356.67 kWh | 
| 11 | Monthly PV output (Eel,pv,out) | 240–754 kWh | 
| Month | E (kWh/m2) | |
|---|---|---|
| 1 | January | 80.43 | 
| 2 | February | 103.98 | 
| 3 | March | 146.16 | 
| 4 | April | 166.73 | 
| 5 | May | 203.29 | 
| 6 | June | 200.96 | 
| 7 | July | 208.67 | 
| 8 | August | 209.49 | 
| 9 | September | 151.38 | 
| 10 | October | 131.71 | 
| 11 | November | 96.06 | 
| 12 | December | 66.89 | 
| Month | Eel,pv (kWh) | |
|---|---|---|
| 1 | January | 289.54 | 
| 2 | February | 374.32 | 
| 3 | March | 526.16 | 
| 4 | April | 600.21 | 
| 5 | May | 731.86 | 
| 6 | June | 723.45 | 
| 7 | July | 751.23 | 
| 8 | August | 754.17 | 
| 9 | September | 544.97 | 
| 10 | October | 474.16 | 
| 11 | November | 345.82 | 
| 12 | December | 240.80 | 
| Scenario | EPgl | CO2 Assessment per Year | 
|---|---|---|
| kWh/m2 year | kg CO2/m2 year | |
| Bio Ecological Intervention | 37.30 | 0.30 | 
| Index | U.M. | Real Case Study | Reference Building | |
|---|---|---|---|---|
| 1 | H′T | W/m2 K | 0.317 | 0.550 | 
| 2 | Asol,est/Asup,utile | - | 0.017 | 0.030 | 
| 3 | EPH,nd | kWh/m2 | 15.87 | 25.58 | 
| 4 | EPC,nd | kWh/m2 | 28.63 | 29.02 | 
| 5 | EPW,nd | kWh/m2 | 15.48 | 15.48 | 
| 6 | H | - | 0.894 | 0.583 | 
| 7 | W | - | 0.793 | 0.490 | 
| 8 | EPH,nren | kWh/m2 | 3.45 | 8.77 | 
| 9 | EPH,ren | kWh/m2 | 14.30 | 35.08 | 
| 10 | EPH,tot | kWh/m2 | 17.75 | 43.85 | 
| 11 | EPH,nren | kWh/m2 | 3.64 | 6.32 | 
| 12 | EPH,ren | kWh/m2 | 15.88 | 25.27 | 
| 13 | EPH,tot | kWh/m2 | 19.52 | 31.59 | 
| 14 | EPgl,nren | kWh/m2 | 7.09 | 15.09 | 
| 15 | EPgl,ren | kWh/m2 | 30.18 | 60.35 | 
| 16 | EPgl,tot | kWh/m2 | 37.27 | 75.44 | 
| 17 | FERw | % | 81.35 | 60.00 | 
| 18 | FERgl | % | 80.97 | 60.00 | 
| Description | Amount Without VAT € | Amount with VAT € | Incidence % | 
|---|---|---|---|
| Demolitions | 2671 | 2938 | 2.67 | 
| Excavation, aggregates, backfilling | 4164 | 4580 | 4.16 | 
| Background works | 5344 | 5878 | 5.34 | 
| Foundation Plate | 17,190 | 18,909 | 17.18 | 
| Foundation Septa | 28,107 | 28,388 | 28.09 | 
| Structural stairs | 1788 | 1967 | 1.79 | 
| Plasterboard partitions | 2695 | 2964 | 2.69 | 
| False ceiling | 2031 | 2234 | 2.03 | 
| Roof | 11,498 | 12,648 | 11.49 | 
| Interior finishes | 2418 | 2660 | 2.42 | 
| External finishes | 1237 | 1361 | 1.24 | 
| Stairs | 3152 | 3467 | 3.15 | 
| External plinth base | 1145 | 1260 | 1.14 | 
| Tinsmith’s works | 582 | 640 | 0.58 | 
| Electrical-data system | 7861 | 8647 | 7.86 | 
| Water and sanitation system | 3181 | 3499 | 3.18 | 
| Construction site safety | 5002 | 5502 | 5.00 | 
| Total SISMA interventions | 100,066 | 107,542 | 100.00 | 
| Description | Amount Without VAT € | Amount with VAT € | Incidence % | 
|---|---|---|---|
| DRIVING | |||
| Infill walls package | 28,401 | 35,727 | 39.41 | 
| Radiant floor package | 18,487 | 20,309 | 25.66 | 
| 5-star biomass fuel heat generators | 7616 | 8278 | 10.57 | 
| Sloped Cover Package | 16,426 | 18,070 | 22.80 | 
| Electric water heater in heat pump | 1129 | 1242 | 1.57 | 
| Total ECO Driving interventions | 72,059 | 83,626 | 100.00 | 
| TRAILING | |||
| Replacement windows + shutters | 16,434 | 18,077 | 57.40 | 
| External chimney (in masonry and internal prefabricated elements in stainless steel | 4045 | 4450 | 14.13 | 
| Supply and installation of photovoltaic system | 8153 | 8968 | 28.48 | 
| Total ECO Trailing interventions | 28,632 | 31,495 | 100.00 | 
| Total ECO interventions (driving and trailing) | 104,635 | 115,121 | - | 
| Intervention | Description | Amount with VAT € | Maximum Allowable Expenditure € | Surplus Expense € | 
|---|---|---|---|---|
| SISMABONUS | Antiseismic | 107,542 | 96,000 | 47,298 | 
| Professional technical services | 32,828 | |||
| Professional services accountant | 2928 | |||
| SISMA TOTAL | 143,298 | |||
| ECOBONUS | ||||
| DRIVING | Infill walls package | 35,727 | 50,000 | 35,349 | 
| Radiant floor package | 20,309 | |||
| 5-star biomass fuel heat generators | 8278 | |||
| Sloped Roof Package | 18,070 | |||
| Electric water heater in heat pump | 1242 | |||
| TRAILING | Replacement windows + shutters | 18,077 | 60,394 | |
| External masonry flue and internal prefabricated stainless-steel elements | 4450 | |||
| Supply and installation of photovoltaic system | 8968 | |||
| Professional technical services | 28,060 | |||
| Professional services accountant | 2562 | |||
| TOTAL ECO interventions | 145,743 | |||
| 289,041 | 206,394 | 82,647 | 
| Disclaimer/Publisher’s Note: The statements, opinions and data contained in all publications are solely those of the individual author(s) and contributor(s) and not of MDPI and/or the editor(s). MDPI and/or the editor(s) disclaim responsibility for any injury to people or property resulting from any ideas, methods, instructions or products referred to in the content. | 
© 2025 by the authors. Licensee MDPI, Basel, Switzerland. This article is an open access article distributed under the terms and conditions of the Creative Commons Attribution (CC BY) license (https://creativecommons.org/licenses/by/4.0/).
Share and Cite
Musolino, M.; Massimo, D.E.; Calabrò, F.; Errigo, R. Green Building Renovation Through the Benefits of the 110% Superbonus: Process, Technical and Economic-Appraisal Aspects. Sustainability 2025, 17, 9566. https://doi.org/10.3390/su17219566
Musolino M, Massimo DE, Calabrò F, Errigo R. Green Building Renovation Through the Benefits of the 110% Superbonus: Process, Technical and Economic-Appraisal Aspects. Sustainability. 2025; 17(21):9566. https://doi.org/10.3390/su17219566
Chicago/Turabian StyleMusolino, Mariangela, Domenico Enrico Massimo, Francesco Calabrò, and Roberta Errigo. 2025. "Green Building Renovation Through the Benefits of the 110% Superbonus: Process, Technical and Economic-Appraisal Aspects" Sustainability 17, no. 21: 9566. https://doi.org/10.3390/su17219566
APA StyleMusolino, M., Massimo, D. E., Calabrò, F., & Errigo, R. (2025). Green Building Renovation Through the Benefits of the 110% Superbonus: Process, Technical and Economic-Appraisal Aspects. Sustainability, 17(21), 9566. https://doi.org/10.3390/su17219566
 
        



 
       