Development of Real-Time IoT-Based Air Quality Forecasting System Using Machine Learning Approach
Abstract
1. Introduction
2. Materials and Methods
2.1. System Architecture of Air Quality Monitoring and Forecasting Device
- Ip: Sub-index value for pollutant p;
- Cp: Observed concentration of pollutant p;
- BPHi: The breakpoint concentration greater than or equal to Cp;
- BPLo: The breakpoint concentration less than or equal to Cp;
- IHi: AQI value corresponding to BPHi;
- ILo: AQI value corresponding to BPLo.
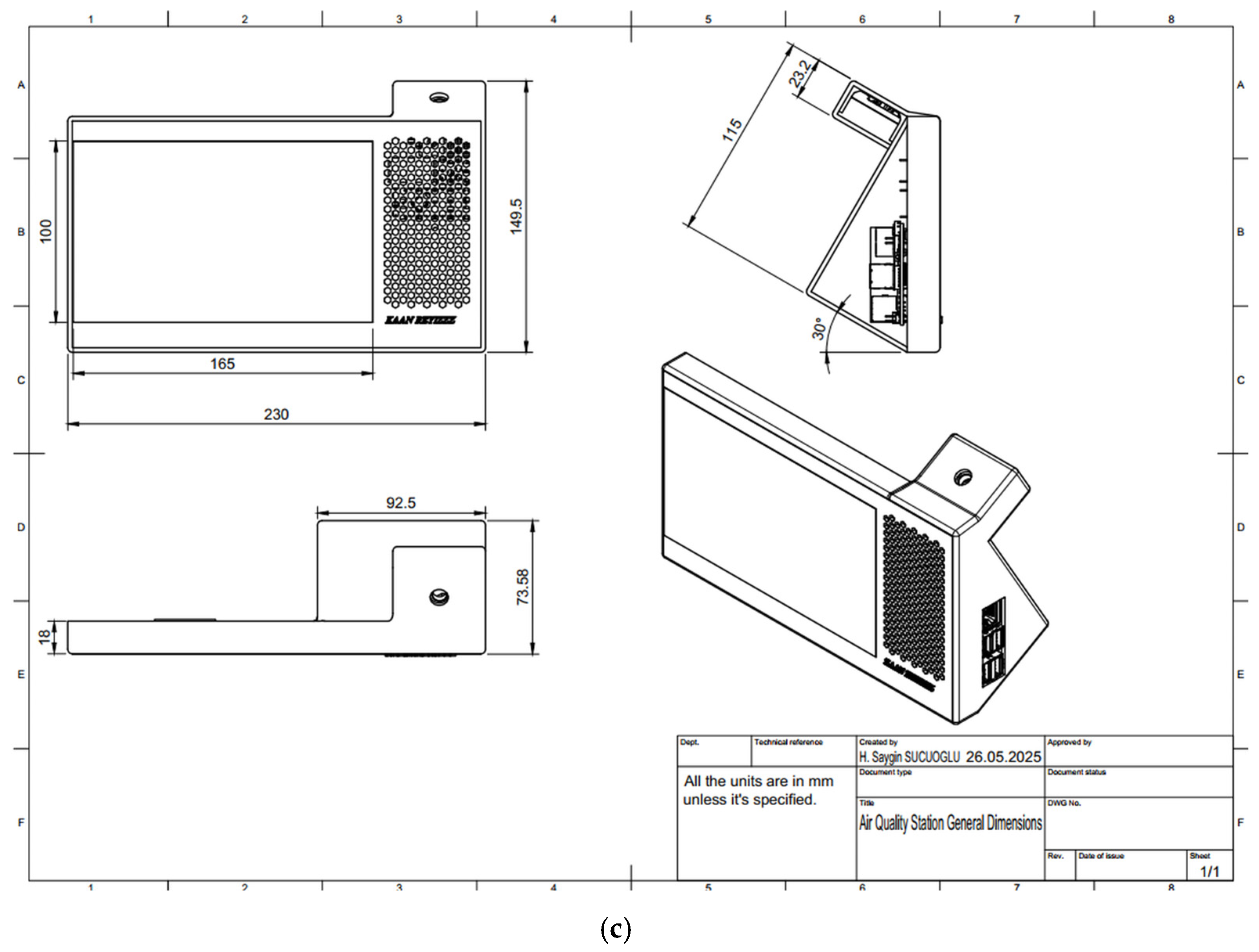
2.2. Structure Design of the Air Quality Monitoring and Forecasting System Device
2.3. Prototyping and Assembly of the Device
2.4. Data Acquisition
2.4.1. Sensor Network and Sampling
2.4.2. Edge-Cloud Data Path
2.4.3. On-Device Calibration
- MQ-7—24 h outdoor exposure, followed by two-point calibration (0 ppm and 50 ppm span);
- GP2Y10—zero-check with HEPA-filtered air and span verification at 200 µg/m3 synthetic dust;
- ENS160—factory-supplied calibration curves; cross-checked against a benchtop NDIR meter.
2.4.4. Pre-Processing Pipeline
- Missing values: forward-fill (LOCF) for ≤5 consecutive samples; longer gaps are flagged;
- Outlier removal: Z-score filtering (|z| > 3);
- Smoothing: 5 min centered moving average to attenuate sensor noise;
- Feature synthesis: pollutant-specific sub-indices computed with the CPCB/US-EPA break-point formula; the maximum sub-index becomes the target AQI label.
2.5. Training Strategy
2.5.1. Feature Engineering
- Lag terms t − 1, t − 3, t − 6 h (capturing short-range persistence);
- Rolling statistics over 1 h (mean, median, variance);
- Day-of-week and hour-of-day one-hot encodings (capturing periodicity).
2.5.2. Model Portfolio
2.5.3. Training Pipeline
3. Results and Discussion
3.1. Forecast Accuracy on Short Horizons
3.2. Agreement with Health-Based AQI Categories
3.3. Influence of Sensor Selection
3.4. Comparison with Recent Literature
3.5. Major Contributions and Insights
- Real-time operability—Edge latency (<130 ms) enables minute-by-minute updates without throttling the Raspberry Pi 5, meeting WHO dashboard guidelines;
- Hardware resilience—Sensor ranges (Table 2) comfortably exceed worst-case urban episodes, preventing saturation and false reassurance during wild-fire smoke events;
- Energy footprint—GRU inference adds <150 mW to the 4 W node budget, permitting solar-cell or battery operation;
- Scalability—Because only a 1.4 MB TFLite artefact is hot-swapped nightly, dozens of nodes can be updated simultaneously over LoRaWAN back-haul.
4. Conclusions
Author Contributions
Funding
Institutional Review Board Statement
Informed Consent Statement
Data Availability Statement
Conflicts of Interest
References
- Kumar, P.; Rivas, I.; Singh, A.P.; Ganesh, V.J.; Ananya, M.; Frey, H.C. Dynamics of Coarse and Fine Particle Exposure in Transport Microenvironments. NPJ Clim. Atmos. Sci. 2018, 1, 11. [Google Scholar] [CrossRef]
- Ghorani-Azam, A.; Riahi-Zanjani, B.; Balali-Mood, M. Effects of Air Pollution on Human Health and Practical Measures for Prevention in Iran. J. Res. Med. Sci. 2016, 21, 65. [Google Scholar] [CrossRef]
- He, G.; Fan, M.; Zhou, M. The Effect of Air Pollution on Mortality in China: Evidence from the 2008 Beijing Olympic Games. J. Environ. Econ. Manag. 2016, 79, 18–39. [Google Scholar] [CrossRef]
- Costs of Air Pollution from European Industrial Facilities 2008–2012. Available online: https://www.eea.europa.eu/en/analysis/publications/costs-of-air-pollution-2008-2012 (accessed on 22 June 2025).
- Heal, M.R.; Kumar, P.; Harrison, R.M. Particles, Air Quality, Policy and Health. Chem. Soc. Rev. 2012, 41, 6606–6630. [Google Scholar] [CrossRef] [PubMed]
- Rickenbacker, H.; Brown, F.; Bilec, M. Creating Environmental Consciousness in Underserved Communities: Implementation and Outcomes of Community-Based Environmental Justice and Air Pollution Research. Sustain. Cities Soc. 2019, 47, 101473. [Google Scholar] [CrossRef]
- Williams, R.; Kilaru, V.; Snyder, E.; Kaufman, A.; Dye, T.; Rutter, A.; Russell, A.; Hafner, H. Air Sensor Guidebook; US Environmental Protection Agency: Washington, DC, USA, 2014. [Google Scholar]
- US EPA. NAAQS Table. Available online: https://www.epa.gov/criteria-air-pollutants/naaqs-table (accessed on 22 June 2025).
- Technical Assistance Document for the Reporting of Daily Air Quality|AirNow.Gov. Available online: https://www.airnow.gov/publications/air-quality-index/technical-assistance-document-for-reporting-the-daily-aqi/ (accessed on 17 May 2025).
- Concas, F.; Mineraud, J.; Lagerspetz, E.; Varjonen, S.; Liu, X.; Puolamäki, K.; Nurmi, P.; Tarkoma, S. Low-Cost Outdoor Air Quality Monitoring and Sensor Calibration: A Survey and Critical Analysis. ACM Trans. Sens. Netw. 2021, 17, 20. [Google Scholar] [CrossRef]
- Irawan, Y.; Wahyuni, R.; Fonda, H.; Hamzah, M.L.; Muzawi, R. Real Time System Monitoring and Analysis-Based Internet of Things (IoT) Technology in Measuring Outdoor Air Quality. Int. J. Interact. Mob. Technol. 2021, 15. [Google Scholar] [CrossRef]
- Kang, J.; Hwang, K.-I. A Comprehensive Real-Time Indoor Air-Quality Level Indicator. Sustainability 2016, 8, 881. [Google Scholar] [CrossRef]
- Kim, D.Y.; Kwoun, J.; Lee, T.J. Development of Indoor Air Quality Index for Vulnerable Group-Use Facilities. SSRN Electron. J. 2022. [Google Scholar] [CrossRef]
- Al-Zaheiree, A.A.; AL-Zubaidi, Y.A.T.; Gaikwad, S.S.; Kamat, R.K. Advanced Air Pollution Detection Using IOT and Raspberry PI. Int. J. Recent Technol. Eng. 2020, 8, 5390–5394. [Google Scholar] [CrossRef]
- Kamble, M.K.T.; Khatake, M.A.V.; Ghadyalji, M.A.C.; Chounde, A.B. IOT Based Air Pollution Monitoring System Using Raspberry Pi. Int. J. Adv. Res. Sci. Commun. Technol. 2022, 2, 332–336. [Google Scholar] [CrossRef]
- Li, H.; Guo, H.; Zhai, Z.J. Evaluating the Effectiveness of Ventilation Strategies in Mitigating Short-Term and High-Concentration Indoor Pollutants within a Typical Apartment Building. Build. Environ. 2025, 270, 112520. [Google Scholar] [CrossRef]
- Christakis, I.; Sarri, E.; Tsakiridis, O.; Moutzouris, K.; Triantis, D.; Stavrakas, I. Integrated Open Source Indoor Air Quality Monitoring Platform. In Proceedings of the 2024 9th South-East Europe Design Automation, Computer Engineering, Computer Networks and Social Media Conference (SEEDA-CECNSM), Egaleo, Greece, 20–22 September 2024; IEEE: Piscataway, NJ, USA, 2024; pp. 183–188. [Google Scholar]
- Sung, W.-T.; Hsiao, S.-J. Building an Indoor Air Quality Monitoring System Based on the Architecture of the Internet of Things. J. Wirel. Commun. Netw. 2021, 2021, 153. [Google Scholar] [CrossRef]
- Samad, A.; Kieser, J.; Chourdakis, I.; Vogt, U. Developing a Cloud-Based Air Quality Monitoring Platform Using Low-Cost Sensors. Sensors 2024, 24, 945. [Google Scholar] [CrossRef]
- Kumar, S.; Jasuja, A. Air Quality Monitoring System Based on IoT Using Raspberry Pi. In Proceedings of the 2017 International Conference on Computing, Communication and Automation (ICCCA), Greater Noida, India, 5–6 May 2017; IEEE: Piscataway, NJ, USA, 2017; pp. 1341–1346. [Google Scholar]
- Jabbar, W.A.; Subramaniam, T.; Ong, A.E.; Shu’Ib, M.I.; Wu, W.; De Oliveira, M.A. LoRaWAN-Based IoT System Implementation for Long-Range Outdoor Air Quality Monitoring. Internet Things 2022, 19, 100540. [Google Scholar] [CrossRef]
- Deepa, S.; Mohan, A.D.; Nikil, A.; Rajeshprabha, R. Smart Air Purifier and AQI Monitoring System. In Proceedings of the 2024 International Conference on IoT, Communication and Automation Technology (ICICAT), Gorakhpur, India, 23–24 November 2024; IEEE: Piscataway, NJ, USA, 2024; pp. 192–195. [Google Scholar]
- Talati, I.; Shah, K.J.; Patel, O.; Tanna, I.; Iain, A.; Oza, A.D.; Yadav, A.A.; Alshayeb, M.I.; Khan, M.A.; Islam, S. Study of AQI Monitoring System of Indoor Environment Using Machine Learning Model and IoT Device. Rocz. Ochr. Środowiska 2025, 27, 152–163. [Google Scholar] [CrossRef]
- Mohammed, S.K.; Kamruzzaman, S.M.; Ahmed, A.; Hoque, A.; Shabnam, F. Design and Implementation of an Iot Based Forest Environment Monitoring System. In Proceedings of the 2019 IEEE 5th International Conference on Computer and Communications (ICCC), Chengdu, China, 6–9 December 2019; IEEE: Piscataway, NJ, USA, 2019; pp. 2152–2156. [Google Scholar]
- Zhang, H.; Srinivasan, R. A Systematic Review of Air Quality Sensors, Guidelines, and Measurement Studies for Indoor Air Quality Management. Sustainability 2020, 12, 9045. [Google Scholar] [CrossRef]
- Karagulian, F.; Barbiere, M.; Kotsev, A.; Spinelle, L.; Gerboles, M.; Lagler, F.; Redon, N.; Crunaire, S.; Borowiak, A. Review of the Performance of Low-Cost Sensors for Air Quality Monitoring. Atmosphere 2019, 10, 506. [Google Scholar] [CrossRef]
- Saini, J.; Dutta, M.; Marques, G. Sensors for Indoor Air Quality Monitoring and Assessment through Internet of Things: A Systematic Review. Environ. Monit. Assess. 2021, 193, 66. [Google Scholar] [CrossRef]
- Aini, Q.; Rahardja, U.; Manongga, D.; Sembiring, I.; Hardini, M.; Agustian, H. Iot-Based Indoor Air Quality Using Esp32. In Proceedings of the 2022 IEEE Creative Communication and Innovative Technology (ICCIT), Tangerang, Indonesia, 22–23 November 2022; IEEE: Piscataway, NJ, USA, 2022; pp. 1–5. [Google Scholar]
- Castelli, M.; Clemente, F.M.; Popovič, A.; Silva, S.; Vanneschi, L. A Machine Learning Approach to Predict Air Quality in California. Complexity 2020, 2020, 8049504. [Google Scholar] [CrossRef]
- Bhattacharya, S.; Shahnawaz, S. Using Machine Learning to Predict Air Quality Index in New Delhi. arXiv 2021, arXiv:2112.05753. [Google Scholar] [CrossRef]
- Liu, H.; Li, Q.; Yu, D.; Gu, Y. Air Quality Index and Air Pollutant Concentration Prediction Based on Machine Learning Algorithms. Appl. Sci. 2019, 9, 4069. [Google Scholar] [CrossRef]
- Alzu’bi, F.; Al-Rawabdeh, A.; Almagbile, A. Predicting Air Quality Using Random Forest: A Case Study in Amman-Zarqa. Egypt. J. Remote Sens. Space Sci. 2024, 27, 604–613. [Google Scholar] [CrossRef]
- Liang, Y.-C.; Maimury, Y.; Chen, A.H.-L.; Juarez, J.R.C. Machine Learning-Based Prediction of Air Quality. Appl. Sci. 2020, 10, 9151. [Google Scholar] [CrossRef]
- Farooq, O.; Shahid, M.; Arshad, S.; Altaf, A.; Iqbal, F.; Vera, Y.A.M.; Flores, M.A.L.; Ashraf, I. An Enhanced Approach for Predicting Air Pollution Using Quantum Support Vector Machine. Sci. Rep. 2024, 14, 19521. [Google Scholar] [CrossRef]
- Janarthanan, R.; Partheeban, P.; Somasundaram, K.; Navin Elamparithi, P. A Deep Learning Approach for Prediction of Air Quality Index in a Metropolitan City. Sustain. Cities Soc. 2021, 67, 102720. [Google Scholar] [CrossRef]
- Drewil, G.I.; Al-Bahadili, R.J. Air Pollution Prediction Using LSTM Deep Learning and Metaheuristics Algorithms. Meas. Sens. 2022, 24, 100546. [Google Scholar] [CrossRef]
- Wu, Q.; Lin, H. A Novel Optimal-Hybrid Model for Daily Air Quality Index Prediction Considering Air Pollutant Factors. Sci. Total Environ. 2019, 683, 808–821. [Google Scholar] [CrossRef]
- Rollo, F.; Bachechi, C.; Po, L. Anomaly Detection and Repairing for Improving Air Quality Monitoring. Sensors 2023, 23, 640. [Google Scholar] [CrossRef]
- Ketu, S.; Mishra, P.K. Scalable Kernel-Based SVM Classification Algorithm on Imbalance Air Quality Data for Proficient Healthcare. Complex Intell. Syst. 2021, 7, 2597–2615. [Google Scholar] [CrossRef]
- Samartha, S.; Prateek, M.G.; Ruchi, A.; Pallavi, B. Air Quality Monitoring and Forecasting Using IoT and ML: A Survey on Methodologies and Challenges. Int. J. Nov. Res. Dev. 2023, 8, b450–b455. [Google Scholar]
- Neo, E.X.; Hasikin, K.; Lai, K.W.; Mokhtar, M.I.; Azizan, M.M.; Hizaddin, H.F.; Razak, S.A. Yanto Artificial Intelligence-Assisted Air Quality Monitoring for Smart City Management. PeerJ Comput. Sci. 2023, 9, e1306. [Google Scholar] [CrossRef]
- Yang, R.; Yuan, Z.; Jiang, C.; Zhang, X.; Qiao, Z.; Zhang, J.; Liang, J.; Wang, S.; Duan, Z.; Wu, Y.; et al. Ultrafast Hydrogen Detection System Using Vertical Thermal Conduction Structure and Neural Network Prediction Algorithm Based on Sensor Response Process. ACS Sens. 2025, 10, 2181–2190. [Google Scholar] [CrossRef] [PubMed]
- Zong, B.; Wu, S.; Yang, Y.; Li, Q.; Tao, T.; Mao, S. Smart Gas Sensors: Recent Developments and Future Prospective. Nano-Micro Lett. 2025, 17, 54. [Google Scholar] [CrossRef] [PubMed]
- DFRobot DHT11 Humidity & Temperature Sensor. Available online: https://www.mouser.com/datasheet/2/758/DHT11-Technical-Data-Sheet-Translated-Version-1143054.pdf (accessed on 22 June 2025).
- Hanwei Electronics Co., Ltd. MQ-7 Gas Sensor Technical Data. Available online: https://cdn.sparkfun.com/assets/b/b/b/3/4/MQ-7.pdf (accessed on 22 June 2025).
- ScioSense ENS160 Digital Metal-Oxide Multi-Gas Sensor. Available online: https://dfimg.dfrobot.com/nobody/wiki/cbe10f01b67c3fee6d365039eb54f52c.pdf (accessed on 22 June 2025).
- Sharp Application Note of Sharp Dust Sensor GP2Y1010AU0F. Available online: https://www.socle-tech.com/SHARP_sensor_Dust%20Sensor.php (accessed on 22 June 2025).
- Yan, Y.; Li, Y.; Sun, M.; Wu, Z. Primary Pollutants and Air Quality Analysis for Urban Air in China: Evidence from Shanghai. Sustainability 2019, 11, 2319. [Google Scholar] [CrossRef]
- Chen, J.; Li, C.; Ristovski, Z.; Milic, A.; Gu, Y.; Islam, M.S.; Wang, S.; Hao, J.; Zhang, H.; He, C. A Review of Biomass Burning: Emissions and Impacts on Air Quality, Health and Climate in China. Sci. Total Environ. 2017, 579, 1000–1034. [Google Scholar] [CrossRef]
- Pamonpol, K.; Areerob, T.; Prueksakorn, K. Indoor Air Quality Improvement by Simple Ventilated Practice and Sansevieria Trifasciata. Atmosphere 2020, 11, 271. [Google Scholar] [CrossRef]
- Tran, V.V.; Park, D.; Lee, Y.-C. Indoor Air Pollution, Related Human Diseases, and Recent Trends in the Control and Improvement of Indoor Air Quality. Int. J. Environ. Res. Public Health 2020, 17, 2927. [Google Scholar] [CrossRef]
- Yang, X.; Yang, L.; Zhang, J. A WiFi-Enabled Indoor Air Quality Monitoring and Control System: The Design and Control Experiments. In Proceedings of the 2017 13th IEEE International Conference on Control & Automation (ICCA), Ohrid, Macedonia, 3–6 July 2017; IEEE: Piscataway, NJ, USA, 2017; pp. 927–932. [Google Scholar]
- Lachhab, F.; Bakhouya, M.; Ouladsine, R.; Essaaidi, M. Context-Driven Monitoring and Control of Buildings Ventilation Systems Using Big Data and Internet of Things–Based Technologies. Proc. Inst. Mech. Eng. Part I J. Syst. Control Eng. 2019, 233, 276–288. [Google Scholar] [CrossRef]
- Taştan, M.; Gökozan, H. Real-Time Monitoring of Indoor Air Quality with Internet of Things-Based E-Nose. Appl. Sci. 2019, 9, 3435. [Google Scholar] [CrossRef]
- Martín-Garín, A.; Millán-García, J.A.; Baïri, A.; Millán-Medel, J.; Sala-Lizarraga, J.M. Environmental Monitoring System Based on an Open Source Platform and the Internet of Things for a Building Energy Retrofit. Autom. Constr. 2018, 87, 201–214. [Google Scholar] [CrossRef]
- EN 15267-1:2007; Air Quality—Certification of Automated Measuring Systems—Part 1: General Principles. European Committee for Standardization (CEN): Brussels, Belgium, 2007.
- Umweltbundesamt. Available online: https://www.umweltbundesamt.de (accessed on 22 June 2025).
- Winkler, N.P.; Neumann, P.P.; Schaffernicht, E.; Lilienthal, A.; Poikkimäki, M.; Kangas, A.; Säämänen, A. Gather Dust and Get Dusted: Long-Term Drift and Cleaning of Sharp GP2Y1010AU0F Dust Sensor in a Steel Factory. In Proceedings of the 38th Danubia-Adria Symposium on Advances in Experimental Mechanics, Poros Island, Greece, 20–23 September 2022. [Google Scholar]
- Kobbekaduwa, N.; Oruthota, P.; De Mel, W.R. Calibration and Implementation of Heat Cycle Requirement of MQ-7 Semiconductor Sensor for Detection of Carbon Monoxide Concentrations. 2021. Available online: http://dr.lib.sjp.ac.lk/handle/123456789/10401 (accessed on 22 June 2025).
- Pietraru, R.N.; Nicolae, M.; Mocanu, Ș.; Merezeanu, D.-M. Easy-to-Use MOX-Based VOC Sensors for Efficient Indoor Air Quality Monitoring. Sensors 2024, 24, 2501. [Google Scholar] [CrossRef]
- Kurnia, D.; Hadisantoso, F.S.; Suprianto, A.A.; Nugroho, E.A.; Janizal, J. Real-Time Air Quality Index Monitoring Experiments Using SDS011 Sensors and Raspberry Pi. IOP Conf. Ser. Mater. Sci. Eng. 2021, 1098, 042090. [Google Scholar] [CrossRef]
- Das, S.; Singh, K.; Kaur, K. Air Quality Prediction in Beijing: Machine and Deep Learning Analysis. In ITM Web of Conferences; EDP Sciences: Les Ulis, France, 2024; Volume 68, p. 01012. [Google Scholar]
- Zhou, H.; Wang, T.; Zhao, H.; Wang, Z. Updated Prediction of Air Quality Based on Kalman-Attention-LSTM Network. Sustainability 2022, 15, 356. [Google Scholar] [CrossRef]
- Ulpiani, G.; Duhirwe, P.N.; Yun, G.Y.; Lipson, M.J. Meteorological Influence on Forecasting Urban Pollutants: Long-Term Predictability versus Extreme Events in a Spatially Heterogeneous Urban Ecosystem. Sci. Total Environ. 2022, 814, 152537. [Google Scholar] [CrossRef]













| PM2.5 (μg/m3) 24-h | (ppm) 8-h | AQI | Category |
|---|---|---|---|
| 0.0–9.0 | 0.0–4.4 | 0–50 | Good |
| 9.1–35.4 | 4.5–9.4 | 51–100 | Moderate |
| 35.5–55.4 | 9.5–12.4 | 101–150 | Unhealthy for Sensitive Groups |
| (55.5–125.4)3 | 12.5–15.4 | 151–200 | Unhealthy |
| (125.5–225.4)3 | 15.5–30.4 | 201–300 | Very unhealthy |
| 225.5+ | 30.5+ | 301+ | Hazardous |
| Sensor | Parameters | Nominal Range | Operating Conditions |
|---|---|---|---|
| DHT11 [44] | Temp, Hum | Temp = 0–50 °C; Hum = 20–90% RH | Temp = 0 to 50 °C; Hum = 20% to 90% |
| MQ-7 [45] | 20–2000 ppm | Temp = −20 °C to 50 °C; Hum = <95% RH | |
| Gravity ENS160 [46] | TVOCs, e | 0–65,000 ppb, 400–65,000 ppm | Temp = −40 °C to 85 °C; Hum = 5% to 95% |
| GP2Y10 Dust Sensor [47] | PM2.5 | 0–600 ug/m3 | Temp = −10 °C to +65 °C |
| Model | Rationale | Key Hyper-Parameters |
|---|---|---|
| Stacking Ensemble (RF + SVR + XGB → LR meta) | Combines heterogeneous inductive biases; robust to non-stationarity | n estimators = 50–300; learning-rate = 0.05–1 |
| AdaBoost.R2 | Excels at bias reduction on noisy short horizons | n estimators = 50–300; learning-rate = 0.05–1 |
| LSTM | Captures temporal dependencies without manual lags | 1–2 layers × 32–64 cells; dropout = 0.2 |
| GRU | Fewer parameters, comparable accuracy to LSTM | Same grid as LSTM |
| Feature Type | Features | Description |
|---|---|---|
| Pollutant concentrations | PM2.5, , , TVOC | Hourly mean pollutant levels measured by sensors |
| Meteorological variables | Temperature, Relative Humidity | Hourly averages recorded by DHT11 sensor |
| Temporal flags | Hour-of-day, Day-of-week | One-hot encoded categorical features |
| Derived statistics | Lag terms (t − 1, t − 3, t − 6), rolling mean, variance | Capture short-term temporal persistence and variability |
| Target label | AQI Category (Good, Moderate, USG, Unhealthy, Very Unhealthy/Hazardous) | Derived from synchronous EN 15267-certified TSM-17 reference station data using CPCB/US-EPA breakpoints |
| Model | +30 min | +60 min | ||||||
|---|---|---|---|---|---|---|---|---|
| MAE | RMSE | MAD | MAE | RMSE | MAD | |||
| Stacking (RF + SVR + XGB) | 5.8 | 8.5 | 0.93 | 7.2 | 10.9 | 15.1 | 0.78 | 13.8 |
| AdaBoost.R2 | 6.1 | 9.0 | 0.91 | 7.5 | 11.6 | 15.9 | 0.75 | 14.5 |
| LSTM | 5.7 | 8.4 | 0.93 | 7.0 | 9.9 | 13.8 | 0.82 | 12.6 |
| GRU | 5.6 | 8.2 | 0.94 | 6.9 | 10.2 | 14.3 | 0.81 | 12.9 |
| AQI Category | Precision | Recall | F1-Score |
|---|---|---|---|
| Good | 0.93 | 0.96 | 0.94 |
| Moderate | 0.89 | 0.84 | 0.86 |
| Unhealthy for Sensitive Groups | 0.82 | 0.79 | 0.80 |
| Unhealthy | 0.87 | 0.71 | 0.78 |
| Very unhealthy | 0.90 | 0.65 | 0.75 |
| Macro avg | 0.88 | 0.79 | 0.83 |
| Weighted avg | 0.91 | 0.91 | 0.90 |
| TVOCs (ppb) | (ppm) | AQI | Category |
|---|---|---|---|
| <50 | 400–600 | 1 | Excellent |
| 600–800 | 2 | Good | |
| 50–750 | 800–1000 | 3 | Moderate |
| 750–6000 | 1000–1500 | 4 | Poor |
| >6000 | >1500 | 5 | Unhealthy |
Disclaimer/Publisher’s Note: The statements, opinions and data contained in all publications are solely those of the individual author(s) and contributor(s) and not of MDPI and/or the editor(s). MDPI and/or the editor(s) disclaim responsibility for any injury to people or property resulting from any ideas, methods, instructions or products referred to in the content. |
© 2025 by the authors. Licensee MDPI, Basel, Switzerland. This article is an open access article distributed under the terms and conditions of the Creative Commons Attribution (CC BY) license (https://creativecommons.org/licenses/by/4.0/).
Share and Cite
Yildiz, O.; Sucuoglu, H.S. Development of Real-Time IoT-Based Air Quality Forecasting System Using Machine Learning Approach. Sustainability 2025, 17, 8531. https://doi.org/10.3390/su17198531
Yildiz O, Sucuoglu HS. Development of Real-Time IoT-Based Air Quality Forecasting System Using Machine Learning Approach. Sustainability. 2025; 17(19):8531. https://doi.org/10.3390/su17198531
Chicago/Turabian StyleYildiz, Onem, and Hilmi Saygin Sucuoglu. 2025. "Development of Real-Time IoT-Based Air Quality Forecasting System Using Machine Learning Approach" Sustainability 17, no. 19: 8531. https://doi.org/10.3390/su17198531
APA StyleYildiz, O., & Sucuoglu, H. S. (2025). Development of Real-Time IoT-Based Air Quality Forecasting System Using Machine Learning Approach. Sustainability, 17(19), 8531. https://doi.org/10.3390/su17198531

