Sustainable Natural Ventilation Strategies for Acceptable Indoor Air Quality: An Experimental and Simulated Study in a Small Office During the Winter Season
Abstract
1. Introduction
2. Research Objectives
3. Methods
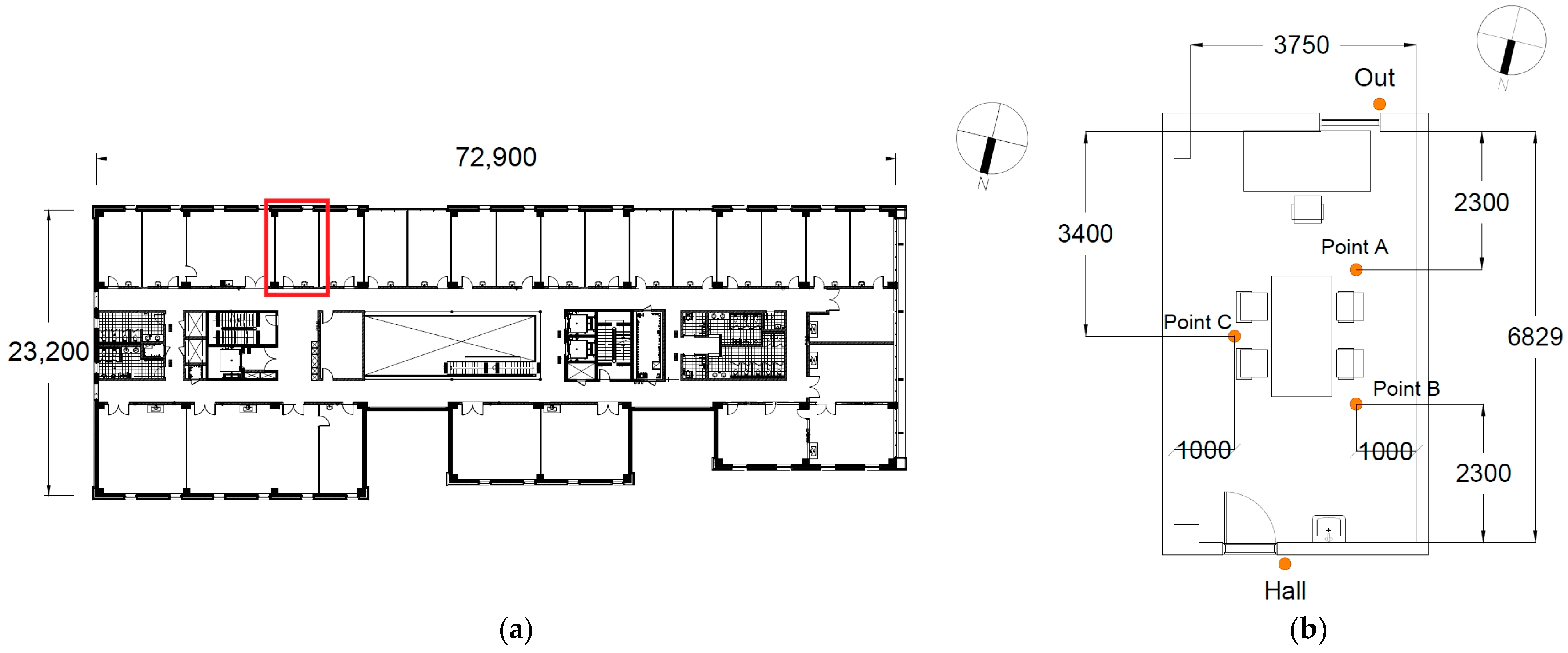
3.1. Space of Test Subject
3.2. Measurement Method
3.2.1. Measuring Points and Measuring Elements
3.2.2. Experiment Schedule
3.3. Development of a CO2 Concentration Prediction Simulation Program
3.3.1. A CO2 Concentration Prediction Simulation Program Based on First-Order Differential Equation
3.3.2. Validation of the Simulation Program
4. Result
4.1. Results of the Simulation Program Reliability Validation
4.1.1. Simulation Verification Through Experiment 1
4.1.2. Simulation Verification Through Experiment 2
4.1.3. Air Changes per Hour (ACH) Derived from the Simulation Program
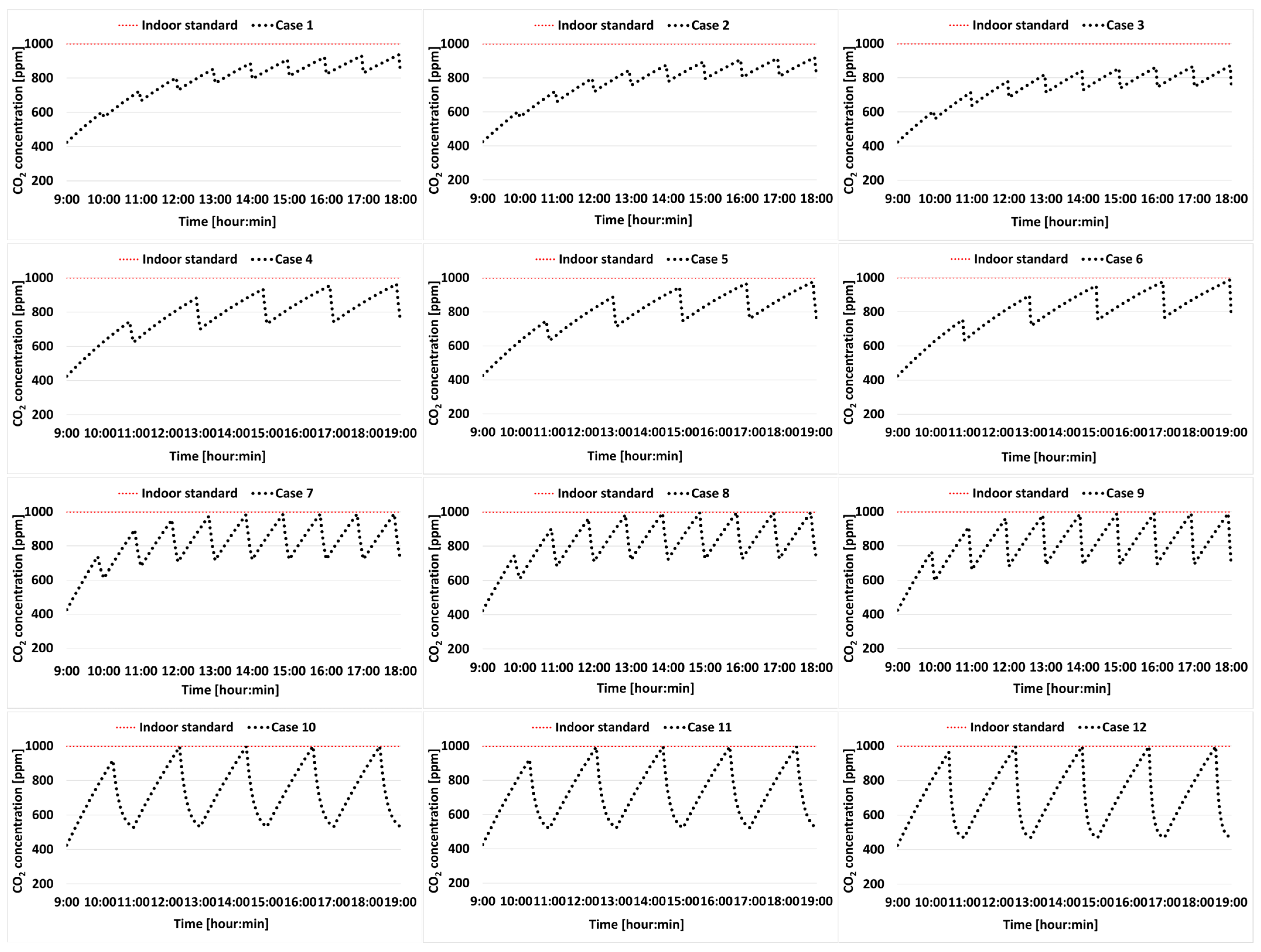
4.2. Analysis Results of Appropriate Ventilation Method for Each Case
4.3. Development of Natural Ventilation Time Correlation Equation
4.3.1. Proposal of a Predictive Equation
4.3.2. Case Selection and Analysis Results for Predicting Ventilation Time
4.3.3. Regression Analysis Results
5. Conclusions
- (1)
- In this study, a simulation program was developed to predict indoor CO2 concentrations based on a mass balance equation. The program’s reliability was validated using ASHRAE Guideline 14 by comparing it with measured values from two experiments, resulting in CV(RMSE) values of 4.69% and 7.00%, respectively, thereby demonstrating its reliability.
- (2)
- For a single occupant over a 1 h period, it was seen that indoor CO2 concentration does not exceed 1000 ppm under the following conditions: 57 min of occupancy and 3 min of ventilation using the door, 57 min of occupancy and 3 min of ventilation using the window, or 58 min of occupancy and 2 min of ventilation using both the door and window simultaneously.
- (3)
- Under the same single-occupant scenario, for a two-hour period, the analysis showed that with ventilation through a door, 113 min of occupancy and 7 min of ventilation, with ventilation through a window, 114 min of occupancy and 6 min of ventilation, and with simultaneous ventilation through both a door and a window, 117 min of occupancy and 3 min of ventilation, the indoor CO2 concentration does not exceed 1000 ppm.
- (4)
- For a scenario with two occupants, the analysis revealed that with ventilation through a door, 50 min of occupancy and 10 min of ventilation per hour, with ventilation through a window, 51 min of occupancy and 9 min of ventilation per hour, and with simultaneous ventilation through both a door and a window, 55 min of occupancy and 5 min of ventilation per hour, the indoor CO2 concentration does not exceed 1000 ppm.
- (5)
- In the two-occupants scenario for a two-hour interval, the analysis indicated that with ventilation through a door, 83 min of occupancy and 37 min of ventilation, with ventilation through a window, 84 min of occupancy and 36 min of ventilation, and with simultaneous ventilation through both a door and a window, 92 min of occupancy and 28 min of ventilation, the indoor CO2 concentration does not exceed 1000 ppm.
Author Contributions
Funding
Institutional Review Board Statement
Informed Consent Statement
Data Availability Statement
Conflicts of Interest
References
- Lee, H.Y.; Kim, N.J. The Impact of Fine Particular Matter Risk Perception on the Outdoor Behavior of Recreationists: An Application of the Extended Theory of Planned Behavior. Tour. Sci. Soc. Korea 2017, 41, 27–44. [Google Scholar] [CrossRef]
- Lee, Y.K.; Kim, Y.I.; Kim, G.H. Indoor Air Quality Diagnosis Program for School Multi-Purpose Activity and Office Spaces. Energies 2022, 15, 8134. [Google Scholar] [CrossRef]
- Choi, S.Y.; Eom, Y.; Song, J.S.; Kim, H.M. Fine Dust and Eye Health. J. Korean Med. Assoc. 2019, 62, 486–494. [Google Scholar] [CrossRef]
- Ritz, B.; Hoffmann, B.; Peters, A. The Effects of Fine Dust, Ozone, and Nitrogen Dioxide on Health. Dtsch. Arztebl. Int. 2019, 116, 881–886. [Google Scholar] [CrossRef]
- Choi, H.J.; Seo, J.; Song, Y.H.; Moon, N. Analysis of PM2.5 Concentrations Improvement by Application of Reduction Technology for Construction Vehicle. J. Korean Soc. Atmos. Environ. 2024, 40, 69–83. [Google Scholar] [CrossRef]
- Yeo, M.J.; Kim, Y.P. Trends of the PM10 Concentrations and High PM10 Concentration Cases in Korea. J. Korean Soc. Atmos. Environ. 2019, 35, 249–264. [Google Scholar] [CrossRef]
- Hamra, G.B.; Guha, N.; Cohen, A.; Laden, F.; Raaschou-Nielsen, O.; Samet, J.M.; Vineis, P.; Forastiere, F.; Saldiva, P.; Yorifuji, T.; et al. Outdoor Particulate Matter Exposure and Lung Cancer: A Systematic Review and Meta-Analysis. Environ. Health Perspect. 2014, 122, 906–911. [Google Scholar] [CrossRef]
- Loomis, D.; Huang, W.; Chen, G. The International Agency for Research on Cancer (IARC) Evaluation of the Carcinogenicity of Outdoor Air Pollution: Focus on China. Chin. J. Cancer 2014, 33, 189–196. [Google Scholar] [CrossRef]
- Feretti, D.; Pedrazzani, R.; Ceretti, E.; Dal Grande, M.; Zerbini, I.; Viola, G.C.V.; Gelatti, U.; Donato, F.; Zani, C. “Risk Is in the Air”: Polycyclic Aromatic Hydrocarbons, Metals and Mutagenicity of Atmospheric Particulate Matter in a Town of Northern Italy (Respira Study). Mutat. Res. Genet. Toxicol. Environ. Mutagen. 2019, 842, 35–49. [Google Scholar] [CrossRef]
- Airkorea Status of Air Pollution in Foreign Countries—Comparison of Major Cities in Foreign Countries. Available online: https://www.airkorea.or.kr/web/contents/contentView/?pMENU_NO=127&cntnts_no=4 (accessed on 29 January 2024).
- National Institute of Environmental Research. 2019 Atmospheric Environmental Yearbook; NIER: Incheon, Republic of Korea, 2020. [Google Scholar]
- Seo, M.J. Latest Air Filter Technology—Dust Collection Filter Technology Trend. Air Clean. Technol. 2020, 33, 38–45. [Google Scholar]
- IQAir. Airvisual 2019 World Air Quality Report; IQAir: Goldach, Switzerland, 2020. [Google Scholar]
- Korean Society for Atmospheric Environment (KOSAE). Indoor Air Pollution 2011; Korean Society for Atmospheric Environment: Seoul, Republic of Korea, 2011. [Google Scholar]
- Details of Fine Dust Warning Warnings Issued by Region. Available online: https://www.airkorea.or.kr/web/pmWarning?pMENU_NO=115 (accessed on 29 January 2024).
- Lee, C.J.; Hong, M.S. Spatiotemporal Variations of Fine Particulates in and around the Korean Peninsula. J. Korean Soc. Atmos. Environ. 2019, 35, 675–682. [Google Scholar] [CrossRef]
- Park, S.-M.; Moon, K.-J.; Park, J.-S.; Kim, H.-J.; Ahn, J.-Y.; Kim, J.-S. Chemical Characteristics of Ambient Aerosol during Asian Dusts and High PM Episodes at Seoul Intensive Monitoring Site in 2009. J. Korean Soc. Atmos. Environ. 2012, 28, 282–293. [Google Scholar] [CrossRef]
- Moon, H.; Song, J. The Impacts of Particulate Matter on Urban Activities in Jongno-Gu, Seoul. J. Korean Reg. Sci. Assoc. 2021, 37, 29–44. [Google Scholar] [CrossRef]
- Park, E.; Oh, H.-J.; Kim, S.-H.; Min, A. The Relationships between Particulate Matter Risk Perception, Knowledge, and Health Promoting Behaviors among College Students. J. Korean Biol. Nurs. Sci. 2017, 20, 20–29. [Google Scholar] [CrossRef]
- Jiang, C.; Ren, G.; Kim, J.S. The Effect of the Awareness of Particulate Matter on Decision Making Process of Pro-Environmental Tourism Behaviors: Applying VBN (Value-Belief-Norm) Theory. J. Tour. Leis. Res. 2019, 31, 77–98. [Google Scholar] [CrossRef]
- Hildemann, L.M.; Montoya, L.D. Evolution of the Mass Distribution of Resuspended Cat Allergen (Fel d 1) Indoors Following a Disturbance. Atmos. Environ. 2001, 35, 859–866. [Google Scholar]
- Simheee, H.; Yeo, C.; Yu, J. Automation of Information Extraction from IFC-BIM for Indoor Air Quality Certification. Korean J. Constr. Eng. Manag. 2017, 18, 63–73. [Google Scholar] [CrossRef]
- Yang, W. Time-Activity Pattern of Students and Indoor Air Quality of School. J. Korean Inst. Educ. Facil. 2014, 21, 17–22. [Google Scholar]
- Tham, S.; Thompson, R.; Landeg, O.; Murray, K.A.; Waite, T. Indoor Temperature and Health: A Global Systematic Review. Public. Health 2020, 179, 9–17. [Google Scholar] [CrossRef]
- Liu, F.; Yan, L.; Meng, X.; Zhang, C. A Review on Indoor Green Plants Employed to Improve Indoor Environment. J. Build. Eng. 2022, 53, 104542. [Google Scholar] [CrossRef]
- Ko, Y.; Min, J.; Hong, H. Heating and Cooling Energy Consumption According to Ventilation Method of Multi-Use Establishments. Korean J. Air-Cond. Refrig. Eng. 2020, 32, 405–411. [Google Scholar] [CrossRef]
- Choe, Y.; Heo, J.; Park, J.; Kim, E.; Ryu, H.; Jun Kim, D.; Cho, M.; Lee, C.; Lee, J.; Yang, W. Evaluation of Carbon Dioxide Concentrations and Ventilation Rates in Elementary, Middle, and High Schools. J. Environ. Health Sci. 2020, 46, 344–352. [Google Scholar] [CrossRef]
- Jang, N.R. A Study on Elementary School Students’ Knowledge. Awareness and Attitude toward Fine Dust. Korean Assoc. Pract. Arts Educ. 2020, 33, 1–20. [Google Scholar] [CrossRef]
- Guais, A.; Brand, G.; Jacquot, L.; Karrer, M.; Dukan, S.; Grévillot, G.; Molina, T.J.; Bonte, J.; Regnier, M.; Schwartz, L. Toxicity of Carbon Dioxide: A Review. Chem. Res. Toxicol. 2011, 24, 2061–2070. [Google Scholar] [CrossRef]
- Mishra, A.K.; Schiavon, S.; Wargocki, P.; Tham, K.W. Respiratory Performance of Humans Exposed to Moderate Levels of Carbon Dioxide. Indoor Air 2021, 31, 1540–1552. [Google Scholar] [CrossRef]
- Oh, G.S.; Jung, G.-S.; Im, G.-J. Impact of Indoor CO2 Concentration on Work Performance. Korean Soc. Archit. 2010, 30, 385–386. [Google Scholar]
- Lim, W.C. Literature Review of the Effect of the Carbon Dioxide Concentration in Classroom Air on the Students’ Learning Performance. Korean J. Environ. Educ. 2015, 28, 134–145. [Google Scholar]
- Robertson, D.S. Health Effects of Increase in Concentration of Carbon Dioxide in the Atmosphere. Curr. Sci. 2006, 90, 1607–1609. [Google Scholar]
- Azuma, K.; Kagi, N.; Yanagi, U.; Osawa, H. Effects of Low-Level Inhalation Exposure to Carbon Dioxide in Indoor Environments: A Short Review on Human Health and Psychomotor Performance. Environ. Int. 2018, 121, 51–56. [Google Scholar] [CrossRef]
- Allen, R.W.; Barn, P. Individual—And Household-Level Interventions to Reduce Air Pollution Exposures and Health Risks: A Review of the Recent Literature. Curr. Environ. Health Rep. 2020, 7, 424–440. [Google Scholar] [CrossRef]
- Mousavi, E.S.; Godri Pollitt, K.J.; Sherman, J.; Martinello, R.A. Performance Analysis of Portable HEPA Filters and Temporary Plastic Anterooms on the Spread of Surrogate Coronavirus. Build. Environ. 2020, 183, 107186. [Google Scholar] [CrossRef] [PubMed]
- Azimi, P.; Zhao, D.; Stephens, B. Estimates of HVAC Filtration Efficiency for Fine and Ultrafine Particles of Outdoor Origin. Atmos Environ. 2014, 98, 337–346. [Google Scholar] [CrossRef]
- Lin, J.; Pai, J.Y.; Chen, C.C. Applied Patent RFID Systems for Building Reacting HEPA Air Ventilation System in Hospital Operation Rooms. J. Med. Syst. 2012, 36, 3399–3405. [Google Scholar] [CrossRef] [PubMed]
- Lowther, S.D.; Deng, W.; Fang, Z.; Booker, D.; Whyatt, D.J.; Wild, O.; Wang, X.; Jones, K.C. How Efficiently Can HEPA Purifiers Remove Priority Fine and Ultrafine Particles from Indoor Air? Environ. Int. 2020, 144, 106001. [Google Scholar] [CrossRef]
- Park, B.; Cho, J.; Oh, B. A Study on Performance Status and Test Standard of Heat Recovery Ventilator. Korean J. Air-Cond. Refrig. Eng. 2022, 34, 145–153. [Google Scholar] [CrossRef]
- Ministry of Land, Infrastructure and Transport (MOLIT). Rules on Building Equipment Standards, Etc. Ordinance No. 1375, Article 11, Republic of Korea. 2006. Available online: https://www.law.go.kr/main.html (accessed on 12 May 2025).
- Schulze, T.; Eicker, U. Controlled Natural Ventilation for Energy Efficient Buildings. Energy Build. 2013, 56, 221–232. [Google Scholar] [CrossRef]
- Song, K.H. Magazine of the SAREK; SAREK: Seoul, Republic of Korea, 2022; pp. 221–232. [Google Scholar]
- Ganserer, A.; Gregory, T.; Zierahn, U. Minimum Wages and the Rise in Solo Self-Employment Minimum Wages and the Rise in Solo Self-Employment; IZA: Bonn, Germany, 2022. [Google Scholar]
- Heo, S.Y.; Jang, H.E.; Lee, J.H. Exploring the Government Policy for Promoting University Startups in Korea. J. Korea Acad.-Ind. Coop. Soc. 2017, 18, 75–84. [Google Scholar] [CrossRef]
- Kim, S.U.; Kim, S.H. Assessment of Indoor Air Quality and Energy Consumption in Office Buildings According to the Automatic Control Method of Ventilation Systems. Korean Soc. Archit. 2008, 24, 211–218. [Google Scholar]
- Ministry of Environment (MOE), Republic of Korea. Enforcement Rules of the Indoor Air Quality Control Act, Article 5 (Mandatory Standards for Maintaining Indoor Air Quality). 2022. Available online: https://www.law.go.kr/LSW/eng/engLsSc.do?menuId=2&query=Indoor%20Air%20Quality%20Control%20Act (accessed on 12 May 2025).
- Liu, W.; Zhong, W.; Wargocki, P. Performance, Acute Health Symptoms and Physiological Responses during Exposure to High Air Temperature and Carbon Dioxide Concentration. Build. Environ. 2017, 114, 96–105. [Google Scholar] [CrossRef]
- Bierwirth, P. Carbon Dioxide Toxicity and Climate Change: A Serious Unapprehended Risk for Human Health; Australian National University: Canberra, Australia, 2019. [Google Scholar] [CrossRef]
- Oropeza-Perez, I.; Østergaard, P.A. The Influence of an Estimated Energy Saving Due to Natural Ventilation on the Mexican Energy System. Energy 2014, 64, 1080–1091. [Google Scholar] [CrossRef]
- Cuce, E.; Sher, F.; Sadiq, H.; Cuce, P.M.; Guclu, T.; Besir, A.B. Sustainable Ventilation Strategies in Buildings: CFD Research. Sustain. Energy Technol. Assess. 2019, 36, 100540. [Google Scholar] [CrossRef]
- Omer, A.M. Energy, Environment and Sustainable Development. Renew. Sustain. Energy Rev. 2008, 12, 2265–2300. [Google Scholar] [CrossRef]
- Awbi, H.B. Ventilation and Air Distribution Systems in Buildings. Front. Mech. Eng. 2015, 1, 4. [Google Scholar] [CrossRef]
- Roaf, S. Innovative Approaches to the Natural Ventilation of Buildings: The Imperative for Change. Archit. Sci. Rev. 2012, 55, 1–3. [Google Scholar] [CrossRef]
- IPCC. Climate Change 2022: Mitigation of Climate Change. Contribution of Working Group III to the Sixth Assessment Report of the Intergovernmental Panel on Climate Change; Cambridge University Press: Cambridge, UK; New York, NY, USA, 2022. [Google Scholar]
- UNEP. 2022 Global Status Report for Buildings and Construction: Towards a Zero-Emission, Efficient and Resilient Buildings and Construction Sector; United Nations Environment Programme: Nairobi, Kenya, 2022. [Google Scholar]
- Etheridge, D. Natural Ventilation of Buildings Theory Measurement and Design. Int. J. Vent. 2012, 10, 405–406. [Google Scholar] [CrossRef]
- Zaniboni, L.; Albatici, R. Natural and Mechanical Ventilation Concepts for Indoor Comfort and Well-Being with a Sustainable Design Perspective: A Systematic Review. Buildings 2022, 12, 1983. [Google Scholar] [CrossRef]
- Gil-Baez, M.; Barrios-Padura, Á.; Molina-Huelva, M.; Chacartegui, R. Natural Ventilation Systems in 21st-Century for near Zero Energy School Buildings. Energy 2017, 137, 1186–1200. [Google Scholar] [CrossRef]
- World Health Organization WHO. Air Quality Guidelines for Particulate Matter, Ozone, Nitrogen Dioxide and Sulfur Dioxide; WHO: Geneva, Switzerland, 2006.
- ASHRAE. Guideline 14—Measurement of Energy, Demand, and Water Savings; ASHRAE: Peachtree Corners, GA, USA, 2014. [Google Scholar]
- Kwon, S.H.; Lee, S.C.; Kim, S.W. A Robust Item Recommendation Technique Based on Message Passing. Soc. Inf. Sci. 2012, 39, 166–171. [Google Scholar]
- National Institute of Environmental Research. Annual Report of Air Quality in Korea 2020; NIER: Incheon, Republic of Korea, 2021. [Google Scholar]
- Yun, H.S.; Um, M.J.; Cho, W.C.; Heo, J.H. Orographic Precipitation Analysis with Regional Frequency Analysis and Multiple Linear Regression. J. Korea Water Resour. Assoc. 2009, 42, 465–480. [Google Scholar] [CrossRef]
- Larsen, T.S.; Heiselberg, P. Single-Sided Natural Ventilation Driven by Wind Pressure and Temperature Difference. Energy Build. 2008, 40, 1031–1040. [Google Scholar] [CrossRef]








| South Korea | Japan | Hong Kong | Singapore | WHO | |
|---|---|---|---|---|---|
| Facility Type | Office | Office | Office | Office | Indoor |
| Fine dust (µg/m3) | 150 | 150 | 180 | 150 | - |
| CO2 (ppm) | 1000 | 1000 | 1000 | 1000 | - |
| Formaldehyde (µg/m3) | 120 | 100 | 100 | 120 | 100 |
| Airborne bacteria(CFU/m3) | 800 | - | 100 | 500 | - |
| CO (ppm) | 10 | 10 | 8.7 | 9 | 10 |
| VOCs (CFU/m3) | 500 | - | 600 | 300 |
| Architectural Specifications | Dimensional Parameters | Additional Information |
|---|---|---|
| Construction | Reinforced concrete | Completion year 2021 |
| Floor area | 26.8 m2 | - |
| Ceiling height | 2.7 m | - |
| Volume | 72.36 m3 | Actual volume excluding the volume occupied by the furniture, 65.124 m3 |
| Door area | 1.91 m2 | The door on the north wall opens and closes inward |
| Window effective open area | 0.324 m2 | Awning window on the south wall |
| Window area ratio | 1.21% | - |
| Measurement Height [cm] | A | B | C | Hall | Door | Window | Out |
|---|---|---|---|---|---|---|---|
| 50 | CO2, PM2.5 | CO2, PM2.5 | PM2.5 | ||||
| 120 | CO2 | CO2 | |||||
| 160 | PM2.5 | PM2.5 | PM2.5 | CO2, PM2.5 | |||
| 190 | CO2 | CO2 | |||||
| - | Wind speed | Wind speed | CO2, PM2.5 |
| Experiment | Time [Hour:Min] | Number of Occupants | Door Ventilation | Window Ventilation |
|---|---|---|---|---|
| 1 | 09:00~09:50 | 1 | Close | Close |
| 09:50~10:00 | 1 | Open | Close | |
| 10:00~10:50 | 1 | Close | Close | |
| 10:50~11:00 | 1 | Open | Close | |
| 11:00~11:50 | 1 | Close | Close | |
| 11:50~12:00 | 1 | Open | Close | |
| 12:00~13:00 | 0 | Close | Close | |
| 13:00~13:50 | 2 | Close | Close | |
| 13:50~14:00 | 2 | Close | Open | |
| 14:00~14:50 | 1 | Close | Close | |
| 14:50~15:00 | 1 | Open | Close | |
| 15:00~15:50 | 2 | Close | Close | |
| 15:50~16:00 | 2 | Close | Open | |
| 16:00~16:50 | 1 | Close | Close | |
| 16:50~17:00 | 1 | Open | Close | |
| 17:00~17:50 | 2 | Close | Close | |
| 17:50~18:00 | 2 | Close | Open | |
| 2 | 09:00~09:50 | 1 | Close | Close |
| 09:50~10:00 | 1 | Close | Open | |
| 10:00~11:50 | 2 | Close | Close | |
| 11:50~12:00 | 2 | Close | Open | |
| 12:00~13:00 | 0 | Close | Open | |
| 13:00~13:50 | 2 | Close | Close | |
| 13:50~14:00 | 2 | Open | Open | |
| 14:00~14:50 | 1 | Close | Close | |
| 14:50~15:00 | 1 | Open | Open | |
| 15:00~15:50 | 1 | Close | Close | |
| 15:50~16:00 | 1 | Open | Open | |
| 16:00~17:50 | 2 | Close | Close | |
| 17:50~18:00 | 2 | Open | Open |
| Case | Number of Occupants | Ventilation Method | Time Interval [h] | Residence Time [min] | Ventilation Time [min] |
|---|---|---|---|---|---|
| 1 | 1 | Door | 1 | 57 | 3 |
| 2 | Window | 57 | 3 | ||
| 3 | Door + Window | 58 | 2 | ||
| 4 | Door | 2 | 113 | 7 | |
| 5 | Window | 114 | 6 | ||
| 6 | Door + Window | 117 | 3 | ||
| 7 | 2 | Door | 1 | 50 | 10 |
| 8 | Window | 51 | 9 | ||
| 9 | Door + Window | 55 | 5 | ||
| 10 | Door | 2 | 83 | 37 | |
| 11 | Window | 84 | 36 | ||
| 12 | Door + Window | 92 | 28 |
| Number of Occupants | Volume [m3] | Door | Window | Door + Window | |||
|---|---|---|---|---|---|---|---|
| Residence Time [min] | Ventilation Time [min] | Residence Time [min] | Ventilation Time [min] | Residence Time [min] | Ventilation Time [min] | ||
| 1 | 58.53 | 58.1 | 1.9 | 58.2 | 1.8 | 59.1 | 0.9 |
| 1.5 | 58.53 | 54.8 | 5.2 | 55.2 | 4.8 | 57.4 | 2.6 |
| 2 | 58.53 | 50.9 | 9.1 | 51.6 | 8.4 | 55.5 | 4.5 |
| 2.5 | 58.53 | 46.4 | 13.6 | 47.3 | 12.7 | 52.9 | 7.1 |
| 3 | 58.53 | 41.4 | 18.9 | 42.5 | 17.5 | 49.4 | 10.6 |
| 1 | 87.79 | 59.9 | 0.1 | 59.9 | 0.1 | 59.9 | 0.1 |
| 1.5 | 87.79 | 58.1 | 1.9 | 58.2 | 1.8 | 59.1 | 0.9 |
| 2 | 87.79 | 55.9 | 4.1 | 56.2 | 3.8 | 58.0 | 2.0 |
| 2.5 | 87.79 | 53.6 | 6.4 | 54.0 | 6.0 | 56.8 | 3.2 |
| 3 | 87.79 | 50.9 | 9.1 | 51.6 | 8.4 | 55.5 | 4.5 |
| 1 | 117.06 | 60.0 | 0.0 | 60.0 | 0.0 | 60.0 | 0.0 |
| 1.5 | 117.06 | 59.7 | 0.3 | 59.7 | 0.3 | 59.8 | 0.2 |
| 2 | 117.06 | 58.1 | 1.9 | 58.2 | 1.8 | 59.1 | 0.9 |
| 2.5 | 117.06 | 56.5 | 3.5 | 56.7 | 3.3 | 58.3 | 1.7 |
| 3 | 117.06 | 54.7 | 5.3 | 55.1 | 4.9 | 57.4 | 2.6 |
| 1 | 146.33 | 60.0 | 0.0 | 60.0 | 0.0 | 60.0 | 0.0 |
| 1.5 | 146.33 | 59.9 | 0.1 | 59.9 | 0.1 | 59.9 | 0.1 |
| 2 | 146.33 | 59.4 | 0.6 | 59.4 | 0.6 | 59.7 | 0.3 |
| 2.5 | 146.33 | 58.1 | 1.9 | 58.2 | 1.8 | 59.1 | 0.9 |
| 3 | 146.33 | 56.8 | 3.2 | 57.0 | 30. | 58.4 | 1.6 |
| 1 | 175.59 | 60.0 | 0.0 | 60.0 | 0.0 | 60.0 | 0.0 |
| 1.5 | 175.59 | 60.0 | 0.0 | 60.0 | 0.0 | 60.0 | 0.0 |
| 2 | 175.59 | 59.9 | 0.1 | 59.9 | 0.1 | 59.9 | 0.1 |
| 2.5 | 175.59 | 59.2 | 0.8 | 59.2 | 0.8 | 59.6 | 0.4 |
| 3 | 175.59 | 58.1 | 1.9 | 58 | 1.8 | 59.0 | 1.0 |
|
Ventilation Method | |||||||||||
|---|---|---|---|---|---|---|---|---|---|---|---|
| Door | 3.66 | −0.07353 | 4.884 | 140.074 | 7.309 | 0.8857 | −0.06144 | −0.16 | 0.000894 | 4.321 | 14.781 |
| Window | 3.4 | −0.06806 | 4.52 | 119.563 | 6.832 | 0.8 | −0.5665 | −0.1485 | 0.000827 | 3.77 | 12.895 |
| Door + Window | 1.924 | −0.03841 | 2.496 | 46.223 | 3.669 | 0.5657 | −0.03424 | −0.08709 | 0.0005 | 2.46 | 6.866 |
Disclaimer/Publisher’s Note: The statements, opinions and data contained in all publications are solely those of the individual author(s) and contributor(s) and not of MDPI and/or the editor(s). MDPI and/or the editor(s) disclaim responsibility for any injury to people or property resulting from any ideas, methods, instructions or products referred to in the content. |
© 2025 by the authors. Licensee MDPI, Basel, Switzerland. This article is an open access article distributed under the terms and conditions of the Creative Commons Attribution (CC BY) license (https://creativecommons.org/licenses/by/4.0/).
Share and Cite
Lee, W.C.; Kim, Y.I. Sustainable Natural Ventilation Strategies for Acceptable Indoor Air Quality: An Experimental and Simulated Study in a Small Office During the Winter Season. Sustainability 2025, 17, 4961. https://doi.org/10.3390/su17114961
Lee WC, Kim YI. Sustainable Natural Ventilation Strategies for Acceptable Indoor Air Quality: An Experimental and Simulated Study in a Small Office During the Winter Season. Sustainability. 2025; 17(11):4961. https://doi.org/10.3390/su17114961
Chicago/Turabian StyleLee, Woo Chang, and Young Il Kim. 2025. "Sustainable Natural Ventilation Strategies for Acceptable Indoor Air Quality: An Experimental and Simulated Study in a Small Office During the Winter Season" Sustainability 17, no. 11: 4961. https://doi.org/10.3390/su17114961
APA StyleLee, W. C., & Kim, Y. I. (2025). Sustainable Natural Ventilation Strategies for Acceptable Indoor Air Quality: An Experimental and Simulated Study in a Small Office During the Winter Season. Sustainability, 17(11), 4961. https://doi.org/10.3390/su17114961

