Nature-Based Solutions: Green and Smart Façade with an Innovative Cultivation System for Sustainable Buildings and More Climate-Resilient Cities
Abstract
1. Introduction
2. Materials and Methods
3. Method Application and Results
3.1. Phase 1: Development of an Innovative Cultivation’ System
Results of Phase 1
3.2. Phase 2: Development of a Façade Module Design
3.3. Phase 3: Implementation of the Green and Smart Façade Module
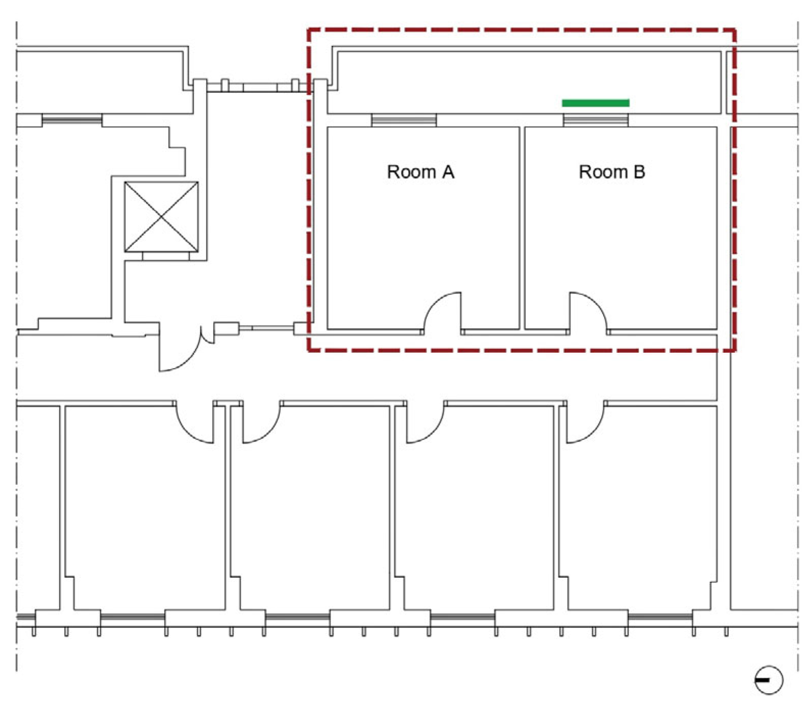
3.4. Phase 4: Validation of Prototype’s Effectiveness in Reducing Indoor Temperatures
Results of Phase 4
4. Discussion and Conclusions
Author Contributions
Funding
Institutional Review Board Statement
Informed Consent Statement
Data Availability Statement
Acknowledgments
Conflicts of Interest
References
- Calvin, K.; Dasgupta, D.; Krinner, G.; Mukherji, A.; Thorne, P.W.; Trisos, C.; Romero, J.; Aldunce, P.; Barret, K.; Blanco, G.; et al. IPCC, 2023: Climate Change 2023: Synthesis Report, Summary for Policymakers. Contribution of Working Groups I, II and III to the Sixth Assessment Report of the Intergovernmental Panel on Climate Change [Core Writing Team, H. Lee and J. Romero (eds.)]; Arias, P., Bustamante, M., Elgizouli, I., Flato, G., Howden, M., Méndez-Vallejo, C., Pereira, J.J., Pichs-Madruga, R., Rose, S.K., Saheb, Y., Eds.; IPCC: Geneva, Switzerland, 2023. [Google Scholar] [CrossRef]
- Copernicus, 2023: Climate Indicators–Temperature. Climate Change Service. Available online: https://climate.copernicus.eu/climate-indicators/temperature (accessed on 8 November 2024).
- United Nations Department of Economic and Social Affairs, Population Division. World Population Prospects 2024: Summary Results. UN DESA/POP/2024/TR/NO. 4. Available online: https://population.un.org/wpp/assets/Files/WPP2024_Summary-of-Results.pdf (accessed on 14 February 2025).
- Edmondson, J.L.; Childs, D.Z.; Dobson, M.C.; Gaston, K.J.; Warren, P.H.; Leake, J.R. Feeding a city–Leicester as a case study of the importance of allotments for horticultural production in the UK. Sci. Total Environ. 2020, 705, 135930. [Google Scholar] [CrossRef] [PubMed]
- United States Environmental Protection Agency (EPA). Climate Change Impacts: Climate Impacts on Agriculture and Food Supply. 2025. Available online: https://www.epa.gov/climateimpacts/climate-change-impacts-agriculture-and-food-supply (accessed on 14 February 2025).
- Cohen-Shacham, E.; Walters, G.; Janzen, C.; Maginnis, S. (Eds.) Nature-Based Solutions to Address Global Societal Challenges; IUCN International Union for Conservation of Nature: Fontainebleau, France, 2016. [Google Scholar] [CrossRef]
- De Oliveira, F. Nature in nature-based solutions in urban planning. In Landscape and Urban Planning; Elsevier Ltd.: Amsterdam, The Netherlands, 2025; Volume 256, p. 105282. [Google Scholar] [CrossRef]
- Lassandro, P.; Zaccaro, S.A.; Di Turi, S. Mitigation and Adaptation Strategies for Different Urban Fabrics to Face Increasingly Hot Summer Days Due to Climate Change. Sustainability 2024, 16, 2210. [Google Scholar] [CrossRef]
- Tablada, A.; Kosorić, V. Vertical farming on facades: Transforming building skins for urban food security. In Rethinking Building Skins: Transformative Technologies and Research Trajectories; Elsevier: Amsterdam, The Netherlands, 2021; pp. 285–311. [Google Scholar] [CrossRef]
- Castellari, S.; Zandersen, M.; Davis, M.; Veerkamp, C.; Förster, J.; Marttunen, M.; Mysiak, J.; Vandewalle, M.; Medri, S.; Picatoste, J.R.; et al. Nature-Based Solutions in Europe Policy, Knowledge and Practice for Climate Change Adaptation and Disaster Risk Reduction; European Environment Agency Publications Office: Copenhagen K, Denmark, 2021. [Google Scholar] [CrossRef]
- Shi, X.; Shi, C.; Tablada, A.; Guan, X.; Cui, M.; Rong, Y.; Zhang, Q.; Xie, X. A Review of Research Progress in Vertical Farming on Façades: Design, Technology, and Benefits. Sustainability 2025, 17, 921. [Google Scholar] [CrossRef]
- Blanco, I.; Vox, G.; Schettini, E.; Russo, G. Assessment of the environmental loads of green façades in buildings: A comparison with un-vegetated exterior walls. J. Environ. Manag. 2021, 294, 112927. [Google Scholar] [CrossRef]
- Bakhshoodeh, R.; Ocampo, C.; Oldham, C. Thermal performance of green façades: Review and analysis of published data. In Renewable and Sustainable Energy Reviews; Elsevier Ltd.: Amsterdam, The Netherlands, 2022; Volume 155. [Google Scholar] [CrossRef]
- Manso, M.; Castro-Gomes, J. Green wall systems: A review of their characteristics. In Renewable and Sustainable Energy Reviews; Elsevier Ltd.: Amsterdam, The Netherlands, 2015; Volume 41, pp. 863–871. [Google Scholar] [CrossRef]
- Brickell, C.; Banks, E. Living roofs and walls. In Encyclopedia of Gardening. The Choice of Plants, the Design and Care of Garden, Vegetable Garden and Orchard, 1st ed.; Gribaudo, Ed.; Dorling Kindersley Limited: London, UK, 2018; pp. 50–51. [Google Scholar]
- City Region Food Systems Programme–CRFS Approach. Available online: https://www.fao.org/in-action/food-for-cities-programme/overview/crfs/en/ (accessed on 18 April 2025).
- Pulighe, G.; Lupia, F. Food first: COVID-19 outbreak and cities lockdown a booster for a wider vision on urban agriculture. Sustainability 2020, 12, 5012. [Google Scholar] [CrossRef]
- Van Dooren, N.; Leseman, B.; Van der Meulen, S. How New Food Networks Change the Urban Environment: A Case Study in the Contribution of Sustainable, Regional Food Systems to Green and Healthy Cities. Sustainability 2021, 13, 481. [Google Scholar] [CrossRef]
- Blay-Palmer, A.; Santini, G.; Dubbeling, M.; Renting, H.; Taguchi, M.; Giordano, T. Validating the City Region Food System approach: Enacting inclusive, transformational City Region Food Systems. Sustainability 2018, 10, 1680. [Google Scholar] [CrossRef]
- Afshar, A.; Soleimanian, E.; Akbari Variani, H.; Vahabzadeh, M.; Molajou, A. The conceptual framework to determine interrelations and interactions for holistic Water, Energy, and Food Nexus. Environ. Dev. Sustain. 2022, 24, 10119–10140. [Google Scholar] [CrossRef]
- Vahabzadeh, M.; Afshar, A.; Molajou, A. Framing a novel holistic energy subsystem structure for water-energy-food nexus: A review of existing literature. Sci. Rep. 2022, 13, 6289. [Google Scholar] [CrossRef]
- Bakker, D.M.; Stuyt, L.C.P.M. Sub-irrigation: A review of principles and applications in horticultural crops. Adv. Hortic. Sci. 2010, 24, 4–10. [Google Scholar]
- Giller, O.; Ploegmakers, H.; Meijerink, S. Reconfiguring agricultural water management practices: Lessons from research on scaling of controlled drainage and subirrigation systems. Agric. Water Manag. 2025, 312, 109451. [Google Scholar] [CrossRef]
- Al-Mohammed, F.M. The effect of pot volume on the performance of pot irrigation system. J. Tech. 2012, 25, E88–E98. [Google Scholar]
- Adhikary, R.; Pal, A. Clay Pot Irrigation—A Review Study. Asian Plant Res. J. 2020, 5, 37–42. [Google Scholar] [CrossRef]
- Naddafi, K.; Mahvi, A.M.; Nasseri, S.; Mokhtari, M.; Zeraati, H. Evaluation of the Efficiency of Clay Pots in Removal of Water Impurities. Iranian J. Environ. Health Sci. Eng. 2005, 2, 12–16. [Google Scholar]
- Martorano, L.; Berhe, A.; Kebede, H.; Ferreira, H. Use of efficient, low cost and climate smart irrigation technology under home garden vegetable growers condition in Ethiopia. In Proceedings of the 5th International Ecosummit Congress, Montpellier, France, 29 August–1 September 2016. [Google Scholar]
- FAO ESTD. Water for Sustainable Food and Agriculture, Committee on World Food Security. Italy. 2017. Available online: https://coilink.org/20.500.12592/gv7m2r (accessed on 26 September 2024).
- Rose, D.C.; Chilvers, J. Agriculture 4.0: Broadening Responsible Innovation in an Era of Smart Farming. Front. Sustain. Food Syst. 2018, 2, 87. [Google Scholar] [CrossRef]
- Gubbi, J.; Buyya, R.; Marusic, S.; Palaniswami, M. Internet of Things (IoT): A vision, architectural elements, and future directions. Future Gener. Comput. Syst. 2013, 29, 1645–1660. [Google Scholar] [CrossRef]
- Choudhary, V.; Guha, P.; Pau, G.; Mishra, S. An overview of smart agriculture using internet of things (IoT) and web services. In Environmental and Sustainability Indicators; Elsevier, B.V.: Amsterdam, The Netherlands, 2025; Volume 26. [Google Scholar] [CrossRef]
- Terroso-Saenz, F.; González-Vidal, A.; Ramallo-González, A.P.; Skarmeta, A.F. An open IoT platform for the management and analysis of energy data. Future Gener. Comput. Syst. 2019, 92, 1066–1079. [Google Scholar] [CrossRef]
- Megalingam, R.K.; Kishore Indukuri, G.; Krishna Reddy, D.S.; Dilip Vignesh, E.; Yarasuri, V.K. Irrigation monitoring and prediction system using machine learning. In Proceedings of the 2020 International Conference for Emerging Technology, INCET 2020, Belgaum, India, 5–7 June 2020. [Google Scholar] [CrossRef]
- Colunje, J.; Garcia-Caparros, P.; Moreira, J.F.; Lao, M.T. Effect of ozonized fertigation in pepper cultivation under greenhouse conditions. Agronomy 2021, 11, 544. [Google Scholar] [CrossRef]
- Martínez-Sánchez, A.; Aguayo, E. Effects of ozonized water irrigation on the quality of grafted watermelon seedlings. Sci. Hortic. 2020, 261, 109047. [Google Scholar] [CrossRef]
- Díaz-López, M.; Siles, J.A.; Ros, C.; Bastida, F.; Nicolás, E. The effects of ozone treatments on the agro-physiological parameters of tomato plants and the soil microbial community. Sci. Total Environ. 2022, 812, 151429. [Google Scholar] [CrossRef]
- Tiwari, B.K.; Brennan, C.S.; Curran, T.; Gallagher, E.; Cullen, P.J.; O’ Donnell, C.P. Application of ozone in grain processing. J. Cereal Sci. 2010, 51, 248–255. [Google Scholar] [CrossRef]
- Lemic, D.; Galešić, M.A.; Bjeliš, M.; Viric Gasparic, H. Ozone Treatment as a Sustainable Alternative for Suppressing Blue Mold in Mandarins and Extending Shelf Life. Agriculture 2024, 14, 1196. [Google Scholar] [CrossRef]
- Xu, J.P.; Yu, Y.C.; Zhang, T.; Ma, Q.; Yang, H.B. Effects of ozone water irrigation and spraying on physiological characteristics and gene expression of tomato seedlings. Hortic. Res. 2021, 8, 180. [Google Scholar] [CrossRef] [PubMed]
- Vitali, G.; Valdenassi, L. Use of ozone in water, agriculture and zootechnics: Relationships between dysbiosis and mental disorders. Ozone Ther. 2019, 4, 9. [Google Scholar] [CrossRef]
- Asdrubali, F.; D’Alessandro, F.; Baldinelli, G.; Bianchi, F. Evaluating in situ thermal transmittance of green buildings masonries: A case study. Case Stud. Constr. Mater. 2014, 1, 53–59. [Google Scholar] [CrossRef]
- Battista, G.; Evangelisti, L.; Guattari, C.; de Cristo, E.; de Lieto Vollaro, R.; Asdrubali, F. An Extensive Study of the Urban Heat Island Phenomenon in Rome, Italy: Implications for Building Energy Performance Through Data from Multiple Meteorological Stations. Int. J. Sustain. Dev. Plan. 2023, 18, 3357–3362. [Google Scholar] [CrossRef]
- Royal Horticultural Society; Brickell, C.; Banks, E. (Eds.) Encyclopedia of Gardening: The Choice of Plants, the Design and Care of Garden, Vegetable Garden and Orchard; Dorling Kindersley Limited: London, UK, 2018. [Google Scholar]
- Askar, A.; Sunggat, M.; Maxat, M.; Nunzhigit, S.; Kanat, Z.; Ainur, K.; Arnay, A.; Asset, O. Investigation of the Efficiency of the Ozonator in the Process of Water Purification Based on the Corona Discharge. J. Ecol. Eng. 2023, 24, 140–151. [Google Scholar] [CrossRef]
- Yamabe, C. Ozone Generation Technologies and Their Applications. IEEJ Trans. FM 2006, 126, 874–877. [Google Scholar] [CrossRef]
- Ogut, O.; Tzortzi, J.N.; Cavazzani, S.; Bertolin, C. Evaluating the Urban Heat Mitigation Potential of a Living Wall in Milan: One Year of Microclimate Monitoring. Land 2024, 13, 794. [Google Scholar] [CrossRef]
- Manouchehri, M.; Santiago López, J.; Valiente López, M. Sustainable Design of Vertical Greenery Systems: A Comprehensive Framework. Sustainability 2024, 16, 3249. [Google Scholar] [CrossRef]
- De Jesus, M.P.; Teixeira, J.L.; Silva, C.M.; Bastos, J. Green façades and in situ measurements of outdoor building thermal behaviour. Build Environ. 2017, 112, 216–226. [Google Scholar] [CrossRef]














| Installation | TRW | NEBOW | OLOW-NEBOW | OLOW | ONW | PIOW | PIW |
|---|---|---|---|---|---|---|---|
| Cost installation (€) | 30 € | 60 € | 105 € | 80 € | 50 € | 125 € | 85 € |
| Realization difficulty | 2/10 | 6/10 | 6/10 | 5/10 | 5/10 | 9/10 | 8/10 |
| Parameters for Maintenance | TRW | NEBOW | OLOW-NEBOW | OLOW | ONW | PIOW | PIW |
|---|---|---|---|---|---|---|---|
| Water consumption (L) | 3.5 | 4 | 5.5 | 2.5 | 2 | 1.5 | 1.5 |
| Energy consumption (W) | 0 | 9 | 18 | 15 | 0 | 5 | 0 |
| Human time for green maintenance (minutes) | 5 min | 3 min | 3 min | 0 min | 7 min | 1 min | 1 min |
| Scientific Name | Plant Characteristics | Environmental Requirements | Other |
|---|---|---|---|
Menta piperita officinalis![]() | Perennial herbaceous Bushy plant Height max: 70 cm Leaves: lanceolate, purplish green Flower: VII–IX, pink | Water: regularly (moderate) Light: full sun exposure |
|
Ocimum basilicum![]() | Semi-resistant annual plant Upright plant Height max: 60 cm Leaves: lanceolate, intense green Flower: VI–IX, white | Water: regularly (moderate) Light: full sun exposure |
|
Origanum vulgare![]() | Perennial herbaceous Bushy and upright plant Height max: 80 cm Leaves: lanceolate and opposite, intense green Flower: V–IX, white/lilac | Water: regularly (moderate) Light: full sun exposure |
|
Origanum majorana![]() | Perennial herbaceous Bushy plant Height max: 70 cm Leaves: lanceolate and opposite, green Flower: VII–IX, withe/pink | Water: regularly (moderate) Light: full sun exposure |
|
Rosmarinus erectus officinalis![]() | Evergreen shrub Upright plant Height max: 120 cm Leaves: linear-lanceolate, dark green Flower: III–IX, light blue | Water: regularly (moderate) Light: full sun exposure |
|
Salvia officinalis latifolia![]() | Evergreen undergrowth Bushy plant Height max: 50 cm Leaves: oblong, silver gray-green Flower: V–IX, violet | Water: regularly (moderate) Light: full sun exposure |
|
Disclaimer/Publisher’s Note: The statements, opinions and data contained in all publications are solely those of the individual author(s) and contributor(s) and not of MDPI and/or the editor(s). MDPI and/or the editor(s) disclaim responsibility for any injury to people or property resulting from any ideas, methods, instructions or products referred to in the content. |
© 2025 by the authors. Licensee MDPI, Basel, Switzerland. This article is an open access article distributed under the terms and conditions of the Creative Commons Attribution (CC BY) license (https://creativecommons.org/licenses/by/4.0/).
Share and Cite
Lassandro, P.; Capotorto, S.; Mammone, V. Nature-Based Solutions: Green and Smart Façade with an Innovative Cultivation System for Sustainable Buildings and More Climate-Resilient Cities. Sustainability 2025, 17, 4580. https://doi.org/10.3390/su17104580
Lassandro P, Capotorto S, Mammone V. Nature-Based Solutions: Green and Smart Façade with an Innovative Cultivation System for Sustainable Buildings and More Climate-Resilient Cities. Sustainability. 2025; 17(10):4580. https://doi.org/10.3390/su17104580
Chicago/Turabian StyleLassandro, Paola, Salvatore Capotorto, and Valeria Mammone. 2025. "Nature-Based Solutions: Green and Smart Façade with an Innovative Cultivation System for Sustainable Buildings and More Climate-Resilient Cities" Sustainability 17, no. 10: 4580. https://doi.org/10.3390/su17104580
APA StyleLassandro, P., Capotorto, S., & Mammone, V. (2025). Nature-Based Solutions: Green and Smart Façade with an Innovative Cultivation System for Sustainable Buildings and More Climate-Resilient Cities. Sustainability, 17(10), 4580. https://doi.org/10.3390/su17104580







