Examined in Theory—Applicable in Practice: Potentials of Sustainable Industrial Heritage Conservation in a Contemporary Context—The Case of Belgrade
Abstract
1. Introduction
1.1. Cultural Heritage and the Analysis of Relevant Documents
1.1.1. Cultural Heritage and the Question of Its Values
1.1.2. Cultural Heritage and the Question of Its Authenticity
1.1.3. Cultural Heritage and the Question of Its Sustainable Conservation
1.2. Industrial Heritage and the Analysis of Relevant Documents
1.2.1. Industrial Heritage and the Question of Its Values
1.2.2. Industrial Heritage and the Question of Its Authenticity
1.2.3. Industrial Heritage and the Question of Its Sustainable Conservation
1.3. The Main Themes in Industrial Heritage Sustainable Conservation
- Industrial heritage values;
- Industrial heritage authenticity;
- Industrial heritage sustainability.
2. Materials and Methods
2.1. Industrial Heritage in Belgrade
2.1.1. Historical Overview of Industrial Heritage in Belgrade
2.1.2. Contemporary Development of Industrial Heritage in Belgrade
2.1.3. The Current State of Industrial Heritage in Belgrade
2.2. Examined in Theory: Education in the Field of Industrial Heritage at The University of Belgrade, Faculty of Architecture
2.2.1. Defining the Methodology
Phase 1
Phase 2
Phase 3
2.2.2. Defining the Set of Criteria
- Preserving the spatial organisation;
- Preserving the structural assembly;
- Preserving the stylistic features;
- Preserving/presenting the previous purpose;
- Preserving/integrating into the context;
- Preserving the spirit of the place;
- Defining the character of new uses;
- Compliance of new uses with the values of the object;
- Applied materialisation;
- Applied principles of sustainability.
3. Results
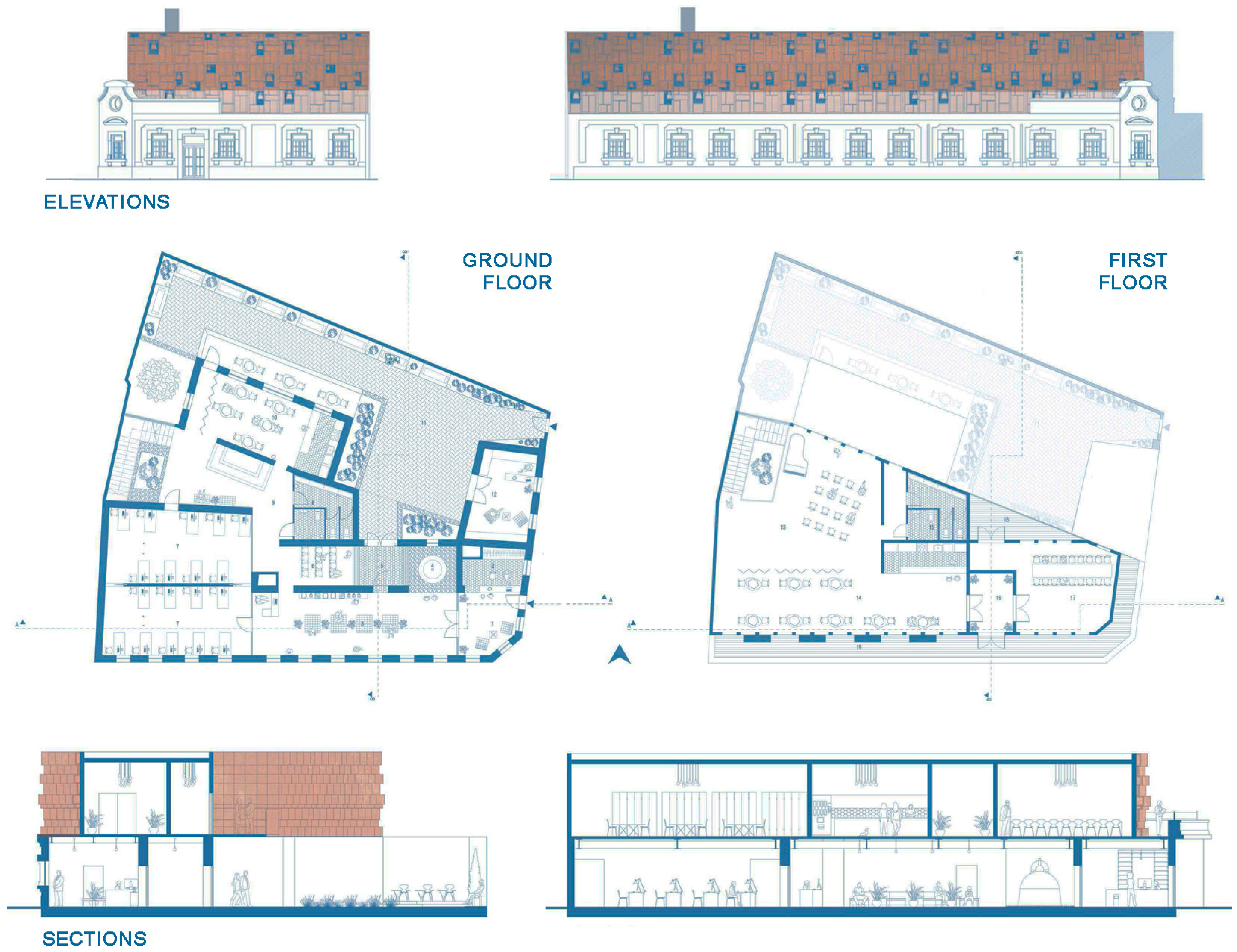
3.1. The Locksmiths’ Workshop and Foundry “Pantelić“
Review of Students’ Proposal for the Revitalisation and Presentation of the Locksmiths’ Workshop and Foundry “Pantelić“
3.2. Hangar of the Old Belgrade Airport
Review of Students’ Proposal for the Revitalisation and Presentation of the Hangar of the Old Belgrade Airport
3.3. The First Modern Garage in Belgrade
Review of Students’ Proposal for the Revitalisation and Presentation of the First Modern Garage in Belgrade
4. Discussion
Applicable in Practice: Valorisation of the Research Results
5. Conclusions
Author Contributions
Funding
Institutional Review Board Statement
Informed Consent Statement
Data Availability Statement
Acknowledgments
Conflicts of Interest
References
- Morris, W. The Manifesto of the Society for the Protection of Ancient Buildings; SPAB: Bloomsbury, UK, 1877; pp. 1–2. [Google Scholar]
- Ruskin, J. The Seven Lamps of Architecture. In The Complete Works of John Ruskin; Cook, E.T., Wedderburn, A., Eds.; George Allen: London, UK, 1903; Volume 8. [Google Scholar]
- Riegl, A. The Modern Cult of Monuments: Its Essence and Its Development. In Historical and Philosophical Issues in the Conservation of Cultural Heritage; Stanley Price, N., Kirby Talley, M., Jr., Melucco Vaccaro, A., Eds.; The Getty Conservation Institute: Los Angeles, CA, USA, 1996; pp. 69–83. [Google Scholar]
- Nikolić, M. Kulturno Nasleđe i Pitanje Autentičnosti [Cultural Heritage and the Question of Authenticity]; Univerzitet u Beogradu—Arhitektonski Fakultet: Beograd, Srbija, 2022. [Google Scholar]
- The Athens Charter for the Restoration of Historic Monuments—1931. Available online: https://www.icomos.org/en/167-the-athens-charter-for-the-restoration-of-historic-monuments (accessed on 23 December 2023).
- ICOMOS (International Council of Monuments and Sites). Venice Charter for the Conservation and Restoration of Monuments and Sites; ICOMOS: Venice, Italy, 1964. [Google Scholar]
- UNESCO (United Nations Educational, Scientific and Cultural Organization). Convention Concerning the Protection of the World Cultural and Natural Heritage; UNESCO: Paris, France, 1972. [Google Scholar]
- UNESCO (United Nations Educational, Scientific and Cultural Organization). Recommendation Considering the Safeguarding and Contemporary Role of Historic Areas; UNESCO: Nairobi, Kenya, 1976. [Google Scholar]
- ICOMOS (International Council of Monuments and Sites). The Australia ICOMOS Guidelines for the Conservation of Places of Cultural Significance; ICOMOS: Burra, Australia, 1979. [Google Scholar]
- ICOMOS (International Council of Monuments and Sites). The Australia ICOMOS Charter for the Conservation of Places of Cultural Significance; ICOMOS: Burra, Australia, 2013. [Google Scholar]
- Council of Europe. Convention for the Protection of the Architectural Heritage of Europe; Council of Europe: Granada, Spain, 1985. [Google Scholar]
- UNESCO (United Nations Educational, Scientific and Cultural Organization). Convention for the Safeguarding of the Intangible Cultural Heritage; UNESCO: Paris, France, 2003. [Google Scholar]
- Council of Europe. Council of Europe Framework Convention on the Value of Cultural Heritage for Society; Council of Europe: Faro, Portugal, 2005. [Google Scholar]
- ICOMOS (International Council of Monuments and Sites). The Québec Declaration on the Preservation of the Spirit of the Place; ICOMOS: Paris, France, 2008. [Google Scholar]
- ICOMOS (International Council of Monuments and Sites). The Nara Document on Authenticity; ICOMOS: Nara, Japan, 1994. [Google Scholar]
- UNESCO World Heritage Centre. Operational Guidelines for the Implementation of the World Heritage Convention; UNESCO: Paris, France, 2005; Available online: https://whc.unesco.org/archive/opguide05-en.pdf (accessed on 23 December 2023).
- Jokilehto, J.; Cameron, C.; Parent, M.; Petzet, M. What is OUV? Defining the Outstanding Universal Value of Cultural World Heritage Properties; Hendrik Bäßler Verlag: Berlin, Germany, 2008. [Google Scholar]
- World Heritage List. Available online: https://whc.unesco.org/en/list/ (accessed on 23 December 2023).
- Outstanding Universal Value. Available online: https://worldheritage.gsu.edu/outstanding-universal-value/ (accessed on 23 December 2023).
- Vahtikari, T. Valuing World Heritage Cities; Routledge: Abingdon, UK, 2017; pp. 18–44. [Google Scholar]
- Jokilehto, J. Kontekst i okruženje zaštićenih područja. Mod. Konzerv. 2021, 8–9, 13–21. [Google Scholar]
- ICOMOS (International Council of Monuments and Sites). International Cultural Tourism Charter: Managing Tourism at Places of Heritage Significance; ICOMOS: Mexico City, Mexico, 1999. [Google Scholar]
- Council of Europe. European Landscape Convention; Council of Europe: Florence, Italy, 2000. [Google Scholar]
- ICOMOS (International Council of Monuments and Sites). The ICOMOS Charter on Cultural Routes; ICOMOS: Québec, QC, Canada, 2008. [Google Scholar]
- Council of Europe. Recommendation No. R (87) 24 of the Committee of Ministers to Member States on European Industrial Towns. Available online: https://search.coe.int/cm/pages/result_details.aspx?objectid=09000016804d434a (accessed on 24 December 2023).
- Council of Europe. Recommendation No. R (90) 20 of the Committee of Ministers to Member States on the Protection and Conservation of the Industrial, Technical and Civil Engineering Heritage in Europe. Available online: https://search.coe.int/cm/Pages/result_details.aspx?ObjectId=09000016804e1d18 (accessed on 24 December 2023).
- TICCIH (The International Committee for the Conservation of the Industrial Heritage). TICCIH Statutes. Available online: https://ticcih.org/about/statutes/ (accessed on 24 December 2023).
- TICCIH (The International Committee for the Conservation of the Industrial Heritage). The Nizhny Tagil Charter for the Industrial Heritage; TICCIH: Ceredigion, UK, 2003. [Google Scholar]
- ICOMOS—TICCIH (International Council of Monuments and Sites; The International Committee for the Conservation of the Industrial Heritage). Joint ICOMOS—TICCIH Principles for the Conservation of Industrial Heritage Sites, Structures, Areas and Landscapes; ICOMOS: Paris, France, 2011. [Google Scholar]
- FIVA (The International Federation for Historic Vehicles). The Turin Charter; FIVA: Munich, Germany, 2012. [Google Scholar]
- EMH Working Group. The Barcelona Charter—European Charter for the Conservation and Restoration of Traditional Ships in Operation. Available online: https://www.ts-skib.dk/barcelona-charteret-the-original-english-version/ (accessed on 29 February 2024).
- FEDECRAIL (European Federation of Museum & Tourist Railways). The Riga Charter; FEDECRAIL: Riga, Latvia, 2005. [Google Scholar]
- United Nations. Transforming Our World: The 2030 Agenda for Sustainable Development; United Nations: New York, NY, USA, 2015. [Google Scholar]
- United Nations. Agenda 21; UNCED: Rio de Janerio, Brasil, 1992. [Google Scholar]
- United Nations. The Rio Declaration on Environment and Development; UNCED: Rio de Janerio, Brasil, 1992. [Google Scholar]
- United Nations. Resolution 57/253. World Summit on Sustainable Development; United Nations: Johannesburg, South Africa, 2002. [Google Scholar]
- TWI2050 (The World in 2050). Innovations for Sustainability. Pathways to an Efficient and Post-Pandemic Future; International Institute for Applied Systems Analysis (IIASA): Laxenburg, Austria, 2020. [Google Scholar]
- Swiss Federal Office of Culture. Davos Declaration; Swiss Federal Office of Culture: Davos, Switzerland, 2018.
- Swiss Federal Office of Culture. Eight Criteria for a High-Quality Baukultur; Swiss Federal Office of Culture: Berne, Switzerland, 2021.
- ERIH (European Route of Industrial Heritage). The Declaration of Duisburg; ERIH: Duisburg, Germany, 2001. [Google Scholar]
- ERIH (European Route of Industrial Heritage). European Route of Industrial Heritage: Executive Summary: Our Common European Heritage; ERICH Secretariat Deutsche Gesellschaft für Industriekultur: Duisburg, Germany, 2001; Available online: https://www.erih.net/fileadmin/Mediendatenbank/Downloads/4_ABOUT_ERIH/Masterplan___Infos/ERIH_I_summary.PDF (accessed on 27 December 2023).
- TICCIH (The International Committee for the Conservation of the Industrial Heritage). Taipei Declaration for Asian Industrial Heritage; TICCIH: Taiwan, China, 2012. [Google Scholar]
- Council of Europe. Resolution 1924—Industrial Heritage in Europe; Council of Europe Parliamentary Assembly: Paris, France, 2013. [Google Scholar]
- The American Heritage Dictionary of the English Language, 4th ed.; Houghton Mifflin Harcourt: Boston, MA, USA, 2009.
- Bottero, M.; D’Alpaos, C.; Oppio, A. Ranking of Adaptive Reuse Strategies for Abandoned Industrial Heritage in Vulnerable Contexts: A Multiple Criteria Decision Aiding Approach. Sustainability 2019, 11, 785. [Google Scholar] [CrossRef]
- Leus, M. Sustainable Industrial Heritage: Reuse Models and Concepts. In Reusing the Industrial Past by the Tammerkoski Rapids Discussions on the Value of Industrial Heritage; Hinnerichsen, M., Ed.; City of Tampere, Museum Services; Pirkanmaa Provincial Museum: Tampere, Finland, 2021; pp. 61–68. ISBN 978-951-609-486-4. [Google Scholar]
- Arfa, F.H.; Zijlstra, H.; Lubelli, B.; Quist, W. Adaptive Reuse of Heritage Buildings: From a Literature Review to a Model of Practice. Hist. Environ. Policy Pract. 2022, 13, 148–170. [Google Scholar] [CrossRef]
- Vafaie, F.; Remøy, H.; Gruis, V. Adaptive reuse of heritage buildings; a systematic literature review of success factors. Habitat Int. 2023, 142, 102926. [Google Scholar] [CrossRef]
- Han, R.; Yang, S. A Study on Industrial Heritage Renewal Strategy Based on Hybrid Bayesian Network. Sustainability 2023, 15, 10707. [Google Scholar] [CrossRef]
- Radosavljević, U.; Đorđević, A.; Lalović, K.; Živković, J.; Đukanović, Z. Nodes and Networks: The Generative Role of Cultural Heritage for Urban Revival in Kikinda. Sustainability 2019, 11, 2509. [Google Scholar] [CrossRef]
- Zhang, J.; Sun, H.; Xu, S.; Aoki, N. Analysis of the Spatial and Temporal Distribution and Reuse of Urban Industrial Heritage: The Case of Tianjin, China. Land 2022, 11, 2273. [Google Scholar] [CrossRef]
- Pintossi, N.; Kaya, D.I.; Roders, A.P. Cultural heritage adaptive reuse in Salerno: Challenges and solutions. City Cult. Soc. 2023, 33, 100505. [Google Scholar] [CrossRef]
- Viola, S. Built Heritage Repurposing and Communities Engagement: Symbiosis, Enabling Processes, Key Challenges. Sustainability 2022, 14, 2320. [Google Scholar] [CrossRef]
- Dajč, H. Razvoj i Propadanje Savskog Priobalja. Limes Plus Geopolit. Časopis 2012, 1–2, 123–139. [Google Scholar]
- Vučo, N. Razvoj Industrije u Srbiji u 19. Veku; SANU: Belgrade, Serbia, 1981; p. 201. [Google Scholar]
- Nikolic, M.; Blagojevic, M.R. Potentials of the Belgrade Industrial Heritage in the Context of Tourism Development. In Heritage for Planet Earth, (Proceedings of the 20th General Assembly of the International Experts of the Romualdo Del Bianco Foundation); Romualdo Del Bianco Foundation: Florence, Italy, 2018; pp. 93–99. ISSN 9788840474557. [Google Scholar]
- Mihajlov, S. Nastanak i razvoj industrijske zone na desnoj obali Dunava u Beogradu od 19. do sredine 20. veka. Nasleđe 2011, 12, 91–116. [Google Scholar]
- Nikolić, M.; Drobnjak, B.; Ćulafić, I.K. The Possibilities of Preservation, Regeneration and Presentation of Industrial Heritage: The Case of Old Mint “A.D.” on Belgrade Riverfront. Sustainability 2020, 12, 5264. [Google Scholar] [CrossRef]
- Petrović, D. Industrija i urbani razvoj Beograda. Industrija 2001, 27, 87–94. [Google Scholar]
- Jovanović, T. Prazni Prostori Srbije, Prva Faza Beograd; Zavod za Proučavanje Kulturnih Razlika: Belgrade, Serbia, 2010; p. 25. ISBN 978-86-81529-28-7. [Google Scholar]
- Kulenović, R. Industrial Heritage of Belgrade; Inprees: Belgrade, Serbia, 2010; p. 42. ISBN 978-86-8297-32-2. [Google Scholar]
- The Cultural Heritage Protection Institute of the City of Belgrade. Available online: https://beogradskonasledje.rs/kd/zavod/index.html (accessed on 26 December 2023).
- Antić, T. Industrial Heritage Objects as New Centers of Art and Culture. Available online: https://www.culturalmanagement.ac.rs/uploads/research_file_1/6a02dbd563047f41f7852ce75183efef01f6d1b4.pdf (accessed on 24 January 2024).
- Kadijević, A. Industrijska arhitekura Beograda i Srbije: Problemi istraživanja i tumačenja. God. Grada Beogr. 2012, 59, 11–36. [Google Scholar]
- Nikolić, M.; Vukmirović, M. Industrial Heritage along Belgrade waterfront in planning documents. Arhit. Urban. 2020, 51, 86–103. [Google Scholar] [CrossRef]
- Šurdić, B. Industrijsko nasleđe—Kulturna platforma XXI veka ERIH—Evropski put industrijskog nasleđa. Glas. Drus. Konzerv. Srb. 2009, 32, 12–16. [Google Scholar]
- Graf, M. Industrial Cultural Routes. J. Energy Econ. Ecol. 2013, 2, 328–335. [Google Scholar]
- Cizler, J. Industrijsko nasleđe kao potencijal za razvoj kreativne ekonomije. In Kreativna i Kolaborativna Ekonomija i Lokalni Razvoj; Đerić, A., Ed.; Academica-Akademska Grupa: Beograd, Serbia, 2014; pp. 21–32. ISBN 978-86-88835-07-7. [Google Scholar]
- The Cultural Heritage Protection Institute of the City of Belgrade. Available online: https://beogradskonasledje.rs/wp-content/uploads/2013/06/Livnica-Pantelic.pdf (accessed on 24 January 2024).
- Decision on determining immovable cultural assets of exceptional importance and great importance [Odluka o utvrđivanju nepokretnih kulturnih dobara od izuzetnog značaja i od velikog značaja]. In Official Gazette of the Republic of Serbia [Službeni glasnik Republike Srbije] No. 14/1979; Službeni Glasnik: Belgrade, Serbia, 1979.
- Mišić, B. Hangar Starog aerodroma—Svedočanstvo prvog vazdušnog pristaništa u Beogradu [Improvement of the teaching process in the field of built heritage studies through a multidisciplinary approach to the revitalisation and adaptation of Belgrade‘s industrial heritage: Hangar of the old Belgrade Airport]. Nasleđe 2013, XIV, 95–114. [Google Scholar]
- The Cultural Heritage Protection Institute of the City of Belgrade. Available online: https://beogradskonasledje.rs/izdvajamo/hangar-starog-aerodroma-u-novom-beogradu?_rstr_nocache=rstr680647df8bb8a6ac (accessed on 12 December 2023).
- Interior. Available online: https://enterijermagazin.com/enterijer-110/airport-city-belgrade-2/ (accessed on 12 December 2023).
- Latinčić, O. Valerij Vladimirovič Staševski (1882-?) u Beogradu—Podaci iz arhivske građe Istorijskog arhiva Beograda (Belgrade—Data from the archives of the Historical Archive of Belgrade). Nasleđe 2011, XII, 169–196. [Google Scholar]
- Đurđević, M. Prilog proučavanju delatnosti arhitekte Valerija Vladimiroviča Staševskog u Beogradu. In Godišnjak Grada Beograda; XLV–XLVI; Muzej Grada Beograda: Belgrade, Serbia, 1999; pp. 151–171. [Google Scholar]
- The Cultural Heritage Protection Institute of the City of Belgrade. Available online: https://beogradskonasledje.rs/kd/zavod/stari_grad/moderna_garaza.html (accessed on 11 January 2024).
- Auto Museum. Available online: https://www.automuseumbgd.com/en/museum/ (accessed on 30 December 2023).
- Decision on determining the Modern Garage in Belgrade as a cultural monument [Odluka o utvrđivanju Moderne garaže u Beogradu za spomenik kulture]. In Official Gazette of the Republic of Serbia [Službeni glasnik Republike Srbije] br. 51; Službeni Glasnik: Belgrade, Serbia, 1997.
- Collier, M.C. The Archaeological Automobile: Understanding and Living with Historical Automobiles; Collier AutoMedia: Naples, FL, USA, 2022. [Google Scholar]
- Collier, M. Archaeology and the automobile. In The Routledge Companion to Automobile Heritage, Culture, and Preservation; Stiefel, B.L., Clark, J., Eds.; Routledge: London, UK; New York, NY, USA, 2019; pp. 47–57. [Google Scholar]




















Disclaimer/Publisher’s Note: The statements, opinions and data contained in all publications are solely those of the individual author(s) and contributor(s) and not of MDPI and/or the editor(s). MDPI and/or the editor(s) disclaim responsibility for any injury to people or property resulting from any ideas, methods, instructions or products referred to in the content. |
© 2024 by the authors. Licensee MDPI, Basel, Switzerland. This article is an open access article distributed under the terms and conditions of the Creative Commons Attribution (CC BY) license (https://creativecommons.org/licenses/by/4.0/).
Share and Cite
Nikolić, M.; Šćekić, J.; Drobnjak, B.; Takač, E. Examined in Theory—Applicable in Practice: Potentials of Sustainable Industrial Heritage Conservation in a Contemporary Context—The Case of Belgrade. Sustainability 2024, 16, 2820. https://doi.org/10.3390/su16072820
Nikolić M, Šćekić J, Drobnjak B, Takač E. Examined in Theory—Applicable in Practice: Potentials of Sustainable Industrial Heritage Conservation in a Contemporary Context—The Case of Belgrade. Sustainability. 2024; 16(7):2820. https://doi.org/10.3390/su16072820
Chicago/Turabian StyleNikolić, Marko, Jelena Šćekić, Boško Drobnjak, and Ena Takač. 2024. "Examined in Theory—Applicable in Practice: Potentials of Sustainable Industrial Heritage Conservation in a Contemporary Context—The Case of Belgrade" Sustainability 16, no. 7: 2820. https://doi.org/10.3390/su16072820
APA StyleNikolić, M., Šćekić, J., Drobnjak, B., & Takač, E. (2024). Examined in Theory—Applicable in Practice: Potentials of Sustainable Industrial Heritage Conservation in a Contemporary Context—The Case of Belgrade. Sustainability, 16(7), 2820. https://doi.org/10.3390/su16072820

