Simulation and Analysis of Factors Influencing Climate Adaptability and Strategic Application in Traditional Courtyard Residences in Hot-Summer and Cold-Winter Regions: A Case Study of Xuzhou, China
Abstract
1. Introduction
2. Overview of the State of the Art and Background Context
2.1. Research on the Optimization of Building Performance in Hot-Summer and Cold-Winter Areas
2.2. Energy-Saving Strategies for Traditional House
2.3. Optimization Strategy of Combined Residential Building
2.4. Research Review
3. Methodology
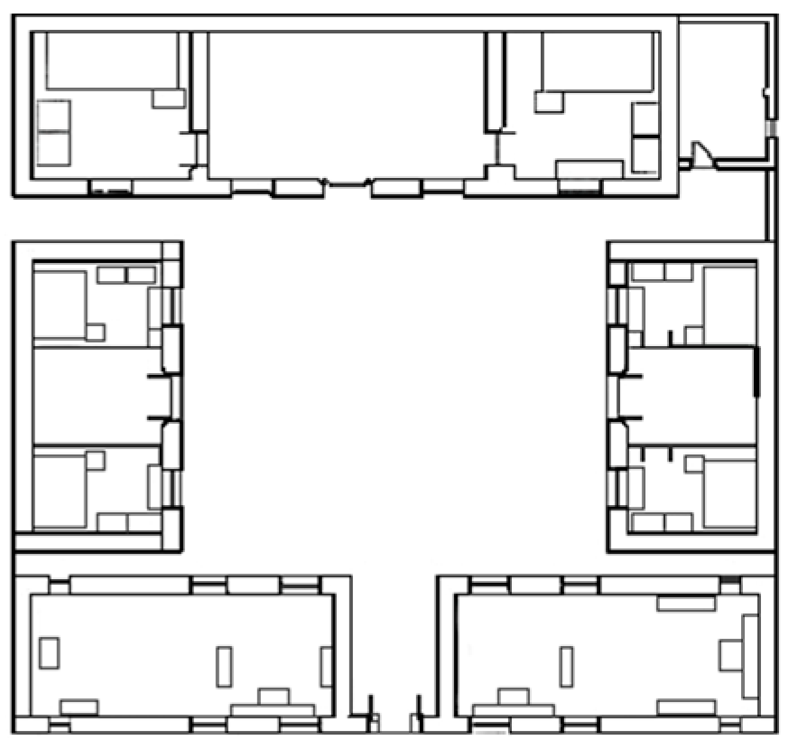
3.1. Research Area
3.2. Preliminary Work
3.3. Ecotect Software Applications in Thermal Simulation Studies
3.4. Phoenics Software for Wind Environment Modeling
4. Thermal Environment Analysis
4.1. Building Orientation
4.2. Ratio of Building Openings to Depths
4.3. Window-to-Wall Ratio
4.4. Roof Slope
4.5. Simulation Results
5. Wind Environment Analysis
5.1. Window-to-Wall Ratio
5.2. Window Opening Method
5.3. Proportion of Courtyard Plan
5.4. Building Height
5.5. Simulation Results
6. Analysis of Factors Affecting Energy Consumption in Quadrangle Courtyards
6.1. Reconstruction Strategies for Quadrangle Layouts
6.2. Modifications to Traditional Residential Buildings
6.3. New Construction in Historic Districts
7. Conclusions, Suggestions, and Insufficient Research
7.1. Conclusions
- A.
- Classification of Courtyard Types and Size Ratios
- B.
- Thermal Environment and Optimization Strategies
- C.
- Wind Environment and Window Design
- D.
- Energy-Saving Potential of Traditional Architecture
7.2. Suggestions
- (1)
- Thermal environment
- A.
- The simulation analysis indicates that the optimal orientation for Xuzhou is 20° southeast, with 30° southeast and 20° southwest falling within a favorable orientation range;
- B.
- For courtyard-facing windows, a window-to-wall ratio of 0.1 is preferred, followed by ratios of 0.25 and 0.30;
- C.
- Based on solar altitude angle calculations and software simulations, a roof slope of 35° is deemed more appropriate for Xuzhou;
- D.
- Enhancing buildings in Xuzhou with ventilation combined with high thermal mass envelopes significantly improves indoor comfort.
- (2)
- Wind environment aspects
- A.
- A window-to-wall ratio of 0.35 is considered more appropriate for courtyard-facing buildings;
- B.
- Among window types, casement windows tend to cause excessive indoor wind speeds, whereas pivot windows result in relatively gentler indoor wind conditions;
- C.
- The wind environment in the courtyard improves when the width-to-length ratio of the courtyard is 1.7;
- D.
- Considering only the height of a single story, a courtyard with a main house height of 4.5 m provides a better wind environment;
- E.
- In terms of the courtyard layout, the indoor wind environment is ranked as follows: east room > west room > main room > inverted seat.
7.3. Insufficient Research
- A.
- The influencing factors of traditional residential buildings in Xuzhou were analyzed, and the optimization of dimensions was explored; however, the simulation results are based on idealized models. As a result, the conclusions drawn are primarily theoretical and should be regarded as reference only.
- B.
- Traditional residential buildings in Xuzhou typically appear in clusters, but the complexity of their surrounding environment makes it difficult to accurately simulate real-world conditions. Only a single courtyard model was selected for simulation in this study, without accounting for the surrounding environment. Additionally, factors such as window airtightness and the specific timing of window openings were omitted in the individual settings.
- C.
- Traditional residential buildings are influenced by various interacting factors in reality. However, this paper primarily addresses individual factors without considering the combined effects of these interactions. Therefore, the findings require further in-depth investigation.
Author Contributions
Funding
Institutional Review Board Statement
Informed Consent Statement
Data Availability Statement
Conflicts of Interest
References
- Harkouss, F.; Fardoun, F.; Biwole, P.H. Passive design optimization of low energy buildings in different climates. Energy 2018, 165, 591–613. [Google Scholar] [CrossRef]
- IEA. Transition to Sustainable Buildings: Strategies and Opportunities to 2050; IEA Publication: Paris, France, 2013. [Google Scholar]
- IEA. Key World Energy Statistics. Available online: https://www.iea.org/reports/key-world-energy-statistics-2020 (accessed on 20 September 2023).
- Chen, Y. Study on the Influencing Factors of Low-Carbon Energy-Saving Retrofit of Public Buildings Under the Background of Dual Carbon Goals. Master’s Dissertation, Beijing University of Civil Engineering and Architecture, Beijing, China, 2023. [Google Scholar]
- Tsinghua University Building Energy Research Centre (TUBERC). 2014 Annual Report on China Building Efficiency; Architecture and Building Press: Beijing, China, 2014. (In Chinese) [Google Scholar]
- Hu, S.; Yan, D.; Cui, Y.; Guo, S. Urban residential heating in hot summer and cold winter zones of China—Status, modeling, and scenarios to 2030. Energy Policy 2016, 92, 158–170. [Google Scholar] [CrossRef]
- Roaf, S.; Horsley, A.; Gupta, R. Closing the Loop: Benchmarks for Sustainable Buildings; RIBA Enterprises: London, UK, 2003. [Google Scholar]
- Nicol, F.; Roaf, S.; Crichton, D. Adapting Buildings and Cities for Climate Change: A 21st Century Survival Guide, 2nd ed.; Architectural Press: Oxford, UK, 2009. [Google Scholar]
- Hashemi, N.; Fayaz, R.; Sarshar, M. Thermal behaviour of a ventilated double skin facade in hot arid climate. Energy Build. 2010, 42, 1823–1832. [Google Scholar] [CrossRef]
- Fathy, H. Natural Energy and Vernacular Architecture; University of Chicago Press: Chicago, IL, USA, 1986. [Google Scholar]
- Drew, P. Tropical Architecture: Traditional and Modern; Barrie & Jenkins: London, UK, 1971. [Google Scholar]
- Zhong, J.; Zhang, X.; Yang, Y. Thermodynamic renovations in traditional Huizhou folk dwellings: A case study. Int. J. Heat Technol. 2023, 41, 1–12. [Google Scholar] [CrossRef]
- Hao, F.Y.; Tao, Y.Z.; Jiang, L.; Xu, X. Optimum insulation thickness of external walls by integrating indoor moisture buffering effect: A case study in the hot-summer-cold-winter zone of China. J. Zhejiang Univ.-Sci. A 2023, 23, 998–1012. [Google Scholar]
- Huberman, N.; Pearlmutter, D. A life-cycle energy analysis of building materials in the Negev desert. Energy Build. 2008, 40, 837–848. [Google Scholar] [CrossRef]
- Judkoff, R. Measurement of Energy, Demand, and Water Savings: ASHRAE Guideline 14-2014; American Society of Heating, Refrigerating and Air-Conditioning Engineers: Atlanta, GA, USA, 2014. [Google Scholar]
- Yang, S. Studies on the Performances of Building Integrated Photovoltaic/Thermal Double-Skin Facade for Commercial Buildings in Australia. Ph.D. Thesis, University of New South Wales, Sydney, Australia, 2020. [Google Scholar]
- Indraganti, M. Understanding the climate sensitive architecture of Marikal, a village in Telangana region in Andhra Pradesh, India. Build. Environ. 2010, 45, 2709–2722. [Google Scholar] [CrossRef]
- Li, M.; Tang, H.X. An experimental study of Lu Yuan-ding’s view of traditional Chinese residential architecture. New Archit. 2019, 0, 123–127. [Google Scholar]
- Iqbal, S.P. Scenic and Scientific Representation of Water in Mughal Architecture: A case study of ShahJahan’s Quadrangle Lahore Fort, Pakistan. Proc. Int. Conf. Cult. Sustain. Tour. 2018, 2, 101–111. [Google Scholar] [CrossRef]
- Khatibi, M. Typology and Solar Gain Analysis: Vernacular Courtyard Houses of Tabriz. Iran. Int. J. Environ. Sci. Sustain. Dev. 2019, 4, 56–76. [Google Scholar] [CrossRef]
- Oliver, P. Approaches to Software Engineering. J. Inf. Syst. Manag. 1985, 2, 11–19. [Google Scholar] [CrossRef]
- Mohammadi, A.; Nasrollahi, F.; Saghafi, M.R.; Tahbaz, M. Data for: The Study of Climate-Responsive Solutions in Traditional Dwellings of Bushehr City in Southern Iran. J. Build. Eng. 2017, 1, 169–183. [Google Scholar]
- Rong, W.; Bahauddin, A.; Xiao, M. Floating Hutongs Life to Diminishing Confucian Courtyard Narratives in Jinan, China. J. Asian Archit. Build. Eng. 2023, 22, 1–19. [Google Scholar] [CrossRef]
- Chen, D.; Sun, D.; Lin, Y. Preservation or Revitalization? Examining the Conservation Status and Destructive Mechanisms of Tulou Heritage in Raoping, Chaozhou, China. Int. J. Archit. Herit. 2024, 1, 1–16. [Google Scholar] [CrossRef]
- Huang, Y.; Zhang, C.; Xiang, H.; Xiang, X.; Liu, X.; Chen, J. Development Types and Design Guidelines for the Conservation and Utilization of Spatial Environment in Traditional Villages in Southern China. J. Asian Archit. Build. Eng. 2023, 23, 1699–1716. [Google Scholar] [CrossRef]
- Steffen, L.; Ken, Y. Meeting with the Green Urban Planner: A Conversation Between Ken Yeang and Steffen Lehmann on Eco-Masterplanning for Green Cities. J. Green Build. 2010, 5, 36–40. [Google Scholar]
- Lamberti, G.; Contrada, F.; Kindinis, A. Exploring adaptive strategies to cope with climate change: The case study of Le Corbusier’s Modern Architecture retrofitting. Energy Build. 2024, 302, 113756. [Google Scholar] [CrossRef]
- Huang, L.J.; Lan, B. From locality to sustainability: The development and inspiration of climate adaptation research on foreign vernacular architecture. J. Archit. 2011, S1, 103–107. [Google Scholar]
- Sun, L.; Ding, S.H. Research on Building Layout of Xuzhou Mining Residential Area Based on Wind Environment Simulation. J. Shenyang Archit. Univ. Soc. Sci. Ed. 2017, 19, 109–115. [Google Scholar]
- Wang, H.U. Temporal analysis of natural disasters in Xuzhou. Cai Zhi 2018, 23, 243–244. [Google Scholar]
- Lu, X.; Li, H.M.; Ding, B.; Chen, Y.Y. Climate coping strategies for traditional residential houses in hot summer and cold winter transition areas: An empirical analysis based on the Yu Family Residence in Hube Mountain, Xuzhou. Jiangsu Archit. 2017, 5, 107–112. [Google Scholar]
- Zhang, D.; Shi, Z.; Cheng, M. A study on the spatial pattern of traditional villages from the perspective of courtyard house distribution. Buildings 2023, 13, 1913. [Google Scholar] [CrossRef]
- Zhang, F.; Shi, L.; Liu, S.; Shi, J.; Ma, Q.; Zhang, J. Climate adaptability based on indoor physical environment of traditional dwelling in North Dong areas, China. Sustainability 2022, 14, 850. [Google Scholar] [CrossRef]
- Qi, Y.; Stern, N.; He, J.K.; Lu, J.Q.; Liu, T.L.; King, D.; Wu, T. The policy-driven peak and reduction of China’s carbon emissions. Adv. Clim. Chang. Res. 2020, 11, 65–71. [Google Scholar] [CrossRef]
- Lu, J.; Li, J. Research on the structure of traditional residential energy-saving in hot-summer and cold-winter zone. In Advances in Structural Engineering, Pts 1-3, Proceedings of the International Conference on Civil Engineering and Transportation (ICCET 2011), Jinan, China, 14–16 October 2011; Zhou, X.J., Ed.; Trans Tech Publications Ltd.: Wollerau, Switzerland, 2011; Volume 94–96, p. 1378. [Google Scholar]
- Huang, M.Q.; Li, J.H. Analysis on energy-saving path of rural buildings in hot summer and cold winter zone. In Proceedings of the International Conference on Energy Engineering and Environmental Protection (EEEP2017), Sanya, China, 20–22 November 2017; Volume 121. [Google Scholar]
- Lei, Z.; Gao, Z.; Zhou, L. Exploitation of microclimate diversity and transitional space adaptability focused on the residence interior: An example of the hot summer and cold winter zone in China. In Sustainable Cities Development and Environment Protection, Pts 1-3, Proceedings of 3rd International Conference on Civil Engineering, Architecture and Building Materials (CEABM 2013), Jinan, China, 25–26 May 2013; Xu, N., Tian, L., Dai, F., Eds.; Trans Tech Publications Ltd.: Wollerau, Switzerland, 2013; Volume 361–363, pp. 472–475. [Google Scholar]
- Peng, L.; Qun, Z.; Kaiyang, Z.; Youman, W.; Qing, W. Climate adaptation and indoor comfort improvement strategies for buildings in high-cold regions: Empirical study from Ganzi Region, China. Sustainability 2022, 14, 850. [Google Scholar] [CrossRef]
- Li, J.G.; Liu, J.P.; Yang, L. A field study of thermal comfort in residential buildings in winter in the hot-summer and cold-winter climate region. In Fifth International Workshop on Energy and Environment of Residential Buildings and Third International Conference on Built Environment and Public Health, Vol I and II, Proceedings, Guilin, China, 29 October–2 November 2011; Zhang, Q., Leung, M., Wang, X.K., Liu, Y.J., Mo, J.H., Eds.; Springer: Berlin, Germany, 2011. [Google Scholar]
- Tao, Z.; Qinian, H.; Qi, D.; Dian, Z.; Weijun, G.; Hiroatsu, F. Towards a rural revitalization strategy for the courtyard layout of vernacular dwellings based on regional adaptability and outdoor thermal performance in the gully regions of the Loess Plateau, China. Sustainability 2021, 13, 13074. [Google Scholar] [CrossRef]
- Gong, X.; Li, Y.; Cai, J.; Ma, Z.; He, S.; Pan, B.; Lei, X. A statistical analysis of energy consumption survey of public buildings in a hot summer and cold winter coastal zone of China. Buildings 2023, 13, 2685. [Google Scholar] [CrossRef]
- Lamrhari, E.D.; Benhamou, B. Thermal behavior and energy saving analysis of a flat with different energy efficiency measures in six climates. Build. Simul. 2018, 11, 1123–1144. [Google Scholar] [CrossRef]
- Shi, F.; Yu, Z. Study on thermal behavior of an experimental low-energy building in the hot summer and cold winter zone of China. J. Asian Archit. Build. 2016, 15, 503–510. [Google Scholar] [CrossRef]
- Wei, N.; Zheng, W.X.; Zhang, N.; Zhao, S.K.; Zhai, Y.C.; Yang, L. Field study of seasonal thermal comfort and adaptive behavior for occupants in residential buildings of Xi’an, China. J. Cent. South Univ. 2022, 29, 2403–2414. [Google Scholar] [CrossRef]
- Li, B.; Yu, W.; Liu, M.; Li, N. Climatic strategies of indoor thermal environment for residential buildings in Yangtze River Region, China. Indoor Built Environ. 2011, 20, 101–111. [Google Scholar]
- Jiang, D.M.; Shan, J.D.; Ji, L.J. Research on the impact of external window performance on energy consumption of residential buildings in hot summer and cold winter regions. Jiangsu Build. 2018, S1, 115–118. [Google Scholar]
- Huo, H.; Deng, X.; Wei, Y.; Liu, Z.; Liu, M.; Tang, L. Optimization of energy-saving renovation technology for existing buildings in a hot summer and cold winter area. J. Build. Eng. 2024, 86, 108597. [Google Scholar] [CrossRef]
- Zeng, Z.W.; Li, L.; Pang, Y. Analysis on climate adaptability of traditional villages in Lingnan, China-World Cultural Heritage Site of Majianglong Villages as example. Procedia Eng. 2017, 205, 2011–2018. [Google Scholar] [CrossRef]
- Min, T.Y.; Zhang, T. Study on the climate adaptability of architectural interface opening in Suzhou’s regional residences. In Fourth International Conference on Countermeasures to Urban Heat Island (UHI 2016), Singapore, 30 May–1 June 2016; Wong, N.H., Jusuf, S.K., Eds.; Springer: Singapore, 2016; Volume 169, pp. 108–116. [Google Scholar]
- Xu, J.; Lu, Z.L.; Gao, W.J.; Yang, M.S.; Su, M.L. The comparative study on the climate adaptability based on indoor physical environment of traditional dwelling in Qinba mountainous areas, China. Energy Build. 2019, 197, 140–155. [Google Scholar]
- Zhang, H.; Zheng, L.H. Microclimate simulation of residential landscape design based on Ecotect and Phoenics. Shanxi Archit. 2014, 40, 10–12. [Google Scholar]



















| Case | Coldest Day | Hottest Day | ||||
|---|---|---|---|---|---|---|
| Maximum Temperature | Minimum Temperature | Average Temperature | Maximum Temperature | Minimum Temperature | Average Temperature | |
| 1 | −1.4 | −5.8 | −4.1 | 36.5 | 31.4 | 33.97 |
| 2 | −1.6 | −5.9 | −3.99 | 36.6 | 31.5 | 34.03 |
| 3 | −1.1 | −6.2 | −4.17 | 36.7 | 31.2 | 33.94 |
| 4 | −1 | −6.3 | −4.2 | 36.7 | 31.1 | 33.92 |
| 5 | −1.1 | −6.3 | −4,19 | 36.7 | 31.2 | 33.93 |
| 6 | −0.8 | −6.5 | −4,27 | 36.7 | 31 | 33.86 |
| Case | Wind Speed Cloud Map | Wind Speed Range | Maximum Wind Speed Range | Wind Speed Ranges in the Ratio of 0.3–0.8 m/s | Air Age Conglomerate | Air Age Range |
|---|---|---|---|---|---|---|
| 1 | ![]() | 0.15~0.78 | 0.15~0.31 | 0.50 | ![]() | 31.25~62.50 |
| 2 | ![]() | 0.15~0.78 | 0.15~0.31 | 0.95 | ![]() | 31.25~62.50 |
| 3 | ![]() | 0.15~0.78 | 0.31~0.46 | 0.65 | ![]() | 25.00~43.75 |
| 4 | ![]() | 0.15~0.78 | 0.31~0.46 | 0.95 | ![]() | 25.00~37.50 |
| 5 | ![]() | 0.15~0.78 | 0.31~0.46 | 0.95 | ![]() | 25.00~37.50 |
| 6 | ![]() | 0.15~0.78 | 0.31~0.46 | 0.82 | ![]() | 25.00~37.50 |
| Situation | Wind Speed Range | Maximum Wind Speed Range | Wind Speed Ranges in the Ratio of 0.3–0.8 m/s | Air Age Range |
|---|---|---|---|---|
| casement window | 0.28~1.31 | 0.28~0.37 | 0.65 | 25~50 |
| pivot window | 0.09~1.21 | 0.56~0.65 | 0.69 | 15~37 |
| Case 1 | Case 2 | Case 3 | Case 4 | Case 5 | Case 6 | |
|---|---|---|---|---|---|---|
| Compound W: Depth L | W:L 0.7:1 | W:L 0.9:1 | W:L 1.1:1 | W:L 1.3:1 | W:L 1.5:1 | W:L 1.7:1 |
Disclaimer/Publisher’s Note: The statements, opinions and data contained in all publications are solely those of the individual author(s) and contributor(s) and not of MDPI and/or the editor(s). MDPI and/or the editor(s) disclaim responsibility for any injury to people or property resulting from any ideas, methods, instructions or products referred to in the content. |
© 2024 by the authors. Licensee MDPI, Basel, Switzerland. This article is an open access article distributed under the terms and conditions of the Creative Commons Attribution (CC BY) license (https://creativecommons.org/licenses/by/4.0/).
Share and Cite
Zhang, M.; Fang, Z.; Liu, Q.; Zhang, F. Simulation and Analysis of Factors Influencing Climate Adaptability and Strategic Application in Traditional Courtyard Residences in Hot-Summer and Cold-Winter Regions: A Case Study of Xuzhou, China. Sustainability 2024, 16, 8676. https://doi.org/10.3390/su16198676
Zhang M, Fang Z, Liu Q, Zhang F. Simulation and Analysis of Factors Influencing Climate Adaptability and Strategic Application in Traditional Courtyard Residences in Hot-Summer and Cold-Winter Regions: A Case Study of Xuzhou, China. Sustainability. 2024; 16(19):8676. https://doi.org/10.3390/su16198676
Chicago/Turabian StyleZhang, Minghao, Zhezhe Fang, Qian Liu, and Fangyu Zhang. 2024. "Simulation and Analysis of Factors Influencing Climate Adaptability and Strategic Application in Traditional Courtyard Residences in Hot-Summer and Cold-Winter Regions: A Case Study of Xuzhou, China" Sustainability 16, no. 19: 8676. https://doi.org/10.3390/su16198676
APA StyleZhang, M., Fang, Z., Liu, Q., & Zhang, F. (2024). Simulation and Analysis of Factors Influencing Climate Adaptability and Strategic Application in Traditional Courtyard Residences in Hot-Summer and Cold-Winter Regions: A Case Study of Xuzhou, China. Sustainability, 16(19), 8676. https://doi.org/10.3390/su16198676













