Next Article in Journal
The Optimal Logistics Distribution Service Strategy of the E-commerce Closed-Loop Supply Chain Network under Blockchain Technology and the Government Blockchain Subsidy
Previous Article in Journal
A Comprehensive Review on Control Technique and Socio-Economic Analysis for Sustainable Dynamic Wireless Charging Applications
 
 
Font Type:
Arial Georgia Verdana
Font Size:
Aa Aa Aa
Line Spacing:
Column Width:
Background:
Article

Techno-Economic Analysis of a High-Rise Residential Building Adapted to Nearly Zero-Energy Building Standards

by
Di Jiang
1,
Xueyan Li
2 and
Zhiyong Tian
3,*
1
Guangzhou Power Supply Bureau of Guangdong Power Grid Co., Ltd., Guangzhou 510620, China
2
China Southern Power Grid Big Data Services Co., Ltd., Guangzhou 510620, China
3
Hubei Key Laboratory of Multi-Media Pollution Cooperative Control in Yangtze Basin, School of Environmental Science & Engineering, Huazhong University of Science and Technology, 1037 Luoyu Road, Wuhan 430074, China
*
Author to whom correspondence should be addressed.
Sustainability 2024, 16(15), 6288; https://doi.org/10.3390/su16156288
Submission received: 26 May 2024 / Revised: 17 June 2024 / Accepted: 27 June 2024 / Published: 23 July 2024

Abstract

Zero-energy buildings have attracted great attention in China. Limited research about typical high-rise, zero-energy residential buildings in China was found. To figure out the potential of zero-energy buildings in northern China, a techno-economic analysis of a typical residential building adapted to the nearly zero energy building (NZEB) standards in the cold region of China was carried out in detail in this paper. Firstly, the feasibility of different building energy efficiency technologies was figured out in the passive design level. Secondly, the annual energy balance of the nearly zero-energy building model was investigated. Finally, detailed economic and environmental analyses were performed. The results show that the energy consumption of space heating and cooling of a typical high-rise, nearly zero-energy building could decrease to 11.1 kWh/(m2·a) in Beijing. The conclusions could provide a reference and design basis for the development of zero-energy residential buildings in northern China in the near future.

1. Introduction

The building sector consumes about 40% of society’s total energy consumption in developed countries, while that figure in China is about 20% [1]. Two-thirds of new buildings worldwide are being built in China. The percentage will definitely increase in the near future with the rapid development of a promising economy and urbanization in China. Furthermore, space heating and cooling systems have accounted for nearly 60% of building energy consumption in China. At the same time, China has the highest CO2 emissions. The development of zero-energy buildings is progressing very quickly around the world. Zero-energy buildings have recently gained much attention at the national level in China. A Chinese national guideline about nearly zero-energy buildings (NZEBs) was implemented in 2017 [2]. Zero-energy buildings may be a solution for the development of low-energy buildings in China, which can reduce primary energy consumption and [3] greenhouse gas emissions in the building sector, particularly in the cold region of China [4].

1.1. Brief Overview of NZEBs around the World

NZEBs have gained more attention worldwide since the publication of the EPBD recast of the Europe Commission in 2010. Many studies on NZEBs have been published since 2010, particularly in the European Union and North America. A lot of research on definitions about NZEBs have been carried out [5]. There are also some experiments about NZEBs. Bruni et al. [6] introduced a pilot zero-energy building in Italy in collaboration with the local builders association. Marszal et al. [7] discussed options of renewable energy supply for zero-energy buildings in Denmark. Marszal et al. [8] also performed a life-cycle cost analysis of a multi-story net-zero energy residential building in Denmark. Karlsson et al. [9] made a comprehensive investigation of a low-energy building in Sweden. Wang et al. [10] investigated the optimization design of a zero-energy house in the UK, taking advantage of energy to simulate the influence of building envelope, for instance, U-value of wall, U-value of window, WWR, orientation, building heating and cooling loads. TRNSYS was used to simulate the performance of a building energy system, which validated the feasibility of a typical house achieving zero energy in the UK. Rodriguez Ubinas et al. [11] performed continuous tests of 12 zero-energy buildings during two weeks and analyzed the performance of a passive design strategy. Eshraghi et al. [12] took a typical house in Tehran as an example and made a comprehensive analysis of solar energy potential for NZEBs. Sustainable materials, such as green concrete [13,14], are also important to develop nearly zero-energy building. Hinnells et al. [15] summarized the application of renewable technologies in buildings and emphasized the importance of technical innovation and high-efficiency equipment. Praene et al. [16] set up the NZEB concept for all Reunion Island and integrated all the renewable energies, including solar energy, wind energy, hydroelectricity, and biomass. Solar space heating systems and ground-source heat pumps for low-energy buildings are also investigated in many other studies [17]. Kai-Yun et al. [18] investigated the performance of smart energy management of a vehicle-to-building (V2B) strategy and renewable energy sources toward nearly zero-energy buildings. The Energy Performance of Buildings Directive requires EU countries to develop long-term renovation strategies aiming to facilitate the cost-effective transformations of existing buildings into NZEBs [19]. For residential buildings, most EU member states aim to have primary energy use not higher than 50 kWh/(m2·a). The maximal primary energy use ranges between 20 kWh/(m2·a) in Denmark, 33 kWh/(m2·a) in Croatia (Littoral), and 95 kWh/(m2·a) in Latvia. Several countries, such as Belgium (Brussels), Estonia, France, Ireland, Slovakia, the United Kingdom, Bulgaria, Denmark, Croatia (continental), Malta, and Slovenia aim at 45 or 50 kWh/(m2·a). From 2030, the standard for new buildings will be raised from nearly zero-energy buildings to zero-emission buildings in Europe.

1.2. Investigation of Building Energy Efficiency Standards in China

In the early 1980s, the Chinese government published the first standard on building energy efficiency. The development strategy on building energy efficiency in China can be divided into “three steps”:
(I.)
Residential building energy efficiency design standard (JGJ26-86) was published in 1986 with the aim to reduce energy consumption by 30% based on general residential buildings in 1980–1981.
(II.)
Residential building energy efficiency design standard (JGJ26-95) was published in 1996 with the aim to achieve a reduction of 30% compared to the energy consumption level in 1986, namely 50% of general residential buildings in 1981.
(III.)
Building energy standards in 2008 have required the reduction of 30% based on the energy consumption level in 1996, which means that energy consumption should be decreased by 65% compared with that in 1981. Nowadays, some local standards, such as for Beijing, Shanghai, and Chongqing, have taken the first step toward 75% of building energy efficiency since 2012 compared to that in 1981.
Building standards in Europe are more strictly defined than in China. So, the building efficiency standard in China has huge potential to be strengthened. High-performance buildings, even zero-energy buildings are the future trend of development in energy efficiency building in China.
Feng et al. [20] performed an economic analysis on better building envelopes in energy-saving renovations of existing residential buildings. Zhang et al. [21] analyzed the application of ground-source heat pumps in a nearly zero-energy, four-story office building in Beijing, China. Jin et al. [22] performed a simulation and feasibility study about a pilot zero-energy, single-family building in Shanxi, in northern China. The results of single-family buildings cannot provide a reference for the development of zero-energy high-rise buildings. Zhou et al. [23] presented the operation of the operational performance of net “zero-energy buildings” via the case study of an office building in Tianjin, China. The studied office building is not the common office building type in China. Li et al. [24,25] discussed the operation of a ground-source heat pump and solar air-conditioning systems in a pilot office building in Beijing. Yang et al. [2] proposed the medium- to long-term building energy efficiency upgrading goals in China for the next three decades. A huge potential market for zero-energy buildings in China has been shown. Luo et al. [26] carried out a comprehensive energy, economic, and environmental assessment of a building with an integrated photovoltaic–thermoelectric system with battery storage for a net-zero-energy building.

1.3. Scope of NZEBs in China

As is shown in Figure 1, the heating energy consumption in northern China takes up a quarter of building energy consumption in China. Space heating and domestic hot water heating account for nearly half of energy consumption in the building sector. NZEBs have achieved enormous success in northern Europe, which has a similar climate to the cold area in China. Therefore, the application of NZEBs will make sense for building energy efficiency in northern China and will significantly reduce the energy consumption of space heating in the building sector.
In general, researchers in developed countries focused on detached single-family houses. Solar domestic hot water systems, ground-source heat pump systems, PV systems, and wind turbine systems were analyzed to investigate the annual energy balance of the target buildings in developed countries. While most residential buildings in China are high-rise buildings, detached single-family houses are very rare in the urban areas of China. Therefore, several building energy systems of NZEBs in developed countries may not be applicable in China, especially for wind turbine systems and ground-source heat pump systems. The practical experience of NZEBs in developed countries may not work well in China. In addition, China has the most new construction than any country in the world. The application of NZEBs will be a good solution to reduce the energy consumption in the building sector. Zhang et al. [28] investigated the contribution of nearly zero-energy building standard enforcement to achieve carbon neutrality in urban areas by 2060. It is found that to achieve carbon neutrality by 2060, the upgrading of building energy standards to NZEBs will contribute 50.1% to carbon reduction.
The research question of this study is the techno-economic feasibility of a high-rise residential building adapted to a nearly zero-energy building standard under Beijing weather conditions. The previous papers mainly show the technical performances of the demo buildings in China. An economic analysis was not included in the previous research of NZEBS in China, which is the most important for the commercial development of ZEBs in the near future. There are many publications about the theoretical and experimental studies about detached single-family houses. The existing research is mainly about single-family houses in Europe, which are not common in China. High-rise residential buildings are the most common building type in the cities of China. However, limited studies about the potential of high-rise buildings being upgraded to nearly zero-energy buildings were found. A typical and universal high-rise zero-energy building model in China was set up. This paper presents the detailed techno-economic analysis of a zero-energy residential building in the north of China.

2. System Description

There are four subsystems in this study: (a). The building model; a 12-floor plank-type high-rise building with a total area of 5466 m2 was modeled to simulate the feasibility of NZEBs. (b). Heating and cooling systems; (c). Balcony wall-mounted solar domestic hot water system (SDHW); (d). Photovoltaic system (PV) on the roof.

2.1. Weather Conditions

According to the Chinese Thermal Design Code for Civil Buildings (GB50176-93) [29], China is divided into five thermal building design areas (Figure 2). The five thermal design areas in China are severe cold area, cold area, hot summer and cold winter area, hot summer and warm winter area, and temperate area. Obviously, it is difficult to define a common standard for building design in China. The thermal design code aims to establish design indicators for residential buildings and public buildings, which should conform to local climate characteristics. The cumulative coldest monthly mean temperature (January) and cumulative hottest monthly average temperature (July) are regarded as the main indexes to define these thermal areas, while cumulative daily average temperature (≤5 °C or ≥25 °C) is an assistant index.
Based on the related definitions of Thermal Design Code for Civil Buildings (GB50176-93), Beijing is a typical city in the cold area of China. Figure 3 and Figure 4 show the hourly dry-bulb temperature and global horizontal radiation in Beijing, respectively. Low temperatures in Beijing in winter can be around −15 °C, while the high temperatures in the summer can be close to 35 °C, respectively. Space heating in the winter season and space cooling in the summer season are necessary in Beijing. Parameters in Beijing in typical meteorological year were used as the input design parameters of both the reference and the NZEB model.

2.2. The Building Model

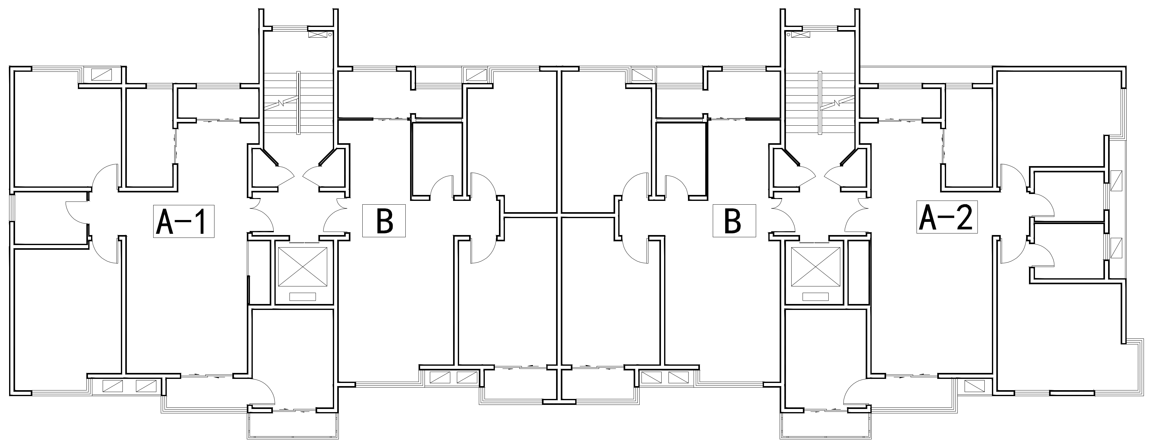
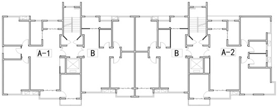
A typical and universal high-rise, zero-energy building model in China was set up. A 12-floor, plank-type, high-rise building with a total area of 5466 m2 was modeled to simulate the feasibility of NZEBs. The building has 48 families in total. Figure 5 and Figure 6 illustrate the layout of the building model. Three kinds of apartments (A-1, B, and A-2) were included in the building. Every apartment consists of bedroom, kitchen, living room, and bathroom. Total floor area of the building is 5466 m2. Parameters of the model in TRNSYS can be found in Table 1.
External envelope parameters of the high-performance ZEB building are based on passive house standards of Germany and domestic demonstration projects in China (China’s national nearly zero-energy building standard [31]). Furthermore, the design requirement of airtightness in passive houses were followed: at a differential pressure of 50 Pa, N ≤ 0.6 times/h, the airtightness of the reference building is 0.17 times/h.

2.3. Energy Systems

The space heating of most urban residential buildings in northern China is normally supplied by district heating networks. Therefore, the reference building model was simulated by using district heating in winter, while air-source heat pump (ASHP) was used for cooling in summer.
However, the heat load was lowered after NZEBs were adopted. With the rapid technological development of low-temperature air-source heat pumps (ASHPs), air-source heat pump systems are becoming a proper way to cover both the heating and cooling demand of NZEBs on a yearly basis. In addition, ASHP is not only flexible for users to control, but also can meet personalized thermal comfort requirements of different families. ASHP is used for space heating and cooling for the NZEBs. Bee et al. [32] evaluated the potential of energy self-consumption of air-source heat pumps and photovoltaic systems for residential heating and cooling in different European climates
Electric water heater system was assumed for domestic hot water production in the reference building. Solar hot water systems attached to the balcony wall were used in the zero-energy building model. The tilt of the solar collector is 50°. The aperture area of solar collector per house hold is 1.8 m2. Back-up electric water heater is used in the solar hot water system. The efficiency of heat recovery unit of fresh air unit in NZEBs is 70%. PV roof (monocrystalline cells, polycrystalline cells, and thin-film cells) was simulated to provide renewable electricity for the air-source heat pump.

3. Results and Discussions

3.1. Annual Space Heating and Cooling Loads

The annual space heating and cooling loads of the reference building and NZEBs are shown in Figure 7. The total space heating and cooling loads of NZEBs are much lower than the reference building. This indicates that the current standard of Beijing residential buildings have huge potential to be promoted to NZEBs. The main contribution of the decreasing energy load is due to the reduction in heating load.

3.2. Annual Space Heating and Cooling Consumption

As is shown in Figure 8, the annual energy consumption of the reference building is 30.33 kWh/(m2·a). There is a slight increase in building cooling energy consumption by the use of the NZEBs, which is similar to the comparison shown in Figure 7. The energy consumption of the reference building is 30.33 kWh/(m2·a), while that of the NZEBs with HRV is only 11.1 kWh/(m2·a). More than 50% energy consumption can be saved.

3.3. Sensibility Analysis

There are different kinds of building efficiency technologies for residential buildings. Exterior thermal insulation, roof thermal insulation, low-e glass, inside shade, and fresh air heat recovery system were analyzed in the investigations. “Energy-saving rate” is defined in this paper as the ratio of the annual building heating and cooling load reduction with the specific technology between the annual building heating and cooling load reduction without the specific technology. The energy-saving rates of the first four items were calculated through the reference building, while that of the fresh air heat recovery system was based on the high-performance building without HRV. The reason is that there is no fresh air system in the reference building.
Figure 9 shows that the energy-saving rates of the wall insulation, low-e glass, and fresh air heat recovery system were 15.8%, 13.2%, and 27.6%, respectively. It can be found that the envelope with the wall insulation and window is very important to reduce the energy load. Because the area of the roof is limited for high-rise buildings, the energy-saving rate is around 4%.

3.4. Electricity Production of Rooftop PV System

Even though the NZEBs consumed much less energy compared to the reference building, the electricity of rooftop PV systems should be used to supply the low-energy consumption to achieve NZEBs. So, the building works well with as little fossil energy as possible. One of the most important design principles of NZEBs is to provide renewable electricity for the low-energy building. Domestic hot water is supplied by a solar heating system with the collectors mounted on the building’s façade. This study took advantage of the vacant roof to supply renewable PV electricity to the building. Monocrystalline silicon, polycrystalline silicon, and thin-film cells are frequently used in the PV system. There are both advantages and disadvantages to these three kinds of PV cells. PVsyst is used to simulate the annual electricity production of PV arrays on a roof. The annual electricity production of PV on the roof is shown in Figure 10.
Figure 10 illustrates the annual electricity production of three kinds of PV materials. Monocrystalline cells produce the most electricity among the three materials. Production of the monocrystalline cells is 1.15 times more than that of the polycrystalline cells and 1.87 times more than that of the thin-film cells. To maximize the potential of NZEBs, the annual electricity production of monocrystalline (102,269 kWh) was used as the available renewable electricity supply of the building model for analysis in this study.

3.5. Analysis of Annual Energy Balance

To discuss the energy balance of the building model, the energy consumption of space heating, cooling, and auxiliary energy consumption of solar domestic hot water and the renewable electricity produced by the PV on the roof of NZEBs with HRV are discussed. SDHW supplies hot water, and ASHP is adopted for heating and cooling in the NZEBs. The cumulative energy requirements and production during the whole year are illustrated in Figure 11.
The energy consumption for space heating and cooling of NZEBs in this study is 11.1 kWh/(m2·a). The energy consumption of the auxiliary electricity heater in the solar domestic hot water system is 8.4 kWh/(m2·a). The electricity output of the rooftop solar photovoltaic system is 18.7 kWh/(m2·a). It can be seen that rooftop PV systems can supply all the electricity consumption for an air-source heat pump on a yearly basis. In addition, the PV systems on the roof can provide 95.8% of the electricity demand of heating, cooling, and auxiliary energy consumption of domestic hot water. It can be concluded that the NZEBs are possible for a typical high-rise building in Beijing.

3.6. Economic Analysis

The cost of installing an HRV system and a PV system on a roof is very high during the construction cost of the pilot NZEB project. As a result, buildings with and without these technologies were investigated to explore the balance of energy-saving potential and cost. Four different scenarios, (i) NZEB.A, (ii) NZEB.B, (iii) NZEB.C, and (iv) NZEB.D, are shown in Table 2. A real estate company was asked to collect all the statistical data of the cost of construction. Table 3 illustrates the standard reference data for the economic research based on the survey.
Four indexes were used to evaluate the feasibility of NZEBs in this study. SPT, IRR, NPV, and ROI were introduced to evaluate the performance of NZEBs.
Simple payback time (SPT)
S P T = I / S
where I is the additional investment of NZEBs compared to the reference building, RMB S is the annual savings, RMB.
Return of investment (ROI)
R O I = S / I × 100 %
Net present value and internal rate of return are among the most important criteria to evaluate the financial efficiency of the investments.
Net present value (NPV)
N P V = C F 0 + t = 1 T C F t 1 + i t
Internal rate of return (IRR)
0 = C F 0 + t = 1 T C F t 1 + I R R t
where CF0 is the present value of investments, RMB; CFt is the net cash flow (the amount of cash, inflow minus outflow) at time t, RMB; t is time of cash flow; and i is the discount rate, %.
Table 4 shows the different criteria of four kinds of NZEBs.
(I)
NZEB.A model: The NZEB.A model focuses on the high performance of the building envelope without the HRV system and separated photovoltaic system. We can see that the ROI of NZEB.A is 7.44% and the NPV is 64 RMB. The IRR of NZEB.A is 5.49% higher than the benchmark rate. As a result, NZEB.A is feasible. Namely, a high-performance building envelope of NZEBs makes good sense in the cold region of China.
(II)
NZEB.B model: The NZEB.B model with PV has no separated HRV system. Its ROI (8.69%) is 1.25% higher than that of the NZEB.A model, which illustrates that a solar photovoltaic system is theoretically feasible. The NPV of the NZEB.B model is 153.80 RMB, which is the maximum in the four models.
(III)
NZEB.C model: The NPV of NZEB.C is −193 RMB, and the IRR is less than zero. The SPT of the NZEB.C model is the longest in the four models, and the ROI is the lowest. Therefore, an HRV system (including heat recovery) is not economical, which is due to the current very high cost of ventilation systems with high heat recovery efficiency.
(IV)
NZEB.D model: The HRV system and PV system are configured in the NZEB.D model, which not only ensure the indoor environment quality, but also provide renewable energy electricity for the building. The NZEB.D model is an ideal model for near zero-energy residential buildings, which is the focus of this paper. While the NPV of the NZEB.D model is −101 RMB, the IRR is 1.11%. The IRR is less than 2.75% (benchmark in the bank), but it is greater than zero.

3.7. Environmental Analysis

Compared to its benchmark construction, the NZEB.D model can save 50.78 KWh/(m2·a) of energy, corresponding to an energy saving of 16.15 kg/(m2·a) in standard coal every year. As recommended by the China National Development and Reform Commission, a carbon emission factor of 0.67 kg/kg (standard coal) was used to calculate the reduction in carbon emissions. The reduction in carbon dioxide emissions is 40.26 kg/(m2·a). It is shown that NZEB.D has the largest energy-saving potential. Therefore, the NZEB.D model is feasible in the cold area of China, which is helpful to solve the environmental problems.
As a result, the economic priority of the four NZEB models is NZEB.B > NZEB.A > NZEB.D > NZEB.C. Furthermore, the environmental benefit of the NZEB.D model has the most potential. Its IRR of 1.11% is below the benchmark rate of return, but it is greater than zero. Government subsidies will be helpful for the development of NZEBs to make NZEBs more competitive on an economical level. Therefore, NZEB.B, NZEB.A, and NZEB.D are feasible in the cold area of China. NZEB.D has the most energy-saving potential.

4. Discussion

The building sector accounts for around 50% of total carbon emissions in China. China aims to reach a carbon peak before 2030 and carbon neutrality before 2060. The potential contribution of a large-scale deployment of NZEBs to China’s national carbon reduction targets and the role of the building sector in mitigating climate change are huge. As shown in Figure 2, China has five climate zones for building design. The potential applicability and adaptability of the proposed NZEB models to other climate zones or building types in China should be investigated based on local conditions. The region-specific design guidelines and performance benchmarks can be found in China’s national nearly zero-energy building standard. The feasibility of zero-energy buildings (large residential or commercial ones) can be influenced by the uncertainties in PV systems, user energy demands, and even energy prices. In our study, we used the price and cost from the industry to investigate the feasibility, which can reflect the real situation of the market. Furthermore, reliable building energy management systems is the precondition for nearly zero-energy buildings [34].

5. Conclusions

NZEBs have played a significant role in sustainable development in the building sector. NZEBs could be a solution for the development of low-energy residential buildings in northern China. A detailed and compressive analysis about feasibility of typical high-rise zero-energy residential buildings in northern China was investigated. The results provide some reference for the development of zero-energy buildings in northern China in the near future. The conclusions are summarized as follows:
  • The energy consumption of space heating and cooling of NZEBs could decrease to 11.1 kWh/(m2·a).
  • Air-source heat pumps can be used to supply space heating and cooling for a high-performance, 12-floor, typical residential building in Beijing. A PV roof can supply 95.8% of the electricity demand of an air-source heat pump. Domestic hot water demand can be provided by a balcony-mounted solar hot water heater for high-rise buildings in Beijing.
  • NZEBs can be a viable investment in the Beijing area. The IRR of NZEB.D is 1%, which is greater than zero. Subsidies from the government will be helpful to promote the development of NZEBs in the north of China.

6. Outlook

The impact on occupant comfort, health, and productivity, as well as the strategies for promoting user acceptance and engagement in the operation and maintenance of NZEB systems will be investigated in future work. A comprehensive assessment of the life-cycle sustainability performance of NZEBs will be carried out. The Chinese property sector is currently facing stagnation. With the gradual wider adoption of NZEBs, the potential for job creation, innovation, and market transformation is huge.

Author Contributions

Conceptualization, D.J., X.L. and Z.T.; Methodology, X.L. and Z.T.; Investigation, D.J., X.L. and Z.T.; Resources, D.J. and Z.T.; Data curation, D.J., X.L. and Z.T.; Writing—original draft, D.J., X.L. and Z.T. All authors have read and agreed to the published version of the manuscript.

Funding

The research is supported by new power system innovation projects of the China Southern Power Grid Company: Research and Demonstration of Key Technologies for Data Center Energy Conservation and Consumption Reduction (Project no. 20210042).

Institutional Review Board Statement

Not applicable.

Informed Consent Statement

Not applicable.

Data Availability Statement

The data presented in this study are available on request from the corresponding author. The data are not publicly available due to privacy concerns.

Conflicts of Interest

Author Di Jiang was employed by the Guangzhou Power Supply Bureau of Guangdong Power Grid Co., Ltd., Xueyan Li was employed by the China Southern Power Grid Big Data Services Co., Ltd. The remaining authors declare that the research was conducted in the absence of any commercial or financial relationships that could be construed as a potential conflict of interest.

Nomenclature

Cpnon-dimensional constant number
CF0present value of investments
ρ density, kg/m3
CFtnet cash flow at time t
Δ P pressure, Pa
ttime
Vvolume, m3
Idiscount rate
Nairtightness, times/h
Iinvestment, RMB
EuEuler number
Sannual saving, RMB
Uheat transfer coefficient
Abbreviations
NZEBsnearly net zero-energy buildings
SPTsimple payback time
ASHPair-source heat pump
ROIreturn of investment
SDHWsolar domestic hot water
NPVnet present value
IRRinternal rate of return
HRVheat recovery from ventilation
APECAsia–Pacific Economic Cooperation
WWRwindow of wall ratio
EPBDEnergy Performance of Buildings Directive

References

  1. Zhou, N.; Khanna, N.; Feng, W.; Ke, J.; Levine, M. Scenarios of energy efficiency and CO2 emissions reduction potential in the buildings sector in China to year 2050. Nat. Energy 2018, 3, 978–984. [Google Scholar] [CrossRef]
  2. Yang, X.; Zhang, S.; Xu, W. Impact of zero energy buildings on medium-to-long term building energy consumption in China. Energy Policy 2019, 129, 574–586. [Google Scholar] [CrossRef]
  3. Burnier, L.; Lanini, M.; Bouvard, O.; Scanferla, D.; Varathan, A.; Genoud, C.; Marguerit, A.; Cuttat, B.; Dury, N.; Witte, R.; et al. Energy saving glazing with a wide band-pass FSS allowing mobile communication: Up-scaling and characterisation. IET Microw. Antennas Propag. 2017, 11, 1449–1455. [Google Scholar] [CrossRef]
  4. Busato, F.; Lazzarin, R.; Noro, M. Ground or solar source heat pump systems for space heating: Which is better? Energetic assessment based on a case history. Energy Build. 2015, 102, 347–356. [Google Scholar] [CrossRef]
  5. Marszal, A.J.; Heiselberg, P.; Bourrelle, J.S.; Musall, E.; Voss, K.; Sartori, I.; Napolitano, A. Zero Energy Building—A review of definitions and calculation methodologies. Energy Build. 2011, 43, 971–979. [Google Scholar] [CrossRef]
  6. Dall’O’, G.; Bruni, E.; Sarto, L. An Italian pilot project for zero energy buildings: Towards a quality-driven approach. Renew. Energy 2013, 50, 840–846. [Google Scholar] [CrossRef]
  7. Marszal, A.J.; Heiselberg, P.; Lund Jensen, R.; Nørgaard, J. On-site or off-site renewable energy supply options? Life cycle cost analysis of a Net Zero Energy Building in Denmark. Renew. Energy 2012, 44, 154–165. [Google Scholar] [CrossRef]
  8. Marszal, A.J.; Heiselberg, P. Life cycle cost analysis of a multi-storey residential Net Zero Energy Building in Denmark. Energy 2011, 36, 5600–5609. [Google Scholar] [CrossRef]
  9. Karlsson, J.F.; Moshfegh, B. A comprehensive investigation of a low-energy building in Sweden. Renew. Energy 2007, 32, 1830–1841. [Google Scholar] [CrossRef]
  10. Wang, L.; Gwilliam, J.; Jones, P. Case study of zero energy house design in UK. Energy Build. 2009, 41, 1215–1222. [Google Scholar] [CrossRef]
  11. Rodriguez-Ubinas, E.; Montero, C.; Porteros, M.; Vega, S.; Navarro, I.; Castillo-Cagigal, M.; Matallanas, E.; Gutiérrez, A. Passive design strategies and performance of Net Energy Plus Houses. Energy Build. 2014, 83, 10–22. [Google Scholar] [CrossRef]
  12. Eshraghi, J.; Narjabadifam, N.; Mirkhani, N.; Sadoughi Khosroshahi, S.; Ashjaee, M. A comprehensive feasibility study of applying solar energy to design a zero energy building for a typical home in Tehran. Energy Build. 2014, 72, 329–339. [Google Scholar] [CrossRef]
  13. Kakasor Ismael Jaf, D.; Ismael Abdulrahman, P.; Salih Mohammed, A.; Kurda, R.; Qaidi, S.M.A.; Asteris, P.G. Machine learning techniques and multi-scale models to evaluate the impact of silicon dioxide (SiO2) and calcium oxide (CaO) in fly ash on the compressive strength of green concrete. Constr. Build. Mater. 2023, 400, 132604. [Google Scholar] [CrossRef]
  14. Ahmad, J.; Majdi, A.; Elhag, A.B.; Deifalla, A.F.; Soomro, M.; Isleem, H.F.; Qaidi, S. A Step towards Sustainable Concrete with Substitution of Plastic Waste in Concrete: Overview on Mechanical, Durability and Microstructure Analysis. Crystals 2022, 12, 944. [Google Scholar] [CrossRef]
  15. Hinnells, M. Technologies to achieve demand reduction and microgeneration in buildings. Energy Policy 2008, 36, 4427–4433. [Google Scholar] [CrossRef]
  16. Praene, J.P.; David, M.; Sinama, F.; Morau, D.; Marc, O. Renewable energy: Progressing towards a net zero energy island, the case of Reunion Island. Renew. Sustain. Energy Rev. 2012, 16, 426–442. [Google Scholar] [CrossRef]
  17. Nord, N.; Holmedal, L.; Cao, G. Identifying key design parameters of the integrated energy system for a residential Zero Emission Building in Norway. Renew. Energy 2016, 87, 1076–1087. [Google Scholar] [CrossRef]
  18. Lo, K.Y.; Yeoh, J.H.; Hsieh, I.Y.L. Towards Nearly Zero-Energy Buildings: Smart Energy Management of Vehicle-to-Building (V2B) Strategy and Renewable Energy Sources. Sustain. Cities Soc. 2023, 99, 104941. [Google Scholar] [CrossRef]
  19. European Commission. Nearly-Zero Energy and Zero-Emission Buildings. Available online: https://energy.ec.europa.eu/topics/energy-efficiency/energy-efficient-buildings/nearly-zero-energy-and-zero-emission-buildings_en (accessed on 15 June 2024).
  20. Feng, W.; Huang, J.; Lv, H.; Guo, D.; Huang, Z. Determination of the economical insulation thickness of building envelopes simultaneously in energy-saving renovation of existing residential buildings. Energy Sources Part A Recovery Util. Environ. Eff. 2019, 41, 665–676. [Google Scholar] [CrossRef]
  21. Zhang, S.; Jiang, Y.; Xu, W.; Li, H.; Yu, Z. Operating performance in cooling mode of a ground source heat pump of a nearly-zero energy building in the cold region of China. Renew. Energy 2016, 87, 1045–1052. [Google Scholar] [CrossRef]
  22. Jin, Y.; Wang, L.; Xiong, Y.; Cai, H.; Li, Y.H.; Zhang, W.J. Feasibility studies on net zero energy building for climate considering: A case of “All Green House” for Datong, Shanxi, China. Energy Build. 2014, 85, 155–164. [Google Scholar] [CrossRef]
  23. Zhou, Z.; Feng, L.; Zhang, S.; Wang, C.; Chen, G.; Du, T.; Li, Y.; Zuo, J. The operational performance of “net zero energy building”: A study in China. Appl. Energy 2016, 177, 716–728. [Google Scholar] [CrossRef]
  24. Li, H.; Xu, W.; Yu, Z.; Wu, J.; Sun, Z. Application analyze of a ground source heat pump system in a nearly zero energy building in China. Energy 2017, 125, 140–151. [Google Scholar] [CrossRef]
  25. Li, H.; Xu, W.; Yu, Z.; Wu, J.; Yu, Z. Discussion of a combined solar thermal and ground source heat pump system operation strategy for office heating. Energy Build. 2018, 162, 42–53. [Google Scholar] [CrossRef]
  26. Luo, Y.; Cheng, N.; Zhang, S.; Tian, Z.; Xu, G.; Yang, X.; Fan, J. Comprehensive energy, economic, environmental assessment of a building integrated photovoltaic-thermoelectric system with battery storage for net zero energy building. Build. Simul. 2022, 15, 1923–1941. [Google Scholar] [CrossRef]
  27. Tsinghua University Building Energy Conservation Center. Annual Development Research Report on Building Energy Efficiency in China in 2015; China Architecture & Building Press: Beijing, China, 2022. (In Chinese) [Google Scholar]
  28. Zhang, S.C.; Yang, X.Y.; Xu, W.; Fu, Y.J. Contribution of nearly-zero energy buildings standards enforcement to achieve carbon neutral in urban area by 2060. Adv. Clim. Change Res. 2021, 12, 734–743. [Google Scholar] [CrossRef]
  29. GB 50176-1993; Thermal Design Code for Civil Building. Ministry of Housing and Urban-Rural Development of the People’s Republic of China: Beijing, China, 1993.
  30. Gao, Y.; Xu, J.; Yang, S.; Tang, X.; Zhou, Q.; Ge, J.; Xu, T.; Levinson, R. Cool roofs in China: Policy review, building simulations, and proof-of-concept experiments. Energy Policy 2014, 74, 190–214. [Google Scholar] [CrossRef]
  31. GB/T 51350-2019; Technical Standard for Nearly Zero Energy Buildings. Ministry of Housing and Urban-Rural Development of the People’s Republic of China: Beijing, China, 2019.
  32. Bee, E.; Prada, A.; Baggio, P.; Psimopoulos, E. Air-source heat pump and photovoltaic systems for residential heating and cooling: Potential of self-consumption in different European climates. Build. Simul. 2019, 12, 453–463. [Google Scholar] [CrossRef]
  33. Hu, Y. Analysis on Comfort Energy Consumption and Economy Efficiency of Passive House in the Cold Area; Beijing University of Civil Engineering and Architecture: Beijing, China, 2014. [Google Scholar]
  34. Hosseini, S.M.; Carli, R.; Dotoli, M. Robust Optimal Demand Response of Energy-efficient Commercial Buildings. In Proceedings of the 2022 European Control Conference (ECC), London, UK, 12–15 July 2022; pp. 1606–1609. [Google Scholar] [CrossRef]
Figure 1. Building energy consumption and primary energy by end use of building sector in China [27].
Figure 1. Building energy consumption and primary energy by end use of building sector in China [27].
Sustainability 16 06288 g001
Figure 2. Thermal building climate zones in China mainland [30].
Figure 2. Thermal building climate zones in China mainland [30].
Sustainability 16 06288 g002
Figure 3. Dry-bulb temperature in TMY (Typical Meteorological Year) of Beijing (℃).
Figure 3. Dry-bulb temperature in TMY (Typical Meteorological Year) of Beijing (℃).
Sustainability 16 06288 g003
Figure 4. Global radiation on the horizontal surface in TMY (Typical Meteorological Year) of Beijing (W/m2).
Figure 4. Global radiation on the horizontal surface in TMY (Typical Meteorological Year) of Beijing (W/m2).
Sustainability 16 06288 g004
Figure 5. Standard floor layout of the studied building.
Figure 5. Standard floor layout of the studied building.
Sustainability 16 06288 g005
Figure 6. D model of the building (a) and 3D model of the building (b).
Figure 6. D model of the building (a) and 3D model of the building (b).
Sustainability 16 06288 g006
Figure 7. Annual heating and cooling loads of reference building and NZEBs (kWh/m2).
Figure 7. Annual heating and cooling loads of reference building and NZEBs (kWh/m2).
Sustainability 16 06288 g007
Figure 8. Annual energy consumption of reference building and NZEBs (kWh/m2).
Figure 8. Annual energy consumption of reference building and NZEBs (kWh/m2).
Sustainability 16 06288 g008
Figure 9. Building energy-saving rate of the technologies.
Figure 9. Building energy-saving rate of the technologies.
Sustainability 16 06288 g009
Figure 10. Annual renewable electricity production of PV system on the roof.
Figure 10. Annual renewable electricity production of PV system on the roof.
Sustainability 16 06288 g010
Figure 11. Cumulative energy requirements and production of the studied model.
Figure 11. Cumulative energy requirements and production of the studied model.
Sustainability 16 06288 g011
Table 1. Technical data of the building model.
Table 1. Technical data of the building model.
ParametersReference Building NZEB
Heating season 15 November to 15 March
Cooling season 15 May to 15 September
Heating temperature/relative humidity 18 °C/45%
Cooling temperature/relative humidity 26 °C/65%
U-value of wall (W/m2·°C)0.40.15
U-value of roof (W/m2·°C)0.450.15
U-value of window (W/m2·°C)1.81.0
Fresh air heat recovery coefficient (sensible heat)70%
Table 2. Four scenarios of NZEBs.
Table 2. Four scenarios of NZEBs.
TypeHeat Recovery SystemPV System
NZEB.Axx
NZEB.Bx
NZEB.Cx
NZEB.D
Note: x—excluding and √—including.
Table 3. Standard economic parameters of NZEBs.
Table 3. Standard economic parameters of NZEBs.
ItemsNZEBsReference BuildingNotes
Initial cost of building construction (RMB/m2)Dewatering engineering2525All costs were calculated from the statistic costs provided by a construction company [33].
Earthworks1010
Slope protection engineering99
Pile foundation project3030
Construction project400380
Structural project510510
External thermal insulation systems305201
External door190150
Window31296
Waterdrop-heating electrical project211265
Municipally matched infrastructure130205
Elevator5050
Detailed design, such as cold or heat bridge prevention.100
Domestic hot water system103
Other, including calorimeter and piping shaft075.5
PV system on roof840NZEB.B or D
Heat recovery system3000NZEB.A or C
Operation energy consumption (kWh/(m2·a))Heating in heating season8.8226.4NZEB.A
Cooling in cooling season6.895.72
Domestic hot water system8.5819.63
Heating in heating season8.8226.4NZEB.B
Cooling in cooling season6.895.72
SDHW8.5819.63
PV system on roof−18.710
Heating in heating season4.4726.4NZEB.C
Cooling in cooling season6.635.72
Domestic hot water system8.5819.63
Heating in heating season4.4726.4NZEB.D
Cooling in cooling season6.635.72
Domestic hot water system8.5819.63
PV system on roof−18.710
Table 4. Economic evaluation indexes of NZEBs.
Table 4. Economic evaluation indexes of NZEBs.
ItemsNZEB.ANZEB.BNZEB.CNZEB.D
SPT, Year13.4311.5029.4921.82
ROI7.44%8.69%3.39%4.58%
NPV, RMB64.09153.80−193−101
IRR5.49%7.15%−1.23%1.11%
Disclaimer/Publisher’s Note: The statements, opinions and data contained in all publications are solely those of the individual author(s) and contributor(s) and not of MDPI and/or the editor(s). MDPI and/or the editor(s) disclaim responsibility for any injury to people or property resulting from any ideas, methods, instructions or products referred to in the content.

Share and Cite

MDPI and ACS Style

Jiang, D.; Li, X.; Tian, Z. Techno-Economic Analysis of a High-Rise Residential Building Adapted to Nearly Zero-Energy Building Standards. Sustainability 2024, 16, 6288. https://doi.org/10.3390/su16156288

AMA Style

Jiang D, Li X, Tian Z. Techno-Economic Analysis of a High-Rise Residential Building Adapted to Nearly Zero-Energy Building Standards. Sustainability. 2024; 16(15):6288. https://doi.org/10.3390/su16156288

Chicago/Turabian Style

Jiang, Di, Xueyan Li, and Zhiyong Tian. 2024. "Techno-Economic Analysis of a High-Rise Residential Building Adapted to Nearly Zero-Energy Building Standards" Sustainability 16, no. 15: 6288. https://doi.org/10.3390/su16156288

APA Style

Jiang, D., Li, X., & Tian, Z. (2024). Techno-Economic Analysis of a High-Rise Residential Building Adapted to Nearly Zero-Energy Building Standards. Sustainability, 16(15), 6288. https://doi.org/10.3390/su16156288

Note that from the first issue of 2016, this journal uses article numbers instead of page numbers. See further details here.

Article Metrics

Back to TopTop