Abstract
To mitigate greenhouse gas emissions responsible for global warming and climate change, governments have undertaken concerted efforts and established goals to restructure production and consumption patterns within the current global economy. The construction sector, which in Europe has significant energy use and related greenhouse gas emissions, recognizes adopting passive heating and cooling systems for buildings as a viable solution. The revival of vernacular passive solar strategies emerges as opportune within this context. Through dynamic simulations, this study aims to analyze and quantify the potential contribution of glazed balconies, a traditional passive heating system, to improve contemporary constructions’ thermal behavior and comfort conditions in mild temperate climates, such as in northern Portugal. Results indicate that this system can significantly enhance a building’s energy efficiency, reducing energy needs for heating and cooling by up to 47% while extending periods of thermal comfort indoors by nearly 900 h per year compared to buildings with non-glazed balconies. Proper use of natural ventilation and shading devices is essential to ensure optimal system performance and prevent overheating. This research underscores the potential of glazed balconies as a sustainable solution for enhancing contemporary buildings’ thermal-energy performance and comfort, contributing to the transition towards carbon-neutral constructions.
1. Introduction
1.1. Framework
The negative impacts of climate change have been intensifying each year, driven by the rise in global average temperature primarily caused by high levels of anthropogenic Greenhouse Gas (GHG) emissions [1]. Such impacts encompass widespread adverse effects on food and water security, human health, the global economy, and other damage related to nature and people [1]. The building stock in Europe is responsible for 36% of total GHG emissions produced by the European economy [2]. Additionally, the sector accounts for 40% of the total energy consumption, representing the one with the highest energy needs in the economy [2]. Energy used for heating, cooling, and domestic hot water (DHW) constitutes 80% of the total energy consumed by households [2]. It is clear that making buildings more energy-efficient and less reliant on non-renewable energy sources is crucial for Europe to achieve its goal of a climate-neutral economy with net-zero GHG emissions by 2050 [3]. Furthermore, the recast of the European Energy Performance of Buildings Directive (EPBD) in 2010 [4] stressed the importance of integrating passive systems into buildings and implementing resilient strategies to improve thermal performance, particularly in extreme climate conditions. Emphasis is also placed, in both the 2010 EPBD recast [4] and its latest version from 2024 [2], on the need to focus on measures that prevent overheating, especially encouraging further development and application of passive cooling techniques that enhance indoor climate conditions and the microclimate surrounding buildings.
Studying the energy potential of vernacular construction systems proves opportune, as vernacular buildings have, due to the lack of active technologies in the past, relied on passive systems to enhance thermal comfort levels indoors [5]. Glazed balconies represent a traditional construction system in northern regions of Portugal and Spain [6,7,8] that acts mainly by harnessing solar gains for heating buildings during colder months.
Hence, through dynamic computer simulations, this study aims to analyze and quantify the contributions of glazed balconies to the thermal comfort and energy efficiency of a contemporary residential building. Using Building Energy Modeling (BEM) methodology and dynamic simulations, parametric analyses of the thermal and energy performance of various configurations of glazed balconies in a dwelling of a hypothetical multifamily residential building located in Porto, northern Portugal, were conducted. The parameters analyzed for their impact on the thermal and energy performance of the system include the construction geometry, characteristics of the glazed surfaces, and techniques to mitigate overheating occurrence—namely, the use of shading devices and natural ventilation on the balconies.
1.2. Glazed Balconies as Passive Solar Systems
Contemporary architecture often relies heavily on active climate control devices to ensure indoor comfort [9]. However, such an approach entails high energy use throughout the building’s operational phase, contradicting initiatives aligned with global climate goals. Conversely, bioclimatic architecture emphasizes the primacy of architectural form and passive systems over active ones [10], combining passive techniques, often inspired by vernacular architecture, with current strategies and technologies [11,12]. It contributes to designing nearly zero-energy buildings, minimizing the significant environmental impacts of the construction sector [9], while meeting the comfort and functionality needs of contemporary society [13].
On the other hand, vernacular architecture encompasses traditional construction techniques specific to certain regions, developed and refined over time through observation of nature and empirical methods [14]. These architectural typologies tend to be well-suited to their surroundings’ natural and climatic conditions, relying on passive techniques to mitigate unfavorable climate conditions [9,12].
Glazed balconies are an example of a vernacular passive solar technique. They represent a passive system for indirect solar heating, characteristic of the traditional architecture in the northwestern regions of Spain and northern Portugal. As a buffer zone between the interior and exterior, glazed balconies preheat the air that infiltrates adjacent spaces and mitigate the building’s heat loss [15], as cited in [16]. Ideally south-facing and located on upper floors to maximize solar gains [8,17], the technique is well-adapted to regions with cold but sunny winters [16,18]. During periods of unwanted solar gains, i.e., in cooling seasons, these balconies can be naturally ventilated by opening the windows and acting as shading elements, preventing direct solar radiation on the building’s facade [8].
Recent scientific studies have been dedicated to assessing the thermo-energetic potential of glazed balconies in buildings [7,8,16,17,19,20,21,22,23], aiming to promote this technique as a viable passive system for contemporary constructions and comfort standards. The technique has also been implemented in projects in recent decades, yielding satisfactory results. In a rehabilitation project of a multifamily house from the early 1980s in Austria, the heating requirements were reduced from 250 kWh/m² to 14 kWh/m² post refurbishment process [24]. Among various interventions, adopting glazed balconies played a crucial role in passive heating and addressing severe thermal bridges at the intersection of the existing open balconies’ concrete structure with the building facade. The new building’s facade features south-facing enclosed balconies with double-glazing aluminum framed windows and interior blinds for shading [24].
In France, another renovation project finished in 2016 added prefabricated structures 3.80 m deep to the south facade of a social housing building complex (530 dwellings), forming an external layer of winter gardens and balconies [25,26]. The building complex, originally from the early 1960s, was in need of renovation, and the dwellings demanded more space, light, and comfort [27]. After the refurbishment—which was carried out without the need for the tenants to move out—and thanks to the glazed balconies and other thermal improvements, such as the use of an ETIC (External Thermal Insulation Composite) system for the north facade, energy savings of the complex reached 60% [27].
Two different studies based on dynamic simulation, from Poland and Spain, assessed the technique’s effectiveness as a passive heating system and showed that glazed balconies with good solar exposure can lead to reductions of up to 30% in the building’s heating load [16,17]. Another study found that the percentage energy savings in buildings with attached glazed spaces were greater in central and southern European regions, ranging from 17.9% in Paris to 42.2% in Barcelona, compared to northern regions, where savings ranged from 10.9% in Seinäjoki to 13.9% in Stockholm. However, the absolute energy savings were more significant in the latter due to the higher energy needs of buildings in colder climates, such as those in Scandinavian countries [20].
Some studies have examined the physical characteristics of glazed balconies to evaluate their performance. Bataineh & Fayez [21] simulated six different configurations varying in their window-to-wall ratio (WWR) and observed that the reduction in heating needs increases with a higher WWR. A Portuguese study investigated four configurations of glazed balconies (two attached, one integrated, and one partially integrated) across six Portuguese cities [22]. Through qualitative analysis, the study identified the design variables most suitable for reducing energy demand in each location.
Among the main factors contributing to glazed balconies’ optimal performance, besides adequate solar exposure, some authors advocate for the high insulation rate of the opaque envelope and windows with low thermal transmission coefficients [16,28]. Numerous publications also emphasize the importance of occupants’ behavior, namely, operating shading devices and natural ventilation properly, for the optimal performance of glazed balconies, both in the building’s energy efficiency and in maintaining comfort levels [8,24,29]. Adopting strategies to mitigate overheating in glazed balconies deserves an even more careful approach when considering the increased probability of heat waves and longer summers due to climate change predictions for the upcoming decades [30].
2. Methodology
The energy performance analysis of glazed balconies in a contemporary context was conducted through dynamic energy simulations using the EnergyPlus program via the OpenStudio interface. The analysis was parametric, with each parameter studied in isolation to (i) identify the parameters that have the greatest and least impact on the balconies’ performance and (ii) explore different scenarios in the balconies’ configuration to evaluate their effect on the system’s performance and on the building’s energy needs.
The analyses were conducted based on a fictional case study representative of Porto’s housing stock. Porto is one of the most populous cities in the northern region of Portugal and has one of the country’s highest concentrations of multifamily buildings [31]. The process of developing the model for the energy simulations is further described in Section 2.1.
The first step of the study was an analysis of the geometric shape of the balcony, comparing the scenario where the assessed dwelling has an elongated conventional open balcony (COB) to two other scenarios with different types of glazed balconies—one corridor-type glazed balcony that extends along almost the entire south facade of the dwelling (CGB) and another where there are three separate glazed balconies with reduced dimensions (TGB), each connected to a different thermal zone of the unit. These scenarios are illustrated by simplified isometric perspectives in Figure 1.
Figure 1.
Types of balconies studied in the first parametric analysis.
The second step was studying the effect and importance of the proper operation of natural ventilation and shading devices in the glazed balcony as a passive solar system. Finally, the impacts on the performance of the glazed balcony regarding the number of glass panels in the windows and the ratio between the glazed area and the facade area of the glass balcony were analyzed.
2.1. Energy Model
The energy performance prediction of the case study scenarios was conducted using dynamic simulation with the OpenStudio Application v1.5.0, a platform featuring a graphical interface and employing EnergyPlus v22.2 as the calculation engine.
EnergyPlus is an open-source Building Energy Modeling (BEM) program developed by the US Department of Energy (DOE) widely used in building energy simulation, including buildings with passive systems such as glazed/sun spaces, as in [32,33]. It performs detailed calculations of the building energy performance based on precise information such as the location, physical characteristics, thermodynamic properties of materials and building elements, internal loads, operation schedules, and mechanical systems of the building.
This simulation model follows the forward approach, which aims to predict the outputs of a model based on known and specified inputs [34]. Ligade et al. [35] demonstrated in their study that using EnergyPlus (paired with OpenStudio V8.7.0) as the calculation engine for dynamic simulations to predict the energy performance of a building through detailed energy models led to results with the lowest margin of error compared to other energy simulation tools, i.e., eQUEST v3.65 and Trace 700 v6.3.2.
The digital model was initially created in OpenStudio using the integrated FloorspaceJS tool. Subsequent modifications and refinements of the model were made in SketchUp v2023 through the OpenStudio SketchUp Plug-in v1.4.0. The simulation results assessed in the analyses were extracted from both the OpenStudio report and the EnergyPlus report, which were generated simultaneously by the application.
2.2. Layout and Construction Systems
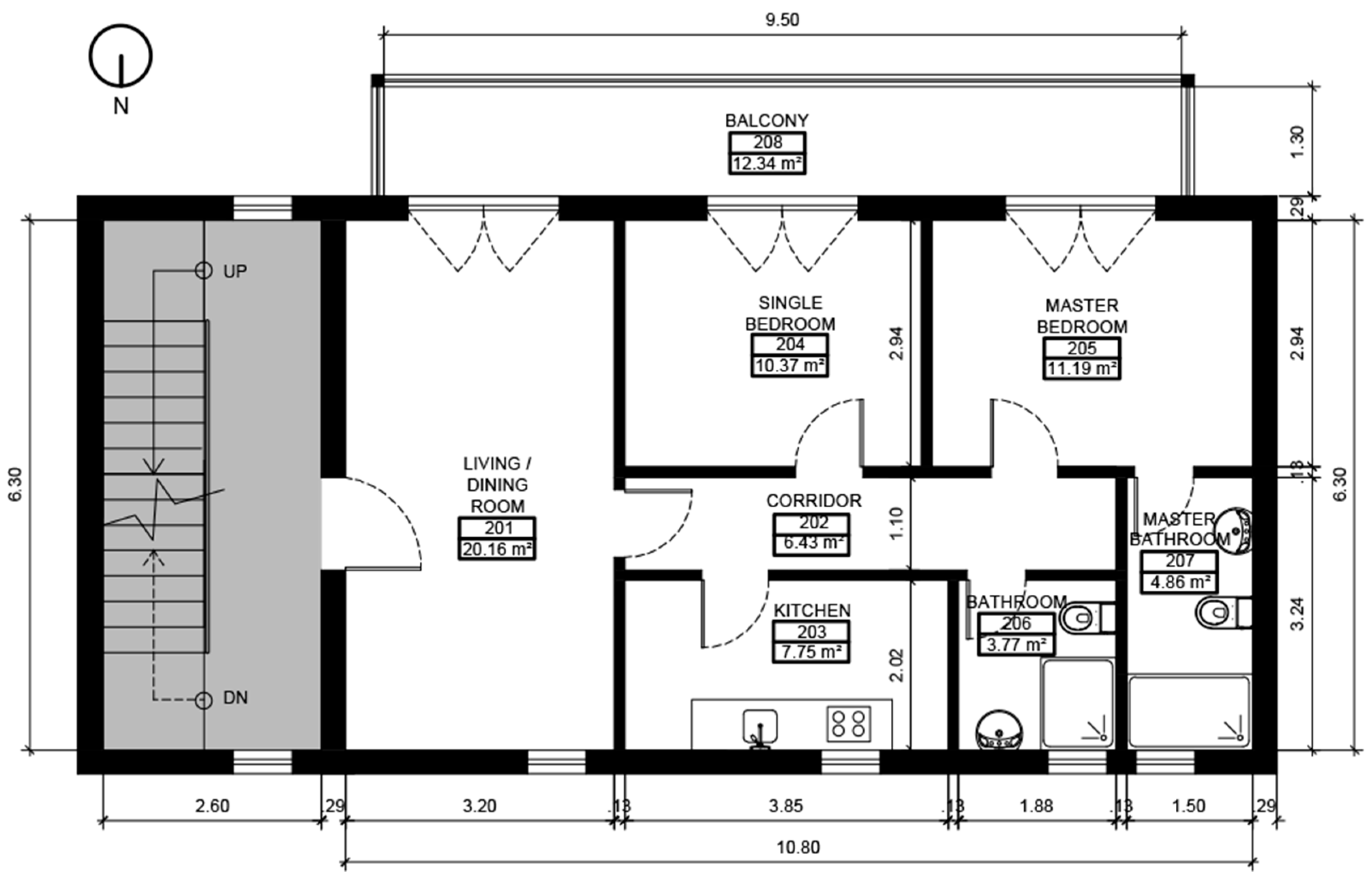
The architectural model developed for the simulations aimed to represent a part of the housing stock built in recent decades in major urban clusters in Portugal. According to the Portuguese census published in 2013 [36], a trend of verticalization was observed in large metropolitan centers, especially Greater Lisbon and Greater Porto, with an increase of almost 19% in buildings with 4 floors or more between 2001 and 2011. Typical implementation, frequent floor area, and common construction system and materials (framed structure, traditional plaster finish) present in the existing Portuguese building stock, according to the same publication [36], were replicated in the model. Hence, the project entails a two-bedroom apartment of approximately 80 m² (Figure 2) located on an intermediate floor within a standalone multifamily mid-rise building. The unit comprises a living/dining room, two bedrooms, two bathrooms, a kitchen, circulation areas, and a balcony. The design ensures that the main living spaces, i.e., living room and bedrooms, are south-facing and connected to the balcony.
Figure 2.
Floor plan of the case study (dimensions in meters).
Table 1 describes and characterizes the construction systems of the reference solution (dwelling with COB) and solutions with glazed balconies (CGB and TGB).
Table 1.
Characterization of the construction systems.
The floor and ceiling elements of the dwelling were considered adiabatic, assuming that the dwellings above and below the assessed one experience the same thermal conditions, thus resulting in the absence of thermal exchanges between them. Furthermore, no external elements casting shade on the model, such as trees or other buildings, were considered.
2.3. Geographic Location and Weather Data
The simulations were conducted considering the building’s location in the city of Porto (41° 9′ N/8° 40′ W; Time Zone GMT +0.0 Hours; Elevation of 73 m) in the northern region of Portugal. According to the ASHRAE classification, the city lies in climatic zone 3C Warm-Marine [38].
The climatic data file used was obtained from the EnergyPlus Weather database [39] and is based on climate data provided by the Portuguese National Institute of Engineering, Technology, and Innovation (INETI). According to the weather data used (Porto 085450—IWEC), the outdoor air temperatures throughout the year are (Figure 3) as follows: (i) the average minimum temperature in winter in Porto is about 6.5 °C, while the average maximum is 14.2 °C, with January being the coldest month; (ii) in summer, the daily average minimum is around 14.4 °C, and the average maximum is 22.8 °C, with August being the hottest month. As for the average relative humidity, it is 83% during the winter and 70% during the summer, with an annual average of 78% [40].
Figure 3.
Air temperatures in Porto throughout the year, according to the weather data used.
2.4. Internal Loads and Schedules
It must be considered that the inputs related to internal gains (namely, lighting, equipment, and human heat) and many of the operating schedules in a building are directly associated with occupants and their behavior. This human interaction with buildings is an important factor in the energy consumption of constructions in the ‘real world’ [41] and also exerts a significant influence on the results of digital energy simulations [35,42]. Predicting occupant behavior patterns for energy simulations is challenging and almost impossible, especially in residential buildings [35,42]. Therefore, some simplifications in the inputs related to human behavior were assumed.
The case study was designed to accommodate three occupants. Instead of creating a specific load for the number of occupants in each space, the total number of people was divided by the total area of the dwelling, ensuring that the ‘occupants’ calculation parameter was uniformly present in all thermal zones. A cloth thermal resistance of 0.5 clo for these occupants was considered in the summer months and of 1.0 clo for the rest of the year, while their level of physical activity remained almost sedentary (approximately 1.3 met), as defined by the ASHRAE Standard 55 when applying the Adaptive Thermal Comfort Model [43].
The values and schedules for air velocity (set at 0.2 m/s) and occupants’ work efficiency level (set at zero) used in the thermal comfort calculation were taken from the OpenStudio database and are based on ASHRAE 90.1 standards [44]. The heat generated by the occupants was disregarded in the energy balance of the thermal zones, as it is assumed to be already included in the average internal gain rate. These internal gains (including the sum of the thermal load related to lighting, equipment, and occupants) were set at a fixed value of 4 W/m2. This value is adopted by the current Portuguese regulation for calculating internal thermal gains in a building [45]. The air infiltration schedule for the building, characterized by the unintentional flow of air from the outside to the inside through door openings, gaps around window frames, and even through building elements, albeit minimally [46], was obtained from the OpenStudio Application v1.5.0 database, also based on ASHRAE 90.1 standards for medium and high-rise residential buildings [44].
The airflow rate calculation method for natural ventilation (NV) was the number of air changes per hour (ach). The value 5 ach, which is the default parameter in OpenStudio, was considered in both balcony and adjacent rooms. It is important to note that the actual natural ventilation airflow rate inside each zone will depend on the temperature difference between the indoor and outdoor environment, wind speed [46], and whether the windows are open or closed. During operation, a 50% opening of the balcony facade window was considered, assuming that these are sliding windows in cases with glazed balconies (Figure 4), and a 100% opening of the glazing between adjacent zones and the balcony, assuming that these are double-leaf swing doors.
Figure 4.
Maximum window opening of 50% for natural ventilation of the balcony.
The NV in the areas adjacent to the balcony is programmed to operate only between air temperatures of 22.0 °C and 35.0 °C in these zones, being deactivated when these limits are reached. In the balcony, NV is programmed to operate between air temperatures of 20.0 °C and 35.0 °C in the area. These limits were established through various parametric simulations of the case study with the glazed balcony CGB, aiming to find a more suitable range of thermal variation based on occupant comfort for the operation of natural ventilation. The results showed that temperature limits outside the previously mentioned ranges led to fewer hours in a comfortable situation, according to the adaptive model of thermal comfort.
The shading system consists of exterior blinds with fixed slats parallel to the glazing on all balcony windows (in the COB solution, these blinds are located on the bedrooms and living room windows). When fully activated, these blinds can create an air layer between the glazing and the slats. During the summer, they are scheduled to shade the windows completely during the day and be retracted at night. The blinds remain open during the day and are closed at night for the rest of the year.
2.5. HVAC System
Two sets of simulations were conducted for each solution addressed in the parametric analyses. First, a scenario in which the building is strictly naturally ventilated without active HVAC (heating, ventilation, and air conditioning) systems was considered, aiming to analyze the performance of glazed balconies in improving thermal conditions and comfort in a passive building.
In the second set of simulations, a hybrid building scenario was considered. The goal was to understand the effect of glazed balconies on the energy needs for heating and cooling in the case study building equipped with HVAC systems. In this case, ideal load systems were considered, operating with 100% efficiency and not accounting for fan energy consumption.
The internal reference temperatures adopted in the simulations for the hybrid building were 25.0 °C during the conventional cooling season and 18.0 °C during the conventional heating season, following the guidelines established in the Portuguese thermal regulations [45].
In this case study, the possibility of mechanically heating and cooling the bedrooms, living room, and kitchen was considered. Heating only was considered for the bathrooms. The NV of the conditioned zones was programmed to be interrupted while the HVAC systems were in operation.
3. Results
The evaluation of the results from each energy simulation is predominantly based on the following points:
- The thermal behavior of the living space and bedrooms within the dwelling and the balcony itself. Often, the results pertaining solely to one thermal zone adjacent to the balcony are presented to enhance objectivity in the analysis;
- The thermal comfort conditions in the living space and bedrooms and the glazed balcony, according to the Adaptive Thermal Comfort Model of ASHRAE Standard 55 [43]. As for the standard, the acceptability of the thermal conditions for the majority of occupants—80% for typical applications and 90% for a higher standard of thermal comfort—is presented;
- The annual energy needs for heating and cooling are expressed in kWh/m2, considering the dwelling area without the balcony, as this parameter varies in the analyses.
The temporal limit adopted in the parametric analyses was one year, equal to 8760 h, encompassing the four climatic seasons.
3.1. Analysis Regarding the Balcony’s Geometry
In this analysis, the energy performance of three distinct balcony configurations was simulated: the first, the reference solution, is the conventional open balcony (COB). The second is the corridor-type glazed balcony (CGB) that extends across almost the entire south facade of the dwelling and can be accessed from the thermal zones Master Bedroom, Single Bedroom, and Living Room of the dwelling. The last solution comprises three separate glazed balconies with reduced dimensions (TGB), each connected to one of the three aforementioned thermal zones. These configurations were previously illustrated in the isometric perspectives of Figure 1.
3.1.1. Thermal Behavior
According to the simulation results, it was observed that the solution with TGB exhibited lower indoor temperatures in the thermal zones adjacent to the balcony throughout the year. As depicted in Figure 5, the zones adjacent to TGB were the ones most frequently at temperatures equal to or below 18.0 °C, with each zone being more than 1000 h under these conditions. On the other hand, the zones adjacent to CGB were the ones most frequently with moderate temperatures, i.e., between 21.0 °C and 22.0 °C, for more than 45% of the time. The adjacent zones in the solution with COB were the ones that proved to be more susceptible to higher temperatures, totaling more than 250 h above 24.0 °C.
Figure 5.
Number of hours during which the areas adjacent to the balconies in solution COB, CGB, and TGB were within specific temperature ranges.
Assessing the results during the coldest months, the adjacent zones in the solution with CGB remained at an average daily temperature above 18.0 °C. The average daily temperature in the solution with TGB was around 17.5 °C. The solution with COB exhibited the highest temperature fluctuation between night and day in the adjacent zones (Figure 6), indicating the absence of the buffer effect provided by the glazed balconies in the other solutions.
Figure 6.
Average daily air temperatures in the Single Bedroom during the coldest months for COB, CGB, and TGB solutions.
Glazing on the balcony facade significantly affected the direct solar gains through the partition wall’s windows between the balcony and the adjacent areas. Considering diffuse radiation during the coldest months, solar gains through the glazing of the Single Bedroom in the solution with CGB were, on average, less than half of those presented by the solution with COB, as depicted in the graphs of Figure 7. However, the geometry of the balconies in TGB had the most significant negative impact on solar gains through the glazing of adjacent zones, with values representing an average of about 10% of the total solar gains of the solution with COB. The negative effects of daylight restriction in rooms adjacent to glazed balconies were debated by [23], where the authors comment that this loss may vary between 20% and 60% depending on the balcony’s shape, the type of glazing on its facade, and the depth of the adjacent room.
Figure 7.
Average daily amounts of diffuse radiation transmitted through the Single Bedroom window during the coldest months of the year for the solutions with COB, CGB, and TGB.
During the coldest months, it was observed that the absence of the buffer effect and the heat peaks caused by high solar gains in adjacent areas led to an average daily temperature variation of approximately 3.6 °C in the solution with COB. In contrast, the solution with CGB exhibited a temperature variation of 2.3 °C, while the one with TGB showed a variation of 2.2 °C.
During the warmer months, the three solutions exhibited similar behaviors regarding the internal temperature of the thermal zones adjacent to the balcony. Due to the window’s shading mechanisms and natural ventilation, the average temperature of these zones remained stable in all solutions, as presented in Figure 8.
Figure 8.
Average daily air temperatures in the Single Bedroom during the warmest months in the solutions with COB, CGB, and TGB.
Throughout the year, the solution with COB showed a higher susceptibility to experiencing heat peaks in the adjacent zones—the highest temperature of 27.2 °C in the Single Bedroom was recorded in October (during the period when the blinds’ schedule is set to operate according to the autumn season, where the windows are not shaded during the day, and are closed at night). The highest temperatures recorded in the other solutions were 25.3 °C in the Single Bedroom of the dwelling with CGB, also in October, and 25.1 °C in the Living Room in August in the solution with TGB.
Assessing the glazed balconies’ thermal zones in solutions CGB and TGB, it is noticeable that the CGB balcony showed indoor air temperatures above 18.0 °C more frequently. In contrast, the TGB solution registered temperatures below 18.0 °C more often. This temperature contrast can be attributed to the fact that elongated balconies, due to their larger surface area, benefit more from the thermal losses of adjacent spaces than “short” balconies, as seen in [19].
During winter, the maximum temperatures measured on the balconies were typically around ±10.0 °C higher than the daily maximum outdoor temperatures, particularly noticeable on the CGB balcony, as depicted in Figure 9. Similar results were found in [8], where in situ measurements were conducted in a building with a traditional glazed balcony located in northern Portugal.
Figure 9.
Temperatures of the balconies of solutions CGB and TGB, in January.
During the summer, CGB and TGB exhibited similar thermal behavior due to shading mechanisms on the windows and natural ventilation. In both case studies, the balconies showed an average daily maximum temperature of around 23.0 °C in July and August, equivalent to the average daily maximum temperature outside. However, in the spring and autumn, when the blinds’ operating schedule is set so that they do not shade the windows during the day, overheating was observed in both cases. In April, the temperature of the CGB balcony reached a maximum of 39.0 °C, while the three TGB balconies reached values above 34.0 °C. The balcony in the COB solution, which is not enclosed, does not constitute a thermal zone in the digital model, and its thermal behavior was not measured.
3.1.2. Thermal Comfort
In terms of thermal comfort, CGB balconies improved occupants’ thermal comfort compared to COB, while TGB balconies resulted in decreased thermal comfort conditions. In the solution with CGB, thermal comfort would be experienced for over 94% of the time in adjacent zones, equivalent to at least 8251 h per year, whereas in dwellings with TGB, comfort would be experienced for a maximum of 90% of the time, both considering 90% occupant acceptability. In the balcony’s thermal zone per se, in the solution with CGB, thermal comfort would be ensured for 63% of the time at 90% acceptability and for 80% of the time at 80% acceptability, which equals 7049 h per year in this last case. In the TGB solution, the comfort period was reduced to approximately 55% of the time, at 90% acceptability, and to 72% at 80% acceptability, totaling 6307 h in the last case. These results can be seen in Table 2, where the most favorable results are marked with “
”, the least favorable with “
”, and the intermediate with “
”.
”, the least favorable with “
”, and the intermediate with “
”.
Table 2.
Time in a year meeting the adaptive comfort models per thermal zone.
3.1.3. Energy Needs for Heating and Cooling
All three case studies presented very low cooling needs, with heating needs bearing more significance. The solution with CGB displayed the lowest energy needs, at 1.83 kWh/m2·year, representing around 90% of the total consumption in the solution with COB, which stood at 1.99 kWh/m2·year. Conversely, the dwelling with TGB showed the highest energy needs, 3.74 kWh/m2·year, almost double that of the one with COB.
Despite the variation in energy needs among units with different balcony solutions, it is noteworthy that overall, the values are notably low. This likely reflects the high thermal insulation of the building envelope, coupled with double-glazed windows and the reduced area of the external walls. Furthermore, Porto, situated on the northern coastline and falling under the Portuguese milder winter and intermediate summer climate zones [47], tends to experience fewer extreme temperatures during the seasons.
A sensitivity analysis was performed using the building case study with CGB as the baseline. In this simulation, the insulation of the entire building envelope, including from the balcony, was removed to compare the energy needs for heating and cooling with those of the building with the specified insulation level. The model without insulation, featuring walls of the dwelling envelope with a thermal transmittance coefficient of 1.85 W/m2·K and the balcony facade of 4.20 W/m2·K, showed total energy needs equal to 22.34 kWh/m2·year. The majority of this energy was used for heating. This value represents an 1119% increase in energy needs compared to the insulated building version, which had energy needs equivalent to 1.83 kWh/m2·year.
Despite the limitation of the model in presenting energy needs consistent with absolute values reflecting reality—whether due to the thermal characteristics of the building envelope elements or the generalized approach adopted for modeling active heating and cooling systems—the relative simulation results, expressed in percentage, remain consistent with expected results throughout the analyses. These should be given more consideration than absolute results.
3.2. Analysis of the Impact of Natural Ventilation and Shading Mechanism on Glazed Balconies
In this section, dynamic parametric simulations were conducted to understand the effect of the shading mechanism and natural ventilation, commonly operated by building occupants, on the glazed balcony of the CGB solution (the case study that yielded the best results in the geometric analysis) and on the adjacent rooms.
The scenarios tested and compared to the original solution with CGB were as follows: (i) scenario without NV in the balcony and adjacent zones, but with blinds operating normally; (ii) scenario without blinds, but with NV operating normally; (iii) scenario with total deprivation of NV and blinds.
3.2.1. Thermal Behavior
The results show that depriving the spaces of NV leads to prolonged periods of overheating while depriving them of balcony window shading leads to greater temperature oscillation and more intense heat peaks. The exclusion of both mechanisms led to extreme temperature conditions in the thermal zones. Figure 10 shows the hourly air temperatures recorded in the Single Bedroom in each assessed scenario during the hottest months.
Figure 10.
Hourly air temperatures in the Single Bedroom during the hottest months, according to the operation of natural ventilation and shading devices.
The graph in Figure 11 shows the number of hours the Single Bedroom remained within a specific temperature range. In the scenario without NV, the zone experienced 1754 h above 26.0 °C yearly, equivalent to 20% of the time. In the solution without blinds, 171 h above 26.0 °C were recorded, representing less than 2% of the time. However, in the scenario without NV and blinds, over 4400 h above this temperature were recorded, which accounts for more than 50% of the time during a year. In the original solution with both mechanisms—NV and blinds—the temperature did not exceed 26.0 °C.
Figure 11.
Number of hours during which the Single Bedroom was within specific temperature ranges in the different scenarios concerning NV and shading operation in solutions with CGB and COB.
For comparison, the scenario of simultaneous deprivation of NV and blinds was also applied to the case study with a non-glazed balcony (COB). There were 2437 h recorded where the Single Bedroom of the unit with COB experienced temperatures above 26.0 °C, representing a reduction of 22% compared to the scenario applied to the dwelling with CGB. This indicates that, although the benefits glazed balconies can bring to the thermal behavior of a building, when NV and shading mechanisms are not properly operated, they are more susceptible to causing overheating and more extreme heat peaks than non-glazed balconies (which, in this case, act as overhangs, shading windows, and facades). Thus, the solution with a glazed balcony depended more on occupants’ actions to maintain good operating levels.
Analyzing the effect of NV and shading on the glazed balcony zones per se, a similar behavior pattern to that of adjacent zones is observed in each studied scenario. In the original CGB solution, the zone showed only 66 h with temperatures above 30.0 °C, equivalent to less than 1% of a year. In the scenario without blinds, this number reached 511 hours, about 6% of the total time. In the scenario without NV, there were 1193 h above 30.0 °C, equivalent to about 13% of the time. In the solution without both blinds and NV, the glazed balcony zone had 3128 h with indoor air temperatures above 30.0 °C, corresponding to more than 35% of the total time, as shown in Figure 12.
Figure 12.
Number of hours during which the glazed balcony zone of solution CGB was within specific temperature ranges in the different scenarios concerning NV and shading operation.
It is also noted that the absence of blinds reduced the temperature on the glazed balcony during cold winter nights, highlighting the importance of nighttime window occlusion to reduce thermal losses during colder seasons (Figure 13). The average nighttime temperature on the balcony in winter in the solution without blinds was 0.5 °C lower than that in the original CGB solution and 2.2 °C lower than that in the solution without NV.
Figure 13.
Hourly air temperatures in the Balcony zone between January 1st and 3rd in the original CGB solution and in the scenarios without NV and without blinds.
3.2.2. Thermal Comfort
Analyzing the effect of shading and ventilation on thermal comfort sensation, the solution where there was complete deprivation of these mechanisms shows a drastic reduction in occupants’ comfort. Conditions that would cause discomfort were recorded for more than 50% of the time annually in all analyzed thermal zones (considering 90% acceptability), as shown in Table 3.
Table 3.
Percentage of time in a year complying with acceptability limits of the adaptive model of comfort per thermal zone in the different scenarios concerning NV and shading operation. The most favorable results are marked with “
”, the least favorable with “
”, and the intermediate with “
”.
”, the least favorable with “
”, and the intermediate with “
”.
The analysis reveals that the solution without NV had the second worst results. Considering the zones adjacent to the balcony, the maximum percentage of time with thermal comfort sensation would be 71.20%, considering 90% acceptability. The case study without blinds showed comfort levels similar to the original CGB solution in the adjacent zones. However, on the balcony itself, the absence of blinds led to a more than 10% reduction in comfortable thermal conditions compared to CGB, considering 80% acceptability.
3.2.3. Energy Needs for Heating and Cooling
Regarding the energy needs of the unit, the results reveal that the deprivation of NV and shading, combined, led to an increase in energy needs for heating and cooling more than 12 times compared to the original CGB solution—it went from 1.83 kWh/m2·year to 22.43 kWh/m2·year—once again highlighting the importance of these mechanisms and correct operation for the thermo-energetic efficiency of glazed balconies as a passive solar system.
3.3. Analysis of the Impact of Balcony Glazing Attributes
Windows play a crucial role in controlling solar gains indoors. Design decisions related to these components can substantially influence the contribution of solar radiation to the heating and cooling energy needs of a building [48]. This subsection presents the results of simulations conducted to assess the impact of choices associated with balcony windows. Different scenarios regarding the number of glass panes in the balcony’s windows were initially analyzed. Subsequently, variations in the ratio between the glazed area and the total area of the balcony facade were simulated, a factor referred to as the window-to-wall ratio (WWR).
3.3.1. Glass Panes
Three alternative scenarios were compared with the solution CGB regarding the number of glass panes in the balcony windows. The intS-extD solution has single-pane windows in the partition wall between the balcony and the adjacent spaces and double-pane windows in the facade of the glazed balcony. The intS-extS solution adopts single-pane windows in all balcony windows. The intD-extS solution features double-pane windows in the partition wall with the adjacent spaces and single-pane windows in the facade of the glazed balcony. The technical details and attributes of the windows are presented in Table 4, where the U value corresponds to the total thermal transmittance coefficient of the element, i.e., it includes both the glazing and the frame.
Table 4.
Attributes of the windows considered in the analysis.
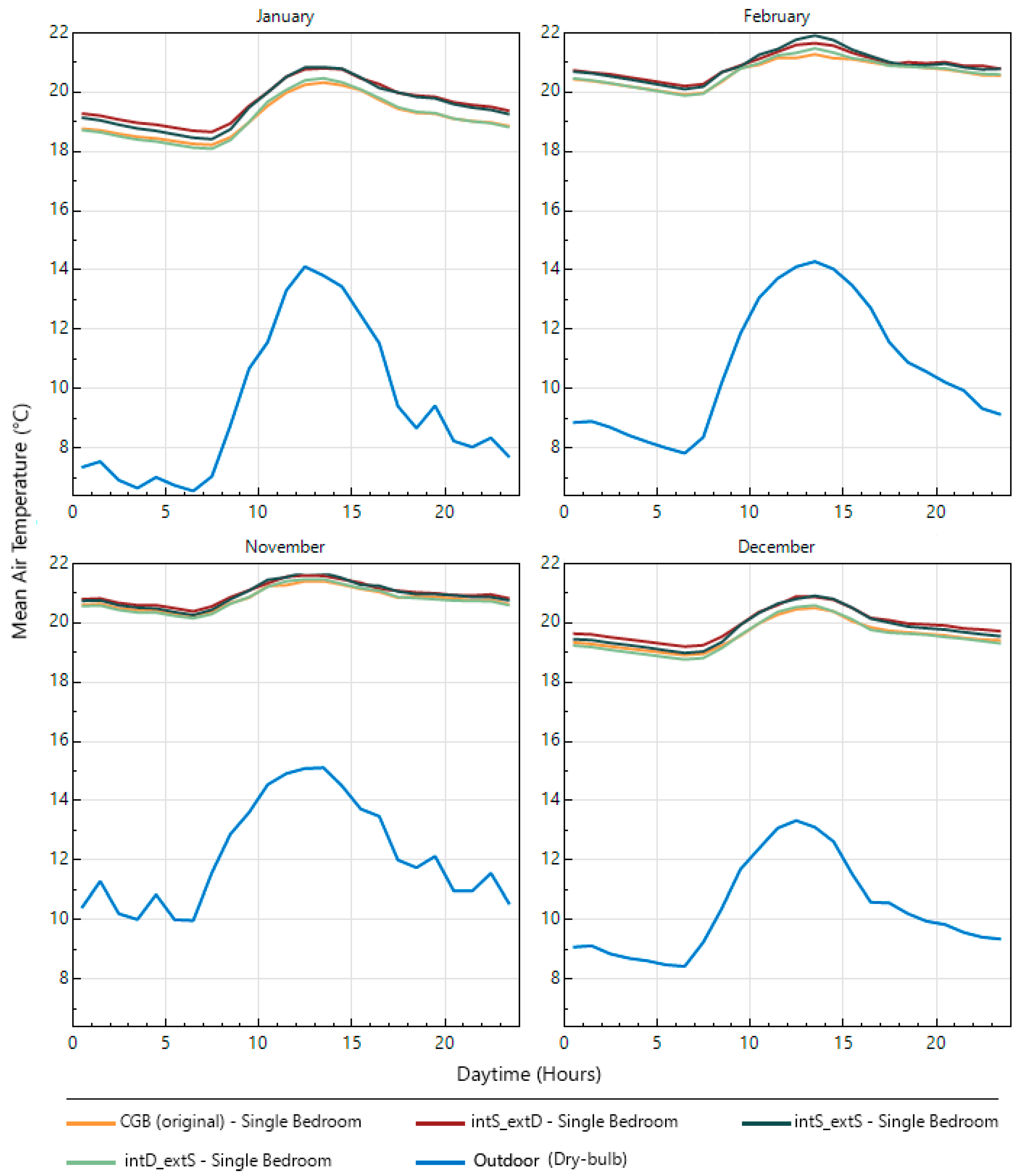
Thermal Behavior
The simulation results, as shown in the graphs of Figure 14, indicate that the use of single-pane windows in the partition wall between the glazed balcony and the indoor spaces, as in the intS-extD and intS-extS solutions, resulted in an increase in the average temperature in the spaces adjacent to the balcony during the colder months. This is because single-pane glazing provides higher solar radiation and thermal transmission. For instance, in January, the average temperature in the Single Bedroom was 19.1 °C in the solution with CGB. In the one with intS-extD, this temperature was 19.6 °C—an increase of 0.5 °C compared to the former. In the solution with intS-extS, the average temperature in the Single Bedroom was 19.5 °C–0.4 °C higher than that in the same zone in the dwelling with CGB. In the dwelling with intD-extS, the average temperature in the Single Bedroom remained similar to that in the zone of the CGB unit; however, it presented a slightly higher daily thermal amplitude.
Figure 14.
Average daily air temperatures in the Single Bedroom during the coldest months in the solutions with CGB, intS-extD, intS-extS, and intD-extS.
During summer, all solutions tended to exhibit the same behavior. However, in spring and autumn, when the operating schedule of the blinds is set not to shade the balcony windows during the day, it can be observed that solutions with single-pane windows in the partition wall were more susceptible to higher temperatures in the thermal zones adjacent to the balcony during days with intense solar radiation. The dwelling with the intS-extS solution showed the highest temperatures in these zones. On April 19th (Figure 15), a maximum temperature of 26.3 °C was recorded in the Single Bedroom, which was 0.3 °C higher than the maximum outdoor air temperature. In contrast, the maximum temperature in the dwelling with CGB did not exceed 25.3 °C. This thermal behavior pattern was also observed during the hottest days in autumn, as depicted in Figure 15.
Figure 15.
Air temperatures in the Single Bedroom on the hottest days during the spring and autumn in solutions with CGB, intS-extD, intS-extS, and intD-extS.
Solutions with single-pane windows on the balcony facade showed satisfactory results regarding temperature in adjacent areas. However, analyzing the behavior in the glazed balcony thermal zone, it is observed that the absence of double glazing on the facade leads to increased thermal losses in this zone, resulting in a reduction in average air temperature. For example, in January, this average reduction was at least 1.1 °C in solutions with intS-extS and intD-extS compared to solutions with CGB and intS-extD, as shown in Figure 16.
Figure 16.
Average daily air temperatures in the glazed balcony zone during the coldest months in the solutions CGB, intS-extD, intS-extS, and intD-extS.
During spring, on days with intense solar radiation, solutions with double-glazed windows on the partition wall experienced the highest heat peaks in the glazed balcony zone. Double glazing on the partition wall disrupts the thermal balance between the balcony and adjacent areas. On April 19th, maximum temperatures reached 39.0 °C and 40.1 °C on the CGB and intD-extS balconies, respectively. Meanwhile, the intS-extD and intS-extS balconies recorded maximum temperatures of 38.0 °C and 38.7 °C, respectively (Figure 17).
Figure 17.
Hourly air temperatures on glazed balconies on the hottest days during spring, summer, and autumn in solutions CGB, intS-extD, intS-extS, and intD-extS.
In summer, solutions with single-glazed windows on the balcony facade tended to experience higher temperatures during the day, even with closed blinds. On July 21st, the maximum temperatures recorded on the glazed balconies with the intS-extS and intD-extS solutions were about 1.0 °C higher than those recorded for the CGB and intS-extD solutions (Figure 17). From October onwards, with the absence of window shading by the blinds, the temperature curve of the glazed balcony in each solution tends to resemble the behavior during the colder months. Solutions with double-glazed windows on the balcony facade showed higher temperatures than those with single glazing.
Energy Needs for Heating and Cooling
When analyzing the energy needs for heating and cooling the dwelling, the favorable performance of the intS-extD balcony solution is confirmed. This configuration ensured a total consumption of 1.40 kWh/m2·year, 23% lower than the 1.83 kWh/m2·year of the dwelling with CGB. The intS-extS solution, which features only single-glazed windows on the balcony, also showed good energy performance, ensuring the second lowest energy needs for heating and cooling the dwelling, totaling 1.48 kWh/m2·year. The intD-extS solution, on the other hand, led to the least favorable energy performance, resulting in annual energy needs equivalent to 1.87 kWh/m2, 2.6% higher than those presented in the building with CGB and 33% higher than the energy needs of the building with the intS-extD balcony solution.
From this analysis, it can be inferred that using single-glazed windows, with a higher thermal transmission coefficient, in the partition wall between the glazed balcony and the adjacent spaces can favor the energy balance between these zones and the solar gains in the latter during the heating period. However, single-glazed windows in the partition wall can also lead to overheating in the adjacent spaces on days with higher solar radiation, needing more frequent use of shading mechanisms to prevent such heat peaks. Furthermore, double-glazed windows in the balcony facade wall will reduce thermal losses through the windows in winter while limiting thermal gains through the glazing in summer when adequately shaded.
Therefore, the appropriate use of both single-glazed and double-glazed windows on glazed balconies, combined with optimized use of blinds and natural ventilation, can effectively improve the system’s energy performance.
3.3.2. Window-to-Wall Ratio
To evaluate the impacts resulting from the window-to-wall ratio of the balcony facade on the system’s performance, three alternatives (Figure 18) were considered for comparison with the initial CGB solution. The first alternative has a WWR of 40%, with windows positioned above a 90 cm parapet and opaque east and west faces of the balcony. The second alternative features a WWR of 60%, with windows occupying nearly the entire south-facing side of the balcony while the east and west faces remain opaque. The third alternative has a WWR of approximately 80%, with windows covering nearly the entire facade of the balcony. The CGB solution, as previously presented, maintains a WWR of about 50%, with windows featuring a 90 cm parapet on all sides of the facade.
Figure 18.
Glazed balcony solutions with WWR equal to 40%, 60%, and 80%.
Thermal Behavior
The simulation results indicate that solutions with higher WWR values showed adjacent areas to the balconies with average temperatures up to about 1.0 °C higher during the coldest months (Figure 19), while during the hottest months, temperatures in these areas remained similar across the four analyzed cases due to the use of blinds to shade the balcony windows and natural ventilation.
Figure 19.
Average daily air temperatures in the Single Bedroom during the coldest months in the solutions with CGB, WWR 40%, WWR 60%, and WWR 80%.
In the spring and autumn, when the blinds’ operating schedule was set so that they would not shade the windows during the day, heat peaks directly proportional to the glazed area of the balcony facade could be observed on the hottest days. For instance, on April 19th, the Single Room reached temperatures close to 27.0 °C in the solution with WWR 80%, while in the solution with WWR 40%, at the same time, the temperature did not exceed 25.0 °C (Figure 20).
Figure 20.
Hourly air temperatures in the Single Bedroom on the hottest days during spring and autumn in solutions with CGB, WWR 40%, WWR 60%, and WWR 80%.
This increased sensitivity to solar radiation and consequent greater dependence on the shading mechanism as the WWR on the balcony facade increases become quite evident when observing the thermal behavior of the glazed balcony zone itself. Figure 21 illustrates the solution with WWR 80%, which showed heat peaks on the balcony above 40.0 °C from February to December. The air temperature in this solution exceeds 50.0 °C in October, which, according to the Annual Thermal Resilience Report from EnergyPlus, poses an imminent risk of sunstroke for occupants in the area [49].
Figure 21.
Hourly air temperatures on the glazed balcony throughout the year in solutions CGB, WWR 40%, WWR 60%, and WWR 80%.
However, as the graph in Figure 21 shows, these heat peaks can be avoided using blinds combined with natural ventilation in the area. During the summer months, when the blinds are scheduled to completely shade the balcony windows during the day, the balcony’s air temperature managed to stay below the outdoor air temperature on the hottest days.
A focused analysis was conducted to understand how improving the operation of NV in balconies with high WWR could enhance their thermal performance and reduce heat peaks. Programming the energy model to keep the balcony windows open whenever the air temperature in the area exceeded 20.0 °C, during months when the blinds are programmed to remain retracted during the day, reduced heat peaks in the balcony area by up to approximately 12.0 °C without affecting the thermal performance of the adjacent areas, as shown in Figure 22. In other words, proactive intervention by occupants in opening balcony windows could substantially reduce overheating and even prevent it.
Figure 22.
Air temperature in the glazed balcony with and without optimization of natural ventilation.
Further analyzing the effect of the WWR of the balcony facade on its thermal behavior, we can conclude that having completely opaque east and west faces, as in solutions WWR 40% and WWR 60%, positively contributed to the thermal inertia of the system, reducing the nighttime temperature drop on the glazed balcony. Figure 23 illustrates that during the coldest nights of the year, the air temperature on balconies WWR 40% and WWR 60% was approximately 1.0 °C higher than that observed in the CGB solution and about 2.0 °C higher than that recorded in the balcony solution WWR 80%.
Figure 23.
Hourly air temperatures on the glazed balcony between January 1st and 3rd in solutions CGB, WWR 40%, WWR 60%, and WWR 80%.
It is also worth noting, as previously shown in Figure 21, that solutions without windows on the side walls (WWR 40% and WWR 60%) exhibited less intense heat peaks than their counterparts with glazed side walls (CGB and WWR 80%, respectively), indicating that opaque side walls can also be effective strategies for mitigating overheating, in accordance with the results from Hilliaho [19].
Thermal Comfort
When analyzing the comfort sensation of occupants in each solution, it is evident that the solution with a glazed balcony with WWR 60% yielded the most favorable results, as shown in Table 5. In the adjacent areas, the acceptability of comfort conditions for 90% of the occupants would be achieved for at least 97.93% of the time in the Single Bedroom. This percentage corresponds to around 8579 h of 8760 (almost the entire year). The Living Room showed an even higher percentage of hours where 90% of the occupants would be in comfortable conditions—98.68%, meaning that occupants would not feel comfortable in this environment for only 158 h per year.
Table 5.
Percentage of time in a year complying with acceptability limits of the adaptive model of comfort per thermal zone in the different scenarios concerning balconies’ WWR. The most favorable results are marked with “
”, the least favorable with “
”, and the intermediate with “
”.
”, the least favorable with “
”, and the intermediate with “
”.
The Thermal Zones adjacent to the balcony for the solution with a WWR of 40%, considering the 90% occupant acceptability, showed longer periods in comfortable conditions than those of the CGB solution, representing another positive point for the absence of glass on the lateral faces of the glass-enclosed balcony.
When evaluating the comfort level in the enclosed balcony area for each design, the duration of time within the comfortable temperature range is inversely related to the window-to-wall ratio (WWR) of the building facade. A higher WWR results in a shorter period of thermal comfort because, in these scenarios, the balcony is more vulnerable to increased heat loss during colder nights, higher solar heat gain during hot days, and greater overall thermal fluctuations.
Energy Needs for Heating and Cooling
Assessing the energy demands for heating and cooling the unit showed that balconies with lower WWRs contributed to higher annual energy consumption, particularly due to increased heating needs during colder seasons. The solution with CGB exhibited the highest total energy requirements, totaling 1.83 kWh/m2·year, followed closely by the solution featuring WWR 40%, with a total of 1.80 kWh/m2·year. The solution with WWR 60% showcased the lowest energy demand, consuming only 1.04 kWh/m2·year, amounting to just 57% of the energy consumption of the solution with CGB. Conversely, the solution with WWR 80% demonstrated the second-lowest energy requirements, totaling 1.15 kWh/m2·year. Therefore, the noticeable reduction in energy needs, primarily driven by decreased heating needs, was notably attributed to a higher WWR of the balcony facade. Comparable outcomes were observed in dynamic simulation studies conducted by [21] and [50].
4. Discussion
After dynamic simulations were conducted and the results were analyzed, the following outputs can be highlighted:
Regarding the balcony’s geometry analysis:
- In the dwelling with COB, it was observed that the absence of glazed balconies led to the lack of thermal damping caused by the buffer effect. This resulted in higher thermal amplitudes in the adjacent zones than solutions with glazed balconies. However, the absence of glass on the balcony’s facade allowed for higher solar gains in the adjacent zones and increased visible light transmission. Some authors state that the negative effect of glazed balconies regarding visible light transmission into adjacent rooms can be partially solved by the introduction of extra windows that are not connected to the balcony [23];
- In the dwelling with CGB, it was noted that an elongated glazed balcony contributed significantly to a strong buffer effect. The adjacent zones maintained an average temperature above 18 °C throughout winter, with prolonged periods of mean air temperatures between 21 °C and 22 °C. The temperature inside the glazed balcony remained approximately 10 °C higher than the outdoor temperature during winter. A similar result is seen in [8]. This geometry also contributed significantly to the comfort sensation in the adjacent zones, extending the thermal comfort period by almost 530 h/year compared to the solution with COB. Additionally, the presence of CGB substantially reduced the energy needed for heating and cooling the dwelling, representing approximately 90% of the total consumption in the solution with COB. Favorable results of elongated balconies are also pointed out by [19];
- The solution with TGB revealed that shorter balconies exhibited a weaker buffer effect than elongated ones. Mean air temperatures in the adjacent zones during winter were below 18 °C due to a substantial reduction in solar gains caused by this geometry. This reduction led to increased annual heating energy needs. However, TGB balconies showed less susceptibility to overheating compared to the CGB design.
Regarding the operation of natural ventilation (NV) and shading devices on the glazed balconies:
- Both mechanisms are crucial for optimizing the performance of glazed balconies as passive solar systems, as also pointed out by [8,19,24,29];
- The absence of NV resulted in prolonged periods of overheating, while the absence of blinds on the balcony’s windows led to more intense and punctual heat peaks. Additionally, the absence of night occlusion through blinds decreased the balcony’s buffer effect during winter nights;
- The absence of both NV and blinds resulted in extreme heat scenarios in the glazed balcony and adjacent zones. The inefficient operation of these mechanisms reduced the system’s thermal and energy performance efficiency compared to a non-glazed balcony.
Analyzing the performance of glazed balconies regarding their glazing attributes:
- Using single-pane windows on the partition wall between the balcony and adjacent zones improved the energy balance between the spaces. This configuration allowed for higher solar and thermal transmission into the adjacent spaces during winter;
- However, using single-pane windows on the balcony’s facade increased nocturnal thermal losses on cold nights, leading to overheating inside the glazed balcony during hot days. The combination of double-pane windows on the partition wall and single-pane windows on the balcony’s facade represented the least efficient configuration in terms of the number of window panes;
- Regarding the window-to-wall ratio (WWR) of the balcony’s facade, higher WWRs resulted in greater solar radiation gains through the system, as also seen in [21,50]. Consequently, dwellings with balconies featuring higher WWRs had lower annual energy needs compared to those with lower WWRs. For example, dwellings with a WWR of 60% experienced a 43% reduction in annual energy needs compared to the original CGB solution (with a WWR of 50%). Furthermore, compared to dwellings with non-glazed balconies, the energy needs of the WWR 60% solution were almost 48% lower. This solution also extended the period of thermal comfort by almost 900 h per year compared to dwellings with non-glazed balconies;
- However, higher WWRs made glazed balconies more dependent on the proper operation of NV and shading devices. The solution with a WWR of 80% experienced critical indoor temperatures when these two mechanisms were not properly operated, posing risks to the health and well-being of the occupants;
- The glazed balconies with opaque side walls (as in WWR 40% and 60%) showed better performance regarding thermal inertia and avoiding undesired solar gains, as also pointed out by [19,51].
Overall, the analysis suggests that carefully considering balcony geometry, operating natural ventilation and shading devices accordingly, and the glazing attributes are crucial for optimizing buildings’ thermal and energy performance with glazed balconies. This technique holds the potential to be integrated into contemporary buildings as a passive heating system, effectively reducing construction energy demands and moving closer to achieving sustainable design goals.
However, it is crucial in our current era to consider the risks arising from climate change predictions and the drastic increase in the average global temperature, which can impact the thermal behavior of buildings, especially those designed to harvest solar radiation. According to IPCC [30] projections, the estimated global mean surface temperature increase between 2046 and 2065 is 1 °C for the mildest scenario and 2 °C for the most severe one. This increase can directly affect how passive solar buildings operate; therefore, studying and investigating measures to make buildings and passive techniques more resilient is of utmost importance.
On the one hand, it can be inferred that the buffering effect provided by glazed balconies will continue to have a certain positive—albeit limited—impact under more intense climatic conditions, as it delays thermal variation within buildings, as mentioned by [52]. On the other hand, glazed balcony solutions that are highly susceptible to solar radiation, such as those with higher WWRs presented in this study, require a more critical analysis of their long-term performance. This study suggests that correctly using shading systems and ventilation can considerably reduce the impact of overheating on the glazed balconies; however, an objective analysis of the system effectiveness addressing extreme climatic scenarios is crucial.
5. Conclusions
This study highlights the significant influence of glazed balconies on thermal comfort and energy efficiency in buildings. Elongated glazed balconies contribute to a substantial buffer effect, maintaining comfortable temperatures during winter and reducing heating needs. The effective operation of natural ventilation and shading devices is crucial for optimizing performance while choosing glazing attributes that impact energy consumption. Higher window-to-wall ratios increase solar gains but require careful management of ventilation and shading. Single-pane windows on the partition wall enhance energy balance by increasing solar and thermal transmission into adjacent spaces during winter, but their use on the balcony’s facade can lead to nocturnal thermal losses during cold nights and overheating inside the balcony on hot days.
The topics not covered in this study but considered relevant for extending knowledge about glazed balconies and their contribution to the thermal-energy efficiency of sustainable buildings are:
- Further investigation into construction systems and materials utilized for glazed balconies, focusing on their potential to enhance system efficiency;
- Examination of the performance of glazed balconies in light of projected global temperature increases and exploration of strategies to enhance system resilience;
- Comprehensive economic analysis encompassing the potential of glazed balconies to reduce building energy expenses.
Author Contributions
Conceptualization, J.L.T.; Methodology, J.L.T.; Software, J.L.T.; Writing—original draft, J.L.T.; Writing—review & editing, S.M.S. and J.F.; Supervision, S.M.S. and J.F.; Funding acquisition, S.M.S. All authors have read and agreed to the published version of the manuscript.
Funding
This work was partly financed by FCT/MCTES through national funds (PIDDAC) under the R&D Unit Institute for Sustainability and Innovation in Structural Engineering (ISISE), under reference UIDB/04029/2020 (doi.org/10.54499/UIDB/04029/2020), and under the Associate Laboratory Advanced Production and Intelligent Systems ARISE under reference LA/P/0112/2020.
Institutional Review Board Statement
Not applicable.
Data Availability Statement
The data presented in this study are available on request from the corresponding author.
Conflicts of Interest
The authors declare no conflicts of interest. The funders had no role in the design of the study; in the collection, analyses, or interpretation of data; in the writing of the manuscript; or in the decision to publish the results.
References
- IPCC. Climate Change 2023: Synthesis Report; Contribution of Working Groups I, II and III to the Sixth Assessment Report of the Intergovernmental Panel on Climate Change; Core Writing Team, Lee, H., Romero, J., Eds.; IPCC: Geneva, Switzerland, 2023; pp. 35–115. [CrossRef]
- European Parliament. Directive (EU) 2024/1275 of the European Parliament and of the Council of 24 April 2024 on the Energy Performance of Buildings (Recast). 2024. Available online: https://eur-lex.europa.eu/legal-content/EN/TXT/?uri=CELEX%3A32024L1275 (accessed on 30 May 2024).
- European Commission. A European Green Deal. European Commission. 2019. Available online: https://ec.europa.eu/info/strategy/priorities-2019-2024/european-green-deal_en (accessed on 4 December 2023).
- European Parliament. Directive 2010/31/EU of the European Parliament and of the Council of 19 May 2010 on the Energy Performance of Buildings (Recast). 2010. Available online: https://eur-lex.europa.eu/legal-content/EN/ALL/;ELX_SESSIONID=FZMjThLLzfxmmMCQGp2Y1s2d3TjwtD8QS3pqdkhXZbwqGwlgY9KN!2064651424?uri=CELEX:32010L0031 (accessed on 9 February 2024).
- Fernandes, J.; Mateus, R.; Bragança, L.; Correia da Silva, J.J. Portuguese vernacular architecture: The contribution of vernacular materials and design approaches for sustainable construction. Archit. Sci. Rev. 2014, 58, 324–336. [Google Scholar] [CrossRef]
- Moreno, A.G. La galería gallega: Una tipología tradicional en permanente evolución. Anu. Brigant. 1998, 21, 379–404. [Google Scholar]
- Ribeiro, C.; Ramos, N.M.M.; Flores-Colen, I. A Review of Balcony Impacts on the Indoor Environmental Quality of Dwellings. Sustainability 2020, 12, 6453. [Google Scholar] [CrossRef]
- Fernandes, J.; Malheiro, R.; Castro, M.d.F.; Gervásio, H.; Silva, S.M.; Mateus, R. Thermal Performance and Comfort Condition Analysis in a Vernacular Building with a Glazed Balcony. Energies 2020, 13, 624. [Google Scholar] [CrossRef]
- Manzano-Agugliaro, F.; Montoya, F.G.; Sabio-Ortega, A.; García-Cruz, A. Review of bioclimatic architecture strategies for achieving thermal comfort. Renew. Sustain. Energy Rev. 2015, 49, 736–755. [Google Scholar] [CrossRef]
- Ábalos, I. La Belleza Termodinámica. (7th Series) La casa del aire. 2008, 157; Mansilla, M., Rojo, L.L., Tuñón, E., Eds.; Circo: Madrid, Spain, 2008. [Google Scholar]
- Widera, B. Biomimetic and bioclimatic approach to contemporary architectural design on the example of CSET building. Int. Multidiscip. Sci. GeoConference: SGEM Surv. Geol. Min. Ecol. Manag. 2016, 2, 485–492. [Google Scholar]
- Pajek, L.; Košir, M. Exploring Climate-Change Impacts on Energy Efficiency and Overheating Vulnerability of Bioclimatic Residential Buildings under Central European Climate. Sustainability 2021, 13, 6791. [Google Scholar] [CrossRef]
- Leite, J.A.D.S. Automação em Arquitetura Bioclimática. Master’s Dissertation, Universidade de Coimbra, Coimbra, Portugal, 2021. [Google Scholar]
- Toroxel, J.L.; Silva, S.M. A Review of Passive Solar Heating and Cooling Technologies Based on Bioclimatic and Vernacular Architecture. Energies 2024, 17, 1006. [Google Scholar] [CrossRef]
- Jones, R.W.; McFarland, R.D. The Sunspace Primer. A Guide for Passive Solar Heating; U.S. Department of Energy Office of Scientific and Technical Information: Oak Ridge, TN, USA, 1984.
- Grudzinska, M. Glazed balconies as passive greenhouse systems—Potential of their use in Poland. Build. Serv. Eng. Res. Technol. 2016, 37, 555–572. [Google Scholar] [CrossRef]
- Suárez, M.J.; Gutiérrez, A.J.; Pistono, J.; Blanco, E. CFD analysis of heat collection in a glazed gallery. Energy Build. 2011, 43, 108–116. [Google Scholar] [CrossRef]
- Fernandes, J.; Pimenta, C.; Mateus, R.; Monteiro Silva, S.; Bragança, L. Contribution of portuguese vernacular building strategies to indoor thermal comfort and occupants’ perception. Buildings 2015, 5, 1242–1264. [Google Scholar] [CrossRef]
- Hilliaho, K. Energy Saving Potential and Interior Temperatures of Glazed Spaces: Evaluation through Measurements and Simulations. Doctoral Thesis, Tampere University of Technology, Tampere, Finland, 2017. [Google Scholar]
- Hilliaho, K.; Mäkitalo, E.; Lahdensivu, J. Energy saving potential of glazed space: Sensitivity analysis. Energy Build. 2015, 99, 87–97. [Google Scholar] [CrossRef]
- Bataineh, K.M.; Fayez, N. Analysis of thermal performance of building attached sunspace. Energy Build. 2011, 43, 1863–1868. [Google Scholar] [CrossRef]
- Aelenei, D.; de Azevedo Leal, H.; Aelenei, L. The use of attached-sunspaces in retrofitting design: The case of residential buildings in Portugal. Energy Procedia 2014, 48, 1436–1441. [Google Scholar] [CrossRef]
- Wilson, M.P.; Jorgensen, O.B.; Johannesen, G. Daylighting, energy and glazed balconies: A study of a refurbishment project in Engelsby, near Flensberg, Germany. Int. J. Light. Res. Technol. 2000, 32, 127–132. [Google Scholar] [CrossRef]
- Kuëss, H.; Koller, M.; Hammerer, T. Wohnanlage in Dornbirn. Mit Faktor zehn ins 21. Jahrhundert. Detail Green 2011, 1, 36–41. [Google Scholar]
- Slessor, C. Grand Parc, Bordeaux review—A rush of light, air and views. The Guardian. 2019. Available online: https://www.theguardian.com/artanddesign/2019/may/12/grand-parc-bordeaux-lacaton-vassal-mies-van-der-rohe-award (accessed on 9 April 2024).
- Lacaton & Vassal. www.lacatonvassal.com. Available online: https://www.lacatonvassal.com/index.php?idp=80# (accessed on 9 April 2024).
- Grand Parc Apartment Building, Bordeaux–France–Renovate Europe. Available online: https://www.renovate-europe.eu/reday/reday-2019/online-resources/grand-parc-france-e12/ (accessed on 9 April 2024).
- Hilliaho, K.; Köliö, A.; Pakkala, T.; Lahdensivu, J.; Vinha, J. Effects of added glazing on Balcony indoor temperatures: Field measurements. Energy Build. 2016, 128, 458–472. [Google Scholar] [CrossRef]
- Grudzinska, M. Overheating assessment in flats with glazed balconies in warm-summer humid continental climate. Build. Serv. Eng. Res. Technol. 2021, 42, 583–602. [Google Scholar] [CrossRef]
- IPCC. AR5 Synthesis Report: Climate Change 2014—IPCC. 2014. Available online: https://www.ipcc.ch/report/ar5/syr/ (accessed on 12 December 2023).
- INE. Censos 2021. O Que Nos Dizem Os Censos Sobre a Habitação; Instituto Nacional de Estatística: Lisboa, Portugal, 2023; ISBN 978-989-25-0635-7. Available online: https://www.ine.pt/xurl/pub/66323830 (accessed on 9 February 2024).
- Chiesa, G.; Simonetti, M.; Ballada, G. Potential of attached sunspaces in winter season comparing different technological choices in Central and Southern Europe. Energy Build. 2017, 138, 377–395. [Google Scholar] [CrossRef]
- Vukadinovic, A.; Radosavljević, J.; Đorđević, A.; Petrović, N. Effects of the Geometry of Residential Buildings with a Sunspace on Their Energy Performance. Facta Univ. Ser. Archit. Civ. Eng. 2019, 17, 105–118. Available online: http://casopisi.junis.ni.ac.rs/index.php/FUArchCivEng/article/view/4966 (accessed on 12 December 2023). [CrossRef]
- ASHRAE HoF. Handbook of Fundamentals; ASHRAE—American Society of Heating, Refrigerating and Air-Conditioning Engineers: Peachtree Corners, GA, USA, 2009. [Google Scholar]
- Ligade, J.; Sebastian, D.; Razban, A. Challenges of Creating a Verifiable Building Energy Model. ASHRAE Trans. 2019, 125, 20–29. [Google Scholar]
- INE, I.P. O Parque Habitacional e a Sua Reabilitação-Análise e Evolução 2001–2011; Instituto Nacional de Estatística, I.P., Laboratório Nacional de Engenharia Civil, I.P., Eds.; INE, I.P. 2013. Available online: https://www.ine.pt/ngt_server/attachfileu.jsp?look_parentBoui=165231808&att_display=n&att_download=y (accessed on 12 December 2023).
- Santos, C.A.P.; Matias, L. Coeficientes de Transmissão Térmica de Elementos da Envolvente Dos Edifícios-Versão Actualizada; ITE 50; Laboratório Nacional de Engenharia Civil (LNEC): Lisboa, Portugal, 2006. [Google Scholar]
- ANSI/ASHRAE Addendum A to ANSI/ASHRAE Standard 169-2020 (2021); Climatic Data for Building Design Standards. ASHRAE: Peachtree Corners, GA, USA, 2021.
- Weather Data. Available online: https://energyplus.net/weather (accessed on 15 April 2024).
- Portal do Clima. Available online: http://portaldoclima.pt/pt/ (accessed on 12 April 2024).
- von Grabe, J. A preliminary cognitive model for the prediction of energy-relevant human interaction with buildings. Cogn. Syst. Res. 2018, 49, 65–82. [Google Scholar] [CrossRef]
- Shailza. Energy Modeling of Multi-Storied Residential Buildings—A Manual Calibration Approach. In 2018 Building Performance Analysis Conference and SimBuild co-organized by ASHRAE and IBPSA-USA; SimBuild Conference; ASHRAE/IBPSA-USA: Chicago, IL, USA, 2018; Volume 8, pp. 550–557. [Google Scholar]
- ANSI/ASHRAE Standard 55; Thermal Environmental Conditions for Human Occupancy. ASHRAE: Peachtree Corners, GA, USA, 2017.
- ANSI/ASHRAE/IES Standard 90.1; Energy Efficiency Standard for Buildings Except Low-Rise Residential Buildings. ASHRAE: Peachtree Corners, GA, USA, 2019.
- DGEG & ADENE. Manual Técnico para a Avaliação do Desempenho Energético dos Edifícios, Aprovado pelo Despacho n.º 6476-H/2021, de 1 de Julho. Incluídas as Alterações Resultantes do Despacho n.º 9216/2021, de 17 de Setembro; do Despacho n.º 12935-B/2023, de 15 de Dezembro; e, da Declaração de Retificação n.º 80/2024, de 2 de Fevereiro. 2024. Available online: https://www.sce.pt/wp-content/uploads/2024/02/Manual-SCE-05022023.pdf (accessed on 12 December 2023).
- U.S. Departament of Energy (DOE). EnergyPlus™ Version 22.1.0 Documentation Input Output Reference. 2022. Available online: https://energyplus.net/assets/nrel_custom/pdfs/pdfs_v22.1.0/InputOutputReference.pdf (accessed on 12 December 2023).
- Diário da República n.º 234/2013, 3º Suplemento, Série II de 2013-12-03, páginas 26–31. 2013. Available online: https://diariodarepublica.pt/dr/detalhe/despacho-extrato/15793-f-2013-2975219 (accessed on 15 April 2024).
- Ralegaonkar, R.V.; Gupta, R. Review of intelligent building construction: A passive solar architecture approach. Renew. Sustain. Energy Rev. 2010, 14, 2238–2242. [Google Scholar] [CrossRef]
- Resilience Metrics: Engineering Reference—EnergyPlus 9.4. Available online: https://bigladdersoftware.com/epx/docs/9-4/engineering-reference/resilience-metrics.html (accessed on 15 April 2024).
- Alghoul, S.K.; Rijabo, H.G.; Mashena, M.E. Energy consumption in buildings: A correlation for the influence of window to wall ratio and window orientation in Tripoli, Libya. J. Build. Eng. 2017, 11, 82–86. [Google Scholar] [CrossRef]
- NREL. Sunspace Basics; U.S. Department of Energy, Ed.; Review of Sunspace Basics, DOE/CH10093-350 FS 124; National Renewable Energy Laboratory (U.S.): Golden, CO, USA, 1994.
- Ulpiani, G.; Giuliani, D.; Romagnoli, A.; di Perna, C. Experimental monitoring of a sunspace applied to a NZEB mock-up: Assessing and comparing the energy benefits of different configurations. Energy Build. 2017, 152, 194–215. [Google Scholar] [CrossRef]
Disclaimer/Publisher’s Note: The statements, opinions and data contained in all publications are solely those of the individual author(s) and contributor(s) and not of MDPI and/or the editor(s). MDPI and/or the editor(s) disclaim responsibility for any injury to people or property resulting from any ideas, methods, instructions or products referred to in the content. |
© 2024 by the authors. Licensee MDPI, Basel, Switzerland. This article is an open access article distributed under the terms and conditions of the Creative Commons Attribution (CC BY) license (https://creativecommons.org/licenses/by/4.0/).






















