Next Article in Journal
Distributive Justice, Goal Clarity, and Organizational Citizenship Behavior: The Moderating Role of Transactional and Transformational Leadership
Next Article in Special Issue
Experimental Study on the Static Behavior and Recovery Properties of CFRP/SMA Composites
Previous Article in Journal
Impact of Fuel Production Technologies on Energy Consumption and GHG Emissions from Diesel and Electric–Hydrogen Hybrid Buses in Rio de Janeiro, Brazil
Previous Article in Special Issue
Modeling the Cause-and-Effect Relationships between the Causes of Damage and External Indicators of RC Elements Using ML Tools
 
 
Font Type:
Arial Georgia Verdana
Font Size:
Aa Aa Aa
Line Spacing:
Column Width:
Background:
Article

Energy-Based Evaluation on Soil–Structure-Interaction-Related Damping of Inelastic Bridge Pier Structure Subjected to Pulse-like Velocity Ground Motion

1
Department of Civil Engineering, National Taipei University of Technology, Taipei 10608, Taiwan
2
Research Center of Offshore Wind Power Engineering, National Taipei University of Technology, Taipei 10608, Taiwan
*
Author to whom correspondence should be addressed.
Sustainability 2023, 15(9), 7401; https://doi.org/10.3390/su15097401
Submission received: 6 March 2023 / Revised: 19 April 2023 / Accepted: 26 April 2023 / Published: 29 April 2023

Abstract

This study proposed a procedure of using the energy method to evaluate the SSI-related damping effect when the soil–structure interaction (SSI) was considered in a bridge pier system, which can thus be deemed a soil–foundation–superstructure (SFS) inelastic system. Firstly, the SSI is implemented by adopting a discrete-time recursive filter approach as well as frequency-dependent foundation–soil impedance functions to solve for the external soil forces exerted onto the foundation. Then, by integrating such external soil forces into the motion equations of the SSI-based SFS system, the energy equations can be formulated during the ground motions. To demonstrate the proposed procedure, an implementation study involving a bridge pier was carried out, considering two earthquake recordings. The resultant energy quantities and SSI-related damping ratio shed light on how the aspects of earthquake characteristics affected the energy dissipation mechanism of the bridge pier SSI-based SFS system. This proposed procedure renders a promising solution for quantifying the soil role in the seismic energy dissipation of arbitrary single- and multiple-degree-of-freedom systems considering the SSI effect. The results obtained show that the SSI effect was suppressed when the SFS system underwent near-fault earthquakes, which illustrated that the stiffness and damping contribution from the soil was not pronounced. Furthermore, near-fault earthquakes with large incremental velocities may lead to a low SSI-related damping ratio (SSIDR).

1. Introduction

The soil–structure interaction (SSI) is crucial in evaluating structural responses. When sitting on a flexible soil bed, a system considering the SSI effect exhibits a larger structural period than the system without SSI consideration. Many studies have investigated the SSI effects on the dynamic performance of structures [1,2,3,4,5,6] and on the structural ductility and strength demand [7,8,9,10,11,12,13].
The stiffness and dynamic characteristics of soil are highly sensitive to the properties of soil contents and superstructure characteristics. To account for these characteristics, Gazetas [14] proposed a complex frequency-dependent foundation–soil impedance (FSI) function consisting of both real and imaginary components. The real component indicates the stiffness and inertia of the supporting soil, whereas the imaginary component reflects the radiation and material damping of the foundation–soil impedance system. Since Gazetas’ work, numerous studies have been conducted to address various soil modeling issues, such as the incorporation of embedded, non-circular, non-rigid, or piled foundations [15,16,17].
The frequency-dependent nature of soil often necessitates frequency-domain analyses when formulating the equation of motion for the SFS system. However, this approach can come at the cost of losing the benefits that time-domain analysis offers. Incorporating SSI into standard time-history analysis can be achieved by using a method proposed by Safak [18], which involves approximating the frequency-dependent FSI function in the time domain using a discrete-time digital filter. This allows for the definition of the relationship between foundation forces and displacements through resultant time-domain finite-difference equations. Gash et al. [19] later applied this method to solve the multiple-degree-of-freedom (MDOF) motion equation of a shear building supported by a rigid disk foundation and uniform-soil half-space. Another approach was taken by Sung et al. [20], who used a z-transformed discrete-time infinite impulse response filter as a foundation–soil impedance function. They derived a transfer function between ground displacement and foundation shear, which allowed for the analysis of structural responses using the base force propagating function.
The structural damping mechanism typically results in the dissipation of energy, which can be quantified by the viscous damping ratio. This ratio takes into account all sources of energy dissipation and condenses them into a few basic modal parameters. This approach streamlines the motion equations and provides trustworthy outcomes, making it widely employed in both academic research and practical design applications. To determine radiation damping, the ATC3-06 [21] and ASCE [22] standards utilize Veletsos’ technique [23] for assessing the structural and soil parameters. These standards propose that when evaluating foundation damping, it is important to account for both the radiation damping and soil material damping’s energy dissipation effects.
Among these two damping items, the radiation damping is dependent on the geometry of the foundation–soil contact area, the structural properties, and the soil properties. The soil material damping can be calculated from the stress–strain response in a steady-state cyclic loading using a variety of testing techniques. However, this method is only accurate as the system is in resonance [24]. In addition, due to the frequency-dependent properties of soil, the soil material damping and radiation damping cannot be directly added into the seismic numerical analysis.
Time integration and motion equation are often used for solving the energy equation of motion. By constructing and solving the energy motion equation, McKevitt et al. [25] evaluated the input energy, hysteretic energy, and the ratio of the cumulative hysteretic energy to the input energy for both single-degree-of-freedom (SDOF) and MDOF systems subjected to four earthquake records. They concluded that the input energy dissipated by the hysteretic mechanism was approximately the same for all four earthquake records.
Uang et al. [26] proposed two procedures for computing the earthquake input energy: one procedure was based on the absolute motion, whereas the other was based on the relative motion. Bruneau et al. [27] believed that the input energy derived from the relative motion method was more sensible than that from the absolute motion method. Hu et al. [28] calculated the additional equivalent damping ratio of an external damping device through energy equations. That is, the ratio of the energy consumption of inherent damping to that of the added dampers can be obtained under external excitations in the time-history analysis. Unlike the strain energy method, this method can eliminate the effect of the excitation frequency on the additional equivalent damping ratio.
From the literature reviewed above, many studies have investigated SSI’s effects, inelastic structural behaviors, near-fault earthquakes, and energy dissipation considering SSI-related damping sources. However, few papers have been concerned with the following aspects together: (1) the implementation of the SSI effect through a frequency-dependent FSI function; (2) the energy quantities of yielding energy due to structural inelasticity and SSI-related energy; and (3) near-fault ground motions, which induce different structural responses to far-field earthquakes.
In view of this, this study aimed to develop a procedure for evaluating the SSI-related damping effect, through an energy perspective, on the responses of bridge pier structures. This evaluation procedure first constructs a soil–foundation–superstructure (SFS) system by expanding an inelastic SDOF system to include a frequency-dependent SSI model via the discrete-time infinite impulse response filter (IIRF) technique. Then, based on the motion equations of the SSI-based SFS system, the energy equations were formulated to distinguish distinct energy quantities in a quantitative manner, particularly the SSI-related energy. The SSI-related damping ratio (SSIDR) was also introduced herein. An implementation study was conducted not only to demonstrate the proposed evaluation procedure, but also to compare the response variance between distinct input earthquake recordings.
This paper proceeds as follows. In Section 2, the methodology of the evaluation procedure is developed. The implementation study is in Section 3. Conclusions are addressed in the last section.

2. Methodology

2.1. Soil–Foundation–Superstructure System

Figure 1a shows an SDOF system sitting on fixed base. The SSI effect is not considered by assuming the fixed-base SDOF system subject to the free-field ground motion. To consider the SSI effect, a 3DOF SSI-based SFS system was constructed by expanding the SDOF system, comprising the underlying soil, foundation, and superstructure, as shown in Figure 1b. The SFS system includes a set of 3DOF, which encompasses the horizontal displacement us of the superstructure mass, the horizontal displacement uFIM, and the rotational angle θf at the foundation level.
In Figure 1b, ms, cs, and ks denote the mass, damping, and stiffness of the superstructure, respectively, us is the mass-to-ground relative displacement, and uf is the foundation-to-ground relative displacement. The collective soil–foundation dynamic stiffness and damping properties are approximated as the transitional and rotational forces—fh and fr—at the foundation level. Figure 2 illustrates the process flowchart for determining the transitional and rotational forces using the IIRF technique.
In this context, the method proposed by Veletsos et al. [16], Sieffert et al. [24], and Safak [18] was utilized to calculate the transitional and rotational forces, which are not explicitly discussed for the sake of brevity.

2.2. Motion Equations Considering SSI Effects and Superstructure’s Inelasticity

Equation (1) is used to formulate the equation of motion for the 3DOF SSI-based SFS system at a specific time instance n.
[ m s 0 0 0 m f 0 0 0 I f ] { u ¨ s , n u ¨ f , n θ ¨ f , n } + [ c s c s c s h c s c s c s h c s h c s h c s h 2 ] { u ˙ s , n u ˙ f , n θ ˙ f , n } + [ k s k s k s h k s k s k s h k s h k s h k s h 2 ] { u s , n u f , n θ f , n } + { 0 f h , n f r , n } = { m s m f 0 } u ¨ g , n
where
  • ms = mass of the superstructure
  • mf = mass of the foundation
  • If = moment inertia of the foundation
  • cs = damping of the superstructure
  • ks = stiffness of the superstructure
The terms  u s u f θ f  and  u ˙ s u ˙ f θ ˙ f  and  u ¨ s u ¨ f θ ¨ f  denote the displacement or rotational angle and their first- and second-order derivatives, and  u ¨ g  is the ground acceleration. The subscripts s and f represent structure- and foundation-related, respectively.
Equation (1) is intentionally restructured into the format of Equation (2) by relocating the terms  f ¯ h , n  and  f ¯ r , n  to the right-hand side of the equation. The terms  f ¯ h , n  and  f ¯ r , n , as the partial contents of the horizontal force fh,n and moment fr,n, respectively, can be derived from the known quantities uf,n−1, θf,n−1, fh,n−1 and fr,n−1 of the previous time step. Such practice can avoid recalculation of  f ¯ h , n  and  f ¯ r , n  during the time-wise iteration, thereby enhancing the efficiency of the overall calculation process.
[ m s 0 0 0 m f 0 0 0 I f ] { u ¨ s , n u ¨ f , n θ ¨ f , n } + [ c s c s c s h c s c s c s h c s h c s h c s h 2 ] { u ˙ s , n u ˙ f , n θ ˙ f , n } + [ k s k s k s h k s k s + b h , 0 k s h k s h k s h k s h 2 + b r , 0 ] { u s , n u f , n θ f , n } = { m s m f 0 } u ¨ g , n + { 0 f ¯ h , n f ¯ r , n }
f ¯ h , n = j = 1 p b h , j u f , n j + i = 1 k a h , i f h , n i
f ¯ r , n = j = 1 p b r , j θ f , n j + i = 1 k a r , i f r , n i
Literally, Equation (2) represents the motion equation obtained under the assumption of a linear system. However, to account for the nonlinear behavior of the superstructure, the Takeda hysteresis model illustrated in Figure 3 was utilized to depict the force-displacement relationship of the superstructure during cyclic elastic–plastic evolution. The superstructure’s stiffness ks in Equation (2) is no longer a constant but a variable that changes with the deformation process associated with loading, unloading, and reloading. Figure 3 demonstrates that this study defines several stiffness components, including the initial stiffness k0, the post-yielding stiffness factor r, and power law constant α.

2.3. Formulation of Energy Equations

To derive the mechanical energy quantities of the defined SSI-based SFS system during a ground motion excitation, Equation (1) is reorganized into the following three equilibrium equations for a particular time instant t:
m s u ¨ s ( t ) + c s u ˙ s ( t ) c s u ˙ f ( t ) c s h θ ˙ f ( t ) + k s u s ( t ) k s u f ( t ) k s h θ f ( t ) = m s u ¨ g ( t )
m f u ¨ f ( t ) c s u ˙ s ( t ) + c s u ˙ f ( t ) + c s h θ ˙ f ( t ) k s u s ( t ) + k s u f ( t ) + k s h θ f ( t ) + f h = m f u ¨ g ( t )
I f θ ¨ f ( t ) c s h u ˙ s ( t ) + c s h u ˙ f ( t ) + c s h 2 θ ˙ f ( t ) k s h u s ( t ) + k s h u f ( t ) + k s h 2 θ f ( t ) + f r = 0
Through integration of Equations (5)–(7) w.r.t. us(t), uf(t), and θf(t), respectively, the energy equation for each degree of freedom is obtained:
m s u ¨ s ( t ) d u s + c s u ˙ s ( t ) d u s c s u ˙ f ( t ) d u s c s h θ ˙ f ( t ) d u s + k s u s ( t ) d u s k s u f ( t ) d u s k s h θ f ( t ) d u s = m s u ¨ g ( t ) d u s
m f u ¨ f ( t ) d u f c s u ˙ s ( t ) d u f + c s u ˙ f ( t ) d u f + c s h θ ˙ f ( t ) d u f k s u s ( t ) d u f + k s u f ( t ) d u f + k s h θ f ( t ) d u f + f h d u f = m f u ¨ g ( t ) d u f
I f θ ¨ f ( t ) d θ f c s h u ˙ s ( t ) d θ f + c s h u ˙ f ( t ) d θ f + c s h 2 θ ˙ f ( t ) d θ f k s h u s ( t ) d θ f + k s h u f ( t ) d θ f + k s h 2 θ f ( t ) d θ f + f r d θ f = 0
From the view of energy dissipation mechanism, the above energy quantities can be classified into kinetic energy, Ek(t), damping energy, Ed(t), recoverable strain energy, Es(t), yielding energy, EY(t), SSI-related energy, ESSI-related(t), and input energy, Ein(t), as defined in Equations (11)–(15).
The kinetic energy is associated with the work undertaken by the inertial forces in the components of the system. The recoverable strain energy and yielding energy are dependent on the structural stiffness. The seismic input energy is primarily dissipated through the hysteresis damping of the superstructure and the SSI effect caused by supporting soil, which is alternatively represented through the work undertaken by the transitional and rotational foundation forces in this study.
E k ( t ) = 0 u s m s u ¨ s ( t ) d u s + 0 u f m f u ¨ f ( t ) d u f + 0 θ f I f θ ¨ f ( t ) d θ f
E d ( t ) = 0 u s c s u ˙ s ( t ) d u s 0 u s c s u ˙ f ( t ) d u s 0 u s c s h θ ˙ f ( t ) d u s 0 u f c s u ˙ s ( t ) d u f + 0 u f c s u ˙ f ( t ) d u f + 0 u f c s h θ ˙ f ( t ) d u f 0 θ f c s h u ˙ s ( t ) d θ f + 0 θ f c s h u ˙ f ( t ) d θ f + 0 θ f c s h 2 θ ˙ f ( t ) d θ f
E Y ( t ) + E s ( t ) = 0 u k s u s ( t ) d u s 0 u k s u f ( t ) d u s 0 u k s h θ f ( t ) d u s 0 u f k s u s ( t ) d u f + 0 u f k s u f ( t ) d u f + 0 u f k s h θ f ( t ) d u f 0 θ f k s h u s ( t ) d θ f + 0 θ f k s h u f ( t ) d θ f + 0 θ f k s h 2 θ f ( t ) d θ f
E S S I r e l a t e d ( t ) = 0 u f f h ( t ) d u f + 0 θ f f r ( t ) d θ f
E i n ( t ) = 0 u s m s u ¨ g ( t ) d u s 0 u f m f u ¨ g ( t ) d u f
Based on the energy conservation theorem, the energy equilibrium equation can be written as
E i n ( t ) = E k ( t ) + E d ( t ) + E s ( t ) + E Y ( t ) + E S S I r e l a t e d ( t )

2.4. Determination of SSI-Related Damping Ratio

This study used a work–energy theorem equation to determine the SSI-related Damping Ratio (SSIDR), as presented in Equation (17). The SSI-related energy dissipated is equalized with the energy dissipated by an equivalent viscous system during one vibration cycle:
E S S I D R ( t ) = f S S I r e l a t e d d u = 0 2 π / ω ( c S S I r e l a t e d u ˙ ) u ˙ d t = 0 2 π / ω c S S I r e l a t e d u ˙ 2 d t = 2 π ξ S S I r e l a t e d ω ω n k u 0 2
where
  • ω = circular frequency of excitation
  • ωn = natural circular frequency of the system
  • u0 = maximum displacement of the structure in one cycle
  • ξSSI-related = SSI-related Damping Ratio (SSIDR)
  • cSSI-related = SSI-related damping coefficient in one loading cycle  = 2 k ξ S S I r e l a t e d / ω n
In the paper, the frequency-related impedance function is presented in the time domain through the aforementioned IIRF system, and the energy equation expressed by applying the SSIDR is defined in Equation (18). The energy entity  E S S I D R  signifies the energy dissipated due to SSI effect during a period of [0, t].
E S S I D R ( t ) = 0 t f S S I r e l a t e d u ˙ d t = 0 t c S S I r e l a t e d u ˙ 2 d t = 2 ξ S S I r e l a t e d k ω n 0 t u ˙ 2 d t
Meanwhile, the energy dissipated by the inherent damping of the superstructure can be expressed as
E d ( t ) = 0 t c u ˙ 2 d t = 2 ξ 0 k ω n 0 t u ˙ 2 d t
where  ξ 0  denotes the inherent damping ratio of the superstructure. Accordingly, the SSIDR can then be defined as
ξ S S I r e l a t e d ( t ) = ξ 0 E S S I D R E d = ξ 0 0 t f d u ˙ d t 0 t c u ˙ 2 d t
When under an earthquake excitation, the ξSSI-related value varies as the time elapses. To circumvent the needs for determining the energy quantities and ξSSI-related at discrete time instants, this study calculated the ξSSI-related in the form of the total system energy.

3. Implementation Study

A procedure of using the energy method to evaluate the SSI-related damping in a bridge pier system was developed based on the methods and techniques elaborated in Section 2. This section presents a bridge pier case to demonstrate an implementation procedure.
Theoretically, the proposed SSI-based SFS system is developed by expanding an SDOF model to include the SSI effects (e.g., damping) via the IIRF technique. As the base stone, the accuracy of the fixed-base SDOF model is of great importance.
Therefore, the case study is conducted by first referencing a previous experimental bridge pier study to verify the feasibility of the fixed-base SDOF model, and then conducting seismic analyses on the IIRF-integrated SFS system to explore the SSI effects on the relative displacement responses. Furthermore, great emphasis was laid on the energy dissipation mechanism of the SSI-based SFS system and the role of SSI-related energy dissipating in a quantitative manner (i.e., SSIDR) when different earthquake recordings were considered.

3.1. Experimental Study of Bridge Pier

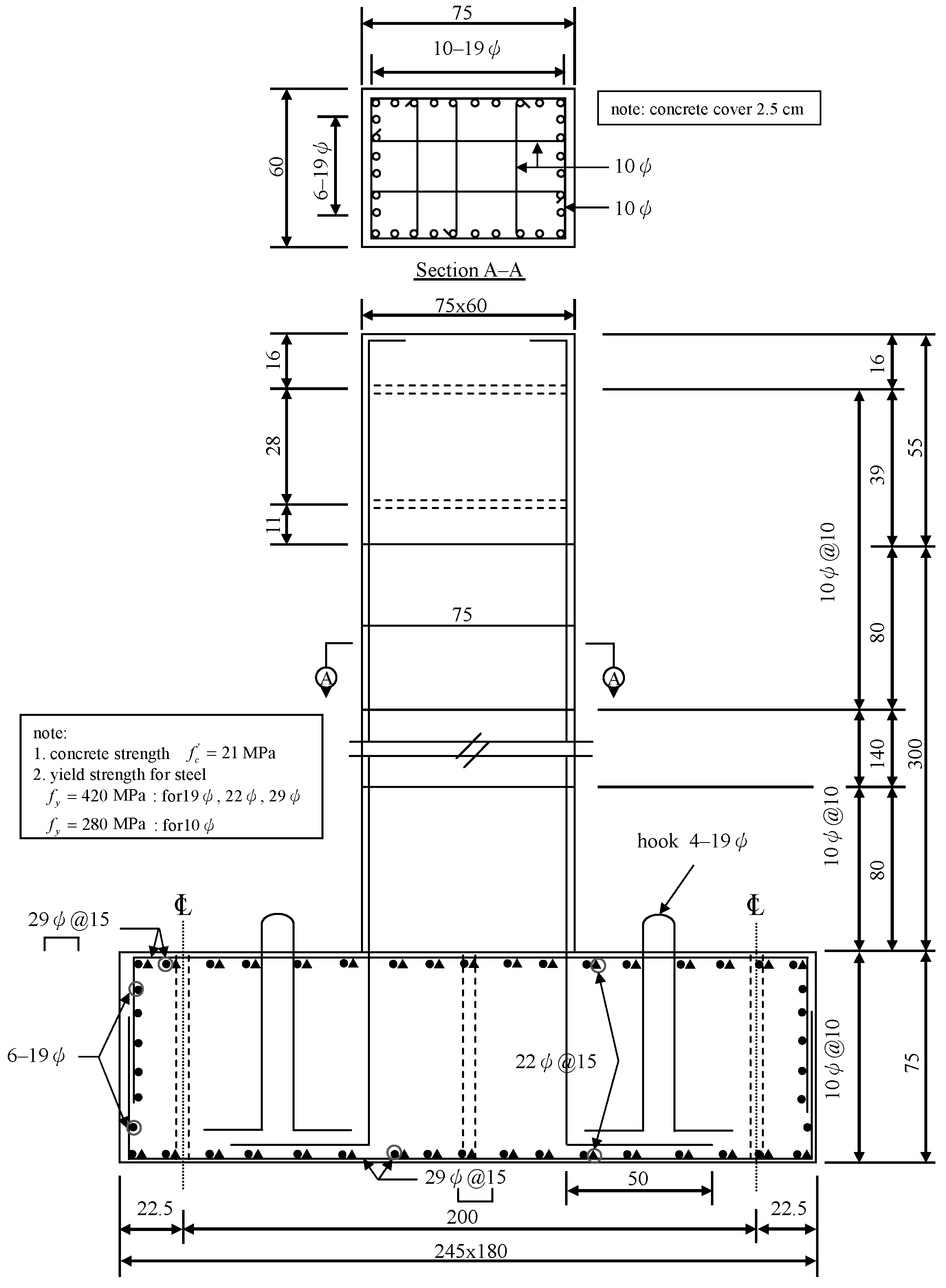
To illustrate the proposed method and provide a comparison object, an experimental study by Chang et al. [29] was referenced. Chang et al. conducted a series of experimental studies on the hysteresis performance of bridge columns under particular ground excitations. The experimental studies involved three identical reinforced-concrete (RC) bridge piers (Specimens A–C), which were designed according to the 1995 Taiwan Bridge Design Code, and the geometry and reinforcement details of the as-built specimens are illustrated in Figure 4. The loading conditions were designed so that Specimen A was subjected to a cyclic loading at the specimen’s bottom, and that Specimens B and C were during real earthquake recordings. The masses of 27,500 kg and 68,000 kg were applied via a load cell to Specimens B and C, respectively.
In Chang et al.’s study, the loading conditions of Specimens B and C adopted the ground motion data recorded during the 1999 Chi-Chi Earthquake, Taiwan, at the stations of TCU075 and TCU102. Figure 5 and Figure 6 separately display the 30-s ground acceleration and velocity time-histories of the earthquake TCU075 recording with the PGA = 0.8 g and TCU102 recording with the PGA = 0.7 g.
It is noted that both ground excitation records exhibit pulse-like velocity patterns. For example, in the TCU075 ground motion, the ground velocity spikes from nearly zero to its maximum of 280.43 cm/s within a short time duration and then transits to 54.26 cm/s in the opposite direction, and the maximum incremental velocity (MIV) is 334.69 cm/s (+280.43 → −54.26 cm/s). However, TCU102 exhibits a rather opposite fashion in that the velocity instantaneously transits from the upper side peak of 164.34 cm/s to the bottom side peak of 201.99 cm/s, while the MIV is 366.33 cm/s (+164.34 → −201.99 cm/s).
The variance between the TCU075 and TCU102 recordings lay in the fact that the ground velocity from the upper side peak had a large intensity and the bottom side peak had a moderate intensity in the TCU075 recording, i.e., large-to-moderate MIV, and, by contrast, in the TCU102 recording, the ground velocity from the upper side peak had a large intensity to the bottom side peak with a large intensity, i.e., large-to-large MIV.

3.2. Verification of Bridge Pier Fixed-Base SDOF System

According to the results of Specimen A subjected to the cyclic loading, the lateral yielding force Fy = 411.68 kN with the yielding displacement Δy = 42.23 mm, and the ultimate force Fu = 432.69 kN with the ultimate displacement Δu = 150 mm. Based on the results, a Takeda’s model (Figure 3) can be formulated with k0 = 9748.78 MPa, r = 0.06, and a = 0.5 to present the bridge pier specimens’ elastic–plastic behavior. For the dynamic characteristics of Specimens B and C, the elastic structural period is 0.3337 s and 0.5248 s, respectively.
The fundamental dynamic characteristic of the test can be modeled by an SDOF system using lumped mass and experimental stiffness. A MATLAB-compiled simple fixed-base SDOF bridge pier model that incorporated the derived Takeda’s model was constructed, with the superstructure’s damping ratio of 5%. Dynamic simulations were then conducted by subjecting the inelastic fixed-base SDOF pier model to the earthquake TCU075 and TCU102 recordings (Figure 5 and Figure 6).
The resultant restoring force and mass-to-foundation relative displacement are displayed in Figure 7 and Figure 8, and the corresponding results of Chang et al.’s study are also depicted for a comparison purpose. According to the results during the earthquake TCU075 recording (large-to-moderate MIV), the maximum lateral restoring force and displacement in the experiment study were 466.97 kN and 68.32 mm, occurring at t = 14.52 s (Figure 7), in contrast to the analytical counterpart of 426.86 kN and 68.18 mm.
Likewise, for the earthquake TCU102 recording (large-to-large MIV), the maximum lateral restoring force and displacement in the experiment were 476.78 kN and 60.98 mm at t = 14.79 s, while the analytical responses, simultaneously, were 429.08 kN and 72.66 mm (Figure 8). Because pronounced concrete cover spalling and reinforcement buckling occurred at the bottom of the specimen during the test, the test was halted at t = 16.27 s to avoid unpredictable catastrophes.
Given the resemblance of the hysteresis loops and displacement time-history, as well as the consistency of the maximum lateral restoring force and displacement, it is sensible to deduce that the inelastic fixed-base SDOF bridge pier model is reliable for later use as the foundation for developing the IIRF-integrated SSI-based SFS system.

3.3. Dynamic Analyses of Bridge Pier SFS System

By applying the methods stated in Section 2.1 and Section 2.2, the verified inelastic fixed-base SDOF bridge pier model was expanded to include the SSI effect via the discrete-time IIRF technique to develop the target SFS system. Figure 9 and Table 1 exhibit the modeling parameters for the soil and the foundation.
This study employed soil conditions with the shear wave velocity VS = 365 m/s. The superstructure of the SSI-based SFS model was assumed to be supported by a rigid disk foundation and an underlying uniform-soil half-space. The rigid disk foundation is 0.9 m in height and 4 m in diameter, with a mass of 27,143 kg.
Figure 10 and Figure 11 and Table 2 present the analytical results of the SSI-based SFS simulation during the earthquake TCU075 or TCU102 recordings, in contrast to those of the corresponding fixed-base SDOF simulation.
From the above results, it was found that:
  • As to the earthquake TCU075 recording (large-to-moderate MIV), when the SSI effect was considered, the hysteresis loops and the mass-to-foundation relative displacement time-history displayed good resemblance between the SSI-based SFS and fixed-base SDOF systems.
  • As to the earthquake TCU102 recording (large-to-large MIV), the SSI-based SFS system exhibited wider hysteresis loops and larger superstructure displacement responses than the fixed-base SDOF system. This indicated an amplification effect of the soil on the earthquake excitation and the corresponding superstructure responses.
In this study, frequency domain analysis was conducted on the structural system responses of the Fixed-base SDOF System and SSI-based SFS System using Fourier transform. The influence of the SSI effect on the structural period was investigated during different near-fault ground motions. Figure 12 and Figure 13 show the Fourier spectra of the Fixed-base SDOF System and SSI-based SFS System, respectively, for the earthquake recordings TCU075 and TCU102. The structural periods are summarized in Table 3. Compared with the elastic period, the structural periods are larger as the structure enters the inelastic phase. Additionally, the results show that considering SSI can prolong the structural period (from 0.390 s to 0.410 s) during the earthquake TCU075 recording (large-to-moderate MIV). Meanwhile, during the earthquake TCU102 recording (large-to-large MIV), there is no difference in the Fourier transform of structural responses between the SFS System and Fixed-base SDOF System (0.640 s). This indicates that the SSI effect is suppressed during the earthquake TCU102 recording (large-to-large MIV).
The above observation exhibits the SSI effects on the displacement response of the superstructure in a qualitative manner, not rending an overview performance of the superstructure, foundation, and soil as a whole. The next section attempts, from an energy viewpoint, to discuss the SSI-based SFS system energy dissipation mechanism and the role of soil in energy dissipation in a quantitative manner.

3.4. Energy Time-History Analysis Considering SSI Effect

According to the formulation of energy equation mentioned in Section 2.4 and the above analytical results of the SSI-based SFS system subjected to two near-fault earthquake recordings, this study obtained the separate energy quantities of damping energy, Ed, recoverable strain energy, Es, yielding energy, EY, SSI-related energy, ESSI-related, and input energy, Ein, as defined in Equations (12)–(15) and shown in Figure 14 and Figure 15.
It can be seen from Figure 14 that as the time elapses from the initiation of the earthquake TCU075 recording (large-to-moderate MIV), the input energy Ein gradually increases till a considerable leap occurs at t = 14–15 s. Such leaping fashion simultaneously happens to the energy sum of recoverable strain energy Es and yielding energy EY; this indicates that the superstructure enters its inelastic domain concurrently. Notably, the maximum velocity pulse (Figure 5b) does not coincide with the energy leaping.
Likewise, Figure 15 gives the energy time history of the SSI-based SFS system during the earthquake TCU102 recording (large-to-large MIV). The maximum velocity pulse occurred at approximately t = 16 s (Figure 6b), followed by an excitation cease considering the prevention of possible structural catastrophe, as shown in Figure 8b. In other words, the original earthquake TCU102 recording was modified by truncating the excitation trace at t = 16.27 s, after which the ground motion ceased.
In the TCU102 earthquake recording case, no pronounced SSI-related energy dissipation appears (Figure 15). Such variance may be attributable to the fact that the two earthquake recordings have distinct ground motion traces. As shown in Figure 6b, TCU102 exhibits a fashion that the velocity instantaneously transits from one side peak to the other side peak, with a velocity change of 366.33 cm/s. Such sudden large-to-large MIV may cause the soil to not be able to react in a short time and the structure suddenly reaches its failure limit.
Table 4 presents the energy quantities integrated over time regarding the earthquake recordings, and the percentage of the total input energy is determined and presented in Table 4.
According to Table 4, conclusions can be drawn as follows:
  • During the earthquake TCU075 recording (large-to-moderate MIV), the SSI-related energy ESSI-related took up only 2.4% of the total earthquake energy, whereas the damping energy Ed and the strain and yielding energy Es + EY accounted for 64.8% and 31.3%, respectively.
  • During the earthquake TCU102 recording (large-to-large MIV), the velocity pulse shifted too fast to initiate the SSI-related energy dissipation action; therefore, the SSI-related energy percentage was rather small, i.e., ESSI-related = 1.51% Ein. Given the fact that the strain and yielding energy Es + EY = 52.34%, it is sensible to deduce that the superstructure undertook the majority of energy by exerting its inelastic performance, with minor SSI effects on energy consumption.

3.5. SSIDR Determination

Through the IIRF method, the frequency-dependent characteristics of the soil can be transformed into the time domain for dynamic analysis. As a result, the SSI effect (including the dynamic stiffness and damping property of the soil) were approximated as the transitional force and rotational moment at the foundation level. Therefore, the work done by the transitional force and rotational moment can be regarded as the SSI-related energy of the SSI-based SFS system.
According to the characteristics of cumulated damping and recoverable strain energy, the SSI-related energy illustrated in Figure 16 can be disassembled into the recoverable strain energy and cumulated damping energy.
Because the SSIDR is a variable during the time-history process, this study used the total system energy to calculate the representative SSIDR during a specific earthquake. The resultant SSIDRs are presented in Table 5, and a solid trend can be found: The small SSIDR values during the earthquake TCU102 recording (large-to-large MIV) indicated minor SSI effects on the system, and that the majority of the earthquake energy was dissipated through the inelastic performance of the superstructure. This observation is consistent with the findings in Section 3.3, where the SFS system’s structural period was not prolonged due to the SSI effect during the earthquake TCU102 recording (large-to-large MIV), indicating that the SSI effects are suppressed during near-fault earthquakes with large-to-large MIV characteristics.

4. Conclusions

This study proposed a procedure of using the energy method to evaluate the SSI-related damping effects on the responses of bridge pier structures. Through the IIRF method, the frequency-dependent SSI function was transferred into the time domain to formulate the motion equation of the bridge pier SSI-based SFS inelastic system. Based on the motion equation, the energy dissipation mechanism was formulated to explore the SSI-related and superstructure energy distribution separately. Taketa’s model, with the model parameters calibrated experimentally, was used to account for the elastic–plastic behavior of the bridge pier system. Therefore, the energy consumed by the superstructure yielding can be quantitatively determined. Finally, the SSIDR was obtained from the intrinsic damping ratio and the ratio of the SSI-related energy to the superstructure damping energy. Instead of achieving the SSIDR at each instant, this study determined an overall SSIDR based on the total system energy scale.
Furthermore, an implementation study was conducted based on a previous experimental study to compare the response variance between distinct input earthquake recordings, and the primary findings are briefly summarized as follows:
  • Earthquakes with large-to-large MIV may lead to low SSIDRs. For those with large-to-large MIV features, considering the decrease in the SSI effect, the structure may be exerted towards more nonlinear behaviors.
  • Regardless of the earthquake TCU075 or TCU102 recording, the SSI effect was suppressed when the SFS system underwent near-fault earthquakes. This phenomenon illustrated that the stiffness and damping contribution from the soil was not pronounced.

Author Contributions

Conceptualization, K.-H.C.; methodology, K.-H.C.; software, K.-H.C.; supervision, Y.-C.S. and C.-K.S.; validation, X.-Q.L. and C.-K.S.; visualization, Y.-C.S.; writing—original draft, K.-H.C.; writing—review and editing, X.-Q.L. All authors have read and agreed to the published version of the manuscript.

Funding

This research was supported by the Ministry of Science and Technology in Taiwan. (Project No.: 109-2221-E-027-003-MY3).

Data Availability Statement

Data will be made available on request.

Conflicts of Interest

The authors declare that they have no known competing financial interests or personal relationships that could have appeared to influence the work reported in this paper.

References

  1. Chopra, A.K.; Gutierrez, J.A. Earthquake response analysis of multistorey buildings including foundation interaction. Earthq. Eng. Struct. Dyn. 1974, 3, 65–77. [Google Scholar] [CrossRef]
  2. Novak, M. Effect of soil on structural response to wind and earthquake. Earthq. Eng. Struct. Dyn. 1974, 3, 79–96. [Google Scholar] [CrossRef]
  3. Veletsos, A.S.; Meek, J.W. Dynamic behavior of building-foundation systems. Earthq. Eng. Struct. Dyn. 1974, 3, 121–138. [Google Scholar] [CrossRef]
  4. Wang, J.; Guo, T.; Du, Z. Experimental and numerical study on the influence of dynamic structure-soil-structure interaction on the responses of two adjacent idealized structural systems. J. Build. Eng. 2022, 52, 104454. [Google Scholar] [CrossRef]
  5. Zhang, X.; Far, H. Effects of dynamic soil-structure interaction on seismic behaviour of high-rise buildings. Bull. Earthq. Eng. 2022, 20, 3443–3467. [Google Scholar] [CrossRef]
  6. Carbonari, S.; Dezi, F.; Padrón, L.A.; Zimmaro, P. Preface to special issue on modelling and assessment of soil-structure interaction effects on the dynamics of structures. Bull. Earthq. Eng. 2022, 20, 3071–3076. [Google Scholar] [CrossRef]
  7. Bielak, J. Dynamic response of non-linear building-foundation systems. Earthq. Eng. Struct. Dyn. 1978, 6, 17–30. [Google Scholar] [CrossRef]
  8. Rodriguez, M.E.; Montes, R. Seismic response and damage analysis of buildings supported on flexible soils. Earthq. Eng. Struct. Dyn. 2000, 29, 647–665. [Google Scholar] [CrossRef]
  9. Avilés, J.; Pérez-Rocha, L.E. Soil–structure interaction in yielding systems. Earthq. Eng. Struct. Dyn. 2003, 32, 1749–1771. [Google Scholar] [CrossRef]
  10. Hassani, N.; Bararnia, M.; Amiri, G.G. Effect of soil-structure interaction on inelastic displacement ratios of degrading structures. Soil. Dyn. Earthq. Eng. 2018, 104, 75–87. [Google Scholar] [CrossRef]
  11. Cao, X.Y.; Feng, D.C.; Beer, M. Consistent seismic hazard and fragility analysis considering combined capacity-demand uncertainties via probability density evolution method. Struct. Saf. 2023, 103, 102330. [Google Scholar] [CrossRef]
  12. Anand, V.; Kumar, S.S. Sensitivity of strength reduction factor for structures considering soil-structure interaction. Structures 2022, 39, 593–606. [Google Scholar] [CrossRef]
  13. Avcı, Y.; Yazgan, U. Probabilistic estimation of inelastic displacement demands in soil–structure interaction systems on cohesive soils. Earthq. Eng. Struct. Dyn. 2022, 51, 22–43. [Google Scholar] [CrossRef]
  14. Gazetas, G. Analysis of machine foundation vibrations: State of the art. Soil Dyn. Earthq. Eng. 1983, 2, 2–42. [Google Scholar] [CrossRef]
  15. Luco, J.E. Impedance functions for a rigid foundation on a layered medium. Nucl. Eng. Des. 1974, 31, 204–217. [Google Scholar] [CrossRef]
  16. Veletsos, A.S.; Wei, Y. Lateral and rocking vibration of footings. J. Soil Mech. Found. Div. 1971, 97, 1227–1248. [Google Scholar] [CrossRef]
  17. Apsel, R.J.; Luco, J.E. Impedance functions for foundations embedded in a layered medium: An integral equation approach. Earthq. Eng. Struct. Dyn. 1987, 15, 213–231. [Google Scholar] [CrossRef]
  18. Şafak, E. Time-domain representation of frequency-dependent foundation impedance functions. Soil Dyn. Earthq. Eng. 2006, 26, 65–70. [Google Scholar] [CrossRef]
  19. Gash, R.; Seylabi, E.E.; Taciroglu, E. Implementation and stability analysis of discrete-time filters for approximating frequency-dependent impedance functions in the time domain. Soil. Dyn. Earthq. Eng. 2017, 94, 223–233. [Google Scholar] [CrossRef]
  20. Sung, Y.C.; Chen, C.C. Z-Transferred discrete-time infinite impulse response filter as foundation–soil impedance function for SDOF dynamic structural response considering soil–structure interaction. Earthq. Spectra 2019, 35, 1003–1022. [Google Scholar] [CrossRef]
  21. ATC-32; Improved Seismic Design Criteria for California Bridges: Provisional Recommendation. Applied Technology Council: Redwood City, CA, USA, 1996.
  22. ASCE-7-16; Minimum Design Loads and Associated Criteria for Buildings and Other Structures. American Society of Civil Engineers: Reston, VA, USA, 2017.
  23. Veletsos, A.S. Dynamics of structure-foundation systems. In Structural and Geotechnical Mechanic; Hall, W.J., Ed.; Prentice-Hall: Englewood Cliffs, NJ, USA, 1977; pp. 333–361. [Google Scholar]
  24. Sieffert, J.G.; Cevaer, F. Handbook of Impedance Function: Surface Foundations; Ouest Editions Presses Academiques: Nantes, France, 1991. [Google Scholar]
  25. McKevitt, W.E.; Anderson, D.L.; Cherry, S. Hysteretic energy spectra in seismic design. In Proceedings of the 2nd World Conference on Earthquake Engineering, Tokyo and Kyoto, Japan, 11–18 July 1960; Volume 7, pp. 487–494. [Google Scholar]
  26. Uang, C.M.; Bertero, V.V. Evaluation of seismic energy in structures. Earthq. Eng. Struct. Dyn. 1990, 19, 77–90. [Google Scholar] [CrossRef]
  27. Bruneau, M.; Wang, N. Some aspects of energy methods for the inelastic seismic response of ductile SDOF structures. Eng. Struct. 1996, 18, 1–12. [Google Scholar] [CrossRef]
  28. Hu, X.; Chen, Q.; Weng, D.; Zhang, R.; Ren, X. Estimation of additional equivalent damping ratio of the damped structure based on energy dissipation. Adv. Civ. Eng. 2019, 2019, 8052413. [Google Scholar] [CrossRef]
  29. Chang, S.Y.; Li, Y.F.; Loh, C.H. Experimental study of seismic behaviors of as-built and carbon fiber reinforced plastics repaired reinforced concrete bridge columns. J. Bridge Eng. 2004, 9, 391–402. [Google Scholar] [CrossRef]
Figure 1. Structural models: (a) the fixed-base SDOF system and (b) the SSI-based SFS system.
Figure 1. Structural models: (a) the fixed-base SDOF system and (b) the SSI-based SFS system.
Sustainability 15 07401 g001
Figure 2. Flowchart depicting the process of determining the translational and rotational forces through the use of the IIRF technique.
Figure 2. Flowchart depicting the process of determining the translational and rotational forces through the use of the IIRF technique.
Sustainability 15 07401 g002
Figure 3. Takeda’s hysteretic model.
Figure 3. Takeda’s hysteretic model.
Sustainability 15 07401 g003
Figure 4. Geometry and reinforcement details of the bridge pier specimens.
Figure 4. Geometry and reinforcement details of the bridge pier specimens.
Sustainability 15 07401 g004
Figure 5. Ground motion time-histories of Station TCU075: (a) acceleration and (b) velocity time-history.
Figure 5. Ground motion time-histories of Station TCU075: (a) acceleration and (b) velocity time-history.
Sustainability 15 07401 g005
Figure 6. Ground motion time-histories of Station TCU102: (a) acceleration and (b) velocity time-history.
Figure 6. Ground motion time-histories of Station TCU102: (a) acceleration and (b) velocity time-history.
Sustainability 15 07401 g006
Figure 7. Comparison between analytical and experimental results subjected to ground motion recording of Station TCU075: (a) hysteretic loops and (b) displacement time-history.
Figure 7. Comparison between analytical and experimental results subjected to ground motion recording of Station TCU075: (a) hysteretic loops and (b) displacement time-history.
Sustainability 15 07401 g007
Figure 8. Comparison between analytical and experimental results subjected to ground motion recording of Station TCU102: (a) hysteretic loops and (b) displacement time-history.
Figure 8. Comparison between analytical and experimental results subjected to ground motion recording of Station TCU102: (a) hysteretic loops and (b) displacement time-history.
Sustainability 15 07401 g008
Figure 9. Geometry details of the bridge pier specimens.
Figure 9. Geometry details of the bridge pier specimens.
Sustainability 15 07401 g009
Figure 10. Analytical result comparison between SSI-based SFS and Fixed-base SDOF systems during ground motion recording of Station TCU075: (a) hysteretic loops and (b) displacement time-history.
Figure 10. Analytical result comparison between SSI-based SFS and Fixed-base SDOF systems during ground motion recording of Station TCU075: (a) hysteretic loops and (b) displacement time-history.
Sustainability 15 07401 g010
Figure 11. Analytical result comparison between SSI-based SFS and Fixed-base SDOF systems during ground motion recording of Station TCU102: (a) hysteretic loops and (b) displacement time-history.
Figure 11. Analytical result comparison between SSI-based SFS and Fixed-base SDOF systems during ground motion recording of Station TCU102: (a) hysteretic loops and (b) displacement time-history.
Sustainability 15 07401 g011
Figure 12. Fourier transform analytical results during ground motion recording of Station TCU075: (a) Fixed-base SDOF system and (b) SSI-based SFS system.
Figure 12. Fourier transform analytical results during ground motion recording of Station TCU075: (a) Fixed-base SDOF system and (b) SSI-based SFS system.
Sustainability 15 07401 g012
Figure 13. Fourier transform analytical results during ground motion recording of Station TCU102: (a) Fixed-base SDOF system and (b) SSI-based SFS system.
Figure 13. Fourier transform analytical results during ground motion recording of Station TCU102: (a) Fixed-base SDOF system and (b) SSI-based SFS system.
Sustainability 15 07401 g013
Figure 14. Energy time-histories of the SSI-based SFS system during ground motion recording of Station TCU075.
Figure 14. Energy time-histories of the SSI-based SFS system during ground motion recording of Station TCU075.
Sustainability 15 07401 g014
Figure 15. Energy time-histories of the SSI-based SFS system during ground motion recording of Station TCU102.
Figure 15. Energy time-histories of the SSI-based SFS system during ground motion recording of Station TCU102.
Sustainability 15 07401 g015
Figure 16. SSI-related energy time-history of the SSI-based SFS system.
Figure 16. SSI-related energy time-history of the SSI-based SFS system.
Sustainability 15 07401 g016
Table 1. Modeling Parameters of the Superstructure, Foundation, and Soil.
Table 1. Modeling Parameters of the Superstructure, Foundation, and Soil.
Superstructure
Superstructure Height hs (m)3.55
Superstructure Cross Section (m)0.75 × 0.6
Superstructure Stiffness (MPa)9748.78
Superstructure’s Damping Ratio0.05
Post-yielding Stiffness Factor r0.06
Power Law Constant α0.5
Foundation
Foundation Height hf (m)0.9
Foundation Mass Wf (kg)27,143
Foundation Diameter df (m)4
Soil
Shear Modulus G (kN/m2)29,964
Shear Wave Velocity Vs (m/s)365
Poisson’s Ratio v1/3
Table 2. Range of the mass-to-foundation relative displacement (mm) of the SSI-based SFS and Fixed-base SDOF systems during the earthquake TCU075 and TCU102 recordings.
Table 2. Range of the mass-to-foundation relative displacement (mm) of the SSI-based SFS and Fixed-base SDOF systems during the earthquake TCU075 and TCU102 recordings.
Earthquake RecordingSSI-Based SFS SystemFixed-Base SDOF System
TCU075+57.84~−72.04+58.23~−70.14
TCU102+104.5~−89.13+67.63~−79.01
Note: the positive and negative signs denote the fore- and aft-movement directions, respectively.
Table 3. The structural period of the SSI-based SFS and Fixed-base SDOF systems during the earthquake TCU075 and TCU102 recordings.
Table 3. The structural period of the SSI-based SFS and Fixed-base SDOF systems during the earthquake TCU075 and TCU102 recordings.
Earthquake RecordingFixed-Base SDOF SystemSSI-Based SFS System
TCU0750.390 s0.410 s
TCU1020.640 s0.640 s
Table 4. Summary of Energy Quantities in the SSI-based SFS Systems.
Table 4. Summary of Energy Quantities in the SSI-based SFS Systems.
Earthquake
Recording
Energy Quantities of the SSI-Based SFS System (kN-m-s)
(The Values in the Parentheses Signify the Percentage of the Total Input Energy)
EkEdEs+ EYESSI-related
TCU07530.240
(1.51%)
1293.964
(64.797%)
624.996
(31.297%)
47.764
(2.392%)
TCU10229.956
(9.091%)
121.821
(36.970%)
172.764
(52.431%)
4.969
(1.508%)
Table 5. Summary of the SSIDR in the SSI-based SFS system.
Table 5. Summary of the SSIDR in the SSI-based SFS system.
Earthquake RecordingSSIDR (%)
TCU075
(large-to-moderate velocity transition)
0.167
TCU102
(large-to-large velocity transition)
0.066
Disclaimer/Publisher’s Note: The statements, opinions and data contained in all publications are solely those of the individual author(s) and contributor(s) and not of MDPI and/or the editor(s). MDPI and/or the editor(s) disclaim responsibility for any injury to people or property resulting from any ideas, methods, instructions or products referred to in the content.

Share and Cite

MDPI and ACS Style

Chao, K.-H.; Sung, Y.-C.; Liu, X.-Q.; Su, C.-K. Energy-Based Evaluation on Soil–Structure-Interaction-Related Damping of Inelastic Bridge Pier Structure Subjected to Pulse-like Velocity Ground Motion. Sustainability 2023, 15, 7401. https://doi.org/10.3390/su15097401

AMA Style

Chao K-H, Sung Y-C, Liu X-Q, Su C-K. Energy-Based Evaluation on Soil–Structure-Interaction-Related Damping of Inelastic Bridge Pier Structure Subjected to Pulse-like Velocity Ground Motion. Sustainability. 2023; 15(9):7401. https://doi.org/10.3390/su15097401

Chicago/Turabian Style

Chao, Kuo-Hung, Yu-Chi Sung, Xiao-Qin Liu, and Chin-Kuo Su. 2023. "Energy-Based Evaluation on Soil–Structure-Interaction-Related Damping of Inelastic Bridge Pier Structure Subjected to Pulse-like Velocity Ground Motion" Sustainability 15, no. 9: 7401. https://doi.org/10.3390/su15097401

APA Style

Chao, K.-H., Sung, Y.-C., Liu, X.-Q., & Su, C.-K. (2023). Energy-Based Evaluation on Soil–Structure-Interaction-Related Damping of Inelastic Bridge Pier Structure Subjected to Pulse-like Velocity Ground Motion. Sustainability, 15(9), 7401. https://doi.org/10.3390/su15097401

Note that from the first issue of 2016, this journal uses article numbers instead of page numbers. See further details here.

Article Metrics

Back to TopTop