Next Article in Journal
Enhanced Net Channel Based-Heat Sink Designs for Cooling of High Concentration Photovoltaic (HCPV) Systems in Dammam City
Next Article in Special Issue
A Simplified Method for BIPV Retrofitting of Emirati Public Housing with Preserved Architectural Identity: A Pilot Study
Previous Article in Journal
Impact or Outputs? Exploring Multinational’s CSR Activities in Mexico
Previous Article in Special Issue
An Analysis of the Development of Modular Building Design Elements to Improve Thermal Performance of a Representative High Rise Residential Estate in the Coastline City of Famagusta, Cyprus
 
 
Font Type:
Arial Georgia Verdana
Font Size:
Aa Aa Aa
Line Spacing:
Column Width:
Background:
Article

Guidelines for the Implementation of Mass Customization in Affordable House-Building Projects

by
Carlos T. Formoso
1,
Patrícia A. Tillmann
2 and
Cynthia dos S. Hentschke
1,*
1
Building Innovation Research Unit (NORIE), Universidade Federal do Rio Grande do Sul (UFRGS), Porto Alegre 90035-190, Brazil
2
Boldt Company, Appleton, WI 54911, USA
*
Author to whom correspondence should be addressed.
Sustainability 2022, 14(7), 4141; https://doi.org/10.3390/su14074141
Submission received: 17 December 2021 / Revised: 6 March 2022 / Accepted: 22 March 2022 / Published: 31 March 2022
(This article belongs to the Collection ZEMCH International Research Series)

Abstract

Mass customization (MC) is a business strategy that stands for the ability to develop high value-added products within short time frames and at relatively low costs. It emerged from the manufacturing industry and has been applied to several industrial sectors, including housing. However, the segment of affordable housing programs in developing countries has been criticized for having a high degree of product standardization, and failure to meet customers’ specific needs. The aim of this paper is to propose guidelines for implementing mass customization in affordable house-building projects. It is based on a design science research study carried out in a small-sized company, which explored the possibility of adopting mass customization ideas to offer some flexibility for customers while maintaining low costs. The main contributions of this research study are concerned with expanding the current understanding of the components that enable MC to be implemented in the context of house-building companies that adopt traditional construction technologies. From a practical perspective, this investigation outlines several practices that can be introduced for the implementation of MC strategies at a relatively low cost by small-sized house-building companies.

1. Introduction

Brazil has a large housing deficit, estimated at 5.8 million [1]. Similar to other developing countries, such as Mexico [2] and Ecuador [3], most Brazilian social housing programs rely on repetition and high standardization of products with the aim of keeping costs low [4]. Such a standardization also allows for less complicated contractual and financial procedures, contributing to the economy of scale [5]. However, a drawback of this process is the lack of flexibility in terms of considering requirements of different household profiles [6,7,8].
The ability to deliver houses that meet customers’ needs while maintaining production efficiency has been a long debate in the house-building industry [9]. On the one hand, it is necessary to achieve a high level of customer satisfaction after project delivery. On the other hand, house-building companies also want to benefit from economies of scale by having a high degree of repetition. Applying mass customization ideas to this sector seems an opportunity to accommodate this trade-off between variety and costs [3,9,10].
Davis coined the term mass customization (MC) in his seminal book, Future Perfect [11]. Mass customization can be defined as a strategy that seeks to deliver customized products at efficiency and speed similar to mass production [12]. Such a strategy has been a driver of important competitive advantage in different industrial sectors, such as the automobile, clothing, and computer manufacturing sectors [13,14]. Although MC emerged more than 30 years ago as an innovative strategy for delivering products, there are only a few publications on the factors that contribute to successful implementations [14], as most of the literature on this topic has been focused on concepts rather than operational issues [13].
In the construction sector, the adoption of MC is commonly associated with factory-built homes, based on several concepts related to industrialized construction and the use of modern methods of construction, such as modularity, off-site prefabrication, and pull production (e.g., [15,16,17]). However, mass customization ideas have also been adopted in the segment of the house-building industry that relies heavily on traditional construction techniques, which often play an important role in emerging economies [10,18,19]. Even though the benefits of adopting MC concepts and principles in that context are limited by the low level of industrialization, there are potential benefits for improving the performance of house-building projects, especially by improving value generation for customers [10]. Furthermore, it is worth mentioning that the adoption of MC can provide benefits related to environmental and social sustainability by avoiding waste caused by product changes made after occupancy by users, and by increasing their perceived value and sense of ownership [6,20].
The aim of this paper is to propose guidelines for the implementation of mass customization in affordable house-building projects, considering the context of companies that adopt traditional construction technologies. Those guidelines are concerned with customer integration, design of housing units, production management, and supply chain management. It is based on an empirical study carried out in a small-sized company that develops and builds affordable housing projects in the South of Brazil. The contribution of this paper is two-fold. Firstly, it expands the current theoretical understanding of the MC components, including the fields of knowledge involved, the combination of different MC approaches, the role of the customer order decoupling point (CODP), and lean concepts and principles that support MC implementation. Secondly, it offers practical support to companies that intend to explore MC as a competitive strategy, considering the constraints of using traditional non-industrialized construction techniques, showing examples of changes that can be adopted at a relatively low cost.

2. Mass Customization Approaches and Related Concepts

According to Pine [12], several companies have successfully tackled the trade-off between efficiency and value generation by adopting an appropriate MC approach, which depends on how the value chain for that specific product is configured and when the customization process can take place [21].
An important decision in MC is the position of the decoupling point, i.e., the moment at which the customer order is placed, and the customization may happen [22]. According to Wikner [23], the CODP divides the activities in the value chain into those based on forecasts on future customers orders, and the ones triggered from customer orders. The CODP allows products or parts to be produced in a standardized fashion (pushed), while others can be customized when a customer order is made (pulled). Thus, positioning the CODP involves finding a suitable balance between efficiency, technical preconditions of process and product, and flexibility forces in the industry [24]. This strongly affects the degree or type of customization offered by the company [24].
Figure 1 presents a set of five MC approaches based on Lampel and Mintzberg [21] and Barlow et al. [15]. Those approaches range from pure standardization to pure customization, being strongly based on the position of the CODP. Product customization can be postponed to the sales point and realized by carrying out additional work after sales [12,25]. Even if customer orders are only placed after completion, customization may happen during use [12,26,27], e.g., through embedded flexibility in the product [27], or by delivering customized services with standard products [12].
When customers are involved in the early phases of product design, companies tend to opt for custom-tailored products, i.e., customers can interfere in design [21,26]. If a modular architecture is adopted, flexibility can be achieved by combining different standard components that have already been produced to deliver a customized product [12,21,25,26]. It implies that some design decisions have already been made and cannot be changed.

3. Areas Involved in Mass Customization

The success of the MC strategy depends on the coordinated efforts from three different areas of the company: customer integration, product design, and operations management [14,17,28]. Customer integration is concerned with understanding and considering requirements from different customers, sometimes by involving them in product development [14,29]. Product design is concerned with developing product alternatives based on the requirements that have been captured. Finally, operations management is concerned with delivering customized goods by managing production and the supply chain to achieve time and cost-effectiveness [14,28].

3.1. Customer Integration

Customer integration can be regarded as different types of customer–company interactions that usually occur during product configuration, enabled by tools such as configurators, and processes involving the elicitation of customers’ needs [30,31]. The degree of customers’ integration is closely related to the CODP position and the MC approach adopted [19,24]. Furthermore, customers can play active roles in defining, configuring, adapting [31], or even co-designing their products considering a feasible solution space [30].
Customer integration is often the result of the development of new relationships between companies and customers [32]. According to Kaur et al. [33], companies can benefit from the creation of long-lasting and trustworthy relationships with customers that enhance value generation and influence the achievement of loyalty. Furthermore, companies should define how customization units will be offered during product development [19]. The solution space of a product is defined by a set of customization units, i.e., customizable attributes that have different options to be offered to customers [28].
Regarding the house-building industry, a major challenge in customer integration is the complexity of the product, considering that there is a very large number of customizable attributes, and interdependencies between components [6].

3.2. Product Design

Modularity and interchangeability of parts are two principles commonly adopted to allow for variety and efficiency. Economy of scale can be achieved through the production of standard elements, while variety is provided by combining those elements in different ways [12]. This approach is often used in industrialized construction, in which customization takes place by adding options to a product platform or by mixing and matching modules to achieve different product characteristics [34]. Jiao et al. [35] emphasize the need to develop such a platform based on market knowledge and customers’ preferences. Hence, Duray [26] argues that customers can be involved in the selection of modules, thus shaping the products so that these fit their needs.
Although product modularity has been strongly associated to industrialized construction, previous research indicates that the adoption of this concept may also result in benefits for projects that adopt traditional construction technologies [20]. In fact, two perspectives of product modularity are applicable to construction projects, one related to spatial modularity and the other to component modularity [20].

3.3. Operations Management

Operations management concepts and principles play a crucial role in mass customization. Some of them are related to the Lean Production Philosophy, such as pull production, small batch size, reduction of set up time, and visual management [12,13,36]. The application of those concepts and principles allows production systems to be flexible, i.e., the same system can produce a wide variety of products in a production line that is easy to be reconfigured [37]. Moreover, flexible systems allow quick responses to the market [38]. Womack [39] argues that a flexible production system is not enough, as flexibility needs to be extended to the entire supply chain based on collaborative relationships between stakeholders [40]. Therefore, the implementation of MC requires improvements in both production and supply chain management.
According to Christopher [41], postponement or delayed configuration is one of the main mechanisms to achieve flexibility in manufacturing. Product modules or components may be produced to stock, but final assembly or customization does not take place until customer requirements are known. By doing so, a limited inventory of generic components can be held, while final assembly can lead to a variety of end products. Postponement brings the CODP closer to final customers, enabling customization to be achieved within a short time frame, resulting in a quick response to market [41].
However, in the construction industry, the delivery of engineer-to-order (ETO) components or subsystems is particularly important, due to the need to consider the specific requirements of each project [42]. ETO production systems can be defined as the ones in which the CODP is located at the design stage, i.e., the customer order is delivered at the beginning of the design phase of a product [43]. This demands a high degree of integration in the supply chain as there are interdependencies between customer orders, and processes carried out by either the construction company or component suppliers.

4. Research Method

4.1. Methodological Approach

Design science research was the methodological approach adopted in this investigation. This approach has a prescriptive character, seeking to devise solution concepts, named artefacts, to solve classes of problems [44,45]. The research strategy adopted in this investigation fits what was named by Van Aken [45] as best-practice research, which aims to uncover the underlying ideas of practices that have been successfully implemented in the real world. In this research study, the proposed artefact is a set of guidelines for implementing MC in affordable house-building projects that adopt traditional construction technologies.
The study was carried out in close collaboration with a small-sized construction company from the Metropolitan Region of Porto Alegre, in Southern Brazil, named Company A. This company develops and builds house-building projects primarily for low-income families, who receive low-interest mortgages through governmental affordable housing programs. The role of this construction company in the program is not only to design and build the houses but also to advertise new projects and gather groups of potential homebuyers. Upon approval by the financial institution, the company receives the necessary funding to build the project. Before that, the company needs to develop and approve the architectural design in the local government and then commercialize a percentage of the units before or during the construction phase.
Historically, Company A used to deliver projects that had standard housing units to achieve economies of scale, delivering an average of 200 units per year. However, this company has recently faced increasing difficulty of gathering groups of committed homebuyers to satisfy the condition for funding release, due to competition from large house-building developers that delivered standardized units. For that reason, the company started to offer some options of customization to customers with the aim of selling units faster. This was the main motivation for Company A to consider the possibility of adopting a MC approach.
The empirical study was carried out in two stages. Table 1 presents the main activities involved in each stage. Multiple sources of evidence were used so that data triangulation could be carried out, increasing the reliability of the information collected, as suggested by Yin [41].
The first stage lasted for seven months and consisted of two main activities: (a) analysis of product development and production management practices; and (b) analysis of homebuyers’ profiles and of the demand for customization. The first activity was based on open interviews and document analysis, while the second one had as the primary source of data, a database built in the company containing information from previous housing schemes. In order to understand customer demand, data from three projects previous delivered by the company were analyzed. Those included: (a) household profile, (b) reasons why potential homebuyers did not close a deal; (c) modifications requested prior to or during construction; (d) evaluation of satisfaction at project delivery; and (e) post-occupancy evaluation of the housing estate around one year after occupation. Semi-structured interviews were also carried out with the dwellers of the projects to complement the data set available, focusing on the changes made in housing units after moving in. The questionnaire was applied face-to-face to 60% of households of three projects previously delivered by the company. The research team also had the chance to directly observe changes made after project delivery.
The second stage of the study lasted for four months, being focused on one specific housing scheme in the early stages of sales (before construction started). A workshop with the participation of the top manager of the company was held to discuss the data collected in stage 1. The aim of this workshop was to identify improvement opportunities related to MC. Subsequently, participant observation was carried out by one of the researchers in meetings involving the company’s technical staff. Firstly, several meetings for discussing design improvements were made, involving the company’s in-house architect and the project manager based on the analysis of customer demand for customization. Secondly, the design of the production system for this project was revised in meetings involving the project manager, project engineer, superintendent, and foreman. This effort involved the definition of the sequence of activities, and CODPs, which established deadlines for demanding design changes. Lastly, some changes were introduced regarding the involvement of suppliers in the customization process. That required understanding the strategies related to material selection and acquisition. Some meetings were held with representatives of the main suppliers and the application of some operations management principles to material supply, such as reducing the batch size and pull planning for material ordering and delivery.

4.2. Description of the Project

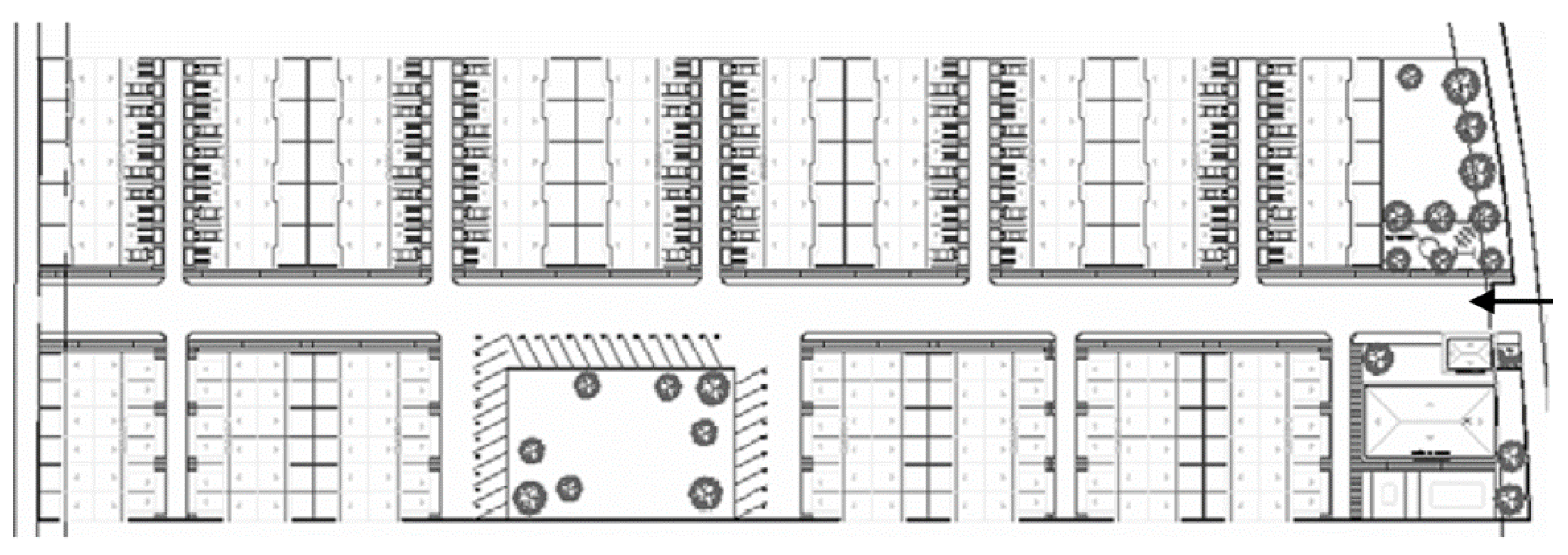
The project selected for stage 2 of the investigation consisted of a condominium of 92 terraced houses, with two or three bedrooms, a living room, kitchen, bathroom, home office, backyard, and parking space (Figure 2). Those houses were distributed in the lot in 17 blocks (Figure 3).
The housing scheme layout was devised as a solution to maximize the use of lot space and achieve high production efficiency through repetition. Houses were built using load-bearing block walls, with inlaid plumbing and electrical systems, followed by the roof, windows, doors, and finishing materials. The production strategy was to build one row of units at a time, triggered by the completion of a common ground slab. Construction materials were purchased in large batches to take advantage of economies of scale. Houses were sold either before or during the construction stage.

5. Results

5.1. Understanding Customer Demand

Table 2 presents changes in housing units requested by customers before or during construction and modifications made by themselves after occupancy, in the three projects already delivered. Altogether, 74% of households requested modifications prior to or during construction, while 96% of homebuyers made some type of modification in their homes after occupancy. The most common requests for changes included adding a hot water plumbing system (42%), and changes in finishing materials, especially ceramic tiles in the bathroom and kitchen (28%). These figures indicate that customization is very important for this market segment.
Regardless of the building system being modified, most requests for modifications during construction caused rework and impacted the production schedule. The integration of the kitchen and living room, for instance, demanded the removal of an internal partition, which was standard in all units. Changes in the specification of ceramic tiles were also problematic, as this material was usually bought in large batches from one supplier and installed in all housing units. When customers requested a modification, the standard tiles were often already installed and had to be replaced, generating rework and material loss. In addition, when customers provided their own ceramic tiles, problems concerned with the quality and shortage of materials were frequently observed, causing delays when customers failed to replace defective or missing material.
Regarding modifications after occupancy, 96% of households built an extra room in the backyard. The purpose of this additional room was often for working from home or future family expansion. As houses were not designed to be expanded, the addition of the extra room often compromised natural lighting and ventilation, blocking an existing window on the façade. Other common modifications were the addition of plumbing for a sink in the backyard (58%) and replacement of ceramic tiles (70%).
In the post-occupancy evaluations, homebuyers indicated opportunities for improvement, including the addition of a barbecue area in the backyard with a sink, the possibility to transform two bedrooms into a master suite, and the improvement of the quality of finishing materials. Regarding the questionnaire to potential homebuyers, one of the main reasons pointed out for not closing the deal was the unavailability of homes for immediate occupation.
Therefore, analyzing existing data and collecting additional data about customers’ modifications, preferences, and levels of satisfaction allowed the company to identify opportunities to offer customizable attributes upfront. In order to accommodate these options without causing significant disruptions to the project’s cost, schedule, and quality to the customer, some practices related to mass customization were implemented.

5.2. Implementation of Mass Customization Practices

5.2.1. Choosing Customization Units and Defining CODPs

A mixed strategy was chosen to accommodate customers’ requests in different project stages, i.e., design, construction, and use. The earlier the customer got involved, the more customization options were available. Therefore, the construction company defined CODPs according to design phases and customer involvement (see Figure 4). These are related to three different packages of customization units: (a) customization by selection of pre-defined design alternatives; (b) customization by additional work; and (c) enabling customization during use.
If customers state their demands for customization during the design phase or the construction phase 1 (before finishings), more changes are possible, based on a pre-defined list of alternatives. The list of available customization units in construction phase 1 were adding extra power outlets, adding a fireplace, adding a full or half partition wall between the living room and kitchen, and changing the kitchen layout (stove and sink). When customers were involved in the design phase, it was also possible to transform a bedroom into a master suite.
Customization by additional work was available for customers that state their customization demands at the finishings stage (construction phase 2). A decoupling point was established to allow customization through additional work, meaning that houses were built according to the standard design and the finishings stage only started when customers placed an order. This approach allowed some flexibility for the company to have houses in stock and still offer customizable finishings to customers. Possible customization units included changes in finishings materials, including ceramic tiles, kitchen and bathroom furniture, flooring options, and additional plaster details on the ceiling.
If the customers placed their customization demands only after houses were built, they still had the option to make changes after occupancy. By considering the possibility of future product modifications in the design stage, the company was able to support adaptability. Customization units included the possibility of adding a sink in the backyard for a future barbecue area, air conditioning (window type), and building one additional room in the backyard.
In the pilot project, several customization units were offered to customers, considering the constraints of each project stage, and cost limitations that need to be considered in affordable house-building projects. This allowed the company to improve planning and preparation for modification requests, avoiding design and production management disruptions.

5.2.2. Improving Customer Integration

The adoption of the mixed strategy described in the previous section was based on a careful analysis of customer requirements on previous projects (see Section 5.1), and also on a clear definition of customer integration activities in both design and production stages. In fact, different customization units were offered according to the project stages, and customers had 30 days to make their choices. For each change requested, the company charged an additional price.
The offer of customization units was started at the sales point by showing the list of possible alternatives. However, before each CODP, customers were reminded that there was a deadline for placing new customization requests, considering the constraints for each project stage. Sometimes exceptions and late requests were considered if a product change was the only way of retaining the customer. A key point in the implementation of customer integration is the effectiveness of communicating design changes in each housing unit to the production team, to avoid site installation errors and rework.

5.2.3. Changing Product Design

Some changes in product design were necessary to accommodate some of the proposed customization units. For instance, the possibility of adding a room to the houses during the use stage demanded some design changes, such as relocating windows so that future expansion could be made without compromising natural lighting and ventilation.
Customization by alternatives was also made possible through changes in product design. For instance, some changes in electrical and plumbing systems required designers to plan for some redundancy to minimize rework during the construction phase. These included the addition of inserts on load-bearing walls to allow for the modification of hydraulic and gas pipes, and the addition of block-outs for the fireplace or the late installation of air conditioning.
Finally, design changes were necessary to allow the possibility of transforming two bedrooms into a master suite, in order to avoid problems in the layout of the units as a whole.

5.2.4. Changing Production System Design

Revising the design of the production system was considered to be very important to enable mass customization. The analysis included mapping the execution sequence of a single housing unit and understanding the workflows throughout the entire housing scheme.
Figure 5 shows a network indicating the sequence of activities to complete one house. The map also contains information about the time it takes to complete each construction process, i.e., foundations, walls, etc., in order to define deadlines for decision-making on customization options. For instance, the lead time for the houses was 20 weeks, and the finishings activities were only carried out in the last seven.
Making the execution sequence standardized also allowed the definition of CODPs which established periods in which the decision about pre-defined alternatives must be made. All CODPs related to customization units were included in the activity network for a single unit, including five intermediate CODPs that represented opportunities for product change but which did not necessarily interrupt the product flow. There was also a critical CODP that could halt production and wait for customers to decide upon finishing materials. When customers placed their orders, the houses were completed based on their preferences. Considering the need to have units ready to be commercialized, the company also decided that a small percentage of the houses were produced to stock.
Finally, an analysis of the value-adding activities that contributed to improving product value based on customers’ needs was undertaken. One example is the execution of a wall separating the kitchen and living room. The standard approach was to build all houses with a half partition separating the kitchen and living room. Often customers would buy the house and then ask to remove the partition. The production step “to build the partition” was removed and made available only upon the customer’s request.

5.2.5. Involving Suppliers in the Customization Process

Customizing finishings through additional work also required to introduce flexibility in the supply chain. For that reason, Company A decided to change the main finishings supplier from a company that delivered materials in large batches to local and more flexible ones. Visits and discussions with local ceramic, bathroom furniture and flooring suppliers resulted in the establishment of partnerships with them, in order to offer more variety and create the possibility of pulling the supply of some materials. Therefore, a list of customizable options was first developed between the company and suppliers.
The production system design was then the starting point for establishing a pull system for material acquisition and delivery, based on an understanding of suppliers’ lead time and site demand. One of the suppliers additionally created a place for exposing different finishing materials in the construction site at no cost for Company A.

6. Discussion

Previous studies have suggested the adoption of mixed customization levels in construction projects, in which customization units are defined according to potential customers’ preferences (e.g., [17]), and by adopting different CODPs to place customization demands [19]. Company A’s MC strategy had a broad scope, combining changes in customer integration, product design, and operations management, as recommended in the literature by [14,17,28]. Those changes were implemented in an adaptive way, targeting improvements in efficiency and value generation, as suggested by Jensen et al. [47].
From the MC approaches proposed Lampel and Mintzberg [21], three of them were found to bring benefits to the customization of affordable house-building projects. One option is by using a “custom tailor” or combination of components to provide different design layouts that customers can choose from. For that to be possible, customers must purchase the unit before construction starts. In the empirical study, such an approach was named “customization by selection of pre-defined design alternatives”. Another option is to adopt a “customization through additional work” approach, in which the companies can offer personalized finishing materials or the addition of complementary elements, such as barbecue places or other components that have a low interdependency with building systems and can easily be added later. Finally, a third option is to “enable customization during use” by delivering houses without finishing materials or other additional elements that can be decided and added on in the future. In fact, previous studies have pointed out customization during use as an important source of added value for customers in house-building [10,48].
Based on this investigation, a set of guidelines can be drawn to support the adoption of mass customization approaches in affordable house-building projects that adopt traditional construction technologies. The empirical study carried out in this investigation provided evidence of the utility of the artefact in the context of affordable housing projects, in which traditional construction technologies are adopted. The changes proposed by the company were all successfully implemented, and they have resulted in an increase of approximately 20% in the sale value of the project. Regarding customer integration, three guidelines were proposed:
  • Customer data: existing customer data (e.g., collected in quality management systems) must be used to define a solution space. If necessary, some additional data on customer demands can be collected through surveys or visits to previously delivered house-building projects;
  • Customization demands: it is necessary to define CODPs, when customization demands can be placed by customers. Those points must be directly connected to activities that are part of product development or production processes;
  • Customer interactions: different types of customer interactions can be used, such as offering a list of customization units, visiting housing units in construction sites, and offering displays of alternative finishings materials.
It is worth mentioning that those guidelines were implemented by Company A in the empirical study at a relatively low cost, exploring as much as possible existing data or actions that had already been informally used in previous projects. However, the systematic consideration of customer requirements played a key role in the choice of customization units. Furthermore, the adoption of different customer interactions practices enhanced the customer experience and contributed to establishing a closer relationship between customers and the company, as suggested by other studies [19,49].
Regarding product design, this research study produced three guidelines:
I.
Interchangeability: definition: design layouts can be pre-defined, based on ability to change portions of it without affecting the whole;
II.
Predictive expandability: design must define and facilitate future additions or modifications;
III.
System redundancy: redundancy must be introduced in some building systems in order to minimize rework.
As suggested by Fetterman et al. [5], the concept of modularity did not play a key role in the implementation of a MC approach in this investigation. However, the first two product design guidelines are strongly related to product modularity, indicating that this concept can be gradually introduced as the degree of industrialization increases in this sector.
Regarding production system design, four guidelines were proposed:
I.
CODP definition: production stages must be standardized and mapped, making explicit the position of CODPs, so that changes in production can be managed in a timely way;
II.
Customization postponement: the execution of the customized portion of the work may be postponed to accommodate late customization demands;
III.
Minimum construction: build less not more, to allow for additions and not removal of built components;
IV.
Customization lead-time: indicate when customers need to make decisions in relation to CODPs, so that production will not be disrupted.
As pointed out by Montoya et al. [18], the adoption of MC in contexts that employ traditional construction methods can strongly benefit from the adoption of lean concepts. In the empirical study, the CODPs establish instances of pull production, and reduction of variability. Process transparency was very important for improving communication between different sectors of the company (e.g., sales, design, production and material supply), to avoid disruptions in the production system.
Finally, regarding the supply chain, two guidelines were found relevant to support mass customization:
I.
Trusted suppliers: develop long term partnerships with trusted and local suppliers, and engage them in the offer of customization units;
II.
Pull material supply: establish a pull system for key customized components by involving suppliers in the fulfillment of demands from customers.
To conclude, the proposed guidelines were designed to support MC implementation process by addressing several implementation challenges, beyond the operational ones prioritized in the literature, according to Larsen et al. [9] in a holistic way.

7. Conclusions

The aim of this research study is to devise a set of guidelines for implementing mass customization in affordable house-building projects, considering the constraints of using traditional building technologies. Those guidelines can be regarded as general prescriptions that can be used in a wide range of situations. The proposed set of guidelines was based on the literature and on an empirical study carried out in a house-building company from Brazil.
The main contribution of this research study is two-fold. Firstly, from a theoretical perspective, it expands the current understanding of the components that enable MC to be implemented in the specific context of house-building:
I.
MC strategies must have a broad scope, involving different fields of knowledge, as suggested by Hentschke et al. [14]: customer integration, product design, and operations management. Specific solutions, such as IT-based tools [3,32,50], help but do not address the wide range of issues involved in the implementation of MC.
II.
MC in house-building should combine different approaches, which represent alternative ways of offering customization at different project stages. In Company A, for instance, three MC approaches were adopted: selection of pre-defined alternatives in the early project stages, opting for additional work in the finishing stages of the project, and customization enabled during use.
III.
Multiple CODPs can be used throughout the project. They can be divided into categories, such as intermediate and critical, i.e., the ones that can halt product flows. CODPs also represent connections between different managerial processes, such as design, material supply, and production.
IV.
The set of prescriptions involves several concepts and principles that are often related to the Lean Production philosophy, such as pull production, process transparency, variability reduction, and value generation through a systematic consideration of customer requirements.
Secondly, regarding practical contributions, this investigation outlines several practices that can be introduced for the implementation of MC strategies at a relatively low cost by small-sized house-building companies that use traditional construction technologies. Such practices include customer profiling techniques, design detailing for customization, planning and control tools and integration of material suppliers in MC. This study also suggests that MC ideas can be implemented incrementally, even in relatively small companies. As in the example provided in this paper, changes related to mass customization can support the development of competitive advantages for some companies.
Finally, some opportunities for further research emerged from this investigation: (i) investigating the possibility of extending the adoption of mixed approaches for MC in housing by considering other alternatives, such as in services or facilities management; (ii) further exploring the concept of process modularity for construction environments that have a limited level of industrialization; and (iii) further understanding and adapting MC concepts to other specific housing provision environments.

Author Contributions

Conceptualization, P.A.T., C.T.F. and C.d.S.H.; methodology, P.A.T. and C.T.F.; formal analysis, P.A.T.; investigation, P.A.T., C.T.F.; writing P.A.T., C.T.F.; writing—review and editing, C.T.F. and C.d.S.H.; supervision, C.T.F. All authors have read and agreed to the published version of the manuscript.

Funding

This research was funded by National Council for Scientific and Technological Development (CNPq).

Institutional Review Board Statement

Not applicable.

Informed Consent Statement

Not applicable.

Data Availability Statement

The data presented in this study are available on request from the corresponding author. The data are not publicly available due to customers and company privacy.

Acknowledgments

The authors would like to thank the Company involved in this investigation for all support provided to the researchers.

Conflicts of Interest

The authors declare no conflict of interest.

References

  1. FJP. Deficit Habitacional No Brasil—2016–2019; FJP: Belo Horizonte, Brazil, 2019. [Google Scholar]
  2. Noguchi, M.; Hernández-Velasco, C.R. A ‘mass custom design’ approach to upgrading conventional housing development in Mexico. Habitat Int. 2005, 29, 325–336. [Google Scholar] [CrossRef]
  3. Martinez, E.; Tommelein, I.D.; Alvear, A. Integration of Lean and Information Technology to Enable a Customization Strategy in Affordable Housing. In Proceedings of the 25th Annual Conference of the International Group for Lean Construction (IGLC), Heraklion, Greece, 12 July 2017; Volume II, pp. 95–102. [Google Scholar]
  4. dos S Hentschke, C.; Echeveste, M.E.S.; Formoso, C.T.; Ribeiro, J.L.D. Method for capturing demands for housing customisation: Balancing value for customers and operations costs. J. Hous. Built Environ. 2021, 37, 311–337. [Google Scholar] [CrossRef]
  5. Formoso, C.; Leite, F.; Miron, L. Client requirements management in social housing: A case study on the residential leasing program in brazil. J. Constr. Dev. Ctries. 2011, 16, 47–67. [Google Scholar]
  6. Hentschke, C.S.; Formoso, C.T.; Rocha, C.G.; Echeveste, M.E.S. A method for proposing valued-adding attributes in customized housing. Sustainability 2014, 6, 9244–9267. [Google Scholar] [CrossRef]
  7. Brandão, D.Q. Disposições técnicas e diretrizes para projeto de habitações sociais evolutivas. Ambient. Construído 2011, 11, 73–96. [Google Scholar] [CrossRef]
  8. Amore, C.S.; Shimbo, L.Z.; Rufino, M.B.C. Minha Casa... e a Cidade? Avaliação do Programa Minha Casa Minha Via em seis Estados Brasileiros; Letra Capital: Rio de Janeiro, Brazil, 2015; ISBN 9788577853779. [Google Scholar]
  9. Larsen, M.S.S.; Lindhard, S.M.; Brunoe, T.D.; Nielsen, K.; Larsen, J.K. Mass Customization in the House Building Industry: Literature Review and Research Directions. Front. Built Environ. 2019, 5, 1–12. [Google Scholar] [CrossRef]
  10. Fettermann, D.D.C.; Tortorella, G.L.; Taboada, C.M. Mass customization process in companies from the housing sector in Brazil. In Managing Innovation in Highly Restrictive Environments Lessons from Latin America and Emerging Markets; Cortés-Robles, G., García-Alcaraz, J.L., Alor-Hernández, G., Eds.; Springer Nature: Cham, Switzerland, 2019; pp. 99–118. ISBN 9783319937151. [Google Scholar]
  11. Davis, S. Future Perfect; Addison-Wesley: Reading, MA, USA, 1987. [Google Scholar]
  12. Pine, B.J., II. Personalizando Produtos e Serviços: Customização Maciça; Makon Books do Brasil: São Paulo, Brazil, 1994. [Google Scholar]
  13. Fogliatto, F.S.; da Silveira, G.J.C.; Borenstein, D. The mass customization decade: An updated review of the literature. Int. J. Prod. Econ. 2012, 138, 14–25. [Google Scholar] [CrossRef]
  14. Ferguson, S.M.; Olewnik, A.T.; Cormier, P. A review of mass customization across marketing, engineering and distribution domains toward development of a process framework. Res. Eng. Des. 2014, 25, 11–30. [Google Scholar] [CrossRef]
  15. Barlow, J.; Childerhouse, P.; Gann, D.; Hong-Minh, S.; Naim, M.; Ozaki, R. Choice and delivery in housebuilding: Lessons from Japan for UK housebuilders. Build. Res. Inf. 2003, 31, 134–145. [Google Scholar] [CrossRef]
  16. Barlow, J.; Ozaki, R. Achieving ‘customer focus’ in private housebuilding: Current practice and lessons from other industries. Hous. Stud. 2003, 18, 87–101. [Google Scholar] [CrossRef]
  17. Schoenwitz, M.; Potter, A.; Gosling, J.; Naim, M. Product, process and customer preference alignment in prefabricated house building. Int. J. Prod. Econ. 2017, 183, 79–90. [Google Scholar] [CrossRef]
  18. Andújar-Montoya, M.D.; Gilart-Iglesias, V.; Montoyo, A.; Marcos-Jorquera, D. A construction management framework for mass customisation in traditional construction. Sustainability 2015, 7, 5182–5210. [Google Scholar] [CrossRef]
  19. dos Santos Hentschke, C.; Torres Formoso, C.; Echeveste, M.E. A Customer Integration Framework for the Development of Mass Customised Housing Projects. Sustainability 2020, 12, 8901. [Google Scholar] [CrossRef]
  20. Rocha, C.; Formoso, C.; Tzortzopoulos, P. Adopting Product Modularity in House Building to Support Mass Customisation. Sustainability 2015, 7, 4919–4937. [Google Scholar] [CrossRef]
  21. Lampel, J.; Mintzberg, H. Customizing Customization. Sloan Manage. Rev. 1996, 38, 21–30. [Google Scholar]
  22. Sharman, G. The Rediscovery of Logistics. Harv. Bus. Rev. 1984, 62, 71–80. [Google Scholar]
  23. Wikner, J. On decoupling points and decoupling zones. Prod. Manuf. Res. 2014, 2, 167–215. [Google Scholar] [CrossRef]
  24. Rudberg, M.; Wikner, J. Mass customization in terms of the customer order decoupling point. Prod. Plan. Control 2004, 15, 445–458. [Google Scholar] [CrossRef]
  25. SPIRA, J. Mass Customization through Training at Lutron Electronics. Comput. Ind. 1996, 30, 171–174. [Google Scholar] [CrossRef]
  26. Duray, R.; Ward, P.T.; Milligan, G.W.; Berry, W.L. Approaches to mass customization: Configurations and empirical validation. J. Oper. Manag. 2000, 18, 605–625. [Google Scholar] [CrossRef]
  27. Gilmore, J.H.; Pine II, B.J. The four faces of mass customization. Harv. Bus. Rev. 1997, 1, 91. [Google Scholar]
  28. da Rocha, C.G. A Conceptual Framework for Defining Customisation Strategies in the House- Building Sector. Doctoral Dissertation, Universidade Federal do Rio Grande do Sul, Porto Alegre, Brazil, 2011. [Google Scholar]
  29. Piller, F.T.; Moeslein, K.; Stotko, C.M. Does mass customization pay? An economic approach to evaluate customer integration. Prod. Plan. Control 2004, 15, 435–444. [Google Scholar] [CrossRef]
  30. Kumar, A.; Gattoufi, S.; Reisman, A. Mass customization research: Trends, directions, diffusion intensity, and taxonomic frameworks. Int. J. Flex. Manuf. Syst. 2007, 19, 637–665. [Google Scholar] [CrossRef]
  31. Piller, F.T. Observations on the present and future of mass customization. Int. J. Flex. Manuf. Syst. 2007, 19, 630–636. [Google Scholar] [CrossRef]
  32. Khalili-Araghi, S.; Kolarevic, B. Development of a framework for dimensional customization system: A novel method for customer participation. J. Build. Eng. 2016, 5, 231–238. [Google Scholar] [CrossRef]
  33. Kaur Sahi, G.; Sehgal, S.; Sharma, R. Predicting Customers Recommendation from Co-creation of Value, Customization and Relational Value. Vikalpa 2017, 42, 19–35. [Google Scholar] [CrossRef]
  34. Mikkola, J.; Larsen, T. Supply-chain integration: Implications for mass customization, modularization and postponement strategies. Prod. Plan. Control 2004, 4, 352–361. [Google Scholar] [CrossRef]
  35. Jiao, J.; Ma, Q.; Tseng, M.M. Towards high value-added products and services: Mass customization and beyond. Technovation 2003, 23, 809–821. [Google Scholar] [CrossRef]
  36. Barlow, J. From craft production to mass customisation? Customer-focused approaches to housebuilding. Proc. IGLC 1998, 98, 1–18. [Google Scholar]
  37. Szwarcfiter, C.; Dalcol, P.R.T. Economias de Escala e de Escopo: Desmistificando alguns aspectos da transição. Rev. Produção 1997, 7, 117–129. [Google Scholar] [CrossRef][Green Version]
  38. Stalk, G.; Hout, T. Competing Against Time: How Time-Based Competition is Reshaping Global Markets; Free Press: New York, NY, USA, 1990. [Google Scholar]
  39. Womack, J.P. Flexibility. Harv. Bus. Rev. 1995, 5, 189–191. [Google Scholar]
  40. Nahmens, I.; Bindroo, V. Is Customization Fruitful in Industrialized Homebuilding Industry? J. Constr. Eng. Manag. 2011, 137, 1027–1035. [Google Scholar] [CrossRef]
  41. Christopher, M. The Agile Supply Chain: Competing in Volatile Markets. Ind. Mark. Manag. 2000, 29, 37–44. [Google Scholar] [CrossRef]
  42. Bataglin, F.S.; Viana, D.D.; Formoso, C.T.; Bulhões, I.R. Model for planning and controlling the delivery and assembly of engineer-to-order prefabricated building systems: Exploring synergies between lean and BIM. Can. J. Civ. Eng. 2020, 47, 165–177. [Google Scholar] [CrossRef]
  43. Gosling, J.; Naim, M.M. Engineer-to-order supply chain management: A literature review and research agenda. Int. J. Prod. Econ. 2009, 122, 741–754. [Google Scholar] [CrossRef]
  44. Holmstrom, J.; Ketokivi, M.; Hameri, A.-P. Bridging Practice and Theory: A Design Science Approach. Decis. Sci. 2009, 40, 65–88. [Google Scholar] [CrossRef]
  45. Van Aken, J.E. Management Research Based on the Paradigm of the Design Sciences: The Quest for Field-Tested and Grounded Technological Rules. J. Manag. Stud. 2004, 41, 219–246. [Google Scholar] [CrossRef]
  46. Tillmann, P.A. Diretrizes para a Adoção da Customização em Massa na Construção Habitacional de Baixa Renda. Master Dissertation, Universidade Federal do Rio Grande do Sul, Porto Alegre, Brazil, 2008. [Google Scholar]
  47. Jensen, K.N.; Nielsen, K.; Brunoe, T.D. Mass Customization as a Productivity Enabler in the Contruction Industry. IFIP Adv. Inf. Commun. Technol. 2018, 535, 159–166. [Google Scholar]
  48. Linner, T.; Bock, T. Evolution of large-scale industrialisation and service innovation in Japanese prefabrication industry. Constr. Innov. 2012, 12, 156–178. [Google Scholar] [CrossRef]
  49. Conte, M.; dos Santos Hentschke, C.; Torres Formoso, C.; Echeveste, M.E. Developing a choice menu: An investigation on the definition and offer of customisation units. Proc. ZEMCH 2020, 448–455. Available online: https://viewer.joomag.com/zemch-2019-international-conference-proceedings-april2020/0323140001587015989?fbclid=IwAR1SQZytLvJ28Ui6BnMvZkaOuDKij1jWLaiIx6izK1RY87RnIAz_1eqdZaw (accessed on 5 March 2022).
  50. Shin, Y.; An, S.-H.; Cho, H.-H.; Kim, G.-H.; Kang, K.-I. Application of information technology for mass customization in the housing construction industry in Korea. Autom. Constr. 2008, 17, 831–838. [Google Scholar] [CrossRef]
Figure 1. Approaches for customization.
Figure 1. Approaches for customization.
Sustainability 14 04141 g001
Figure 2. Floor plans: (a) 2-bedroom houses, (b) 3-bedroom houses.
Figure 2. Floor plans: (a) 2-bedroom houses, (b) 3-bedroom houses.
Sustainability 14 04141 g002
Figure 3. Housing scheme plan including 92 houses distributed in 17 blocks.
Figure 3. Housing scheme plan including 92 houses distributed in 17 blocks.
Sustainability 14 04141 g003
Figure 4. A mixed strategy to support customization.
Figure 4. A mixed strategy to support customization.
Sustainability 14 04141 g004
Figure 5. Execution sequence of one unit (adapted from Tillmann [46]).
Figure 5. Execution sequence of one unit (adapted from Tillmann [46]).
Sustainability 14 04141 g005
Table 1. Main sources of evidence adopted in this investigation.
Table 1. Main sources of evidence adopted in this investigation.
StageActivitiesSources of EvidenceMain Topics
1
  • Analysis of product development and production management practices
  • Open interviews with managerial staff about the main characteristics of house-building projects
  • Analysis of documents and metrics
  • Typical design typologies
  • Critical design processes
  • Funding program requirements
  • Relationship with suppliers
  • Flexibility allowed by the planning and control system
  • Participant observation in meetings with customers at project delivery
  • Instructions on building operation and product changes
  • Analysis of household’s profile and demands for customization in three previous projects
  • Statistical analysis of secondary data from three previous house-building projects
  • Household profile
  • Reason why potential homebuyers did not close a deal
  • Changes requested prior to or during construction
  • Customer satisfaction at project delivery
  • Post-occupancy evaluation
  • Semi-structured interviews with dwellers, and direct observation of housing units
  • Product changes made after delivery
  • Reasons for demanding product changes
2
  • Implementation of improvements in a pilot project
  • Workshop for discussing the results of phase 1 with company’s representatives (including top managers)
  • Company’s mass customization strategy
  • Identification of improvement opportunities
  • Participant observation in meetings to discuss product design and operations management with the company’s technical staff
  • Refinement of product design
  • Improvements in customer integration activities
  • Improvements in production planning and control and relationship with suppliers
Table 2. Changes in housing units requested by customers prior or during construction or made after occupancy.
Table 2. Changes in housing units requested by customers prior or during construction or made after occupancy.
Building SystemDescriptionHouseholds That Requested Modification before Delivery (%)Households That Made Modifications during Use (%)
WallsAddition of rooms 96%
Addition of fireplace14%10%
Integration kitchen and living room10%
Windows and doorsAddition of blinders to windows16%
Change direction of opening (doors)8%9%
Plumbing and pipingAddition of hot water42%
Change position of gas stove8%
Change position of sink in the kitchen6%
Added sink in the backyard 58%
ElectricalChange voltage of electrical systems14%
Addition of a TV antenna7%
Addition of outlet for air conditioning (window type)5%33%
Addition or change of outlet positions5%
Finishing materialsChange ceramic tiles in kitchen and bathroom28%70%
Entire wall ceramic tiles in kitchen and bathroom10%
Addition of decorative ceramic tiles in the bathroom7%
Change bathroom sink and toilet 49%
Addition of ceramic flooring to the entire house7%
Percentage of modified housing units74%96%
Publisher’s Note: MDPI stays neutral with regard to jurisdictional claims in published maps and institutional affiliations.

Share and Cite

MDPI and ACS Style

T. Formoso, C.; Tillmann, P.A.; Hentschke, C.d.S. Guidelines for the Implementation of Mass Customization in Affordable House-Building Projects. Sustainability 2022, 14, 4141. https://doi.org/10.3390/su14074141

AMA Style

T. Formoso C, Tillmann PA, Hentschke CdS. Guidelines for the Implementation of Mass Customization in Affordable House-Building Projects. Sustainability. 2022; 14(7):4141. https://doi.org/10.3390/su14074141

Chicago/Turabian Style

T. Formoso, Carlos, Patrícia A. Tillmann, and Cynthia dos S. Hentschke. 2022. "Guidelines for the Implementation of Mass Customization in Affordable House-Building Projects" Sustainability 14, no. 7: 4141. https://doi.org/10.3390/su14074141

APA Style

T. Formoso, C., Tillmann, P. A., & Hentschke, C. d. S. (2022). Guidelines for the Implementation of Mass Customization in Affordable House-Building Projects. Sustainability, 14(7), 4141. https://doi.org/10.3390/su14074141

Note that from the first issue of 2016, this journal uses article numbers instead of page numbers. See further details here.

Article Metrics

Back to TopTop