Integrated Off-Site Construction Design Process including DfMA Considerations
Abstract
:1. Introduction
2. Literature Review
2.1. Background of OSC
2.2. Complexity in Design and Planning Phase of OSC Project
2.3. Design for Manufacturing and Assembly (DfMA)
3. Method
4. Considerations in Design Phase for OSC Project
4.1. Considerations in Structural Design
4.2. Considerations in Architectural Design
5. OSC Design Process
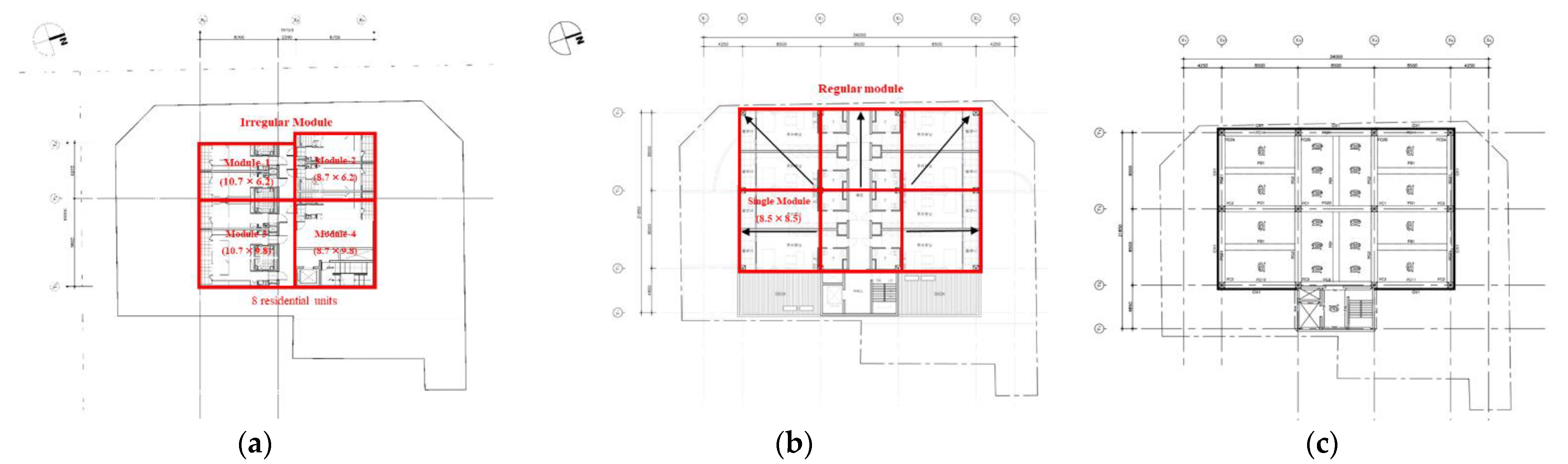
6. Case Study
7. Discussions
8. Conclusions
Author Contributions
Funding
Data Availability Statement
Conflicts of Interest
References
- Hyun, H.; Lee, Y.-M.; Kim, H.-G.; Kim, J.-S. Framework for Long-Term Public Housing Supply Plan Focusing on Small-Scale Offsite Construction in Seoul. Sustainability 2021, 13, 5361. [Google Scholar] [CrossRef]
- Lawson, R.M.; Ogden, R.G.; Bergin, R. Application of modular construction in high-rise buildings. J. Archit. Eng. 2011, 18, 148–154. [Google Scholar] [CrossRef]
- Wang, Z.; Hu, H.; Gong, J.; Ma, X.; Xiong, W. Precast supply chain management in off-site construction: A critical literature review. J. Clean. Prod. 2019, 232, 1204–1217. [Google Scholar] [CrossRef]
- Sutrisna, M.; Cooper-Cooke, B.; Goulding, J.; Ezcan, V. Investigating the cost of offsite construction housing in Western Australia. Int. J. Hous. Mark. Anal. 2019, 12, 5–24. [Google Scholar] [CrossRef]
- Wuni, I.Y.; Shen, G.Q. Barriers to the adoption of modular integrated construction: Systematic review and meta-analysis, integrated conceptual framework, and strategies. J. Clean. Prod. 2020, 249, 119347. [Google Scholar] [CrossRef]
- Lee, J.-S.; Kim, Y.-S.; Lee, H.-J.; Lee, Y.-M.; Kim, H.-G. Small-Scale Public Rental Housing Development Using Modular Construction—Lessons learned from Case Studies in Seoul, Korea. Sustainability 2019, 11, 1120. [Google Scholar] [CrossRef] [Green Version]
- Lee, J.-S.; Kim, Y.-S. Analysis of cost-increasing risk factors in modular construction in Korea using FMEA. KSCE J. Civ. Eng. 2017, 21, 1999–2010. [Google Scholar] [CrossRef]
- Pasquire, C.; Gibb, A.; Blismas, N. Off-Site Production: Evaluating the Drivers and Constrains. In Proceedings of the 12th Annual Conference of the International Group for Lean Construction, Helsingore, Denmark, 3–5 August 2004. [Google Scholar]
- Lu, N. The Current Use of Offsite Construction Techniques in the United States Construction Industry. In Proceedings of the Construction Research Congress 2009: Building a Sustainable Future, Seattle, WA, USA, 5–7 April 2009; pp. 946–955. [Google Scholar]
- Blismas, N.; Wakefield, R. Drivers, constraints and the future of offsite manufacture in Australia. Constr. Innov. 2009, 9, 72–83. [Google Scholar] [CrossRef] [Green Version]
- Wuni, I.Y.; Shen, G.Q. Fuzzy modelling of the critical failure factors for modular integrated construction projects. J. Clean. Prod. 2020, 264, 121595. [Google Scholar] [CrossRef]
- Smith, R.E. Prefab Architecture: A Guide to Modular Design and Construction; John Wiley & Sons: Hoboken, NJ, USA, 2011. [Google Scholar]
- Gao, S.; Low, S.P.; Nair, K. Design for manufacturing and assembly (DfMA): A preliminary study of factors influencing its adoption in Singapore. J. Archit. Eng. Des. Manag. 2018, 14, 440–456. [Google Scholar] [CrossRef]
- Hyun, H.; Yoon, I.; Lee, H.-S.; Park, M.; Lee, J. Multiobjective optimization for modular unit production lines focusing on crew allocation and production performance. Autom. Constr. 2021, 125, 103581. [Google Scholar] [CrossRef]
- Wuni, I.Y.; Shen, G.Q.; Osei-Kyei, R.; Agyeman-Yeboah, S. Modelling the critical risk factors for modular integrated construction projects. Int. J. Constr. Manag. 2020, 1–14. [Google Scholar] [CrossRef]
- Hwang, B.-G.; Shan, M.; Looi, K.-Y. Key constraints and mitigation strategies for prefabricated prefinished volumetric construction. J. Clean. Prod. 2018, 183, 183–193. [Google Scholar] [CrossRef]
- Anvari, B.; Angeloudis, P.; Ochieng, W. A multi-objective GA-based optimisation for holistic Manufacturing, transportation and Assembly of precast construction. Autom. Constr. 2016, 71, 226–241. [Google Scholar] [CrossRef] [Green Version]
- Goodier, C.; Gibb, A. Future opportunities for offsite in the UK. J. Constr. Manag. Econ. 2007, 25, 585–595. [Google Scholar] [CrossRef] [Green Version]
- Luo, L.-Z.; Mao, C.; Shen, L.-Y.; Li, Z.-D. Risk factors affecting practitioners’ attitudes toward the implementation of an industrialized building system. Eng. Constr. Archit. Manag. 2015, 22, 622–643. [Google Scholar] [CrossRef]
- Al-Bazi, A.; Dawood, N. Developing crew allocation system for the precast industry using genetic algorithms. Comput.-Aided Civ. Infrastruct. Eng. 2010, 25, 581–595. [Google Scholar] [CrossRef] [Green Version]
- Salari, S.A.-S.; Mahmoudi, H.; Aghsami, A.; Jolai, F.; Jolai, S.; Yazdani, M. Off-Site Construction Three-Echelon Supply Chain Management with Stochastic Constraints: A Modelling Approach. Buildings 2022, 12, 119. [Google Scholar] [CrossRef]
- Jiang, L.; Li, Z.; Li, L.; Gao, Y. Constraints on the promotion of prefabricated construction in China. Sustainability 2018, 10, 2516. [Google Scholar] [CrossRef] [Green Version]
- Xu, Z.; Zayed, T.; Niu, Y. Comparative analysis of modular construction practices in mainland China, Hong Kong and Singapore. J. Clean. Prod. 2020, 245, 118861. [Google Scholar] [CrossRef]
- Zhang, W.; Lee, M.W.; Jaillon, L.; Poon, C.-S. The hindrance to using prefabrication in Hong Kong’s building industry. J. Clean. Prod. 2018, 204, 70–81. [Google Scholar] [CrossRef]
- Ginigaddara, B.; Perera, S.; Feng, Y.; Rahnamayiezekavat, P. Development of an Offsite Construction Typology: A Delphi Study. Buildings 2022, 12, 20. [Google Scholar] [CrossRef]
- Jaillon, L.; Poon, C.S. Sustainable construction aspects of using prefabrication in dense urban environment: A Hong Kong case study. J. Constr. Manag. Econ. 2008, 26, 953–966. [Google Scholar] [CrossRef]
- Shen, K.; Cheng, C.; Li, X.; Zhang, Z. Environmental Cost-Benefit Analysis of Prefabricated Public Housing in Beijing. Sustainability 2019, 11, 207. [Google Scholar] [CrossRef] [Green Version]
- Sharafi, P.; Rashidi, M.; Samali, B.; Ronagh, H.; Mortazavi, M. Identification of factors and decision analysis of the level of modularization in building construction. J. Archit. Eng. 2018, 24, 04018010. [Google Scholar] [CrossRef]
- Hyun, H.; Kim, H.; Lee, H.-S.; Park, M.; Lee, J. Integrated Design Process for Modular Construction Projects to Reduce Rework. Sustainability 2020, 12, 530. [Google Scholar] [CrossRef] [Green Version]
- Alvanchi, A.; Azimi, R.; Lee, S.; AbouRizk, S.M.; Zubick, P. Off-site construction planning using discrete event simulation. J. Archit. Eng. 2011, 18, 114–122. [Google Scholar] [CrossRef]
- Blismas, N.G.; Pendlebury, M.; Gibb, A.; Pasquire, C. Constraints to the use of off-site production on construction projects. Archit. Eng. Des. Manag. 2005, 1, 153–162. [Google Scholar] [CrossRef] [Green Version]
- Kim, M.-K.; Wang, Q.; Park, J.-W.; Cheng, J.C.P.; Sohn, H.; Chang, C.-C. Automated dimensional quality assurance of full-scale precast concrete elements using laser scanning and BIM. Autom. Constr. 2016, 72, 102–114. [Google Scholar] [CrossRef]
- Arashpour, M.; Heidarpour, A.; Akbar Nezhad, A.; Hosseinifard, Z.; Chileshe, N.; Hosseini, R. Performance-based control of variability and tolerance in off-site manufacture and assembly: Optimization of penalty on poor production quality. Constr. Manag. Econ. 2020, 38, 502–514. [Google Scholar] [CrossRef]
- Gbadamosi, A.-Q.; Mahamadu, A.-M.; Oyedele, L.O.; Akinade, O.O.; Manu, P.; Mahdjoubi, L.; Aigbavboa, C. Offsite construction: Developing a BIM-Based optimizer for assembly. J. Clean. Prod. 2019, 215, 1180–1190. [Google Scholar] [CrossRef]
- Alfieri, E.; Seghezzi, E.; Sauchelli, M.; Di Giuda, G.; Masera, G.J.A.E.; Management, D. A BIM-based approach for DfMA in building construction: Framework and first results on an Italian case study. Archit. Eng. Des. Manag. 2020, 16, 247–269. [Google Scholar] [CrossRef]
- Abanda, F.H.; Tah, J.H.M.; Cheung, F.K.T. BIM in off-site manufacturing for buildings. J. Build. Eng. 2017, 14, 89–102. [Google Scholar] [CrossRef] [Green Version]
- Baldwin, C.Y.; Clark, K.B.; Clark, K.B. Design Rules: The Power of Modularity; MIT Press: Cambridge, MA, USA, 2000; Volume 1. [Google Scholar]
- Gosling, J.; Pero, M.; Schoenwitz, M.; Towill, D.; Cigolini, R. Defining and categorizing modules in building projects: An international perspective. J. Constr. Eng. Manag. 2016, 142, 04016062. [Google Scholar] [CrossRef]
- Gao, S.; Jin, R.; Lu, W. Design for manufacture and assembly in construction: A review. J. Build. Res. Inf. 2020, 48, 538–550. [Google Scholar] [CrossRef]
- Charlson, J.; Dimka, N. Design, manufacture and construct procurement model for volumetric offsite manufacturing in the UK housing sector. Constr. Innov. 2021, 21, 800–817. [Google Scholar] [CrossRef]
- Johnsson, H.; Meiling, J.H. Defects in offsite construction: Timber module prefabrication. Constr. Manag. Econ. 2009, 27, 667–681. [Google Scholar] [CrossRef]
- Liew, J.Y.R.; Chua, Y.S.; Dai, Z. Steel concrete composite systems for modular construction of high-rise buildings. Structures 2019, 21, 135–149. [Google Scholar] [CrossRef] [Green Version]
- Rausch, C.; Nahangi, M.; Haas, C.; Liang, W. Monte Carlo simulation for tolerance analysis in prefabrication and offsite construction. Autom. Constr. 2019, 103, 300–314. [Google Scholar] [CrossRef]
- Persson, S.; Malmgren, L.; Johnsson, H. Information management in industrial housing design and manufacture. J. Inf. Technol. Constr. (ITcon) 2009, 14, 110–122. [Google Scholar]
- Tranfield, D.; Denyer, D.; Smart, P. Towards a methodology for developing evidence-informed management knowledge by means of systematic review. Br. J. Manag. 2003, 14, 207–222. [Google Scholar] [CrossRef]
- Gu, Q.; Dong, G.; Wang, X.; Jiang, H.; Peng, S. Research on pseudo-static cyclic tests of precast concrete shear walls with vertical rebar lapping in grout-filled constrained hole. Eng. Struct. 2019, 189, 396–410. [Google Scholar] [CrossRef]
- Englekirk, R.E. Seismic design considerations for precast concrete multistory buildings. Pci J. 1990, 35, 40–51. [Google Scholar] [CrossRef]
- Ding, K.; Ye, Y.; Ma, W. Seismic performance of precast concrete beam-column joint based on the bolt connection. Eng. Struct. 2021, 232, 111884. [Google Scholar] [CrossRef]
- Feng, D.-C.; Xiong, C.-Z.; Brunesi, E.; Parisi, F.; Wu, G. Numerical Simulation and Parametric Analysis of Precast Concrete Beam-Slab Assembly Based on Layered Shell Elements. Buildings 2021, 11, 7. [Google Scholar] [CrossRef]
- Wu, X.; Xia, X.; Kang, T.; Han, J.; Kim, C.-S. Flexural behavior of precast concrete wall-steel shoe composite assemblies with dry connection. J. Steel Compos. Struct 2018, 29, 545–555. [Google Scholar]
- Jiang, Q.; Zhang, K.; Feng, Y.; Chong, X.; Wang, H.; Lei, Y.; Huang, J. Out-of-plane flexural behavior of full precast concrete hollow-core slabs with lateral joints. Struct. Concr. 2020, 21, 2433–2451. [Google Scholar] [CrossRef]
- Araújo, D.d.L.; Prado, L.P.; Silva, E.B.d.; El Debs, M.K. Temporary beam-to-column connection for precast concrete frame assembly. Eng. Struct. 2018, 171, 529–544. [Google Scholar] [CrossRef]
- Dal Lago, B.; Biondini, F.; Toniolo, G. Seismic performance of precast concrete structures with energy dissipating cladding panel connection systems. Struct. Concr. 2018, 19, 1908–1926. [Google Scholar] [CrossRef]
- Wang, W.; Li, A.; Wang, X. Seismic performance of precast concrete shear wall structure with improved assembly horizontal wall connections. Bull. Earthq. Eng. 2018, 16, 4133–4158. [Google Scholar] [CrossRef]
- Sharafi, P.; Mortazavi, M.; Samali, B.; Ronagh, H. Interlocking system for enhancing the integrity of multi-storey modular buildings. Autom. Constr. 2018, 85, 263–272. [Google Scholar] [CrossRef]
- Lacey, A.W.; Chen, W.; Hao, H.; Bi, K. New interlocking inter-module connection for modular steel buildings: Experimental and numerical studies. Eng. Struct. 2019, 198, 109465. [Google Scholar] [CrossRef]
- Luo, F.J.; Ding, C.; Styles, A.; Bai, Y. End Plate–Stiffener Connection for SHS Column and RHS Beam in Steel-Framed Building Modules. Int. J. Steel Struct. 2019, 19, 1353–1365. [Google Scholar] [CrossRef]
- Hyun, H.; Park, M.; Lee, D.; Lee, J. Tower Crane Location Optimization for Heavy Unit Lifting in High-Rise Modular Construction. Buildings 2021, 11, 121. [Google Scholar] [CrossRef]
- Innella, F.; Bai, Y.; Zhu, Z. Acceleration responses of building modules during road transportation. Eng. Struct. 2020, 210, 110398. [Google Scholar] [CrossRef]
- Innella, F.; Bai, Y.; Zhu, Z. Mechanical performance of building modules during road transportation. Eng. Struct. 2020, 223, 111185. [Google Scholar] [CrossRef]
- Godbole, S.; Lam, N.; Mafas, M.; Fernando, S.; Gad, E.; Hashemi, J. Dynamic loading on a prefabricated modular unit of a building during road transportation. J. Build. Eng. 2018, 18, 260–269. [Google Scholar] [CrossRef]
- Godbole, S.; Lam, N.; Mafas, M.M.M.; Gad, E. Pounding of a modular building unit during road transportation. J. Build. Eng. 2021, 36, 102120. [Google Scholar] [CrossRef]
- Bogue, R. Design for manufacture and assembly: Background, capabilities and applications. Assem. Autom. 2012, 32, 112–118. [Google Scholar] [CrossRef]
- Gorrell, T.A. Condensation Problems in Precast Concrete Cladding Systems in Cold Climates. In Condensation Exterior Building Wall System; ASTM International: West Conshohocken, PA, USA, 2011; pp. 299–314. [Google Scholar]
- Orlowski, K.; Shanaka, K.; Mendis, P. Design and Development of Weatherproof Seals for Prefabricated Construction: A Methodological Approach. Buildings 2018, 8, 117. [Google Scholar] [CrossRef] [Green Version]
- Chen, K.; Lu, W. Design for Manufacture and Assembly Oriented Design Approach to a Curtain Wall System: A Case Study of a Commercial Building in Wuhan, China. Sustainability 2018, 10, 2211. [Google Scholar] [CrossRef] [Green Version]
- Yuan, Z.; Sun, C.; Wang, Y. Design for Manufacture and Assembly-oriented parametric design of prefabricated buildings. Autom. Constr. 2018, 88, 13–22. [Google Scholar] [CrossRef]
- AIA. AIA Document D200TM—1995 (Project Checklist); American Institute of Architects: Washington, DC, USA, 1995. [Google Scholar]
- Lawson, M.; Ogden, R.; Goodier, C. Design in Modular Construction; CRC Press: Boca Raton, FL, USA, 2014. [Google Scholar]
- Shahtaheri, Y.; Rausch, C.; West, J.; Haas, C.; Nahangi, M. Managing risk in modular construction using dimensional and geometric tolerance strategies. Autom. Constr. 2017, 83, 303–315. [Google Scholar] [CrossRef]
- Precast/Prestressed Concrete Institute. PCI Design Handook: Precast and Prestressed Concrete, 7th ed.; PCI: Chicago, IL, USA, 2010. [Google Scholar]
- Baran, E. Effects of cast-in-place concrete topping on flexural response of precast concrete hollow-core slabs. Eng. Struct. 2015, 98, 109–117. [Google Scholar] [CrossRef]




| Considerations in Structural Design | ||||
|---|---|---|---|---|
| Element | Lateral Load | Shear Force | Flexure | Constructability |
| Joint | [48,49] | [56] | [57] | [42,52,55] |
| Wall, slab, and column | [46,54] | [50,51] | ||
| Structure | [47,53] | |||
| Considerations in Architectural Design | ||||
|---|---|---|---|---|
| Design Scope | ||||
| Site | Building | Element | Progress Method | |
| Production | [42] | |||
| Transportation | [59,60,61,62,63] | |||
| Onsite assembly | [58] | [64,65] | ||
| Information sharing | [66,67] | |||
| OSC Design Process | ||||
|---|---|---|---|---|
| Phase | Tasks in AIA Design Process | ID | Considerations for OSC | Related Studies |
| Pre-design | Review owner’s requirements | 1 | Evaluate suitability of OSC and support owner’s decision-making process | [5,8,10,15,16,22,24,31] |
| Organize design and consultant team | 2 | Include experienced manufacturer and engineer in consultant team | [69] | |
| Determine preliminary building system | 3 | Determine the specific OSC method and project delivery method | [66] | |
| Site analysis | All stakeholders visit the construction site | 4 | Check the site condition for transportation and onsite assembly | [29,58] |
| Schematic design | Review the laws, codes, and regulations applicable to building | 5 | Review the laws, codes, and regulations applicable to the selected OSC method | [12] |
| Present preliminary design for the owner’s approval | ||||
| Select major building systems such as structural and MEP system and determine location and space for the systems | ||||
| Prepare basic schematic design | 6 | Review the design guideline for OSC | [42] | |
| Begin research on materials, equipment, fixtures | 7 | Identify materials that can resist vibration during transportation and assembly | [59,60] | |
| Determine structural form, design load, materials | 8 | Consider the load during transportation and assembly | [52,61,62,70] | |
| Design Development | Design typical construction details and layout of building systems | 9 | Separate building design for element prefabrication in collaboration with designer for split element design | [67] |
| 10 | Consider the constructability for onsite assembly | [42,55] | ||
| Construction Documentation | Prepare drawings and specifications for the construction | 11 | Determine specifications of elements such as size, width, height | |
| 12 | Design the joint for discrete prefabrication of elements considering structural performance requirements and constructability | [46,47,48,49,50,51,54,56,57,64,65,71] | ||
| Project Information | |
|---|---|
| Location | Yeouidaebang-ro, Yeongdeungpo-gu, Seoul, Korea |
| Site area | 1006.80 m2 |
| Floor area | 4540.83 m2 |
| Floor | 10 floors (Basement 3 floors) |
| Facilities | Public Housing, Welfare facility, Office |
| Types | Size (Width × Length) | Sub-Types | Quantity | |
|---|---|---|---|---|
| Column | Type 1 | 800 mm × 800 mm | 8 | 44 |
| Type 2 | 650 mm × 650 mm | 5 | 76 | |
| Type 3 | 600 mm × 600 mm | 7 | 38 | |
| Girder | Type 1 | 700 mm × 600 mm | 23 | 262 |
| Type 2 | 480 mm × 600 mm | 10 | 34 |
| Element | Quantity | Concrete Volume (m3) | Quantity of Rebar Installed Onsite (kg) | |
|---|---|---|---|---|
| Offsite | Onsite | |||
| Column | 158 | 163.97 | 34.80 | |
| Girder | 296 | 590.59 | 320.11 | 40,476.15 |
| Slab | 590 | 508.42 | 448.07 | 27,879.93 |
| Joint | 21.66 | 12,866.11 | ||
| Sum | 1262.98 (60.4%) | 824.64 (39.6%) | 81,222.19 | |
Publisher’s Note: MDPI stays neutral with regard to jurisdictional claims in published maps and institutional affiliations. |
© 2022 by the authors. Licensee MDPI, Basel, Switzerland. This article is an open access article distributed under the terms and conditions of the Creative Commons Attribution (CC BY) license (https://creativecommons.org/licenses/by/4.0/).
Share and Cite
Hyun, H.; Kim, H.-G.; Kim, J.-S. Integrated Off-Site Construction Design Process including DfMA Considerations. Sustainability 2022, 14, 4084. https://doi.org/10.3390/su14074084
Hyun H, Kim H-G, Kim J-S. Integrated Off-Site Construction Design Process including DfMA Considerations. Sustainability. 2022; 14(7):4084. https://doi.org/10.3390/su14074084
Chicago/Turabian StyleHyun, Hosang, Hyung-Geun Kim, and Jin-Sung Kim. 2022. "Integrated Off-Site Construction Design Process including DfMA Considerations" Sustainability 14, no. 7: 4084. https://doi.org/10.3390/su14074084
APA StyleHyun, H., Kim, H.-G., & Kim, J.-S. (2022). Integrated Off-Site Construction Design Process including DfMA Considerations. Sustainability, 14(7), 4084. https://doi.org/10.3390/su14074084

