Exploring a Sustainable Approach to Vernacular Dwelling Spaces with a Multiple Evidence Base Method: A Case Study of the Bai People’s Courtyard Houses in China
Abstract
:1. Introduction
- (1)
- What is the relationship between space evolution and socio-cultural continuity in the Bai people’s courtyard houses?
- (2)
- What is the relationship between space evolution and adaptation to the natural environment in the Bai people’s courtyard houses?
- (3)
- By combining socio-cultural influences and environmental adaptation together, what new findings could be found to complement a sustainable approach to vernacular dwellings?
2. Literature Review
2.1. Vernacular Architecture
2.2. Sustainable Renovation of Vernacular Dwellings
2.3. Space and Socio-Culture
2.4. Space and Adaptation to the Natural Environment
3. Materials and Methods
3.1. The Bai People’s Housing
3.2. Methods
3.2.1. Multiple Evidence Base Method
3.2.2. Space and Socio-Cultural Logic Continuity: Space Syntax Analysis
3.2.3. Space and Adaptation to the Natural Environment: Ecotect-Based Light Environment Simulation
4. Results
4.1. Evolution of the Space Configuration and Socio-Cultural Logic of Vernacular Dwellings
- (1)
- Justified Permeability Graphs Analysis
- (2)
- Visibility graph analysis.
4.1.1. Spatial Configuration Changes of the Bai People’s Dwellings
4.1.2. Spatial Configuration Continuities of the Bai People’s Dwellings
4.2. Evolution of Vernacular Dwellings’ Space Adaptation to Natural Environment
4.2.1. Changes of the Vernacular Dwellings’ Adaptation to Natural Environment Results
- (1)
- Natural lighting on the second floor
4.2.2. Continuities in the Vernacular Dwellings’ Adaptation to Natural Environment Results
- (1)
- Bai people’s dwelling’s orientation continues to sit west to east
- (2)
- The main spatial average illuminance order
- (3)
- The scale-proportion relationship between buildings and courtyard
5. Discussion
5.1. Space Evolution and Socio-Culture Connotation Continuity
5.1.1. Social Structure
5.1.2. Family Activities
- (1)
- Indoor family activities:
- (2)
- Family activities in relation to the outside world:
5.2. Space Evolution and Adaptation to Natural Environment
- (1)
- In terms of indoor lighting environment, the illuminance of the upper floor space (Table 7) increases in modern Bai people’s dwellings. Specifically, the indoor illumination of modern Bai dwellings’ upper floor is 190.48 lux, which is far better than that of traditional dwellings (87.45 lux) for increasing number and area of windows [28] with the improvement of construction technologies [80]. As indoor daylighting is one of the important evaluation standards on living amenities [81], which has a fundamental impact on human physiology and health, and can directly boost cognitive performance [82], thus, we could deduce that the increased daylighting brought about by the improvement of construction technologies is one of the causes of the changes in the living form of the younger generation of Bai people who moved from the first floor to the upper floor.
- (2)
- For outdoor sunlight, whether in traditional vernacular dwellings or modern dwellings, the illuminance level of the courtyard and eaves corridor is better than that of other spaces. Simultaneously, the relations between the shadow of vernacular dwellings and the courtyard shew a certain pattern, which reflected the continuity of the scaling relation between the architectural height and courtyard scale. The function of the courtyard and corridor is adapted to its sufficient light and continuous scale. Specifically, although the transition from work in the primary industries, such as farm work or fishing, to working in the secondary and tertiary sector [83] had an impact on the usage of space in the dwellings, with sufficient light and pleasant scale, the courtyard space is still the most important space for public activities. In traditional vernacular dwellings, the courtyard was a place for collective production and labor of the whole family, as in the vernacular dwellings, remnants of agricultural life can be found (Figure 7a). In modern Bai dwellings, the courtyard has become a place for leisure, tea tasting, or reception of tourists, and more focus on the aesthetics and comfort of the courtyard (Figure 7b). Moreover, the corridor’s function is underlined by its dimensions, which are based on the ability to arrange a banquet. It is used for work, hosting, and family activities, and as a space that is partly outdoor and partly indoor, it serves as multipurpose buffer zones that allow the accommodation of different functions according to changing weather or time.
- (3)
- For a dwelling’s ventilation, the Bai people’s dwelling’s orientation continues to sit west to east, which is to the back of Cangshan mountain to reduce the wind force and avoid the direct wind blowing into the house with the help of the mountain.
6. Conclusions
- (1)
- For socio-cultural connotations, ongoing social hierarchical structures and the outwards–inwards duality of family activities are the most prominent features. The study proves that there is a strong correlation between the spatial characteristics of rooms for the elders and their role in the social hierarchical structure. Bai culture strongly emphasizes respect for the elder generations, which coincides with high integration values of the rooms associated with the elderly. Moreover, it was found that there were two types of family activities: indoor family activities happening in living rooms and family activities in relation to the outside world occurred in the courtyard and corridors. Furthermore, different from the traditional vernacular dwellings, the newly evolved upstairs living rooms were the main space for indoor leisure activities, while the elders’ living room on the ground floor was the only space where elements of religion could still be found.
- (2)
- In terms of adaptation to natural environment, the enhanced upper floor indoor lighting, and the ongoing courtyard scale as well as dwelling’s orientation, revealed that the Bai people’s vernacular dwelling spaces maintained its adaptability to the natural environment while acclimatizes itself to modern life, and further to improve the comfort of Bai people’s life. Both the traditional Bai people’s vernacular dwellings and the modern Bai people’s dwellings keep east-west orientation according to the mountain topography and natural wind direction to avoid the direct wind blowing into the house. The continuation of the courtyard scale allows the Bai people to make full use of the natural daylight in the courtyard for outdoor activities. Furthermore, with the advancement of construction techniques, the upper floor windows’ area of modern Bai people’s dwellings have increased, improving the comfort of the light environment of the second-story space and providing a lighting environment for the improvement of the utilization rate of the second-story space.
- (3)
- Combining socio-cultural connotation with adaptation to natural environment analysis proved crucial for understanding the sustainable development mode of Bai people’s vernacular dwellings. While the social-culture connotation revealed the continuity of Bai people’s ongoing social hierarchy structure and outwards-inwards duality of family activities, adaptation to natural environment emphasized the harmony between people and the environment as well as acclimatizes vernacular dwellings to modern life. Then it reveals that the sustainable development of vernacular dwellings not only contains the socio-cultural continuity but also includes its adaptability to the present and future life.
- (4)
- Moreover, while the previous study proposed that the modernization and adaptation to natural environment upgrading of old vernacular may hardly be compatible with preserving traditional vernacular dwellings’ features, the multi-evidence base analysis of Bai people’s dwellings revealed the balance between traditional social-culture inheritance and the improvement of natural environment adaptability in the process of sustainable development of vernacular dwellings. As the carrier of residents’ daily life, space is an important aspect for the continuation of traditional features of vernacular dwellings. The modernization and environmental adaptation upgrading of old vernaculars should be coordinated with the spatial configuration of vernacular dwellings. First, in terms of continuity, on the one hand, Bai people’s vernacular dwellings retain courtyard and corridor space -the most light-filled space and the most integrated space as a place for family activities; On the other hand, the orientation of modern and traditional Bai dwellings remains unchanged, which is in line with the trend of Cangshan mountain in Dali and the natural environment with strong winds. Second, in terms of adaptation upgrading, the increase in lighting on the second floor improved the living comfort of the upper floor, which is coupled with the improvement of the living room’s integration. Specifically, the originally attic space evolved into a space with compound functions such as living room, bedrooms for the younger generation’s daily life, with remaining the ground floor living room. Thus, the adaptation upgrading of the Bai people’s upper living room is in line with the spatial structure evolution of vernacular dwellings.
- (5)
- This study deployed the multi-evidence base method for a better understanding of the sustainable approach of vernacular dwellings and vernacular dwellings’ socio-spatial characteristics as well as their environmental adaptation. The findings provide a rational basis for preserving vernacular dwellings beyond the often solely considered architectural form and decoration in terms of their spatial structure, the connotations it carries, and the environmental adaptation. It furthermore serves to illustrate the cultural and spatial heritage these vernacular dwellings passed on and to what extent they can be found in contemporary houses. Comparing the past and the present enables us to reevaluate the aspect we consciously strive to preserve and pass on to future generations.
- (6)
- The sustainable approach to vernacular dwelling spaces re-confirms the characteristics of vernacular dwellings: it is passed down from generation to generation in a specific area, adapted to the local context, environment, resources, and climate, and it is constantly iterated, with retention and inheritance, and sustainable development. As a result, it could guide the sustainable development of vernacular dwellings and direct the design and construction.
Author Contributions
Funding
Institutional Review Board Statement
Informed Consent Statement
Data Availability Statement
Acknowledgments
Conflicts of Interest
References
- Gokce, D.; Chen, F. Sense of Place in the Changing Process of House Form: Case Studies from Ankara, Turkey. Environ. Plan. B-Urban Anal. City Sci. 2018, 45, 772–796. [Google Scholar] [CrossRef] [Green Version]
- Hanson, J. Decoding Homes and Houses; Cambridge University Press: Cambridge, UK, 1999; ISBN 978-0-521-54351-4. [Google Scholar]
- Dawson, P.C. Space Syntax Analysis of Central Inuit Snow Houses. J. Anthropol. Archaeol. 2002, 21, 464–480. [Google Scholar] [CrossRef]
- Buchecker, M. Withdrawal from the Local Public Place: Understanding the Process of Spatial Alienation. Landsc. Res. 2009, 34, 279–297. [Google Scholar] [CrossRef]
- Ji, F.; Zhou, S. Dwelling Is a Key Idea in Traditional Residential Architecture’s Sustainability: A Case Study at Yangwan Village in Suzhou, China. Sustainability 2021, 13, 6492. [Google Scholar] [CrossRef]
- Relph, E. Place and Placelessness, 1st ed.; Pion: London, UK, 1976; ISBN 978-0-85086-055-9. [Google Scholar]
- John, F. Place and Place-Making in Cities: A Global Perspective. Plan. Theory Pract. 2010, 11, 149–165. [Google Scholar] [CrossRef]
- Cities—United Nations Sustainable Development Action. 2015. Available online: https://www.un.org/sustainabledevelopment/cities/ (accessed on 18 February 2022).
- Philokyprou, M.; Michael, A. Environmental Sustainability in the Conservation of Vernacular Architecture. The Case of Rural and Urban Traditional Settlements in Cyprus. Int. J. Archit. Herit. 2021, 15, 1741–1763. [Google Scholar] [CrossRef]
- Zeng, M.; Wang, F.; Xiang, S.; Lin, B.; Gao, C.; Li, J. Inheritance or Variation? Spatial Regeneration and Acculturation via Implantation of Cultural and Creative Industries in Beijing’s Traditional Compounds. Habitat Int. 2020, 95, 102071. [Google Scholar] [CrossRef]
- Purvis, B.; Mao, Y.; Robinson, D. Three Pillars of Sustainability: In Search of Conceptual Origins. Sustain. Sci. 2019, 14, 681–695. [Google Scholar] [CrossRef] [Green Version]
- Hawkes, J. The Fourth Pillar of Sustainability: Culture’s Essential Role in Public Planning; Common Ground: Melbourne, Australia, 2001; ISBN 978-1-86335-049-5. [Google Scholar]
- Murphy, K. The Social Pillar of Sustainable Development: A Literature Review and Framework for Policy Analysis. Sustain. Sci. Pract. Policy 2012, 8, 15–29. [Google Scholar] [CrossRef] [Green Version]
- Vallance, S.; Perkins, H.C.; Dixon, J.E. What Is Social Sustainability? A Clarification of Concepts. Geoforum 2011, 42, 342–348. [Google Scholar] [CrossRef]
- Ghaffarian Hoseini, A.; Berardi, U.; Dahlan, N.D. What Can We Learn from Malay Vernacular Houses? Sust. Cities Soc. 2014, 13, 157–170. [Google Scholar] [CrossRef]
- Rapoport, A. House Form and Culture, 1st ed.; Pearson: Englewood Cliffs, NJ, USA, 1969; ISBN 978-0-13-395673-3. [Google Scholar]
- Bernard, R. Architecture without Architects: An Introduction to Non-Pedigreed Architecture; The Museum of Modern Art: New York, NY, USA, 1964. [Google Scholar]
- Ng, S.H.; Kam, P.K.; Pong, R.W.M. People Living in Ageing Buildings: Their Quality of Life and Sense of Belonging. J. Environ. Psychol. 2005, 25, 347–360. [Google Scholar] [CrossRef]
- Orlenko, M.; Dyomin, M.; Ivashko, Y.; Dmytrenko, A.; Chang, P. Rational and Aesthetic Principles of Form-Making in Traditional Chinese Architecture as the Basis of Restoration Activities. Int. J. Conserv. Sci. 2020, 11, 499–512. [Google Scholar]
- Maknun, T.; Hasjim, M.; Muslimat, M.; Hasyim, M. The Form of the Traditional Bamboo House in the Makassar Culture: A Cultural Semiotic Study. Semiotica 2020, 2020, 153–164. [Google Scholar] [CrossRef]
- Parasonis, J.; Keizikas, A.; Kalibatiene, D. The Relationship between the Shape of a Building and Its Energy Performance. Archit. Eng. Des. Manag. 2012, 8, 246–256. [Google Scholar] [CrossRef]
- Rosso, F.; Peduzzi, A.; Diana, L.; Cascone, S.; Cecere, C. A Sustainable Approach towards the Retrofit of the Public Housing Building Stock: Energy-Architectural Experimental and Numerical Analysis. Sustainability 2021, 13, 2881. [Google Scholar] [CrossRef]
- Binici, H.; Eken, M.; Dolaz, M.; Aksogan, O.; Kara, M. An Environmentally Friendly Thermal Insulation Material from Sunflower Stalk, Textile Waste and Stubble Fibres. Constr. Build. Mater. 2014, 51, 24–33. [Google Scholar] [CrossRef]
- Pajchrowski, G.; Noskowiak, A.; Lewandowska, A.; Strykowski, W. Materials Composition or Energy Characteristic—What Is More Important in Environmental Life Cycle of Buildings? Build. Environ. 2014, 72, 15–27. [Google Scholar] [CrossRef]
- Volvačiovas, R.; Turskis, Z.; Aviža, D.; Mikštienė, R. Multi-Attribute Selection of Public Buildings Retrofits Strategy. Procedia Engineering 2013, 57, 1236–1241. [Google Scholar] [CrossRef] [Green Version]
- Vehbi, B.O.; Gunce, K.; Iranmanesh, A. Multi-Criteria Assessment for Defining Compatible New Use: Old Administrative Hospital, Kyrenia, Cyprus. Sustainability 2021, 13, 1922. [Google Scholar] [CrossRef]
- Tupenaite, L.; Kaklauskas, A.; Voitov, I.; Trinkunas, V.; Siniak, N.; Gudauskas, R.; Naimaviciene, J.; Kanapeckiene, L. Multiple Criteria Assessment of Apartment Building Performance for Refurbishment Purposes. Int. J. Strateg. Prop. Manag. 2018, 22, 236–251. [Google Scholar] [CrossRef] [Green Version]
- Siozinyte, E.; Antucheviciene, J.; Kutut, V. Upgrading the Old Vernacular Building to Contemporary Norms: Multiple Criteria Approach. J. Civ. Eng. Manag. 2014, 20, 291–298. [Google Scholar] [CrossRef]
- Tengö, M.; Brondizio, E.S.; Elmqvist, T.; Malmer, P.; Spierenburg, M. Connecting Diverse Knowledge Systems for Enhanced Ecosystem Governance: The Multiple Evidence Base Approach. AMBIO 2014, 43, 579–591. [Google Scholar] [CrossRef] [Green Version]
- Bin, Y. Between Winds and Clouds: The Making of Yunnan; Columbia University Press: New York, NY, USA, 2008; ISBN 978-0-231-51230-5. [Google Scholar]
- Rudofsky, B. Architecture Without Architects: A Short Introduction to Non-Pedigreed Architecture; UNM Press: Albuquerque, NM, USA, 1987; ISBN 978-0-8263-1004-0. [Google Scholar]
- Noble, A.G. Traditional Buildings: A Global Survey of Structural Forms and Cultural Functions; Tauris, I.B.: London, UK, 2007; ISBN 978-1-84511-305-6. [Google Scholar]
- Oliver, P. Shelter and Society; Barrie & Rockliff the Cresset Press: London, UK, 1969; ISBN 0-214-66796-0. [Google Scholar]
- Crysler, C.G.; Cairns, S.; Heynen, H. The SAGE Handbook of Architectural Theory; SAGE Publications Ltd.: Thousand Oaks, CA, USA, 2012; p. 725. ISBN 978-1-4129-4613-1. [Google Scholar]
- Zwerger, K. Vernacular Architecture: A Term Denoting and Transporting Diverse Content. Built Herit. 2019, 3, 14–25. [Google Scholar] [CrossRef]
- Vellinga, M. The Noble Vernacular. J. Archit. 2013, 18, 570–590. [Google Scholar] [CrossRef]
- Dublin Heritage Group; Dublin Public Libraries. Vernacular Buildings of East Fingal.; Dublin Public Libraries publication for the Dublin Heritage Group; Dublin Public Libraries: Dublin, Ireland, 1993; ISBN 978-0-946841-44-8. [Google Scholar]
- Aquith, L. Lessons from the Vernacular: Integrated Approaches and New Methods for Housing Research. In Vernacular Architecture Twenty-First Century; Asquith, L., Vellinga, M., Eds.; Taylor & Francis: London, UK, 2006; pp. 128–144. ISBN 978-1-134-32554-2. [Google Scholar]
- Interpreting Rurality: Multidisciplinary Approaches; Bosworth, G.; Somerville, P. (Eds.) Routledge: London, UK, 2013; ISBN 978-0-203-38318-6. [Google Scholar]
- Henna, K.; Mani, M. Transitions in Traditional Dwellings. Curr. Sci. 2022, 122, 29–38. [Google Scholar] [CrossRef]
- Icomos Charter on the Built Vernacular Heritage. 1999. Available online: https://www.icomos.org/images/DOCUMENTS/Charters/vernacular_e.pdf (accessed on 18 February 2022).
- Dvornik Perhavec, D.; Rebolj, D.; Šuman, N. Systematic Approach for Sustainable Conservation. J. Cult. Herit. 2015, 16, 81–87. [Google Scholar] [CrossRef]
- Semprini, G.; Gulli, R.; Ferrante, A. Deep Regeneration vs Shallow Renovation to Achieve Nearly Zero Energy in Existing Buildings: Energy Saving and Economic Impact of Design Solutions in the Housing Stock of Bologna. Energy Build. 2017, 156, 327–342. [Google Scholar] [CrossRef]
- Jowkar, M.; Temeljotov-Salaj, A.; Lindkvist, C.M.; Støre-Valen, M. Sustainable Building Renovation in Residential Buildings: Barriers and Potential Motivations in Norwegian Culture. Constr. Manag. Econ. 2022, 40, 161–172. [Google Scholar] [CrossRef]
- Jensen, P.A.; Maslesa, E.; Berg, J.B. Sustainable Building Renovation: Proposals for a Research Agenda. Sustainability 2018, 10, 4677. [Google Scholar] [CrossRef] [Green Version]
- Loli, A.; Bertolin, C. Towards Zero-Emission Refurbishment of Historic Buildings: A Literature Review. Buildings 2018, 8, 22. [Google Scholar] [CrossRef] [Green Version]
- Johnson, M.H. Housing Culture: Traditional Architecture in an English Landscape; Routledge: London, UK, 1998; ISBN 978-0-203-49917-7. [Google Scholar]
- Seo, K. Topological Paths in Housing Evolution. In Proceedings of the 4th International Space Syntax Symposium, London, UK, 17–19 June 2003. [Google Scholar]
- Osman, K.M.; Suliman, M. The Space Syntax Methodology: Fits and Misfits. Archit. Comport./Archit. Behav. 1994, 10, 189–204. [Google Scholar]
- Griffiths, S. The Use Of Space Syntax In Historical Research: Current Practice and Future Possibilities. In Proceedings of the Eighth International Space Syntax Symposium, Santiago de Chile, Chile, 3–6 January 2012; Volume 8193, pp. 1–26. [Google Scholar]
- Ravari, F.K.; Hassan, A.S.; Nasir, M.H.A.; Taheri, M.M. The Development of Residential Spatial Configuration for Visual Privacy in Iranian Dwellings, a Space Syntax Approach. Int. J. Build. Pathol. Adapt. 2022. [Google Scholar] [CrossRef]
- Darwin, C. The Origin of Species; Bantam Classics: New York, NY, USA, 1999; ISBN 978-0-553-21463-5. [Google Scholar]
- Dobzhansky, T.; Gould, S.J. Genetics and the Origin of Species (Classics of Modern Evolution Series); Columbia University Press: New York, NY, USA, 1982; ISBN 978-0-231-05475-1. [Google Scholar]
- Soleri, P. Arcology; Cosanti Press: Phoenix, AZ, USA, 2006; ISBN 978-1-883340-01-8. [Google Scholar]
- McHarg, I.L. Design with Nature; Wiley: New York, NY, USA, 1995; ISBN 978-0-471-11460-4. [Google Scholar]
- Hara, H. The Teachings of the World’s Settlements 100; China Building Industry Press: Beijing, China, 2003. [Google Scholar]
- Soini, K.; Birkeland, I. Exploring the Scientific Discourse on Cultural Sustainability. Geoforum 2014, 51, 213–223. [Google Scholar] [CrossRef]
- Azad, F.S.; Fooladi, V. Assessment of Thermal Comfort in Vernacular Buildings in the Cold and Mountainous Region (Case S Tudy: Hamadan, Iran). Available online: https://www.semanticscholar.org/paper/Assessment-of-Thermal-Comfort-in-Vernacular-in-the-Azad-Fooladi/9453e57a4cc8a3d2480473b56db7967f685cba1a (accessed on 18 February 2022).
- Zhang, F.; Shi, L.; Liu, S.; Shi, J.; Ma, Q.; Zhang, J. Climate Adaptability Based on Indoor Physical Environment of Traditional Dwelling in North Dong Areas, China. Sustainability 2022, 14, 850. [Google Scholar] [CrossRef]
- Sun, D. Woodcarving in Dali’s Baizu Architecture; Yunnan University Press: Kunming, China, 2012; ISBN 978-7-5482-1171-6. [Google Scholar]
- Knapp, R.G. China’s Old Dwellings; University of Hawaii Press: Honolulu, HI, USA, 2000; ISBN 978-0-8248-2214-9. [Google Scholar]
- Laidler, G.J. Inuit and Scientific Perspectives on the Relationship between Sea Ice and Climate Change: The Ideal Complement? Clim. Chang. 2006, 78, 407–444. [Google Scholar] [CrossRef]
- Hopping, K.A.; Chignell, S.M.; Lambin, E.F. The Demise of Caterpillar Fungus in the Himalayan Region Due to Climate Change and Overharvesting. Proc. Natl. Acad. Sci. USA 2018, 115, 11489–11494. [Google Scholar] [CrossRef] [Green Version]
- Morales, J.I.; Verges, J.M. Technological Behaviors in Paleolithic Foragers. Testing the Role of Resharpening in the Assemblage Organization. J. Archaeol. Sci. 2014, 49, 302–316. [Google Scholar] [CrossRef]
- Hillier, B.; Hanson, J. The Social Logic of Space; Cambridge University Press: Cambridge, UK, 1984; ISBN 978-0-521-36784-4. [Google Scholar]
- Hillier, B. Designing Safer Streets: An Evidence-Based Approach. Plan. Lond. 2004, 48, 45–49. [Google Scholar]
- Ostwald, M.J. The Mathematics of Spatial Configuration: Revisiting, Revising and Critiquing Justified Plan Graph Theory. Nexus Netw. J. 2011, 13, 445–470. [Google Scholar] [CrossRef] [Green Version]
- Hillier, B. Space Is the Machine: A Configurational Theory of Architecture; Cambridge University Press: Cambridge, UK, 1999; ISBN 978-0-521-64528-7. [Google Scholar]
- Turner, A.; Doxa, M.; O’Sullivan, D.; Penn, A. From Isovists to Visibility Graphs: A Methodology for the Analysis of Architectural Space. Environ. Plan. B 2001, 28, 103–121. [Google Scholar] [CrossRef] [Green Version]
- Bafna, S. Space Syntax: A Brief Introduction to Its Logic and Analytical Techniques. Environ. Behav. 2003, 35, 17–29. [Google Scholar] [CrossRef]
- Hasgül, E.; Olgun, İ.; Karakoç, E. Vernacular Rural Heritage in Turkey: An Intuitional Overview for a New Living Experience. J. Cult. Herit. Manag. Sustain. Dev. 2021, 11, 440–456. [Google Scholar] [CrossRef]
- Bin, H. Architectural Craftsmanship of Traditional Bai People’s Houses in China; Tongji University Press: Shanghai, China, 2011; ISBN 978-7-5608-4676-7. [Google Scholar]
- Fu, Z.; Zhao, X. Statistic and Analyze the Gale Characteristics of Dali in Yunnan from 1971 to 2010. In Proceedings of the 29th annual meeting of Chinese Meteorological Society, Shenyang, China, 1 September 2012. [Google Scholar]
- Wang, B.; Zhang, J. Study on Natural Ventilation of the Dali Bai Folk Houses. Intell. Build. Smart City 2020, 6, 124–127. [Google Scholar] [CrossRef]
- Cohen, M.L. Being Chinese: The Peripheralization of Traditional Identity. Daedalus 1991, 120, 113. [Google Scholar]
- Eickelpasch, R. Ist die Kernfamilie universal?/The nuclear family. Is it universal?: Zur Kritik eines ethnozentrischen Familienbegriffs/For a critique of ethnocentric family concept. Z. Für Soziologie 1974, 3, 323–338. [Google Scholar] [CrossRef]
- Santos, G.; Harrell, S. Transforming Patriarchy: Chinese Families in the Twenty-First Century; University of Washington Press: Washington, DC, USA, 2016; ISBN 978-0-295-99897-8. [Google Scholar]
- Wang, X.; Che, Z. The Tourism Adaptive Reconstruction of Current Residential Space of Dali: A Case Study on Shuanglang Inn. New Archit. 2015, 89–93. [Google Scholar] [CrossRef]
- Zhang, D. Classical Courtyard Houses of Beijing: Architecture as Cultural Artifact. JSC 2015, 1, 47–68. [Google Scholar] [CrossRef]
- Lili, W.; Zheng, Y.; Lipei, Y. The Research on Environmental Facility of Traditional Residence Based on Modern Residence Pattern—Takes the Dali Courtyard Traditional Folk House as an Example. In Proceedings of the 2011 International Conference on Electric Technology and Civil Engineering (ICETCE), Lushan, China, 22–24 April 2011; pp. 1751–1756. [Google Scholar]
- Li, M. The Evolution of the Zhaobi: Physical Stability and the Creation of Architectural Meaning. J. Archit. 2020, 25, 45–64. [Google Scholar] [CrossRef]
- Benedetti, M.; Maierová, L.; Cajochen, C.; Motamed, A.; Münch, M.; Scartezzini, J.L. Impact of Dynamic Lighting Control on Light Exposure, Visual Comfort and Alertness in Office Users. J. Phys. Conf. Ser. 2019, 1343, 012160. [Google Scholar] [CrossRef]
- Guo, R. Regional China: A Business and Economic Handbook; Palgrave Macmillan: Basingstoke, Hampshire, UK, 2013; ISBN 1-137-28767-5. [Google Scholar]







| Traditional Type | C1 | C2 | C3 |
| Upper floor | ![]() | ![]() | ![]() |
| Main floor | ![]() | ![]() | ![]() |
| Scenario of traditional vernacular dwellings | ![]() | ![]() | ![]() |
| Modern Type | C4 | C5 | C6 |
| Upper floor | ![]() | ![]() | ![]() |
| Ground floor | ![]() | ![]() | ![]() |
| Scenario of modern dwellings | ![]() | ![]() | ![]() |
.| Traditional Type | C1 | C2 | C3 |
![]() | ![]() | ![]() | |
| Modern Type | C4 | C5 | C6 |
![]() | ![]() | ![]() |
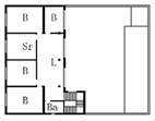
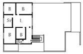
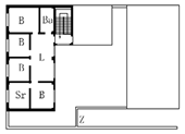
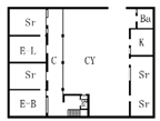
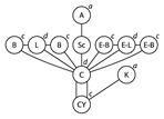
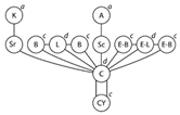
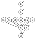
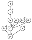
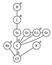
| Type | House | Rank Order Key Functions (Based on Integration Value) | Max | Min |
|---|---|---|---|---|
| Traditional | C1 | Elders L 1.2229 > Elders B 1.1340 > Living Room 1.0059 > Bedrooms 0.9900 = Kitchen 0.9900 | Courtyard 2.1507 | Attic 0.5197 |
| C2 | Elders L 1.3275 > Elders B 1.2943 > Living Room 1.2627 > Bedrooms 1.2327 > Kitchen 1.1766 | Corridor 2.7248 | Attic 0.6553 | |
| C3 | Elders L 1.0942 > Elders B 1.0225 > Living Room 0.8663 > Bedrooms 0.8544 > Kitchen 0.7606 | Corridor 1.5212 | Attic 0.4131 | |
| Modern | C4 | Elders L 0.7727 = Elders B 0.7727 > Living Room 0.6637 > Kitchen 0.6471 > Bedroom 0.5177 | Corridor 1.1254 | Bedroom 0.5177 |
| C5 | Elders L 0.6812 > Elders B 0.6723 > Living Room 0.5752 > Kitchen 0.4978 > Bedroom 0.4622 | Corridor 0.9244 | Bedroom 0.4622 | |
| C6 | Elders L 0.7505 > Elders B 0.7139 > Living Room 0.6969 > Kitchen 0.5739 > Bedroom 0.5321 | Corridor 1.1257 | Toilet 0.4181 |
| Traditional Type | C1 | C2 | C3 |
| Upper floor | ![]() | ![]() | ![]() |
| Main floor | ![]() | ![]() | ![]() |
| Modern Type | C4 | C5 | C6 |
| Upper floor | ![]() | ![]() | ![]() |
| Ground floor | ![]() | ![]() | ![]() |
low.| Vernacular Dwellings | Traditional Type | Modern Type | ||
|---|---|---|---|---|
| Visibility Graphs | ![]() | ![]() | ||
| J-Graphs and Integration Value (IV) | ![]() | IV: C = 1.5306 E- L = 1.2229 E- B = 1.1340 L = 1.0059 B = 0.990 CY = 2.1507 A = 0.5197 | ![]() | IV: CY = 0.8644 E-L = 0.6812 E- B(Gr) = 0.6723 L = 0.5752 K = 0.4978 B = 0.4622 C = 0.9244 B = 0.4622 |
| Scenario of indoor space | ![]() | ![]() | ||
low, a (spaces being dead ends), b (spaces being thoroughfares), c (spaces being located on a ring), d (spaces being located on two or more rings).| Vernacular Dwellings | Traditional Type | Modern Type | ||
|---|---|---|---|---|
| Visibility Graphs | ![]() | ![]() | ||
| J-Graphs and Integration Value (IV) | ![]() | IV: C = 1.5306 E- L = 1.2229 E- B = 1.1340 L = 1.0059 B = 0.990 CY = 2.1507 A = 0.5197 | ![]() | IV: CY = 0.8644 E-L = 0.6812 E- B(Gr) = 0.6723 L = 0.5752 K = 0.4978 B = 0.4622 C = 0.9244 B = 0.4622 |
| Scenario of indoor space | ![]() | ![]() | ||
low, a (spaces being dead ends), b (spaces being thoroughfares), c (spaces being located on a ring), d (spaces being located on two or more rings).| Vernacular Dwellings | Traditional Type (C1) | Modern Type (C5) | |
|---|---|---|---|
| Plan Map | ![]() | ![]() | |
| Sun-light Shadow Analysis | 21 March | ![]() | ![]() |
| 21 December | ![]() | ![]() | |
| Lighting level analysis | Lighting level analysis of the whole courtyard houses (21 December) | ![]() | ![]() |
| Indoor lighting level analysis (21 December) | ![]() | ![]() | |
Publisher’s Note: MDPI stays neutral with regard to jurisdictional claims in published maps and institutional affiliations. |
© 2022 by the authors. Licensee MDPI, Basel, Switzerland. This article is an open access article distributed under the terms and conditions of the Creative Commons Attribution (CC BY) license (https://creativecommons.org/licenses/by/4.0/).
Share and Cite
Li, Z.; Diao, J.; Lu, S.; Tao, C.; Krauth, J. Exploring a Sustainable Approach to Vernacular Dwelling Spaces with a Multiple Evidence Base Method: A Case Study of the Bai People’s Courtyard Houses in China. Sustainability 2022, 14, 3856. https://doi.org/10.3390/su14073856
Li Z, Diao J, Lu S, Tao C, Krauth J. Exploring a Sustainable Approach to Vernacular Dwelling Spaces with a Multiple Evidence Base Method: A Case Study of the Bai People’s Courtyard Houses in China. Sustainability. 2022; 14(7):3856. https://doi.org/10.3390/su14073856
Chicago/Turabian StyleLi, Zhou, Jiahui Diao, Shaoming Lu, Cong Tao, and Jonathan Krauth. 2022. "Exploring a Sustainable Approach to Vernacular Dwelling Spaces with a Multiple Evidence Base Method: A Case Study of the Bai People’s Courtyard Houses in China" Sustainability 14, no. 7: 3856. https://doi.org/10.3390/su14073856
APA StyleLi, Z., Diao, J., Lu, S., Tao, C., & Krauth, J. (2022). Exploring a Sustainable Approach to Vernacular Dwelling Spaces with a Multiple Evidence Base Method: A Case Study of the Bai People’s Courtyard Houses in China. Sustainability, 14(7), 3856. https://doi.org/10.3390/su14073856



























































