HBIM between Antiquity and Industrial Archaeology: Former Segrè Papermill and Sanctuary of Hercules in Tivoli
Abstract
:1. Introduction
1.1. Antiquity from Secular and Enduring Production and Antiquity from Reuse
- -
- the recognition of an Italian way of the industrial heritage, already proposed some time ago by Borsi, Tognarini and Bergeron [14,15,16], wherein it is necessary to contextualize the specificities of the scope of application of digital tools, the antiquity of use, and a contemporary reuse to be in a position to later generalize it to other cases.
- -
- the verification the potential that digital tools [17], as they have long been used in archaeology, having to build effective models of representation of palimpsests, a digital model that allows for a comprehensive view of classical archaeology and industrial archaeology. With this in mind, the complexity of information modeling of requests for cultural heritage must necessarily follow the BIM method so that information aspects from manual and archival sources must be associated with a geometric modelling: key parameters, instances, timing, and algorithms will allow for the emergence of phases, groupings, and relationships. Historical studies therefore come into play upstream and downstream of the BIM process.
- -
- the illustration of the specific objectives that with these premises have been set to this research. In the case study, a process that contemplates at least the fourth and sixth dimensions of BIM (time and management) certainly allows for passing from the construction of the instances to the return of the phases from the BIM process.
1.2. “Italian Way” of the Industrial Heritage
1.3. BIM and Palimpsests
1.4. Main Objective: An ArchaeoBIM for Industrial Archaeology
2. Issues of a Case Study and Context of the Reuse
2.1. Tivoli, a Prominent Site of Industrial Heritage in a Context of Millenary Archaeological and Artistic Presences
2.2. Case Study of the Paper Mill Segrè Papermill in the Sanctuary of Hercules: Antiquity from Reuse
2.3. General Questions from the Specific Case: Antiquity from Reuse
3. Materials and Methods
3.1. Application of ArchaeoBIM to Industrial Archaeology
3.2. From the Integrated Survey to Photogrammetric Reconstruction (Landscape to Building)
3.3. BIM Reconstruction
3.4. LOD Definition for Industrial Heritage in BIM Process
4. Results and Discussion
4.1. Application of ArchaeoBIM to Industrial Archaeology
4.2. Configuration and Representation of the Current State: From the Integrated Survey to BIM Reconstruction
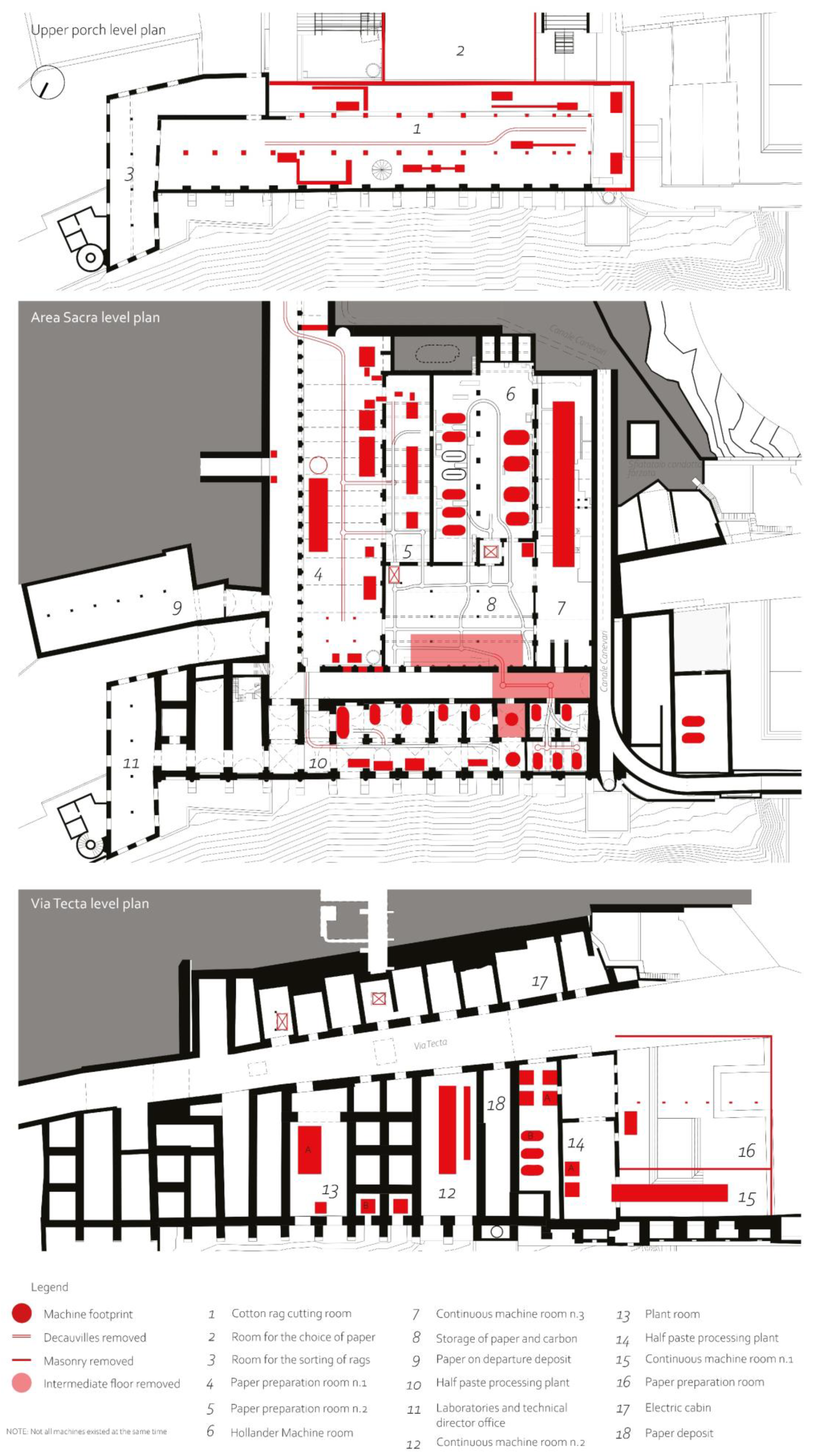
4.3. Current and Lost Machines: Use of LOD Definition for Industrial Heritage in BIM Process
5. Conclusions
Author Contributions
Funding
Institutional Review Board Statement
Informed Consent Statement
Data Availability Statement
Acknowledgments
Conflicts of Interest
References
- Trinder, B.S. The Making of the Industrial Landscape; Alan Sutton: Gloucester, UK, 1987. [Google Scholar]
- Żmudzińska-Nowak, M. Heritage as a palimpsest of valued cultural assets on the problems of frontier land architectural heritage in turbulent times. Example of Poland’s upper Silesia. Int. J. Conserv. Sci. 2021, 12, 1267–1288. [Google Scholar]
- Knight, J.; Harrison, S. “A land history of men”: The intersection of geomorphology, culture and heritage in Cornwall, southwest England. Appl. Geogr. 2013, 42, 186–194. [Google Scholar] [CrossRef]
- Nesti, A.; Pierulivo, M. (Eds.) La Siderurgia Italiana. Tra Storia Economica e Archeologia Industriale. In Onore di Ivan Tognarini; Pacini Editore: Pisa, Italy, 2017. [Google Scholar]
- Preite, M. Masterplan: La Valorizzazione del Paesaggio Minerario; Polistampa: Firenze, Italy, 2009. [Google Scholar]
- Rubino, G.E. Le Cartiere di Amalfi. Paesaggi Protoindustriali del Mediterraneo; Giannini: Napoli, Italy, 2006. [Google Scholar]
- Emery, O. Società Tipografica A; Macioce e Pisani: Isola del Liri, Italy, 1935. [Google Scholar]
- Currà, E. La cartiera di Sant’Elia Fiumerapido dai maestri fabrianesi alla industrializzazione del XIX secolo. In Vie D’acqua e Lavoro dell’uomo Nella Provincia di Frosinone. L’industria della Carta; Currà, E., Ed.; Palombi Editori: Roma, Italy, 2011; pp. 31–50. [Google Scholar]
- Currà, E. Un Palazzo-Fabbrica a Roma nei Primi del Novecento. Ricerche Archeo-Industriali per il Recupero della Regia Zecca; Edifir Edizioni Firenze: Firenze, Italy, 2021. [Google Scholar]
- Eugene, J.J. A Window in the Venetian Mint and the Libreria di San Marco. J. Soc. Archit. Hist. 2010, 69, 190–205. [Google Scholar]
- Muratori, S.; Bollati, R.; Bollati, S.; Marinucci, G. Studi per una Operante Storia Urbana di Roma; Consiglio Nazionale delle Ricerche: Rome, Italy, 1963.
- TICCIH Nizhny Tagil Charter for The Industrial Heritage; 2003.
- TICCIH ICOMOS Joint ICOMOS. TICCIH Principles for the Conservation of Industrial Heritage Sites, Structures, Areas and Landscapes; ICOMOS: Paris, France, 2011. [Google Scholar]
- Borsi, F. Introduzione alla Archeologia Industriale; Officina Edizioni: Roma, Italy, 1978. [Google Scholar]
- Tognarini, I.; Nesti, A. Archeologia Industriale. L’oggetto, i Metodi, le Figure Professionali; Carocci: Roma, Italy, 2003. [Google Scholar]
- Bergeron, L.; Dorel-Ferré, G. Le Patrimoine Industriel: Un Nouveau Territoire; Editions Liris: Paris, France, 1996. [Google Scholar]
- Chatzigrigoriou, P.; Nikolakopoulou, V.; Vakkas, T.; Vosinakis, S.; Koutsabasis, P. Is Architecture Connected with Intangible Cultural Heritage? Reflections from Architectural Digital Documentation and Interactive Application Design in Three Aegean Islands. Heritage 2021, 4, 664–689. [Google Scholar] [CrossRef]
- Currà, E. Venezia: Arsenale e città industriale. Patrim. Ind. 2019, 22, 6–10. [Google Scholar]
- Covino, R. Archeologia industriale in Italia: Ambito disciplinare, termini cronologici. Quad. Stor. 1980, 15, 218–229. [Google Scholar]
- Bergeron, L. L’industrialisation de la France au XIX ème Siècle Paris; Hatier: Paris, France, 1979. [Google Scholar]
- Casanelles Rahola, E. Recuperación y uso del patrimonio industrial. Cuad. del Claeh 2004, 27, 57–64. [Google Scholar]
- Leon, I.; Pérez, J.J.; Senderos, M. Advanced techniques for fast and accurate heritage digitisation in multiple case studies. Sustainability 2020, 12, 6068. [Google Scholar] [CrossRef]
- Castellano, A. Archeologia industriale e cultura materiale. Archaeol. Ind. Cent. Doc. Ric. Boll. 1977, 1, 8. [Google Scholar]
- Società Italiana per l’Archeologia Industriale (Ed.) Eugenio Battisti Un’archeologia senza confini. In Proceedings of the Atti del Convegno Internazionale di Archeologia Industriale, Milano, Italy, 24–26 June 1977; Clup: Milano, Italy, 1978; pp. 11–17. [Google Scholar]
- Murphy, M.; McGovern, E.; Pavia, S. Historic building information modelling (HBIM). Struct. Surv. 2009, 27, 311–327. [Google Scholar] [CrossRef] [Green Version]
- Logothetis, S.; Delinasiou, A.; Stylianidis, E. Building Information Modelling for Cultural Heritage: A review. ISPRS Ann. Photogramm. Remote Sens. Spat. Inf. Sci. 2015, II-5/W3, 177–183. [Google Scholar] [CrossRef] [Green Version]
- Brusaporci, S.; Ruggeri, G.; Maiezza, P.; Tata, A. AHBIM per l’analisi stratigrafica dell’architettura storica. AHBIM per L’analisi Stratigr. Dell’architettura Stor. 2018, 27, 112–131. [Google Scholar] [CrossRef]
- Garagnani, S.; Gaucci, A.; Govi, E. Archaeobim: Dallo scavo al building information modeling di una struttura sepolta. Il caso del tempio tuscanico di uni a marzabotto. Archeol. Calc. 2016, 251–270. [Google Scholar]
- Garagnani, S.; Gaucci, A.; Moscati, P.; Gaiani, M. ArchaeoBIM; Bononia University Press: Bologna, Italy, 2021. [Google Scholar]
- Bruno, S.; Musicco, A.; Fatiguso, F.; Dell’Osso, G.R. The Role of 4D Historic Building Information Modelling and Management in the Analysis of Constructive Evolution and Decay Condition within the Refurbishment Process. Int. J. Archit. Herit. 2021, 15, 1250–1266. [Google Scholar] [CrossRef]
- Bianchini, C.; Inglese, C.; Ippolito, A. The role of bim (building information modeling) for representation and managing of built and historic artifacts. Disegnarecon 2016, 9, 10.1–10.9. [Google Scholar]
- Currà, E.; D’Amico, A.; Angelosanti, M. Representation and knowledge of historic construction: HBIM for structural use in the case of villa Palma Guazzaroni in Terni. TEMA Technol. Eng. Mater. Archit. 2021, 7. [Google Scholar] [CrossRef]
- Bruno, N.; Roncella, R. HBIM for conservation: A new proposal for information modeling. Remote Sens. 2019, 11, 1751. [Google Scholar] [CrossRef] [Green Version]
- Simeone, D.; Cursi, S.; Acierno, M. BIM semantic-enrichment for built heritage representation. Autom. Constr. 2019, 97, 122–137. [Google Scholar] [CrossRef] [Green Version]
- Acierno, M.; Cursi, S.; Simeone, D.; Fiorani, D. Architectural heritage knowledge modelling: An ontology-based framework for conservation process. J. Cult. Herit. 2017, 24, 124–133. [Google Scholar] [CrossRef]
- Bruno, S.; De Fino, M.; Fatiguso, F. Historic Building Information Modelling: Performance assessment for diagnosis-aided information modelling and management. Autom. Constr. 2018, 86, 256–276. [Google Scholar] [CrossRef]
- Garagnani, S.; Gaucci, A. The archaeobim method and the role of digital models in archaeology. Archeol. Calc. 2020, 31, 181–188. [Google Scholar] [CrossRef]
- Bolognesi, C.; Garagnani, S. From a point cloud survey to a mass 3D modelling: Renaissance HBIM in Poggio a Caiano. Int. Arch. Photogramm. Remote Sens. Spat. Inf. Sci. ISPRS Arch. 2018, 42, 117–123. [Google Scholar] [CrossRef] [Green Version]
- Carnevali, L.; Lanfranchi, F.; Russo, M. Built Information Modeling for the 3D Reconstruction of Modern Railway Stations. Heritage 2019, 2, 2298–2310. [Google Scholar] [CrossRef] [Green Version]
- Brusaporci, S.; Maiezza, P.; Tata, A. A framework for architectural heritage hbim semantization and development. Int. Arch. Photogramm. Remote Sens. Spat. Inf. Sci. ISPRS Arch. 2018, 42, 179–184. [Google Scholar] [CrossRef] [Green Version]
- Bentkowska-Kafel, A.; Denard, H.; Drew Baker, D. Paradata and Transparency in Virtual Heritage; Ashgate: Burlington, UK, 2012. [Google Scholar]
- ICOMOS General Assembly Principles of Seville. International Principles of Virtual Archeology; ICOMOS: Paris, France, 2017. [Google Scholar]
- Zaker, R.; Eghra, A.; Pahlavan, P. Documentation and Hbim of Industrial Heritage Using Drone Images: Petroleum Reservoir of Mashhad. Int. Arch. Photogramm. Remote Sens. Spat. Inf. Sci. 2021, 46, 917–923. [Google Scholar] [CrossRef]
- Pavlovskis, M.; Migilinskas, D.; Antuchevičienė, J.; Kutut, V. Implementing BIM for industrial and heritage building conversion. In Proceedings of the 17th International Colloquium Sustainable Decisions in Built Environment, Vilnius, Lithuania, 15 May 2019. [Google Scholar]
- Biagini, C.; Arslan, P. Industrial Heritage in the historical neighbourhood: BIM strategies for urban regeneration. Disegnarecon 2018, 11, 9. [Google Scholar]
- Giuliani, F.C. Tibur, Pars Prima; Formae Italiae, Regio I; De Luca: Rome, Italy, 1970; Volume 6. [Google Scholar]
- Natoli, M. L’archeologia industriale nella Provincia di Roma. In L’archeologia Industriale nel Lazio; Paolmbi Editori: Rome, Italy, 1999. [Google Scholar]
- Pacifici, V. Annali e Memorie di Tivoli di Giovanni Maria Zappi; Società Tiburtina di Storia e d’Arte: Rome, Italy, 1920. [Google Scholar]
- Fea, C. Considerazioni Storiche, fisiche, Geologiche, Idrauliche, Architettoniche, Economiche, Critiche Dell’avvocato D. Carlo Fea, sul Disastro Accaduto in Tivoli il di 16 Novembre 1826, Corredate di Carte Topografiche Dello Stato Antico, e Dell’attuale dell’Ani; Bourlié: Rome, Italy, 1827. [Google Scholar]
- Scavia, M. L’industria Della Carta in Italia; Turin, Italy, 1903. [Google Scholar]
- Pagnotta, G. Roma Industriale: Tra Dopoguerra e Miracolo Economico; Editori Riuniti UP: Rome, Italy, 2009. [Google Scholar]
- Coarelli, F. I Santuari del Lazio e della Campania tra i Gracchi e le Guerre. In Les « Bourgeoisies » Municipales Italiennes aux IIe et Ier siècles av. J.-C: Actes du Colloque International du CNRS n. 609 (Naples 1981); Publications du Centre Jean Bérard: Naples, Italy, 1983; pp. 217–222. [Google Scholar]
- Mari, Z. Il giardino nelle ville di otium dell’ager Tiburtinus. AMOENITAS. Riv. Internazionale Di Stud. Misc. Sulla Villa Rom. Antica 2013, 4, 41–81. [Google Scholar]
- Giuliani, F.C. Tivoli. Il Santuario di Ercole Vincitore; Tiburis Artistica: Tivoli, Rome, Italy, 2004. [Google Scholar]
- Pacifici, V.G. Documenti Dell’inchiesta Napoleonica su Tivoli e Circondario; Società Tiburtina di Storia e d’Arte in Villa d’Este: Tivoli, Rome, Italy, 1978. [Google Scholar]
- Nasto, L. Tivoli, La ferriera di Villa Mecenate. Atti e Mem. della Soc. Tiburt. di Stor. e d’Arte, già Accad. degli Agevoli e Colon. di Arcadi Sibillini 1997, 70, 89–107. [Google Scholar]
- Banti, A. Il trasporto di energia elettrica da Tivoli a Roma. L’elettricista 1892, 282–294. [Google Scholar]
- Milanetti, F. Impianti Idroelettrici di Tivoli; Aracne: Rome, Italy, 2015. [Google Scholar]
- Carpentiero, L. Il BIM come modello di gestione di un sito archeologico. Oltre i limiti dell’oggetto parametrico tra criticità e nuove proposte. Newsl. di Archeol. CISA 2020, 11, 69–86. [Google Scholar]
- Remondino, F.; El-Hakim, S. Image-based 3D modelling: A review. Photogramm. Rec. 2006, 21, 269–291. [Google Scholar] [CrossRef]
- Torresani, A.; Remondino, F. Videogrammetry VS Photogrammetry for Heritage 3D reconstruction. Int. Arch. Photogramm. Remote Sens. Spat. Inf. Sci. 2019, 42, 1157–1162. [Google Scholar] [CrossRef] [Green Version]
- Martínez-Carricondo, P.; Carvajal-Ramírez, F.; Yero-Paneque, L.; Agüera-Vega, F. Combination of nadiral and oblique UAV photogrammetry and HBIM for the virtual reconstruction of cultural heritage. Case study of Cortijo del Fraile in Níjar, Almería (Spain). Build. Res. Inf. 2019, 48, 140–159. [Google Scholar] [CrossRef]
- Oreni, D.; Brumana, R.; Georgopoulos, A.; Cuca, B. HBIM for conservation and management of built heritage: Towards a library of vaults and wooden bean floors. Remote Sens. Spat. Inf. Sci. 2013, 2, 215–221. [Google Scholar] [CrossRef] [Green Version]
- Garagnani, S. Building Information Modeling and real world knowledge: A methodological approach to accurate semantic documentation for the built environment. In Proceedings of the 2013 Digital Heritage International Congress (DigitalHeritage), Marseille, France, 28 October–1 November 2013; Volume 1, pp. 489–496. [Google Scholar]
- Valero, E.; Bosché, F.; Forster, A.; Hyslop, E. Historic Digital Survey: Reality Capture and Automatic Data Processing for the Interpretation and Analysis of Historic Architectural Rubble Masonry. RILEM Bookseries 2019, 18, 388–396. [Google Scholar] [CrossRef]
- Rinaudo, F.; Nex, F. LIDAR e Fotogrammetria Digitale verso una nuova integrazione. GEOmedia 2011, 3, 32–34. [Google Scholar]
- Carrilho, A.C.; Galo, M.; Dos Santos, R.C. Statistical outlier detection method for airborne LiDAR data. Int. Arch. Photogramm. Remote Sens. Spat. Inf. Sci. 2018, XLII–1, 87–92. [Google Scholar] [CrossRef] [Green Version]
- Brodu, N.; Lague, D. 3D terrestrial lidar data classification of complex natural scenes using a multi-scale dimensionality criterion: Applications in geomorphology. ISPRS J. Photogramm. Remote Sens. 2012, 68, 121–134. [Google Scholar] [CrossRef] [Green Version]
- Tolmer, C.E.; Castaing, C.; Diab, Y.; Morand, D. Adapting LOD definition to meet BIM uses requirements and data modeling for linear infrastructures projects: Using system and requirement engineering. Vis. Eng. 2017, 5, 21. [Google Scholar] [CrossRef]
- CEN European Committee for Standardization. Organization and digitization of information about buildings and civil engineering works, including building information modelling (BIM). In Information Management Using Building Information Modelling—Part 1: Concepts and Principles; ISO: Geneva, Switzerland, 2018; p. 34. [Google Scholar]
- Bianchini, C.; Nicastro, S. The definition of the Level of Reliability: A contribution to the transparency of Heritage-BIM processes. 3D Model. BIM 2018, 228–245. [Google Scholar]
- Maiezza, P. As-Built Reliability in Architectural Hbim Modeling. ISPRS—Int. Arch. Photogramm. Remote Sens. Spat. Inf. Sci. 2019, XLII–2, 461–466. [Google Scholar] [CrossRef] [Green Version]
- Ikerd, W.; Epstein, M.; Sanoja, A.; Koller, J.; Arevalo, C.; Espinosa, G.; Merrifield, D.; Walker, R. Level of Acceptance (LoA) Specification for BIM Reality Capture and Simulation; BIMForum: Dallas, TX, USA, 2020. [Google Scholar]
- Wang, J.; Wang, X.; Shou, W.; Chong, H.Y.; Guo, J. Building information modeling-based integration of MEP layout designs and constructability. Autom. Constr. 2016, 61, 134–146. [Google Scholar] [CrossRef]
- Peters, A.; Thon, A. Best Practices and First Steps of Implementing BIM in Landscape Architecture and its Reflection of Necessary Workflows and Working Processes. J. Digit. Landsc. Archit. 2019, 106–113. [Google Scholar] [CrossRef]
- Yang, C.; Han, F.; Wu, H.; Chen, Z. Heritage Landscape Information Model (HLIM): Towards a contextualised framework for digital landscape conservation in China. ISPRS—Int. Arch. Photogramm. Remote Sens. Spat. Inf. Sci. 2019, XLII-2/W15, 1221–1227. [Google Scholar] [CrossRef] [Green Version]
- Currà, E. La costruzione storica per l’industria della carta nel Lazio. L’arte cartaria e le sue fabbriche. In Il Patrimonio Industriale Della Carta in Italia. La Storia i Siti la Valorizzazione; Istocarta: Fabriano, Italy, 2017; pp. 419–442. [Google Scholar]
- Mancini, S.M. Il caso della “Fibreno” ad Isola del Liri: Da convento a fabbrica a complesso da salvaguardare. Boll. Dell’associazione Per L’archeologia Ind.—Cent. Doc. E Ric. Per Mezzog. 1984, 10–12, 7–18. [Google Scholar]
- Povroznik, N. Virtual museums and cultural heritage: Challenges and solutions. CEUR Workshop Proc. 2018, 2084, 394–402. [Google Scholar]
- De Fino, M.; Ceppi, C.; Fatiguso, F. Virtual tours and informational models for improving territorial attractiveness and the smart management. Int. Arch. Photogramm. Remote Sens. Spat. Inf. Sci. 2020, XLIV-M-1–2, 473–480. [Google Scholar] [CrossRef]














Publisher’s Note: MDPI stays neutral with regard to jurisdictional claims in published maps and institutional affiliations. |
© 2022 by the authors. Licensee MDPI, Basel, Switzerland. This article is an open access article distributed under the terms and conditions of the Creative Commons Attribution (CC BY) license (https://creativecommons.org/licenses/by/4.0/).
Share and Cite
Currà, E.; D’Amico, A.; Angelosanti, M. HBIM between Antiquity and Industrial Archaeology: Former Segrè Papermill and Sanctuary of Hercules in Tivoli. Sustainability 2022, 14, 1329. https://doi.org/10.3390/su14031329
Currà E, D’Amico A, Angelosanti M. HBIM between Antiquity and Industrial Archaeology: Former Segrè Papermill and Sanctuary of Hercules in Tivoli. Sustainability. 2022; 14(3):1329. https://doi.org/10.3390/su14031329
Chicago/Turabian StyleCurrà, Edoardo, Alessandro D’Amico, and Marco Angelosanti. 2022. "HBIM between Antiquity and Industrial Archaeology: Former Segrè Papermill and Sanctuary of Hercules in Tivoli" Sustainability 14, no. 3: 1329. https://doi.org/10.3390/su14031329
APA StyleCurrà, E., D’Amico, A., & Angelosanti, M. (2022). HBIM between Antiquity and Industrial Archaeology: Former Segrè Papermill and Sanctuary of Hercules in Tivoli. Sustainability, 14(3), 1329. https://doi.org/10.3390/su14031329

