Abstract
The complex spatial environment of underground commercial street spaces will affect users’ behavior and information needs. As a medium to coordinate the interaction between the underground commercial street space environment and people, guide signs can provide useful information for users. However, the visual saliency of guide signs is the fundamental premise for determining the transmission of information to users. Based on field research, this study identified and examined the factors influencing the significance of guide signs in underground commercial streets from the user’s perspective using the order relation analysis method (G1 method) and with the help of screen-based eye tracking and virtual reality (VR) eye-tracking technology, In addition, we explored the design relationship between critical influencing factors and the space between underground commercial streets, and the visual significance of the differences between each important influencing variable. The study showed that the set position, set height, and design color of underground commercial street guide signs are essential factors in their visual prominence. The prominence was more significant when the position of guide signs was located in the middle and upper area of the space, and the prominence was more significant when the set height was 2.56~2.75 m and 3.12~3.31 m. This study can provide data and theoretical support for the visual saliency design of underground commercial street guide signs and provide a reference for the humanized design of underground commercial street guide signs for public facilities in cities.
1. Introduction
Against the background of the rapid development of urbanization, underground spaces have started to move from shallow utilization to large-scale development, and underground commercial streets have become places for public activity, with the closest relationship between the human body and mind. As the underground commercial street is relatively isolated from urban spaces, the characteristics of its closed environment and suppressed space make it different from the surface space. The changes in the spatial environment will directly affect the behavior and information needs of users in an underground commercial street. The relative isolation of the underground commercial street from the urban space [1,2] makes the underground space environment different from the surface space environment, which can directly affect the behavioral patterns and information needs of users in the underground commercial street. Moreover, underground commercial street is a spatial environment interwoven by various factors (architectural factors, physiological factors, psychological factors) [3], so when used, the space will be depressed by the underground space itself due to its structure and poor air circulation [4], the psychological feeling of lack of security and direction caused by the high similarity of road signs and space [5], and even the disorder and damage to personal safety caused by the guidance information in emergency situations, thus reducing the overall efficiency of the use of underground commercial street space. This environment may even cause disorder and compromise personal safety due to information orientation in emergencies, thus reducing the overall efficiency of using underground commercial street spaces. Underground commercial street development associated with problems concerning spatial information needs has led to the continuous development of underground space guidance. As an essential public facility media to coordinate the interaction between underground commercial street space and people [6], guide signs can alleviate a series of orientation difficulties that exist in underground commercial streets, that are different from the surface space, and become an essential basis to help underground commercial street users identify direction. In general, underground commercial streets are closed and complex environments with internal obstructive factors, featuring complex structures and many exits (DING2020). Wayfinding in underground commercial streets can be disorienting, and in some emergency situations, this problem may be more serious. The guide sign system can help to solve this problem [7].The main role of guide signs is to show the direction to the wayfinder and, to some extent, to help users achieve orientation and other goals. Therefore, it is necessary to use scientific methods to evaluate, study, and design underground commercial street guide signs to better guide users to find their way.
2. Literature Review
2.1. Guide Signs in Underground Spaces
Underground space guide signs are an essential guidance system to assist people in cognizing the underground space environment, and they have received attention from several scholars, providing principles and directions for the design of guide signage systems in underground spaces [8,9]. These studies started from the basic elements of guide signs in underground spaces such as graphics [10], font [11], color [12], and quantity [13].
Although many scholars have studied guide signs, the research focuses only on one aspect of the material, color, and graphic elements. In contrast, a single aspect does not determine the design of guide sign messaging. Some scholars also take a holistic approach to optimize the design of guide signs in existing spaces. Bin et al. (2019) [14] explored the critical points relating to the optimal setting of wayfinding signs with the help of pedestrian tracking experiments. Lu et al. (2019) [15] evaluated the effects of setting schemes of exit advance guide signs in mountain tunnels through simulation experiments. Jing et al. (2020) [16] optimized the overall spatial layout of subway spatial guide signs. As information service facilities, the research on guide signs is becoming scientific and technical and is gradually progressing in terms of humanization and culture, etc. The scope of research objects includes underground spaces, rail transportation hubs, scenic spots and campuses, and other public spaces, and the research system is also gradually improving. However, there has been less research into the impact of the visual effect of the guide signs in the process of use due to their design and setting, and the existing research is one-sided. As underground commercial space is one of the most important ways to utilize underground space in cities, it is significantly affected by the guide sign system [17]. The complex environment of underground commercial streets leads to the need for accurate, fast, legible, and easy-to-understand information on guide signs. Hence, the study of the information design of guide signs has a vital role in promoting their development.
2.2. Application of Eye-Movement Tracking Technology to Guide Signs
Eye-movement tracking technology sprang up as a scientific application in the 1940s with a film system that recorded eye movements. It is an important method for studying people’s decision-making behavior and has been widely used in several fields [18,19,20], becoming an effective measurement tool for studying the characteristics of individual visual and mental activities.
Previous studies have shown that research guide signs still rely on research or theoretical analysis, which requires a significant workforce, and data collection is highly subjective. However, with the development and progress of technology, new technologies to analyze guide signs have become increasingly common. Du Z. et al. (2011) [21] used the iView X eye-tracking system to explore the interference of various typical environmental information on the visual perception of guide signs. Kiefer (2015) [22] observed and explored the visual process of human orientation with the help of landmarks using eye-tracking devices. Helmut et al. (2017) [23] conducted an experimental study on the effectiveness of guidance systems in indoor architectural spaces through eye-tracking technology. Ma et al., 2019 [24] and Ma et al., 2020 [25] investigated the effectiveness of emergency evacuation signs and the rationality of layout with the help of eye-movement experiments. Yong Fang et al. (2022) [26] optimized the adaptive aging safety design of guide signs for rail systems based on eye-movement data. These studies also proved the accuracy and applicability of eye-movement analysis in the study of signage. This paper takes the visual saliency of guide signs as an entry point to explore the significance and value of virtual reality combined with an eye-tracking technology approach in the study of environmental behavior in underground commercial streets.
2.3. The Impact of Guide Sign Design on Wayfinding
Finding one’s way through architecture is often a challenge for first-time visitors [27]. Guide signs play an important role in the wayfinding process by providing clear and available directional information on the surrounding environment [28,29]. People rely on this information to find a location within a building or to escape in case of an emergency. Typically, guide signs serve as the primary wayfinding attribute, designed to help people find their way to a desired destination, such as enabling people to effectively find destinations in complex buildings in both everyday situations [30] and in emergency situations [31].
Kiefer et al. (2012) relied on eye-movement experiments to investigate the route selection, sign determination, and strategy formulation of wayfinders in urban spaces [32]. Yuqi Shi et al. (2020) explored the effects of sign height, observation angle, and other factors on the legibility of wayfinding signs in subway stations [33]. Hölscher, C et al. (2004) compared the performance of experienced and inexperienced participants in different wayfinding tasks, exploring and providing suggestions for navigation strategies, planning stages, and the use of landmarks and signs [34]. Therefore, research on the design of a reasonable and effective guide sign can not only eliminate the problem of easy disorientation, but also provide clear guidance for those who need to find a specific location, reduce the difficulty of searching for stores, and improve the efficiency of using underground commercial streets.
In summary, the study of the visual saliency of guide signs is the premise and key to testing whether the design of guide signs can work well, which will affect whether users in underground spaces can locate their required destination first time, and it has a vital role in terms of users’ behavior and demand for guidance. Therefore, this study applies advanced eye-tracking technology to research underground space commercial street guide signs and discusses the following issues:
Q1. Through field research and theoretical analysis, the saliency factors of underground commercial street guide signs were determined and examined from the user’s perspective to identify the most critical factors and provide suggestions for guide sign design.
Q2. Through the construction of eye-tracking technology experiments, we explored the magnitude of variance in designing the most critical factors and the spatial design relationship between specific factors and commercial streets to provide primary design data and solutions for guidance design.
3. Methodology
3.1. Research Content and Process
This section explains the design process of the experiment and the required instrumentation. This study used eye-tracking devices and eye-tracking technology as the leading equipment for the experiment. The advanced eye-tracking technology has been proven to have excellent performance in several aspects. It can capture and collect information such as the characteristics of human eye movements when observing targets, use visualization and quantitative analysis techniques to realize eye-movement analysis, and then realize the investigation of human mental activities and visual cognition, and other processes, which is suitable for research into the visual saliency of underground commercial street guide signs, determined by both physiology and psychology.
The research process and the required tools for this study are shown in Figure 1, and the process consists of three parts. The first part was the preliminary determination of the influencing factors of the underground commercial street guide signs and the index weights of the influencing factors. Through field research and theoretical analysis, we determined the significant categories of influencing factors, analyzed the specific influencing factors of the visual prominence of guide signs, utilizing questionnaires, constructed the index system of influencing factors, and determined the weight of each index. The second part was to verify the results of the index system and weights of the influencing factors of the underground commercial street. The accuracy of the experimental data was verified by collecting eye-movement data from the experimenter with the help of an eye-movement device. The third part was to conduct quantitative experiments on the critical influencing factors to determine the variability of the visual saliency level of the essential influencing factors by conducting quantitative experimental research on the essential influencing factors with the help of virtual eye movements. Then, we obtained the eye-movement data and characteristics under each control factor variable, and conducted quantitative analysis with the help of data processing software to obtain the magnitude of variance and provide solutions for the design of guide signs in underground commercial streets.
Figure 1.
Research Framework.
3.2. Variable
Construction of a system of factors influencing the visual saliency of guide signs and determination of weights.
3.2.1. Questionnaire Design
- (1)
- Research Subjects
Through the observation of underground commercial street guide signs and literature research, the visual design elements can be mainly summarized as three levels: spatial location setting, structural style design, and information content design. Among them, the spatial location element includes the position and height of the guide sign in space; the structure style includes the color, material, size, shape, and other elements for its layout. The information content includes graphics, text, and other elements in the sign’s design.
Considering the high consistency of the results obtained from eye-movement experiment evaluation using on-site research pictures and on-site evaluation, as well as the environmental requirements and human and material limitations of eye-movement experiments, on-site research pictures under the same conditions were selected as the eye-movement experiment stimulus materials.
This study selected 12 underground commercial streets in Nanjing, Wuxi, Suzhou, and Xuzhou as the research objects based on relevant data and the existing literature. In order to more reasonably determine and screen the visual saliency influencing factors of underground commercial street guide signs and to prepare for the smooth construction of the influencing factor index system in a later paper, this research was conducted using fieldwork, on-site interviews, and questionnaires on the underground commercial streets in each city. The specific locations and scenes of underground commercial streets are shown in Table 1.
Table 1.
The specific situation of the underground commercial street under investigation.
- (2)
- Questionnaire data analysis
Through the field research of underground commercial streets, a questionnaire survey was conducted on the users of an underground commercial street in the form of random sampling around three major influencing factors: spatial location setting, structure design, and information content design of guide signs. The questionnaire design and the accuracy of the research data determined the reliability of the questionnaire and subsequent research, so the questionnaire and the data obtained were verified for reliability. A total of 300 questionnaires were distributed, and 264 questionnaires were collected, with a validity rate of 88%, and the reliability test coefficient of 264 questionnaires was higher than 0.7, demonstrating good reliability.
A one-way ANOVA was conducted on the effect of individual attribute differences on the total scale scores (Table 2). It was found that there was no significant difference between the individual characteristics of the “purpose of going to underground commercial streets” and “gender”, “age”, “education background”, and “frequency of going to underground commercial streets” on the total scale scores. The four individual characteristics of “gender”, “age”, “education background”, and “frequency of going to underground commercial streets” were all significantly different from each other. This indicates that individual differences influenced the design of the underground commercial street signs.
Table 2.
One-way ANOVA of the effect of individual attribute differences on the total score of the scale.
In order to verify the correlation between the specific influencing factors and the results of the visual saliency questionnaire in accordance with the three categories of spatial location setting, structural style design, and information content design, a correlation analysis of the statistical survey results was conducted based on the positive-terrestrial distribution of each question item and the questionnaire scores. The results of the analysis are shown in Table 3. A correlation can also be seen between the specific influencing factors reflected by each question item and the results of the visual saliency questionnaire, which indicates the accuracy and reliability of the data so that the scores can indicate the specific influencing factors. The results of the importance of the influencing factors of guide signs were obtained via statistical analysis and collation of the questionnaire data, as shown in Table 4.
Table 3.
Correlation analysis of each question item with the total score statistical analysis of the questionnaire.
Table 4.
Summary of survey results ranking the importance of indicators (unit: person).
The results of the above survey show that users of underground commercial streets generally believe that the overall importance of the spatial location setting of guide signs is much greater than that of the structural design in terms of visual saliency and that the information content design is the least important factor. In the category of spatial location, two factors, namely location and height, were more critical, while the rest were less important. Finally, in the category of information content design, the two factors of supporting text and graphic symbols were more important, and the text element was the least important.
3.2.2. Constructing Index System and Weights
The categories of influencing factors affecting guide signs in underground commercial streets were initially determined through statistical analysis of the research data. Combined with importance, the index system of influencing factors of underground commercial street guide signs on visual saliency was constructed as shown in Table 5, and the index weights of the influencing factors were determined by the order relation analysis method (G1 method) [35,36], as shown in Table 6.
Table 5.
Indicators of the indicator system and related descriptions.
Table 6.
Summary of the weight values of indicators influencing the visual prominence of guide signs in underground commercial streets.
Combining the comprehensive weights of the primary and secondary indicators, the factors that affected the visual saliency of the guide signs the most were setting location, setting height, and design color, and their corresponding comprehensive weight values were 0.157, 0.121, and 0.102, respectively.
3.2.3. Validation Weights
In order to verify the accuracy of the research data and analysis results, an eye-movement verification experiment was conducted on the factors influencing the visual saliency of guide signs in underground commercial streets. In this experiment, we used a new screen-type eye-tracking device (Tobii Pro X3-120, KingFar International Inc., Beijing, China) to collect the visual gaze characteristics of the subjects when observing the guide signs in the underground commercial street by using the photographs of the representative nodes and different types of guide signs in the 12 commercial streets included in the preliminary underground commercial street research. The hotspot and trajectory maps (Table 7) were obtained by statistical analysis of time to first fixation (TFF) and total fixation duration (TFD) eye-movement indicators and data (Table 8). The hotspot diagram mainly shows how much attention subjects pay to a scene, with red representing the most concentrated areas of gaze and yellow and green representing the areas with less gaze. The trajectory diagram shows the location, sequence, and duration of observation of an area while observing the landscape, mainly using dots of different diameters to indicate the duration and location of gaze, and the larger dots indicate a more prolonged gaze. The number sequence in the dots and the line between the dots indicate the observation order and the gaze trajectory of the subjects.
Table 7.
Summary of hotspots and trajectories of each experimental scene.
Table 8.
Mean value of subjects’ eye-movement data when viewing guide signs (mean/s).
From Table 7, it can be seen that there was a difference between the mean value of time to first fixation for both scene setting 1 and setting 2, and time to first fixation for both scene setting 1 and setting 2, indicating that each factor variable had an influence on the visual salience of the guide signs. In terms of the size of the difference, the setting location category was the largest, followed by the structure style, and the information content design category had a more minor difference. The above analysis verified that the spatial location setting, structural style design, and information content design of the underground commercial street guide signs had an influence on the visual saliency of the guide signs, and the general influence was convergent with the results of the weight analysis, which was highly accurate.
3.3. Experimental Design
3.3.1. Experimental Equipment
This study used the Tobii VR eye-tracking device, which combines eye-tracking and VR technologies to enable eye-movement behavior studies in a fully controlled virtual experimental environment (Figure 2).
Figure 2.
Tobii VR eye tracker.
The Tobii VR eye-tracker system consists of a graphics workstation (graphics card GeForce GTX TITAN X 8G); a head-mounted virtual reality display with 2880 × 1600 combined pixels, 615 PPI (pixel density), AMOLED 90 Hz display; an infinite control handle; and a positioner (Steam VR Tracking 2.0).
3.3.2. Participant and Eye Movement Index Selection
- (1)
- Participants
A total of 30 undergraduate and graduate students were selected as subjects for this experiment. The subjects were all university students with normal vision, 16 of whom were male and 14 female, with a mean age of 18–28 years (M = 22.99, SD = 1.28).
- (2)
- Selection of eye-movement indicators
Through the generalization of related studies, it was found that time to first fixation, first fixation duration, total fixation duration, and fixation count were generally the important eye-movement indicators selected by scholars for landscape studies, so data for these four eye-movements were selected as the experimental eye-movement indicators of essential factors influencing visual saliency in this study (Table 9).
Table 9.
Basic meaning of each eye-movement index.
3.3.3. Scene Building
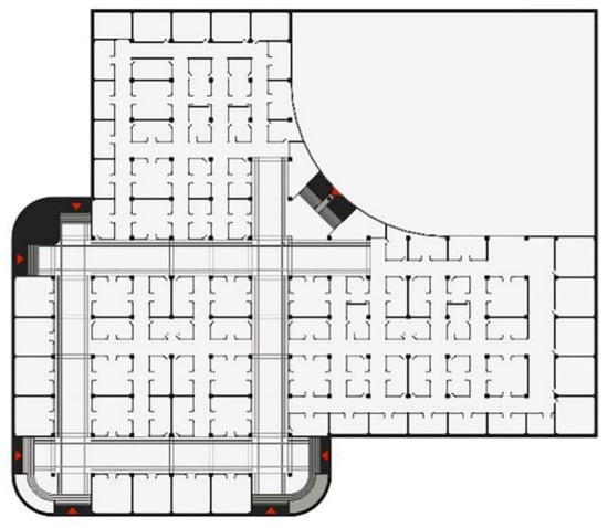
This experiment used VR technology to model the actual underground commercial street.
Figure 3, A 1:1 physical scale was used to restore the authentic scene space atmosphere as much as possible; based on field research regarding the lighting conditions, LED lighting was used to maintain the illumination of the traffic area of the underground commercial street model at 250 lx. In comparison, stores were maintained at 750 lx, and the color temperature of all lamps was controlled at 4200 K; in the interface pavement, the selection of pavement materials from all sectors of the scene was close to the actual materials, in line with the actual variables.
Figure 3.
Plan of the underground commercial street of Xuzhou central Fashion Avenue.
- (1)
- Experiment 1: Location factor scene setup
Combined with the plan layout and organization of the Xuzhou Center Fashion Avenue underground commercial street simulation scenario, the critical nodes where the crowd efficiently used the guide signs were three important underground commercial street space nodes at the street, the turning point, and the exit. These were selected as the experimental scenario. The simulation scene schematic and movement route are shown in Table 10.
Table 10.
Sketch of the selected experimental scene in Experiment 1.
- Street scene
Because the middle of the street is the extension area of the entire street, signs did not appear in the center of the sight line; otherwise, the multitude of signs in the underground commercial street would be affected and obstructed. Therefore, in the street scenario, a total of 8 areas, ①, ②, ③, ④, ⑥, ⑦, ⑧, and ⑨ were selected as the guide sign location setting areas to begin the corresponding research (Table 11).
Table 11.
Screenshots of eight experimental scenes under position setting variables in street scene.
- b.
- Turning-point scene
The space at the turning points in the underground commercial street, the center of the scene, was not an extension area of the street but a physical space such as a store or a wall. Therefore, we chose ①, ②, ③, ④, ⑤, ⑥, ⑦, ⑧, and ⑨, a total of nine areas in the turning space, as the guide sign location setting area (Table 12).
Table 12.
Screenshots of nine experimental scenes under the position setting variable in the turning-point scene.
- c.
- Exit scene;
The exit was the spatial node of the underground commercial street and the critical node where the guide mark plays a role. As the right-center of the sight area was the staircase, no guide signs were set, and ①, ②, ③, ④, ⑥, ⑦, and ⑨ were selected in the exit scene, with a total of 8 areas (Table 13).
Table 13.
Screenshots of eight experimental scenes with position setting variables in the exit scene.
- (2)
- Experiment 2: Height factor scene setup
Based on the experimental scenario, in order to avoid errors in route selection and direction determination and to further ensure the smooth conduct of the experiment and the reasonable collection of eye-movement data, this study designed the experimental route for the scenario, and the subjects only needed to follow the designed route to complete the simulated scenario.
Considering the visual characteristics and the observation distance of people, the height of the guide signs was considered in two cases: near distance (1~5 m) and far distance (5~30 m). Considering the height and eye height data of Chinese people, the street length of the underground commercial street, and the characteristics of people’s sight, the upper and lower limits of the lower boundary height of guide signs at under 15 m sight distance were calculated. The upper and lower limits of the height of the lower boundary of the corresponding guide signs under this sight distance were divided into equal proportions. Then, the average value between the two height values was taken, respectively. The values of the independent variables of the experimental height were screened and finalized according to the following parameter: “the vertical distance between the lower boundary of the hanging signs and the ground within the pedestrian range is not less than 2.5 m” (Table 14).
Table 14.
Determination of setting height of the guide sign.
We designed and established the guide sign model and put it in the fixed scenes based on the height-independent variable data in the above table, but then formed six scenes with height-independent variables for guide sign setting and carried out the experiment (Table 15).
Table 15.
Screenshots of six experimental scenes under the height setting variables.
3.3.4. Experimental Procedure
Before starting the experiment, the subject was guided to sit in the designated position and the experiment’s purpose, procedure, and requirements were explained to him/her. The subjects were allowed to adjust to a more comfortable sitting posture, and then their eyes were calibrated. During the experiment, the subjects started from the starting point of the designed route in the simulated scene. They continued to travel after finding the target-oriented signs until they reached the end of the designed route and then stopped traveling. Then, the staff switched to the next scene until they finished the experiment in all scenes and collected the oculomotor data simultaneously. At the end of the experiment, the subjects removed the experimental equipment and stopped the eye-movement video recording.
4. Results
4.1. Experiment 1: Analysis of the Effect of Location Factors on the Results
4.1.1. Eye-Movement View Data Analysis
The eye-movement view can display the view eye-movement data visually and effectively. The results of the hotspot maps of the spatial location setting factors (Table 16, Table 17 and Table 18) were consistent with the hotspot maps in Table 7.
Table 16.
Location of guide signs and corresponding hot spots in eight street scenes.
Table 17.
Location of guide signs and corresponding hotspots in nine scenes of the turning point.
Table 18.
Location of the guide signs and the corresponding hotspots in eight scenes at the exit.
By analyzing the hotspot diagrams of three spatial locations in the underground commercial street: the street, the turn, and the exit, it is concluded that there are differences in the distribution of hotspot diagrams for different setting locations, indicating that the visual saliency is influenced by the different set locations of the directional signs. The more profound hotspot diagrams in the three spatial locations are in the upper-middle, middle, and middle-left areas, indicating that the prominence of the guide signs set in the above locations is greater and more easily perceived.
4.1.2. Eye-Movement Data Analysis
The scene stimulus materials formed by the subjects in three underground commercial street node scenes with different setting positions of guide signs were summarized by scene, two failed records were deleted, and the four eye-movement index parameters of time to first fixation (TFF), first fixation duration (FFD), total fixation duration (TFD), and fixation count (FC) in the area of interest (AOI) were counted for 28 subjects. Through chi-square analysis (p > 0.05) of the four oculomotor parameters for each scene and then the one-way ANOVA test, it became apparent that the different scene samples were not statistically significant for the FFD oculomotor parameters, but the scene samples showed statistical significance (p < 0.05) for TFF, TFD, and FC oculomotor parameter. Consequently, this study focused on TFF, TFD, and FC, and each scene of interest was analyzed. The mean values of the oculomotor parameters for differently positioned scenes are shown in Table 19, Table 20 and Table 21.
Table 19.
Mean values of eye-movement parameters of the area of interest (AOI) for eight scenes at the street level.
Table 20.
Summary of mean values of eye-movement parameters of the area of interest (AOI) for the nine scenes at the turn.
Table 21.
Summary of mean values of eye-movement parameters for the area of interest (AOI) for the eight scenes at the exit.
By analyzing the meanings and data of the four oculomotor parameters at different locations, we determined that, in the experiment of the street scene, the visual saliency was more significant when the guide signs were set at ② (upper-middle) and ④ (middle-left) of the visual area, and less significant when the guide signs were set at ⑧ (lower-middle) and ③ (upper-right) of the visual area.
In the experiment of the turning-point scene, the visual significance was more significant when the guide signs were set in the visual area of ⑤ (middle) and ② (upper-middle) and less significant when the guide signs were set at ⑧ (lower-middle) and ③ (top-right).
In the experiment of the exit scene, the visual saliency was more significant when the guide signs were set at ② (upper-middle), ④ (middle-left), and ⑥ (middle-right) of the visual area, and less significant when the guide signs were set at ⑧ (lower-middle) and ③ (top-right) of the visual area.
4.2. Experiment 2: Analysis of the Effect of Height Factors on the Results
Since this experiment investigated the effect of differences in the height settings of guide signs on visual saliency, the analysis of the results of this experiment was conducted only for the eye-movement parameter data of the six experimental scenes (that is, no visual hotspot map analysis was involved). The four eye-movement parameters were first subjected to chi-square analysis (p > 0.05). Then, the variance test was performed to remove TFD and FC, which showed saliency (p < 0.05), and the two eye-movement indicators TFF and FFD, which would not show saliency (p > 0.05), were used for the parameter analysis (Table 22). The parameters of the eye-movement data and the matched heights for the area of interest are shown in Figure 4.
Table 22.
The mean value of the AOI eye-movement parameters of each scene in height setting was summarized.
Figure 4.
Mean value sorting of eye-movement parameters in six scenes with the height variable.
5. Discussion
5.1. Research Innovation
This study is related to the established studies, yet different from those conducted previously. As stated by Zahabi M. et al. [37] in their study, firstly, this study included a one-way ANOVA analysis of the specific influencing factors of visual saliency of guide signs with the help of a questionnaire. Following the method of Chen et al. [38], we constructed the index system of factors influencing visual saliency of guide signs in underground commercial streets, and used an eye-movement experiment [39] to test and study the factors influencing visual saliency. Unlike the hypothesis of Zhe Zhang et al., 2022 [13] stating that the “font size” and “angle” were the factors influencing the visual saliency of guide signs, this paper classified guide signs according to the spatial environment characteristics of underground commercial streets and the behavior and needs of people. In this paper, the visual prominence of guide signs was studied in detail to provide more accurate suggestions for the orientation and wayfinding of underground commercial street users. Since guide signs have the greatest impact on wayfinding performance [27] and can influence wayfinding decisions based on the spatial relationship between their function and target location [40], this paper learns from Hölscher et al.’s (2006) [41] centroid wayfinding strategy to improve wayfinding performance by enhancing the visual saliency of the location and height of guide signs.
Although the impact of guide signs on visual saliency has been addressed in previous studies, these studies have mostly been biased towards traffic as well as to the street level [37,42,43]. This study changed the study area to an underground commercial street, and the study object was specific to the design and setting of the guide signs themselves, breaking the boundaries of this line of research. In addition, Combined with the existing studies, it is found that the current research methods for underground commercial street guide signs are mostly stuck in traditional cognitive experimental methods (e.g., spatial notation method [14,44], natural statistics method [37], etc.), which is difficult to provide objective descriptions of relevant research data and results. This study combines the scene modeling of a real completed commercial street prototype and experiments with VR and eye-tracking technology to help researchers more objectively control the visual recognition of guidance signs by underground commercial street audiences, in order to help designers better understand the fit between the design and actual use of guidance signs.
5.2. Limitations and Future Directions
- First, as it is difficult to strictly control the experimental conditions in a real-world environment, laboratory tests were used, and the interaction between different conditions in a real-world environment and their potential effects on visual saliency were not observed in the current study. The results of this study should be combined with real-world experiments in future research and the results should be sought to be applied in practice.
- Second, due to the constraints of the experimental equipment and conditions, it is difficult to carry out experiments on the influence of wayfinding, and the experiments are therefore theoretical. In the future, we aim to conduct offline experiments on wayfinding, and then apply them to the design and optimization of underground commercial street guide signs after being verified in practice.
- Third, all participants in this study were college students, and their ages ranged from 18 to 28 years old. People’s eye-movement data may vary according to age and gender differences and it remains to be verified whether the conclusions can be generalized to different groups. Therefore, future studies aimed at analyzing the differences between different populations (men and women, older and younger people, and special groups) are needed.
In summary, this paper has verified that the visual saliency level of guide signs is related to the spatial location, structural design, and information content design of the signs. In the future, we will conduct more research on the design and wayfinding effect of underground commercial street guide signs, so as to improve the efficiency of the underground commercial street and promote sustainable development.
6. Conclusion and Suggestion
6.1. Conclusions
The current study used guide signs for subterranean commercial streets in Jiangsu to investigate the impact of these signs on visual saliency, which has previously been found to aid underground commercial street individuals in achieving orientation and wayfinding. The results revealed several main findings:
- First, the visual saliency of the underground commercial street guide signs is influenced by the spatial location setting, structural design, and information content design. The spatial location setting had the most significant influence, the structural design had the second greatest effect, and the information content design had the most negligible impact.
- Second, The experimental study on the location of guide signs revealed that the visual significance of guide signs in different locations of the visual area in the important node space where the underground commercial street people have the need for guidance differs. At street level, the visual saliency of guide signs is greater when they are located in the upper-middle and middle-left of the visual area, and less when they are located in the lower-middle and top-right; at the turnaround, the visual saliency of guide signs is greater when they are located in the middle and upper-middle of the visual area, and less when they are located in the lower-middle and top-right; at the exit, the visual saliency of guide signs is greater when they are located in the upper-middle, middle-left and middle-right of the visual area, and less when they are located in the lower-middle and top-right.
- Third, After the experimental study on the setting height of the guide signs, it was found that among the six scenarios of the setting height factor, the visually salient heights of the guide signs ranged from 2.56 m to 2.75 m and 3.12 m to 3.31 m; the visually salient heights ranged from 3.50 m to 3.69 m.
6.2. Suggestions for Design
From the above study, we can make the following suggestions for underground commercial street guide sign design:
- First, in order to achieve the best visual saliency and then obtain the maximum effect of guide signs, the setting of guide signs in underground commercial streets should give priority to the spatial location setting.
- Second, regarding the location of the underground commercial street guide signs, they should be set at the important nodes in the underground commercial street where people have the need for guidance—at the street, at the turn, at the exit—and priority should be given to the upper and middle positions of the underground commercial street space nodes. Try to avoid setting at the bottom-right and top-left of the space node
- Combined with the human visual law of the above experimental results can be analyzed, the human eye in the process of observing objects, the human eye preference from top to bottom, from left to right of the law of motion, and in the process of looking around for observation is used to follow the clockwise direction of rotation. Therefore, in the arrangement of guide signs set to follow this law, the above experimental results are also consistent with this law.
- In addition, human vision moves more rapidly in the horizontal direction than in the vertical direction, and slower in the vertical direction, so it is easier to make people feel fatigue. Under the premise of this law, for the guide signs, the horizontal signs are more easily recognized and less prone to errors than the vertical ones.
- Third, regarding the height setting of underground commercial street guide signs, they should be set within a reasonable viewpoint range according to the visual characteristics of the underground commercial street, and priority should be given to the layout in the range of 2.56~2.75 m and 3.12~3.31 m. Try to avoid arranging the height in the range of 3.50~3.69 m.
In short, in the process of setting the space location of guide signs, the, location and other aspects of the setting should be fully considered in order to generate the maximum benefit in terms of wayfinding, to improve the effectiveness of underground commercial street guide signs.
Author Contributions
Conceptualization, L.S. and Y.X.; Data curation, L.S.; Formal analysis, Y.X. and B.W.; Funding acquisition, L.S.; Investigation, S.T., M.L. and S.D.; Methodology, S.T.; Project administration, L.S. and M.L.; Resources, S.T.; Software, Y.X., B.W. and S.D.; Visualization, M.L.; Writing—original draft, Y.X. and S.T.; Writing—review and editing, Y.X. and B.W. All authors have read and agreed to the published version of the manuscript.
Funding
This research was part of the project called “Research on the key problems of quantitative evaluation of environmental quality of urban underground streets” funded by the International Science and Technology Cooperation Fund of the Jiangsu Collaborative Innovation Center for Building Energy Saving and Construction Technology, grant number SJXTGJ2102.
Institutional Review Board Statement
Not applicable.
Informed Consent Statement
Not applicable.
Data Availability Statement
Not applicable.
Conflicts of Interest
The authors declare no conflict of interest.
References
- Hane, T.; Muro, K.; Sawada, H. Psychological factors involved in establishing comfortable underground environments. In Proceedings of the 4th International Conference on Underground Space and Earth Sheltered Buildings: Urban Underground Utilization, Tokyo, Japan, 3–5 December 1991; pp. 480–492. [Google Scholar] [CrossRef]
- Wada, Y.; Sakugawa, H. Psychological effects of working underground. Tunn. Undergr. Space Technol. 1990, 5, 33–37. [Google Scholar] [CrossRef]
- Chen, J.; Li, X.; Gu, K. Probe into Interior Environment Optimizations of Underground Commercial Mall. Chin. J. Undergr. Space Eng. 2009, 5, 635–639. [Google Scholar] [CrossRef]
- Zhang, Z. Person-oriented and user-friendly design on underground public space. Urban Probl. 2007, 14–19. [Google Scholar] [CrossRef]
- Ringstad, A. Perceived danger and the design of underground facilities for public use. Tunn. Undergr. Space Technol. 1994, 9, 5–7. [Google Scholar] [CrossRef]
- Ma, X. The Design of Guide-Sign System in Underground Spaces; Tianjin University: Tianjin, China, 2009. [Google Scholar] [CrossRef]
- Kim, Y.-C.; Baek, S.-H.; Bae, Y.-H.; Oh, R.-S.; Choi, J.-H. Evaluation of the Effective Cognition Area (ECA) of Signage Systems with Backlighting under Smoke Conditions. Sustainability 2022, 14, 4057. [Google Scholar] [CrossRef]
- Bian, Z.; Luan, H. Research on the design of guiding signs in underground space. City Geogr. 2014, 176. [Google Scholar] [CrossRef]
- Li, Q. Optimal Design of Underground Garage Sign System in Chengdu New Century Global Center. In Proceedings of the 2017 3rd International Conference on Economics, Social Science, Arts, Education and Management Engineering (ESSAEME 2017), Huhhot, China, 29–30 July 2017. [Google Scholar] [CrossRef]
- Long, Y. Research on the application of regional graphic language in metro visual Guidance System. Art Sci. Technol. 2018, 31, 49. [Google Scholar] [CrossRef]
- López, G.; de Oña, J.; Garach, L.; Baena, L. Influence of deficiencies in traffic control devices in crashes on two-lane rural roads. Accid. Anal. Prev. 2016, 96, 130–139. [Google Scholar] [CrossRef]
- Liu, T. Ergonomic design of subway static guidance sign system. Art Sci. Technol. 2015, 28, 162. [Google Scholar] [CrossRef]
- Zhang, Z.; Qin, Y.; Jia, L. Discrete modeling approach for emergency guidance signage system design in underground spaces: A case study in transportation hubs. Tunn. Undergr. Space Technol. 2022, 120, 104275. [Google Scholar] [CrossRef]
- Lei, B.; Xu, J.; Li, M. Enhancing role of guiding signs setting in metro stations with incorporation of microscopic behavior of pedestrians. Sustainability 2019, 11, 6109. [Google Scholar] [CrossRef]
- Lu, H.; Shang, T.; Wei, Y.; Wu, P. Safety Assessment of Exit Advance Guide Signs in Mountainous Highway Tunnel Based on Eye-Tracking Technology. Ieee Access 2021, 9, 111315–111325. [Google Scholar] [CrossRef]
- Jing, Z.; Bai, W. Sign Optimization Model for Rail Transit A Big Data Approach. IEEE Access 2020, 8, 81660–81673. [Google Scholar] [CrossRef]
- Zheng, Y. Study on Barrier-free Identifiability of Guiding Sign System Design in Underground Commercial Space. J. Anhui Agric. Sci. 2011. [Google Scholar] [CrossRef]
- Xing, C. Effects of anger and sadness on attentional patterns in decision making: An eye-tracking study. Psychol. Rep. 2014, 114, 50–67. [Google Scholar] [CrossRef]
- Ludwig, J.; Jaudas, A.; Achtziger, A. The role of motivation and volition in economic decisions: Evidence from eye movements and pupillometry. J. Behav. Decis. Mak. 2020, 33, 180–195. [Google Scholar] [CrossRef]
- Mikalef, P.; Sharma, K.; Pappas, I.O.; Giannakos, M.N. Online reviews or marketer information? An eye-tracking study on social commerce consumers. In Proceedings of the Conference on e-Business, e-Services and e-Society, Delhi, India, 21–23 November 2017; pp. 388–399. [Google Scholar] [CrossRef]
- Du, Z.; Jiang, X.; Pan, X. Guide Sign’s Visual Interference Experiment on Urban Road. In Proceedings of the ICTIS 2011: Multimodal Approach to Sustained Transportation System Development: Information, Technology, Implementation, Wuhan, China, 30 June–2 July 2011; pp. 1010–1018. [Google Scholar] [CrossRef]
- Kiefer, P.; Giannopoulos, I.; Raubal, M. Where am I? Investigating map matching during self-localization with mobile eye tracking in an urban environment. Trans. GIS 2014, 18, 660–686. [Google Scholar] [CrossRef]
- Schrom-Feiertag, H.; Settgast, V.; Seer, S. Evaluation of indoor guidance systems using eye tracking in an immersive virtual environment. Spat. Cogn. Comput. 2017, 17, 163–183. [Google Scholar] [CrossRef]
- Ma, X.; Zhou, J.; Gong, J.; Huang, L.; Li, W.; Zou, Y. VR Eye-Tracking Perception Experiment and Layout Evalution for Indoor Emergency Evacuation Signs. J. Geogr. Inf. Sci. 2019, 21, 1170–1182. [Google Scholar] [CrossRef]
- Ma, M.; Gong, J.; Li, W.; Huang, L.; Ma, X.; Li, Y. Layout Optimization of the Directional Emergency Evacuation Signs Based on Virtual Re-ality Eye-Tracking Experiment. Wuhan Daxue Xuebao Xinxi Kexueban 2020, 45, 1386–1394. [Google Scholar] [CrossRef]
- Fang, Y.; Zhang, W.; Hu, H.; Zhou, J.; Xiao, D.; Li, S. Adaptive Aging Safety of Guidance Marks in Rail Transit Connection Systems Based on Eye Movement Data. Int. J. Environ. Res. Public. Health 2022, 19, 725. [Google Scholar] [CrossRef] [PubMed]
- Holscher, C.; Buchner, S.J.; Brosamle, M.; Meilinger, T.; Strube, G. Signs and maps–cognitive economy in the use of external aids for indoor navigation. In Proceedings of the Annual Meeting of the Cognitive Science Society, Nashville, TN, USA, 1–4 August 2007. [Google Scholar]
- Conroy, R. Spatial Navigation in Immersive Virtual Environments; University of London, University College London (United Kingdom): London, UK, 2001; Available online: https://researchportal.northumbria.ac.uk/en/publications/spatial-navigation-in-immersive-virtual-environments (accessed on 20 November 2022).
- Vilar, E.; Rebelo, F.; Noriega, P. Indoor human wayfinding performance using vertical and horizontal signage in virtual reality. Hum. Factors Ergon. Manuf. Serv. Ind. 2014, 24, 601–615. [Google Scholar] [CrossRef]
- Vilar, E.; Rebelo, F.; Noriega, P.; Duarte, E.; Mayhorn, C.B. Effects of competing environmental variables and signage on route-choices in simulated everyday and emergency wayfinding situations. Ergonomics 2014, 57, 511–524. [Google Scholar] [CrossRef] [PubMed]
- Mantovani, G.; Gamberini, L.; Martinelli, M.; Varotto, D. Exploring the suitability of virtual environments for safety training: Signals, Norms and Ambiguity in a Simulated Emergency Escape. Cogn. Technol. Work. 2001, 3, 33–41. [Google Scholar] [CrossRef]
- Kiefer, P.; Straub, F.; Raubal, M. Location-aware mobile eye tracking for the explanation of wayfinding behavior. In Proceedings of the AGILE’2012 International Conference on Geographic Information Science, Avignon, France, 24–27 April 2012; Available online: https://www.researchgate.net/publication/258277387_Location-Aware_Mobile_Eye_Tracking_for_the_Explanation_of_Wayfinding_Behavior (accessed on 20 November 2022).
- Shi, Y.; Zhang, Y.; Wang, T.; Li, C.; Yuan, S. The Effects of Ambient Illumination, Color Combination, Sign Height, and Observation Angle on the Legibility of Wayfinding Signs in Metro Stations. Sustainability 2020, 12, 4133. [Google Scholar] [CrossRef]
- Hölscher, C.; Meilinger, T.; Vrachliotis, G.; Brösamle, M.; Knauff, M. Finding the way inside: Linking architectural design analysis and cognitive processes. In Proceedings of the International Conference on Spatial Cognition, Frauenchiemsee, Germany, 11–13 October 2004; pp. 1–23. [Google Scholar] [CrossRef]
- Jin, M.; Zhang, J.; Cui, S. Research on comprehensive evaluation of data link based on G1 method and entropy weight method. J. Phys. Conf. Ser. 2021, 1820, 012115. [Google Scholar] [CrossRef]
- Zhao, H.; Wang, Y.; Liu, X. The evaluation of smart city construction readiness in China using CRITIC-G1 method and the Bonferroni operator. IEEE Access 2021, 9, 70024–70038. [Google Scholar] [CrossRef]
- Zahabi, M.; Pankok, C., Jr.; Kaber, D.B.; Machado, P.; Lau, M.Y.; Hummer, J.E.; Rasdorf, W. On-road visual sign salience, driver attention allocation, and target detection accuracy. Transp. Res. Rec. 2017, 2663, 40–47. [Google Scholar] [CrossRef]
- Chen, S.; Zhang, X. Evaluation index system for disaster prevention signs in urban shelters in china. Fire Sci. Eng. 2016, 30, 81–85. [Google Scholar] [CrossRef][Green Version]
- Henderson, J.M.; Brockmole, J.R.; Castelhano, M.S.; Mack, M. Visual saliency does not account for eye movements during visual search in real-world scenes. Eye Mov. 2007, 537–562, III. [Google Scholar] [CrossRef]
- Frankenstein, J.; Brüssow, S.; Ruzzoli, F.; Hölscher, C. The language of landmarks: The role of background knowledge in indoor wayfinding. Cogn. Process. 2012, 13, 165–170. [Google Scholar] [CrossRef] [PubMed]
- Hölscher, C.; Meilinger, T.; Vrachliotis, G.; Brösamle, M.; Knauff, M. Up the down staircase: Wayfinding strategies in multi-level buildings. J. Environ. Psychol. 2006, 26, 284–299. [Google Scholar] [CrossRef]
- Simon, L.; Tarel, J.-P.; Brémond, R. Alerting the drivers about road signs with poor visual saliency. In Proceedings of the 2009 IEEE Intelligent Vehicles Symposium, Xi’an, China, 3–5 June 2009; pp. 48–53. [Google Scholar] [CrossRef]
- Zhang, T.; Lv, J.; Yang, J. Road sign detection based on visual saliency and shape analysis. In Proceedings of the 2013 IEEE International Conference on Image Processing, Melbourne, VIC, Australia, 15–18 September 2013; pp. 3667–3670. [Google Scholar] [CrossRef]
- Li, Q.; Jiang, F.; Zhang, M.; Xie, Y.; Wei, L. Study on the Sign System of Underground Garage in Large Commercial Complex—Take Sign System of Underground Garage in Chengdu New Century Global Center as an Example. In Proceedings of the 2017 5th International Civil Engineering, Architecture and Machinery Conference (ICEAMC 2017), Dalian, China, 5–6 August 2017; pp. 10–15. [Google Scholar] [CrossRef]
Publisher’s Note: MDPI stays neutral with regard to jurisdictional claims in published maps and institutional affiliations. |
© 2022 by the authors. Licensee MDPI, Basel, Switzerland. This article is an open access article distributed under the terms and conditions of the Creative Commons Attribution (CC BY) license (https://creativecommons.org/licenses/by/4.0/).

























































































































