Sustainability Assessment of the National Museum of Egyptian Civilization (NMEC): Environmental, Social, Economic, and Cultural Analysis
Abstract
1. Introduction
2. Materials and Methods
3. The Case Study and Scope of Work
4. Museums and Sustainability
4.1. History of the National Museum of Egyptian Civilization Development
4.2. NMEC Information
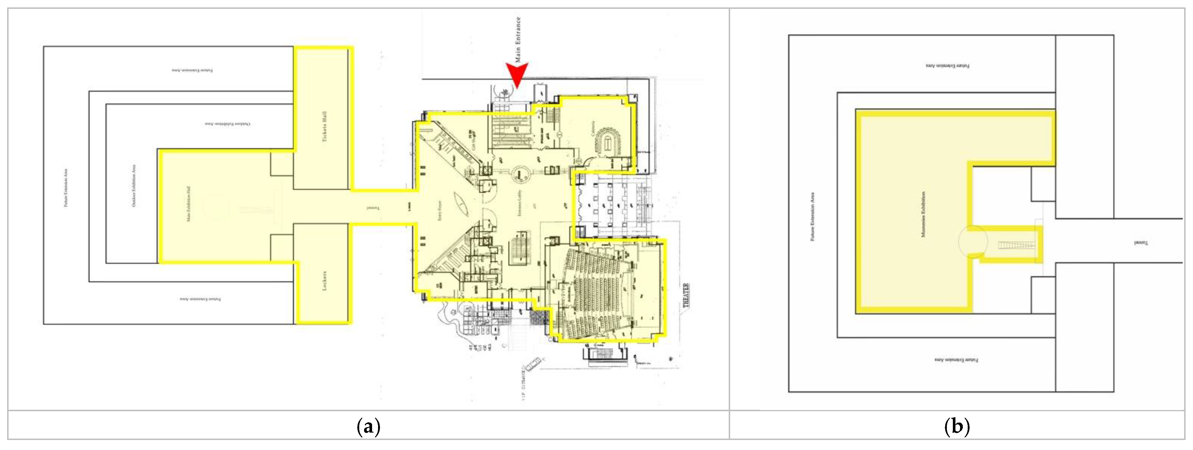
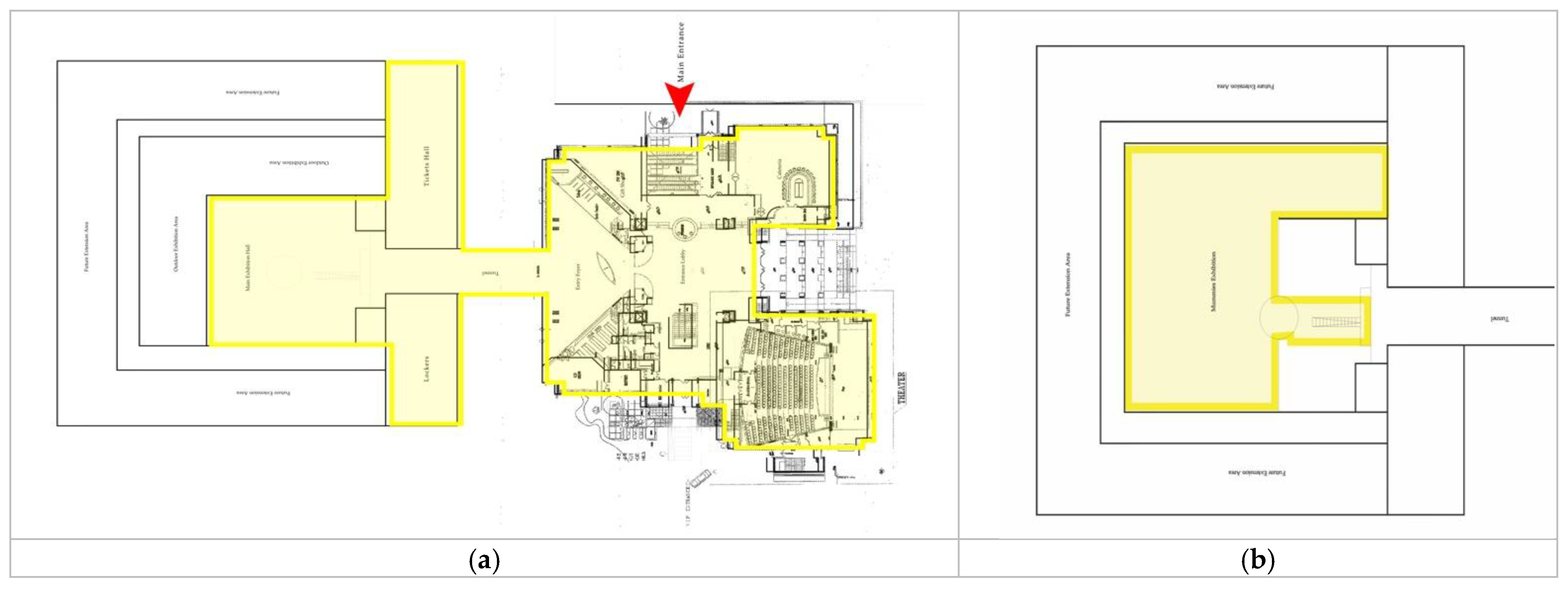
4.3. Representation Analysis of the Building and Site
5. Assessment of Sustainability
5.1. Environmental Sustainability
Energy Audit
5.2. Social Sustainability
5.2.1. Occupancy Pattern (Visitors and Staff)
5.2.2. Community Welfare and Participation
5.2.3. Education (Including Awareness, Values, Research, and Learning Tools)
5.3. Economic Sustainability
5.4. Cultural Sustainability
5.4.1. Built Heritage, Cultural Heritage, and Adaptive Regeneration
5.4.2. Built Heritage, Cultural Heritage, and Digital Cultural Heritage
5.4.3. Agenda 2030, SCH, and Cultural Sustainability
- Goal/target 4.7 “By 2030, ensure that all learners acquire the knowledge and skills necessary to promote sustainable development through contribution of culture to sustainable development”;
- Goal/target 8.9 “Conceive and implement by 2030 policies to promote sustainable tourism that creates jobs and promotes local culture and products”;
- Goal/target 11.4 “Strengthen efforts to protect and safeguard the world’s cultural and natural heritage”; and
- Goal/target 12.9 “Develop and implement tools to monitor the impacts of sustainable development for sustainable tourism, which creates jobs and promotes local culture and products”.
5.4.4. The Cultural Sustainability of the NMEC
5.4.5. The PLACE Issue—About the NMEC Location and the Environment
Pharaohs’ Golden Parade
5.4.6. The PEOPLE Issue—About the Communities in and around the Museum
- The NMEC organizes monthly events in the theater and outside the museum building that take place in the large garden near the lake (public/private). Some events are organized by the NMEC management and others by private companies. For public events, visitors can attend, but not for private ones.
- Among the surrounding landscape and gardens, the man-made island located around Ain Elsira Lake hosts many social and cultural events and act as an aesthetic addition to the NMEC landscape area (Figure 17 and Figure A1 in Appendix B).
- The NMEC hosts the official opening of the World Art Forum (WAF) first edition ‘A Symposium of Art and Sustainability’. The event, held on 15 January 2022, was organized in collaboration with the United Nations Office in Egypt. The WAF art fair was opened to the public from 16–19 January 2022 (Figure A2 Appendix B)).
5.4.7. The Relationship between the Place and the People Issue
6. Assessment of the NMEC Social and Cultural Impacts
7. Results
7.1. Environmental Sustainability Results
7.2. Social Sustainability Results
7.3. Economic Sustainability Results
7.4. Culture Sustainability Results
7.5. Sustainability Dimensions and Indicators’ Values
8. Discussion
9. Conclusions
Author Contributions
Funding
Institutional Review Board Statement
Informed Consent Statement
Data Availability Statement
Acknowledgments
Conflicts of Interest
Appendix A
| No. | Indicator | Optimum | Sustainability Dimension |
|---|---|---|---|
| 1 | State of conservation: the proportion of objects conserved perfectly (%) | Maximum | Cultural (collection storage, conservation, and research) |
| 2 | Storage conditions: the proportion of collections stored in appropriate conditions (%) | ||
| 3 | The degree of heritage research: the proportion of objects pertaining to which the documentation is complete (%) | ||
| 4 | Meeting the microclimate conditions: the number of days in which there were no deviations from the optimum microclimate parameter/365 (%) | ||
| 5 | The degree of exhibiting: (the number of objects exhibited per year x the number of days of exhibition/(the number of heritage objects x365) (%) | Maximum | Social and cultural |
| 6 | Online visibility: number of mentions of the museum on Google/number of objects in the collection | ||
| 7 | Extension outside the main premises: (number of objects exhibited outside the main premises x number of days of exhibition)/(total number of objects not exhibited at the main premises x365) (%) | ||
| 8 | Extension on the market: the percentage of the number of objects lent to other institutions from total of objects not exhibited (%) | Maximum | Social and economic |
| 9 | Events organized annually | ||
| 10 | Attractiveness of the museum’s collections: number of visitors/objects exhibited | ||
| 11 | Assessment of the museum by visitors: No. of positive impressions/total number of impressions written by visitors in the guestbook, in a year (%) | ||
| 12 | Ratio of young and old staff: ratio of staff who are in the first 10 years of their career (%) | ||
| 13 | Online accessibility of the collection: number of objects expressed as a percentage from the whole collection published online (%) | ||
| 14 | Labor productivity 1: number of events/number of staff | Maximum | Social and economic |
| 15 | Labor productivity 2: number of temporary exhibitions/staff | ||
| 16 | Labor productivity 3: number of visitors/number of staff | ||
| 17 | Labor productivity 4: number of online unique visitors per year/staff | ||
| 18 | Efficiency of the financial resource use: number of visitors/total expenses | ||
| 19 | Efficiency of material resource use: number of visitors/exhibition area | ||
| 20 | Attractiveness of museum’s electronic resources: number of online unique visitors yearly/number of posts | ||
| 21 | Voluntary involvement: number of hours worked by volunteers per year/number of volunteers | Minimum | Natural environment (using the resources as efficiently as possible) |
| 22 | Capital productivity: earned income/total objects exhibited per year | ||
| 23 | Consumption of financial resources: objects exhibited per year./total expenses | ||
| 24 | Consumption of electricity: consumption of electricity/museum’s area | ||
| 25 | Consumption of thermal energy: consumption of thermal energy/museum’s area | ||
| 26 | Consumption of water: consumption of water/(staff + volunteers + unique visitors on the main premises) | ||
| 27 | Consumption of consumables: expenses for consumable office materials (ink cartridges, stationery, files, etc.)/number of staff and volunteers | ||
| 28 | Consumption of fuel: consumption of fuel/number of external events | ||
| 29 | Labor productivity 5 (value): earned income/number of staff | Maximum | Economic (efficiency, economic impact on the community) |
| 30 | The capacity of self-financing: earned income/total income (%) | ||
| 31 | Quantitative liquidity of merchandise (calculated individually for each type of products): annual merchandise sales (pcs.)/quantities manufactured or purchased (pcs.) (%) | ||
| 32 | Value liquidity of merchandise: annual income from merchandise sales/value of stored merchandise | ||
| 33 | Correlation between the number of tourists from the city or area and the number of visitors of the museum (this measures the museum’s contribution to the economic development of the area) |
| Energy Consupmtion | ||||||||||||||||||||||||
|---|---|---|---|---|---|---|---|---|---|---|---|---|---|---|---|---|---|---|---|---|---|---|---|---|
| Zone | No. | Working Hours | Lighting | HVAC | Equipment & Apparatus | |||||||||||||||||||
| Floor | Hrs/day (Sun-Thur) | Hrs/Day (Fri-Sat) | Evening Events 1 Day | Days/wk | Hrs/wk | Hrs/month | Hrs/yr. | Light Type | No. | Power/lamp (W) | Power (W) | Energy use (kWh) | Cooling type | No. | Power (W) | Energy use (kWh) | Security Devices | No. | Power/unit (w) | Power (W) | Energy use (kWh) | |||
| Ground floor | Entrance Hall & main entrance | 1 | FL01 | 10 | 14 | 7 | 78 | 312 | 3744 | 90 LED compact Lamp spotlights 40 LED compact Lamp spotlights | 90 40 | 26 26 | 2.340 1.040 | 8760.96 3893.76 | Carier Central AC (chilled water) | 2 | 11,190 | 78,419.52 | 3 Security cameras 2 X-ray gates 10 Sound speakers 2 Wi-Fi devices | 3 2 10 2 | 2 1000 100 20 | 0.006 2.0 1.0 0.04 | 22.464 7488.00 3744.00 149.76 | |
| Side Hall 1 | 1 | FL01 | 9 | 12 | 7 | 73 | 292 | 3504 | 40 LED Lamp spotlights | 40 | 26 | 1.04 | 3644.16 | 1 Smart display device 12 Sound speakers 1 Wi-Fi device 4 Security cameras | 1 12 1 4 | 80 100 20 2 | 0.08 0.120 0.02 0.008 | 280.32 420.48 70.08 28.032 | ||||||
| Side Hall 2 | 1 | FL01 | 9 | 12 | 7 | 73 | 292 | 3504 | 40 LED Lamp spotlights | 40 | 26 | 1.04 | 3644.16 | 1 Smart display device 12 Sound speakers 1 Wi-Fi device 4 Security cameras | 1 12 1 4 | 80 100 20 2 | 0.08 0.120 0.02 0.008 | 280.32 420.48 70.08 28.032 | ||||||
| Staff corridor | 2 | FL01 | 9 | 7 | 63 | 252 | 3024 | 6 LED Lamp spotlights | 6 | 26 | 0.156 | 967.68 | 1 Security camera | 1 | 2 | 0.002 | 12.10 | |||||||
| Admin offices | 6 | FL01 | 9 | 7 | 63 | 252 | 3024 | 12 LED Lamp spotlights | 12 | 26 | 0.312 | 5660.93 | 2 Desktop computers 1 Printer | 2 1 | 100 135 | 0.2 0.135 | 3628.80 2449.44 | |||||||
| Gift shop | 1 | FL01 | 9 | 9 | 7 | 63 | 252 | 3024 | 128 LED Lamp spotlights 56 LED display spotlights 8 Track-light directed spotlights | 128 56 8 | 26 4 12 | 3.328 0.224 0.096 | 10,063.87 677.38 290.30 | 1 Cashier 1 Desktop computer 4 Security cameras 32 Sound system speakers | 1 1 4 32 | 100 100 2 100 | 0.1 0.1 0.008 3.2 | 302.40 302.40 24.19 9676.80 | ||||||
| Toilets | 6 | FL01 | 9 | 12 | 7 | 73 | 292 | 3504 | 10 LED Lamps 6 Small LED spotlights | 10 6 | 26 9 | 0.260 0.054 | 5466.24 1135.30 | 2 Hand dryers | 2 | 1240 | 2.48 | 52,139.52 | ||||||
| Reception hall | 1 | FL01 | 9 | 12 | 7 | 73 | 292 | 3504 | 80 LED Lamp spotlights | 80 | 26 | 2.08 | 7288.30 | 2 Escalators 2 Elevators 16 Sound speakers 2 Smart display devices 2 LCD screens | 2 2 16 2 2 | 250 350 100 80 120 | 0.5 0.7 1.6 0.160 0.240 | 1752.00 2452.80 5606.40 560.64 840.96 | ||||||
| Cafeteria | 1 | FL01 | 9 | 9 | 7 | 63 | 252 | 3024 | 97 LED Lamp spotlights | 97 | 26 | 2.522 | 7626.53 | 1 Display fridge 1 Fridge 1 Electric boiler 1 Microwave 1 Coffee machine 1 Horizontal deep freezer 29 Sound speakers 1 Cashier 1 Visa payment machine 1 Router | 1 1 1 1 1 1 29 1 1 1 | 350 350 1500 1200 1300 145 100 100 4 20 | 0.350 0.350 1.5 1.2 1.3 0.145 2.9 0.1 0.004 0.02 | 1058.40 1058.40 4536.00 3628.80 3931.20 438.48 8769.60 302.40 12.096 60.48 | ||||||
| Tube Corridor | 1 | FL01 | 9 | 9 | 7 | 63 | 252 | 3024 | 16 LED Lamps (each 1.1m long) | 16 | 26 | 0.416 | 1257.98 | Carier Central AC (chilled water) | 2 | 2238 | 14,824.51 | 2 Security camera | 2 | 2 | 0.004 | 12.096 | ||
| Tickets' Hall | 1 | FL01 | 9 | 9 | 7 | 63 | 252 | 3024 | 75 LED Lamp spotlights | 75 | 26 | 1.95 | 5896.80 | 2 Security cameras 8 Sound speakers 3 LCD screens 1 Cashier 2 Visa payment machines | 2 8 3 1 2 | 2 100 120 100 4 | 0.004 0.8 0.360 0.1 0.008 | 12.096 2419.20 1088.64 302.4 24.19 | ||||||
| Lockers' Hall | 1 | FL01 | 9 | 12 | 7 | 69 | 276 | 3312 | 70 LED Lamp spotlights | 70 | 26 | 1.82 | 6027.84 | 8 Sound speakers 3 Security cameras | 8 3 | 100 2 | 0.8 0.006 | 2649.60 19.872 | ||||||
| Services' room | 1 | FL01 | 9 | 7 | 63 | 252 | 3024 | 12 LED Lamp spotlights | 12 | 26 | 0.312 | 943.49 | ||||||||||||
| Pre-main Exhibition Hall | 1 | FL01 | 9 | 12 | 7 | 69 | 276 | 3312 | 158 LED lamps spotlights | 158 | 26 | 4.108 | 13,605.59 | Carier Central AC (chilled water) | 1 | 14,920 | 49,415.04 | 2 Smart display screens 1 LED screen (4.4 m × 3.0 m) 4 Security cameras 7 Smart tickets scanners (gates) 1 Recycling vending machine | 2 1 4 7 1 | 120 120 2 3 20 | 0.24 0.12 0.008 0.21 0.2 | 794.88 397.44 26.49 695.52 662.40 | ||
| Main Exhibition Hall | 1 | FL01 | 9 | 12 | 7 | 69 | 276 | 3312 | 187 LED Lamp spotlights 26 Track-light directed spotlights 35 Ancient light with Florescent bulbs 240 LED display spotlights 30 LED Bar/m | 187 26 35 240 30 | 26 30 12 4 20 | 4.862 0.780 0.420 0.960 0.600 | 16,102.94 2583.36 1391.04 3179.52 1987.20 | 4 Smart display devices 8 LCD screens 6 Security cameras 8 Large sound speakers 3 Wi-Fi devices | 4 8 6 8 3 | 80 120 2 20 20 | 0.32 0.96 0.012 0.16 0.06 | 1059.84 3179.52 39.75 529.92 198.72 | ||||||
| Theatre | 1 | FL01 | 4 | 1 | 4 | 16 | 192 | 12 LED Lamp - side spotlights 72 LED Spotlights 24 Backside spotlights 5 Back spotlights 5 Corridor spotlights 3 Large directed spotlights 3 Large spotlights - Stage 16 Small corner Spotlights | 12 72 24 5 5 3 3 16 | 26 26 26 20 20 30 30 12 | 0.312 1.872 0.624 1.00 1.00 0.09 0.09 0.192 | 59.904 359.424 119.808 192 192 17.28 17.28 36.864 | Carier Central AC (chilled water) | 2 | 11,190 | 4296.96 | 2 Sound systems 3 Microphones 8 Amplifiers 45 Sound speakers | 2 3 8 45 | 10 60 20 10 | 0.02 0.18 0.16 0.45 | 3.84 34.56 30.72 86.40 | |||
| Sub-total | 112,242.40 | Sub-total | 146,956.03 | Sub-total | 131,148.03 | |||||||||||||||||||
| Total (kWh) | 390,346.46 | |||||||||||||||||||||||
| Energy Consupmtion | ||||||||||||||||||||||
| Zone | No. | Working Hours | Lighting | HVAC | Equipment & Apparatus | |||||||||||||||||
| Floor | Hrs/Day | Days/Wk | Hrs/Wk | Hrs/Month | Hrs/Y | Light Type | Power/Lamp (W) | Power (W) | Energy Use (kWh) | Cooling Type | No. | Power (W) | Energy Use (kWh) | Security Devices | No. | Power/Unit (W) | Power (W) | Energy Use (kWh) | ||||
| Mummies floor | Mummies Hall 01 | 1 | FL00 | 9 | 6 | 54 | 216 | 2592 | 7 LED spotlights 3 Floor Spotlight 3 Display LED light | 26 4 4 | 0.182 0.012 0.012 | 471.7 31.104 31.104 | Carier Central AC (Chilled water) | 2 | 14,920 | 77,345.28 | 2 Security cameras 3 Sound speakers | 2 3 | 2 100 | 0.004 0.3 | 10.368 777.6 | |
| Mummies Hall 02 | 1 | FL00 | 9 | 6 | 54 | 216 | 2592 | 22 LED spotlights 12 Floor Spotlights 10 Display LED lights | 26 4 4 | 0.572 0.048 0.040 | 1482.6 124.4 103.68 | 2 Security cameras 3 Sound speakers | 2 3 | 2 100 | 0.004 0.3 | 10.368 777.6 | ||||||
| Mummies Hall 03 | 1 | FL00 | 9 | 6 | 54 | 216 | 2592 | 2 LED spotlights 4 Display LED lights | 26 4 | 0.052 0.108 | 134.7 279.9 | 1 Security camera 1 Sound speaker | 1 1 | 2 100 | 0.002 0.1 | 5.184 259.2 | ||||||
| Mummies Hall 04 | 1 | FL00 | 9 | 6 | 54 | 216 | 2592 | 6 LED spotlights 3 Floor spotlights 4 Display LED lights | 26 4 4 | 0.156 0.012 0.016 | 404.35 31.104 41.472 | 2 Security cameras 3 Sound speakers | 2 3 | 2 100 | 0.004 0.3 | 10.368 777.6 | ||||||
| Mummies Hall 05 | 1 | FL00 | 9 | 6 | 54 | 216 | 2592 | 5 LED spotlight 4 Display LED light | 26 4 | 0.130 0.016 | 336.96 41.472 | 2 Security cameras 3 Sound speakers | 2 3 | 2 100 | 0.004 0.3 | 10.368 777.6 | ||||||
| Mummies Hall 06 | 1 | FL00 | 9 | 6 | 54 | 216 | 2592 | 8 LED spotlights 5 Floor spotlights 14 Display LED lights | 26 4 4 | 0.208 0.020 0.056 | 539.136 51.84 145.152 | 2 Security cameras 3 Sound speakers | 2 3 | 2 100 | 0.004 0.3 | 10.368 777.6 | ||||||
| Mummies Hall 07 | 1 | FL00 | 9 | 6 | 54 | 216 | 2592 | 9 LED spotlight 6 Floor Spotlight 4 Display LED light | 26 4 4 | 0.234 0.024 0.016 | 606.528 62.208 41.472 | 2 Security cameras 3 Sound speakers | 2 3 | 2 100 | 0.004 0.3 | 10.368 777.6 | ||||||
| Mummies Hall 08 | 1 | FL00 | 9 | 6 | 54 | 216 | 2592 | 8 LED spotlight 6 Floor Spotlight 4 Display LED light | 26 4 4 | 0.208 0.024 0.016 | 539.136 62.208 41.472 | 2 Security cameras 3 Sound speakers | 2 3 | 2 100 | 0.004 0.3 | 10.368 777.6 | ||||||
| Mummies Hall 09 | 1 | FL00 | 9 | 6 | 54 | 216 | 2592 | 4 LED spotlights 5 Display LED lights | 26 4 | 0.104 0.020 | 269.568 51.84 | 2 Security cameras 2 Sound speakers | 2 2 | 2 100 | 0.004 0.3 | 10.368 777.6 | ||||||
| Mummies Hall 10 | 1 | FL00 | 9 | 6 | 54 | 216 | 2592 | 2 LED spotlights 4 Display LED lights | 26 4 | 0.052 0.016 | 134.784 41.472 | 2 Security cameras 3 Sound speakers | 2 3 | 2 100 | 0.004 0.3 | 10.368 777.6 | ||||||
| Mummies Hall 11 | 1 | FL00 | 9 | 6 | 54 | 216 | 2592 | 6 LED spotlights 5 Floor Lamps 8 Display LED spotlights | 26 4 4 | 0.156 0.020 0.032 | 404.352 51.84 82.944 | 2 Security cameras 3 Sound speakers | 2 3 | 2 100 | 0.004 0.3 | 10.368 777.6 | ||||||
| Mummies Hall 12 | 1 | FL00 | 9 | 6 | 54 | 216 | 2592 | 7 LED spotlights 4 Floor Lamps | 26 4 | 0.182 0.016 | 471.744 41.472 | 2 Security cameras 3 Sound speakers | 2 3 | 2 100 | 0.004 0.3 | 10.368 777.6 | ||||||
| Mummies Hall 13 | 1 | FL00 | 9 | 6 | 54 | 216 | 2592 | 6 LED spotlights 4 Floor Lamp | 26 4 | 0.156 0.016 | 404.352 41.472 | 1 Security camera 1 Sound speakers | 1 1 | 2 100 | 0.002 0.1 | 5.184 259.2 | ||||||
| Mummies Hall 14 | 1 | FL00 | 9 | 6 | 54 | 216 | 2592 | 26 LED spotlight 6 Floor Lamp | 26 4 | 0.676 0.024 | 1752.192 62.208 | 1 Security cameras 1 Sound speakers | 1 1 | 2 100 | 0.002 0.1 | 5.184 259.2 | ||||||
| Mummies Hall 15 | 1 | FL00 | 9 | 6 | 54 | 216 | 2592 | 10 LED spotlights 4 Floor Lamps 9 Display LED spotlights | 26 4 4 | 0.260 0.016 0.036 | 673.4 41.472 93.312 | 2 Security cameras 3 Sound speakers | 2 3 | 2 100 | 0.004 0.3 | 10.368 777.6 | ||||||
| Mummies Hall 16 | 1 | FL00 | 9 | 6 | 54 | 216 | 2592 | 17 LED spotlights 9 Floor Lamps | 26 4 | 0.442 0.036 | 1145.66 93.312 | 2 Security cameras 3 Sound speakers | 2 3 | 2 100 | 0.004 0.3 | 10.368 777.6 | ||||||
| Mummies Hall 17 | 1 | FL00 | 9 | 6 | 54 | 216 | 2592 | 5 LED spotlights 6 Floor Lamps | 26 4 | 0.130 0.024 | 336.96 62.208 | 2 Security cameras 3 Sound speakers | 2 3 | 2 100 | 0.004 0.3 | 10.368 777.6 | ||||||
| Sub-total | 11,860.26 | Sub-total | 77,345.28 | Sub-total | 11,824 | |||||||||||||||||
| Total (kWh) | 101,029.54 | |||||||||||||||||||||
Appendix B



References
- Gustafsson, C.; Ijla, A. Museums: An incubator for sustainable social development and environmental protection. Int. J. Dev. Sustain. 2016, 5, 446–462. [Google Scholar]
- Soini, K.; Birkeland, I. Exploring the Scientific Discourse on Cultural Sustainability. Geoforum 2014, 51, 213–223. [Google Scholar] [CrossRef]
- World Commission on Environment and Development (WCED) (1987) Our Common Future. Available online: http://www.undocuments.net/our-common-future.pdf/ (accessed on 4 February 2022).
- IFACCA (International Federation of Arts Councils and Culture Agencies). Culture as a Goal in the Post-2015 Development Agenda. International Federation of Arts Councils and Culture Agencies. 2013. Available online: https://ifacca.rg/news/2013/10/24/culture-goal-post-2015-development-agenda/ (accessed on 5 September 2022).
- Loach, K.; Rowley, J.; Griffiths, J. Cultural sustainability as a strategy for the survival of museums and libraries. Int. J. C Policy 2016, 23, 186–198. [Google Scholar] [CrossRef]
- Pop, I.L.; Borza, A.; Buiga, A.; Ighian, D.; Toader, R. Achieving Cultural Sustainability in Museums: A Step Toward Sustainable Development. Sustainability 2019, 11, 970. [Google Scholar] [CrossRef]
- Lee, G.K.L.; Chan, E.H.W. Factors affecting urban renewal in high density city: Case study of Hong Kong. J. Urban Plan. Dev. ASCE 2008, 134, 140e148. [Google Scholar] [CrossRef]
- Plaza, B.; Haarich, S.N. Museums for urban regeneration? Exploring conditions for their effectiveness. J. Urban Regen. Renew. 2009, 2, 259–271. [Google Scholar]
- Westervelt, R.F. Museums and Urban Revitalization: Regional Museums as Catalysts for Physical, Economic, and Social Regeneration of Local Communities; Seton Hall University Dissertations and Theses (ETDs): South Orange, NJ, USA, 2010; p. 2471. [Google Scholar]
- Lucchi, E. Simplified assessment method for environmental and energy quality in museum buildings. Energy Build. 2016, 117, 216–229. [Google Scholar] [CrossRef]
- Pop, I.L.; Borza, A. Factors Influencing Museum Sustainability and Indicators for Museum Sustainability Measurement. Sustainability 2016, 8, 101. [Google Scholar] [CrossRef]
- Pop, I.L.; Borza, A. Quality in Museums as a Way to Increase Sustainability. Eur. J. Sustain. Dev. 2016, 5, 217. [Google Scholar] [CrossRef][Green Version]
- Yung, E.H.K.; Zhang, Q.; Chan, E.H.W. Underlying social factors for evaluating heritage: Conservation in urban renewal districts. Habitat Int. 2017, 66, 135–145. [Google Scholar] [CrossRef]
- Ekinil, G.; Kazmina, L. Innovative Activities of Museums in the Rostov Region as a Factor in Increasing the Tourist Attractiveness of the Region. IE3S Web Conf. 2021, 273, 09012. Available online: https://www.e3s-conferences.org/articles/e3sconf/abs/2021/49/e3sconf_interagromash2021_09012/e3sconf_interagromash2021_09012.html (accessed on 9 September 2022). [CrossRef]
- Aboulnaga, M.; Puma, P.; Elsharkawy, M. Sustainability assessment of restored historic buildings: Case study of Baron Empain Palace in Heliopolis, Cairo, Egypt-Representation analysis of the building and site. In Proceedings of the SBE21 Sustainable Built Heritage, Bolzano (Bozen), Italy, Bolzano-Bozen, Italy, 14–16 April 2021; IOP Publishing Ltd.: London, UK, 2021; Volume 863, p. 012009. [Google Scholar]
- Aboulnaga, M.; Puma, P.; Elsharkawy, M. Sustainable restoration: Survey and analysis of the Baron Empain palace, Cairo, Egypt. Sust. Med. Const. 2021, 14, 96–104. [Google Scholar]
- ICOM Approves a New Museum Definition-International Council of Museums. 2022. Available online: https://icom.museum/en/news/icom-approves-a-new-museum-definition/ (accessed on 9 September 2022).
- Culture and Local Development: Maximizing the Impact: Guide for Local Governments, Communities and Museums. ICOM and OECD. 2018. Available online: https://www.oecd.org/cfe/leed/venice-2018-conference-culture/documents/OECD-ICOM-GUIDE-MUSEUMS-AND-CITIES.pdf/ (accessed on 9 September 2022).
- Stien, R. Museums as Economic Engines-A National Report; American Alliance of Museum: Washington, DC, USA, 2018; Available online: https://www.aam-us.org/2018/01/19/museums-as-economic-engines/ (accessed on 8 September 2022).
- Suay, A. ICOM, World Heritage and the Role of Museum. UNESCO Digital Library. UNESCO. Available online: https://unesdoc.unesco.org/ark:/48223/pf0000249542 (accessed on 9 September 2022).
- Arts Council England. Measuring the Economic Benefits of Arts and Culture. Practical Guidance on Research Methodologies for Arts and Cultural Organizations. 2016. Available online: https://www.artscouncil.org.uk/publication/measuring-economic-benefits-arts-and-culture (accessed on 19 November 2021).
- ICOM. Museums and Sustainable Development: How can ICOM Support, in Concrete Terms, the Museum Community’s Sustainable Development Projects? In Proceedings of the Advisory Committee Meeting, Paris, France, 6–8 June 2011; Available online: http://archives.icom.museum/download/june2011/panels/110602_%20JM_panel1.pdf (accessed on 19 November 2021).
- US News & World Report. These Countries Have the Richest History. 2022. Available online: https://www.usnews.com/news/best-countries/ranking/rich-history, (accessed on 13 June 2022).
- Gaith, F. The Parade of Royal Mummies: Between the Legacy of Past and Future Perspectives. 2021. Available online: https://www.idsc.gov.eg/Upload/DocumentsLibrary/Attachment_A/4801/5%20-%20Parade%20Royal%20Mum-mies.pdf/ (accessed on 3 June 2022).
- Egypt’s Royal Coffins Restored in National Museum of Egyptian Civilization prior to Royal Parade. Available online: https://www.egypttoday.com/Article/4/95403/Egypt’s-royal-coffins-restored-in-National-Museum-of-Egyptian-Civilization/ (accessed on 9 September 2022).
- Corbs, R.-A.; Popescu, R.I. Museums, Marketing, Tourism and Urban Development. The British Museum-A successful Model for Romanian Museums. Manage. Mark. 2011, 9, 303–314. [Google Scholar]
- Pop, I.L.; Broza, A. Sustainable Museums for Sustainable Development. ABSR 2015, 6, 119. Available online: https://mpra.ub.uni-muenchen.de/68360/1/MPRA_paper_68360 (accessed on 22 April 2022).
- Old Cairo’s Ain el-Sira: From a Slum Area into Tourist Destination. 2021. Available online: https://www.egypttoday.com/Article/1/100636/Old-Cairo%E2%80%99s-Ain-el-Sira-From-a-slum-area/ (accessed on 22 April 2022).
- National Museum of Egyptian Civilization-NMEC. Available online: https://egyptmonuments.com/en/ (accessed on 22 April 2022).
- 402EGY4001; Assistance Project for the National Museum of Egyptian Civilization in Cairo (NMEC), REQUEST FOR PROPOSAL–RFP. United Nations Educational, Scientific, and Cultural Organization: Paris, France, 2022.
- NMEC-National Museum of Egyptian Civilization. Available online: https://nmec.gov.eg/ (accessed on 22 April 2022).
- Global Surface UHI Explorer (n.d.). Available online: https://yceo.users.earthengine.app/view/uhimap/ (accessed on 21 April 2022).
- Authors’ analysis on Arial Photoage of NMEC using Autocad software. In Autocad; Autodesk: San Rafael, CA, USA, 2022.
- Cadelano, G.; Cicolin, F.; Emmi, G.; Mezzasalma, G.; Poletto, D.; Galgaro, A.; Bernardi, A. Improving the Energy Efficiency, Limiting Costs and Reducing CO2 Emissions of a Museum Using Geothermal Energy and Energy Management Policies. Energies 2019, 12, 3192. [Google Scholar] [CrossRef]
- Kramer, E.P.; Schellen, H.L.; Schijndel, J.V. Impact of ASHRAE’s museum climate classes on energy consumption and indoor climate fluctuation: Full-scale measurements in museum Hermitage Amsterdam. Energy Build. 2016, 130, 286–294. [Google Scholar] [CrossRef]
- ASHRAE. Museums, libraries and archives. In ASHRAE Handbook; Stephen Comstock: Atlanta, GA, USA, 2011; pp. 23.1–23.23. [Google Scholar]
- National Museum of Egyptian Civilization. Available online: https://nmec.gov.eg/news/ (accessed on 4 February 2022).
- On top of GEM, Egypt’s Tourism Ministry to Inaugurate 4 Museums in 2021. Available online: https://egyptindependent.com/on-top-of-gem-egypts-toursim-ministry-to-inaugurate-4-museums-in-2021/ (accessed on 28 April 2022).
- Book Your Ticket(s). Available online: https://egymonuments.com/en/nmec/ (accessed on 28 April 2022).
- UNESCO. Thematic Indicators for Culture in the 2030 Agenda. 2019. Available online: https://whc.unesco.org/en/culture2030indicators/ (accessed on 10 May 2022).
- UN. Independent Group of Scientists appointed by the Secretary-General. Global Sustainable Development Report 2019: The Future is Now-Science for Achieving Sustainable Development. 2019. Available online: https://sdgs.un.org/publications/future-now-science-achieving-sustainable-development-gsdr-2019-24576/ (accessed on 10 May 2022).
- Girard, L.F.; Vecco, M. Genius loci: The evaluation of places between instrumental and intrinsic values. Bull. Calza Bini Cent. 2019, 19, 473–495. [Google Scholar] [CrossRef]
- Arup & Partners. City Resilience Framework. The Rockefeller Foundation. 2014. Available online: https://www.rockefellerfoundation.org/report/city-resilience-framework/ (accessed on 10 May 2022).
- Graziadei, R.M. Towards a Culturally Sustainable Architecture. 2015. Available online: http://www.robinmonotti.com/2015/07/03/towards-a-culturally-sustainable-architecture/ (accessed on 10 May 2022).
- International Institute for Applied Systems Analysis. TWI2050—The World in 2050. The Digital Revolution and Sustainable Development: Opportunities and Challenges. 2019. Available online: www.twi2050.org/ (accessed on 10 May 2022).
- Brusaporci, S. Handbook of Research on Emerging Digital Tools for Architectural Surveying, Modeling, and Representation; IGI Global: Hershey, PL, USA, 2015. [Google Scholar]
- Maietti, F.; Balzani, M. Data Acquisition Protocols and Semantic Modelling of the Historical-Architectural Heritage: The INCEPTION Project; Pavia University Press: Pavia, Italy, 2020. [Google Scholar]
- Clini, P.; Quattrini, R. Editorial. Digital Cultural Heritage, Arts Reproduction and Museums Systems. Languages and Techniques in a Covid and Post-Covid Scenario for New Forms of Heritage against the Silence of a Fragile Culture. SCIRES-IT-Sci. Res. Inf. Technol. 2021, 11, 1–10. [Google Scholar] [CrossRef]
- NMEC Announces the Release of an Updated Version of the Museums’ Mobile Application “NMEC”. Available online: https://nmec.gov.eg/nmec-announces-the-release-of-an-updated-version-of-the-museums-mobile-application-nmec/ (accessed on 14 June 2022).
- Cultural Activities. Available online: https://nmec.gov.eg/cultural-activities/ (accessed on 18 September 2022).
- Egypt Mummies Pass through Cairo in Ancient Rulers’ Parade. Available online: https://www.bbc.com/news/world-middle-east-56508475/ (accessed on 9 September 2022).
- Reuters. Available online: https://www.reuters.com/article/us-egypt-antiquities-convoy-idUSKBN2BQ04T (accessed on 6 February 2022).
- Tufekci, Z. Big questions for social media big data: Representativeness, validity, and other methodological pitfalls. arXiv 2014, arXiv:1403.7400. [Google Scholar]
- Davis, R.C. Git and GitHub for librarians. Behav. Soc. Sci. Librarian. 2015, 34, 158–164. [Google Scholar] [CrossRef]
- Clark, H.D. What Colour Is Your Building? Measuring and Reducing the Energy Consumption and Carbon Footprint of Buildings. Appendix C-Energy Consumption Data, RIBA Publishing. 2013. Available online: https://cundall.com/DownloadAttachment.aspx?Postingld=5568&File=667edda6a62c4a3b82376154df123349WCIB%20%20Appendix%20C%20Energy%20%Consumption%20Data.pdf/ (accessed on 20 June 2022).
- Guidelines and Strategies of the Orange Economy in Columbia. Available online: https://en.unesco.org/creativity/policy-monitoring-platform/guidelines-strategies-orange (accessed on 19 September 2022).
- Dickinson, S. The 8 Best New Museums Opening around the World in 2022. Available online: https://www.timeout.com/arts-and-culture/best-new-museums-opening-in-2022 (accessed on 19 September 2022).
- Essam, A.; Marie, M. Egypt’s Pharaohs’ Golden Parade: A Majestic Journey that History will Forever Record. Available online: https://www.egypttoday.com/Article/4/100469/Egypt%E2%80%99s-Pharaohs-Golden-Parade-A-majestic-journey-that-history-will/ (accessed on 22 July 2022).







































| Guide | Policy Options for Local Governments’ | Action Options for Museums |
|---|---|---|
| Economic development and innovation [21] |
|
|
| Urban regeneration and community development [18] |
|
|
| Cultural development, education, and creativity [22] |
|
|
| Museum Development and Economic Engines | Conditions |
|---|---|
| Basic location and economic conditions | a. Location and accessibility |
| b. Coherence of cultural investment in a favorable framework | |
| Public policy framework of actions | c. Diversified public policy |
| d. Continuous public funding of a museum as an investment in urban and regional development | |
| e. Engaging the local | |
| The museum project and its management | f. Visibility effect through iconic building |
| g. Branding power of museum or art foundation | |
| h. ICT and media going global | |
| i. Attractive exhibition and event management |
| NMEC Elements 1 | Area |
|---|---|
| Total project and its lake area | 398,372.5 m2 (98.44 Acre) |
| Total land area | 135,000 m2 |
| Total ground floor area (opened musuem) | 34,291 m2 |
| Total built-up area | 675,000 m2 |
| Galleries of permanent and temporarily exhibitions | 23,235 m2 |
| The number of scientific labs | 15 Labs. |
| Number of main exhibition halls | 9 Halls |
| Parking area | 11,700 m2 |
| Number of parking slots | 450 cars and 55 buses |
| Visitors’ Types | Apr. | May | Jun. | Jul. | Aug. | Sept. | Oct. | Nov. | Dec. | Jan. | Feb. | Mar. |
|---|---|---|---|---|---|---|---|---|---|---|---|---|
| Egyptian | 22,306 | 22,109 | 26,369 | 45,019 | 45,976 | 27,600 | 32,311 | 41,042 | 46,768 | 21,199 | 64,671 | 15,855 |
| Non-Egyptian (MENA) | 995 | 2028 | 2918 | 6170 | 6816 | 5839 | 7846 | 9040 | 9893 | 8036 | 6704 | 10,043 |
| Non-Egyptian (Tourists) | 3316 | 5148 | 4574 | 5471 | 7104 | 8740 | 14,480 | 15,373 | 15,756 | 12,916 | 13,832 | 18,936 |
| Total Visitors | 26,617 | 29,285 | 33,861 | 56,660 | 59,896 | 42,179 | 54,637 | 65,455 | 72,417 | 42,151 | 85,207 | 44,845 |
| Types of Tickets and Service | Ticket Price (EGP) 1 |
|---|---|
| Egyptian citizens 2 | 60 ($3.28) |
| Egyptian students 2 | 30 ($1.64) |
| Non-Egyptian (tourists) visitors | 200 ($10.94) |
| Non-Egyptian students | 100 ($5.47) |
| Car park ticket per day | 30 ($1.64) |
| Photography (for personal use) | 50 ($2.74) |
| Visitors with camera holder | 20 ($1.09) |
| Audio tour | 30 ($1.64) |
| Average monthly revenues EGP | 4,256,265 ($232,837.30) |
| Total annual revenues EGP | 51,075,180 ($2,794,047) |
| Tickets’ Types | Apr. | May | Jun. | Jul. | Aug. | Sept. | Oct. | Nov. | Dec. | Jan. | Feb. | Mar. 2 |
|---|---|---|---|---|---|---|---|---|---|---|---|---|
| Egyptian visitors | 21,139 | 13,829 | 15,804 | 25,528 | 24,166 | 15,185 | 18,216 | 15,706 | 19,074 | 12,904 | 30,203 | 12,134 |
| Egyptian students | 1167 | 8280 | 10,565 | 19,491 | 21,810 | 12,415 | 14,095 | 25,336 | 27,694 | 8295 | 34,468 | 3721 |
| Non-Egyptian (tourists) visitors | 4044 | 6097 | 6185 | 9188 | 10,977 | 12,572 | 20,077 | 21,710 | 21,469 | 17,740 | 17,420 | 26,371 |
| Non-Egyptian students | 267 | 1079 | 1307 | 2453 | 2943 | 2007 | 2249 | 2703 | 4180 | 3212 | 3116 | 2608 |
| Total revenues ml. | 2139 | 2405 | 2633 | 4199 | 4594 | 3999 | 5756 | 6315 | 6687 | 4892 | 6642 | 6375 |
| Indicator Number | Indicator Description |
|---|---|
| Specific Museums’ term | |
| n. 2 | Sustainable management of heritage |
| n. 4 | Cultural facilities |
| n. 12 | Governance of culture |
| n. 14 | Cultural knowledge |
| n. 20 | Access to culture |
| n. 21 | Cultural participation |
| Specific DCH domain | |
| n. 4 | Cultural facilities to detect the distribution of cultural facilities through spatial mapping and spatial analysis |
| n. 5 | Open space for culture to detect through GIS the number and size of open spaces used for cultural purposes |
| n.19 | Artistic freedom to detect the evidence for activities implemented to promote digital creativity and competencies of artists working with new technologies |
| n. 21 | Cultural participation to identify three sub-indicators, including the measurement of individual cultural activities and the use of the internet for cultural purposes |
| No. | Measured Parameter (Word Counts) 1 | ||||
|---|---|---|---|---|---|
| 1 | Number of posts per year | 231 | 350 | 258 | - |
| 2 | Number of followers | 82,159 | 5848 | 1247 | NA |
| 3 | Number of likes | 78,536 | NA | NA | NA |
| 4 | Number of people who checked in social media | 10,208 | NA | NA | NA |
| 5 | Number of viewers–Google | NA | NA | NA | 9003 |
| 6 | Ranking | - | - | - | 4.7 |
| No. | Indicator | Optimum | Sustainability Dimension | Value 1 |
|---|---|---|---|---|
| 1 | State of conservation: the proportion of objects that are conserved perfectly (%) | Maximum | Cultural (collection storage, conservation, and research) | 99% |
| 2 | Storage conditions: the proportion of collections stored in appropriate conditions (%) | 95% | ||
| 3 | The degree of heritage research: the proportion of objects pertaining to which the documentation is complete (%) | 50% 2 95% 3 | ||
| 4 | Meeting the microclimate conditions: the number of days in which there were no deviations 4 from the optimum microclimate parameter/365 (%) | 100% | ||
| 5 | The degree of exhibiting: (the number of objects exhibited (2000) per year × the number of days of exhibition/(the number of heritage objects (1952) × 365) (%) | Maximum | Social and cultural | 1.03% |
| 6 | Online visibility: number of mentions of the museum on Google (9003)/ Number of objects in the collection (2000) | 4.502 | ||
| 7 | Extension outside the main premises: (number of objects exhibited outside the main premises × number of days of exhibition)/(total number of objects not exhibited at the main premises × 365) (%) | 0.0% None | ||
| 8 | Extension on the market: percentage of the number of objects lent to other institutions from the total of objects not exhibited (%) | Maximum | Social and Economic | 0.00% None |
| 9 | Events organized annually | 95% | ||
| 10 | Attractiveness of the museum’s collections: Number of visitors/objects exhibited | 393.97 | ||
| 11 | Assessment of the museum by visitors: number of positive impressions (78,536)/total number of impressions written by visitors in the guestbook (2800), in a year (%) | 28.05% | ||
| 12 | Ratio of young and old staff: ratio of staff who are in the first 10 years of their career (%) | 60% | ||
| 13 | Online accessibility of the collection: number of objects (2000) expressed in as percentage from the whole collection published online (85) (%) | 4.5% | ||
| 14 | Labor productivity 1: number of events/number of staff | Maximum | Social and Economic | 0.198 |
| 15 | Labor productivity 2: number of temporary exhibitions/Staff | 0.010 | ||
| 16 | Labor productivity 3: number of visitors/number of staff | 1638.1 | ||
| 17 | Labor productivity 4: number of online unique visitors per year/staff (481) | 5.83% | ||
| 18 | Efficiency of the financial resource use: number of visitors/total expenses | 0.0163 | ||
| 19 | Efficiency of material resource use: number of visitors/exhibition area | 187.6 | ||
| 20 | Attractiveness of museum’s electronic resources: number of online unique visitors yearly (89,254)/number of posts (839) | 106.38 | ||
| 21 | Voluntary involvement: number of hours worked by volunteers per year 23/number of volunteers | Minimum | Natural environment (using the resources as efficiently as possible) | 252 |
| 22 | Capital productivity: earned income/total objects exhibited per year | 44,606.1 | ||
| 23 | Consumption of financial resources: objects exhibited per year/total expenses 1200/48,192,060 (2.49 × 10−5) | 0.000025 | ||
| 24 | Consumption of electricity: consumption of electricity/museum’s area | 116.99 kWh/yr/m2 | ||
| 25 | Consumption of thermal energy: consumption of thermal energy/museum’s area | N/A | ||
| 26 | Consumption of water: consumption of water/(staff + volunteers + unique visitors at the main premises) 6727 L/month 2020 5 | 6 | ||
| 27 | Consumption of consumables: expenses for consumable office materials (ink cartridges, stationery, files, etc.) and number of staff and volunteers (481 + 40) = 521 | 1898.19 | ||
| 28 | Consumption of fuel: consumption of fuel/number of external events | N/A | ||
| 29 | Labor productivity 5 (value): earned income/number of staff per year) | Maximum | Economic (efficiency, economic impact on the community) | 5812.01 |
| 30 | The capacity of self-financing: earned income/total income (%) | 95.42% | ||
| 31 | Quantitative liquidity of merchandise (calculated individually for each type of product): annual merchandise sales (pcs.)/quantities manufactured or purchased (pcs.) (%) | 29.67% | ||
| 32 | Value liquidity of merchandise: annual income from merchandise sales/value of stored merchandise | 0.054 | ||
| 33 | Correlation between the number of tourists from the city or area and the number of visitors of the museum (this measures the museum’s contribution to the economic development of the area) | 67.80% |
| Item Museum | City, Country | Open Year | Land/Museum Area (m2) | Collection | Objects/Artifacts |
|---|---|---|---|---|---|
| Istanbul Museum of Modern Art | Istanbul, Turkey | January 2022 | 150,003,300 | Modern arts | 12,000 |
| Art Gallery of New South Wales | Sydney, Australia | October 2022 | 27,871 15,980 | Australian, European, and Asian fine arts | 36,000 |
| National Museum of Norway | Oslo, Norway | June 2022 | 54,600 14,000 | Norwegian Baldishol tapestry | 400,000 |
| Hong Kong Palace Museum | Beijing, China | July 2022 | 30,000 7800 | Rare books, traditional calligraphy & treasures | 914 out of 1.86 mL. works |
| Museum of Art & Photography | Bengalore, India | December 2022 | 5500 4087 | Arts, (physical and digital) photography, antiquities | 60,000 |
| Grand Egypt Museum | Giza, Egypt | November 2022 | 480,000 81,000 | Ancient Egypt Antiquities and artifacts | 100,000 |
| National Museum of Egyptian Civilization | Cairo, Egypt | April 2021 | 135,000 34,291 | Ancient Egypt Antiquities and artifacts | 500,002,000 |
Publisher’s Note: MDPI stays neutral with regard to jurisdictional claims in published maps and institutional affiliations. |
© 2022 by the authors. Licensee MDPI, Basel, Switzerland. This article is an open access article distributed under the terms and conditions of the Creative Commons Attribution (CC BY) license (https://creativecommons.org/licenses/by/4.0/).
Share and Cite
Aboulnaga, M.; Puma, P.; Eletrby, D.; Bayomi, M.; Farid, M. Sustainability Assessment of the National Museum of Egyptian Civilization (NMEC): Environmental, Social, Economic, and Cultural Analysis. Sustainability 2022, 14, 13080. https://doi.org/10.3390/su142013080
Aboulnaga M, Puma P, Eletrby D, Bayomi M, Farid M. Sustainability Assessment of the National Museum of Egyptian Civilization (NMEC): Environmental, Social, Economic, and Cultural Analysis. Sustainability. 2022; 14(20):13080. https://doi.org/10.3390/su142013080
Chicago/Turabian StyleAboulnaga, Mohsen, Paola Puma, Dalia Eletrby, Mai Bayomi, and Mohamed Farid. 2022. "Sustainability Assessment of the National Museum of Egyptian Civilization (NMEC): Environmental, Social, Economic, and Cultural Analysis" Sustainability 14, no. 20: 13080. https://doi.org/10.3390/su142013080
APA StyleAboulnaga, M., Puma, P., Eletrby, D., Bayomi, M., & Farid, M. (2022). Sustainability Assessment of the National Museum of Egyptian Civilization (NMEC): Environmental, Social, Economic, and Cultural Analysis. Sustainability, 14(20), 13080. https://doi.org/10.3390/su142013080

