Next Article in Journal
On the Study of the Sustainable Development of Intangible Cultural Heritage of Indigenous Peoples’ Diets—Take the Protection of Geographical Indications as an Example
Previous Article in Journal
Research on the Characteristics and Influencing Factors of Community Residents’ Night Evacuation Behavior Based on Structural Equation Model
 
 
Font Type:
Arial Georgia Verdana
Font Size:
Aa Aa Aa
Line Spacing:
Column Width:
Background:
Article

Carbon Stocks Assessment in a Disturbed and Undisturbed Mangrove Forest in Ghana

1
Centre for Coastal Management, Africa Centre of Excellence in Coastal Resilience, University of Cape Coast, Cape Coast PMB TF0494, Ghana
2
Department of Fisheries and Aquatic Sciences, University of Cape Coast, Cape Coast PMB TF0494, Ghana
*
Author to whom correspondence should be addressed.
Sustainability 2022, 14(19), 12782; https://doi.org/10.3390/su141912782
Submission received: 31 July 2022 / Revised: 18 September 2022 / Accepted: 26 September 2022 / Published: 7 October 2022

Abstract

Mangroves and other blue carbon ecosystems have long been recognised for their carbon sink function, yet the organic carbon stocks of mangroves in many countries in Africa remain to be assessed. This study evaluates the impact of traditional forest conservation on long-term carbon sequestration in a non-degraded (Amanzule) and a degraded (Kakum) mangrove forest system in Ghana (West Africa). The amount of carbon stored in mangrove trees was estimated from diameter-based allometric equations. Tree (above- and below-ground) carbon was ~34-fold higher in the Amanzule forest (mean = 0.89 ± 0.10 t/ha) than in the Kakum forest (mean = 0.026 ± 0.019 t/ha). Soil carbon density was estimated as organic carbon and bulk density at specific depths in both forests. Soil organic carbon density was ~5-fold higher in the Amanzule forest (mean = 2935.79 ± 266 t/ha) than the Kakum forest (mean = 554.01 ± 83 t/ha). The variation in the vertical distribution of soil carbon was not significant in either forest (F = 0.57; p > 0.05). These findings underscore the role of traditional conservation on mangrove carbon stocks and the need to consider the governance of coastal ecosystems when estimating blue carbon.

1. Introduction

It has been well established that the level of carbon dioxide (CO2) in the atmosphere is rising at an alarming rate ≈ 2.36 ppm per year over the past six decades [1]. This increasing amount of atmospheric CO2 is the leading cause of global climate change, responsible for increased drought, intense flooding, and sea level rise with dire consequences for critical life-supporting ecosystems and agricultural production among other impacts on human livelihoods [2,3,4].
There is currently a broad consensus among the scientific community that conservation of ecosystems that serve as natural carbon sinks can reduce the level of CO2 in the atmosphere [5,6,7,8,9]. These ecosystems include some, but not all, inland forests, mangroves, salt marshes, and seagrass beds which capture CO2 through photosynthesis, thus trapping carbon in their living biomass above and below ground, as well as in dead tissues buried in the sediments. Together, the above-ground, below-ground and sediment-bound dead tissues of these blue ecosystems hold around 2000 Gt of carbon, which is over 2.5 times the amount of carbon that is currently held in the atmosphere [10].
In particular, mangrove ecosystems along the world’s coastlines hold three billion metric tons of carbon. Except for the tundra and peatlands, mangroves store more blue carbon per unit area than any other ecosystem in the world [11,12,13,14]. This is possible because mangrove forest sediments do not become saturated with carbon [15]. Rather, the rate of carbon sequestration increases over time with the accretion of sediment within mangrove forests [11,16]. Furthermore, the carbon trapped within sediments underlying mangrove forests is held for a longer period than in other plant-dominated systems (see, for example, McLeod et al. [15]). Due to these effects, mangroves account for ≈30% of the coastal carbon stored in tropical and sub-tropical areas [17].
Despite the benefits highlighted above, mangrove ecosystems worldwide are threatened by multiple stressors, ranging from local pollution to destruction through dredging, filling and excavation for various agricultural and industrial uses [15,18,19,20]. These destructive activities are causing rapid loss of mangroves around the world, at a global rate of ≈0.2% per year [11] and account for ≈62% of global mangrove lost between 2000 and 2016 [21]. As a result, global mangrove cover is estimated to be reduced by 5.89% within a span of two decades (1996–2016) [22], while in Africa the decline was 17% [23]. This destruction has catastrophic consequences for coastal and indigenous communities who depend on mangrove resources for jobs, food and future opportunities [24]. Regarding global climate change in particular, mangrove forests can become sources of carbon that could add to the already high-level CO2 in the atmosphere when degraded [25,26,27,28]. For example, decomposition of dead mangrove biomass alone releases about 53–57 Pg of carbon per year into the atmosphere [29]. This, together with other disturbance regimes in mangroves account for 18% of CO2 emissions from tropical coastal areas [30]. Therefore, the protection of mangrove forests against degradation is considered an important strategy to prevent losses of coastal blue carbon into the atmosphere [31].
Currently, the strategy for reducing emissions from deforestation and forest degradation (REDD) seeks, among others, to encourage countries to (i) slow, halt and reverse forest loss and degradation; (ii) increase the removal of greenhouse gases from the atmosphere through forest conservation, management and expansion; and (iii) share research outcomes, experiences and lessons learned from efforts to reduce emissions from deforestation and forest degradation in developing countries (REDD+) [32,33] As a key component, the strategy encourages countries to share data on cost-effective activities for addressing the drivers of deforestation. Ghana is a party to this REDD+ initiative [34] hence this present report is an important contribution towards the REDD+ initiative.
In Ghana, mangrove ecosystem management is done through communal ownership where traditional leaders and local customary practices inform the use of mangrove forests [35,36]. Hence, except for mangroves in protected areas, local customs and traditional law enforcement determine the exploitation of mangrove forests [37,38]. In some rural communities, mangroves are protected, seen as no-go areas providing linkage with gods, ancestors and spiritual powers [37,39]. In urban, cosmopolitan areas, on the other hand, mangroves are used indiscriminately, often exploited for fuel wood [40]. It is unknown how these different management regimes influence the carbon stock in mangrove ecosystems. Furthermore, the mangrove forest biomass and carbon stock in Ghana have not been comprehensively documented [41].
The present study aims to assess tree density, above- and below-ground carbon as well as the total carbon stock of two different mangrove forests in Ghana: the Amanzule mangrove forest in a remote community conserved through several traditional systems [37] and the Kakum mangrove forest in an urban area threatened by deforestation and other anthropogenic influences [42,43]. The ultimate goal of this study is to provide information necessary for national carbon inventories and nature conservation strategies in support of the objectives of REDD+.

2. Materials and Methods

2.1. Study Area

Two estuarine mangroves systems were selected for this study (Figure 1): the Amanzule mangrove forests in the Western Region of Ghana (4°46′31″ N; 2°00′19″ W), and the Kakum mangrove system in the Central Region of the country (5°05′01.4″ N; 1°18′48.3″ W). The Amanzule estuary mangrove forest is located in the equatorial climate zone with major rainfall periods occurring from May to June and October to November each year. The average annual rainfall is 1600 mm with a relative humidity of 87.5%, and a mean annual temperature of 26 °C [44]. The soil type of the forest is mainly forest oxysols and forest ochrosols–oxysols intergrades [45].
Kakum is located in the dry equatorial zone of Ghana with coastal savannah as the major vegetation type. The area experiences high rainfall with the wettest periods in May/June and September/October each year. The mean annual rainfall is about 1000 mm with the average monthly temperature ranging between 24 °C to 30 °C [44]. The topography of the Kakum forest is flat with forest ochrosols as the dominant soil type [45,46].
The Amanzule forest is part of the Amanzule wetlands regarded as the dwelling place of the gods by local communities. As a consequence of this traditional belief, the Amanzule forest has been under protection for many years [44], managed by local traditional norms and customs even though the forest has no formal conservation status [37]. In contrast, the Kakum mangrove forest is intensely exploited for fuel wood and other domestic uses [42].
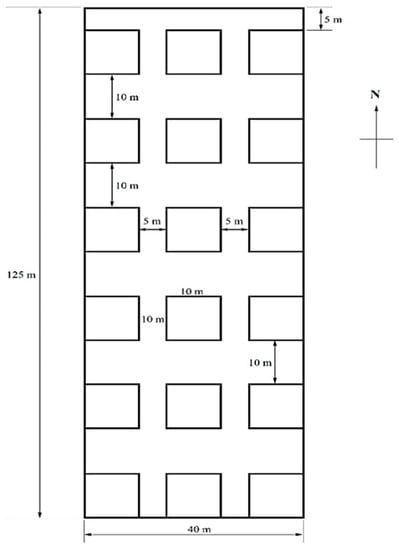
Three sampling plots (herein referred to as plots), each measuring 125 m × 40 m were established in each mangrove forest. Each plot was divided into 18 subplots of 10 m × 10 m per plot (herein referred to as subplots) (Figure 2). The plots were sited in areas previously determined to have dense mangrove cover [47]. To ensure comparability, the plots in both forests were located close to the low water mark, with plot A furthest from the low water mark and plot C closest to the low water mark.

2.2. Data Collection and Analyses

Data were collected during low tide to ensure easy access to plots. Carbon stock within the selected mangroves was assessed based on three measures: total above-ground carbon (AC), total below-ground carbon (BC), and total organic carbon (SC) in different layers of soil following the method of Kauffman and Donato [48]. The above- and below-ground carbon refer to the amount of carbon stored in living plant tissues above and below the soil, respectively [49]. The above- and below-ground carbons were estimated using Equation (1):
A C   o r   B C = W × f
where W is tree biomass, and f is the biomass-to-carbon conversion factor of 0.46 and 0.39 respectively, for above- and below-ground biomass [50]. The above- and below-ground biomass of each tree was determined using Equations (2) and (3), respectively [51]:
W t o p = 0.251 × p × D 2.46
and
W R = 0.199 × p 0.899 × D 2.22
where Wtop is above-ground biomass, WR is below-ground biomass, D is tree diameter at breast height, and p is the specific wood density based on conservative estimates by Howard et al. [50] for different mangrove species. The tree diameter at breast height was determined at 1.37 m above ground using a Vernier calliper for smaller trunks. For larger tree trunks, the circumference was measured with a tape and the value divided by π to obtain the diameter. In the case of Rhizophora spp. the diameter was measured at 30 cm above the highest stilt root.
The organic carbon content of the soil (SC) was measured from soil samples collected with an auger and a rectangular soil sampler (volume: 120 cm3) at depths of 0–15 cm, 16–30 cm, 31–50 cm, and 51–100 cm, following the method of Kauffman and Donato [8]. Samples were stored in opaque polyethene bags and transported to the laboratory for analysis.
In the laboratory, each layer of the soil was dried in the oven at 105 ℃ to constant weight, and ground in a porcelain mortar. The homogenized samples were sieved through a 0.5 mm mesh to remove root parts and analysed for organic carbon content using the modified dichromate oxidation method of Bajgai et al. [52]. Following oxidation, the organic carbon concentration was calculated using Equation (4) [53]:
O C = [ A × N FAS × ( 0.003 ) ] Dw × 100
where OC is the weight of carbon per unit weight of soil layer, A is the volume (mL) of dichromate consumed during boiling, NFAS is the normality (0.2 N) of the ferrous ammonium sulphate solution used in the oxidation, whilst Dw is the weight (g) of the dried homogenised soil. The total weight of organic carbon occurring within each soil layer (Kg C m−2) was calculated using Equation (5):
S C = [ B × T × O C ]
where T is the thickness (m) of the soil layer and B is the bulk density (kg m−3) of the soil layer sampled. The total carbon stock (Kg C ha−1) from each of the plots was determined by summing the total above-ground carbon (AC), below-ground carbon (BC) and carbon in the different soil layers (SC).
The mangrove tree populations in the two study areas were characterised based on species density, relative density, total basal area, and relative dominance. The stand density of each subplot (number of trees per hectare) was calculated as:
Tree   Density = No .   of   trees   of   a   species 0.01   ha
The mean total density (±s.d.) of trees in each plot was obtained based on the number of trees in the subplots.
The basal area (m2) of each tree was computed as DBH 2 × 7.854−5 following [42] and the total tree basal area (TBA m2 ha−1) as:
TBA = Sum   of   the   basal   area   for   all   tree   species   Area   of   sampling   plot   ( m 2 )

2.3. Statistics Used

The sampling was designed to investigate three major factors that are likely to influence the results. These factors were the type of forest management (conservation vs. exploitation), location of sampling area within the forests, and subplots. The vegetation structure in each mangrove forest was assessed using the density and basal area of the tree species. The basal area of tree species from the sampling locations was compared using a two-way analysis of variance (two-way ANOVA) with forest type and sampling plot as the sources of variance.
Possible differences in the biological characteristics of the individual species in different forest systems were assessed using a two-way ANOVA with forest type and sampling plot as the sources of variance. Total above-ground carbon (AC), total below-ground carbon (BC), and soil organic carbon (SC) measured in the different forest systems were also compared using a two-way ANOVA. Organic carbon concentration in the different layers of soil from each forest was compared. Tukey’s test (α = 0.05) was performed to determine which pairs of means were significantly different.

3. Results

3.1. Vegetation Composition and Structure

Three mangrove tree species, namely Rhizophora mangle, Avicennia germinans and Laguncularia racemosa were found in the Kakum and Amanzule forests. Avicennia germinans was the dominant species in the Kakum forest with 86.8% cover whereas R. mangle dominated the Amanzule forest with a cover of 85.9%. Notably, R. mangle was the tallest tree in both forests while L. racemosa was the shortest tree (Table 1). Tree girth sizes were significantly different among species in the Kakum forest with A. germinans and L. racemosa having the biggest and smallest girth sizes respectively (F = 7.59; p < 0.05).
Girth sizes differed significantly among trees in the Amanzule forest with R. mangle and L. racemosa having the biggest and smallest girth sizes respectively (Table 1). The three mangrove species were taller and had greater trunk diameters in the Amanzule forest than in the Kakum forest. Basal area of A. germinans differed between forests and among plots (p = 0.000 for both). Basal area of R. mangle and L. racemosa differed significantly among plots but not between sites (p = 0.217; p = 0.253 respectively).
Kakum had a higher mean tree density than Amanzule (Table 2). The mean tree biomass in the Amanzule forest (mean AG + BG biomass = 1.21 ± 4.6 t ha−1) was greater than in the Kakum forest (mean AG + BG biomass = 0.03 ± 0.02 t ha−1); t (1366) = 9.46, p = 0.00). In the Kakum forest, tree biomass was similar for plots A and B whereas plot C had the highest tree density and biomass. In Amanzule forest, plot C had the highest tree density and lowest tree biomass. The highest tree biomass was recorded in plot A in the Amanzule forest (Table 2).
A. germinans and R. mangle had the highest densities in the Kakum and Amanzule forests respectively. This is reflected in the high total basal area observed for the respective species in both forests (Table 3). Species with the least densities were R. mangle (Kakum forest) and L. racemosa (Amanzule forest). Whereas R. mangle was about 10 times greater in Amanzule than in Kakum, L. racemosa was ~14 times higher in Kakum than in Amanzule (Table 3 and Table 4)

3.2. Soil Bulk Density

Mangrove sediments were ~2-fold heavier in the Kakum forest (mean: 0.97 ± 0.07 g cm−3) than in the Amanzule forest (mean: 0.50 ± 0.08 g cm−3), F (2, 18) = 32, p < 0.05 (Figure 3). A two-way ANOVA indicated that there were significant differences between the bulk densities of sediment at different soil depths in both forests (Kakum: F (2, 9) = 47.7, p = 0.000; Amanzule: F (2, 9) = 5.9, p = 0.023) (Tukey’s post hoc test, p < 0.05).
Generally mean bulk density increased with depth in both forests. However, the increase was not statistically significant in either forest (F = 0.57; p > 0.05) (Figure 3).

3.3. Carbon Stock Estimates

Soil organic carbon densities were ~5-fold higher in the Amanzule forest than in the Kakum forest. There was no significant vertical variation in soil organic content in either forest (Figure 4). Soil carbon density ranged from 462 ± 308 t/ha (at 0–15 cm depth) to 648 ± 378 t/ha (50–100 cm depth) in the Kakum forest and from 2797 ± 973 t/ha (0–15 cm depth) to 3119 ± 1009 t/ha (50–100 cm depth) in the Amanzule forest.
The amount of organic carbon stored at specific depths differed between Kakum and Amanzule forests and among plots within each forest (Table 5).
Rhizophora mangle had the highest carbon density per tree in both forests followed by A. germinans and L. racemosa (Table 6; Figure 4). Rhizophora mangle contained about 100 times; A. germinans contained about 36 times and L. racemosa contained about 5 times more carbon in the Amanzule forest than in the Kakum forest (Table 6).
Estimated above-ground carbon density was higher than estimated below-ground carbon density for all tree species in both forests. Average above-and below-ground tree carbon densities were about 28 times and 17 times higher, respectively, in Amanzule forest than in Kakum forest (Figure 5). Above-ground tree carbon was ~1.9-fold and 2.7-fold higher than below-ground tree carbon for all species in Kakum and Amanzule respectively. Significant differences (F = 31.41; p = 0.00) occurred in carbon density among mangrove species in both forests.
Tree carbon is lower in the Kakum forest (0.03 ± 0.02 t/ha) relative to the Amanzule forest (0.89 ± 1.65 t/ha). Spatially, tree carbon differed significantly across sampling plots in the Kakum (F = 11.49; p < 0.05) and Amanzule (F = 144.83; p < 0.05) forests (Table 7 and Table 8). A two-way ANOVA revealed that tree carbon density was significantly affected by the forest type and sampling plot for both above-ground, F (2, 3564) = 239.1, p = 0.00, and below ground, F (2, 3564) = 337.7, p = 0.00 carbon (Table 8). Soil carbon was lower in the Kakum forest than in the Amanzule forest. In both forests, soil carbon was higher than tree carbon. Soil carbon was ~5-fold higher in Amanzule forest (2935.79 ± 266 t/ha) than in Kakum forest (554.01 ± 83) whereas tree carbon was ~34-fold higher in Amanzule (0.89 ± 0.10 t/ha) than in Kakum (0.026 ± 0.019 t/ha).

4. Discussion and Conclusions

This study examined carbon storage in two mangrove ecosystems in Ghana—the protected Amanzule forest in the Western Region, and the unprotected Kakum forest in the Central Region of the country where there is unmitigated wood extraction. Above- and below-ground tree carbon was estimated from the diameter and density of the mangrove trees whereas soil organic carbon was calculated from soil samples.
The results show that the Amanzule forest had about thirty times more above-ground biomass than the Kakum forest. This corroborates the observation of Tamooh et al. [54] that logging and other anthropogenic disturbances reduce the health of mangrove forests and affect their overall carbon stock density. A greater part of the degraded Kakum mangrove forest is harvested for fuel wood and other subsistence uses due to lack of enforcement of traditional forest protection rules. Consequently, very few large trees remain in the forest. Mangrove trees in the Kakum forest were stunted as indicated by their low average height and diameter and as also observed by other workers (see [42,55]). In contrast, the Amanzule species were taller with wider girths, thus underscoring the beneficial effect of traditional protection on the health of natural ecosystems.
The high tree density observed in the Kakum forest is reflective of the open nature of the forest canopy. The trees are generally short and as such seedlings receive adequate warmth for growth. The apparent poor stature of the mangrove trees in the Kakum forest could be attributed to the prevailing soil type (ochrosols) which has low resistance to degradation, low nutrient levels and contains toxic concentration of aluminium see the reference [56]. These conditions, in concert with high bulk density (more mineral particles) observed in Kakum forest, do not provide the best conditions for mangrove growth performance. Studies have shown that sediments characterised by high soil density are less porous and rich in mineral particles [57]. Such sediments restrict tree growth via their impact on soil aeration and water penetration. The relatively low density of mangrove trees observed in the Amanzule forest is attributable to the high tree canopy with big stem sizes and therefore there was little chance for the survival of seedlings. The big stem sizes of mangrove trees encountered in the Amanzule forest influenced the high carbon density values recorded and support the view of Donato et al. [58] and Assefa et al. [59] that the quantity of carbon stored is primarily determined by the size of the stand, canopy height and stature. For instance, the high soil carbon values recorded are characteristics of the high organic matter content and the forest oxysols–ochrosols intergrade soils dominating the Amanzule forest. This study has also shown that several years of carbon sequestration, devoid of intensive tillage, in the Kakum and Amanzule mangrove forests may have stored a great amount of carbon below ground (as peat) and accrete. We recorded high values of soil carbon, ~1000-fold higher than the values recorded for tree carbon in both forests. This is consistent with the general observation that soil C accounts for > 90% of total ecosystem C in mangrove forests [41,58,60]. The soil carbon recorded in this study is higher than global estimates [11] but similar to values reported for West-Central Africa see the reference [41].
The present study highlights the importance of non-degraded mangrove forests in capturing carbon. Forest degradation contributes to increasing levels of greenhouse gases in the atmosphere through the release of stored carbon in tree biomass. By implication, degraded coastal ecosystems such as mangroves are converted from net carbon sinks to net carbon sources. Therefore, carbon offsets through conservation of mangrove ecosystems could be far more cost-effective in addressing global carbon flux than current approaches focused on other terrestrial trees. Protection of mangrove ecosystems may also have enormous add-on benefits to fisheries and potentially limit coastal erosion.
This study contributes to carbon estimates for West-Central Africa as reported by Kauffman and Bhomia (2017). It confirms the carbon storage potential of mangrove ecosystems and highlights the impact of local cultural practices on mangrove carbon stocks. There is, therefore, an urgent need to consider the use of local tradition and governance approaches to improve conservation of mangrove ecosystems.
Given the high dependence of local inhabitants on services provided by mangroves, conservation measures and research towards the sustainable use of mangroves in Ghana must be prioritized in addition to sensitization and strengthening of local governance systems. The identification and scale-up of supplementary livelihood options for rural coastal communities, in the context of the blue economy, should be considered to reduce pressure on mangrove ecosystems. This study provides a snapshot of carbon stored in degraded and non-degraded mangrove forests without recourse to carbon flux caused by anthropogenic and ecological changes. Additionally, non-randomization of sampling plots in this study may account for a lower average carbon stocks value for the whole forest due to lower tree density in some areas outside of sampling plots. It will, therefore, be important to establish permanent plots to conduct longitudinal studies to generate data for the reporting of Ghana’s nationally determined contribution of greenhouse gas emissions and removals as stipulated by the United Nations Framework Convention on Climate Change.

Author Contributions

Conceptualization, J.A. and D.W.A.; methodology, J.A.; investigation, J.A.; writing—original draft preparation, J.A. and E.A.; writing—review and editing, J.A., E.A., D.W.A. and J.B. All authors have read and agreed to the published version of the manuscript.

Funding

This research received no external funding.

Institutional Review Board Statement

Not applicable.

Informed Consent Statement

Not applicable.

Data Availability Statement

Data are available upon request.

Acknowledgments

This research was part of the first author’s MPhil thesis and we, therefore, wish to thank Justice C. Mensah of Hen Mpoano for the background information and maps of the study sites.

Conflicts of Interest

The authors declare no conflict of interest.

References

  1. Hashimoto, K. Global Temperature and Atmospheric Carbon Dioxide Concentration. In Global Carbon Dioxide Recycling; SpringerBriefs in Energy; Springer: Singapore, 2019; pp. 5–17. [Google Scholar] [CrossRef]
  2. Alimonti, G.; Mariani, L.; Prodi, F.; Ricci, R.A. A critical assessment of extreme events trends in times of global warming. Eur. Phys. J. Plus 2022, 137, 1–20. [Google Scholar] [CrossRef]
  3. Ardón, M.; Helton, A.M.; Bernhardt, E.S. Drought and saltwater incursion synergistically reduce dissolved organic carbon export from coastal freshwater wetlands. Biogeochemistry 2016, 127, 411–426. [Google Scholar] [CrossRef]
  4. Nichols, C.R.; Zinnert, J.; Young, D.R. Degradation of coastal ecosystems: Causes, impacts and mitigation efforts. In Coastal Research Library; Springer International Publishing: Cham, Switzerland, 2019; Volume 27, pp. 119–136. [Google Scholar] [CrossRef]
  5. Ford, H.V.; Jones, N.H.; Davies, A.J.; Godley, B.J.; Jambeck, J.R.; Napper, I.E.; Suckling, C.C.; Williams, G.J.; Woodall, L.C.; Koldewey, H.J. The fundamental links between climate change and marine plastic pollution. Sci. Total Environ. 2022, 806, 150392. [Google Scholar] [CrossRef] [PubMed]
  6. He, Q.; Silliman, B. Climate Change, Human Impacts, and Coastal Ecosystems in the Anthropocene. Curr. Biol. 2019, 29, R1021–R1035. [Google Scholar] [CrossRef] [PubMed]
  7. Henry, M.; Maniatis, D.; Gitz, V.; Huberman, D.; Valentini, R. Implementation of REDD + in sub-Saharan Africa: State of knowledge, challenges and opportunities. In Environment and Development Economics; Cambridge University Press: Cambridge, UK, 2011; p. 24. [Google Scholar] [CrossRef]
  8. IPCC. Climate Change 2014: Impacts, Adaptations and Vulneralbilities; Edenhofer, R.O., Pichs-Madruga, Y., Sokona, E., Farahani, S., Kadner, K., Seyboth, A., Adler, I., Baum, S., Brunner, P., Eickemeier, B., et al., Eds.; IPCC: Geneva, Switzerland, 2014. [Google Scholar]
  9. Kumar, A.; Kumar, M.; Pandey, R.; ZhiGuo, Y.; Cabral-Pinto, M. Forest soil nutrient stocks along altitudinal range of Uttarakhand Himalayas: An aid to Nature Based Climate Solutions. Catena 2021, 207, 105667. [Google Scholar] [CrossRef]
  10. IPCC. Climate Change 2007: Synthesis Report. Contribution of Working Groups I, II and III to the Fourth Assessment Report of the Intergovernmental Panel on Climate Change. In Intergovernmental Panel on Climate Change; IPCC: Geneva, Switzerland, 2007. [Google Scholar] [CrossRef]
  11. Atwood, T.B.; Connolly, R.M.; Almahasheer, H.; Carnell, P.E.; Duarte, C.M.; Lewis CJ, E.; Irigoien, X.; Kelleway, J.J.; Lavery, P.S.; Macreadie, P.I.; et al. Global patterns in mangrove soil carbon stocks and losses. Nat. Clim. Chang. 2017, 7, 523–528. [Google Scholar] [CrossRef]
  12. de Jong Cleyndert, G.; Cuni-Sanchez, A.; Seki, H.A.; Shirima, D.D.; Munishi PK, T.; Burgess, N.; Calders, K.; Marchant, R. The effects of seaward distance on above and below ground carbon stocks in estuarine mangrove ecosystems. Carbon Balance Manag. 2020, 15, 1–15. [Google Scholar] [CrossRef]
  13. Jardine, S.L.; Siikamäki, J.V. A global predictive model of carbon in mangrove soils. Environ. Res. Lett. 2014, 9, 104013. [Google Scholar] [CrossRef]
  14. Kauffman, J.B.; Adame, M.F.; Arifanti, V.B.; Schile-Beers, L.M.; Bernardino, A.F.; Bhomia, R.K.; Donato, D.C.; Feller, I.C.; Ferreira, T.O.; Jesus Garcia M del, C.; et al. Total ecosystem carbon stocks of mangroves across broad global environmental and physical gradients. Ecol. Monogr. 2020, 90, 1–18. [Google Scholar] [CrossRef]
  15. McLeod, E.; Chmura, G.L.; Bouillon, S.; Salm, R.; Björk, M.; Duarte, C.M.; Lovelock, C.E.; Schlesinger, W.H.; Silliman, B.R. A blueprint for blue carbon: Toward an improved understanding of the role of vegetated coastal habitats in sequestering CO2. Front. Ecol. Environ. 2011, 9, 552–560. [Google Scholar] [CrossRef]
  16. Kristensen, E. Carbon balance in mangrove sediments: The driving processes and their controls. In Greenhouse gas and Carbon Balances in Mangrove Coastal Ecosystem; Tateda, Y., Upstill-Goddard, R., Goreau, T., Alongi, D., Nose, A., Kristensen, E., Wattayakorn, G., Eds.; Gendai Tosho: Kanagawa, Japan, 2007; pp. 61–78. [Google Scholar]
  17. Alongi, D.M.; Mukhopadhyay, S.K. Contribution of mangroves to coastal carbon cycling in low latitude seas. Agric. For. Meteorol. 2015, 213, 266–272. [Google Scholar] [CrossRef]
  18. Giri, C.; Ochieng, E.; Tieszen, L.L.; Zhu, Z.; Singh, A.; Loveland, T.; Masek, J.; Duke, N. Status and distribution of mangrove forests of the world using earth observation satellite data. Glob. Ecol. Biogeogr. 2011, 20, 154–159. [Google Scholar] [CrossRef]
  19. Herr, D.; Pidgeon, E.; Laffoley, D. (Eds.) Blue Carbon Policy Framework: Based on the First Workshop of the International Blue Carbon Policy Working Group; IUCN: Gland, Switzerland; Arlington, VA, USA, 2011; viþ39p. [Google Scholar]
  20. Kirwan, M.L.; Megonigal, J.P. Tidal wetland stability in the face of human impacts and sea-level rise. Nature 2013, 504, 53–60. [Google Scholar] [CrossRef]
  21. Goldberg, L.; Lagomasino, D.; Thomas, N.; Fatoyinbo, T. Global declines in human-driven mangrove loss. Glob. Chang. Biol. 2020, 26, 5844–5855. [Google Scholar] [CrossRef] [PubMed]
  22. Richards, D.R.; Thompson, B.S.; Wijedasa, L. Quantifying net loss of global mangrove carbon stocks from 20 years of land cover change. Nat. Commun. 2020, 11, 4260. [Google Scholar] [CrossRef]
  23. FAO. Global Forest Resources Assessment; Food and Agriculture Organization of the United Nations: Rome, Italy, 2010; p. 333. [Google Scholar]
  24. Datta, D.; Chattopadhyay, R.N.; Guha, P. Community based mangrove management: A review on status and sustainability. J. Environ. Manag. 2012, 107, 84–95. [Google Scholar] [CrossRef]
  25. Bryan-brown, D.N.; Connolly, R.M.; Richards, D.R.; Adame, F.; Friess, D.A.; Brown, C.J. Global trends in mangrove forest fragmentation. Sci. Rep. 2020, 10, 7117. [Google Scholar] [CrossRef]
  26. Hutchison, J.; Manica, A.; Swetnam, R.; Balmford, A.; Spalding, M. Predicting global patterns in mangrove forest biomass. Conserv. Lett. 2014, 7, 233–240. [Google Scholar] [CrossRef]
  27. Palmate, S.S.; Pandey, A.; Kumar, D.; Pandey, R.P.; Mishra, S.K. Climate change impact on forest cover and vegetation in Betwa Basin, India. Appl. Water Sci. 2017, 7, 103–114. [Google Scholar] [CrossRef]
  28. Palmate, S.S.; Pandey, A.; Pandey, R.P.; Mishra, S.K. Assessing the land degradation and greening response to changes in hydro-climatic variables using a conceptual framework: A case-study in central India. Land Degrad. Dev. 2021, 32, 4132–4148. [Google Scholar] [CrossRef]
  29. Harmon, M.E.; Bond-Lamberty, B.; Tang, J.; Vargas, R. Heterotrophic respiration in disturbed forests: A review with examples from North America. J. Geophys. Res. 2011, 116, 1–17. [Google Scholar] [CrossRef]
  30. Alongi, D.M. Global Significance of Mangrove Blue Carbon in Climate Change Mitigation. Science 2020, 2, 67. [Google Scholar] [CrossRef]
  31. Macreadie, P.I.; Nielsen, D.A.; Kelleway, J.J.; Atwood, T.B.; Seymour, J.R.; Petrou, K.; Connolly, R.M.; Thomson AC, G.; Trevathan-Tackett, S.M.; Ralph, P.J. Can we manage coastal ecosystems to sequester more blue carbon? Front. Ecol. Environ. 2017, 15, 206–213. [Google Scholar] [CrossRef]
  32. Climate Investment Funds. Ghana Investment Plan for the Forest Investment Program; Ministry of Lands and Natural Resources: Accra, Ghana, 2012; p. 157.
  33. Robinson EJ, Z.; Albers, H.J.; Meshack, C.; Lokina, R.B. Implementing REDD through community-based forest management: Lessons from Tanzania. Nat. Resour. Forum 2013, 37, 141–152. [Google Scholar] [CrossRef]
  34. Indufor. Development of Reference Emissions Levels and Measurement, Reporting and Verification System in Ghana. 2015. Available online: https://www.forestcarbonpartnership.org/system/files/documents/Ghana%20MRV%20Final%20Report%20%28ID%2067024%29.pdf (accessed on 26 August 2022).
  35. Aheto, D.W.; Kankam, S.; Okyere, I.; Mensah, E.; Osman, A.; Jonah, F.E.; Mensah, J.C. Community-based mangrove forest management: Implications for local livelihoods and coastal resource conservation along the Volta estuary catchment area of Ghana. Ocean Coast. Manag. 2016, 127, 43–54. [Google Scholar] [CrossRef]
  36. Asante, W.A.; Acheampong, E.; Boateng, K.; Adda, J. The implications of land tenure and ownership regimes on sustainable mangrove management and conservation in two Ramsar sites in Ghana. For. Policy Econ. 2017, 85, 65–75. [Google Scholar] [CrossRef]
  37. Adupong, R.; Doku DN, N.; Asiedu, J. Compilation of Customary Laws and Practices in the Greater Amanzule Wetland Areas; USAID Integrated Coastal and Fisheries Governance Initiative for the Western Region: Takoradi, Ghana, 2013; p. 41.
  38. Gnansounou, C.; Sagoe, A.A.; Mattah, A.P.; Dzorgbe Aheto, D.W.; Kakaï, R. Mangrove ecosystem services, associated threats and implications for wellbeing in the Mono Transboundary Biosphere Reserve (Togo-Benin), West-Africa. Sustainability 2022, 14, 2438. [Google Scholar] [CrossRef]
  39. Dudley, N.; Higgins-Zogib, L.; Mansourian, S. Beyond Belief: Linking Faiths and Protected Areas to Support Biodiversity Conservation; WWF International, Equilibrium and Alliance of Religions and Conservation (ARC): Manchester, UK, 2005; p. 144. [Google Scholar]
  40. Din, N.; Saenger, P.; Jules, P.R.; Siegfried, D.D.; Basco, F. Logging activities in mangrove forests: A case study of Douala Cameroon. Afr. J. Environ. Sci. Technol. 2008, 2, 022–030. [Google Scholar]
  41. Kauffman, B.J.; Bhomia, R.K. Ecosystem carbon stocks of mangroves across broad environmental gradients in West-Central Africa: Global and regional comparisons. PLoS ONE 2017, 12, e0187749. [Google Scholar] [CrossRef]
  42. Aheto, D.W.; Aduomih OA, A.; Obodai, E.A. Structural parameters and above-ground biomass of mangrove tree species around the Kakum river estuary of Ghana. Ann. Biol. Res. 2011, 2, 504–514. [Google Scholar]
  43. Dali, G.L.A. Assessment of the Ecological Health of Mangrove Forests along the Kakum and Pra Estuaries in Ghana; University of Cape Coast: Cape Coast, Ghana, 2020. [Google Scholar]
  44. Ajonina, G.N.; Agardy, T.; Lau, W.; Agbogah, K.; Gormey, B. Mangrove conditions as indicators for potential payment for ecosystem services in some estuaries of Western Region of Ghana, West Africa. In The Land/Ocean Interactions in the Coastal Zone of West and Central Africa, Estuaries of the World; Diop, S., Ed.; Springer International Publishing: Cham, Switzerland, 2014. [Google Scholar] [CrossRef]
  45. Anim-Kwapong, G.; Frimpong, E.B. Climate change on cocoa production. In Ghana Climate Change Impacts, Vulnerability and Adaptation Assessment under The Netherlands Climate Assistance Programme (NCAP); Agyeman-Bonsu, W., Ed.; Enviromental Protection Agency: Accra, Ghana, 2008; pp. 263–298. [Google Scholar]
  46. Effland, W.R.; Asiamah, R.D.; Adjei-Gyapong, T.; Dela-Dedzoe, C.; Boateng, E. Discovering soils in the tropics: Soil classification in Ghana. Soil Horiz. 2015, 50, 39. [Google Scholar] [CrossRef]
  47. Ajonina, G. Rapid assessment of mangrove status to assess potential for payment for ecosystem services in Amanzule in the Western Region of Ghana. In USAID Integrated Coastal and Fisheries Governance Program for the Western Region of Ghana …; 2011; Available online: http://fonghana.org/wp-content/uploads/2014/01/Rapid Assessment of Mangrove Status in Western Region of Ghana.pdf (accessed on 9 August 2019).
  48. Kauffman, J.; Donato, D. Protocols for the measurement, monitoring and reporting of structure, biomass and carbon stocks in mangrove forests. In Center for International Forestry; CIFOR: Bogor, Indonesia, 2012; Available online: http://www.amazonico.org/speclab/SiteAssets/SitePages/Methods/Mangrove-biomass-CIFOR.pdf (accessed on 27 May 2018).
  49. Komiyama, A.; Ongb, J.E.; Poungparn, S. Allometry, biomass, and productivity of mangrove forests: A review. Aquat. Bot. 2008, 89, 128–137. [Google Scholar] [CrossRef]
  50. Howard, J.; Hoyt, S.; Isensee, K.; Telszewski, M.; Pidgeon, E. Coastal Blue Carbon: Methods for Assessing Carbon Stocks and Emissions Factors in Mangroves, Tidal Salt Marshes, and Seagrasses. 2014. Available online: https://www.cifor.org/knowledge/publication/5095/ (accessed on 12 January 2020).
  51. Komiyama, A.; Poungparn, S.; Kato, S. Common allometric equations for estimating the tree weight of mangroves. J. Trop. Ecol. 2005, 21, 471–477. [Google Scholar] [CrossRef]
  52. Bajgai, Y.; Hulugalle, N.; Kristiansen, P.; Mchenry, M. Developments in fractionation and measurement of soil organic carbon: A Review. J. Soil Sci. 2013, 2013, 356–360. [Google Scholar] [CrossRef]
  53. Nelson, D.W.; Sommers, L.E. A rapid and accurate method for estimating organic carbon in soil. Proc. Indiana Acad. Sci. 1975, 84, 456–562. [Google Scholar]
  54. Tamooh, F.; Huxham, M.; Karachi, M.; Mencuccini, M.; Kairo, J.G.; Kirui, B. Below-ground root yield and distribution in natural and replanted mangrove forests at Gazi bay, Kenya. For. Ecol. Manag. 2008, 256, 1290–1297. [Google Scholar] [CrossRef]
  55. Haruna, W.Z. Ecological and Regeneration Studies of the Iture Mangrove Stand, Ghana; University of Cape Coast: Cape Coast, Ghana, 2002. [Google Scholar]
  56. Yu, T.R. (Ed.) Chemistry of Variable Charge Soils; Oxford University Press: New York, NY, USA, 1997. [Google Scholar]
  57. USDA. Soil Quality Indicators; USDA Natural Resource Conservation Service: Washington, DC, USA, 2008; p. 7.
  58. Donato, D.C.; Kauffman, J.B.; Murdiyarso, D.; Kurnianto, S.; Stidham, M.; Kanninen, M. Mangroves among the most carbon-rich forests in the tropics. Nat. Geosci. 2011, 4, 293–297. [Google Scholar] [CrossRef]
  59. Assefa, G.; Mengistu, T.; Getu, Z.; Zewdie, S. Training Manual on: Forest Carbon Pools and Carbon Stock Assessment in the Context of SFM and REDD+; Wondo Genet College of Forestry and Natural Resources: Wondo Genet, Ethiopia, 2013; p. 74. [Google Scholar]
  60. Scharlemann JP, W.; Tanner EV, J.; Hiederer, R.; Kapos, V. Global soil carbon: Understanding and managing the largest terrestrial carbon pool. Carbon Manag. 2014, 5, 81–91. [Google Scholar] [CrossRef]
Figure 1. Study areas showing sampling locations.
Figure 1. Study areas showing sampling locations.
Sustainability 14 12782 g001
Figure 2. Schematic layout of sampling plots used in the study.
Figure 2. Schematic layout of sampling plots used in the study.
Sustainability 14 12782 g002
Figure 3. Variations in soil bulk density in (a) Kakum and (b) Amanzule mangrove forests.
Figure 3. Variations in soil bulk density in (a) Kakum and (b) Amanzule mangrove forests.
Sustainability 14 12782 g003
Figure 4. Variations in mean (±s.e.) soil organic carbon density in (a) Kakum and (b) Amanzule mangrove forests.
Figure 4. Variations in mean (±s.e.) soil organic carbon density in (a) Kakum and (b) Amanzule mangrove forests.
Sustainability 14 12782 g004
Figure 5. Mean tree carbon density of mangrove species at (a) Kakum (b) Amanzule mangrove forests.
Figure 5. Mean tree carbon density of mangrove species at (a) Kakum (b) Amanzule mangrove forests.
Sustainability 14 12782 g005
Table 1. Mean (±s.e.) height and diameter at breast height (DBH) of trees in the two mangrove forest systems.
Table 1. Mean (±s.e.) height and diameter at breast height (DBH) of trees in the two mangrove forest systems.
Kakum Forest Amanzule Forest
SpeciesHeight (m)DBH (cm)NHeight (m)DBH (cm)N
R. mangle2.89 ± 0.05 a2.94 ± 0.06 a1158.09 ± 0.07 a10.31 ± 0.25 a1174
A. germinans2.74 ± 0.01 b3.00 ± 0.02 b19125.75 ± 0.14 b7.80 ± 0.42 b180
L. racemosa2.25 ± 0.05 c2.76 ± 0.05 c1763.65 ± 0.17 c4.13 ± 0.25 c13
Values with different superscripts in a column are statistically different (p < 0.05). N = number of trees measured.
Table 2. Mean (±s.d.) stand density and tree biomass in the Kakum (KA) and Amanzule (AM) mangrove forests.
Table 2. Mean (±s.d.) stand density and tree biomass in the Kakum (KA) and Amanzule (AM) mangrove forests.
Mean Stand Density (no./ha)Mean Tree Biomass (t/ha)
PlotKAAMKAAM
A3300 ± 2203.471333.33 ± 569.830.025 ± 0.02 a5.42 ± 9.96 a
B3866.67± 2152.972388.89 ± 1260.70.025 ± 0.02 a0.37 ± 0.79 b
C5272.22 ± 2325.263883.33 ± 955.630.029 ± 0.02 b0.29 ± 0.36 c
Values with different superscripts in a column are statistically different (p < 0.05).
Table 3. Mean (±s.e.) species density and basal area of trees in the Kakum (KA) and Amanzule (AM) mangrove forests.
Table 3. Mean (±s.e.) species density and basal area of trees in the Kakum (KA) and Amanzule (AM) mangrove forests.
Mean Species Density (Trees/ha)Total Basal Area (m2/ha)
SpeciesKANAMNKAAM
R. mangle212.96 ± 33.341152174.07 ± 33.0511740.1530.43
A. germinans2712.96 ± 423.051912333.33 ± 54.111802.672.44
L. racemosa325.93 ± 50.9517624.07± 3.89130.200.03
Table 4. Two-way ANOVA comparing biological characteristics of mangrove species found in forest protected by traditional customs (Amanzule) and forest exposed to consumptive exploitation (Kakum).
Table 4. Two-way ANOVA comparing biological characteristics of mangrove species found in forest protected by traditional customs (Amanzule) and forest exposed to consumptive exploitation (Kakum).
Tree SpeciesBiological CharacteristicSource of VarianceSSdfMSFp-Value
Rhizophora mangleBasal AreaForest (F)0.00110.0011.5230.217
Sampling plot (P)0.39720.199230.3360.000
F × P1.17 × 10−611.17 × 10−60.0010.971
Avicennia germinansBasal AreaForest (F)0.00210.002122.8540.000
Sampling plot (P)0.00220.00158.4210.000
F × P0.00210.002105.8120.000
Laguncularia racemosaBasal AreaForest (F)6.904 × 10−616.904 × 10−662.9380.253
Sampling plot (P)1.641 × 10−811.641 × 10−80.1500.001
F × P0.000---
Table 5. Two-way ANOVA comparing organic carbon in different layers of soil found in forest protected by traditional customs (Amanzule) and forest exposed to consumptive exploitation (Kakum).
Table 5. Two-way ANOVA comparing organic carbon in different layers of soil found in forest protected by traditional customs (Amanzule) and forest exposed to consumptive exploitation (Kakum).
Depth of Soil LayerSource of VarianceSSdfMSFp-Value
0–15 cmType of forest management (F)490,919.7651490,919.76574.7120.000
Sampling Area (A)98,489.604249,244.8027.4940.002
F × A26,556.127213,278.0642.0210.150
16–30 cmType of forest management (F)430,583.1291430,583.12971.1140.000
Sampling Area (A)76,805.348238,402.6746.3420.005
F × A21,297.150210,648.5751.7590.190
31–50 cmType of forest management (F)576,121.4811576,121.48169.9390.000
Sampling Area (A)76,311.015238,155.5084.6320.018
F × A12,190.14526095.0730.7400.486
51–100 cmType of forest management (F)549,407.0881549,407.08836.3690.000
Sampling Area (A)106,337.977253,168.9883.5200.042
F × A32,895.955216,447.9771.0890.350
Table 6. Mean (±s.d.) carbon density (kg) per tree for each species.
Table 6. Mean (±s.d.) carbon density (kg) per tree for each species.
KakumNAmanzuleN
R. mangle2.37 ± 1.44115209.27 ± 3602.391174
A. germinans2.12 ± 1.55191273.67 ± 498.63180
L. racemosa1.42 ± 0.831765.97 ± 10.9113
Table 7. Mean (±s.e.) tree and soil carbon densities in the Kakum and Amanzule mangrove forests.
Table 7. Mean (±s.e.) tree and soil carbon densities in the Kakum and Amanzule mangrove forests.
Tree Carbon (t/ha)Soil Carbon (t/ha)
KakumAmanzuleKakumAmanzule
PLOT A0.03 ± 0.022.39 ± 4.43198.06 ± 25.932124.66 ± 184.81
PLOT B0.02 ± 0.020.16 ± 0.35838.92 ± 44.883881.38 ± 211.50
PLOT C0.03 ± 0.020.13 ± 0.16624.98 ± 178.672798.65 ± 396.68
Table 8. Two-way ANOVA comparing above- and below-ground tree carbon found in Amanzule and Kakum forests.
Table 8. Two-way ANOVA comparing above- and below-ground tree carbon found in Amanzule and Kakum forests.
CarbonSource of VarianceSSdfMSFp-Value
Total aboveground carbonForest (F)341,524,812.6821341,524,812.682397.1580.000
Sampling plot (P)410,660,717.8212205,330,358.910238.7780.000
F × P411,237,085.8752205,618,542.937239.1130.000
Total belowground carbonForest (F)29,728,701.454129,728,701.454599.2900.000
Sampling plot (P)33,426,430.089216,713,215.044336.9150.000
F × P33,504,196.857216,752,098.429337.6990.000
Publisher’s Note: MDPI stays neutral with regard to jurisdictional claims in published maps and institutional affiliations.

Share and Cite

MDPI and ACS Style

Adotey, J.; Acheampong, E.; Aheto, D.W.; Blay, J. Carbon Stocks Assessment in a Disturbed and Undisturbed Mangrove Forest in Ghana. Sustainability 2022, 14, 12782. https://doi.org/10.3390/su141912782

AMA Style

Adotey J, Acheampong E, Aheto DW, Blay J. Carbon Stocks Assessment in a Disturbed and Undisturbed Mangrove Forest in Ghana. Sustainability. 2022; 14(19):12782. https://doi.org/10.3390/su141912782

Chicago/Turabian Style

Adotey, Joshua, Emmanuel Acheampong, Denis Worlanyo Aheto, and John Blay. 2022. "Carbon Stocks Assessment in a Disturbed and Undisturbed Mangrove Forest in Ghana" Sustainability 14, no. 19: 12782. https://doi.org/10.3390/su141912782

APA Style

Adotey, J., Acheampong, E., Aheto, D. W., & Blay, J. (2022). Carbon Stocks Assessment in a Disturbed and Undisturbed Mangrove Forest in Ghana. Sustainability, 14(19), 12782. https://doi.org/10.3390/su141912782

Note that from the first issue of 2016, this journal uses article numbers instead of page numbers. See further details here.

Article Metrics

Back to TopTop