Transformation of Socialist Realistic Residential Architecture into a Contemporary Sustainable Housing Habitat—General Approach and the Case Study
Abstract
:1. Introduction
2. Research Motivation, Materials and Methods
3. Literature Research Report
3.1. Multi-Family Housing in the 1950s in Poland
3.2. Contemporary Context
3.3. Sustainable Housing Environment—Theories and Patterns
4. Modernization Potential and Appropriate Transformation Directions
4.1. Architectural and Urban Characteristics
4.2. Living Comfort
4.3. Aims and Directions of Adaptation to a Contemporary Sustainable Living Environment
5. Case Study—Residential Complex between Hetmańska and Staszica Streets in Rzeszów
5.1. Characteristics of the Housing Complex
5.2. General Assumptions of the Proposed Changes
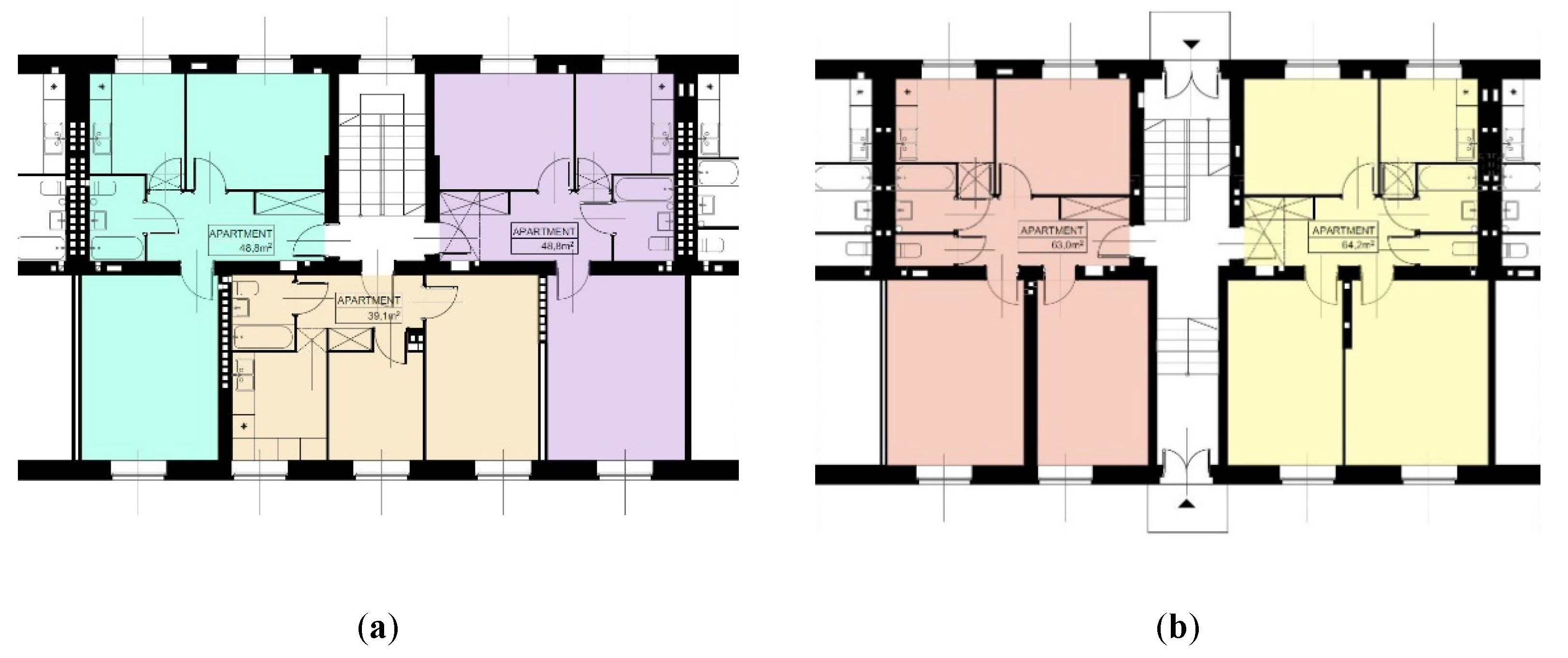
5.3. Changes Improving the Standard of Flats
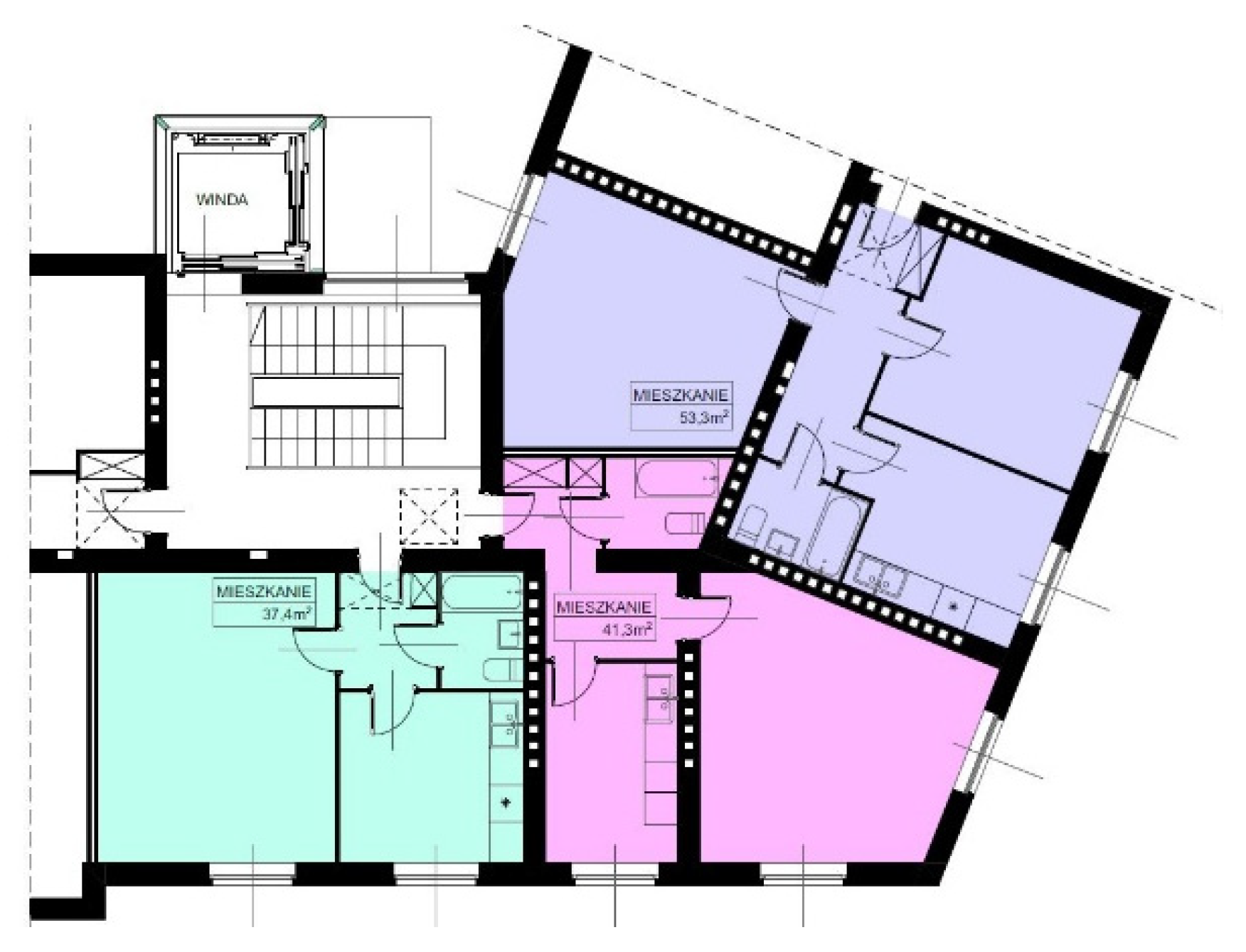
5.4. Roof Development Concept
5.5. Premises Intended for Commercial Activities
5.6. Construction and Building Aspects
5.7. Ecological Aspects
6. Discussion
7. Conclusions
Author Contributions
Funding
Conflicts of Interest
References
- Hirt, S.; Stanilov, K. Twenty Years of Transition: The Evolution of Urban Planning in Eastern Europe and the Former Soviet Union, 1989–2009; UN-HABITAT: Nairobi, Kenya, 2009. [Google Scholar]
- World Economic Forum. Making Affordable Housing a Reality in Cities; World Economic Forum: Geneva, Switzerland, 2019. [Google Scholar]
- Aernouts, N.; Marranghi, E.; Ryckewaert, M. (Eds.) The Regeneration of Large-Scale Social Housing Estates. Spatial, Territorial, Institutional and Planning Dimensions; Soholab: Brussels, Belgium, 2020. [Google Scholar]
- Cymer, A. Architektura w Polsce 1945–1989; Centrum Architektury, Narodowy Instytut Architektury i Urbanistyki: Warszawa, Poland, 2019. [Google Scholar]
- Mazur, R. Dobra Kontynuacja; Oficyna Wydawnicza Politechniki Rzeszowskiej: Rzeszów, Poland, 2019. [Google Scholar]
- Nowicki, J. Budownictwo mieszkaniowe-osiedlowe. In Budownictwo i Architektura w Polsce 1945–1966; Zachwatowicz, J., Ed.; Wydawnictwo Interpress: Warszawa, Poland, 1968; pp. 36–47. [Google Scholar]
- Zarządzenie Ministra Gospodarki Komunalnej z dnia 8 marca 1951 roku w sprawie zasad ustalania norm zaludnienia mieszkań. (Monitor Polski Nr A-24, Poz. 314). Available online: http://isap.sejm.gov.pl/isap.nsf/download.xsp/WMP19510240314/O/M19510314.pdf (accessed on 25 October 2021).
- Uchwała nr 70 Prezydium Rządu z dnia 6 lutego 1954 r. w sprawie zatwierdzenia normatywów projektowania dla budownictwa. mieszkaniowego (Monitor Polski Nr 120, Poz. 1688). Available online: http://isap.sejm.gov.pl/isap.nsf/download.xsp/WMP19541201688/O/M19541688.pdf (accessed on 25 October 2021).
- Rocznik Statystyczny 1955; Główny Urząd Statystyczny: Warszawa, Poland, 1956.
- Kotarbiński, A. Rozwój Urbanistyki i Architektury Polskiej w Latach 1944–1964. Próba Charakterystyki Krytycznej; Państwowe Wydawnictwo Naukowe: Warszawa, Poland, 1967. [Google Scholar]
- Rocznik Statystyczny 2020; Główny Urząd Statystyczny: Warszawa, Poland, 2021.
- Żarski, T. Budownictwo Mieszkaniowe w Polsce w Latach 1950–1965; Państwowe Wydawnictwo Ekonomiczne: Warszawa, Poland, 1966. [Google Scholar]
- Sendi, R.; Kerbler, B. The Evolution of Multifamily Housing: Post-Second World War Large Housing Estates versus Post-Socialist Multifamily Housing Types in Slovenia. Sustainability 2021, 13, 10363. [Google Scholar] [CrossRef]
- Ustawa z dnia 29 kwietnia 1985 r. o gospodarce gruntami i wywłaszczaniu nieruchomości. Dz. U. 1985, 22, 99.
- Zaniewska, H.; Dąbkowski, N.; Thiel, M. Budownictwo mieszkaniowe z udziałem środków publicznych w gminach. Probl. Rozw. Miast. Kwart. Nauk. Inst. Rozw. Miast 2014, 4, 49–57. [Google Scholar]
- Ustawa z dnia 20 lipca 2018 r. o przekształceniu prawa użytkowania wieczystego gruntów zabudowanych na cele mieszkaniowe w prawo własności tych gruntów. Dz. U. 2018, 1716.
- The State of Housing in Europe 2021. Available online: https://www.stateofhousing.eu/The_State_of_Housing_in_the_EU_2021.pdf (accessed on 25 October 2021).
- Housing in Europe. Available online: https://ec.europa.eu/eurostat/cache/digpub/housing (accessed on 25 October 2021).
- Nedučin, D.; Škorić, M.; Krklješ, M. Post-socialist Development and Rehabilitation of Large Housing Estates in Central and Eastern Europe: A Review. Tech. Gaz. 2009, 26, 1853–1860. [Google Scholar]
- Tofiluk, A.; Knyziak, P.; Krentowski, J. Revitalization of Twentieth-Century Prefabricated Housing Estates as Interdisciplinary Issue. Mater. Sci. Eng. 2019, 471, 112096. [Google Scholar] [CrossRef]
- Zaniewska, H. Architektoniczno-urbanistyczne i społeczne aspekty dostosowania powojennej zabudowy osiedlowej do standardów XXI wieku. Przegląd Bud. 2013, 3, 145–148. [Google Scholar]
- Kosiura, M.; Kłodaś, A.; Kaczyńska, D. Revitalization & Modernization in Poland; Inicjatywa Drugie Życie Budynków: Warszawa, Poland, 2018. [Google Scholar]
- Jakóbczyk-Gryszkiewicz, J.; Sztybel-Boberek, M.; Wolaniuk, A. Post-socialist Gentrification Processes in Polish Cities. Eur. Spat. Res. Policy 2017, 24, 145–166. [Google Scholar] [CrossRef]
- Nickayin, S.; Halbac-Cotoara-Zanfir, R.; Clemente, M.; Chelli, F.; Salvati, L.; Benassi, F.; Morera, A. “Qualifying Peripheries” or “Repolarizing the Center”: A Comparison of Gentrification Processes in Europe. Sustainability 2020, 12, 9039. [Google Scholar] [CrossRef]
- Szczerek, E. Rewitalizacja Osiedli Wielkopłytowych a Ciągłość i Komplementarność Przestrzeni Publicznej Miasta; Politechnika Krakowska im. Tadeusza Kościuszki: Kraków, Poland, 2018. [Google Scholar]
- Szafrańska, E. Transformations of Large Housing Estates in Central and Eastern Europe after the Collapse of Communism. Geogr. Pol. 2015, 88, 621–648. [Google Scholar] [CrossRef] [Green Version]
- Trumbull, N.S. Restructuring socialist housing estates and its impact on residents’ perceptions: ‘‘Renovatsiia’’ of khrushchevki in St. Petersburg, Russia. GeoJournal 2014, 79, 495–511. [Google Scholar] [CrossRef]
- Phuong, D.Q. (Re)developing old apartment blocks in Hanoi: Government vision, local resistance and spatial routines. J. Asian Archit. Build. Eng. 2019, 18, 311–323. [Google Scholar] [CrossRef]
- Przesmycka, E.; Napieralska, Z. Residential districts of the socialist realism period in Poland (1949–1956). Analysis, comparison and protection. Teka Kom. Archit. Urban. Studiów Kraj. Oddziału Pol. Akad. Nauk. Lub. 2020, 3, 7–18. [Google Scholar]
- Sumorok, A. The idea of the socialist city. The case of Nowa Huta. Tech. Trans. Archit. 2015, 12-A, 303–340. [Google Scholar]
- Lewicki, J. Assessing the value of the modernist epoch monuments. Past, present and future. J. Herit. Conserv. 2017, 49, 38–50. [Google Scholar]
- Jacobs, J. The Death and Life of Great American Cities; Vintage Books: New York, NY, USA, 1961. [Google Scholar]
- Alexander, C. A Pattern Language. Towns-Buildings-Constructions; Oxford University Press: New York, NY, USA, 1977. [Google Scholar]
- Gehl, J. Life between Buildings. Using Public Space; Island Press: Washington, DC, USA; Covelo, CA, USA; London, UK, 2011. [Google Scholar]
- The New Charter of Athens 1998. Available online: http://www.planum.net/document-0 (accessed on 25 October 2021).
- The New Charter of Athens 2003. Available online: https://patterns.architexturez.net/doc/az-cf-172768 (accessed on 25 October 2021).
- Report of the World Commission on Environment and Development: Our Common Future. Available online: https://sustainabledevelopment.un.org/content/documents/5987our-common-future.pdf (accessed on 25 October 2021).
- Kahn, A. Sustainable Development: The Key Concepts, Issues and Implications. Sustain. Dev. 1995, 3, 63–69. [Google Scholar]
- Lehmann, S. Green Urbanism: Formulating a Series of Holistic Principles. Surv. Perspect. Integr. Environ. Soc. 2010, 3, 1–10. [Google Scholar]
- Lami, I.; Mecca, B. Assesing Social Sustainability for Achieving Sustainable Architecture. Sustainability 2021, 13, 142. [Google Scholar] [CrossRef]
- Eizenberg, E.; Jabareen, Y. Social Sustainability: A New Conceptual Framework. Sustainability 2017, 9, 68. [Google Scholar] [CrossRef] [Green Version]
- Rudlin, D.; Falk, N. Sustainable Urban Neighbourhood. Building the 21st Century Home; Architectural Press: Oxford, UK, 1999. [Google Scholar]
- Nasr, J.; Komisar, J.; de Zeeuw, H. A Panorama of Rooftop Agriculture Types. In Rooftop Urban Agriculture; Orsini, F., Dubbeling, M., de Zeeuw, H., Gianquinto, G., Eds.; Springer International Publishing: Cham, Switzerland, 2017; pp. 9–30. [Google Scholar]
- Caputo, S.; Iglesias, P.; Rumble, H. Elements of Rooftop Agriculture Design. In Rooftop Urban Agriculture; Orsini, F., Dubbeling, M., de Zeeuw, H., Gianquinto, G., Eds.; Springer International Publishing: Cham, Switzerland, 2017; pp. 39–60. [Google Scholar]
- Naranjo, A.; Colonia, A.; Mesa, J.; Maury, H.; Maury-Ramirez, A. State-of-the-Art Green Roofs: Technical Performance and Certifications for Sustainable Construction. Coatings 2020, 10, 69. [Google Scholar] [CrossRef] [Green Version]
- Chidambaram, C.; Nath, S.S.; Varshney, P.; Kumar, S. Assessment of terrace gardens as modifiers of building microclimate. Energy Built Environ. 2021. [Google Scholar] [CrossRef]
- Gorgolewski, M.; Straka, V. Integrating Rooftop Agriculture into Urban Infrastructure. In Rooftop Urban Agriculture; Orsini, F., Dubbeling, M., de Zeeuw, H., Gianquinto, G., Eds.; Springer International Publishing: Cham, Switzerland, 2017; pp. 113–126. [Google Scholar]
- Harada, Y.; Whitlow, T.H. Urban Rooftop Agriculture: Challenges to Science and Practice. Front. Sustain. Food Syst. 2020, 4, 76. [Google Scholar] [CrossRef]
- Rodriguez, O. London Rooftop Agriculture a Preliminary Estimate of London’s Productive Potential. Master’s Thesis, Wels School of Architecture, Cardiff, UK, 2009. [Google Scholar]
- Rodríguez-Delfín, A.; Gruda, N.; Eigenbrod, C.; Orsini, F.; Gianquinto, G. Soil Based and Simplified Hydroponics Rooftop Gardens. In Rooftop Urban Agriculture; Orsini, F., Dubbeling, M., de Zeeuw, H., Gianquinto, G., Eds.; Springer International Publishing: Cham, Switzerland, 2017; pp. 61–82. [Google Scholar]
- Milanovic, D.; Djuric-Mijovic, D.; Savic, J. Green roofs as a model of re-using flat roofs. In Proceedings of the 2nd International Conference on Urban Planning, Nis, Serbia, 14–17 November 2018; pp. 261–268. [Google Scholar]
- Reimagining Spaces: Interconnection of Multi-Family Common Spaces. Available online: https://omgivning.com/journal/commonspace-amenities-wfh-rooftop-skyline-urbanfarming/ (accessed on 25 October 2021).
- Knaus, M.; Haase, D. Green roof effects on daytime heat in a prefabricated residential neighbourhood in Berlin, Germany. Urban For. Urban Green. 2020, 53, 126738. [Google Scholar] [CrossRef]
- Orsini, F.; Pennisi, G.; Michelon, N.; Minelli, A.; Bazzocchi, G.; Sanyé-Mengual, E.; Gianquinto, G. Features and Functions of Multifunctional Urban Agriculture in the Global North: A Review. Front. Sustain. Food Syst. 2020, 4, 562513. [Google Scholar] [CrossRef]
- Haase, D.; Kabisch, S.; Haase, A.; Andersson, E.; Banzhaf, E.; Baró, F.; Brenck, M.; Fischer, L.K.; Frantzeskaki, N.; Kabisch, N.; et al. Greening cities—To be socially inclusive? About the alleged paradox of society and ecology in cities. Habitat Int. 2017, 64, 41–48. [Google Scholar] [CrossRef]
- Sattler, S.; Zluwa, I.; Österreicher, D. The “PV Rooftop Garden”: Providing Recreational Green Roofs and Renewable Energy as a Multifunctional System within One Surface Area. Appl. Sci. 2020, 10, 1791. [Google Scholar] [CrossRef] [Green Version]
- ML System. Available online: https://mlsystem.pl/ (accessed on 25 October 2021).
- Zhang, X.; Lau, S.-K.; Lau, S.S.Y.; Zhao, Y. Photovoltaic integrated shading devices. Sol. Energy 2018, 170, 947–968. [Google Scholar] [CrossRef]
- Jelle, B.P. Building Integrated Photovoltaics: A Concise Description of the Current State of the Art and Possible Researche Pathways. Energies 2016, 9, 21. [Google Scholar] [CrossRef] [Green Version]
- Rosa, F. Building-Integrated Photovoltaics (BIPV) in Historical Buildings: Opportunities and Constraints. Energies 2020, 13, 3628. [Google Scholar] [CrossRef]
- Gminna Ewidencja Zabytków Miasta Rzeszowa. Available online: https://bip.erzeszow.pl/static/img/k02/MKZ/GEZ/GEZ_AKTUALNY_06.07.2021.pdf (accessed on 25 October 2021).
- Projekt techniczny budynku mieszkalnego w Rzeszowie, Archiwum Państwowe w Rzeszowie, Sygn. 59/211/0/18/2869.
- Projekt techniczny budynku mieszkalnego w Rzeszowie, Archiwum Państwowe w Rzeszowie, Sygn. 59/211/0/18/2867.
- Projekt techniczny budynku mieszkalnego w Rzeszowie, Archiwum Państwowe w Rzeszowie, Sygn. 59/211/0/18/2868.
- Popielas, T. Dobudowa Dźwigów Osobowych w Modernizowanych Budynkach Mieszkalnych WIelorodzinnych. Available online: https://inzynierbudownictwa.pl/dobudowa-dzwigow-osobowych-w-modernizowanych-budynkach-mieszkalnych-wielorodzinnych/ (accessed on 25 October 2021).
- Extra Energy. Available online: https://www.extra-energy.pl/ (accessed on 25 October 2021).
- Greg, W. Ocieplanie ścian Trójwarstwowych piana Poliuretanową. Available online: https://muratordom.pl/remont-domu/termomodernizacja/ocieplanie-scian-trojwarstwowych-piana-poliuretanowa-aa-349x-1nFC-XNjz.html (accessed on 25 October 2021).
- Soikekeli, A. Additional floors in old apartment blocks. Energy Procedia 2016, 96, 815–823. [Google Scholar] [CrossRef] [Green Version]
- Podsiadło, R. Rewitalizacja starych budynków wielopiętrowych. Przegląd Bud. 2006, 4, 23–25. [Google Scholar]
- Tomkowicz, B. Przekształcenia Przestrzeni Dachów. Ph.D. Thesis, Politechnika Krakowska im. Tadeusza Kościuszki, Kraków, Poland, 2019. [Google Scholar]
- Rozporządzenie Ministra Infrastruktury z dnia 12 Kwietnia 2002r. w Sprawie Warunków Technicznych, Jakim Powinny Odpowiadać Budynki i ich Usytuowanie. Dz. U. 2015, 1422. Available online: https://isap.sejm.gov.pl/isap.nsf/DocDetails.xsp?id=WDU20020750690 (accessed on 25 October 2021).
- Rozporządzenie Ministra Pracy i Polityki Socjalnej w sprawie ogólnych przepisów bezpieczeństwa i higieny pracy. Dz. U. 2003, 1650.
- Slim Floor. Available online: https://sections.arcelormittal.com/products_and_solutions/Our_Specialties/Slim_floor/EN (accessed on 25 October 2021).
- Farby fotokatalityczne—czym są i jakie mają zastosowanie? Na czym polega innowacja? Available online: https://www.muratorplus.pl/technika/chemia-budowlana/farby-fotokatalityczne-fenomen-na-rynku-farb-czym-sa-i-jakie-maja-zastosowanie-farby-fotokatalityczne-aa-8Dy9-qziZ-ngUV.html (accessed on 25 October 2021).
- Sim, D. Soft City. Building Density for Everyday Life; Island Press: Washington, DC, USA; Covelo, CA, USA; London, UK, 2019. [Google Scholar]
- Mochocka, S. Rehabilitacja Przestrzeni Kieleckich Osiedli Mieszkaniowych z lat 1960–1990 pod Kątem Współczesnych Potrzeb. Ph.D. Thesis, Politechnika Krakowska im. Tadeusza Kościuszki, Kraków, Poland, 2019. [Google Scholar]
- Andrews, K.D.; Sendi, R. Large Housing Estates in Slovenia: A Framework for Renewal. Int. J. Hous. Policy 2001, 1, 233–255. [Google Scholar] [CrossRef]
- Lucchi, E.; Delera, A.C. Enhancing the Historic Public Social Housing through a User-Centered Design-Driven Approach. Buildings 2020, 10, 159. [Google Scholar] [CrossRef]















Publisher’s Note: MDPI stays neutral with regard to jurisdictional claims in published maps and institutional affiliations. |
© 2021 by the authors. Licensee MDPI, Basel, Switzerland. This article is an open access article distributed under the terms and conditions of the Creative Commons Attribution (CC BY) license (https://creativecommons.org/licenses/by/4.0/).
Share and Cite
Piekarski, M.; Bajda, Ł.; Gotkowska, E. Transformation of Socialist Realistic Residential Architecture into a Contemporary Sustainable Housing Habitat—General Approach and the Case Study. Sustainability 2021, 13, 13486. https://doi.org/10.3390/su132313486
Piekarski M, Bajda Ł, Gotkowska E. Transformation of Socialist Realistic Residential Architecture into a Contemporary Sustainable Housing Habitat—General Approach and the Case Study. Sustainability. 2021; 13(23):13486. https://doi.org/10.3390/su132313486
Chicago/Turabian StylePiekarski, Maciej, Łukasz Bajda, and Ewelina Gotkowska. 2021. "Transformation of Socialist Realistic Residential Architecture into a Contemporary Sustainable Housing Habitat—General Approach and the Case Study" Sustainability 13, no. 23: 13486. https://doi.org/10.3390/su132313486
APA StylePiekarski, M., Bajda, Ł., & Gotkowska, E. (2021). Transformation of Socialist Realistic Residential Architecture into a Contemporary Sustainable Housing Habitat—General Approach and the Case Study. Sustainability, 13(23), 13486. https://doi.org/10.3390/su132313486

