Next Article in Journal
Procedural Knowledge of Primary School Teachers in Madagascar for Teaching and Learning towards Land-Use- and Health-Related Sustainable Development Goals
Previous Article in Journal
Measuring Average Luminance for Road Lighting from Outside the Carriageway with Imaging Sensor
 
 
Font Type:
Arial Georgia Verdana
Font Size:
Aa Aa Aa
Line Spacing:
Column Width:
Background:
Article

The Samcheong Hanok and the Evolution of the Traditional Korean House

Department of Architecture, Korea University, Seoul 02841, Korea
*
Author to whom correspondence should be addressed.
Sustainability 2021, 13(16), 9034; https://doi.org/10.3390/su13169034
Submission received: 22 June 2021 / Revised: 4 August 2021 / Accepted: 4 August 2021 / Published: 12 August 2021
(This article belongs to the Section Tourism, Culture, and Heritage)

Abstract

:
The hanok or traditional Korean house has evolved to meet modern conditions that are continually updated. The “Samcheong Hanok” located in Bukchon, the most representative hanok village in Seoul, is a typical example. The house was originally constructed around 1940 but underwent several stages of extension and repairs before finally being renovated by architect Wook Choi in 2000. It is arguable that the evolution of the Samcheong Hanok illustrates a typical history of modern hanok, which is characterized as two types according to certain periods. The first is the urban-type hanok, built approximately between 1930 and 1960, which is a standardized version that was mass-produced for anonymous clients by a developer. The second, introduced around 2000, is the contemporary hanok, an individualized and tailor-made version built for a specific client in general. Based on analysis and integration of Bukchon’s historical context and Samcheong Hanok’s records, this paper aims to trace and reconstruct a plausible history of the house to illustrate the typical historical aspects of modern hanokurban-type and contemporary. In the conclusion, after revealing the rigidity of the current hanok support system, several suggestions for a creative evolution of hanok are offered.

1. Introduction

In Bukchon, the most representative hanok village in Seoul, there is a unique hanok, or traditional Korean house, which also looks modern (Figure 1 and Figure 2). Originally built around 1940, the house underwent several stages of extension and repairs, and in 2000, was renovated by architect Wook Choi (born 1963) who called it “Samcheong Hanok” (or Samchung Hanok). Arguably, the evolution of the Samcheong Hanok illustrates a typical history of modern hanok in the past century. In the history, sudden increases in the number of hanok buildings were detected around two specific periods: first, approximately in the three decades from the early 1930s; second, in the past two decades from 2000. This phenomenon leads to classification of the hanok as urban-type or contemporary, according to whether they were built in the first or second period, respectively [1,2].
Since the mid-1920s, housing demand increased rapidly due to urbanization and modernization in Seoul (housing shortage in Seoul soared from 5.5% in 1925 to 22.1% in 1936 and became most severe between 1935 and 1940; the housing development was most active during the latter period) [3] (pp. 74–77) [4] (pp. 25–26), but without an adequate construction system. Given the circumstances, the hanok was the only type of house that could be swiftly constructed, and a modified version of the traditional hanok was mass-produced for anonymous clients. This was the urban-type hanok. However, further urbanization and modernization caused its decline from the 1960s, resulting from the dominance of Western-style houses and apartment buildings. New opportunities for the hanok emerged around the late 1990s. At that time, the Seoul Metropolitan Government grappled with the preservation of old hanok buildings in urban areas. A result of these efforts was the enactment of the “Hanok Registration System” stipulated in the “Plan of Bukchon Gardening” in 2001 (Hanok owners in the Bukchon area, who are willing to preserve their hanok buildings, can be financially supported in the improvement and repair works) [5] (p. 9), which successfully drew attention to the hanok from the public and the architectural profession. This induced a hanok boom, providing architects with ample opportunities to initiate hanok projects for specific clients, often with experimental designs breaking away from traditional standards. This newly modified hanok—individualized and tailor-made, built during the revival—is referred to as the contemporary hanok.
In this way, the two types of hanok emerged in response to the demands of their respective times and represent the modern history of the hanok. To investigate the history and evolution of the hanok, this paper examines the Samcheong Hanok. There are several crucial reasons for focusing on this specific example. First, the Samcheong Hanok illustrates how both types of hanok emerged and transformed over the past century. Though this house does not exhibit all the details that are representative of both hanok types, it undoubtedly characterizes their major features. In particular, this house—as a contemporary hanok—is the result of re-interpretation of tradition at the discretion of an individual architect. This fact forms a basis for discussion about a possible direction for hanok in the future. Second, the Samcheong Hanok holds certain clues and records through which we can trace its history. Above all, numbers of previous studies on the urban-type hanok of Bukchon provide historical data applicable to this house. More directly, various drawings (plans, sections, and elevations) and photographs, which show the pre- and post-renovation states of the house, are available (Figure 3). (The author was provided with drawings and photographs by the architect. In fact, however, they had already been published—though some photographs differ—immediately following the completion of the renovation work [6]). This availability is critical because the pre- and post-renovation floor plans and sections drawn by the architect allow us to understand the state of the house before and after the renovation. Third, the timing of renovation, that is, the year 2000, is significant as it was prior to the enactment of various hanok support guidelines and regulations. For example, the “Seoul Hanok Support Ordinance” (2002) [7] and the “Bukchon District Unit Plan (Type I)” (2010) [8] were enacted following the aforementioned “Hanok Registration System” (2001) [5]. Therefore, the house could ensure relatively free design processes for renovating the pre-existing hanok, though it was not financially supported by the ordinance. The guidelines and regulations led to the hanok boom but greatly limited fresh attempts at new hanok designs. This Samcheong Hanok case would reveal an unintended effect of the hanok support system.
Based on these reasons, this paper aims to trace and reconstruct a plausible history of the Samcheong Hanok, focusing on its floor plan. The (floor) plan is not only the “generator” of architecture—if following Le Corbusier (Vers une Architecture, 1923) [9]—but also the only common ground, on which different stages of the Samcheong Hanok evolution can be compared. This paper is expected to highlight typical aspects of modern hanok while examining a possible direction for the hanok in this new century.

2. Urban-Type Hanok and Contemporary Hanok

To discuss the Samcheong Hanok, we must review the urban-type and contemporary hanok, but a brief mention of the hanok itself also seems necessary. The term “hanok”, literally “Korean house”, was coined at the turn of the twentieth century to distinguish traditional Korean buildings from Western-style ones, called “yangok”, that started being built around the time [10]. Most of all, the hanok is characterized by its wood-frame structure comprising columns, girders, beams, rafters, and many other smaller components (Figure 4). This structure stands on a platform and supports its roof, whether tiled or thatched. In terms of space, the hanok is unique, owing to the coexistence of the ondol, or floor heated room, and the maru, or wooden-floor space, within the same building. In general, several buildings together form one hanok—particularly for upper class families—while outer walls define the boundary of the hanok, within which the women’s quarter and the men’s quarter were further defined. The madang, or courtyard, within the outer walls is also considered important because this outdoor space, though empty, can be flexibly used for various purposes. This traditional building type came to experience drastic changes in the twentieth century, with the emergence of the urban-type hanok.
The urban-type hanok, collectively built between 1930 and 1960, was the most universal housing type of the time that was newly adapted for the urbanization and modernization of Seoul (Figure 5). Notably, rapid changes in urban planning at that time, including those pertaining to the street system and subdivision of housing lots, subsequently led to the modification of the traditional hanok to a largely different urban-type hanok. Based on studies, such as Song (1990), Seong (2003), and Jeon and Kwon (2012) [1,4,10], the characteristics of the urban-type hanok could be summarized as follows. First, the standardization of plan. This characteristic was definitely impacted by changes in the relationship between hanok suppliers and clients (or consumers). With the emergence of specialized housing developers (or their organizations), the traditional “one-to-one” relationship between a carpenter and a client shifted to a new “one-to-many” relationship between one supplier and an unspecified number of clients [1] (pp. 32–34). This mass-produced hanok was commercialized while its plan was simplified, such as “ㄱ-shape,” “ㄷ-shape,” and “ㅁ-shape.” Second, the compactness of space. In the 1930s, many housing lots at the center of Seoul were subdivided—a larger lot was converted into a good number of smaller lots, thereby reducing the size of the required hanok and compacting the spatial composition. As a result, for example, the madang became centralized. Different to the typical hanok in the past, which comprised several buildings and courtyards within outer walls, the urban-type hanok basically contains a single courtyard at the center of the house (Figure 6). At the same time, the building itself serves as the outer wall, which is unlike the traditional hanok that has walls generally detached from main buildings. Another interesting change related to the compactness of space is the location of the toilet. It was previously detached from the main buildings but is now included in the munganchae or gate building. Third, the neutralization of space. In the traditional hanok, the space was divided into the women’s quarter, anchae—the innermost building—and the men’s quarter, sarangchae—the outer building, based on gender role. However, as the compact urban-type hanok could not have such a spatial division, the space was neutralized. This characteristic signifies that the emergence of the urban-type hanok not only influenced changes in the physical building but also in social consciousness. Fourth, the modernization of building equipment. Owing to the “Housing Improvement Movement” from the late 1920s [11] (pp. 207–238), the old-fashioned lifestyle in the traditional hanok was criticized and its modernization was promoted. This often related to building equipment in the toilet and kitchen, where watering, heating, and sanitation systems are integrated. Though not immediately implemented in early examples of the urban-type hanok, the modernization of building equipment was gradually realized as technology advanced.
With the spread of modern housing (the yangok single-family house, the apartment house, and the small or medium-scale multi-family house), however, the construction of the urban-type hanok rapidly decreased from the late 1960s and remained confined to a limited area. In other words, existing hanok buildings, whether traditional or urban-type, have been destroyed by the modernization process—typically, the large-scale apartment development in urban and suburban areas; and the “Saemaeul Undong” (New Village Movement in Korea) of the 1970s and 1980s in the countryside. This crisis of hanok in turn led to hanok preservation movements: for example, various regulations for hanok preservation have been introduced to Bukchon since 1970s [5] (pp. 35–36). Yet, the hanok faced another crisis from the beginning of the 1990s when residents in Bukchon demanded total easing of previous regulations for hanok preservation to develop their properties according to their own specifications. Fortunately, various hanok support guidelines and incentives introduced in the early 2000s, as aforementioned, actively helped the preservation and revival of the hanok by successfully obtaining the cooperation of residents. In all, 353 out of the 912 houses in Bukchon were registered until November 2005 (registration rate of 38.7%), and 504 cases (313 cases of subsidy and 191 cases of loan) were determined eligible for remodeling support. As a result, 203 hanok buildings were remodeled with a total financial support of KRW 12.6 billion (KRW 9 billion as subsidy and KRW 3.6 billion as loan) [13] (p. 29). With increased hanok construction in Bukchon as a foothold, the hanok has re-emerged in the world of architecture, partly sustained by the present trend of retro-styles. Combined with contemporary architecture, it is now called the contemporary hanok. More precisely, the contemporary hanok refers to a contemporary building that integrates modern constructional and/or finishing methods with the basic frame of hanok, such as traditional wood structure, roof frame, and appearance [2].
The contemporary hanok has not yet been sufficiently studied; however, this paper defines its characteristics as follows. First, the modernization of building equipment and interior design. While maintaining the basic structure and form of the traditional hanok, the contemporary hanok adopts continually changing technologies to compensate for the shortcomings of an outdated hanok as the urban-type hanok did similarly. The poor cooling/heating system and hygienic equipment are most notable. In addition, it seeks contemporary stylistic preferences with sophisticated interior designs. Second, the use of updated building materials and construction methods. Attempts were made to graft contemporary structural components onto the traditional wood structure. Take the C Hanok (2013), renovated by Seung-mo Seo, for example, where parts of old wooden beams were replaced by steel beams, and wooden columns by a steel pipe and an H-shaped steel column. Moreover, the weight of the hanok’s roof structure could be reduced by adopting a dry construction method, which uses dry roof tiles and eliminates the traditional layer of mud beneath the tiles—the wet-roof system of hanok has been one of the most required parts to be modernized to improve the traditional hanok. Further, architects sometimes break common-sense rules of the conventional hanok structure, either to reduce construction costs or produce an aesthetic effect. Perhaps the most representative example is the Namsandong Hanok (2014) in Gyeongju, designed by the Japanese architect Masanori Tomii, in which the daedeulbo, or crossbeam, was removed from the roof structure. This can be considered radical because the daedeulbo is among the most critical and symbolic elements in traditional Korean architecture. Third, the vertical extension of space. One chief reason that the hanok is not competitive in the present housing market is the low floor area ratio owing to its single-story structure. Recently, architects often insert basement and attic spaces—uncommon in the traditional hanok—in their design to secure a maximum usable area of the building. Such a vertical extension of space, which suggests a possibility of a multiple-story hanok, may be the most representative characteristic of the contemporary hanok. Doo-jin Hwang, in particular, emphasizes the vertical extension of space as in Mumuheon (2004), Donginjae (2006), L Residence (2009), and Mokgyeongheon (2015) [14]. Fourth, the combination with modern architecture. This refers to a unique situation wherein the composition of a single building is part hanok and part modern; however, as a whole, the building could be regarded as a (contemporary) hanok. Although this characteristic is found only in a small number of cases, it is noteworthy. For instance, some hanok buildings have a modern building part (or a Western-style wood structure); whereas some modern buildings have a hanok part attached to their main structure. The Institute of Korean Royal Cuisine Building (2003) and Hamyangjae (2012), designed by Jung-goo Cho, and the DBEW Design Center (2003), designed by Seok-chul Kim, are the examples. Arguably, many contemporary hanok buildings result from experimental attempts by creative architects who do not hesitate to combine the old with the new under current conditions.

3. Tracing the History of the Samcheong Hanok

Undoubtedly, the Samcheong Hanok illustrates the characteristics of the urban-type hanok and the contemporary hanok at each stage, with diverse changes between the two stages. This paper argues that the changes are largely traceable by analyzing the building’s limited remaining records. Here, the history of the Samcheong Hanok is classified into four stages: new construction, extension, repairs, and renovation. Each stage is defined by major changes, although other minor alterations must have occurred at intervals.

3.1. New Construction: “Open ㅁ-Shaped” Urban-Type Hanok (Around 1940)

The Samcheong Hanok was first built in Bukchon, specifically, 35-88 Samcheong-dong, Jongno-gu, Seoul. Although no direct record of the first construction is available, the construction time can be assumed based on the information regarding housing lot division in the area. One study shows how the housing lot of 35 Samcheong-dong was subdivided between the mid-1920s and early 1940s (Figure 7) [15] (pp. 252–253), and we can confirm that the site, 35-88 Samcheong-dong, had been realized by January 1939. The preparation of housing sites and the actual construction of houses in the sites could be separate issues. Nevertheless, it is very likely that the construction of houses followed soon after the housing site preparation, considering the housing shortage in Seoul in the 1930s and responsive active housing development [3,4]. Indeed, it was reported that 6000–7000 new houses were built in Seoul between 1933 and 1935, including approximately 4000 in Bukchon [16]. Therefore, we may assume that the Samcheong Hanok was most likely built in the late 1930s or, at the latest, very early 1940s. Additionally, it seems that the 35 Samcheong-dong area was developed as a residential district by developer Dae-gyu Jung, who owned the land [4] (pp. 17–18) [15] (p. 271 and 377). This implies that the Samcheong Hanok is a mass-produced urban-type hanok building, and its floor plan would be typical of such houses. One study illustrated various plans of houses located in one block south of Samcheong Hanok (Figure 8), which also belonged to 35 Samcheong-dong. These plans differ from each other in scale and room arrangement but have the typical characteristics of the urban-type hanok, as described in the previous section of the paper.
Based on the floor plans of neighboring houses—especially those of a similar size and context to the site—and the pre-renovation drawings made in 2000, this study reconstructed a plausible floor plan of the Samcheong Hanok when first built around 1940. In other words, this presumable first plan (Figure 9) resulted from the comparison and integration of its two conditions in the late 1930s and late 1990s. We can now re-examine the plan in reverse. The plan is “ㅁ-shaped,” or more specifically “open ㅁ-shaped (「」),” consisting of two “ㄱ-shaped” units. Of course, the madang is at the center of the plan. Moreover, the building blocks themselves serve as outer walls, dispensing with the traditional independent walls. Hence, these features correspond to the characteristics of the urban-type hanok. However, the internal room arrangement is uncertain at this stage, and thus, the reconstruction plan inevitably follows the pre-renovation plan as a whole. The resultant composition is that four (ondol) rooms and the daecheong, or wooden-floored central hall (of which cool maru space contrasts with the floor-heated ondol rooms), along with the kitchen and toilet, surround the madang. Here, the kitchen was relocated between two rooms in the east wing, differing from the pre-renovation plan; in particular, the traditional type of kitchen with an agungi fireplace (for cooking and heating) is situated there to warm the ondol rooms on both sides or, at least, the main room anbang on the left. A similar room-kitchen arrangement is found in the floor plan of 35-20 Samcheong-dong (Figure 8). The toilet beside the gate, or at one side of the (minimized) munganchae, must be an old-fashioned one and rather small in size. To understand details about service spaces such as toilets and kitchens, we could also refer to several contemporary houses with the Samcheong Hanok in 11 Gahoe-dong, located next to Samcheong-dong in Bukchon—the housing lots, and houses themselves, in 11 Gahoe-dong started being developed in 1935 (Figure 6) [12] (p. 93) [15] (p. 229 and 371). However, it seems relatively easy to assume the first state of the house’s structure, compared with that of the spatial composition, because the Samcheong Hanok is a typical urban-type hanok of the time. It must have had the basic wood-frame structure to support the traditional roof.

3.2. Extension: Enlarged Space (Early 1960s)

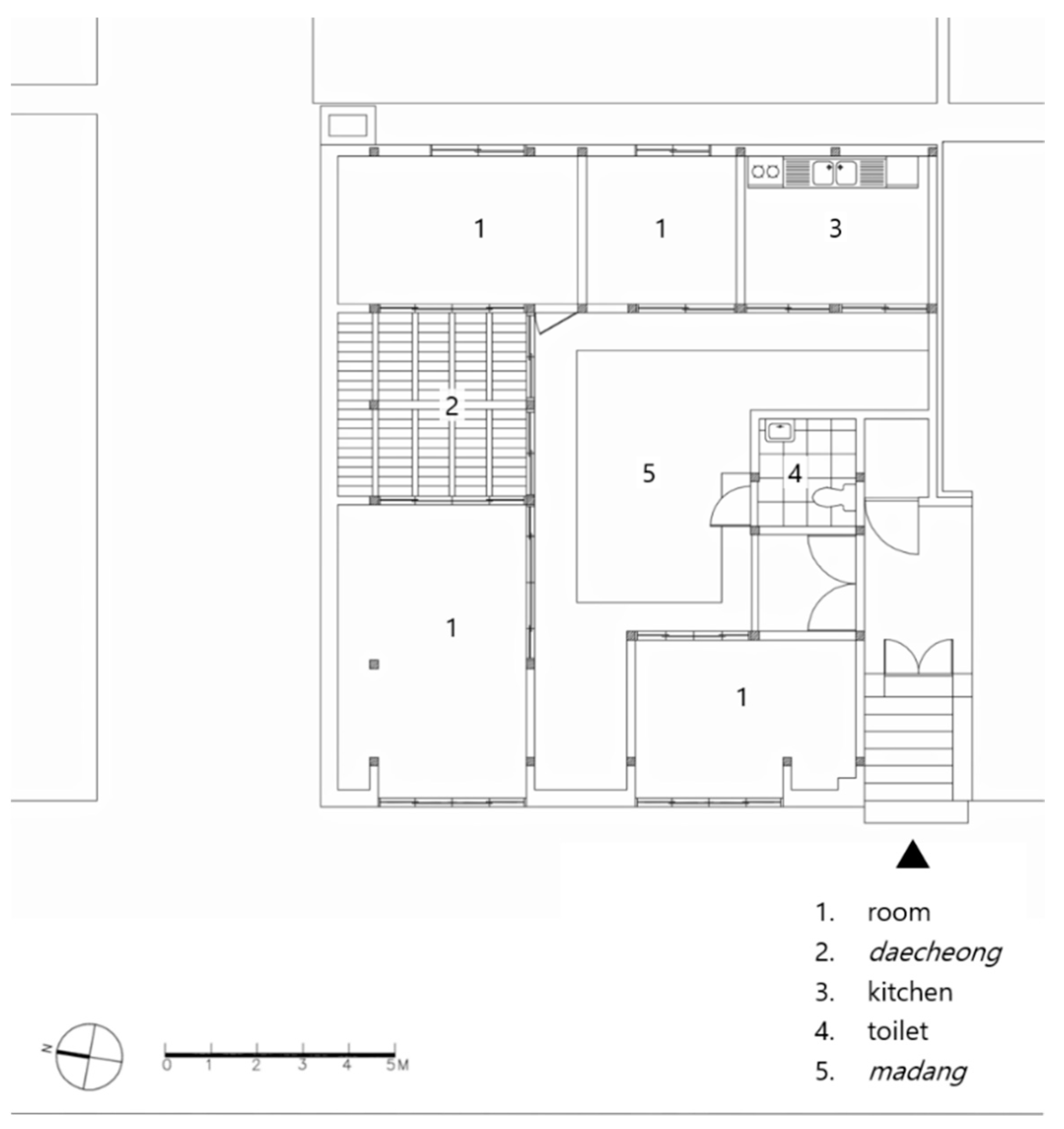
For two reasons, we can assume that there was an extension work to the Samcheong Hanok, probably in the early 1960s. First, many urban-type hanok buildings in Bukchon underwent extensions to enlarge their interior spaces during this period [17] (p. 19). Second, the building register of 35-88 Samcheong-dong suggests that the owner of the house changed in August 1961, which was confirmed at Jongno-gu Office (23 April 2018). Therefore, it is highly probable that the Samcheong Hanok extension was carried out with its transfer to the new owner. (Even though the extension was made at a different timing, there would be no big difference in the extension method or the floor plan.) According to Gwang-no Lee et al., the most typical method for extension in Gahoe-dong houses was to broaden the space towards the street by building a new outer wall under newly added eaves [12] (p. 59). A similar method appears to have been implemented with the Samcheong Hanok (Figure 10). Nevertheless, this new outer wall was aligned with the end line of the previous eaves as the available street side space was very limited. This situation can still be confirmed at one corner of the present house (Figure 11).
Such extension is accompanied by some transformation in the appearance of the house, and we can trace these changes on the basis of the pre-renovation photographs and drawings, as well as a close observation of the present wall. Arguably, the outer wall of the extended side was a masonry structure of brick (or cement block) as this was the typical method in Gahoe-dong, and the wall was drawn thick enough for the masonry wall in the pre-renovation plan. (Otherwise, it might have been a wood-frame structure with the wall plastered white, and the present wall was a later alteration.) The architect noted that the wall was covered with brick-patterned tiles [6], which lets us presume that its internal structure forms a load-bearing wall. However, it is not known when the tiles covered the wall—possibly, not certainly, at the time of the extension. In any case, in the reconstruction plan of this stage (Figure 12), the outer wall of the extended side was considered identical to that in the pre-renovation plan, and it is assumed that there was no critical change except the enlarged space. This plan illustrates that the original plan of the new construction stage extended space toward the north and west sides—in the street-facing directions. Specifically, the extension was carried out facing the outside from the line of columns, and the width of the extended space seems to be approximately one meter (if relying on the scale), resulting in an increased floor area of approximately 25 m2. On the south and east sides, adjacent to other houses, there was no room for extension. However, as aforementioned, there may have been no significant change in the basic structure of the house at this stage; instead, relatively minor alterations were certainly made, such as improvements in building equipment and interior fittings. (Considering the context in Korea at the time, coal briquettes were possibly used in the agungi inside the kitchen for cooking and heating. The toilet must also have been improved. However, it would not yet have been a flush toilet even though the modern toilet was introduced in Korea in the 1950s.)

3.3. Repairs: Modernization of Building Equipment and Interior Design (1960s–90s)

For approximately 40 years, between the extension and renovation in 2000, the Samcheong Hanok undoubtedly underwent diverse external and internal changes. Although details of these changes are unknown, the key alterations certainly involved modernization of building equipment and interior design. As its macroscopic background, we may consider the spread of modern housing, described in Section 2, of which relatively anonymous practice was, in fact, led by various experiments with residential design by progressive architects. In this period, Westernization and modernization of housing was accelerated with the rapid economic growth in Korea. Microscopically, we may refer to the context of neighboring houses in Gahoe-dong, as aforementioned. Field research conducted between 1985 and 1986 reported that building equipment and interior design of most hanok buildings in the area had already been modernized [18]. Typically, they were equipped with a modern kitchen and flush toilet. It is certain that the Samcheong Hanok simultaneously experienced a similar modernization process.
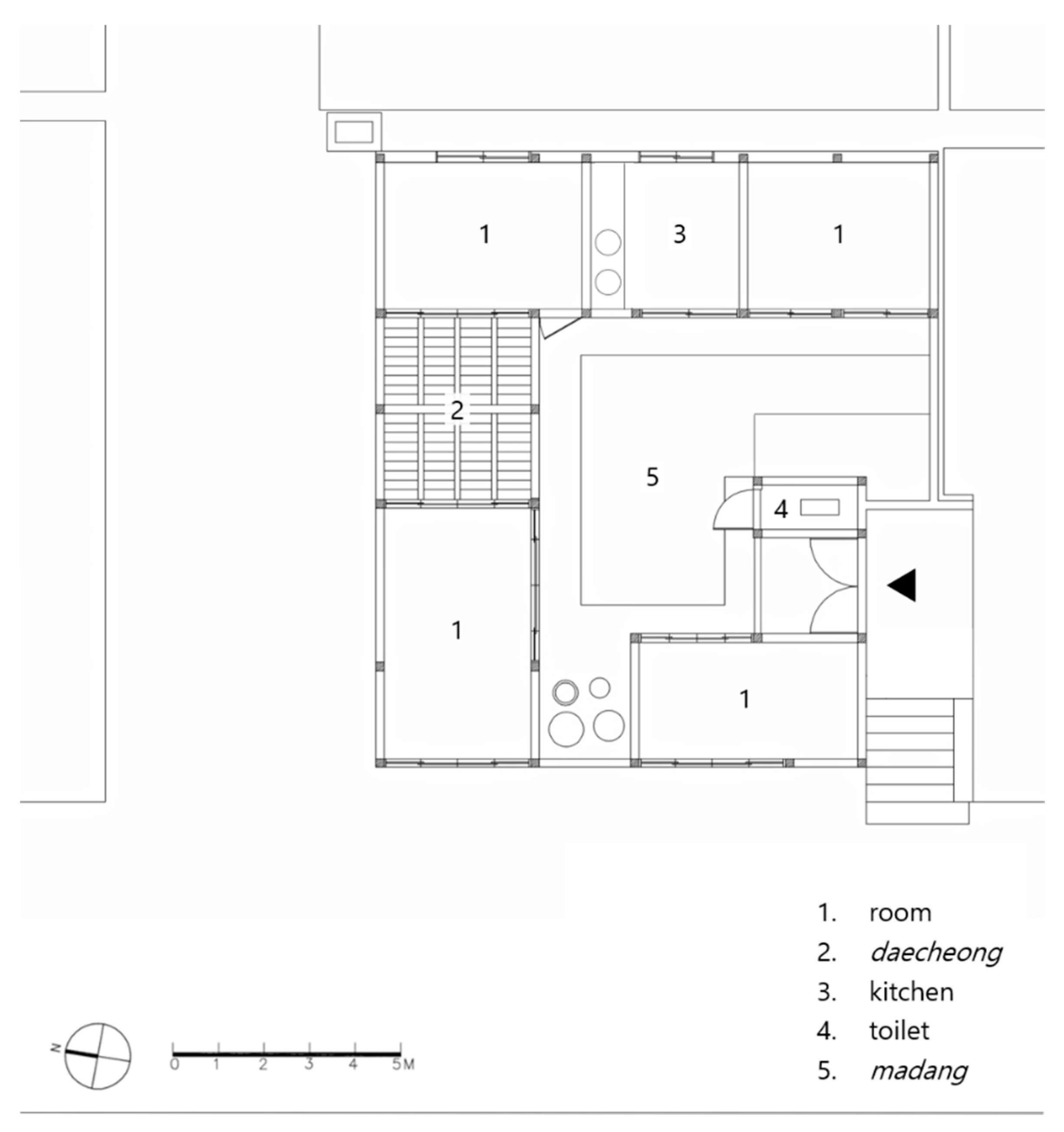
The Samcheong Hanok of this stage can be clearly understood from the pre-renovation drawings and photographs and, in particular, the floor plan (Figure 13). Though the floor plan directly refers to the layout of the house in the late 1990s, it certainly illustrates one of the most typical layouts of the house for the past four decades. The most remarkable observation in this plan expectedly involved the kitchen and the toilet, though the installation of an exterior gate on the entrance stairs, as well as the addition of a space (probably a storage area) facing the exterior gate, is also conspicuous. This paper proposes that the kitchen was relocated from the central space of the eastern wing to the neighboring room in the south for the following reasons. First, a wider room may have been required to combine the kitchen with a dining space and rationalize the spatial arrangement for housework. This is related to modern furnishings in the kitchen, including the sink, as the plan illustrates. Second, a modernized heating system may have obviated the need for the agungi in the kitchen, which was located between the two rooms (and also on a lower floor-level than the ondol rooms) in preceding stages. Meanwhile, the toilet was also doubled in size and equipped with modern facilities such as a flush toilet and wash basin; the floor was tiled, reflecting significant advances in terms of hygiene. The changes in kitchens and toilets typically reveal how the urban-type hanok responded to modernization of the time. Moreover, other building equipment and interior fittings, such as windows/doors and water/sewage systems, must also have been modernized or repaired. While it is likely that there was no critical change in the other spatial organization and the building structure as a whole, the spatial or structural details, and the interior design may have varied with owners’ preferences.

3.4. Renovation: Transformation into Contemporary Hanok (2000)

The Samcheong Hanok, which had gradually evolved since it was first constructed around 1940, experienced the most critical change during the renovation in 2000 (Figure 14, Figure 15, Figure 16 and Figure 17). Considering that architect Wook Choi had already renovated one urban-type hanok for use as his own office (2000) in the same Samcheong-dong area right before this project [18] (pp. 306–315) [19], it is indubitable that he was very familiar with the local context at that time and ready to experiment with new possibilities of the urban-type hanok. As one of the most distinguished Korean architects in his generation, Choi has carried out diverse kinds of projects for the last two decades. In his early career, however, the hanok renovation was a very important category of works to him. The defining characteristic of his hanok renovation was a bold addition of modern elements to traditional ones, often challenging the tradition: “When repairing a hanok, … I boldly removed [existing elements] or made [new elements]. However, I tried to emphasize aesthetic elements typically found in the hanok space” [18] (p. 607). This attitude was well illustrated in the work for Samcheong Hanok.
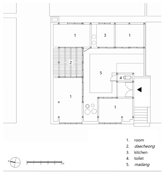
The renovated Samcheong Hanok is replete with unconventional features as compared to other contemporary hanok and previous urban-type hanok buildings, starting with its appearance. The repeating pattern of thin and rectangular timbers, which clothe the existing outer wall, form a unique surface with horizontal lines, which continues on the exterior gate (main gate). The windows on the wall were also not traditional. Without the traditional roof, there would be no reason for this house to be considered a hanok from its external appearance. Similarly, changes inside the outer wall were as drastic. The middle gate that used to be situated on the left after passing the main gate was lost. It signifies a disintegration of munganchae and an expansion of madang. Moreover, the total floor area increased as the empty space between the two rooms on the west side was incorporated into the indoor space. As verified in the floor plan (Figure 17), the “「」-shape” or “open ㅁ-shape” of the plan, which had been maintained since it was first built, shows a subtle variation. In this process, the living room—equivalent to the daecheong in the traditional hanok—was extended westwards up to the same width as the madang, and rooms on the opposite sides of the living room came to face each other. The arrangement of rooms was also changed; for example, the kitchen/dining room was now relocated at the northern corner, and a second toilet (now a proper bathroom) was added to the room near the gate. Within these changes, however, the existing wooden structure was maintained as far as possible. The living room showcased the beauty of tradition through four independent square columns and, in particular, the wooden frame of the roof that reveals the original composition of the girder, beam, and rafter.
Arguably, the most remarkable attempt in this renovation was the creation of a type of wooden deck on the madang. This wooden deck is reminiscent of the maru, where the floor pattern was intended to be same as that of the living room, hinting at the traditional daecheong or daecheong-maru. Its installation reduced the gap in height between the living room and the madang by raising the level of the latter and facilitated the floor material (red pine) and pattern to continue between the living room and madang. Indeed, the madang is not only an exterior space, open to the sky, but also an interior space as an extension of the living room. This kind of continuity was further enhanced by the whole-glass wall installed between the two spaces, eliminating the visual boundary between the inside and outside. Meanwhile, two challenges to tradition can be noted here. The first is the white-colored northern wall inside the living room, where the white plane continues to the ceiling just above it. Though possibly reminiscent of a white-papered room in a traditional house, it is highly reminiscent of the vocabulary of Western modernism characterized by white and planar surfaces. The horizontally long clerestory window in-between the living room wall and ceiling also assumes the typical image of modern architecture. The other challenge is the unfamiliar pattern on the sliding doors, which critically differs from the traditional Korean style. In fact, it even embodies a certain Japanese nuance due to its simplicity and repeated pattern of horizonal lines. Although such impression might not be universal, the possible Japanese implication is still a sensitive issue in Korean architecture—particularly in buildings directly related to tradition, such as this house. However, architect Wook Choi, who was more sensitive to modern function and aesthetic, kept a distance from such issues.
In short, this renovation stage, in which the architect boldly transformed an urban-type hanok into a contemporary hanok, is surely the most salient stage in the Samcheong Hanok history.

4. Meaning of the Samcheong Hanok History

As discussed, there have been a series of changes in the Samcheong Hanok history, whether major or minor, ranging from the stage of new construction around 1940 to the stage of renovation in 2000, via the in-between stages of extension and repairs. Tracing the history, this study reconstructed the floor plans of the house in the first two stages, with relation to the architect’s floor plans in the last two stages. If we juxtapose and compare them (Figure 18), we could more easily understand how the house has transformed through the stages over time. The extension of space is conspicuous in the second stage (early 1960s), and the modernization of kitchen and toilet in the third stage (1960s–1990s), although the most dramatic change is recognizable in the plan of the renovation stage (2000). If so, what does the history of the Samcheong Hanok tell us explicitly or implicitly?

4.1. Representing the History of Modern Hanok

What is explicit is the fact that the history of the Samcheong Hanok represents the history of modern hanok. Summing up, the Samcheong Hanok was built on a sub-divided housing lot in Bukchon, Seoul around 1940 as one of the urban-type hanok buildings, which were mass-produced approximately between 1930 and 1960. Accordingly, this house had all the characteristics of the urban-type hanok as described in Section 2. In particular, the standardization of plan and compactness of space were most obvious as typified in the “open ㅁ-shaped” plan with the courtyard madang. Moving on to the early 1960s, the Samcheong Hanok extended to enlarge space just as the neighboring urban-type hanok buildings were remodeled for extension. In the meanwhile, its building equipment and interior design must have been updated several times as seen in the pre-renovation plan. In this plan, the kitchen and the toilet were enlarged and refurbished, and this refurbishment matches the general trends in the urban-type hanok of the time. Finally, the renovation in 2000 transformed the Samcheong Hanok from a modest urban-type hanok into a unique contemporary hanok. This stage can also be integrated into the history of the urban-type hanok, although not all urban-type hanok buildings experience such a radical transformation. Thus, the overall history of modern hanok in the past century was manifested through the series of changes in this single building.
In addition, it is also explicit that the Samcheong Hanok, renovated in 2000, can be positioned at the starting point in the history of the contemporary hanok. Of course, there have been many hanok projects undertaken by reputed architects before the Samcheong Hanok was reborn at that time. For example, Neungsohun (1991) and Chungsongjae (1997), originally built in 1930s as typical urban-type hanok buildings in Bukchon (Gye-dong), were renovated by Young-Sub Kim in 1990s [20] (pp. 22–33). Though their renewal was notable, however, it is arguable that there was no fundamental infringement of tradition in these works. Likewise, most hanok projects prior to 2000 rarely attempted to challenge or break (not just to mildly modify) the basic norm of the traditional hanok in terms of the essential structure and form, even though they necessarily updated building equipment and interior design to accommodate modern life. Conversely, in the Samcheong Hanok, we can note diverse attempts to intentionally deviate from the traditional norm, whether they are the addition of modern cladding to the outer wall or the installation of the maru-like wooden deck on the madang. Therefore, discussions about the contemporary hanok should begin with the Samcheong Hanok. Moreover, we need to notice the phenomenon of hanok revival since 2000, along with the emergence of architects who reinterpret the traditional building type from a new perspective. If the “hanok returned,” as one declared [21], the Samcheong Hanok was undoubtedly in the lead.

4.2. Irony in the Hanok Support System

On the other hand, this study claims that the Samcheong Hanok history, specifically the timing of its rebirth as the contemporary hanok, signifies something implicitly. That is a certain irony in the hanok support system or the set of all the guidelines and regulations for promoting hanok buildings. In other words, the Samcheong Hanok reveals the paradox that various guidelines and regulations introduced to promote hanok buildings failed to serve as the system for the evolution of the hanok. We may regard that the hanok support system was initiated from the “Hanok Registration System” and “Plan of Bukchon Gardening” in 2001, a year after the renovation project of the Samcheong Hanok. (Though there had already been various regulations for hanok preservation in Bukchon, the hanok regulations from the early 2000 became more supportive to residents or owners of hanok in terms of administration and finance while they became as much restrictive as supportive.) Subsequently, it has led to the “Seoul Hanok Support Ordinance” and the “Jeonju Hanok Support Ordinance” in 2002, the “Bukchon District Unit Plan (Type I)” in 2010, and the “Act on Value Enhancement of Hanok and Other Architectural Assets” in 2015. (Besides these, many local governments have their own hanok ordinances, which are now supported by the “Act on Value Enhancement of Hanok and Other Architectural Assets”). We can understand here that the initial set of guidelines to preserve the hanok buildings in a local area had gradually developed and was finally legislated as a national law to support their preservation and new construction in terms of finance and administration. However, various conditions in the guidelines and legal clauses sometimes act as excessive restrictions. In particular, the “Bukchon District Unit Plan (Type I): Enforcement Guidelines” includes excessive and detailed regulations concerning the formal aspects of the hanok—for example, the finishing materials of exterior, the patterns of windows/doors, and various types of decorations, as well as the length of the eaves and the allowable examples of roof-tiles (Sections 1 and 4, Article 26; Sections 1, 2 and 4, Article 28). Due to these restrictions, architects’ discretion over hanok design in Bukchon became extremely limited, and similar restrictions were observed in the local governments’ hanok ordinances and the national law “Act on Value Enhancement of Hanok and Other Architectural Assets”.
From this perspective, it was fortunate that renovation of the Samcheong Hanok was conducted prior to the restrictive guidelines, especially those in the “Bukchon District Unit Plan (Type I)”. For this reason, Wook Choi was able to make radical and challenging attempts in the project, paving the way for evolution of the hanok. Perhaps the renovated Samcheong Hanok has many design elements that would have still been possible even if those hanok guidelines and regulations had been introduced before 2000. However, most experimental attempts described in the previous section seemed to be hardly feasible under the currently established hanok support system. For example, it might have been impossible for the outer wall of the house to be clad in the unique timber-screen because the elevations of hanok that face streets shall adequately express the composition of the wooden structure according to the guidelines in “Bukchon District Unit Plan (Type I)” (Section 1, Article 28). It is likely that more drastic actions, such as the removal of the tiles (if considered “glossy”) that were attached to the outer wall before the renovation, may have been taken to emphasize its traditional appearance if the guidelines had been provided (Sections 3 and 6, Article 28)—not to mention the apparent disapproval of the installation of the unfamiliar cladding in the wall. Moreover, it might have been impossible to install non-traditional style windows in the western wall and the northern wall because the guidelines only allow traditional window patterns—for example, the ddichangsal, yongjachang, wanjachang, jeongjachang, and sutdaesal (Section 4, Article 28). Last but not least, the wooden deck in the madang must have been controversial because the guidelines regulate the attachment of structures to the madang: “any structure to be built in the madang is recommended to keep a certain distance from the hanok in an appropriate manner” (Section 1, Article 34). Though not an enforced, but recommended, regulation, different from the other regulations mentioned so far, this would have suppressed the novel idea and prevented the architect from further experimenting with the design.
Bukchon is a very special area where numerous hanok buildings exist, and therefore, a sort of traditional scenery must be retained. Nevertheless, this paper maintains that the Bukchon guidelines, and eventually, all the hanok-related regulations in Korea, are too rigid and thus prevent the evolution of hanok. From this perspective, Doo-jin Hwang’s assertion—at “The 1st AURI (Architecture & Urban Research Institute) Discussion about the ‘Hanok Architectural Style,’” held in Seoul on 22 November 2019—that Bukchon is “a graveyard of hanok creativity” is understandable. Though various experimental hanok projects have been undertaken for the last two decades—in legal interstices where the regulations fail to cover—as discussed in Section 2, it can be argued that a creative evolution of hanok is being considerably prevented by the present regulations. The hanok is not only a heritage from the past, but it should also represent current and future architecture. Therefore, we must have a more flexible concept of the present and future hanok design. In this way, the timing of the Samcheong Hanok renovation awakens the irony implied in the hanok support system.

5. Conclusion: Towards a Creative Evolution of Hanok

This study demonstrated that the Samcheong Hanok is a meaningful case in the history of modern hanok from the early 20th century onwards. In conclusion, we can note several points for a creative evolution of hanok from this study. First, active responses to the demands of time are always significant. The urban-type hanok and the contemporary hanok are the results of the responses observed in the Samcheong Hanok history. Likewise, to actively respond to the demands of time, it is necessary for continual evolution of the hanok towards the future. Second, the renovation of pre-existing hanok buildings plays an effective role in leveraging the evolution of hanok. In contrast to the new construction of the traditional-type buildings, of which revival is often controversial [14], the renovation of old hanok buildings is required to adapt them to contemporary lifestyle and reuse the existing resources. Thus, the renovation implies the natural encounter between the old and the new, and their heterogeneous conjunction, often with experimental designs, stimulates the evolution of hanok. Arguably, one possible way of its creative evolution was hinted at in the renovation work of the Samcheong Hanok. Third, it is creative architects that generate the most important momentum for the evolution of hanok. If renovation of the Samcheong Hanok hinted at one way of hanok evolution, its main promoter was undoubtedly the architect as a creative designer. We must highly regard the challenging attitudes of architects who do not hesitate to trigger changes in convention even though the role of anonymous players, such as builders and clients, should also not be ignored. Fourth, a creative evolution of the hanok support system is required for the creative evolution of hanok itself. As argued in the previous section, the current hanok support system often limits creative designs of the hanok. A more flexible system for the future of the hanok is needed. While the hanok support system has focused on the preservation of traditional aspects of the hanok from a conservative perspective, it is time to evaluate the diversity and modernity of the hanok for its creative evolution.

Author Contributions

Conceptualization, Y.-H.L. and H.-S.K.; methodology, H.-S.K.; validation, H.-S.K.; formal analysis, Y.-H.L. and H.-S.K.; investigation, Y.-H.L.; resources, Y.-H.L.; writing—original draft preparation, Y.-H.L.; writing—review and editing, H.-S.K.; visualization, Y.-H.L.; supervision, H.-S.K.; project administration, Y.-H.L. All authors have read and agreed to the published version of the manuscript.

Funding

This research received no external funding.

Institutional Review Board Statement

Not applicable.

Informed Consent Statement

Not applicable.

Data Availability Statement

No new data were created or analyzed in this study. Data sharing is not applicable to this article.

Conflicts of Interest

The authors declare no conflict of interest.

References

  1. Song, I.-H. A Study on the Types of Urban Traditional Housing in Seoul from 1930 to 1960. Ph.D. Thesis, Seoul National University, Seoul, Korea, 1990. [Google Scholar]
  2. Lee, Y.-H.; Kim, H.-S. Type Classification of Contemporary Hanok: Focusing on Architects’ Designs since 2000. J. Archit. Hist. 2016, 25, 51–63. [Google Scholar] [CrossRef]
  3. Kim, S.-J. A Study on the Transition of Modern Urban Housing in Korea. Master’s Thesis, Seoul National University, Seoul, Korea, 1987. [Google Scholar]
  4. Seong, T.-W. The Typomorphological Character of Urban Traditional Housing Area in Samcheong-35, Seoul. Master’s Thesis, University of Seoul, Seoul, Korea, August 2003. [Google Scholar]
  5. The Seoul Institute. The Plan of Bukchon Gardening; Seoul Metropolitan Government: Seoul, Korea, 2001.
  6. Choi, W. 35-88 Samcheong-dong Hanok. Archit. Cult. 2000, 235, 64–69. [Google Scholar]
  7. Seoul Metropolitan Government. Seoul Hanok Support Ordiance; Seoul Metropolitan Government: Seoul, Korea, 2002.
  8. Seoul Metropolitan Government. Bukchon District Unit Plan (Type I); Seoul Metropolitan Government: Seoul, Korea, 2010.
  9. Le Corbusier. Towards a New Architecture; Etchells, F., Ed.; Architectural Press: London, UK, 1946. [Google Scholar]
  10. Jeon, B.-H.; Kwon, Y.-C. History of Hanok and Korean Houses; Dongnyok: Paju, Korea, 2012. [Google Scholar]
  11. Yim, C.-B. Korean Housing, Its Typologies and History; Dolbegae: Paju, Korea, 2011. [Google Scholar]
  12. Lee, G.-N.; Yoon, D.-K.; Jang, S.-J.; Kim, K.-H.; Kim, K.-W.; Kim, S.-K.; Kim, H.-W. Gahoe-dong; Gomsi: Seoul, Korea, 2011. [Google Scholar]
  13. Jung, S. Intermediate Evaluation on the Plan of Bukchon Gardening; Seoul Metropolitan Government: Seoul, Korea, 2005.
  14. Kim, H.-S.; Lee, Y.-H. The Hanok Paradox: Modernity and Myth in the Revival of the Traditional Korean House. SPACE 2019, 618, 110–120. [Google Scholar]
  15. Song, I.-H. Bukchon 1863-1962; Seoul Museum of History: Seoul, Korea, 2019. [Google Scholar]
  16. Jeong, S.-K. Soaring Prices of Land and Housing. Samcheolli 1935, 7, 32–40. [Google Scholar]
  17. Yoo, Y.-H. Changing Process of the Dwelling Mode in Urban Hanok. Ph.D. Thesis, Yonsei University, Seoul, Korea, 1994. [Google Scholar]
  18. Choi, W. ONE O ONE Architects; Seogang: Paju, Korea, 2008. [Google Scholar]
  19. Lee, Y.-H.; Kim, H.-S. Discussing the Continuity between the Traditional and the Modern in Choi Wook’s Hanok Renovation. J. Archit. Inst. Korea 2014, 30, 133–140. [Google Scholar]
  20. Architects’ Group for a New Hanok. To Live in Hanok; Dolbegae: Paju, Korea, 2007. [Google Scholar]
  21. Hwang, D.-J. Hanok Returned; SPACE: Seoul, Korea, 2006. [Google Scholar]
Figure 1. One of the most popular scenes of the Bukchon Hanok Village (Photograph by the author).
Figure 1. One of the most popular scenes of the Bukchon Hanok Village (Photograph by the author).
Sustainability 13 09034 g001
Figure 2. Street view of the Samcheong Hanok (Photograph by the author).
Figure 2. Street view of the Samcheong Hanok (Photograph by the author).
Sustainability 13 09034 g002
Figure 3. Comparative drawings of the Samcheong Hanok, before (a) and after (b) renovation in 2000 (Courtesy of One O One Architects/rearranged by the author).
Figure 3. Comparative drawings of the Samcheong Hanok, before (a) and after (b) renovation in 2000 (Courtesy of One O One Architects/rearranged by the author).
Sustainability 13 09034 g003
Figure 4. A typical traditional hanok in Hahoe Village, Andong, Gyeongbuk Province (Photograph by the author).
Figure 4. A typical traditional hanok in Hahoe Village, Andong, Gyeongbuk Province (Photograph by the author).
Sustainability 13 09034 g004
Figure 5. Bird’s eye view of Bukchon in 1954 (Photograph by InSik Lim, reprinted with permission from © ChungAm Archive. Copyright 1954 InSik Lim).
Figure 5. Bird’s eye view of Bukchon in 1954 (Photograph by InSik Lim, reprinted with permission from © ChungAm Archive. Copyright 1954 InSik Lim).
Sustainability 13 09034 g005
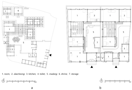
Figure 6. Exemplary floor plans of the traditional hanok and the urban-type hanok in Bukchon: (a) Jae-wan Lee’s house, Gahoe-dong, 19th century (Courtesy of Seoul Museum of History/redrawn by the author); (b) 11-42 and 11-104 Gahoe-dong, 1930s (Adapted with permission from ref. [12]. Copyright 2011 Gomsi Publisher).
Figure 6. Exemplary floor plans of the traditional hanok and the urban-type hanok in Bukchon: (a) Jae-wan Lee’s house, Gahoe-dong, 19th century (Courtesy of Seoul Museum of History/redrawn by the author); (b) 11-42 and 11-104 Gahoe-dong, 1930s (Adapted with permission from ref. [12]. Copyright 2011 Gomsi Publisher).
Sustainability 13 09034 g006
Figure 7. Several stages of housing lot division in 35 Samcheong-dong and the location of 35-88 Samcheong-dong, in which the Samcheong Hanok was built (Courtesy of Seoul Museum of History/redrawn by the author with the location of the Samcheong Hanok marked).
Figure 7. Several stages of housing lot division in 35 Samcheong-dong and the location of 35-88 Samcheong-dong, in which the Samcheong Hanok was built (Courtesy of Seoul Museum of History/redrawn by the author with the location of the Samcheong Hanok marked).
Sustainability 13 09034 g007
Figure 8. Floor plans of twenty urban-type hanok buildings in 35 Samcheong-dong, near the Samcheong Hanok (Reprinted with permission from ref. [3]. Copyright 1987 Sun-jae Kim).
Figure 8. Floor plans of twenty urban-type hanok buildings in 35 Samcheong-dong, near the Samcheong Hanok (Reprinted with permission from ref. [3]. Copyright 1987 Sun-jae Kim).
Sustainability 13 09034 g008
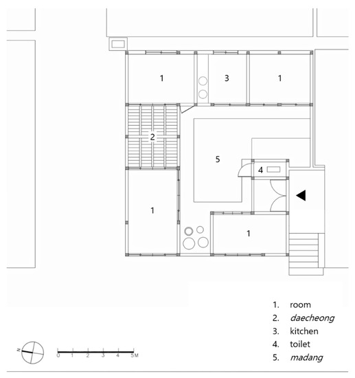
Figure 9. Plausible floor plan of the Samcheong Hanok when first built around 1940 (Drawn by the author).
Figure 9. Plausible floor plan of the Samcheong Hanok when first built around 1940 (Drawn by the author).
Sustainability 13 09034 g009
Figure 10. Typical method of outer-wall extension for the urban-type hanok, Gahoe-dong (Adapted with permission from ref. [12]. Copyright 2011 Gomsi Publisher), and the case of the Samcheong Hanok (Drawn by the author).
Figure 10. Typical method of outer-wall extension for the urban-type hanok, Gahoe-dong (Adapted with permission from ref. [12]. Copyright 2011 Gomsi Publisher), and the case of the Samcheong Hanok (Drawn by the author).
Sustainability 13 09034 g010
Figure 11. One corner of the present Samcheong Hanok that shows the added eave to the extended wall (Photograph by the author).
Figure 11. One corner of the present Samcheong Hanok that shows the added eave to the extended wall (Photograph by the author).
Sustainability 13 09034 g011
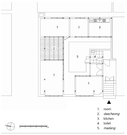
Figure 12. Plausible floor plan of the Samcheong Hanok after extension, probably carried out in the early 1960s (Drawn by the author).
Figure 12. Plausible floor plan of the Samcheong Hanok after extension, probably carried out in the early 1960s (Drawn by the author).
Sustainability 13 09034 g012
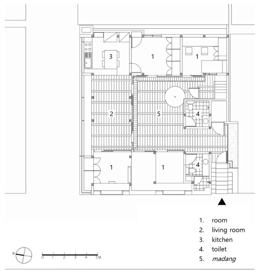
Figure 13. Floor plan of the Samcheong Hanok before renovation in 2000 (Courtesy of One O One Architects).
Figure 13. Floor plan of the Samcheong Hanok before renovation in 2000 (Courtesy of One O One Architects).
Sustainability 13 09034 g013
Figure 14. Unique exterior cladding of the Samcheong Hanok with repeated horizontal lines (Photograph by the author).
Figure 14. Unique exterior cladding of the Samcheong Hanok with repeated horizontal lines (Photograph by the author).
Sustainability 13 09034 g014
Figure 15. Maru-like wooden deck on the madang of the Samcheong Hanok (Courtesy of One O One Architects).
Figure 15. Maru-like wooden deck on the madang of the Samcheong Hanok (Courtesy of One O One Architects).
Sustainability 13 09034 g015
Figure 16. Interior view of the Samcheong Hanok (Courtesy of One O One Architects).
Figure 16. Interior view of the Samcheong Hanok (Courtesy of One O One Architects).
Sustainability 13 09034 g016
Figure 17. Floor plan of the Samcheong Hanok after renovation in 2000 (Courtesy of One O One Architects).
Figure 17. Floor plan of the Samcheong Hanok after renovation in 2000 (Courtesy of One O One Architects).
Sustainability 13 09034 g017
Figure 18. Four stages of the Samcheong Hanok evolution: (a) New Construction (around 1940); (b) Extension (early 1960s); (c) Repairs (1960s–1990s); (d) Renovation (2000).
Figure 18. Four stages of the Samcheong Hanok evolution: (a) New Construction (around 1940); (b) Extension (early 1960s); (c) Repairs (1960s–1990s); (d) Renovation (2000).
Sustainability 13 09034 g018
Publisher’s Note: MDPI stays neutral with regard to jurisdictional claims in published maps and institutional affiliations.

Share and Cite

MDPI and ACS Style

Lee, Y.-H.; Kim, H.-S. The Samcheong Hanok and the Evolution of the Traditional Korean House. Sustainability 2021, 13, 9034. https://doi.org/10.3390/su13169034

AMA Style

Lee Y-H, Kim H-S. The Samcheong Hanok and the Evolution of the Traditional Korean House. Sustainability. 2021; 13(16):9034. https://doi.org/10.3390/su13169034

Chicago/Turabian Style

Lee, Yong-Hee, and Hyon-Sob Kim. 2021. "The Samcheong Hanok and the Evolution of the Traditional Korean House" Sustainability 13, no. 16: 9034. https://doi.org/10.3390/su13169034

APA Style

Lee, Y.-H., & Kim, H.-S. (2021). The Samcheong Hanok and the Evolution of the Traditional Korean House. Sustainability, 13(16), 9034. https://doi.org/10.3390/su13169034

Note that from the first issue of 2016, this journal uses article numbers instead of page numbers. See further details here.

Article Metrics

Back to TopTop