Expandable Houses: An Explorative Life Cycle Cost Analysis
Abstract
:1. Introduction
1.1. Challenges in the Flemish Housing Market
1.2. Design for Change
1.3. Expandable Houses
2. Methods
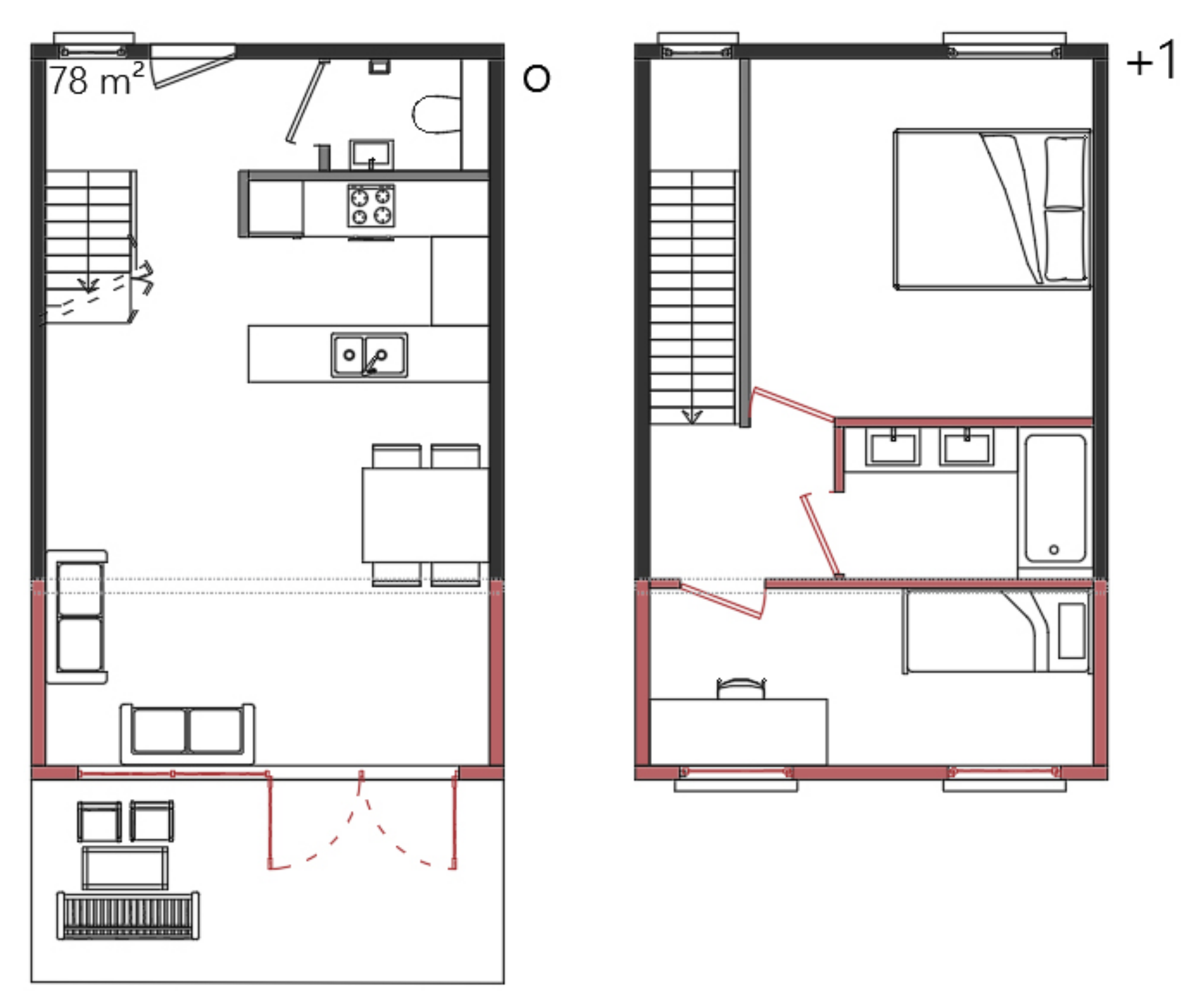
3. Design of an Expandable House
3.1. Design Approaches for Expandable Houses
3.1.1. Case Studies of Expandable Houses
3.1.2. Design Approaches for Expandable Houses
3.2. Development of Household Scenarios
3.2.1. Scenario Development
- Scenario 1: Work from home.
- Scenario narrative 2: Couple with children.
- Scenario narrative 3: Kangaroo dwelling.
- Scenario narrative 4: Co-housing.
3.3. Elaboration of the Design Alternatives
3.3.1. Selection and Service Life Modelling of the Reference House
3.3.2. Design and Service Life Modelling of an Expandable House According to the ‘Core House’ Approach
4. Life Cycle Cost Analysis and Comparison
5. Results
5.1. Initial Costs
5.2. Comparison 1: Alternative Design Approaches
5.3. Comparison 2: Alternative Material Choices
6. Discussion and Conclusions
Supplementary Materials
Author Contributions
Funding
Data Availability Statement
Conflicts of Interest
Appendix A


Appendix B




Appendix C




Appendix D




Appendix E

| Definition | Descriptive Indicators | |
|---|---|---|
| Periodicity | Number of years between two repairs | Rare, seldom, occasional, frequent |
| Extensity | Share of elements that is subjected to damage | Ubiquitous, widespread, common, local |
| Intensity | Fraction per element unit that has to be replaced | Complete, segmental, partial, fragmental |



References
- Friedman, T.L. Hot, Flat, and Crowded: Why We Need a Green Revolution—And How It Can. Renew. America, 1st ed.; Farrar, Straus and Giroux: New York, NY, USA, 2008; ISBN 978-0-374-16685-4. [Google Scholar]
- OVAM. Materiaalbewust Bouwen in Kringlopen: Preventieprogramma Duurzaam Materialenbeheer in de Bouwsector 2014–2020. 2013. Available online: https://www.ovam.be/sites/default/files/FILE1387460657455130930_Materiaalbewust_bouwen_kringlopen_2014_2020.pdf (accessed on 28 August 2020).
- Friedman, A. Fundamentals of Sustainable Dwellings; Island Press: Washington, DC, USA, 2012; ISBN 978-1-59726-807-3. [Google Scholar]
- Merrild, H. Building a Circular Future; Guldager, K., Sommer, J., Eds.; KLS PurePrint: Hvidovre, Denmark, 2016; ISBN 978-87-998670-1-1. [Google Scholar]
- United Nations Environment Programme. 2020 Global Status Report for Buildings and Construction: Towards a Zero-Emission, Efficient and Resilient Buildings and Construction Sector; United Nations Environment Programme: Nairobi, Kenya, 2020; p. 80. [Google Scholar]
- IEA. Global Status Report for Buildings and Construction 2019; IEA: Paris, France, 2019. [Google Scholar]
- European Commission. EU Circular Economy Action Plan.: A New Circular Economy Action Plan. for a Cleaner and More Competitive Europe; European Commission: Brussels, Belgium, 2020. [Google Scholar]
- Winters, S.; Heylen, K.; Pannecoucke, I.; De Decker, P. De Vlaamse Sociale Huur. Een Vertaling van de Recentste Gegevens Naar Beleidsvragen; Steunpunt Wonen: Leuven, Belgium, 2016; p. 48. [Google Scholar]
- Vermeiren, K.; Vervoort, P.; Pisman, A. Ruimterapport Vlaanderen (RURA): Een Ruimtelijke Analyse van Vlaanderen; Departement Omgeving: Brussels, Belgium, 2018. [Google Scholar]
- Englert, M.; Luyten, S.; Mazina, D.; Yannart, M. Welzijnsbarometer 2015: Samenvatting. Available online: https://www.ccc-ggc.brussels/nl/observatbru/publications/2015-welzijnsbarometer (accessed on 11 January 2018).
- Housing Europe. Social Housing in Europe Belgium; CECODHAS Housing Europe’s Observatory: Brussels, Belgium, 2011. [Google Scholar]
- Salama, W. Design of concrete buildings for disassembly: An explorative review. Int. J. Sustain. Built Environ. 2017, 19, 617–635. [Google Scholar] [CrossRef]
- Till, J.; Schneider, T. Flexible Housing: The Means to the End. Archit. Res. Q. 2005, 9, 287–296. [Google Scholar] [CrossRef] [Green Version]
- Bach, A.; Katari Gupta, P.; Haughey, R.; Kelly, G.; Pawlukiewicz, M.; Pitchford, M. Ten Principles for Developing Affordable Housing. 2007. Available online: https://americas.uli.org/ten-principles-for-developing-affordable-housing/ (accessed on 28 April 2018).
- Galle, W.; Herthogs, P. Veranderingsgericht Bouwen: Gemeenschappelijke Taal; Openbare Vlaamse Afvalstoffen Maatschappij: Mechelen, Belgium, 2015. [Google Scholar]
- Vandenbroucke, M.; Galle, W.; De Temmerman, N.; Debacker, W.; Paduart, A. Using life cycle assessment to inform decision-making for sustainable buildings. Buildings 2015, 5, 536–559. [Google Scholar] [CrossRef]
- Kirchherr, J.; Reike, D.; Hekkert, M. Conceptualizing the circular economy: An analysis of 114 definitions. Resour. Conserv. Recycl. 2017, 127, 221–232. [Google Scholar] [CrossRef]
- Paduart, A. Re-Design for Change: A 4-Dimensional Approach towards a Dynamic and Sustainable Building Stock. Ph.D. Thesis, Vrije Universiteit Brussel, Brussels, Belgium, 2012. [Google Scholar]
- Friedman, A. The Adaptable House Designing For Change; McGraw Hill: New York, NY, USA, 2002. [Google Scholar]
- Schwartz, P. The Art of the Long View: Scenario Planning Protecting Your Company against an Uncertain Future; Century Business: London, UK, 1991; ISBN 978-0-7126-9831-3. [Google Scholar]
- Amoako, C.; Frimpong Boamah, E. Build as you earn and learn: Informal urbanism and incremental housing financing in Kumasi, Ghana. J. Hous. Built Environ. 2017, 32, 429–448. [Google Scholar] [CrossRef]
- Mora, R.; Greene, M.; Gaspar, R.; Moran, P. Exploring the mutual adaptive process of home-making and incremental upgrades in the context of chile’s progressive housing programme (1994–2016). J. Hous. Built Environ. 2020, 35, 243–264. [Google Scholar] [CrossRef]
- Starterswoning Op de Groei: Huis in Antwerpen–FELT Architecture & Design. Available online: https://www.dearchitect.nl/projecten/starterswoning-op-de-groei-huis-in-antwerpen-felt-architecture-design (accessed on 16 March 2021).
- Galle, W. Scenario Based Life Cycle Costing: An Enhanced Method for Evaluating the Financial Feasibility of Transformable Building. Ph.D. Thesis, Vrije Universiteit Brussel, Brussels, Belgium, 2016. [Google Scholar]
- Hauberg, J. Research by Design—a Research Strategy. Revista Lusófona de Architectura e Educacao 2011, 5, 46–56. [Google Scholar]
- VMSW C2008. Leidraad Voor Bouwheren en Ontwerpers van Sociale Woningen; Vlaamse Maatschappij voor Sociaal Wonen: Brussels, Belgium, 2014. [Google Scholar]
- Van der Veken, J.; Creylman, J.; Lenaerts, T. Studie Naar de Kostenoptimale Niveaus van de Minimumeisen Inzake Energieprestaties van Nieuwe Residentiële Gebouwen; Thomas More Kempen/ KU Leuven: Geel, Belgium, 2015. [Google Scholar]
- Galle, W.; Cambier, C.; De Temmerman, N.; Elsen, S.; Lanckriet, W.; Poppe, J.; Tavernier, I.; Vandervaeren, C. Building a Circular Economy: Buildings, a Dynamic Environment; Vrije Universiteit Brussel: Brussels, Belgium, 2019; ISBN 978-94-91912-16-0. [Google Scholar]
- Vrijders, J.; Decuypere, R. Levenscycluskostenanalyse (LCC) Voor de Beoordeling van de Economische Prestatie van Duurzame Gebouwen. Available online: http://www.wtcb.be/homepage/index.cfm?cat=projects&proj=89 (accessed on 17 June 2021).
- Statistiek Vlaanderen Eigendomsstatuut. Available online: https://www.statistiekvlaanderen.be/nl/eigendomsstatuut (accessed on 29 March 2021).
- Heylen, K.; Vanderstraeten, L. Wonen in Vlaanderen Anno 2018; Gompel&Svacina: Oud-Turnhout, Belgium, 2019; ISBN 978-94-6371-140-1. [Google Scholar]
- Loko Architecten. “Ik bouw betaalbaar in Nijmegen” (IbbN). 2013. Available online: https://loko-architecten.nl/ibbn-lent/ (accessed on 17 June 2021).
- Dostoglu, A.D. Study of Quinta Monroy Housing Project around the Issue of Property. 2011. Available online: https://contemporaryagainstme.wordpress.com/2011/09/10/study-of-quinta-monroy-housing-project-around-the-issue-of-property/ (accessed on 13 December 2017).
- Archdaily Quinta Monroy/Elemental. Archdaily. 2008. Available online: http://www.archdaily.com/10775/quinta-monroy-elemental/ (accessed on 13 December 2017).
- Galle, W.; Paduart, A.; De Temmerman, N. Evaluation of Temporary Pavilions: LLEXX and Skilpod, a Qualitative Assessment of Adaptability and Generality Related to a Circular Economy; Openbare Vlaamse Afvalstoffen Maatschappij: Mechelen, Belgium, 2016. [Google Scholar]
- Timmermans, F. Skilpod: Modulair Wonen Met Circulair Potentieel. 2015. Available online: https://skilpod.com/blog/skilpod-modulair-wonen-met-circulair-potentieel/ (accessed on 17 June 2021).
- Varinsky, D. This Tokyo Micro Apartment Tower Looks like a Stack of Washing Machines. 2016. Available online: https://www.businessinsider.com/the-nakagin-capsule-tower-in-tokyo-looks-like-a-stack-of-washing-machines-2016-6?r=US&IR=T (accessed on 17 June 2021).
- Soares, A.; Magalhaes, F. A Year in the Metabolist Future of 1972. 2014. Available online: https://failedarchitecture.com/2014/06/a-year-in-the-metabolist-future-of-1972/ (accessed on 11 January 2021).
- Archdaily Sharifi-Ha House. Archdaily 2014. Available online: https://www.archdaily.com/522344/sharifi-ha-house-nextoffice (accessed on 11 January 2018).
- DRMM Architects Sliding House. dRMM. Available online: https://drmm.co.uk/project/sliding-house/ (accessed on 11 January 2018).
- Aquitanis Projet Pilote Rosa Parks. Available online: http://www.aquitanisphere.com/ (accessed on 11 January 2018).
- Architizer ME:LU. Architizer 2017. Available online: http://architizer.com/projects/melu/ (accessed on 11 January 2018).
- Friedman, A. Sustainable dwellings. In Fundamentals of Sustainable Neighbourhoods; Springer International Publishing: Cham, Switzerland, 2015; pp. 143–170. ISBN 978-3-319-10747-9. [Google Scholar]
- Bertram, N.; Fuchs, S.; Mischke, J.; Palter, R.; Strube, G.; Woetzel, J. Modular Construction: From Projects to Products; McKinsey & Company: London, UK, 2019. [Google Scholar]
- Gunawerdena, T.; Ngo, T.; Mendis, P.; Aye, L.; Crawford, R.; Alfano, J. A Holistic Model for Designing and Optimising Sustainable Prefabricated Modular Buildings. In Proceedings of the ICSBE2012, University of, Moratuwa, Moratuwa, Sri Lanka, 14–16 December 2012. [Google Scholar]
- Nakib, F. Toward an adaptable architecture. Guidelines to integrate adaptability in the building. In Proceedings of the Building a Better World, CIB, Salford Quays, UK, 6 October 2010; p. 14. [Google Scholar]
- OVAM 24 Ontwerprichtlijnen Veranderingsgericht Bouwen 2016. Available online: https://www.ovam.be/ontwikkeling-integratie-evaluatiekader (accessed on 17 June 2021).
- Vlaamse Maatschappij voor Sociaal Wonen (VMSW) Gezinsleden. Available online: https://www.vmsw.be/Home/Footer/Over-sociale-huisvesting/Statistieken/Huurders (accessed on 25 February 2017).
- Debacker, W.; Allacker, K.; De Troyer, F.; Janssen, A.; Delem, L.; Peeters, K.; De Nocker, L.; Spirinckx, C.; Van Dessel, J. Milieugerelateerde Materiaalprestatie van Gebouwelementen; OVAM: Mechelen, Belgium, 2012; p. 361. [Google Scholar]
- Buyle, M.; Galle, W.; Debacker, W.; Audenaert, A. Sustainability assessment of circular building alternatives: Consequential LCA and LCC for internal wall assemblies as a case study in a Belgian context. J. Clean. Prod. 2019, 218, 141–156. [Google Scholar] [CrossRef]
- Milasi, S.; Gonzalez-Vazquez, I.; Fernandez Macias, E. Telework in the EU before and after the COVID-19: Where We Were, Where We Head To; Science for policy briefs; European Commission, Joint Research Centre: Brussels, Belgium, 2020; p. 8. [Google Scholar]
- Peters, R.; Van Den Driessche, C.; Bauwens, D. Hoeveel Kost de Hervorming van Kinderbijslag? VRT NWS. 2014. Available online: https://www.vrt.be/vrtnws/nl/2014/03/24/hoeveel_kost_de_hervormingvandekinderbijslag-1-1916643/ (accessed on 28 May 2021).
- Ruimte Vlaanderen Opsplitsen of Zorgwonen (Kangoeroewonen). Ruimte Vlaanderen Departement Omgeving. 2017. Available online: https://www.omgevingsloketvlaanderen.be/opsplitsen (accessed on 28 May 2021).
- De Zilveren Sleutel Kangoeroewonen, Een Woonconcept Voor Nu En Later, Voor Jong En Oud. 2014. Available online: https://inter.vlaanderen/sites/default/files/Kangoeroewonen_brochure_2014.pdf (accessed on 15 March 2021).
- Gerards, S.; De Ridder, R.; De Bleeckere, S. Designing multigenerational dwelling: A workshop with four flemish architecture firms. Int. J. Adv. Res. 2015, 9, 20–30. [Google Scholar] [CrossRef]
- Vlaamse overheid Gemeenschappelijk Wonen En Woningdelen. Bouwen, Wonen en Energie. 2017. Available online: https://www.vlaanderen.be/gemeenschappelijk-wonen-en-woningdelen (accessed on 15 March 2021).
- Larsen, H.G. Three phases of Danish cohousing: Tenure and the development of an alternative housing form. Hous. Stud. 2019, 34, 1349–1371. [Google Scholar] [CrossRef] [Green Version]
- Redactie Livios Cohousing: Samen Maar Toch Apart. Livios. Available online: https://www.livios.be/nl/bouwinformatie/woonwijzer/hoe-wil-ik-wonen/alternatieve-woonvormen/cohousing-samen-maar-toch-apart/ (accessed on 17 June 2021).
- Sargisson, L. Second-wave cohousing: A modern utopia? Utop. Stud. 2012, 23, 28–56. [Google Scholar] [CrossRef]
- De Standaard. Leve de Achterkant. 2007. Available online: https://www.standaard.be/cnt/g891imdt5 (accessed on 28 May 2021).
- Vermeire, S.; Vanmeirhaeghe, T.; Taillieu, J. Ontwerpend Onderzoek Naar Het Herdenken van de Rijwoning. Master’s Thesis, Universiteit Gent, Ghent, Belgium, 2013. [Google Scholar]
- Silva, A.; de Brito, J.; Gaspar, J.P. Service life and durability of assemblies. In Methodologies for Service Life Prediction in Buildings; Springer International Publishing: Cham, Switzerland, 2016; p. 432. ISBN 978-3-319-33288-8. [Google Scholar]
- BCIS. Life Expectancy of Building Components: A Practical Guide to Surveyors’ Experiences of Buildings in Use, 2nd ed.; Connelly-Manton Ltd: London, UK, 2006; ISBN 1-904829-39-2. [Google Scholar]
- Galle, W.; De Temmerman, N.; De Meyer, R. Integrating scenarios into life cycle assessment: Understanding the value and financial feasibility of a demountable building. Buildings 2017, 7, 64. [Google Scholar] [CrossRef]
- Aspen Aspen Index. Construction Prices for Residential Buildings-New Construction Projects; ASPEN Architecten & Ingenieurs: Antwerp, Belgium, 2014. [Google Scholar]
- Bouwunie. Calculatienormen En Richtprijzen Voor de Woningbouw; 2014–2015 ed.; Bouwunie: Vilvoorde, Belgium, 2014. [Google Scholar]
- Wouterszoon Jansen, B.; van Stijn, A.; Gruis, V.; van Bortel, G. A circular economy life cycle costing code (CE-LCC) for building components. Resour. Conserv. Recycl. 2020, 161, 104857. [Google Scholar] [CrossRef]
- Invidiata, A.; Ghisi, E. Life-cycle energy and cost analyses of window shading used to improve the thermal performance of houses. J. Clean. Prod. 2016, 133, 1371–1383. [Google Scholar] [CrossRef]
















| Nr. | Case Study | Place | Completion Date | Characteristics/Concept |
|---|---|---|---|---|
| 1 | Quinta Monroy by ELEMENTAL [33,34] | Iquique, Chile | 2003 | Extensions, people architecture, cost-efficient |
| 2 | Skilpod by UAU Collectiv [35,36] | Belgium | 2016–today | Modular volumes, replaceable |
| 3 | Nakagin capsule tower by Kisho Kurokawa [37,38] | Tokyo, Japan | 1972 | Modular volumes, prefabrication, quick assembly |
| 4 | Sharifi-Ha House by Next Office [39] | Tehran, Iran | 2014 | Manipulation of volumes, box-in-box principle |
| 5 | Sliding House by dRMM Architects [40] | Suffolk, UK | 2009 | Manipulation of volumes |
| 6 | Aquitanis by Tetrarc Architects [41] | Bordeaux, France | 2016 | Modularity, core house, prefabrication |
| 7 | ME:LU by AB Design studio [42] | Los Angeles, USA | - | Modularity, reuse of containers |
| 8 | IbbN by Koos Van Lith [32] | Nijmegen, The Netherlands | - | Cost-efficient, kit-of-parts, rapid construction |
| 9 | The Next Home by Avi Friedman [43] | Montreal, Canada | - | Cost-efficient, over-dimensioning |
| Conventional Building Elements | Alternative Building Elements | ||||
|---|---|---|---|---|---|
| Building Element | Material | Esl (Years) | Building Element | Material | Esl (Years) |
| External wall | Brickwork EPS Concrete blocks Plaster board | 75 75 75 25 | External wall | Cement fiber board Wooden studs Wooden fiber board Mineral wool Timber frame Plywood | 25 50 30 75 74 25 |
| External shared wall | EPS Concrete blocksPlaster boars | 75 75 25 | External shared wall | Mineral wool Timber frame Plywood | 75 75 25 |
| Window | Aluminum framing | 75 | Windows | Aluminum framing | 75 |
| Internal wall | Plaster board Sand-lime bricks Plaster board | 25 72 25 | Internal walls | Plywood Wooden battens Plywood | 25 72 25 |
| Floor | Hardwood Concrete EPS Concrete slab Plaster board | 25 75 75 75 25 | Floor | Hardwood Plywood Wooden battens Mineral wool Plywood | 25 25 75 75 25 |
| Ground floor | Laminate Concrete EPS Concrete slab | 30 75 75 75 | Ground Floor | Timber flooring Wooden fiber board Mineral wool Joists Bearer | 30 30 75 70 70 |
| Roof | Roof tiles Rafters EPS Purlins Plaster board | 75 50 75 50 25 | Roof | Gravel PUR Timber frame Plywood | 70 75 75 25 |
| Typology/Materials | Initial Cost |
|---|---|
| Reference house (Conventional materials) | EUR 93,222.55 |
| Expandable house- Conventional materials | EUR 56,363.53 |
| Expandable house- Alternative materials | EUR 50,808.56 |
Publisher’s Note: MDPI stays neutral with regard to jurisdictional claims in published maps and institutional affiliations. |
© 2021 by the authors. Licensee MDPI, Basel, Switzerland. This article is an open access article distributed under the terms and conditions of the Creative Commons Attribution (CC BY) license (https://creativecommons.org/licenses/by/4.0/).
Share and Cite
Cambier, C.; Galle, W.; De Temmerman, N. Expandable Houses: An Explorative Life Cycle Cost Analysis. Sustainability 2021, 13, 6974. https://doi.org/10.3390/su13126974
Cambier C, Galle W, De Temmerman N. Expandable Houses: An Explorative Life Cycle Cost Analysis. Sustainability. 2021; 13(12):6974. https://doi.org/10.3390/su13126974
Chicago/Turabian StyleCambier, Charlotte, Waldo Galle, and Niels De Temmerman. 2021. "Expandable Houses: An Explorative Life Cycle Cost Analysis" Sustainability 13, no. 12: 6974. https://doi.org/10.3390/su13126974
APA StyleCambier, C., Galle, W., & De Temmerman, N. (2021). Expandable Houses: An Explorative Life Cycle Cost Analysis. Sustainability, 13(12), 6974. https://doi.org/10.3390/su13126974

