An IoT-Based Thermoelectric Air Management Framework for Smart Building Applications: A Case Study for Tropical Climate
Abstract
1. Introduction
2. Methodology
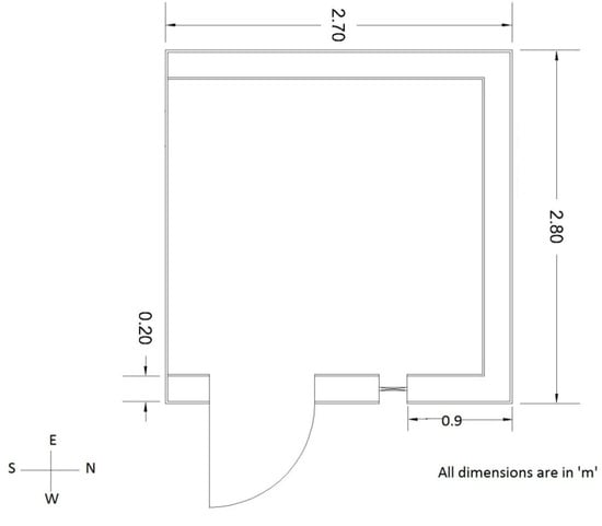
2.1. Experimental Test Room
2.2. System Architecture
- ▪
- HTTP(S)—Commonly used transport protocol;
- ▪
- REST—Representational State Transfer, which is a uniform interface on data as resources with known manipulation means. It describes how one system can communicate state with another;
- ▪
- JSON—JavaScript Object Notation is a lightweight simple data representation format that is used for data interchanging.
3. Results
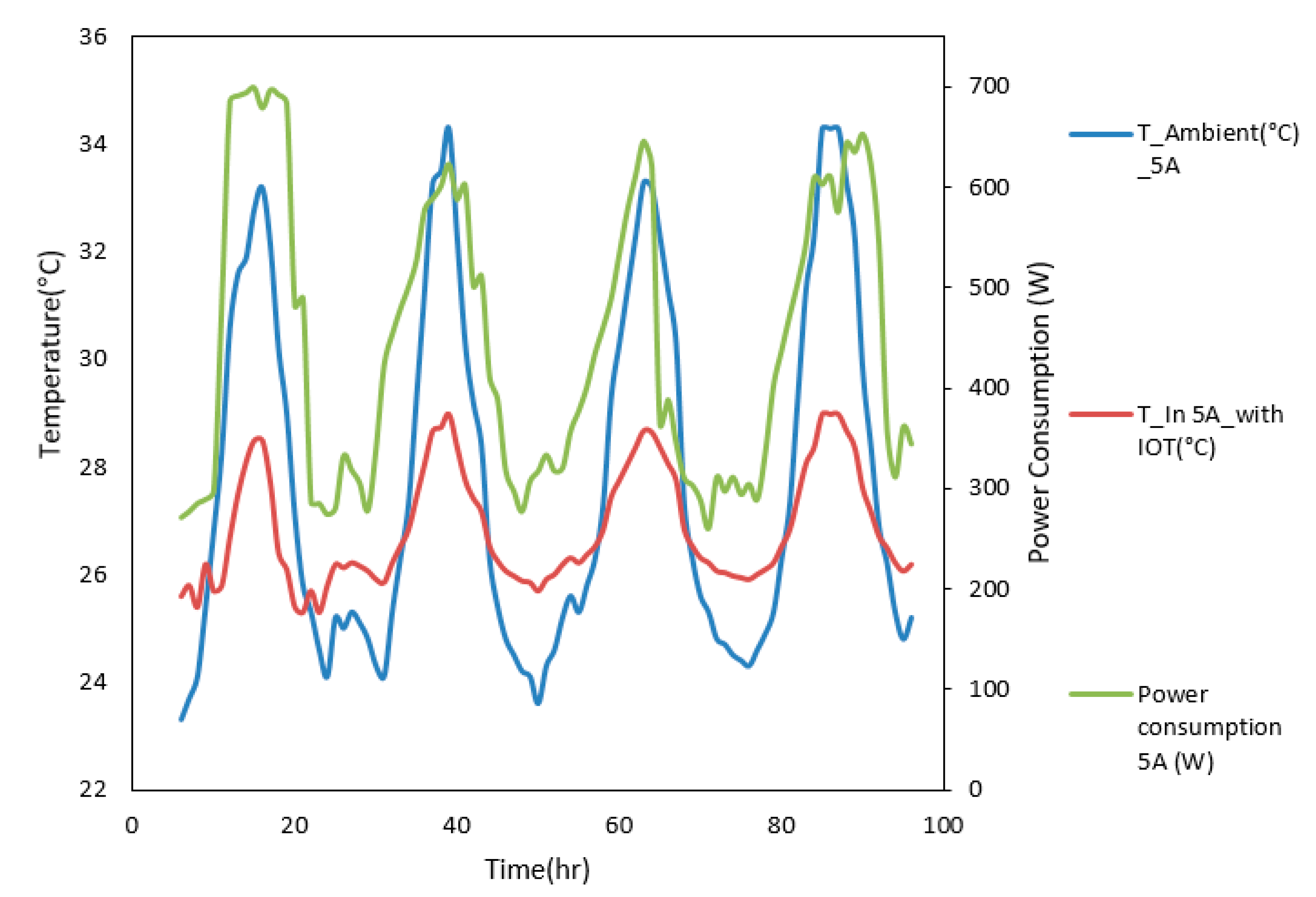
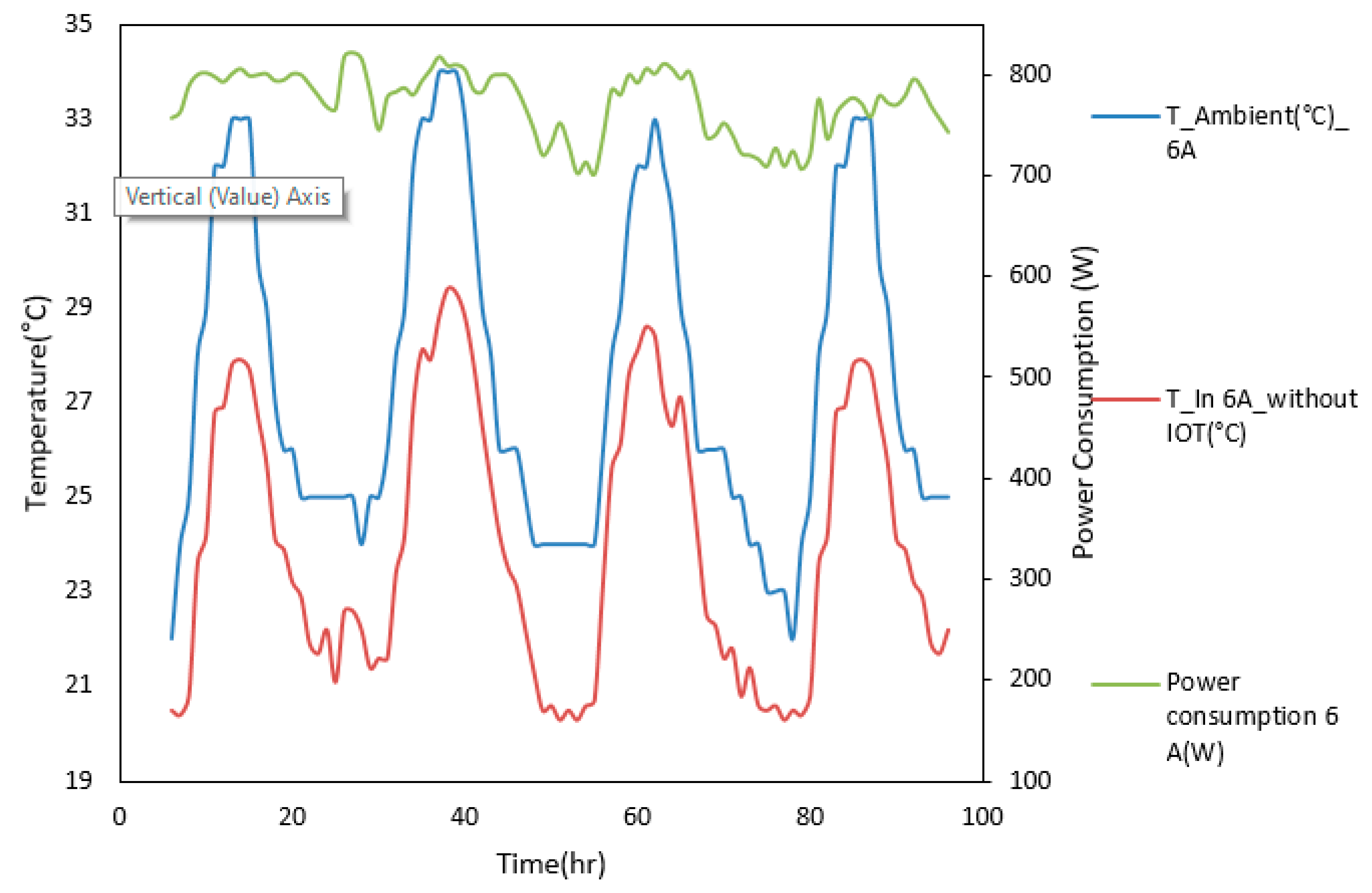
3.1. Effect on Room Temperature
3.2. Effect on Cooling Capacity and Coefficient of Performance of the TE-AC System
3.3. Mitigation of CO2 Emissions and Operational Cost
4. Conclusions
Author Contributions
Funding
Acknowledgments
Conflicts of Interest
References
- Irshad, K.; Habib, K.; Saidur, R.; Kareem, M.W.; Saha, B.B. Study of thermoelectric and photovoltaic facade system for energy efficient building development: A review. J. Clean. Prod. 2019, 209, 1376–1395. [Google Scholar] [CrossRef]
- Bunjongjit, S.; Ngaopitakkul, A. Feasibility study and impact of daylight on illumination control for Energy-saving lighting systems. Sustainability 2018, 10, 4075. [Google Scholar] [CrossRef]
- Xu, X.; Li, C.Z.; Wang, J.; Huang, W. Collaboration between designers and contractors to improve building energy performance. J. Clean. Prod. 2019, 219, 20–32. [Google Scholar] [CrossRef]
- Kamal, A.; Al-Ghamdi, S.G.; Koç, M. Role of energy efficiency policies on energy consumption and CO2 emissions for building stock in Qatar. J. Clean. Prod. 2019, 235, 1409–1424. [Google Scholar] [CrossRef]
- Sáez, P.C.; Astorqui, J.S.C.; Merino, M.D.R.; Moyano, M.D.P.M.; Sánchez, A.R. Estimation of construction and demolition waste in building energy efficiency retrofitting works of the vertical envelope. J. Clean. Prod. 2018, 172, 2978–2985. [Google Scholar] [CrossRef]
- He, Y.; Liao, N.; Bi, J.; Guo, L. Investment decision-making optimization of energy efficiency retrofit measures in multiple buildings under financing budgetary restraint. J. Clean. Prod. 2019, 215, 1078–1094. [Google Scholar] [CrossRef]
- Piderit, M.B.; Agurto, S.; Marín-Restrepo, L. Reconciling energy and heritage: Retrofit of heritage buildings in contexts of energy vulnerability. Sustainability 2019, 11, 823. [Google Scholar] [CrossRef]
- Baheta, A.T.; Looi, K.K.; Oumer, A.N.; Habib, K. Thermoelectric air-conditioning system: Building applications and enhancement techniques. Int. J. Air Cond. Refrig. 2019, 27, 1930002. [Google Scholar] [CrossRef]
- Davidsson, P.; Eklund, U.; Olsson, C.M. Elis: An open platform for mobile energy efficiency services in buildings. Sustainability 2019, 11, 858. [Google Scholar] [CrossRef]
- Lilis, G.; Conus, G.; Asadi, N.; Kayal, M. Towards the next generation of intelligent building: An assessment study of current automation and future IoT based systems with a proposal for transitional design. Sustain. Cities Soc. 2017, 28, 473–481. [Google Scholar] [CrossRef]
- Iqbal, J.; Khan, M.; Talha, M.; Farman, H.; Jan, B.; Muhammad, A.; Khattak, H.A. A generic internet of things architecture for controlling electrical energy consumption in smart homes. Sustain. Cities Soc. 2018, 43, 443–450. [Google Scholar] [CrossRef]
- Bastani, M.; Thanos, A.E.; Damgacioglu, H.; Celik, N.; Chen, C.H. An evolutionary simulation optimization framework for interruptible load management in the smart grid. Sustain. Cities Soc. 2018, 41, 802–809. [Google Scholar] [CrossRef]
- Murugesan, L.K.; Hoda, R.; Salcic, Z. Design criteria for visualization of energy consumption: A systematic literature review. Sustain. Cities Soc. 2015, 18, 1–12. [Google Scholar] [CrossRef]
- Irshad, K.; Habib, K.; Kareem, M.W.; Basrawi, F.; Saha, B.B. Evaluation of thermal comfort in a test room equipped with a photovoltaic assisted thermo-electric air duct cooling system. Int. J. Hydrog. Energy 2017, 42, 26956–26972. [Google Scholar] [CrossRef]
- Irshad, K.; Habib, K.; Basrawi, F.; Thirumalaiswamy, N.; Saidur, R.; Saha, B.B. Thermal comfort study of a building equipped with thermoelectric air duct system for tropical climate. Appl. Therm. Eng. 2015, 91, 1141–1155. [Google Scholar] [CrossRef]
- Gillott, M.; Jiang, L.; Riffat, S. An investigation of thermoelectric cooling devices for small-scale space conditioning applications in buildings. Int. J. Energy Res. 2010, 34, 776–786. [Google Scholar] [CrossRef]
- Seo, Y.M.; Ha, M.Y.; Park, S.H.; Lee, G.H.; Kim, Y.S.; Park, Y.G. A numerical study on the performance of the thermoelectric module with different heat sink shapes. Appl. Therm. Eng. 2018, 128, 1082–1094. [Google Scholar] [CrossRef]
- Sun, X.; Ling, L.; Liao, S.; Chu, Y.; Fan, S.; Mo, Y. A thermoelectric cooler coupled with a gravity-assisted heat pipe: An analysis from heat pipe perspective. Energy Convers. Manag. 2018, 155, 230–242. [Google Scholar] [CrossRef]
- Dizaji, S.H.; Jafarmadar, S.; Khalilarya, S.; Moosavi, A. An exhaustive experimental study of a novel air-water based thermoelectric cooling unit. Appl. Energy 2016, 181, 357–366. [Google Scholar] [CrossRef]
- Attar, A.; Lee, H.S. Designing and testing the optimum design of automotive air-to-air thermoelectric air conditioner (TEAC) system. Energy Convers. Manag. 2016, 112, 328–336. [Google Scholar] [CrossRef]
- Irshad, K.; Habib, K.; Thirumalaiswamy, N.; Saha, B.B. Performance analysis of a thermoelectric air duct system for energy-efficient buildings. Energy 2015, 91, 1009–1017. [Google Scholar] [CrossRef]
- Manikandan, S.; Kaushik, S.C. Energy and exergy analysis of an annular thermoelectric cooler. Energy Convers. Manag. 2015, 106, 804–814. [Google Scholar] [CrossRef]
- Yilmazoglu, M.Z. Experimental and numerical investigation of a prototype thermoelectric heating and cooling unit. Energy Build. 2016, 113, 51–60. [Google Scholar] [CrossRef]
- Naphon, P.; Wiriyasart, S.; Hommalee, C. Experimental and numerical study on thermoelectric liquid cooling module performance with different heat sink configurations. Heat Mass Transf. Stoffuebertragung 2019, 55, 2445–2454. [Google Scholar] [CrossRef]
- Luo, Y.; Zhang, L.; Liu, Z.; Wang, Y.; Wu, J.; Wang, X. Dynamic heat transfer modeling and parametric study of thermoelectric radiant cooling and heating panel system. Energy Convers. Manag. 2016, 124, 504–516. [Google Scholar] [CrossRef]
- Dizaji, H.S.; Jafarmadar, S.; Khalilarya, S. Novel experiments on COP improvement of thermoelectric air coolers. Energy Convers. Manag. 2019, 187, 328–338. [Google Scholar] [CrossRef]
- Irshad, K.; Habib, K.; Basrawi, F.; Saha, B.B. Study of a thermoelectric air duct system assisted by photovoltaic wall for space cooling in tropical climate. Energy 2017, 119, 504–522. [Google Scholar] [CrossRef]
- ASHRAE. Handbook—HVAC Applications; American Society of Heating, Refrigerating and Air-Conditioning Engineers, Inc.: Atlanta, GA, USA, 2007. [Google Scholar]
- Gong, T.; Wu, Y.; Gao, L.; Zhang, L.; Li, J.; Ming, T. Thermo-mechanical analysis on a compact thermoelectric cooler. Energy 2019, 272, 1211–1224. [Google Scholar] [CrossRef]
- Goldsmid, H.J. Introduction to Thermoelectricity; Springer Nature: Sydney, Australia, 2010. [Google Scholar]
- Enescu, D.; Virjoghe, E.O. A review on thermoelectric cooling parameters and performance. Renew. Sustain. Energy Rev. 2014, 38, 903–916. [Google Scholar] [CrossRef]
- Snyder, G.J.; Toberer, E.S. Complex Thermoelectric Materials. In Materials for Sustainable Energy; Nature Publishing Group: Basingstoke, UK, 2010; pp. 101–110. [Google Scholar]
- He, W.; Zhou, J.; Hou, J.; Chen, C.; Ji, J. Theoretical and experimental investigation on a thermoelectric cooling and heating system driven by solar. Appl. Energy 2013, 107, 89–97. [Google Scholar] [CrossRef]
- Tan, G.; Zhao, D. Study of a thermoelectric space cooling system integrated with phase change material. Appl. Therm. Eng. 2015, 86, 187–198. [Google Scholar] [CrossRef]
- Shamsuddin, A.H. Development of renewable energy in malaysia-strategic initiatives for carbon reduction in the power generation sector. Procedia Eng. 2012, 49, 384–391. [Google Scholar] [CrossRef]
- Shafie, S.M.; Masjuki, H.H.; Mahlia, T.M.I. Life cycle assessment of rice straw-based power generation in Malaysia. Energy 2014, 70, 401–410. [Google Scholar] [CrossRef]
- Saidur, R. Energy consumption, energy savings, and emission analysis in Malaysian office buildings. Energy Policy 2009, 37, 4104–4113. [Google Scholar] [CrossRef]














| Parameters | AC Type | ||
|---|---|---|---|
| AC (Split-0.5 tons) | TE-AC without IoT System | TE-AC with IoT System | |
| Energy consumption (kWh/year) | 2500 | 1523 | 802 |
| Energy saving (kWh/year) | 0 | 1034 | 1687 |
| Cost of operation (US$/year) | 186 | 91 | 44 |
| Saving of operation cost (US$/year) | 0 | 89 | 132 |
| Carbon dioxide reduction (ton/life) | 0 | 32 | 56 |
© 2020 by the authors. Licensee MDPI, Basel, Switzerland. This article is an open access article distributed under the terms and conditions of the Creative Commons Attribution (CC BY) license (http://creativecommons.org/licenses/by/4.0/).
Share and Cite
Irshad, K.; Almalawi, A.; Khan, A.I.; Alam, M.M.; Zahir, M.H.; Ali, A. An IoT-Based Thermoelectric Air Management Framework for Smart Building Applications: A Case Study for Tropical Climate. Sustainability 2020, 12, 1564. https://doi.org/10.3390/su12041564
Irshad K, Almalawi A, Khan AI, Alam MM, Zahir MH, Ali A. An IoT-Based Thermoelectric Air Management Framework for Smart Building Applications: A Case Study for Tropical Climate. Sustainability. 2020; 12(4):1564. https://doi.org/10.3390/su12041564
Chicago/Turabian StyleIrshad, Kashif, Abdulmohsen Almalawi, Asif Irshad Khan, Md Mottahir Alam, Md. Hasan Zahir, and Amjad Ali. 2020. "An IoT-Based Thermoelectric Air Management Framework for Smart Building Applications: A Case Study for Tropical Climate" Sustainability 12, no. 4: 1564. https://doi.org/10.3390/su12041564
APA StyleIrshad, K., Almalawi, A., Khan, A. I., Alam, M. M., Zahir, M. H., & Ali, A. (2020). An IoT-Based Thermoelectric Air Management Framework for Smart Building Applications: A Case Study for Tropical Climate. Sustainability, 12(4), 1564. https://doi.org/10.3390/su12041564

