An IoT Smart Infrastructure for S. Domenico Church in Matera’s “Sassi’’: A Multiscale Perspective to Built Heritage Conservation
Abstract
1. Introduction
2. Background
2.1. WSN and Conservation of the Historical-Architectural Heritage
- The achievement of an adequate knowledge of the structure, an essential prerequisite to identify the characteristics of the elements that determine the structural behavior;
- The adoption of one or more mechanical models of the structure or of its parts (macro-elements, case study), able to describe the response under dynamic action, and consistently choose one or more methods of analysis, so as to be able to perform assessments with an appropriate level of accuracy suitable for the purposes of the study.
2.2. Structural Health Monitoring (SHM)
2.3. Ecosistemi IoT
- The interaction between IoT sensors and other devices, as well as vertical intelligent solutions and other information systems.
- The processing of historical and real-time current data to extract valuable information that can help cities in their smart decisions and plans.
- Creating dashboards that monitor what is happening across the city, as well as generating reports, including KPI monitoring and analysis.
- In outdoor environments, it has coverage 7 times higher than that of the GSM network;
- In indoor environments, it has radio coverage capable of reaching: basement rooms, internal rooms, counters behind metal grates and counters located underground.
- It is the result of power spectral density boosting and message repetition with signal accumulation.
- In terms of security, it guarantees the same level of security as LTE, applications can use the IP protocol stack.
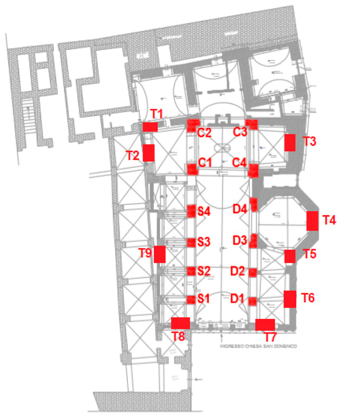
3. Smart Infrastructure for S. Domenico Church in Matera
- Predictive algorithms, which allow to continuously monitor the state of health of the structures through static or dynamic non-destructive evaluation (NDE), the location of problems/defects and using continuous progress in big data/data mining/machine learning and artificial intelligence (AI) to get estimates of possible behaviors and measures to be adopted in good time, avoiding situations of collapse.
- Monitoring systems for checking the health status of the structure, producing the necessary alarms/alerts, also in response to seismic events [65], and indications on the safe lifetime.
3.1. Design and Methods
3.2. Architecture Description
- A network of sensors: devices capable of carrying out different types of measurements and performing defined actions;
- A gateway module that deals with the dialogue between the sensor network and the data management server;
- A data management server: big data management that stores and analyzes all the measurements made by the sensor network and communicates with the user application;
- A user application: software for managing and displaying the data collected.
- Identification and naming of devices and applications;
- Security and privacy aspects (authentication, encryption, integrity verification);
- Interoperability, including test and conformance specifications;
- Collection of data for charging records (to be used for billing and statistical purposes);
- Management aspects (including remote management of entities, including service layer interfaces/APIs between:
- Application and service layers;
- Service layer and communication functions.
3.3. Supported Analysis
- Optimize and guarantee the safety of the entire complex;
- Observe the risk factors for deterioration;
- Making monitoring more effective;
- Reduce the costs of the surveys since there is no longer the need to go on site.
4. Discussion
“- Criterion (iii): The Sassi and the Park of the Rupestrian Churches of Matera represent an outstanding example of a rock-cut settlement, adapted perfectly to its geomorphological setting and ecosystem and exhibiting continuity over more than two millennia
- Criterion (iv): The town and park constitute an outstanding example of an architectural ensemble and landscape illustrating a number of significant stages in human history
- Criterion (v): The town and park represent an outstanding example of a traditional human settlement and land-use showing the evolution of a culture which has maintained a harmonious relationship with its natural environment over time”
“- Integrity: The World Heritage property includes the Sassi of Matera and the Park of the Rupestrian Churches, which together encompass the characteristic cultural features, sites and monuments that underpin the Outstanding Universal Value of the property. This includes the ancient urban centre and the highland plateau on the opposite side of the ravine which show evidence of human settlement for over 2000 years. There is a designated buffer zone around the World Heritage property to protect the immediate surroundings of Sassi from insensitive development.
- Authenticity: The Sassi and the Park of the Rupestrian Churches of Matera hold a high degree of authenticity. The rock-cut settlement exhibits evidence of continuous occupation from prehistoric times until the mid-twentieth century. There was some interruption when the entire population of the Sassi was relocated in the 1950s. The evacuation was undertaken in order to improve sanitation and renovate the ancient districts. While the abandonment of the area led to some degradation, the return of people from the 1980s has restored the traditional use and function of the property, and rejuvenated the spirit and feeling of the place” [76].
- -
- Endowment of enabling infrastructure (5G, ultra-wide band on FTTH fiber, innovation laboratories, urban infrastructure for data acquisition, management, and use);
- -
- Financial support to businesses (research and innovation, culture and creative enterprises, cultural tourism);
- -
- New citadels for ICT education and training (new campus, new branch of the Institute for Conservation and Restoration of the Ministry for Cultural Asset and Activities, Spatial Geodesy Center of the Italian Space Agency, business incubators, Experimental Center of Cinematography);
- -
- Strategic agreements for the development of experimental projects (government, regional authority, National Research Council, Italian Space Agency, Association for Industrial Development of Southern Italy, universities, businesses);
- -
- Science communication activities (5G project demonstrator, City of Stars for space science divulgation, Park of Numbers, dissemination programs);
- -
- Realization of infrastructures for innovative businesses (House of Technologies, San Rocco Hub).
5. Conclusions
Author Contributions
Funding
Acknowledgments
Conflicts of Interest
References
- Liritzis, I.; Korka, E. Archaeometry’s Role in Cultural Heritage Sustainability and Development. Sustainability 2019, 11, 1972. [Google Scholar] [CrossRef]
- Gruber, S. The Impact of Climate Change on Cultural Heritage Sites: Environmental Law and Adaptation. Carbon Clim. Law Rew. 2011, 5, 209–219. [Google Scholar] [CrossRef]
- Bertolin, C. Preservation of Cultural Heritage and Resources Threatened by Climate Change. Geosciences 2019, 9, 250. [Google Scholar] [CrossRef]
- UNESCO. World Heritage Convention, List of Factors Affecting the Properties. Available online: https://whc.unesco.org/en/factors/ (accessed on 4 August 2020).
- Europeana. Heritage on Risk. Available online: https://www.europeana.eu/en/exhibitions/heritage-at-risk (accessed on 4 August 2020).
- European Commission. Mapping of Cultural Heritage Actions in the European Union Policies, Programmes and Activities. Available online: http://network.icom.museum/fileadmin/user_upload/minisites/icom-europe/images/Mapping_Cultural_Heritage.pdf (accessed on 4 August 2020).
- European Commission. Available online: https://cordis.europa.eu/article/id/400947-heritage-at-risk-eu-research-and-innovation-for-a-more-resilient-cultural-heritage (accessed on 13 August 2020).
- TPI. Available online: https://www.tpi.it/app/uploads/2019/01/sassi-matera.jpg (accessed on 12 May 2020).
- Laureano, P.; di Pietra, G. I Sassi di Matera e la Civiltà Mediterranea; Bollati Boringhieri: Torino, Italy, 2012. [Google Scholar]
- Guide Around Matera. Available online: http://www.guidearoundmatera.it/index.php/it/tour-dei-sassi-civita-cattedrale (accessed on 11 May 2020).
- Sassi Kult. Available online: http://www.sassikult.it/ita/web/news_item.asp?nav=147 (accessed on 15 May 2020).
- Statista. Internet of Things (IoT) Connected Devices Installed Base Worldwide from 2015 to 2025 (in Billions). Available online: https://www.statista.com/statistics/471264/iot-number-of-connected-devices-worldwide/ (accessed on 15 June 2020).
- IBM and Intel: Teaming up to Speed up and Simplify IoT Development. Available online: https://www.ibm.com/blogs/internet-of-things/ibm-intel/ (accessed on 30 July 2020).
- Gribaudo, M.; Iacono, M.; Levis, A. An IoT-based monitoring approach for cultural heritage sites: The Matera case. Concurr. Comput. Pract. Exp. 2017, 29. [Google Scholar] [CrossRef]
- Gubbi, J.; Buyya, R.; Marusic, S.; Palaniswami, M. Internet of Things (IoT): A vision, architectural elements, and future directions. Future Gener. Comput. Syst. 2013, 29, 1645–1660. [Google Scholar] [CrossRef]
- Karabiyik, U.; Akkaya, K. Digital Forensics for IoT and WSNs. In Mission-Oriented Sensor Networks and Systems: Art and Science; Anmari, H., Ed.; Studies in Systems, Decision and Control; Springer: Cham, Switzerland, 2019; Volume 164. [Google Scholar] [CrossRef]
- Zawoad, S.; Hasan, R. FAIoT: Towards Building a Forensics Aware Eco System for the Internet of Things. In Proceedings of the IEEE International Conference on Services Computing, New York, NY, USA, 27 June–2 July 2015; pp. 279–284. [Google Scholar] [CrossRef]
- Gerber, A.; Kansal, S. Simplify the Development of Your IoT Solutions with IoT Architectures—Strategies for Creating Scalable, Flexible, And Robust IoT Solutions. 2017. Available online: https://developer.ibm.com/articles/iot-lp201-iot-architectures/ (accessed on 30 July 2020).
- Oppermann, F.; Boano, C.A.; Römer, K. A Decade of Wireless Sensing Applications: Survey and Taxonomy. In The Art of Wireless Sensor Networks; Springer: Heidelberg, Berlin/Germany, 2014; pp. 11–50. [Google Scholar] [CrossRef]
- Akyildiz, I.F.; Su, W.; Sankarasubramaniam, Y.; Cayirci, E. Wireless Sensor Networks: A Survey. Comput. Netw. 2002, 38, 393–422. [Google Scholar] [CrossRef]
- Dai, H.; Zheng, Z.; Zhang, Y. Blockchain for Internet of Things: A Survey. IEEE Internet Things J. 2019, 6, 8076–8094. [Google Scholar] [CrossRef]
- Nallapaneni, M.K.; Mallick, P.K. The Internet of Things: Insights into the building blocks, component interactions, and architecture layers. Procedia Comput. Sci. 2018, 132, 109–117. [Google Scholar] [CrossRef]
- Worden, K. Structural Health Monitoring using Pattern Recognition. In New Trends in Vibration Based Structural Health Monitoring; Deraemaeker, A., Worden, K., Eds.; CISM Courses and Lectures; Springer: Vienna, Austria, 2010; Volume 520. [Google Scholar] [CrossRef]
- Brencich, A.; Gambarotta, L.; Lagomarsino, S. A macroelement approach to the three-dimensional seismic analysis of masonry buildings. In Proceedings of the 11th European Conference on Earthquake Engineering, Paris, France, 6–11 September 1998. [Google Scholar]
- Pistone, G.; Zanotti Fragonara, L.; Massetto, S.; Abbiati, G.; Ceravolo, R. Vibration-Based Monitoring and Diagnosis of Cultural Heritage: A Methodological Discussion in Three Examples. Int. J. Archit. Herit. 2014. [Google Scholar] [CrossRef]
- Elyamani, A.; Roca, P. A review on the study of historical structures using integrated investigation activities for seismic safety assessment. Part II: Model updating and seismic analysis. Sci. Cult. 2018, 4, 29–51. [Google Scholar] [CrossRef]
- Elyamani, A.; Caselles, O.; Roca, P.; Clapes, J. Integrated dynamic and thermography investigation of Mallorca cathedral. Mediterr. Archaeol. Archaeom. 2018, 18. [Google Scholar] [CrossRef]
- Direttiva Del Presidente Del Consiglio Dei Ministri 9 Febbraio 2011. Available online: https://www.gazzettaufficiale.it/eli/id/2011/02/26/11A02374/sg (accessed on 30 July 2020).
- Chen, J.; Díaz, M.; Llopis, L.; Rubio, B.; Troya, J.M. A survey on quality of service support in wireless sensor and actor networks: Requirements and challenges in the context of critical infrastructure protection. J. Netw. Comput. Appl. 2011, 34, 1225–1239. [Google Scholar] [CrossRef]
- Alonso, L.; Barbarán, J.; Chen, J.; Díaz, M.; Llopis, L.; Rubio, B. Middleware and communication technologies for structural health monitoring of critical infrastructures: A survey. Comput. Stand. Interfaces 2018, 56, 83–100. [Google Scholar] [CrossRef]
- Worden, K.; Farrar, C.R. An introduction to structural health monitoring. Philos. Trans. R. Soc. A Math. Phys. Eng. Sci. 2007, 365. [Google Scholar] [CrossRef]
- Elyamani, A.; Roca, P. A review on the study of historical structures using integrated investigation activities for seismic safety assessment. Part I: Dynamic investigation. Sci. Cult. 2018, 4, 1–27. [Google Scholar] [CrossRef]
- Addabbo, T.; Fort, A.; Mugnaini, M.; Panzardi, E.; Pozzebon, A.; Vignoli, V. A City-Scale IoT Architecture for Monumental Structures Monitoring. Measurement 2018, 131. [Google Scholar] [CrossRef]
- Perera, C.; Zaslavsky, A.; Christen, P.; Georgakopoulos, D. Sensing as a service model for smart cities supported by internet of things. Trans. Emerg. Telecommun. Technol. 2014, 25, 81–93. [Google Scholar] [CrossRef]
- Zanella, A.; Bui, N.; Castellani, A.; Vangelista, L.; Zorzi, M. Internet of things for smart cities. IEEE Internet Things J. 2014, 1, 22–32. [Google Scholar] [CrossRef]
- Hancke, G.; Silva, B. The Role of Advanced Sensing in Smart Cities. Sensors 2012, 13, 393–425. [Google Scholar] [CrossRef]
- Jin, J.; Gubbi, J.; Marusic, S.; Palaniswami, M. An Information Framework for Creating a Smart City Through Internet of Things. IEEE Internet Things J. 2014, 1, 112–121. [Google Scholar] [CrossRef]
- Chen, M.; Mao, S.; Liu, Y. Big data: A survey. Mob. Netw. Appl. 2014, 19. [Google Scholar] [CrossRef]
- Rejeb, A.; Keogh, J.; Treiblmaier, H. Leveraging the Internet of Things and Blockchain Technology in Supply Chain Management. Future Internet 2019, 11, 161. [Google Scholar] [CrossRef]
- Schiele, G.; Soldatos, J.; Mitton, N. Towards Interoperable IoT Deployments in Smart Cities—How project VITAL Enables Smart, Secure and Cost- Effective Cities. ERCIM News, ERCIM 2014. Available online: https://hal.inria.fr/hal-01025819 (accessed on 8 August 2020).
- European Commission. 5.2: FIWARE Go to Market Strategy Y2. Available online: https://ec.europa.eu/research/participants/documents/downloadPublic?documentIds=080166e5c20897fa&appId=PPGMS (accessed on 15 June 2020).
- FIWARE. IoT Stack. Available online: https://www.fiware.org/ (accessed on 15 June 2020).
- FIWARE. Wiki. Available online: https://www.fiware.org/developers/ (accessed on 15 June 2020).
- FIWARE. Map. Available online: https://geographica.com/it/ (accessed on 15 June 2020).
- Krco, S.; Pokric, B.; Carrez, F. Designing IoT architecture(s): A European perspective. In Proceedings of the 2014 IEEE World Forum on Internet of Things (WF-IoT), Seoul, Korea, 6–8 March 2014; pp. 79–84. [Google Scholar] [CrossRef]
- Stravoskoufos, K.; Sotiriadis, S.; Petrakis, E. Iot-a and fiware: Bridging the barriers between the cloud and iot systems design and implementation. In Proceedings of the 6th International Conference on Cloud Computing and Services Science (CLOSER 2016), Rome, Italy, 23–25 April 2016; pp. 23–25. [Google Scholar]
- Difesa Online. Cos’è Il FIWARE? Available online: https://www.difesaonline.it/evidenza/cyber/cos%C3%A8-fiware (accessed on 15 June 2020).
- Smart Cities and Tech Evolution-Xxvi Service Infrastructure-Fiware. Available online: https://www.eitdigital.eu/newsroom/blog/article/smart-cities-and-tech-evolution-xxvi-service-infrastructure-fiware/ (accessed on 30 July 2020).
- Xiao, L.; Wan, X.; Lu, X.; Zhang, Y.; Wu, D. IoT Security Techniques Based on Machine Learning: How Do IoT Devices Use AI to Enhance Security? IEEE Signal Process. Mag. 2018, 35, 41–49. [Google Scholar] [CrossRef]
- Boyes, H.; Hallaq, B.; Cunningham, J.; Watson, T. The industrial internet of things (IIoT): An analysis framework. Comput. Ind. 2018, 101, 1–12. [Google Scholar] [CrossRef]
- Hall, C. Intelligence at the edge of IoT. Cut. Bus. Technol. J. 2018, 31, 28–31. [Google Scholar]
- HPE. Exploring the Four Stages of an Industrial IoT Solution. Available online: https://community.hpe.com/t5/iot-at-the-edge/exploring-the-four-stages-of-an-industrial-iot-solution/ba-p/6917607#.XufC6kUzbIU (accessed on 15 June 2020).
- Robert, J.; Kubler, S.; Kolbe, N.; Cerioni, A.; Gastaud, E.; Främling, K. Open IoT Ecosystem for Enhanced Interoperability in Smart Cities—Example of Métropole De Lyon. Sensors 2017, 17, 2849. [Google Scholar] [CrossRef] [PubMed]
- Mynzhasova, A.; Radojicic, C.; Heinz, C.; Kölsch, J.; Grimm, C.; Rico, J.; Dickerson, K.; García-Castro, R.; Oravec, V. Drivers, standards and platforms for the IoT: Towards a digital VICINITY. In Proceedings of the 2017 Intelligent Systems Conference (IntelliSys), London, UK, 7–8 September 2017; pp. 170–176. [Google Scholar]
- Bröring, A.; Schmid, S.; Schindhelm, C.K.; Khelil, A.; Kabisch, S.; Kramer, D.; Le Phuoc, D.; Mitic, J.; Anicic, D.; Teniente López, E. Enabling IoT ecosystems through platform interoperability. IEEE Softw. 2017, 34, 54–61. [Google Scholar] [CrossRef]
- Bröring, A.; Echterhoff, J.; Jirka, S.; Simonis, I.; Everding, T.; Stasch, C.; Liang, S.; Lemmens, R. New Generation Sensor Web Enablement. Sensors 2011, 11, 2652–2699. [Google Scholar] [CrossRef]
- Chaturvedi, K.; Kolbe, T.H. Towards Establishing Cross-Platform Interoperability for Sensors in Smart Cities. Sensors 2019, 19, 562. [Google Scholar] [CrossRef]
- Swetina, J.; Lu, G.; Jacobs, P.; Ennesser, F.; Song, J. Toward a standardized common M2M service layer platform: Introduction to oneM2M. IEEE Wirel. Commun. 2014, 21, 20–26. [Google Scholar] [CrossRef]
- OneM2M-TR-0065, oneM2M-SensorThings API interworking v2.10.0. April 2020. Available online: https://www.onem2m.org/technical/published-drafts/release-5 (accessed on 15 June 2020).
- OneM2M-TS-0001, oneM2M Functional Architecture Specification v2.10.0. August 2016. Available online: https://www.onem2m.org/images/files/deliverables/TS-0001-oneM2M-Functional-Architecture-V-2014-08.pdf (accessed on 15 June 2020).
- OneM2M-TR-0057 Service Layer. 2020. Available online: https://www.onem2m.org/getting-started (accessed on 15 June 2020).
- Fatiguso, F.; Fino, M.; Cantatore, E.; Caponio, V. Resilience of Historic Built Environments: Inherent Qualities and Potential Strategies. Procedia Eng. 2017, 180, 1024–1033. [Google Scholar] [CrossRef]
- Uva, G.; Sangiorgio, V.; Ruggieri, S.; Fatiguso, F. Structural vulnerability assessment of masonry churches supported by user-reported data and modern Internet of Things (IoT). Measurement 2018, 131. [Google Scholar] [CrossRef]
- Casa Delle Tecnologie Emergenti. Available online: https://www.mise.gov.it/index.php/it/198-notizie-stampa/2040587-al-via-la-casa-delle-tecnologie-emergenti-di-matera (accessed on 30 July 2020).
- D’Errico, L.; Franchi, F.; Graziosi, F.; Marotta, A.; Rinaldi, C.; Boschi, M.; Colarieti, A. Structural Health Monitoring and Earthquake Early Warning on 5G uRLLC Network. In Proceedings of the IEEE 5th World Forum on Internet of Things (WF-IoT), Limerick, Ireland, 15–18 April 2019; pp. 783–786. [Google Scholar] [CrossRef]
- Hadim, S.; Mohamed, N. Middleware: Middleware challenges and approaches for wireless sensor networks. IEEE Distrib. Syst. Online 2006, 7, 1. [Google Scholar] [CrossRef]
- Bhuyan, B.; Sharma, H.K.D.; Sharma, N. A survey on middleware for wireless sensor networks. J. Wirel. Netw. Commun. 2014, 4, 7–17. [Google Scholar]
- Sahni, Y.; Cao, J.; Liu, X. MidSHM: A flexible middleware for WSN-based SHM application using service-oriented architecture. In Proceedings of the IEEE Symposium on Service-Oriented System Engineering (SOSE), Oxford, UK, 29 March–2 April 2016; pp. 126–135. [Google Scholar]
- Arcadius, T.C.; Gao, B.; Tian, G.; Yan, Y. Structural health monitoring framework based on internet of things: A survey. IEEE Internet Things J. 2017, 4, 619–635. [Google Scholar] [CrossRef]
- Lorenzoni, F.; Casarin, F.; Modena, C. Structural health monitoring of the Roman Arena of Verona, Italy. J. Civ. Struct. Health Monit. 2013, 3, 227–246. [Google Scholar] [CrossRef]
- Gattulli, V.; Graziosi, F.; Federici, F.; Potenza, F.; Colarieti, A.; Lepidi, M. Structural Health Monitoring of the Basilica, S. Maria di Collemaggio. In Research and Applications in Structural Engineering, Mechanics and Computation, Proceedings of the Fifth International Conference on Structural Engineering, Mechanics and Computation SEMC 2013, Cape Town, South Africa, 2–4 September 2013; CRC Press: Boca Raton, FL, USA, 2013; pp. 823–824. [Google Scholar]
- SNS Telecom & IT. The 5G Wireless Ecosystem: 2017–2030–Technologies, Applications, Verticals, Strategies & Forecasts. Available online: https://www.snstelecom.com/5g (accessed on 15 June 2020).
- Comes, R.; Neamţu, C.; Buna, Z.; Badiu, I.; Pupeză, P. Methodology to create 3D models for augmented reality applications using scanned point clouds. Mediterr. Archaeol. Archaeom. 2014, 14, 35–44. [Google Scholar]
- Howland, M.D.; Kuester, F.; Levy, T. Photogrammetry in the field: Documenting, recording, and presenting archaeology. Mediterr. Archaeol. Archaeom. 2014, 14, 101–108. [Google Scholar]
- Georgopoulos, A. 3d Virtual Reconstruction of Archaeological Monuments. Mediterr. Archaeol. Archaeom. 2014, 14, 155–164. [Google Scholar]
- UNESCO. World Heritage List. The Sassi and the Park of the Rupestrian Churches of Matera (Factsheet). Available online: https://whc.unesco.org/en/list/670/ (accessed on 11 May 2020).
- Nicoletti, A. Matera Capitale della cultura digitale. In Proceedings of the Milano Smart City Conference, Milano, Italy, 13–15 November 2019; Available online: https://www.smartbuildingitalia.it/wp-content/uploads/2019/11/Antonio-Nicoletti.pdf (accessed on 15 June 2020).
- Spilotro, G.; Fidelibus, M.D.; Pellicani, R.; Qeraxhiu, L.; Argentiero, I.; Pergola, G. IL Patrimonio Architettonico di Matera e i Materiali Naturali da Costruzione: Nel Tufo e col Tufo. Caratterizzazione Tecnica delle Calcareniti e Variazioni per Condizioni Ambientali. GTA Geol. Territ. Ambiente 2016, 25, 10–24. [Google Scholar]
- Nardone, R. Matera: La Prima Smart City Fondata sulla Geologia. GTA Geol. Territ. Ambiente 2016, 25, 7–9. [Google Scholar]
- Berardi, C. Matera: l’Idea di un Modello di Gestione delle Cavità Sotterranee. GTA Geol. Territ. Ambiente 2016, 25, 44–46. [Google Scholar]
- Hester, J.; Prabhu, S.; Atamturktur, S.; Sorber, J. Remote and Wireless Long-term Vibration Monitoring of Historic Monuments. Procedia Eng. 2017, 199, 3302–3307. [Google Scholar] [CrossRef]
- Agbota, H.; Mitchell, J.E.; Odlyha, M.; Strlič, M. Remote Assessment of Cultural Heritage Environments with Wireless Sensor Array Networks. Sensors 2014, 14, 8779–8793. [Google Scholar] [CrossRef]
- Klein, L.J.; Bermudez, S.A.; Schrott, A.G.; Tsukada, M.; Dionisi-Vici, P.; Kargere, L.; Marianno, F.; Hamann, H.F.; López, V.; Leona, M. Wireless Sensor Platform for Cultural Heritage Monitoring and Modeling System. Sensors 2017, 17, 1998. [Google Scholar] [CrossRef] [PubMed]
- Mohammadi, N.; Taylor, J.E. Smart City Digital Twins. In Proceedings of the IEEE Symposium Series on Computational Intelligence (SSCI), Honolulu, HI, USA, 27 November–1 December 2017; pp. 1–5. Available online: https://ieeexplore.ieee.org/abstract/document/8285439 (accessed on 11 May 2020).













| Primary Risk Factors | Secondary Risk Factors |
|---|---|
| Buildings and Development | Housing |
| Commercial development | |
| Industrial areas | |
| Major visitor accommodation and associated infrastructure | |
| Interpretative and visitation facilities | |
| Transportation Infrastructure | Ground transport infrastructure |
| Air transport infrastructure | |
| Marine transport infrastructure | |
| Effects arising from use of transportation infrastructure | |
| Underground transport infrastructure | |
| Utilities or Service Infrastructure | Water infrastructure |
| Renewable energy facilities | |
| Non-renewable energy facilities | |
| Localized utilities | |
| Major linear utilities | |
| Pollution | Pollution of marine waters |
| Ground water pollution | |
| Surface water pollution | |
| Air pollution | |
| Solid waste | |
| Input of excess energy | |
| Biological resource use/modification | Fishing/collecting aquatic resources |
| Aquaculture | |
| Land conversion | |
| Livestock farming/grazing of domesticated animals | |
| Crop production | |
| Commercial wild plant collection | |
| Subsistence wild plant collection | |
| Commercial hunting | |
| Subsistence hunting | |
| Forestry /wood production | |
| Physical resource extraction | Physical resource extraction |
| Mining | |
| Quarrying | |
| Oil and gas | |
| Water extraction | |
| Local conditions affecting physical fabric | Wind |
| Relative humidity | |
| Temperature | |
| Radiation/light | |
| Dust | |
| Water (Rain/Water table) | |
| Pests | |
| Micro-organisms | |
| Social/cultural uses of heritage | Ritual/spiritual/religious and associative uses |
| Society’s valuing of heritage | |
| Indigenous hunting, gathering and collecting | |
| Changes in traditional ways of life and knowledge system | |
| Identity, social cohesion, changes in local population and community | |
| Impacts of tourism/visitor/recreation | |
| Other human activities | Illegal activities |
| Deliberate destruction of heritage | |
| Military training | |
| War | |
| Terrorism | |
| Civil unrest | |
| Climate change and severe weather events | Storms |
| Flooding | |
| Drought | |
| Desertification | |
| Changes to oceanic waters | |
| Temperature change | |
| Other climate change impacts | |
| Sudden ecological or geological events | Volcanic eruption |
| Earthquake | |
| Tsunami/tidal wave | |
| Avalanche / landslide | |
| Erosion and siltation/deposition | |
| Fire (wildfires) | |
| Invasive/alien species or hyper-abundant species | Translocated species |
| Invasive/alien terrestrial species | |
| Invasive / alien freshwater species | |
| Invasive/alien marine species | |
| Hyper-abundant species | |
| Modified genetic material | |
| Management and institutional factors | Management System/Management Plan |
| Legal framework | |
| Low impact research/monitoring activities | |
| Governance | |
| High impact research/monitoring activities | |
| Management activities | |
| Financial resources | |
| Human resources | |
| Other factor(s) |
© 2020 by the authors. Licensee MDPI, Basel, Switzerland. This article is an open access article distributed under the terms and conditions of the Creative Commons Attribution (CC BY) license (http://creativecommons.org/licenses/by/4.0/).
Share and Cite
Lerario, A.; Varasano, A. An IoT Smart Infrastructure for S. Domenico Church in Matera’s “Sassi’’: A Multiscale Perspective to Built Heritage Conservation. Sustainability 2020, 12, 6553. https://doi.org/10.3390/su12166553
Lerario A, Varasano A. An IoT Smart Infrastructure for S. Domenico Church in Matera’s “Sassi’’: A Multiscale Perspective to Built Heritage Conservation. Sustainability. 2020; 12(16):6553. https://doi.org/10.3390/su12166553
Chicago/Turabian StyleLerario, Antonella, and Antonietta Varasano. 2020. "An IoT Smart Infrastructure for S. Domenico Church in Matera’s “Sassi’’: A Multiscale Perspective to Built Heritage Conservation" Sustainability 12, no. 16: 6553. https://doi.org/10.3390/su12166553
APA StyleLerario, A., & Varasano, A. (2020). An IoT Smart Infrastructure for S. Domenico Church in Matera’s “Sassi’’: A Multiscale Perspective to Built Heritage Conservation. Sustainability, 12(16), 6553. https://doi.org/10.3390/su12166553

