Improvement of the Korean Design Criteria on Wall-To-Wall Junctions to Prevent Condensation in Apartment Houses
Abstract
1. Introduction
2. Research Background
2.1. Korean Apartment
2.2. Design Criteria for Preventing Condensation in Korea
- T: Indoor temperature (°C)
- T: Outdoor temperature (°C)
- T: Minimum indoor surface temperature at the measurement point.
- TDR: Temperature difference ratio.
2.3. Design Criteria for Preventing Condensation in the EU
2.4. Design Criteria for Preventing Condensation in the US
2.5. Design Criteria for Preventing Condensation in Japan
2.6. Design Criteria for Preventing Condensation in Australia
2.7. Design Criteria for Preventing Condensation in China
3. Methods
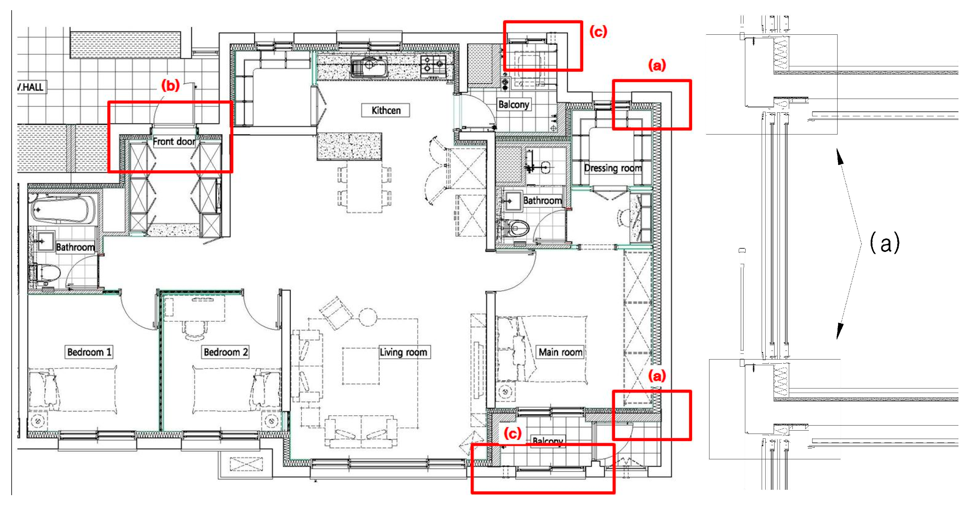
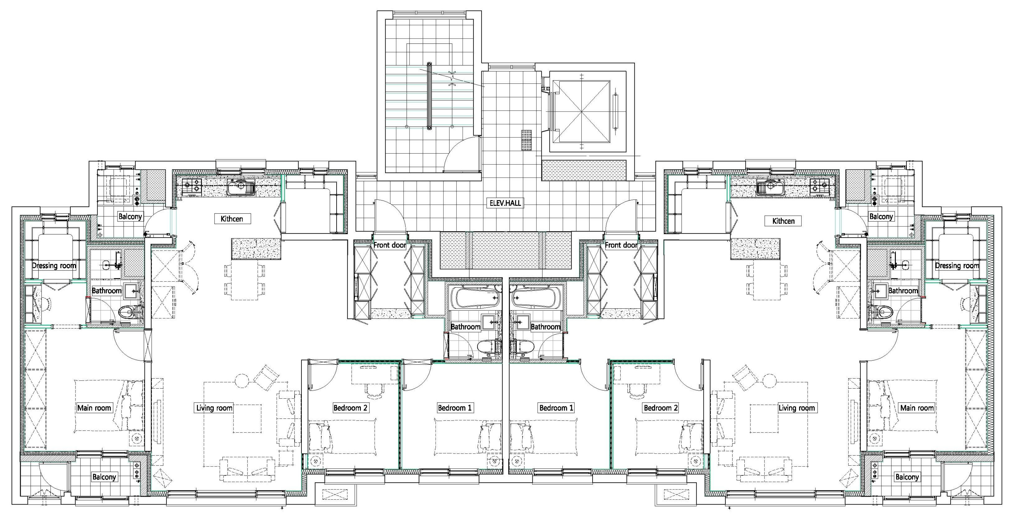
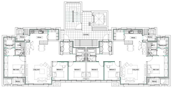
3.1. Experimental Outline
3.2. Instrumentation
3.3. A Summary of the Precedent Study
4. Results
4.1. Outdoor Conditions
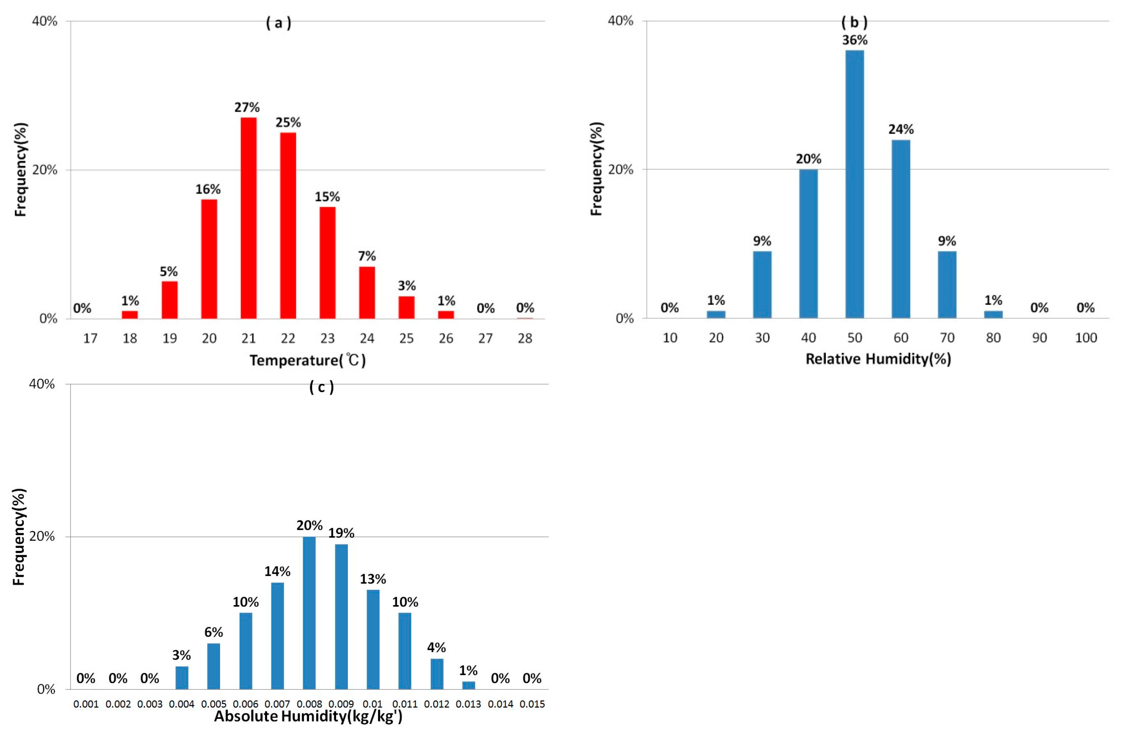
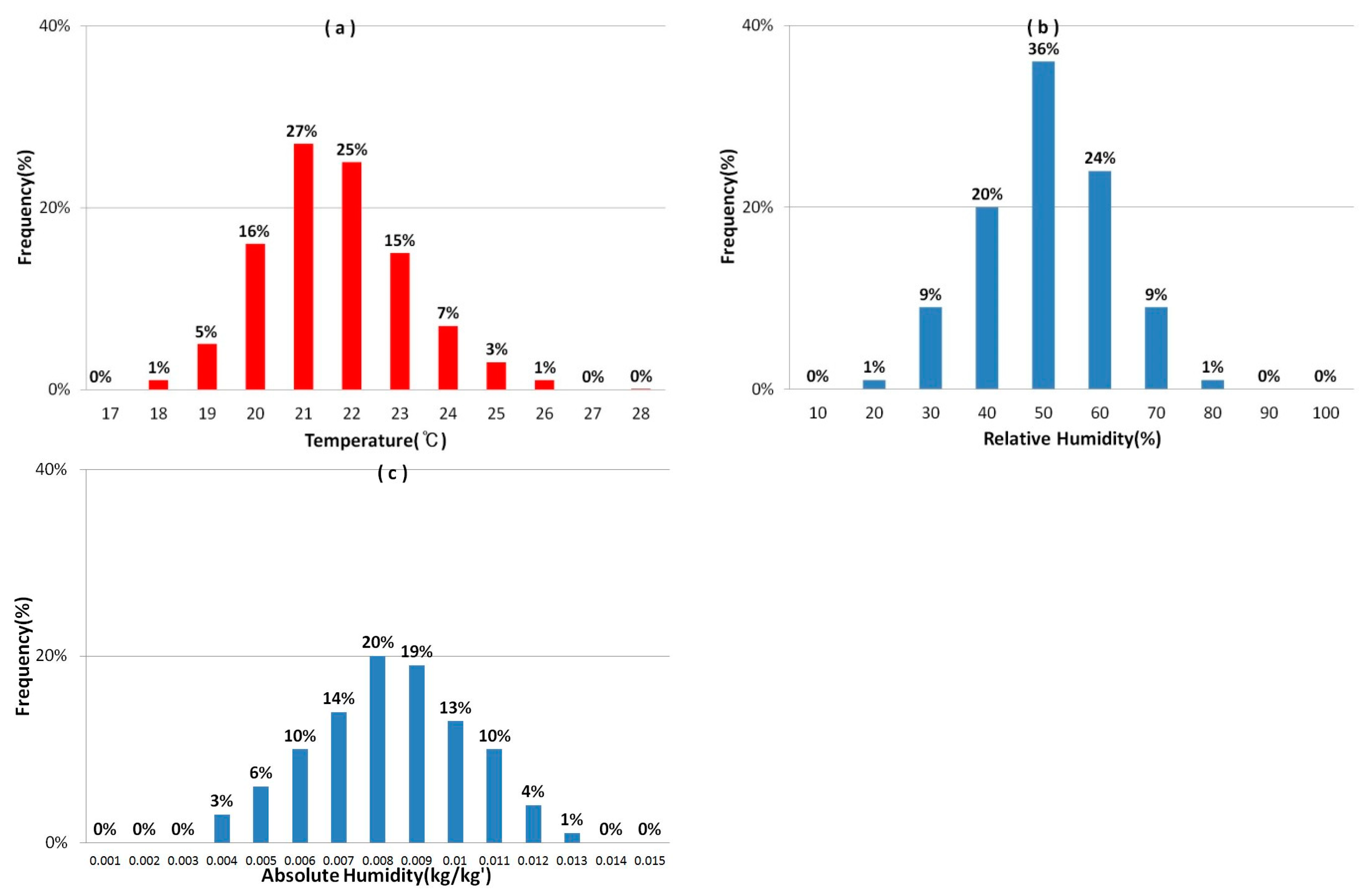
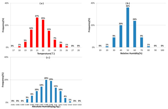
4.2. Distributions of the Indoor Temperature, Relative Humidity, and Absolute Humidity
4.3. Comparison with Earlier Work
4.3.1. Temperature
4.3.2. Humidity and Temperature
4.3.3. Response
4.3.4. Changes in Design Standards for Windows and Doors
4.4. Temperature Difference Ratio
5. Discussion
6. Conclusions
Author Contributions
Funding
Conflicts of Interest
Data Availability
References
- Lee, D.; Lee, K.; Bae, H. Characterization of indoor temperature and humidity in low-income residences over a year in Seoul, Korea. Asian J. Atmos. Environ. 2017, 11, 184–193. [Google Scholar] [CrossRef]
- Hong, S.H.; Lee, J.M.; Moon, J.W.; Lee, K.H. Thermal comfort, energy and cost impacts of PMV control considering individual metabolic rate variations in residential building. Energies 2018, 11, 1767. [Google Scholar] [CrossRef]
- Hyndman, S.J.; Vickers, L.M.; Htut, T.; Maunder, J.W.; Peock, A.; Higenbottam, T.W. A randomized trial of dehumidification in the control of house dust mites. Clin. Exp. Allergy J. Br. Soc. Allergy Clin. Immunol. 2000, 30, 1172–1180. [Google Scholar] [CrossRef]
- Singh, J. Occupational exposure to mould in buildings. Indoor Built. Environ. 2001, 10, 172–178. [Google Scholar] [CrossRef]
- Koskinen, O.M.; Husman, T.M.; Meklin, T.M.; Nevalainen, A.L. The relationship between moisture or mould observations in houses and the state of health of their occupants. Eur. Respir. J. 1999, 14, 1363–1367. [Google Scholar] [CrossRef] [PubMed]
- Engman, L.H.; Bornehag, C.-G.; Sundell, J. ‘How valid are parents’ questionnaire responses regarding building characteristics, mouldy odour, and signs of moisture problems in Swedish homes? Scand. J. Public Health 2007, 35, 125–132. [Google Scholar] [CrossRef] [PubMed]
- Howden-Chapman, P.; Saville-Smith, K.; Crane, J.; Wilson, N. Risk factors for mold in housing: A national survey. Indoor Air. 2005, 15, 469–476. [Google Scholar] [CrossRef]
- Lloyd, C.R.; Callau, M.F.; Bishop, T.; Smith, I.J. The efficacy of an energy efficient upgrade programme in New Zealand. Energy Build. 2008, 40, 1228–1239. [Google Scholar] [CrossRef]
- Mercer, J.B. Cold-an underrated risk factor for health. Environ. Res. 2003, 92, 8–13. [Google Scholar] [CrossRef]
- Ministry of Land, Infrastructure and Transport (MOLIT). Criteria for the Prevent Condensation. Available online: https://bit.ly/2GpdzV1 (accessed on 4 June 2019).
- Park, S.H. A Study on Condensation Resistance Assessment and the Derivation of Economical Window Designs Considering TDR and U-Factor for Apartment Buildings. Ph.D. Thesis, Ewha Univiresity, Seoul, Korea, 2019. [Google Scholar]
- Kim, J.; Kim, T.; Leigh, S. Double window system with ventilation slits to prevent window surface condensation in residential buildings. Energy Build. 2011, 43, 3120–3130. [Google Scholar] [CrossRef]
- Galvin, R. Solving mold and condensation problems: A dehumidifier trial in a suburban house in Britain. Energy Build. 2010, 42, 2118–2123. [Google Scholar] [CrossRef][Green Version]
- Mäkinen, T.M.; Juvonen, R.; Jokelainen, J.; Harju, T.H.; Peitso, A.; Bloigu, A.; Silvennoinen-Kassinen, S.; Leinonen, M.; Hassi, J. Cold temperature and low humidity are associated with increased occurrence of respiratory tract infections. Respir. Med. 2009, 103, 456–462. [Google Scholar] [CrossRef]
- Mourtzoukou, E.G.; Falagas, M.E. Exposure to cold and respiratory tract infections. Int. J. Tuberc. Lung Dis. 2007, 11, 938–943. [Google Scholar] [PubMed]
- Smith, K.M.; Svendsen, S. The effect of a rotary heat exchanger in room-based ventilation on indoor humidity in existing apartments in temperate climates. Energy Build. 2016, 116, 349–361. [Google Scholar] [CrossRef]
- Bornehag, C.G.; Sundell, J.; Bonini, S.; Custovic, A.; Malmberg, P.; Skerfving, S.; Sigsgaard, T.; Verhoeff, A. Dampness in buildings as a risk factor for health effects, EUROEXPO: A multidisciplinary review of the literature (1998–2000) on dampness and mite exposure in buildings and health effects. Indoor Air. 2004, 14, 243–257. [Google Scholar] [CrossRef] [PubMed]
- Lucas, F.; Adelard, L.; Garde, F.; Boyer, H. Study of moisture in buildings for hot humid climates. Energy Build. 2002, 34, 345–355. [Google Scholar] [CrossRef]
- Wang, F.; Yoshida, H.; Kitagawa, H.; Matsumoto, K.; Goto, K. Model-based commissioning for filters in room air-conditioners. Energy Build. 2005, 37, 1225–1233. [Google Scholar] [CrossRef]
- Kim, J.Y.; Hwang, H.J.; Kim, L.H. A Study on the Prevention of Condensation in Household of Apartment Buildings; Housing and Urban Research Institute: Daejeon, Korea, 2003. [Google Scholar]
- Standard Policy and Strategy Committee. BS 5250; 2011 Code of Practice for Control of Condensation in Buildings, BSI. December 2011; SPSC: London, UK, 2011; ISBN 978-0-580-93804-7. [Google Scholar]
- The Building Regulations. Site Preparation and Resistance to Contaminants and Moisture: Approved Document C 1,2.; The Building Regulations: UK, 2010; pp. 12–38. ISBN 978-1-85946-509-7. [Google Scholar]
- BRE IP17/01; Assessing the Effects of Thermal Bridging at Junctions and Around Openings. 2011. Available online: https://www.brebookshop.com/details.jsp?id=190683 (accessed on 7 March 2006).
- Regeling Bouwbesluit: 2012 Are Based on “Factor van de Temperatuur”. Available online: https://bit.ly/2Pgq8pG (accessed on 4 June 2019).
- International Organization for Standardization. NEN 2778; ICS Code 91.120.30; Moisture Control in Buildings; ISO: NEN, The Netherlands, 2015; pp. 10–72. [Google Scholar]
- International Organization for Standardization. NEN 1068; ICS Code 91.120.10; Thermal Insulation of Buildings—Calculation Methods; ISO: NEN, The Netherlands, 2012. [Google Scholar]
- International Organization for Standardization. NEN-EN 12667; ICS Code 91.100.01, 91.120.10. Thermal Performance of Building MATERIALS and Products, Determination of Thermal Resistance by Means of Guarded Hot Plate and Heat Flow Meter Methods, Products of High and Medium Thermal Resistance; ISO: NEN, The Netherlands, 2001. [Google Scholar]
- Melita, T. Energy Savings Ordinance (EnEV) and Renewable Energies Heat Act (EEWärmeG) apply in parallel. Books on Demand 2016, 1, 1–249. [Google Scholar]
- DIN 4108 Beiblatt 2: 2019-06, Thermal Insulation and Energy Economy in Buildings; Supplement 2: Thermal Bridges. 2019. Available online: https://dx.doi.org/10.31030/3054799 (accessed on 13 June 2019).
- ASHRAE. Archives of the American Society of Heating, Refrigerating and Air-Conditioning Engineers; ASHRAE Handbook 2013 Fundamental; ASHRAE: New York, NY, USA, 2013; pp. 257–881. ISBN1 9781628705355. ISBN2 1628705353. [Google Scholar]
- American Architectural Manufacturers Association. AAMA Standard 1503-09: Voluntary Test Method for Thermal Transmittance and Condensation Resistance of Windows, Doors and Glazed Wall Sections. Schaumburg, U.S. Available online: https://aamanet.org/pages/crf-tool (accessed on 4 June 2019).
- Jeoung, C.W.; Kim, H.S.; Jeoung, S.H.; Kim, Y.T.; Song, D.S. Comparison and analysis of domestic and foreign standards for preventing the condensation in multi-residential house. Proc. SAREK Conf. 2013, 6, 514–518. [Google Scholar]
- Evans, M.; Shui, B.; Takaqi, T. Country Report on Building Energy Codes in Japan; Pacific Northwest National Laboratory: Richland, WA, USA, 2009; pp. 5–18. [Google Scholar]
- Australian Building Code Board. Available online: https://www.abcb.gov.au/ (accessed on 4 June 2019).
- The Korea Meteorological Administration. Available online: https://bit.ly/2Gu874t (accessed on 4 June 2019).
- Quinn, A.; Shaman, J. Indoor temperature and humidity in New York City apartments during winter. Sci. Total Environ. 2017, 583, 29–35. [Google Scholar] [CrossRef]
- Zang, H.; Yoshino, H. Analysis of indoor humidity environment in Chinese residential buildings. Build. Environ. 2010, 45, 2132–2140. [Google Scholar] [CrossRef]
- Lee, N.S.; Suh, K.S. Change of lifestyle by changing member of family. Korean Inst. Inter. Des. 2007, 9, 54–58. [Google Scholar]
- Cetina, K.S.; Tabares-Velascob, P.C.; Novoselac, A. Appliance daily energy use in new residential buildings: Use profiles and variation in time-of-use. Energy Build. 2014, 84, 716–726. [Google Scholar] [CrossRef]
- Lim, Y.H. Development of the Water Vapor Control Algorithm for Preventing Condensation Considering the Water Vapor Generation and Diffusion in Multi-Residential House. Master’s Thesis, Sungkyunkwan University, Seoul, Korea, 2016. [Google Scholar]
- Ministry of Land, Infrastructure and Transport (MOLIT). Energy-Saving Design Criteria of Building. Available online: https://bit.ly/2UpcpOd (accessed on 4 June 2019).
- Ministry of Trade, Industry and Energy (MOTIE). Design Standards for High Efficiency Energy Equipment and Appliances. Available online: https://bit.ly/2IMqCmn (accessed on 4 June 2019).
- Lourenço, P.B.; Luso, E.; Almeida, M.G. Defects and moisture problems in buildings from historical city centres: A case study in Portugal. Build. Environ. 2006, 41, 223–234. [Google Scholar] [CrossRef]
- Ji, K.H.; Shin, H.K.; Han, S.W.; Cho, H.; Jo, J.H. Airtightness estimation of apartment units using a multiple regression analysis. J. KIAEBS 2017, 11, 465–475. [Google Scholar]








| TDR | |||||
|---|---|---|---|---|---|
| I [−20°C] * | II [−15°C] * | III [−10°C] * | |||
| Door | Front door Fire door | Door point | 0.30 | 0.33 | 0.38 |
| Frame point | 0.22 | 0.24 | 0.27 | ||
| Wall junction point | 0.25 | 0.26 | 0.28 | ||
| Window | Glass center point | 0.16 (0.16) | 0.18 (0.18) | 0.20 (0.24) | |
| Glass edge point | 0.22 (0.26) | 0.24 (0.29) | 0.27 (0.32) | ||
| Frame point | 0.25 (0.30) | 0.28 (0.33) | 0.32 (0.38) | ||
| Number of Apartments | Study Period | |
|---|---|---|
| 2003 | 189 | 27 January–5 March 2003 |
| 2015 | 120 | 15 January–26 February 2015 |
| Cumulative Level (%) | Temperature (°C) | Relative Humidity (%) | Absolute Humidity (kg/kg’) |
|---|---|---|---|
| 85 | 23.66 | 57.6 | 0.01050 |
| 90 | 24.10 | 58.8 | 0.01096 |
| 95 | 24.78 | 59 | 0.01154 |
| 2001 | 2016 | |
|---|---|---|
| Roof U-value [w/m2 k] | 0.29 | 0.15 |
| External wall U-value [w/m2 k] | 0.47 | 0.21 |
| Floor U-value [w/m2 k] | 0.35 | 0.18 |
| 2003 | 2015 | |||
|---|---|---|---|---|
| Temperature | Humidity | Temperature | Humidity | |
| Average | 22.9 | 41.9 | 22.2 | 50 |
| Criteria | 25 | 50 | 25 | 50 |
| 2003 | 2015 | ||
|---|---|---|---|
| Total Household Members | 5.1 | 2.85 | |
| Clothes-drying locations | Balcony (%) | 1 | 26 |
| Living room (%) | 54 | 58 | |
| Bedroom (%) | 45 | 18 | |
| Electric dryer | Yes (%) | - | 10 |
| No (%) | - | 90 | |
| Humidifier | Yes (%) | 25 | 48 |
| No (%) | 56 | 18 | |
| NA (%) | 19 | 35 | |
| Ventilations per day | Once (%) | 34 | 70 |
| Twice or more (%) | 66 | 30 | |
| Ventilation duration | <10 min (%) | 43 | 53 |
| 10–30 min (%) | 44 | 40 | |
| >30 min (%) | 13 | 7 | |
| 2000 | 2012 | 2015 | ||||
|---|---|---|---|---|---|---|
| U-Value W/(m2∙K) | Air-Permeability (m3/h m2) | U-Value W/(m2∙K) | Air-Permeability (m3/h m2) | U-Value W/(m2∙K) | Air-Permeability (m3/h m2) | |
| Window | 2.632 | 2 | 2.632 | 2 m3/h m2 | - | - |
| Door | - | - | 1.8 | 2 | 1.2 | 1 |
| TDR | |||
|---|---|---|---|
| I (−20°C) * | II (−15°C) * | III (−10°C) * | |
| Criteria of Wall Corners (2003) | 0.25 | 0.26 | 0.28 |
| Criteria of Wall Corners (2015) | 0.20 | 0.23 | 0.26 |
© 2019 by the authors. Licensee MDPI, Basel, Switzerland. This article is an open access article distributed under the terms and conditions of the Creative Commons Attribution (CC BY) license (http://creativecommons.org/licenses/by/4.0/).
Share and Cite
Hwang, I.T.; Kim, G.T.; Yoo, J.H.; Lee, J.S. Improvement of the Korean Design Criteria on Wall-To-Wall Junctions to Prevent Condensation in Apartment Houses. Sustainability 2019, 11, 3272. https://doi.org/10.3390/su11123272
Hwang IT, Kim GT, Yoo JH, Lee JS. Improvement of the Korean Design Criteria on Wall-To-Wall Junctions to Prevent Condensation in Apartment Houses. Sustainability. 2019; 11(12):3272. https://doi.org/10.3390/su11123272
Chicago/Turabian StyleHwang, In Tae, Gil Tae Kim, Jung Hyun Yoo, and Jong Sung Lee. 2019. "Improvement of the Korean Design Criteria on Wall-To-Wall Junctions to Prevent Condensation in Apartment Houses" Sustainability 11, no. 12: 3272. https://doi.org/10.3390/su11123272
APA StyleHwang, I. T., Kim, G. T., Yoo, J. H., & Lee, J. S. (2019). Improvement of the Korean Design Criteria on Wall-To-Wall Junctions to Prevent Condensation in Apartment Houses. Sustainability, 11(12), 3272. https://doi.org/10.3390/su11123272

