The Influence of Insulation Styles on the Building Energy Consumption and Indoor Thermal Comfort of Multi-Family Residences
Abstract
1. Introduction
2. Materials and Methods
2.1. Environmental Simulation Method
- Successive transition methods and a trapezoid hold function can adjust to a time-discrete domain.
- Dimensionless equations calculate convective heat transfer coefficients for every part of the unit under study.
- Longwave and shortwave absorption coefficients are considered to simulate the net absorption of radiant heat and transmitted solar radiation.
- A multilayer window model defines the overall transmittance, absorptance, and reflectance of solar radiation (not including window curtains.)
- A network airflow model calculates ventilation quantities.
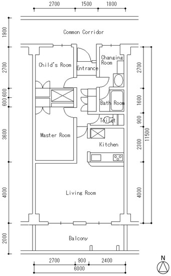
2.2. Investigated Model
2.3. Wall Insulation Styles
3. Heat Loss Evaluation
4. AC Energy Use in Different Climate Zones
4.1. Simulation Conditions
- No one was home during the day, and the AC was not used during sleeping hours (a couple with dual-income, no kids—DINK).
- No one was home during the day, and the AC was not used during sleeping hours (a family consisting of a husband, a full-time housewife, and a primary school child).
- No one was home during the day, and the AC was used during sleeping hours (an elderly couple).
- The AC was used 24 h a day.
4.2. Energy Consumption Variation in Different Climate Zones
4.3. Indoor Thermal Environment and Energy Consumption
4.4. Indoor Air Temperature Distribution in Winter Nights
5. Conclusions
Author Contributions
Funding
Acknowledgments
Conflicts of Interest
References
- The Institute for Building Environment and Energy Conservation (IBEEC). Explanation of the Energy-Saving Standards for Houses; IBEEC: Tokyo, Japan, 2009. [Google Scholar]
- Wang, Y.; Fukuda, H.; Kuma, Y.; Ozaki, A. Study of Air-Conditioning Load: Comparison of Steel and RC Residence Units. J. Asian Archit. Build. Eng. 2010, 9, 571–576. [Google Scholar] [CrossRef]
- Evans, M.; Shui, B.; Takagi, T. Country Report on Building Energy Codes in Japan. Pac. Northwest Natl. Lab. 2009. [Google Scholar]
- Kuma, Y.; Ozaki, A.; Ozasa (Kagawa), H.; Fukuda, H. Influence of Moisture Sorption and Desorption of Walls on Space Conditioning Load. J. Environ. Eng. 2008, 73, 1171–1178. [Google Scholar] [CrossRef]
- Kontoleon, K.J.; Bikas, D.K. The effect of south wall’s outdoor absorption coefficient on time lag, decrement factor and temperature variations. Energy Build. 2007, 39, 1011–1018. [Google Scholar] [CrossRef]
- Bojic, M.; Yik, F.; Wan, K.; Burnett, J. Influence of envelope and partition characteristics on the space cooling of high-rise residential buildings in Hong Kong. Build. Environ. 2002, 37, 347–355. [Google Scholar] [CrossRef]
- Yuan, J. Impact of Insulation Type and Thickness on the Dynamic Thermal Characteristics of an External Wall Structure. Sustainability 2018, 10, 2835. [Google Scholar] [CrossRef]
- Ma, Q.; Fukuda, H.; Kobatake, T.; Lee, M. Study of a Double-Layer Trombe Wall Assisted by a Temperature-Controlled DC Fan for Heating Seasons. Sustainability 2017, 9, 2179. [Google Scholar] [CrossRef]
- Cheung, C.K.; Fuller, R.J.; Luther, M.B. Energy-efficient envelope design for high-rise apartments. Energy Build. 2005, 37, 37–48. [Google Scholar] [CrossRef]
- Asan, H. Investigation of wall’s optimum insulation position from maximum time lag and minimum decrement factor point of view. Energy Build. 2000, 32, 197–203. [Google Scholar] [CrossRef]
- Ozel, M.; Pihtili, K. Optimum location and distribution of insulation layers on building walls with various orientations. Build. Environ. 2007, 42, 3051–3059. [Google Scholar] [CrossRef]
- Bianchi, F.; Pisello, A.L.; Baldinelli, G.; Asdrubali, F. Infrared thermography assessment of thermal bridges in building envelope: Experimental validation in a test room setup. Sustainability 2014, 6, 7107–7120. [Google Scholar] [CrossRef]
- Erhorn, H.; Erhorn-Kluttig, H.; Thomsen, K.E.; Rose, J.; Aggerholm, S. An Effective Handling of Thermal Bridges in the EPBD Context: Final Report of the IEE ASIEPI Work on Thermal Bridges; ASIEPI: Brussel, Belgium, 2010. [Google Scholar]
- Ge, H.; McClung, V.R.; Zhang, S. Impact of balcony thermal bridges on the overall thermal performance of multi-unit residential buildings: A case study. Energy Build. 2013, 60, 163–173. [Google Scholar] [CrossRef]
- Shimoda, Y.; Yamaguchi, Y.; Okamura, T.; Taniguchi, A.; Yamaguchi, Y. Prediction of greenhouse gas reduction potential in Japanese residential sector by residential energy end-use model. Appl. Energy 2010, 87, 1944–1952. [Google Scholar] [CrossRef]
- Wang, Z.; Zhao, J. Optimization of Passive Envelop Energy Efficient Measures for Office Buildings in Different Climate Regions of China Based on Modified Sensitivity Analysis. Sustainability 2018, 10, 907. [Google Scholar] [CrossRef]
- Akihito, O. Simulation software of the hygrothermal environment of buildings based on detailed thermodynamic models, eSim 2004. In Proceedings of the Canadian Conference on Building Energy Simulation, Vancouver, Canada, 9–11 June 2004; pp. 45–54. [Google Scholar]
- Ozaki, A.; Tsujimaru, T. Prediction of hygrothermal environment of buildings based upon combined simulation of heat and moisture transfer and airflow. J. Int. Build. Perform. Simul. Assoc. 2006, 16, 30–37. [Google Scholar]
- Architectural Institute of Japan. Expanded AMeDAS Weather Data (1981–2000); Architectural Institute of Japan: Tokyo, Japan, 2005. [Google Scholar]
- Caplan, L.R.; Neely, S.; Phillip, G. Cold-related intracerebral hemorrhage. Arch. Neurol. 1984, 41, 227. [Google Scholar] [CrossRef] [PubMed]
- Woodhouse, P.R.; Khaw, K.T.; Plummer, M. Seasonal variation of blood pressure and its relationship to ambient temperature in an elderly population. J. Hypertens. 1993, 11, 1267–1274. [Google Scholar] [CrossRef] [PubMed]








| - | Outside Insulation | Inside Insulation | Interior Insulation | ||||||
|---|---|---|---|---|---|---|---|---|---|
| Area | Thermal Transmittance | Heat Loss | Area | Thermal Transmittance | Heat Loss | Area | Thermal Transmittance | Heat Loss | |
| (m2) | (W/m2·K) | (W/K) | (m2) | (W/m2·K) | (W/K) | (m2) | (W/m2·K) | (W/K) | |
| Exterior Wall | 9.29 | 0.81 | 7.52 | 9.29 | 0.70 | 6.50 | 9.29 | 0.70 | 6.50 |
| Pillar | 6.20 | 0.57 | 3.53 | 5.00 | 0.52 | 2.60 | 5.00 | 0.52 | 2.60 |
| Beam | 7.65 | 0.67 | 5.13 | 7.65 | 0.60 | 4.59 | 7.65 | 0.60 | 4.59 |
| Window | 7.46 | 1.90 | 14.17 | 7.46 | 1.90 | 14.17 | 7.46 | 1.90 | 14.17 |
| Door | 2.00 | 1.50 | 3.00 | 2.00 | 1.50 | 3.00 | 2.00 | 1.50 | 3.00 |
| Thermal Bridge | 3.10 | 5.87 | 18.19 | 3.70 | 5.87 | 21.71 | 0.00 | - | 0.00 |
| Total | - | - | 51.54 | - | - | 52.57 | - | - | 30.86 |
| - | Outside Insulation | Inside Insulation | Interior Insulation | |||||||
|---|---|---|---|---|---|---|---|---|---|---|
| Thickness | Thermal Conductivity | Thermal Resistance | Thickness | Thermal Conductivity | Thermal Resistance | Thickness | Thermal Conductivity | Thermal Resistance | ||
| (m) | (W/m·K) | (m2·K/W) | (m) | (W/m·K) | (m2·K/W) | (m) | (W/m·K) | (m2·K/W) | ||
| Exterior Wall | Extruded poly styrene foam blocks A-3 | 0.030 | 0.028 | 1.070 | 0.035 | 0.028 | 1.250 | 0.035 | 0.028 | 1.250 |
| Concrete | 0.200 | 1.600 | 0.130 | 0.200 | 1.600 | 0.130 | 0.200 | 1.600 | 0.130 | |
| Plaster board | 0.010 | 0.220 | 0.050 | 0.010 | 0.220 | 0.050 | 0.010 | 0.220 | 0.050 | |
| Total | - | 1.240 | - | 1.420 | - | 1.420 | ||||
| - | Thermal Transmittance (W/m2·K) | 0.810 | Thermal Transmittance (W/m2·K) | 0.700 | Thermal Transmittance (W/m2·K) | 0.700 | ||||
| Pillar | Extruded poly styrene foam blocks A-3 | 0.030 | 0.028 | 1.070 | 0.035 | 0.028 | 1.250 | 0.035 | 0.028 | 1.250 |
| Concrete | 1.000 | 1.600 | 0.630 | 1.000 | 1.600 | 0.630 | 1.000 | 1.600 | 0.630 | |
| Plaster board | 0.010 | 0.220 | 0.050 | 0.010 | 0.220 | 0.050 | 0.010 | 0.220 | 0.050 | |
| Total | - | 1.740 | - | 1.920 | - | 1.920 | ||||
| - | Thermal Transmittance (W/m2·K) | 0.570 | Thermal Transmittance (W/m2·K) | 0.520 | Thermal Transmittance (W/m2·K) | 0.520 | ||||
| Beam | Extruded poly styrene foam blocks A-3 | 0.030 | 0.028 | 1.070 | 0.035 | 0.028 | 1.250 | 0.035 | 0.028 | 1.250 |
| Concrete | 0.600 | 1.600 | 0.380 | 0.600 | 1.600 | 0.380 | 0.600 | 1.600 | 0.380 | |
| Plaster board | 0.010 | 0.220 | 0.050 | 0.010 | 0.220 | 0.050 | 0.010 | 0.220 | 0.050 | |
| Total | - | 1.490 | - | 1.670 | - | 1.670 | ||||
| - | Thermal Transmittance (W/m2·K) | 0.670 | Thermal Transmittance (W/m2·K) | 0.600 | Thermal Transmittance (W/m2·K) | 0.600 | ||||
| Thermal Bridge | Concrete | 0.200 | 1.600 | 0.130 | 0.200 | 1.600 | 0.130 | - | ||
| Plaster board | 0.010 | 0.220 | 0.050 | 0.010 | 0.220 | 0.050 | ||||
| Total | - | 0.170 | - | 0.170 | ||||||
| - | Thermal Transmittance (W/m2·K) | 5.870 | Thermal Transmittance (W/m2·K) | 5.870 | ||||||
| Zone | Placement | Thickness (mm) | ||
|---|---|---|---|---|
| Outside | Inside | Interior | ||
| 1 | Ceiling | 85 | 105 | 105 |
| Exterior Wall | 55 | 65 | 65 | |
| 2 | Ceiling | 65 | 80 | 80 |
| Exterior Wall | 45 | 55 | 55 | |
| 3, 4, 5 | Ceiling | 60 | 70 | 70 |
| Exterior Wall | 30 | 35 | 35 | |
| 6 | Ceiling | 60 | 70 | 70 |
| Exterior Wall | 10 | 10 | 10 | |
| - | 1. Sapporo 2. Hachinohe | 3. Sendai 4. Toyama | 5. Tokyo | 6. Miyazaki | 7. Naha |
|---|---|---|---|---|---|
| Heating Period | January–May | January–April | January–March | January–March | - |
| October–December | November–December | November–December | December | ||
| Cooling Period | June–September | May–October | April–October | April–November | January–December |
| AC①: Two-career | −5 | 6 | 7 | 8 | 9 | 10 | 11 | 12 | 13 | 14 | 15 | 16 | 17 | 18 | 19 | 20 | 21 | 22 | 23− |
| LD | 16 | 354 | 119 | 16 | 209 | 240 | 387 | 593 | 270 | 16 | |||||||||
| K | 60 | 711 | 353 | 126 | 951 | 353 | 126 | 60 | |||||||||||
| Child’s Room | 0 | ||||||||||||||||||
| Master Room | 106 | 64 | 0 | 132 | 106 | ||||||||||||||
| Bathroom | 0 | 137 | 133 | 0 | |||||||||||||||
| Changing Room | 0 | 346 | 47 | 0 | 153 | 0 | |||||||||||||
| AC②: Family | −5 | 6 | 7 | 8 | 9 | 10 | 11 | 12 | 13 | 14 | 15 | 16 | 17 | 18 | 19 | 20 | 21 | 22 | 23− |
| LD | 16 | 375 | 213 | 269 | 69 | 158 | 128 | 69 | 77 | 239 | 411 | 676 | 334 | 256 | 16 | ||||
| K | 60 | 637 | 384 | 126 | 384 | 126 | 1101 | 412 | 126 | 60 | |||||||||
| Child’s Room | 44 | 33 | 51 | 0 | 40 | 117 | 0 | 11 | 44 | ||||||||||
| Master Room | 106 | 135 | 0 | 28 | 0 | 57 | 0 | 132 | 106 | ||||||||||
| Bathroom | 0 | 72 | 271 | 0 | |||||||||||||||
| Changing Room | 0 | 297 | 126 | 0 | |||||||||||||||
| AC③: Aging Family | −5 | 6 | 7 | 8 | 9 | 10 | 11 | 12 | 13 | 14 | 15 | 16 | 17 | 18 | 19 | 20 | 21 | 22 | 23− |
| AC④: Continuous | |||||||||||||||||||
| LD | 16 | 283 | 391 | 150 | 74 | 98 | 223 | 146 | 86 | 109 | 239 | 108 | 356 | 316 | 353 | 220 | 16 | ||
| K | 60 | 510 | 351 | 126 | 323 | 126 | 720 | 126 | 351 | 126 | 60 | ||||||||
| Child’s Room | 0 | ||||||||||||||||||
| Master Room | 88 | 109 | 0 | 12 | 37 | 0 | 25 | 0 | 44 | 88 | |||||||||
| Bathroom | 0 | 129 | 0 | 129 | 0 | ||||||||||||||
| Changing Room | 0 | 278 | 45 | 77 | 0 | ||||||||||||||
| AC①: Two-career | 1 | 2 | 3 | 4 | 5 | 6 | 7 | 8 | 9 | 10 | 11 | 12 | 13 | 14 | 15 | 16 | 17 | 18 | 19 | 20 | 21 | 22 | 23 | 24 | □ |
| Living Room | □ | □ | □ | □ | □ | □ | □ | □ | □ | □ | □ | □ | □ | □ | □ | □ | □ | □ | □ | □ | □ | □ | □ | □ | 6 h |
| Master Room | □ | □ | □ | □ | □ | □ | □ | □ | □ | □ | □ | □ | □ | □ | □ | □ | □ | □ | □ | □ | □ | □ | □ | □ | 2 h |
| Child’s Room | □ | □ | □ | □ | □ | □ | □ | □ | □ | □ | □ | □ | □ | □ | □ | □ | □ | □ | □ | □ | □ | □ | □ | □ | 0 h |
| The Others | □ | □ | □ | □ | □ | □ | □ | □ | □ | □ | □ | □ | □ | □ | □ | □ | □ | □ | □ | □ | □ | □ | □ | □ | 0 h |
| AC②: Family | 1 | 2 | 3 | 4 | 5 | 6 | 7 | 8 | 9 | 10 | 11 | 12 | 13 | 14 | 15 | 16 | 17 | 18 | 19 | 20 | 21 | 22 | 23 | 24 | □ |
| Living Room | □ | □ | □ | □ | □ | □ | □ | □ | □ | □ | □ | □ | □ | □ | □ | □ | □ | □ | □ | □ | □ | □ | □ | □ | 11 h |
| Master Room | □ | □ | □ | □ | □ | □ | □ | □ | □ | □ | □ | □ | □ | □ | □ | □ | □ | □ | □ | □ | □ | □ | □ | □ | 2 h |
| Child’s Room | □ | □ | □ | □ | □ | □ | □ | □ | □ | □ | □ | □ | □ | □ | □ | □ | □ | □ | □ | □ | □ | □ | □ | □ | 3 h |
| The Others | □ | □ | □ | □ | □ | □ | □ | □ | □ | □ | □ | □ | □ | □ | □ | □ | □ | □ | □ | □ | □ | □ | □ | □ | 0 h |
| AC③: Aging Family | 1 | 2 | 3 | 4 | 5 | 6 | 7 | 8 | 9 | 10 | 11 | 12 | 13 | 14 | 15 | 16 | 17 | 18 | 19 | 20 | 21 | 22 | 23 | 24 | □ |
| Living Room | □ | □ | □ | □ | □ | □ | □ | □ | □ | □ | □ | □ | □ | □ | □ | □ | □ | □ | □ | □ | □ | □ | □ | □ | 15 h |
| Master Room | □ | □ | □ | □ | □ | □ | □ | □ | □ | □ | □ | □ | □ | □ | □ | □ | □ | □ | □ | □ | □ | □ | □ | □ | 11 h |
| Child’s Room | □ | □ | □ | □ | □ | □ | □ | □ | □ | □ | □ | □ | □ | □ | □ | □ | □ | □ | □ | □ | □ | □ | □ | □ | 0 h |
| The Others | □ | □ | □ | □ | □ | □ | □ | □ | □ | □ | □ | □ | □ | □ | □ | □ | □ | □ | □ | □ | □ | □ | □ | □ | 0 h |
| AC④: Continuous | 1 | 2 | 3 | 4 | 5 | 6 | 7 | 8 | 9 | 10 | 11 | 12 | 13 | 14 | 15 | 16 | 17 | 18 | 19 | 20 | 21 | 22 | 23 | 24 | □ |
| Living Room | □ | □ | □ | □ | □ | □ | □ | □ | □ | □ | □ | □ | □ | □ | □ | □ | □ | □ | □ | □ | □ | □ | □ | □ | 24 h |
| Master Room | □ | □ | □ | □ | □ | □ | □ | □ | □ | □ | □ | □ | □ | □ | □ | □ | □ | □ | □ | □ | □ | □ | □ | □ | 24 h |
| Child’s Room | □ | □ | □ | □ | □ | □ | □ | □ | □ | □ | □ | □ | □ | □ | □ | □ | □ | □ | □ | □ | □ | □ | □ | □ | 24 h |
| The Others | □ | □ | □ | □ | □ | □ | □ | □ | □ | □ | □ | □ | □ | □ | □ | □ | □ | □ | □ | □ | □ | □ | □ | □ | 24 h |
| ※□Heating: 20 °C (Nov. to Mar.) □□Cooling: 26 °C (Jun. to Sep.) | □ | AC on | □ | AC off | |||||||||||||||||||||
© 2019 by the authors. Licensee MDPI, Basel, Switzerland. This article is an open access article distributed under the terms and conditions of the Creative Commons Attribution (CC BY) license (http://creativecommons.org/licenses/by/4.0/).
Share and Cite
Wang, Y.; Fukuda, H. The Influence of Insulation Styles on the Building Energy Consumption and Indoor Thermal Comfort of Multi-Family Residences. Sustainability 2019, 11, 266. https://doi.org/10.3390/su11010266
Wang Y, Fukuda H. The Influence of Insulation Styles on the Building Energy Consumption and Indoor Thermal Comfort of Multi-Family Residences. Sustainability. 2019; 11(1):266. https://doi.org/10.3390/su11010266
Chicago/Turabian StyleWang, Yupeng, and Hiroatsu Fukuda. 2019. "The Influence of Insulation Styles on the Building Energy Consumption and Indoor Thermal Comfort of Multi-Family Residences" Sustainability 11, no. 1: 266. https://doi.org/10.3390/su11010266
APA StyleWang, Y., & Fukuda, H. (2019). The Influence of Insulation Styles on the Building Energy Consumption and Indoor Thermal Comfort of Multi-Family Residences. Sustainability, 11(1), 266. https://doi.org/10.3390/su11010266
