Sustainability and Variability of Korean Wooden Architectural Heritage: The Relocation and Alteration
Abstract
:1. Introduction
1.1. Background and Purpose of the Study
1.2. Subjects and Method of the Study
2. History of Mangseollu and the Recognition of Architecture
3. The Original Mangseollu
4. The Year 1923: The First Relocation of Mangseollu
4.1. Changes from 1923 to 1999
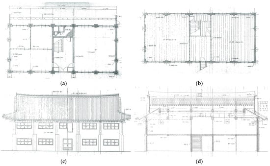
4.2. Analysis of the 1989 Renovation Drawings
5. The Year 1999: The Second Relocation of Mangseollu
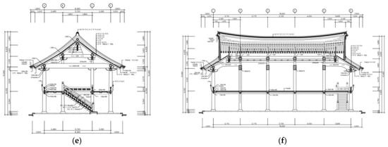
5.1. Analysis of the Floor Plan of the Present Mangseollu
5.2. Traces of Renovasion and Replacement
5.2.1. Traces of Renovation of Exterior Columns
5.2.2. Traces of Other Repaired and Replaced Members
6. Conclusions: The Meaning of Sustainability and Variability Observed through the Relocation of Mangseollu
6.1. Meaning of Sustainability
6.2. Meaning of Variability
Acknowledgments
Conflicts of Interest
References and Notes
- Kim, D.-H. Method of Korean Wooden Architecture; Balun: Seoul, Korea, 1995; ISBN 9788977635173. [Google Scholar]
- An, D.W. Characteristics and Utility of 3D Scandata for the Development of Survey Drawings in Wooden Architectural Heritage: A Comparison of the Raw Survey Data Used in Survey Drawings. J. Asian Archit. Build. Eng. 2016, 15, 161–167. [Google Scholar] [CrossRef]
- Sung-Jin, P.; Don-Son, W. The Disposal and Removal of the Gyeongbokgung Palace’s Buildings during the Japanese Ruling Era. J. Archit. Inst. of Korea 2007, 23. Available online: http://www.auric.or.kr/user/search/site/aik2017/doc_rdoc.asp?usernum=11333&seid=6PYNdTfGrJazwzVz439398956&QU=&PrimaryKey=206997&BrsDataBaseName=RDOC&DBNM=RD_R (accessed on 23 May 2018).
- Choi, J.-D. The palace, the city and the past: Controversies surrounding the rebuilding of the Gyeongbok Palace in Seoul, 1990–2010. Plan. Perspect. 2010, 25, 193–213. [Google Scholar] [CrossRef]
- Young-Hwan, K.; Youn-Kyung, K. A Study on The Removal and The Restoration of Ulsan Gaeksa. J. Archit. Inst. Korea 2005, 21, 153–160. [Google Scholar]
- Riegl, A. Moderne Denkmalkultus: Sein Wesen Und Seine Entstehung; Braumüller, W., Ed.; BiblioBazaar: Charleston, SC, USA, 1903; ISBN 9781359865304. [Google Scholar]
- Principles for the Preservation of Historic Timber Structures. Adopted by ICOMOS at the 12th General Assembly in Mexico, October 1999; Mexico. Available online: https://www.icomos.org/en/resources/charters-and-texts (accessed on 23 May 2018).
- Charter on the Built Vernacular Heritage. Ratified by the ICOMOS 12th General Assembly in Mexico, October 1999.
- The Nara Document on Authenticity; UNESCO: Nara, Japan, 1994.
- Principles for the Analysis, Conservation and Structural Restoration of Architectural Heritage (2003). Ratified by ICOMOS 14th General Assembly, in Victoria Falls, Zimbabwe, in 2003.
- International Charter for the Conservation and Restoration of Monuments and Sites (The Venice Charter). Adopted by ICOMOS in 1965.
- Principles for the Conservation of Wooden Built Heritage; ICOMOS: Delhi, India, 2017. Available online: https://www.icomos.org/en/resources/charters-and-texts (accessed on 23 May 2018).
- Gregory, J. Reconsider Relocated Building: ICOMOS, Authenticity and Mass Relocation. Int. J. Heritage Stud. 2008, 14, 112–130. [Google Scholar] [CrossRef]
- Kim, D.-W. History of Korean Architecture; Kyungki University: Suwon, Korea, 2013; ISBN 9788986922684. [Google Scholar]
- Kim, J.; Jeon, B.H. Design integrated parametric modeling methodology for Han-ok. J. Asian Archit. Build. Eng. 2012, 11, 239–243. [Google Scholar] [CrossRef]
- Jeon, S.-D. A study on the record on the beam of Mangseollu. J. Jungwon Munwha 2000, 4, 145–175. [Google Scholar]
- Jeon, S.-D. The modern heritage and culture of the person of Chungbuk Province in Japanese colonial era. Stud. Chungbuk 2005, 7, 7–32. [Google Scholar]
- Dho, S.B. A Study on the Formation and character of Cheongju Jeil Church Architecture. Conf. Archit. Inst. Korea 2001, 21, 309–312. [Google Scholar]
- Jang, S.S. Peasant movements in Chungbuk province in the Japanese Colonial Era. Hist. Discourse 2013, 68, 101–148. [Google Scholar]
- Website of Cultural Heritage Administration of Korea. Available online: http://www.heritage.go.kr/heri/cul/culSelectDetail.do?region=1&searchCondition=%EB%A7%9D%EC%84%A0%EB%A3%A8&searchCondition2=&s_kdcd=00&s_ctcd=&ccbaKdcd=21&ccbaAsno=01100000&ccbaCtcd=33&ccbaCpno=2113301100000&ccbaCndt=&stCcbaAsno=&endCcbaAsno=&stCcbaAsdt=&endCcbaAsdt=&ccbaPcd1=&culPageNo=1&chGubun=&header=view&returnUrl=%2Fheri%2Fcul%2FculSelectViewList.do&gbn=3&sCond=%EB%A7%9D%EC%84%A0%EB%A3%A8 (accessed on 23 May 2018).
- Jeonnam Unjoru, Cheongju Eupseong-do. Available online: http://unjoru.com/bbs/board.php?board=homemenu2&command=body&no=138&search=%C3%BB%C1%D6&shwhere=subject (accessed on 23 May 2018).
- Yang, H.W.; An, D.W. Column-leaning Displacement of Korean Traditional Wooden Architecture: 3D Scanning Data of Columns of Sungryeoljeon in Namhansanseong. J. Asian Archit. Build. Eng. 2017, 16, 279–286. [Google Scholar] [CrossRef]
- Silva, K.D. Resettlement housing design: Moving beyond the vernacular imagery. South Asia J. Cult. 2011, 5&6, 117–135. Available online: https://kuscholarworks.ku.edu/handle/1808/15270 (accessed on 23 May 2018).
















© 2018 by the author. Licensee MDPI, Basel, Switzerland. This article is an open access article distributed under the terms and conditions of the Creative Commons Attribution (CC BY) license (http://creativecommons.org/licenses/by/4.0/).
Share and Cite
An, D.W. Sustainability and Variability of Korean Wooden Architectural Heritage: The Relocation and Alteration. Sustainability 2018, 10, 1742. https://doi.org/10.3390/su10061742
An DW. Sustainability and Variability of Korean Wooden Architectural Heritage: The Relocation and Alteration. Sustainability. 2018; 10(6):1742. https://doi.org/10.3390/su10061742
Chicago/Turabian StyleAn, Dai Whan. 2018. "Sustainability and Variability of Korean Wooden Architectural Heritage: The Relocation and Alteration" Sustainability 10, no. 6: 1742. https://doi.org/10.3390/su10061742
APA StyleAn, D. W. (2018). Sustainability and Variability of Korean Wooden Architectural Heritage: The Relocation and Alteration. Sustainability, 10(6), 1742. https://doi.org/10.3390/su10061742

