Flexural Performance Analysis of Composite Beam with Reinforced HPFRCC Precast Shell
Highlights
- A HPFRCC prefabricated composite beam showed good flexural bearing performance
- Using the HPFRCC prefabricated shell increased the yield and peak loads of the composite beams.
- Using the HPFRCC prefabricated shell delayed the yielding point of the composite beams.
- A flexural bearing capacity calculation model of the composite beam was established.
Abstract
1. Introduction
2. Overview of the Experiment
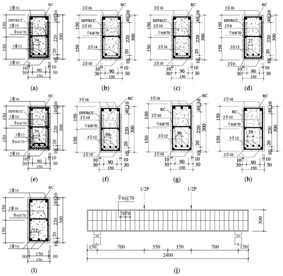
2.1. Specimen Design
2.2. Material Properties
2.3. Test Setup and Measurement Content
3. Results and Analysis
3.1. Damage State and Crack Analysis
3.2. Load-Mid-Span Deflection Curve
3.3. Moment Curvature Curve Analysis
3.4. Plane Section Assumption
4. Load-Bearing Capacity Calculation Model
4.1. Assumption
4.2. Material Constitutive Relationship
4.2.1. Tensile-Compressive Principal Modeling of HPFRCC
4.2.2. Tensile-Compressive Principal Modeling of Concrete
4.2.3. Tension-Compression Intrinsic Modeling of Reinforcing Bars
4.3. Calculation of Ultimate Bearing Capacity
- Neutralization shaft in R/HPFRCC precast shell (height of pressurized zone xc ≥ 50 mm)
- Neutralization did not shift in R/HPFRCC precast shell (height of pressure zone xc ≤ 50 mm)
5. Comparison of Theoretical Calculations and Test Results
6. Conclusions
- Compared with the RC precast shell composite beam, the R/HPFRCC prefabricated shell monolithic composite beams presented good bending performance with microcracks and enhanced deformability. The R/HPFRCC composite beams presented excellent crack-developed control ability. The integrity, deformability, and damage resistance of the prefabricated monolithic composite beams could be increased by using HPFRCC material in the prefabricated shells.
- Compared to beam ZSTD1.11R, the peak and yield loads of R/HPFRCC composite beams were 17.2% and 24.6% higher. The bearing capacity of R/HPFRCC beam HPSTD1.21R was 10.3% higher than that of specimen RCSTD1.21R. With an increase of the factor ρl, R/HPFRCC composite beam yield and peak loads increased; yield and peak loads increased by 25.6% and 13.5%, respectively, when the longitudinal reinforcement ratio increased by 0.08%.
- Taking the strain-hardening properties of the HPFRCC material into account, the theoretical mechanical study of the bending load capacity of R/HPFRCC prefabricated monolithic composite beams was conducted. A calculating model of the bending capacity of R/HPFRCC composite beams was established. The calculated values of the model and the test values agreed well, with about 3.34% average error.
Author Contributions
Funding
Institutional Review Board Statement
Informed Consent Statement
Data Availability Statement
Acknowledgments
Conflicts of Interest
References
- Ge, W.J.; Liu, C.; Zhang, Z.; Guan, Z.; Ashour, A.; Song, S.; Jiang, H.; Sun, C.; Qiu, L.; Yao, S.; et al. Numerical and theoretical research on flexural behavior of steel-precast UHPC composite beams. J. Case Stud. Constr. Mater. 2023, 18, e01789. [Google Scholar] [CrossRef]
- Zhang, X.; Liu, G.H.; Shen, Z.T.; Gao, Y.Q.; Zhou, H.K.; Wang, Z.Y. A comprehensive study on the effect of reinforcing methods on the flexural behavior of Concrete-RUHTCC composite beams. J. Eng. Struct. 2023, 292, 116524. [Google Scholar] [CrossRef]
- Li, V.C.; Stang, H.; Krenchel, H. Micromechanics of crack bridging in fiber-reinforced concrete. J. Mater. Struct. 1993, 26, 486–494. [Google Scholar] [CrossRef]
- Zhang, J.; Leung, C.K.Y.; Cheung, Y.N. Flexural performance of layered ECC-concrete composite beam. J. Compos. Sci. Technol. 2006, 66, 1501–1512. [Google Scholar] [CrossRef]
- Hu, Z.H.; Zhou, Y.W.; Hu, B.; Huang, X.X.; Guo, M.H. Local use of ECC to simultaneously enhance the shear strength and deformability of RC beams. J. Constr. Build. Mater. 2022, 353, 129085. [Google Scholar] [CrossRef]
- Mohammad, R.; Asadollah, R.K.; Masoud, Z.S. Experimental Investigation of Deep Beams Containing High-Performance Fiber-Reinforced Cementitious Composite. J. Iran. J. Sci. Technol. Trans. Civ. Eng. 2022, 46, 55–65. [Google Scholar]
- Tian, J.; Wu, X.W.; Tan, X.; Wang, W.W.; Hu, S.W.; Du, Y.F.; Yuan, J.Y.; Huang, W.T.; Huang, X. Experimental study and analysis model of flexural synergistic effect of reinforced concrete beams strengthened with ECC. J. Constr. Build. Mater. 2022, 352, 128987. [Google Scholar] [CrossRef]
- Liang, X.W.; Wang, P.; Xu, M.X.; Yu, J.; Li, L. Flexural behavior and capacity analysis of RC beams with permanent UHPC formwork. J. Eng. Mech. 2019, 36, 95–107. [Google Scholar] [CrossRef]
- Zhang, P.; Xu, F.; Liu, Y.; Shamim, A.S. Shear behaviour of composite beams with permanent UHPC formwork and high-strength steel rebar. J. Constr. Build. Mater. 2022, 352, 128951. [Google Scholar] [CrossRef]
- Zhang, R.; Hu, P.; Zheng, X.H.; Cai, L.H.; Guo, R.; Wei, D.B. Shear behavior of RC slender beams without stirrups by using precast U-shaped ECC permanent formwork. J. Constr. Build. Mater. 2020, 260, 120430. [Google Scholar] [CrossRef]
- Qin, F.J.; Wei, X.Y.; Lu, Y.F.; Zhang, Z.G.; Di, J.; Yin, Z.W. Flexural behaviour of high strength engineered cementitious composites (ECC)-reinforced concrete composite beams. J. Case Stud. Constr. Mater. 2023, 18, e02002. [Google Scholar] [CrossRef]
- Ma, R.; Guo, L.P.; Chen, Z.K.; Li, T.Y.; Sun, W. Preparation and bending properties of coupled beam made by UHPFRCC and high ductility cementitious composites. J. Southeast Univ. (Nat. Sci. Ed.) 2017, 47, 377–383. [Google Scholar] [CrossRef]
- Tosun, K.; Felekoğlu, B.; Baradan, B. Multiple cracking response of plasma treated polyethylene fiber reinforced cementitious composites under flexural loading. J. Cem. Concr. Compos. 2012, 34, 508–520. [Google Scholar] [CrossRef]
- Tosun-Felekoglu, K.; Felekoglu, B. Effects of fiber–matrix interaction on multiple cracking performance of polymeric fiber reinforced cementitious composites. J. Compos. Part B Eng. 2013, 52, 62–71. [Google Scholar] [CrossRef]
- John, K.S.; Cascardi, A.; Verre, S.; Nadir, Y. RC-columns subjected to lateral cyclic force with different FRCM-strengthening schemes: Experimental and numerical investigation. J. Bull. Earthq. Eng. 2025. [Google Scholar] [CrossRef]
- Shiotani, T.; Ogura, N.; Okude, N.; Watabe, K.; Steen, C.V.; Tsangouri, E.; Lacidogna, G.; Czarnecki, S.; Chai, H.K.; Yang, Y.; et al. Non-destructive inspection technologies for repair assessment in materials and structures. J. Dev. Built Environ. 2024, 18, 100443. [Google Scholar] [CrossRef]
- Mpalaskas, C.A.; Kytinou, K.V.; Zapris, G.A.; Matikas, T.E. Optimizing Building Rehabilitation through Non-destructive Evaluation of Fire-Damaged Steel-Fiber-Reinforced Concrete. J. Sens. 2024, 24, 5668. [Google Scholar] [CrossRef]
- GB/T 50081-2019; Standard for Test Methods of Concrete Physical and Mechanical Properties. Ministry of Housing and Urban-Rural Development of China, China Architecture & Building Press: Beijing, China, 2019.
- Lu, T.T.; Li, Z.L.; Pan, J.J.; Guan, K. Structural Behavior of Precast Monolithic Composite Beams with ECC Prefabricated Shells. J. Build. 2024, 14, 1024. [Google Scholar] [CrossRef]
- Li, Y. Study on Mechanical Performance of High Performance Fiber Reinforced Cement Composite. Ph.D. Thesis, Xi’an University of Architecture and Technology, Xi’an, China, 2011. [Google Scholar]
- D’Amato, M.; Braga, F.; Gigliotti, R.; Kunnath, S.S.; Laterza, M. A numerical general-purpose confinement model for non-linear analysis of R/C members. J. Comput. Struct. 2012, 102–103, 64–75. [Google Scholar] [CrossRef]
- Mander, J.B.; Priestley, M.J.N.; Park, R. Theoretical Stress-Strain Model for Confined Concrete. J. Struct. Eng. 1988, 114, 1804–1826. [Google Scholar] [CrossRef]
- GB 50010-2010; Concrete Structure Design Code. 2016 Edition. Ministry of Housing and Urban-Rural Development of China, China Building Industry Press: Beijing, China, 2016.















| Specimen No. | Precast Shell | Load Direction | Shell Material | Longitudinal Reinforcement of Mold Shell | Upper Longitudinal Reinforcement of Beam | Lower Longitudinal Reinforcement of Beam | Longitudinal Rebar Rate/% | Hooped Tendon |
|---|---|---|---|---|---|---|---|---|
| HPSTD1.21R | Yes | Bottom in tension | HPFRCC | 4C10 | 2C16 | 3C12 | 1.21 | A6@70 |
| HPSTD1.13R | Yes | Bottom in tension | HPFRCC | 4C10 | 2C16 | 2C14 | 1.13 | A6@70 |
| HPSTD1.36R | Yes | Bottom in tension | HPFRCC | 4C10 | 2C16 | 2C16 | 1.36 | A6@70 |
| HPSTD1.07R | Yes | Bottom in tension | HPFRCC | 4C8 | 2C16 | 3C12 | 1.07 | A6@70 |
| HPSTD1.21R-W | Yes | Bottom in tension | HPFRCC | 4C10 | 2C16 | 3C12 | 1.21 | A6@70 |
| HPREV1.46R | Yes | Top in tension | HPFRCC | 4C10 | 3C12 | 3C16 | 1.46 | A6@70 |
| RCREV1.46R | Yes | Top in tension | RC | 4C10 | 3C12 | 3C16 | 1.46 | A6@70 |
| RCSTD1.21R | Yes | Bottom in tension | RC | 4C10 | 2C16 | 3C12 | 1.21 | A6@70 |
| ZSTD1.11R | No | Bottom in tension | - | - | 2C16 | 3C14 | 1.11 | A6@70 |
| Type of Rebar | Rebar Diameter (mm) | Yield Strength fy (MPa) | Maximum Intensity fu (MPa) |
|---|---|---|---|
| HPB300 | 6 | 355 | 506 |
| HRB400 | 8 | 410 | 512 |
| 10 | 425 | 626 | |
| 12 | 465 | 642 | |
| 14 | 442 | 614 | |
| 16 | 532 | 698 |
| No. | Cracking Load /kN | Yield Load /kN | Yield Deflection /mm | 55 mm Peak Load at Mid-Span Displacement /kN |
|---|---|---|---|---|
| HPSTD1.21R | 18.0 | 219.2 | 11.30 | 256.6 |
| HPSTD1.13R | 18.0 | 174.5 | 8.27 | 226.0 |
| HPSTD1.36R | 12.0 | 233.4 | 13.14 | 267.6 |
| HPSTD1.07R | 16.0 | 178.5 | 10.62 | 219.4 |
| HPSTD1.21R-W | 17.6 | 208.3 | 10.56 | 249.4 |
| HPREV1.46R | 18.0 | 239.8 | 14.34 | 295.6 |
| RCREV1.46R | 18.0 | 217.0 | 9.14 | 276.4 |
| RCSTD1.21R | 28.2 | 205.6 | 11.22 | 232.7 |
| ZSTD1.11R | 30.0 | 176.0 | 9.95 | 219.0 |
| Test Piece | Theoretical Ultimate Bending Moment/kN·m | Measured Ultimate Bending Moment/kN·m | Errors/% |
|---|---|---|---|
| HPSTD1.21R | 85.70 | 89.81 | 4.58 |
| HPSTD1.13R | 80.43 | 79.10 | 1.68 |
| HPSTD1.36R | 98.39 | 93.66 | 4.42 |
| HPSTD1.07R | 76.02 | 76.79 | 0.99 |
| HPSTD1.21R-W | 85.70 | 87.29 | 1.82 |
| HPREV1.46R | 96.71 | 103.46 | 6.52 |
Disclaimer/Publisher’s Note: The statements, opinions and data contained in all publications are solely those of the individual author(s) and contributor(s) and not of MDPI and/or the editor(s). MDPI and/or the editor(s) disclaim responsibility for any injury to people or property resulting from any ideas, methods, instructions or products referred to in the content. |
© 2025 by the authors. Licensee MDPI, Basel, Switzerland. This article is an open access article distributed under the terms and conditions of the Creative Commons Attribution (CC BY) license (https://creativecommons.org/licenses/by/4.0/).
Share and Cite
Lu, T.; Wen, Y.; Guan, K.; Wang, B. Flexural Performance Analysis of Composite Beam with Reinforced HPFRCC Precast Shell. Materials 2025, 18, 762. https://doi.org/10.3390/ma18040762
Lu T, Wen Y, Guan K, Wang B. Flexural Performance Analysis of Composite Beam with Reinforced HPFRCC Precast Shell. Materials. 2025; 18(4):762. https://doi.org/10.3390/ma18040762
Chicago/Turabian StyleLu, Tingting, Yuxiang Wen, Kai Guan, and Bin Wang. 2025. "Flexural Performance Analysis of Composite Beam with Reinforced HPFRCC Precast Shell" Materials 18, no. 4: 762. https://doi.org/10.3390/ma18040762
APA StyleLu, T., Wen, Y., Guan, K., & Wang, B. (2025). Flexural Performance Analysis of Composite Beam with Reinforced HPFRCC Precast Shell. Materials, 18(4), 762. https://doi.org/10.3390/ma18040762

