Compressive Load Capacity of Concrete Structures Made of Hollow Blocks with Voids Filled with Concrete of Various Features
Abstract
1. Introduction
- To study the stress distribution and type of failure of masonry prisms with and without concrete infill, under axial compression;
- To determine the effects of the mechanical properties of the components making up the prism (HCB, mortar and concrete infill) on its load capacity and deformability;
- To select the optimal stress–strain relationship for the masonry prisms;
- To apply the finite element method for a detailed description of the stress distribution in the axially compressed prisms.
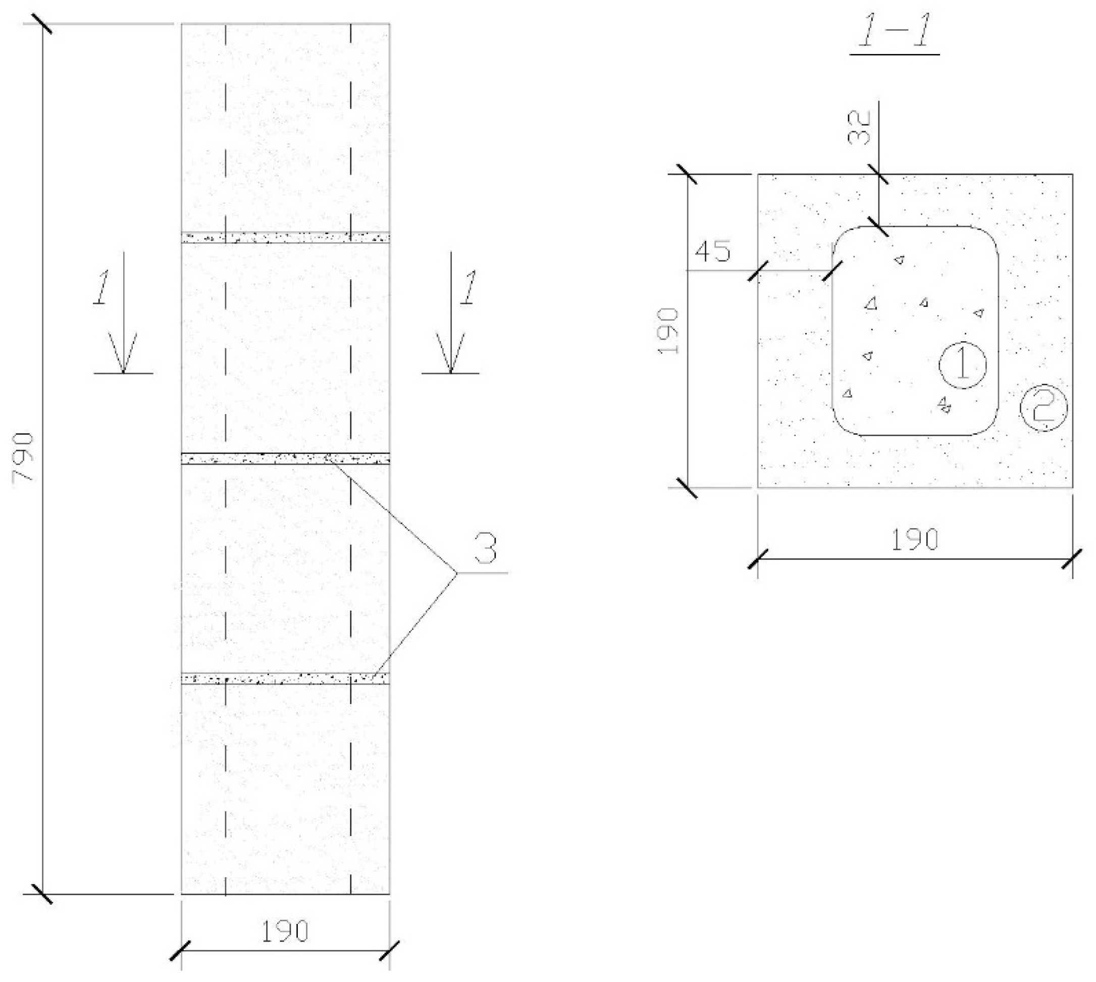
2. Experimental Program, Materials and Specimens
3. Results of the Conducted Research
3.1. Nature of the Failure and Load Capacity of the Specimens
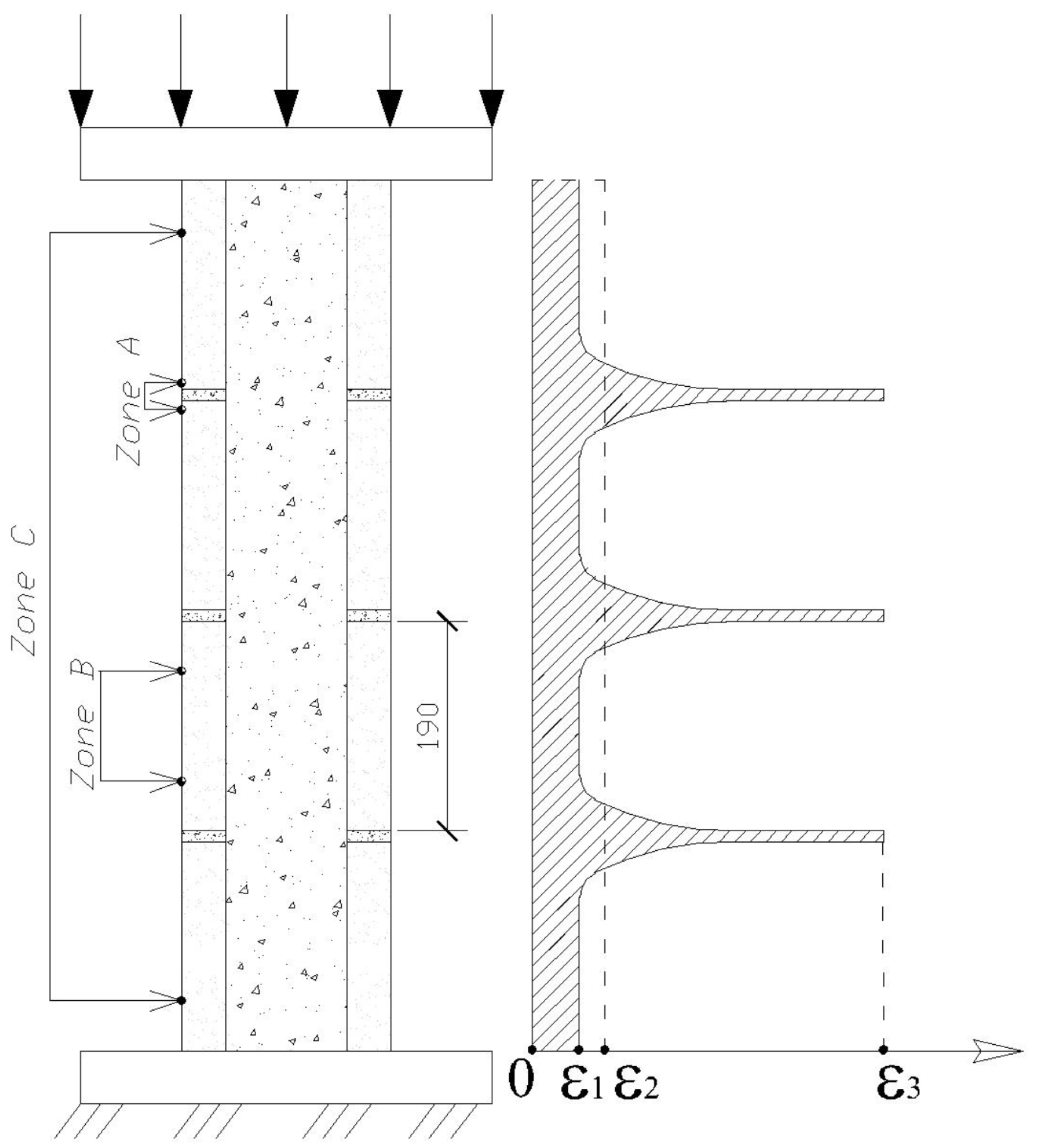
3.2. Strains of Experimental Concrete Specimens
| Specimen | , (Zone B, Figure 9) | , (Zone A, Figure 9) | , (Zone C, Figure 9) | , Maximum Transverse Strain |
|---|---|---|---|---|
| P1 | 120 | 700 | 170 | 20 |
| P2 | 110 | 740 | 180 | 22 |
| P3 | 110 | 870 | 190 | 20 |
| P4 | 120 | 550 | 185 | 20 |
| P5 | 120 | 800 | 170 | 19 |
| P6 | 100 | 650 | 170 | 23 |
| P7 | 110 | 1050 | 210 | 18 |
- a logarithmic Equation (2) [25]:
- parabolic equations by Hognestad (3) [26] and Tomaczewicz (4):
4. Load Capacity of HCB Masonry Prisms
- The first method, according to the current EU standards 3.6.1.2(4) [20], where the calculation uses the minimum strength of one of the two components (HCB masonry prism or concrete infill), is used to calculate the entire section.
- The second method involves summing the load capacity of concrete with that of a masonry prism and using individual strength characteristics for each component.
5. Numerical Experiments
6. Conclusions
- The cooperation of the masonry prisms with the concrete infill has been experimentally confirmed. The relation between transverse and longitudinal strains in the sections of horizontal joints has been established. Due to the development of these strains, longitudinal cracks are being formed and brittle failure occurs in specimens not filled with concrete.
- Filling the voids of masonry prisms allows the maximization of the load capacity characteristics of hollow blocks and limits the tensile forces in the joints of the masonry. The existing regulatory documents (method 1) prevent the use of a concrete filling with strength exceeding that of masonry prisms. The underestimation of the actual strength in calculations using method 1 reaches up to 69%.
- The stress–strain relationship for HCB masonry prisms without a concrete infill was selected. A new simple method for calculating the uniaxial load capacity of the HCB masonry prisms with concrete infill, suitable for practical use, was proposed. The methodology is confirmed by the comparison of the results of our research and the results of tests conducted by other researchers. The calculation error of the proposed method (method 2) is 6%.
- Based on the conducted experimental and numerical analysis with FEM, the authors of the article propose that the load capacity of the related materials should be taken into account when calculating structures made of HCBs with a concrete infill.
Author Contributions
Funding
Institutional Review Board Statement
Informed Consent Statement
Data Availability Statement
Conflicts of Interest
References
- Nazimi, K.; Castro, J.J.; Omi, S.; Ali, B.S. Proposal of Empirical Equations for Masonry Compressive Strength: Considering the Compressive Strength Difference between Bricks and Mortar. Buildings 2024, 14, 1138. [Google Scholar] [CrossRef]
- Abasi, A.; Banting, B.; Sadhu, A. Experimental Evaluation of Compressive Properties of Early-Age. Mortar and Concrete Hollow-Block Masonry Prisms within Construction Stages. Materials 2024, 17, 3970. [Google Scholar] [CrossRef] [PubMed]
- Blash, A.A.A.; Bakar, B.H.A.; Udi, U.J.; Dabbour, B.S.A.; Jaafar, A.A.; Yanhao, L.; Abu Bakar, I.A.; Rashed, M. Performance of Unreinforced Masonry Walls in Compression: A Review of Design Provisions, Experimental Research, and Future Needs. Appl. Sci. 2023, 13, 12306. [Google Scholar] [CrossRef]
- Liu, C.; Zhu, C.; Bai, G.; Quan, Z.; Wu, J. Experimental Investigation on Compressive Properties and Carbon Emission Assessment of Concrete Hollow Block Masonry Incorporating Recycled Concrete Aggregates. Appl. Sci. 2019, 9, 4870. [Google Scholar] [CrossRef]
- Matysek, P. Masonry Structures. In Design Principles with Examples of Calculations According to PN-B-03002:1999; Politechnika Krakowska: Krakow, Poland, 2001; ISBN 83-7242-139-0. [Google Scholar]
- Drobiec, Ł. FEM model of the masonry made of hollow calcium silicate units, International Conference on Analytical Models and New Concepts in Concrete and Masonry Structures AMCM. Procedia Eng. 2017, 193, 462–469. [Google Scholar] [CrossRef]
- Drobiec, Ł.; Jasiński, R.; Piekarczyk, A.; Mazur, W.; Rybarczyk, T.; Chojnowski, J.; Janiak, R.; Kwaśniak, J. Structural Design of Walls Made of Cellular Concrete. Workbook 2 Part 1; Association of Concrete Producers: Warsaw, Poland, 2016; ISBN 978-83-941005-4-4. [Google Scholar]
- Paulino, R.S.; Toralles, B.M. Influence of the relationships between compressive strengths of mixed and industrialized mortars and concrete blocks on the behavior of masonry prisms. Rev. IBRACON Estrut. Mater. 2024, 17, 17503. [Google Scholar] [CrossRef]
- Zhou, X.; Du, J.; Peng, Q.; Chen, P. Hollow block masonry wall reinforced by built-in structural configuration: Seismic behavior analysis. Soil Dyn. Earthq. Eng. 2019, 126, 105815. [Google Scholar] [CrossRef]
- Griniov, V. The strength of complex compressed reinforced concrete structures utilising hollow concrete blocks. Acta Sci. Pol. Archit. 2024, 23, 134–144. [Google Scholar] [CrossRef]
- Triwiyonoa, A.; Nugrohoa, A.S.B.; Firstyadia, A.D.; Ottamaa, F. Flexural strength and ductility of concrete brick masonry wall strengthened using steel reinforcement, The 5th International Conference of Euro Asia Civil Engineering Forum (EACEF-5). Procedia Eng. 2015, 125, 940–947. [Google Scholar] [CrossRef]
- Syiemiong, H.; Marthong, C. Effect of mortar grade on the uniaxial compression strength of low-strength hollow concrete block masonry prisms. Mater. Today Proc. 2020, 28, 842–845. [Google Scholar] [CrossRef]
- Gihad, M.; Lourenc, P.B.; Humberto, R.R. Mechanics of hollow concrete block masonry prisms under compression: Review and prospects. Cem. Concr. Compos. 2007, 29, 181–192. [Google Scholar] [CrossRef]
- Álvarez-Pérez, J.; Chávez-Gómez, J.H.; Terán-Torres, B.T.; Mesa-Lavista, M.; Balandrano-Vázquez, R. Multifactorial behavior of the elastic modulus and compressive strength in masonry prisms of hollow concrete blocks. Constr. Build. Mater. 2020, 241, 118002. [Google Scholar] [CrossRef]
- Chrysanidis, T. Experimental and numerical research on cracking characteristics of medium-reinforced prisms under variable uniaxial degrees of elongation. Eng. Fail. Anal. 2023, 145, 107014. [Google Scholar] [CrossRef]
- Jonaitis, B.; Zavalis, R. Experimental Research of Hollow Concrete Block Masonry Stress Deformations, 11th International Conference on Modern Building Materials, Structures and Techniques, MBMST 2013. Procedia Eng. 2013, 57, 473–478. [Google Scholar] [CrossRef][Green Version]
- Irnutan, R.A.; Babota, F. Autoclaved Cellular Concrete (ACC) Masonry with Vertical Hollows Confined with Disperse Reinforced Concrete, 10 International Conference Interdisciplinarity in Engineering INTER-ENG 2016. Procedia Eng. 2017, 181, 300–307. [Google Scholar] [CrossRef]
- Machado, J.F.; Lübeck, A.; Gihad, M.; Fonseca, F.S.; Almir Barros da Silva, S.N. Compressive strength of masonry prisms under compression according to Eurocode 6-EN 1996-1-1 (2005). In Proceedings of the 13th North American Masonry, Salt Lake City, UT, USA, 16–19 June 2019; Available online: https://www.researchgate.net/publication/333731008 (accessed on 10 January 2021).
- Fahmy, E.H.; Ghoneim, T.G.M. Behaviour of concrete block masonry prisms under axial compression. Can. J. Civ. Eng. 1995, 22, 898–915. [Google Scholar] [CrossRef]
- EN 1996-1-1; Eurocode 6: Design of masonry structures - Part 1-1: General rules for reinforced and unreinforced masonry structures. British Standards Institution: London, UK, 2012. (In English)
- EN 1992-1-1; Eurocode 2: Design of concrete structures - Part 1-1: General rules and rules for buildings. British Standards Institution: London, UK, 1996. (In English)
- EN 1996-2; Eurocode 6: Design of masonry structures - Part 2: Design considerations, selection of materials and execution of masonry. British Standards Institution: London, UK, 2006. (In English)
- EN 1996-3; Eurocode 6: Design of masonry structures - Part 3: Simplified calculation methods for unreinforced masonry structures. British Standards Institution: London, UK, 2006. (In English)
- DIN 18554-1; Testing of Masonry; Determination of Compressive Strength and of Elastic Modulus. Deutsches Institut für Normung: Berlin, Germany, 1985.
- Onishchik, L.I. Stone Structures of Industrial and Civil Buildings; Special Publications: London, UK; Gosstroyizdat: Leningrad, Moscow, Russia, 1939; 208p. [Google Scholar]
- Hognestad, E. A Study of Combined Bending and Axial Load in Reinforced Concrete Member; University of Illinois: Champaign, IL, USA, 1951; p. 128. Available online: https://api.semanticscholar.org/CorpusID:114416512 (accessed on 10 January 2021).
- Ansys Inc. Chapter 4: Nonlinear Material Properties. In Ansys Mechanical 2023 Help System; Material Reference; Ansys Inc.: Canonsburg, PA, USA, 2023. [Google Scholar]
- Menetrey, P.; Willam, K.J. Triaxial failure criterion for concrete and its generalization. ACI Struct. J. 1995, 92, 311–318. [Google Scholar] [CrossRef]

















| Specimen | Strength of Blocks, (MPa) | Strength of Mortar, (MPa) | Composition of Infill Concrete Mixture Per 1 m3, kg | ||||||
|---|---|---|---|---|---|---|---|---|---|
| Cement 500 | Medium-Sized Sand | Water | Granite Crushed Stone Fraction 5–10 mm | Expansion Additive | Softener | Infill Concrete Strength, (MPa) | |||
| P1 | 27.2 | 9.7 | 230 | 870 | 160 | 1040 | – | 1.80 | 14.0 |
| P2 | 300 | 780 | 165 | 1040 | – | 2.34 | 19.5 | ||
| P3 | 370 | 740 | 170 | 1000 | – | 2.88 | 26.5 | ||
| P4 | 420 | 1530 | 210 | – | – | 3.24 | 17.0 | ||
| P5 | 360 | 800 | 175 | 1000 | 60 | 2.52 | 19.0 | ||
| P6 | 450 | 1610 | 215 | – | 60 | 3.06 | 22.0 | ||
| P7 | – | – | – | – | – | – | – | ||
| Specimen | (kN) | (kN) | (MPa) | |
|---|---|---|---|---|
| P1 | 378 | 840 | 0.45 | 24 |
| P2 | 525 | 875 | 0.60 | 25 |
| P3 | 693 | 925 | 0.75 | 26 |
| P4 | 595 | 850 | 0.70 | 24 |
| P5 | 656 | 875 | 0.75 | 25 |
| P6 | 630 | 900 | 0.70 | 25 |
| P7 | 562 | 625 | 0.90 | 27 |
| Specimen | Nexp (kN) (Experimental Data) | N2 (kN) (Method 2) | N1 (kN) (Method 1) | Nexp/N2 | Nexp/N1 |
|---|---|---|---|---|---|
| P1 | 840 | 794 | 496 | 1.06 | 1.69 |
| P2 | 875 | 860 | 690 | 1.02 | 1.26 |
| P3 | 925 | 946 | 938 | 0.98 | 0.98 |
| P4 | 850 | 830 | 602 | 1.02 | 1.41 |
| P5 | 875 | 856 | 673 | 1.02 | 1.30 |
| P6 | 900 | 891 | 779 | 1.01 | 1.16 |
| P7 | 625 | 620 | 620 | 1.01 | 1.01 |
| Measured Value | HCB Masonry Prism with Concrete Infill | HCB Masonry Prism Without Concrete Infill | ||||
|---|---|---|---|---|---|---|
| Test, P7 | ANSYS | Difference % | Test, P1 | ANSYS | Difference % | |
| Longitudinal displacements of the specimens (mm) | 1.58 | 1.480 | 6.3 | 1.560 | 1.620 | 3.8 |
| Transverse displacements of the specimens (mm) | 0.03 | 0.028 | 6.7 | 0.038 | 0.035 | 7.9 |
| Stress, σ (MPa) | 27.0 | 25.5 | 5.6 | 24.0 | 22.2 | 7.5 |
Disclaimer/Publisher’s Note: The statements, opinions and data contained in all publications are solely those of the individual author(s) and contributor(s) and not of MDPI and/or the editor(s). MDPI and/or the editor(s) disclaim responsibility for any injury to people or property resulting from any ideas, methods, instructions or products referred to in the content. |
© 2024 by the authors. Licensee MDPI, Basel, Switzerland. This article is an open access article distributed under the terms and conditions of the Creative Commons Attribution (CC BY) license (https://creativecommons.org/licenses/by/4.0/).
Share and Cite
Griniov, V.; Yurkova, K.; Prusak, R. Compressive Load Capacity of Concrete Structures Made of Hollow Blocks with Voids Filled with Concrete of Various Features. Materials 2024, 17, 6262. https://doi.org/10.3390/ma17246262
Griniov V, Yurkova K, Prusak R. Compressive Load Capacity of Concrete Structures Made of Hollow Blocks with Voids Filled with Concrete of Various Features. Materials. 2024; 17(24):6262. https://doi.org/10.3390/ma17246262
Chicago/Turabian StyleGriniov, Vadim, Kseniya Yurkova, and Rafał Prusak. 2024. "Compressive Load Capacity of Concrete Structures Made of Hollow Blocks with Voids Filled with Concrete of Various Features" Materials 17, no. 24: 6262. https://doi.org/10.3390/ma17246262
APA StyleGriniov, V., Yurkova, K., & Prusak, R. (2024). Compressive Load Capacity of Concrete Structures Made of Hollow Blocks with Voids Filled with Concrete of Various Features. Materials, 17(24), 6262. https://doi.org/10.3390/ma17246262

