A Master Curve for Fatigue Design of Notched Nodular Cast Iron Components Based on the Local Averaged Strain Energy Density
Abstract
1. Introduction
- The lack of experimental investigations on the notch and mean stress effects on the fatigue behaviour of EN-GJS-500-7 nodular cast iron.
- The lack of a master curve for fatigue design of structural components made of EN-GJS-500-7 nodular cast iron, regardless of the geometry and the loading condition, based on a damage parameter that is relatively easy to calculate.
2. Theoretical Background: The Averaged Strain Energy Density (SED) Approach
- For notches with tip radius ρ > 0, Lazzarin and Berto [41] suggested a structural volume having a crescent shape (see Figure 1c, A(R0) being the area of the structural volume). Here, R0 measures the depth of the crescent shape along the notch bisector line. Such a structural volume can be obtained by modelling a circular shape having a radius equal to (R0 + r0) and centre at a distance r0 behind the notch tip. The parameter r0 is defined by Equation (3):where 2α is the notch opening angle and ρ the notch tip radius.
- Calculation of the hysteresis loops σjk-εjk in the post-processing environment of the FE code with reference to one stress cycle.
- Calculation of the elastic and plastic strain energy density contributions, i.e., and , by post-processing the hysteresis loops, e.g., by taking advantage of a dedicated numerical code.
3. Materials and Methods
3.1. Specimens’ Position
3.2. Material Microstructure, Hardness, Static and Strain-Controlled Fatigue Properties
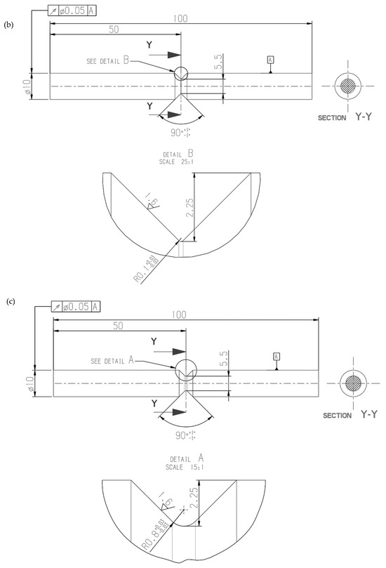
3.3. Constant Amplitude, Load-Controlled Fatigue Testing: Parameters and Specimens’ Geometry
3.4. Finite Element Analyses to Calculate the Averaged SED
- A linear elastic material behaviour: only the modulus of elasticity E (see Table 1) and the Poisson’s ratio (ν = 0.28) have been given as input to the Ansys® 2024 R1 FE software. In such cases, only a single FE model has been solved for each specimen geometry by taking advantage of the linear elasticity and applying an axial stress at the gross section, resulting in a nominal net-section stress σ = 1 MPa.
- An elastic plastic material behaviour: the modulus of elasticity E, the Poisson’s ratio (ν = 0.28) and the stabilised cyclic curve (see Table 1) have been given as input to the FE software. A multi-linear kinematic hardening behaviour has been adopted assuming von Mises as the yield criterion. In such cases, an FE model has been solved for each specimen geometry and each load level, with a quadratic proportionality between the averaged SED and the stress level not being applicable. The load has been applied in 100 substeps by simulating two stress cycles with a given nominal stress amplitude σa and a nominal load ratio R, corresponding to the values adopted in each experimental test.
4. Results
4.1. Load-Controlled Fatigue Test: Fracture Surface Analyses
4.2. Load-Controlled Fatigue Test: Results
4.3. Application of the Averaged SED Approach
- In the case of linear elastic material behaviour, the averaged SED has been calculated by applying Equation (4) directly in the post-processing environment of Ansys®, for each specimen geometry and each value of R0. Afterwards, the quadratic proportionality , which can be derived from Equations (1) and (4), has been exploited to calculate the averaged SED with reference to the experimental stress amplitudes. Finally, the proper coefficient cw (Equation (2)), i.e., cw = 0.5 and 1.1 for R = −1 and 0.05, respectively, has been applied.
- Concerning the elastic plastic material behaviour, the hysteresis loops σjk-εjk have been calculated in the post-processing environment of Ansys® for each specimen geometry, load case and i-th finite element belonging to the structural volume having radius R0. Then, the elastic and plastic strain energy density contributions, i.e., and , have been calculated by post-processing the hysteresis loops through a dedicated Python® code. Finally, Equation (6) has been applied to compute the averaged SED. Figure 9 reports examples of the hysteresis loops σyy-εyy, i.e., stress and strain components acting along the loading axis (see Figure 6), for plain, sharply V-notched and bluntly notched specimens with reference to a finite element located at the outer surface of the plain specimen and at the tip of the notched specimens. Two examples of hysteresis loops have been reported for each test series, namely one referred to a medium–low number of cycles to failure, and the other to a high number of cycles to failure. The definition of elastic and plastic strain energy densities is included in Figure 9. It is worth noting that such SED contributions are the only ones present in the plain specimens, being a uniaxial loading condition, while the axial loading applied to notched cylindrical specimens generates axial and hoop stress–strain components, i.e., σyy-εyy and σzz-εzz (according to Figure 6). In the high-cycle cases, Figure 9 shows that the plastic contribution is null for plain and bluntly notched specimens, while it is reduced at the tip of sharply V-notched specimens. In the medium–low cycle cases, the plastic contribution is pronounced for plain specimens under R = −1, at the tip of sharply V-notched specimens under R = −1 and 0.05; then, it is reduced at the tip of bluntly notched specimens and null for plain specimens under R = 0.05. Moreover, the local stress ratio Ri,yy = σyy,min/σyy,max is equal to the nominal one for plain specimens regardless of the load ratio (Figure 9a–d) and notched specimens under R = −1 (Figure 9e,f), while plastic deformations localised at the notch tip shift the local stress ratio Ri,yy to negative values when notched specimens are subjected to R = 0.05 (Figure 9g–i,j).
- Material in FE analyses: a homogeneous, multi-linear kinematic hardening material model was assumed. Alternatively, a Chaboche non-linear isotropic kinematic hardening model [58] can be employed to capture the material behaviour evolution during cyclic loading; however, calibrating such a model is rather complex and typically requires material strain-based fatigue data using different strain amplitudes and rates.
- Crack initiation location: the SED has been averaged over a structural volume lying on the outer surface of a plain specimen and embracing the notch tip of sharply V-notched and bluntly notched specimens (see Figure 6); therefore, it has been assumed that the structural volume having size R0 accounts for the material microstructure, including discontinuities such defects and graphite nodules. This assumption is supported by Figure 8, which shows a reduced scatter index of each test series even if the crack initiation occurred either at the specimen surface or from sub-surface defects for plain specimens, either from the notch tip or from defects or graphite nodules for notched specimens.
5. Conclusions
- The fracture surfaces analyses performed by SEM microscope showed that in plain specimens, the fatigue crack initiated either from the surface or sub-surface defects. On the other hand, in sharply V-notched and bluntly notched specimens, fatigue crack initiation mainly occurred from the notch tip, with additional crack initiations having been observed from sub-surface defects and graphite nodules.
- The experimental fatigue results of each test series were presented in terms of the number of cycles to failure Nf as a function of the nominal net-section stress amplitude σa. Plain specimens showed a strong mean stress effect, with the high-cycle fatigue strength σA,50% being 204 MPa (k = 8.87) for R = −1 and 124 MPa (k = 8.28) for R = 0.05, i.e., 34% lower for higher mean stress (R = 0.05). On the other hand, sharply V-notched specimens exhibited a reduced mean stress effect, with σA,50% being 66 MPa (k = 4.50) and 53 MPa (k = 4.90) for R = −1 and 0.05, respectively, i.e., 19% lower for higher mean stress (R = 0.05). Bluntly notched specimens have been tested only under R = 0.05 and exhibited σA,50% = 79 MPa (k = 5.84). In all cases the 10–90% scatter index Tσ was rather reduced, being in the range between 1.26 and 1.43.
- Finally, the fatigue approach based on the strain energy density (SED) averaged over a properly defined structural volume has been applied. The structural volume size R0 has been calibrated and is equal to 0.105 mm. FE analyses have been performed by assuming either a linear elastic or an elastic plastic material behaviour to convert the experimental fatigue results from the nominal net-section stress amplitude to the averaged SED value. The elastic plastic formulation of the averaged SED approach has shown to be able to well correlate the different notch effects and mean stress effects on the fatigue strength of EN-GJS-500-7 cast iron. Therefore, the relevant master curve can be useful for the fatigue design of off-highway axles made of EN-GJS-500-7 cast iron.
Author Contributions
Funding
Institutional Review Board Statement
Informed Consent Statement
Data Availability Statement
Acknowledgments
Conflicts of Interest
References
- Benedetti, M.; Santus, C.; Fontanari, V.; Lusuardi, D.; Zanini, F.; Carmignato, S. Plain and notch fatigue strength of thick-walled ductile cast iron EN-GJS-600-3: A double-notch critical distance approach to defect sensitivity. Int. J. Fatigue 2021, 152, 106414. [Google Scholar] [CrossRef]
- Pedranz, M.; Fontanari, V.; Raghavendra, S.; Santus, C.; Zanini, F.; Carmignato, S.; Lusuardi, D.; Berto, F.; Benedetti, M. A new energy based highly stressed volume concept to investigate the notch-pores interaction in thick-walled ductile cast iron subjected to uniaxial fatigue. Int. J. Fatigue 2023, 169, 107491. [Google Scholar] [CrossRef]
- Berto, F.; Lazzarin, P.; Tovo, R. Multiaxial fatigue strength of severely notched cast iron specimens. Int. J. Fatigue 2014, 67, 15–27. [Google Scholar] [CrossRef]
- Deguchi, T.; Kim, H.J.; Ikeda, T. Fatigue limit prediction of ferritic-pearlitic ductile cast iron considering stress ratio and notch size. J. Phys. Conf. Ser. 2017, 842, 012067. [Google Scholar] [CrossRef]
- Meyer, N.M. Effects of Mean Stress and Stress Concentration on Fatigue Behavior of Ductile Iron; University of Toledo: Toledo, OH, USA, 2014. [Google Scholar]
- Bleicher, C.; Wagener, R.; Kaufmann, H.; Melz, T. Fatigue strength of nodular cast iron with regard to heavy-wall applications. Mater. Test. 2015, 57, 723–731. [Google Scholar] [CrossRef]
- Shirani, M.; Härkegård, G. Casting defects and fatigue behaviour of ductile cast iron for wind turbine components: A comprehensive study. Mater. Und Werkst. 2011, 42, 1059–1074. [Google Scholar] [CrossRef]
- Zambrano, H.R.; Harkegard, G.; Stark, K.F. Fracture toughness and growth of short and long fatigue cracks in ductile cast iron EN-GJS-400-18-LT. Fatigue Fract. Eng. Mater. Struct. 2012, 35, 374–388. [Google Scholar] [CrossRef]
- Bergner, K.; Hesseler, J.; Bleicher, C. Fatigue analysis of cast iron components considering the influence of casting skin. Procedia Struct. Integr. 2019, 19, 140–149. [Google Scholar] [CrossRef]
- Bleicher, C.; Schoenborn, S.; Kaufmann, H. An investigation on the fatigue strength of repair welded nodular cast iron for heavy sections. Procedia Struct. Integr. 2023, 47, 478–487. [Google Scholar] [CrossRef]
- Scacco, F.; Campagnolo, A.; Franceschi, M.; Meneghetti, G. Strain-Controlled Fatigue Behavior of a Nodular Cast Iron in Real Off-Highway Axles: Effects of Casting Skin and Strain Ratio. Metals 2022, 12, 426. [Google Scholar] [CrossRef]
- Lin, C.-K.; Pai, Y.-L. Low-cycle fatigue of austempered ductile irons at various strain ratios. Int. J. Fatigue 1999, 21, 45–54. [Google Scholar] [CrossRef]
- Borsato, T.; Berto, F.; Ferro, P.; Carollo, C. Effect of in-mould inoculant composition on microstructure and fatigue behaviour of heavy section ductile iron castings. Procedia Struct. Integr. 2016, 2, 3150–3157. [Google Scholar] [CrossRef]
- Konečná, R.; Kokavec, M.; Nicoletto, G. Surface conditions and the fatigue behavior of nodular cast iron. Procedia Eng. 2011, 10, 2538–2543. [Google Scholar] [CrossRef]
- Benam, A.S. Effect of Shot Peening on the High-Cycle Fatigue Behavior of High-Strength Cast Iron with Nodular Graphite. Met. Sci. Heat Treat. 2017, 58, 568–571. [Google Scholar] [CrossRef]
- Meyer, N.; Fatemi, A.; McCutcheon, S.; Havard, B.; Fairchilds, W. Fatigue Behavior of Cast Iron Including Mean Stress Effects. SAE Int. J. Mater. Manuf. 2015, 8, 425–434. [Google Scholar] [CrossRef]
- Shirani, M.; Härkegård, G. Large scale axial fatigue testing of ductile cast iron for heavy section wind turbine components. Eng. Fail. Anal. 2011, 18, 1496–1510. [Google Scholar] [CrossRef]
- Shirani, M.; Härkegård, G. Fatigue life distribution and size effect in ductile cast iron for wind turbine components. Eng. Fail. Anal. 2011, 18, 12–24. [Google Scholar] [CrossRef]
- SAE J 1099; Technical Report on Low Cycle Fatigue Properties: Ferrous and Non Ferrous Materials. SAE International: Warrendale, PA, USA, 2002.
- Petrenec, M.; Tesařová, H.; Beran, P.; Šmíd, M.; Roupcová, P. Comparison of low cycle fatigue of ductile cast irons with different matrix alloyed with nickel. Procedia Eng. 2010, 2, 2307–2316. [Google Scholar] [CrossRef][Green Version]
- Šamec, B.; Potrč, I.; Šraml, M. Low cycle fatigue of nodular cast iron used for railway brake discs. Eng. Fail. Anal. 2011, 18, 1424–1434. [Google Scholar] [CrossRef]
- Meneghetti, G.; Ricotta, M.; Masaggia, S.; Atzori, B. Comparison of the low-cycle and medium-cycle fatigue behaviour of ferritic, pearlitic, isothermed and austempered ductile irons. Fatigue Fract. Eng. Mater. Struct. 2013, 36, 913–929. [Google Scholar] [CrossRef]
- Benedetti, M.; Santus, C.; Raghavendra, S.; Lusuardi, D.; Zanini, F.; Carmignato, S. Multiaxial plain and notch fatigue strength of thick-walled ductile cast iron EN-GJS-600-3: Combining multiaxial fatigue criteria, theory of critical distances, and defect sensitivity. Int. J. Fatigue 2022, 156, 106703. [Google Scholar] [CrossRef]
- Taylor, D.; Hughes, M.; Allen, D. Notch fatigue behaviour in cast irons explained using a fracture mechanics approach. Int. J. Fatigue 1996, 18, 439–445. [Google Scholar] [CrossRef]
- Vaara, J.; Väntänen, M.; Laine, J.; Kemppainen, J.; Frondelius, T. Prediction of the fatigue limit defining mechanism of nodular cast iron based on statistical microstructural features. Eng. Fract. Mech. 2023, 277, 109004. [Google Scholar] [CrossRef]
- Lazzarin, P.; Zambardi, R. A finite-volume-energy based approach to predict the static and fatigue behavior of components with sharp V-shaped notches. Int. J. Fract. 2001, 112, 275–298. [Google Scholar] [CrossRef]
- Atzori, B.; Berto, F.; Lazzarin, P.; Quaresimin, M. Multi-axial fatigue behaviour of a severely notched carbon steel. Int. J. Fatigue 2006, 28, 485–493. [Google Scholar] [CrossRef]
- Berto, F.; Lazzarin, P.; Yates, J.R. Multiaxial fatigue of V-notched steel specimens: A non-conventional application of the local energy method. Fatigue Fract. Eng. Mater. Struct. 2011, 34, 921–943. [Google Scholar] [CrossRef]
- Benedetti, M.; Berto, F.; Le Bone, L.; Santus, C. A novel Strain-Energy-Density based fatigue criterion accounting for mean stress and plasticity effects on the medium-to-high-cycle uniaxial fatigue strength of plain and notched components. Int. J. Fatigue 2020, 133, 105397. [Google Scholar] [CrossRef]
- Berto, F.; Campagnolo, A.; Lazzarin, P. Fatigue strength of severely notched specimens made of Ti-6Al-4V under multiaxial loading. Fatigue Fract. Eng. Mater. Struct. 2015, 38, 503–517. [Google Scholar] [CrossRef]
- Meneghetti, G.; Campagnolo, A.; Berto, F.; Tanaka, K. Notched Ti-6Al-4V titanium bars under multiaxial fatigue: Synthesis of crack initiation life based on the averaged strain energy density. Theor. Appl. Fract. Mech. 2018, 96, 509–533. [Google Scholar] [CrossRef]
- Pedranz, M.; Fontanari, V.; Santus, C.; Lusuardi, D.; Berto, F.; Benedetti, M. A strain energy density design approach for large cast iron components: From microstructural analysis to multiaxial fatigue response. Int. J. Fatigue 2023, 175, 107824. [Google Scholar] [CrossRef]
- Neuber, H. Kerbspannungslehre, 2nd ed.; Springer: Berlin, Germany, 1958; ISBN 978-3-642-63199-3. [Google Scholar]
- Neuber, H. Theory of Notch Stresses; Springer: Berlin, Germany, 1958. [Google Scholar]
- Neuber, H. Űber die Berücksichtigung der Spannungskonzentration bei Festigkeitsberechnungen. Konstruktion 1968, 20, 245–251. [Google Scholar]
- Peterson, R.E. Notch Sensitivity; Sines, G., Waisman, J.L., Eds.; Metal fatigue; McGraw Hill: New York, NY, USA, 1959. [Google Scholar]
- Tanaka, K. Engineering formulae for fatigue strength reduction due to crack-like notches. Int. J. Fract. 1983, 22, R39–R46. [Google Scholar] [CrossRef]
- Sheppard, S.D. Field Effects in Fatigue Crack Initiation: Long Life Fatigue Strength. J. Mech. Des. 1991, 113, 188. [Google Scholar] [CrossRef]
- Taylor, D. Geometrical effects in fatigue: A unifying theoretical model. Int. J. Fatigue 1999, 21, 413–420. [Google Scholar] [CrossRef]
- Lazzarin, P.; Sonsino, C.M.; Zambardi, R. A notch stress intensity approach to assess the multiaxial fatigue strength of welded tube-to-flange joints subjected to combined loadings. Fatigue Fract. Eng. Mater. Struct. 2004, 27, 127–140. [Google Scholar] [CrossRef]
- Lazzarin, P.; Berto, F. Some expressions for the strain energy in a finite volume surrounding the root of blunt V-notches. Int. J. Fract. 2005, 135, 161–185. [Google Scholar] [CrossRef]
- Livieri, P.; Lazzarin, P. Fatigue strength of steel and aluminium welded joints based on generalised stress intensity factors and local strain energy values. Int. J. Fract. 2005, 133, 247–276. [Google Scholar] [CrossRef]
- Lazzarin, P.; Berto, F.; Zappalorto, M. Rapid calculations of notch stress intensity factors based on averaged strain energy density from coarse meshes: Theoretical bases and applications. Int. J. Fatigue 2010, 32, 1559–1567. [Google Scholar] [CrossRef]
- Morrow, J. Cyclic Plastic Strain Energy and Fatigue of Metals. In Internal Friction, Damping, and Cyclic Plasticity; ASTM International: West Conshohocken, PA, USA, 1965; pp. 45–87. [Google Scholar]
- Ellyin, F. Cyclic Strain Energy Density as a Criterion for Multiaxial Fatigue Failure; Brown, M.W., Miller, K.J., Eds.; EGF Publication: London, UK, 1989. [Google Scholar]
- Ellyin, F. Fatigue Damage, Crack Growth and Life Prediction; Springer: Dordrecht, The Netherlands, 1996; ISBN 978-94-010-7175-8. [Google Scholar]
- Schuscha, M.; Leitner, M.; Stoschka, M.; Meneghetti, G. Local strain energy density approach to assess the fatigue strength of sharp and blunt V-notches in cast steel. Int. J. Fatigue 2020, 132, 105334. [Google Scholar] [CrossRef]
- Zhao, P.; Lu, T.-Y.; Gong, J.-G.; Xuan, F.-Z.; Berto, F. A strain energy density based life prediction model for notched components in low cycle fatigue regime. Int. J. Press. Vessel. Pip. 2021, 193, 104458. [Google Scholar] [CrossRef]
- Horvath, M.; Oberreiter, M.; Stoschka, M. A Numerically Efficient Method to Assess the Elastic–Plastic Strain Energy Density of Notched and Imperfective Cast Steel Components. Appl. Mech. 2023, 4, 528–566. [Google Scholar] [CrossRef]
- EN 1563:2018; Founding—Spheroidal Graphite Cast Irons. BSI: London, UK, 2018.
- Pelizzari, J.; Campagnolo, A.; Dengo, C.; Meneghetti, G. Fatigue behavior of a nodular cast iron subjected to a variable amplitude strain-based load spectrum applied in bench tests of an Off-highway axle. Procedia Struct. Integr. 2024, 57, 817–823. [Google Scholar] [CrossRef]
- ISO 945-1:2019; Microstructure of Cast Irons. International Organization for Standardization (ISO): London, UK, 2019.
- ISO 6506-1:2014; Metallic Materials—Brinell Hardness Test. International Organization for Standardization (ISO): London, UK, 2014.
- Murakami, Y. Metal Fatigue: Effects of Small Defects and Nonmetallic Inclusions; Elsevier Science Ltd.: London, UK, 2002; ISBN 9780128138762. [Google Scholar]
- ISO 6892-1:2016; Metallic Materials—Tensile Testing. International Organization for Standardization (ISO): London, UK, 2016.
- ASTM E 606-04; Standard Practice for Strain-Controlled Fatigue Testing. ASTM International: West Conshohocken, PA, USA, 2004.
- ISO 12107:2003; Metallic Materials—Fatigue Testing—Statistical Planning and Analysis of Data. International Organization for Standardization (ISO): London, UK, 2003.
- Chaboche, J.L. A review of some plasticity and viscoplasticity constitutive theories. Int. J. Plast. 2008, 24, 1642–1693. [Google Scholar] [CrossRef]

















| Static Tensile Curve | Stabilised Cyclic Curve | ||||||||
|---|---|---|---|---|---|---|---|---|---|
| Material | E | σp0.2 | σR | A | Z | K | n | K′ | n′ |
| [MPa] | [MPa] | [MPa] | [%] | [%] | [MPa] | [/] | [MPa] | [/] | |
| EN-GJS-500-7 | 170,400 | 360 | 608 | 9.25 | 8.75 | 902 | 0.157 | 927.6 | 0.123 |
| Material | Specimen Geometry * | dgross (mm) | dnet (mm) | ρ (mm) | 2α (°) | R | N° Data | N° Runout | σA,50% (MPa) | k | Tσ |
|---|---|---|---|---|---|---|---|---|---|---|---|
| EN-GJS-500-7 | Plain | 10 | 5.5 | - | - - | −1 0.05 | 11 10 | 2 3 | 204 124 | 8.87 8.28 | 1.35 1.43 |
| Sharply V-notched | 10 | 5.5 | 0.1 | 90 | −1 0.05 | 11 11 | 2 2 | 66 53 | 4.50 4.90 | 1.41 1.33 | |
| Bluntly notched | 10 | 5.5 | 0.8 | 90 | 0.05 | 12 | 3 | 79 | 5.84 | 1.26 |
Disclaimer/Publisher’s Note: The statements, opinions and data contained in all publications are solely those of the individual author(s) and contributor(s) and not of MDPI and/or the editor(s). MDPI and/or the editor(s) disclaim responsibility for any injury to people or property resulting from any ideas, methods, instructions or products referred to in the content. |
© 2024 by the authors. Licensee MDPI, Basel, Switzerland. This article is an open access article distributed under the terms and conditions of the Creative Commons Attribution (CC BY) license (https://creativecommons.org/licenses/by/4.0/).
Share and Cite
Pelizzari, J.; Campagnolo, A.; Dengo, C.; Meneghetti, G. A Master Curve for Fatigue Design of Notched Nodular Cast Iron Components Based on the Local Averaged Strain Energy Density. Materials 2024, 17, 4807. https://doi.org/10.3390/ma17194807
Pelizzari J, Campagnolo A, Dengo C, Meneghetti G. A Master Curve for Fatigue Design of Notched Nodular Cast Iron Components Based on the Local Averaged Strain Energy Density. Materials. 2024; 17(19):4807. https://doi.org/10.3390/ma17194807
Chicago/Turabian StylePelizzari, Jacopo, Alberto Campagnolo, Carlo Dengo, and Giovanni Meneghetti. 2024. "A Master Curve for Fatigue Design of Notched Nodular Cast Iron Components Based on the Local Averaged Strain Energy Density" Materials 17, no. 19: 4807. https://doi.org/10.3390/ma17194807
APA StylePelizzari, J., Campagnolo, A., Dengo, C., & Meneghetti, G. (2024). A Master Curve for Fatigue Design of Notched Nodular Cast Iron Components Based on the Local Averaged Strain Energy Density. Materials, 17(19), 4807. https://doi.org/10.3390/ma17194807

