Corrosion-Induced Cracking Model of Concrete Considering a Transverse Constraint
Abstract
1. Introduction
2. Three-Layered Hollow Cylinder Model for Uniform Corrosion
2.1. Establishment of the Three-Layered Hollow Cylinder Model
2.2. Theoretical Derivation
2.2.1. Non-Cracking Stage
2.2.2. Cracking Stage
2.2.3. Internal Force Analysis of Corrosion Products
2.2.4. Corrosion Rate of the Steel Bar at the Moment of Cracking
2.3. The Influence of Spacing between Stirrups on the Critical Corrosion Rate
3. Test Process
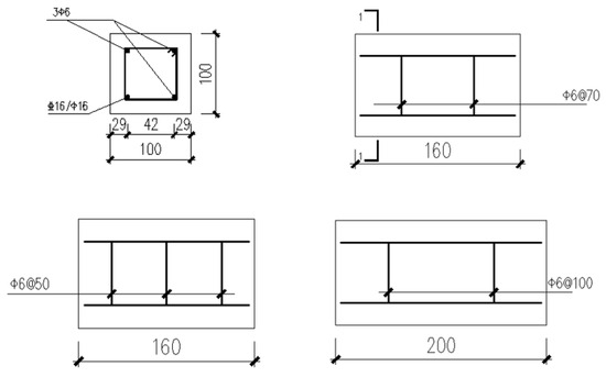
3.1. Specimens Design
3.2. Accelerated Corrosion Method
3.3. Analysis of Test Results
4. Analysis with the ABAQUS Finite Element Software
4.1. The Establishment of the ABAQUS Model
4.2. Critical Spacing between Stirrups
5. Conclusions
Author Contributions
Funding
Institutional Review Board Statement
Informed Consent Statement
Data Availability Statement
Conflicts of Interest
References
- GB 50010-2010; Code for Design of Concrete Structures. Ministry of Housing and Urban-Rural Construction of the People’s Republic of China: Beijing, China, 2010.
- Hosseinzadehfard, E.; Mobaraki, B. Investigating concrete durability: The impact of natural pozzolan as a partial substitute for microsilica in concrete mixtures. Constr. Build Mater. 2024, 419, 135491. [Google Scholar] [CrossRef]
- Mobaraki, B.; Ma, H.; Lozano Galant, J.A.; Turmo, J. Structural Health Monitoring of 2D Plane Structures. Appl. Sci. 2021, 11, 2000. [Google Scholar] [CrossRef]
- Zhao, Y.; Yu, J.; Jin, W. Damage analysis and cracking model of reinforced concrete structures with rebar corrosion. Corros. Sci. 2011, 53, 3388–3397. [Google Scholar] [CrossRef]
- Jin, W.L.; Zhao, Y.X. Corrosion-Induced Concrete Cracking; Butterworth-Heinemann: Oxford, UK, 2016. [Google Scholar]
- Zhao, Y.; Yu, J.; Hu, B.; Jin, W. Crack shape and rust distribution in corrosion-induced cracking concrete. Corros. Sci. 2012, 55, 385–393. [Google Scholar] [CrossRef]
- Du, X.; Jin, L.; Zhang, R. Modeling the cracking of cover concrete due to non-uniform corrosion of reinforcement. Corros. Sci. 2014, 89, 189–202. [Google Scholar] [CrossRef]
- Leung, C.K.; Hou, D. Numerical Simulation of Chloride-Induced Corrosion Initiation in Reinforced Concrete Structures with Cracks. J. Mater. Civ. Eng. 2015, 27, 04014122. [Google Scholar] [CrossRef]
- Kwon, S.J.; Na, U.J.; Park, S.S.; Jung, S.H. Service life prediction of concrete wharves with early-aged crack: Probabilistic approach for chloride diffusion. Struct. Saf. 2009, 31, 75–83. [Google Scholar] [CrossRef]
- Krykowski, T.; Jaśniok, T.; Recha, F.; Karolak, M. A Cracking Model for Reinforced Concrete Cover, Taking Account of the Accumulation of Corrosion Products in the ITZ Layer, and Including Computational and Experimental Verification. Materials 2020, 13, 5375. [Google Scholar] [CrossRef] [PubMed]
- Lu, C.H. Research on Cracking and Durability of Reinforced Concrete Flexural Members. Ph.D. Thesis, Zhejiang University, Hangzhou, China, 2011. (In Chinese). [Google Scholar]
- Bazant, Z.P. Physical Model for Steel Corrosion in Concrete Sea Structures-Theory. J. Struct. Div. 1979, 105, 1137–1153. [Google Scholar] [CrossRef]
- Stewart, M.G.; Rosowsky, D.V. Structural safety and serviceability of concrete bridges subject to corrosion. J. Infrastruct. Syst. 1998, 4, 146–155. [Google Scholar] [CrossRef]
- Alhozaimy, A.; Hussain, R.R.; Al-Zaid, R.; Al Negheimish, A. Investigation of severe corrosion observed at intersection points of steel rebar mesh in reinforced concrete construction. Constr. Build Mater. 2012, 37, 67–81. [Google Scholar] [CrossRef]
- Michel, A.; Otieno, M.; Stang, H.; Geiker, M.R. Propagation of steel corrosion in concrete: Experimental and numerical investigations. Cem. Concr. Compos. 2016, 70, 171–182. [Google Scholar] [CrossRef]
- Laurens, S.; Henocq, P.; Rouleau, N.; Deby, F.; Samson, E.; Marchand, J.; Bissonnette, B. Steady-state polarization response of chloride-induced macrocell corrosion systems in steel reinforced concrete-numerical and experimental investigations. Cem. Concr. Res. 2016, 79, 272–290. [Google Scholar] [CrossRef]
- Wang, L.; Bao, J. Investigation on chloride penetration into unsaturated concrete under short-term sustained tensile loading. Mater. Struct. 2017, 50, 227. [Google Scholar] [CrossRef]
- Cao, C. 3D simulation of localized steel corrosion in chloride contaminated reinforced concrete. Constr. Build Mater. 2014, 72, 434–443. [Google Scholar] [CrossRef]
- Melchers, R.E.; Chaves, I.A. A comparative study of chlorides and longer-term reinforcement corrosion. Mater. Corros. 2017, 68, 613–621. [Google Scholar] [CrossRef]
- Apostolopoulos, C.A.; Demis, S.; Papadakis, V.G. Chloride-induced corrosion of steel reinforcement-mechanical performance and pit depth analysis. Constr. Build Mater. 2013, 38, 139–146. [Google Scholar] [CrossRef]
- Andrade, C.; Alonso, C.; Molina, F.J. Cover cracking as a function of bar corrosion: Part I-Experimental test. Mater. Struct. 1993, 26, 453–464. [Google Scholar] [CrossRef]
- Liu, Y.; Weyers, R.E. Modeling the time-to-corrosion cracking in chloride contaminated reinforced concrete structures. ACI Mater. J. 1998, 95, 675–681. [Google Scholar]
- Pantazopoulou, S.J.; Papoulia, K.D. Modeling cover-cracking due to reinforcement corrosion in RC structures. J. Eng. Mech.-ASCE 2001, 127, 342–351. [Google Scholar] [CrossRef]
- Wang, X.H.; Liu, X.L. Modelling effects of corrosion on cover cracking and bond in reinforced concrete. Mag. Concr. Res. 2004, 56, 191–199. [Google Scholar] [CrossRef]
- Wang, X.; Liu, X. Modeling bond strength of corroded reinforcement with confinement stirrups. In Proceedings of the International Conference on Durability of Concrete Structures, Hangzhou, China, 26–27 November 2008. [Google Scholar]
- Wang, X.S.; Jin, X.Y.; Tian, Y.; Jin, N.G. Bond properties based on non-uniform corrosion deformed bar. J. Zhejiang Univ. Eng. Sci. 2013, 47, 154–161. [Google Scholar]
- Coronelli, D. Corrosion cracking and bond strength modeling for corroded bars in reinforced concrete. ACI Struct. J. 2002, 99, 267–276. [Google Scholar]
- Gao, Z.Y.; Wei, J.; Chen, Y.S. Effects of Stirrups on Steel Corrosion and Expansion in Concrete. J. Wuhan Univ. Technol. Mater. Sci. Ed. 2006, S1, 180–182. [Google Scholar]
- Zhou, X.W.; Wei, J.; Dong, R.Z. Analysis of the inhibition effect of stirrups on rust expansion of steel bars in concrete structures. J. Wuhan Univ. Technol.-Mater. Sci. Ed. 2008, 09, 80–83. (In Chinese) [Google Scholar]
- Zhao, Y.; Wu, Y.; Jin, W. Distribution of millscale on corroded steel bars and penetration of steel corrosion products in concrete. Corros. Sci. 2013, 66, 160–168. [Google Scholar] [CrossRef]
- Zhao, Y.; Yu, J.; Wu, Y.; Jin, W. Critical thickness of rust layer at inner and out surface cracking of concrete cover in reinforced concrete structures. Corros. Sci. 2012, 59, 316–323. [Google Scholar] [CrossRef]
- Michel, A.; Pease, B.J.; Geiker, M.R.; Stang, H.; Olesen, J.F. Monitoring reinforcement corrosion and corrosion-induced cracking using non-destructive x-ray attenuation measurements. Cem. Concr. Res. 2011, 41, 1085–1094. [Google Scholar] [CrossRef]
- Lundgren, K. Modelling the effect of corrosion on bond in reinforced concrete. Mag. Concr. Res. 2002, 54, 165–173. [Google Scholar] [CrossRef]
- Al-Sulaimani, G.J.; Kaleemullah, M.; Basunbul, I.A. Influence of Corrosion and Cracking on Bond Behavior and Strength of Reinforced Concrete Members. ACI Struct. J. 1990, 87, 220–231. [Google Scholar]
- Alonso, C.; Molina, F.J.; Andrade, C. Cover cracking as a function of bar corrosion: Part Ⅱ-Numerical model. Mater. Struct. 1993, 26, 535–548. [Google Scholar]
- Andrade, C.; Alonso, C.; Rodriguez, J. Factors controlling cracking of concrete affected by reinforcement corrosion. Mater. Struct. 1998, 31, 435–441. [Google Scholar]
- Zhou, X.W.; Wei, J.; Li, P.C.; Dong, R.Z. Study on the influence of stirrups on the rust expansion of reinforced concrete structures. In Proceedings of the 14th National Conference on Concrete and Prestressed Concrete, Changsha, China, 1 December 2007. (In Chinese). [Google Scholar]
- Bai, J.; Huang, C.X. The damage factor of ABAQUS plastic damage model was determined based on the specification. Res. Urban Constr. Theory 2015, 5, 506–508. (In Chinese) [Google Scholar]
- Habib, E.-S.; Mahdy, A.I.; Ali, G.; El-Megharbel, A.; El-Shrief, E. Analysis of a thick cylindrical FGM pressure vessel with variable parameters using thermoelasticity. Curved Layer. Struct. 2023, 10, 20220207. [Google Scholar] [CrossRef]














| Material | Type | Characteristic Value of Strength fct, fst/N/mm2 | Elasticity Modulus Ec, Est/N/mm2 | Expansion Rate of Corrosion Products n | Spacing between Stirrups s/mm |
|---|---|---|---|---|---|
| Concrete | C55 | 35.5 | Ec = 3.55 × 104 | - | - |
| Longitudinal Bar | HRB400 | 400 | Est1 = 2.0 × 105 | 2.5 | - |
| Stirrup | HPB300 | 300 | Est2 = 2.1 × 105 | - | 25–400 |
| Type | Specimen Number | Longitudinal Bar | Stirrup | Adopted Quantity |
|---|---|---|---|---|
| P | P-0 | 1Φ16 | - | 3 |
| P-100 | 1Φ16 | φ6@100 | 3 | |
| P-70 | 1Φ16 | φ6@70 | 3 | |
| P-50 | 1Φ16 | φ6@50 | 3 | |
| R | R-0 | 1Φ16 | - | 3 |
| R-100 | 1Φ16 | φ6@100 | 3 | |
| R-70 | 1Φ16 | φ6@70 | 3 | |
| R-50 | 1Φ16 | φ6@50 | 3 |
| Water–Cement Ratio | Cement/kg/m3 | Water/kg/m3 | Sand/kg/m3 | Coarse Aggregate/kg/m3 |
|---|---|---|---|---|
| 0.53 | 375 | 200 | 750 | 1125 |
| Specimen 1/kN | Specimen 2/kN | Specimen 3/kN | Average Value/kN | Strength Value/[MPa] |
|---|---|---|---|---|
| 542.9 | 611.7 | 595.4 | 583.3 | 55.42 |
| Type | Nominal Diameter /mm | Yield Load /kN | Yield Strength /[MPa] | Elasticity Modulus /×105 [MPa] |
|---|---|---|---|---|
| HPB300 | 16 | 68.28 | 357.23 | 2.12 |
| 6 | 10.61 | 351.41 | 2.07 | |
| HRB400 | 16 | 100.91 | 571.06 | 2.26 |
| Spacing between Stirrups/mm | c/mm | d/mm | Stirrup Ratio | fc/[MPa] | fct/[MPa] | Ec/GPa | Actual Measured Corrosion Rate/% | Calculated Corrosion Rate/% | Deviation/% |
|---|---|---|---|---|---|---|---|---|---|
| n = 2.5 | |||||||||
| - | 15 | 16 | 0 | 44.328 | 3.343 | 35.382 | 0.628 | 0.641 | 2.03 |
| 100 | 15 | 16 | 0.0957 | 44.328 | 3.343 | 35.382 | 0.815 | 0.732 | 11.37 |
| 70 | 15 | 16 | 0.137 | 44.328 | 3.343 | 35.382 | 0.884 | 0.774 | 14.17 |
| 50 | 15 | 16 | 0.191 | 44.328 | 3.343 | 35.382 | 0.806 | 0.832 | 3.14 |
| Spacing between Stirrups/mm | c/mm | d/mm | Stirrup Ratio | fc/[MPa] | fct/[MPa] | Ec/GPa | Actual Measured Corrosion Rate/% | Calculated Corrosion Rate/% | Deviation/% |
|---|---|---|---|---|---|---|---|---|---|
| n = 2.5 | |||||||||
| - | 15 | 16 | 0 | 44.328 | 3.343 | 35.382 | 0.665 | 0.641 | 3.74 |
| 100 | 15 | 16 | 0.0957 | 44.328 | 3.343 | 35.382 | 0.651 | 0.732 | 11.07 |
| 70 | 15 | 16 | 0.137 | 44.328 | 3.343 | 35.382 | 0.710 | 0.774 | 8.27 |
| 50 | 15 | 16 | 0.191 | 44.328 | 3.343 | 35.382 | 0.810 | 0.832 | 2.64 |
| Scholar | c/mm | d/mm | Stirrup Ratio | fc/[MPa] | fct/[MPa] | Ec/GPa | The xcr from the Experiment/μm | Calculated xcr/μm | |
|---|---|---|---|---|---|---|---|---|---|
| n = 2.5 | n = 3 | ||||||||
| Andrade [18] | 20 | 16 | - | - | 3.55 | 36 | 14.4–17.9 | 25.5 | 16.7 |
| 30 | 16 | - | - | 3.55 | 36 | 21.3 | 32.6 | 20.9 | |
| Liu [19] | 27 | 16 | - | 31.5 | 3.3 | 27 | 31.4 | 31.9 | 20.6 |
| 48 | 16 | - | 31.5 | 3.3 | 27 | 51.6 | 55.8 | 34.7 | |
| 70 | 16 | - | 31.5 | 3.3 | 27 | 73.8 | 93.8 | 56.6 | |
| Zhou [34] | 20 | 12 | 50 | - | 2.01 | 30 | 26.3–32.9 | 30.8 | 19.5 |
| 20 | 12 | 70 | - | 2.01 | 30 | 19.9 | 29.1 | 18.6 | |
| 20 | 12 | 100 | - | 2.01 | 30 | 13.1–16.0 | 27.1 | 17.5 | |
| 20 | 12 | 150 | - | 2.01 | 30 | 13.1–16.0 | 25.6 | 16.7 | |
| Diameter/mm | 4.24 | 6 | 8.49 |
|---|---|---|---|
| Spacing/mm | |||
| Without stirrups | A | ||
| 100 | B-1 | B-2 | B-3 |
| 70 | C-1 | C-2 | C-3 |
| 50 | D-1 | D-2 | D-3 |
| Spacing /mm | Sectional Area/mm2 | The Value of the Theoretical Model | The Value of ABAQUS | Deviation/% |
|---|---|---|---|---|
| 100 | 18 | 1.24 | 1.12 | 9.41 |
| 36 | 1.44 | 1.18 | 18.16 | |
| 72 | 1.98 | 1.35 | 32.11 | |
| 70 | 18 | 1.35 | 1.19 | 12.01 |
| 36 | 1.66 | 1.32 | 20.36 | |
| 72 | 2.20 | 1.51 | 31.42 | |
| 50 | 18 | 1.44 | 1.24 | 14.06 |
| 36 | 1.98 | 1.72 | 13.10 | |
| 72 | 3.13 | 2.82 | 10.05 |
Disclaimer/Publisher’s Note: The statements, opinions and data contained in all publications are solely those of the individual author(s) and contributor(s) and not of MDPI and/or the editor(s). MDPI and/or the editor(s) disclaim responsibility for any injury to people or property resulting from any ideas, methods, instructions or products referred to in the content. |
© 2024 by the authors. Licensee MDPI, Basel, Switzerland. This article is an open access article distributed under the terms and conditions of the Creative Commons Attribution (CC BY) license (https://creativecommons.org/licenses/by/4.0/).
Share and Cite
Yan, X.; Tian, Y.; Yan, D.; Pan, L.; Zhou, Q.; Zhang, G.; Pei, L.; Lu, X.; Jiang, B.; Pan, W.; et al. Corrosion-Induced Cracking Model of Concrete Considering a Transverse Constraint. Materials 2024, 17, 3217. https://doi.org/10.3390/ma17133217
Yan X, Tian Y, Yan D, Pan L, Zhou Q, Zhang G, Pei L, Lu X, Jiang B, Pan W, et al. Corrosion-Induced Cracking Model of Concrete Considering a Transverse Constraint. Materials. 2024; 17(13):3217. https://doi.org/10.3390/ma17133217
Chicago/Turabian StyleYan, Xinrong, Ye Tian, Dongming Yan, Litan Pan, Qiujing Zhou, Guoyi Zhang, Liang Pei, Xiang Lu, Bo Jiang, Weifeng Pan, and et al. 2024. "Corrosion-Induced Cracking Model of Concrete Considering a Transverse Constraint" Materials 17, no. 13: 3217. https://doi.org/10.3390/ma17133217
APA StyleYan, X., Tian, Y., Yan, D., Pan, L., Zhou, Q., Zhang, G., Pei, L., Lu, X., Jiang, B., Pan, W., Wang, D., Chen, B., Li, Y., & Luo, L. (2024). Corrosion-Induced Cracking Model of Concrete Considering a Transverse Constraint. Materials, 17(13), 3217. https://doi.org/10.3390/ma17133217

