Material Testing of Historic Bricks and Mortars in Degraded Masonry Structures
Abstract
1. Introduction
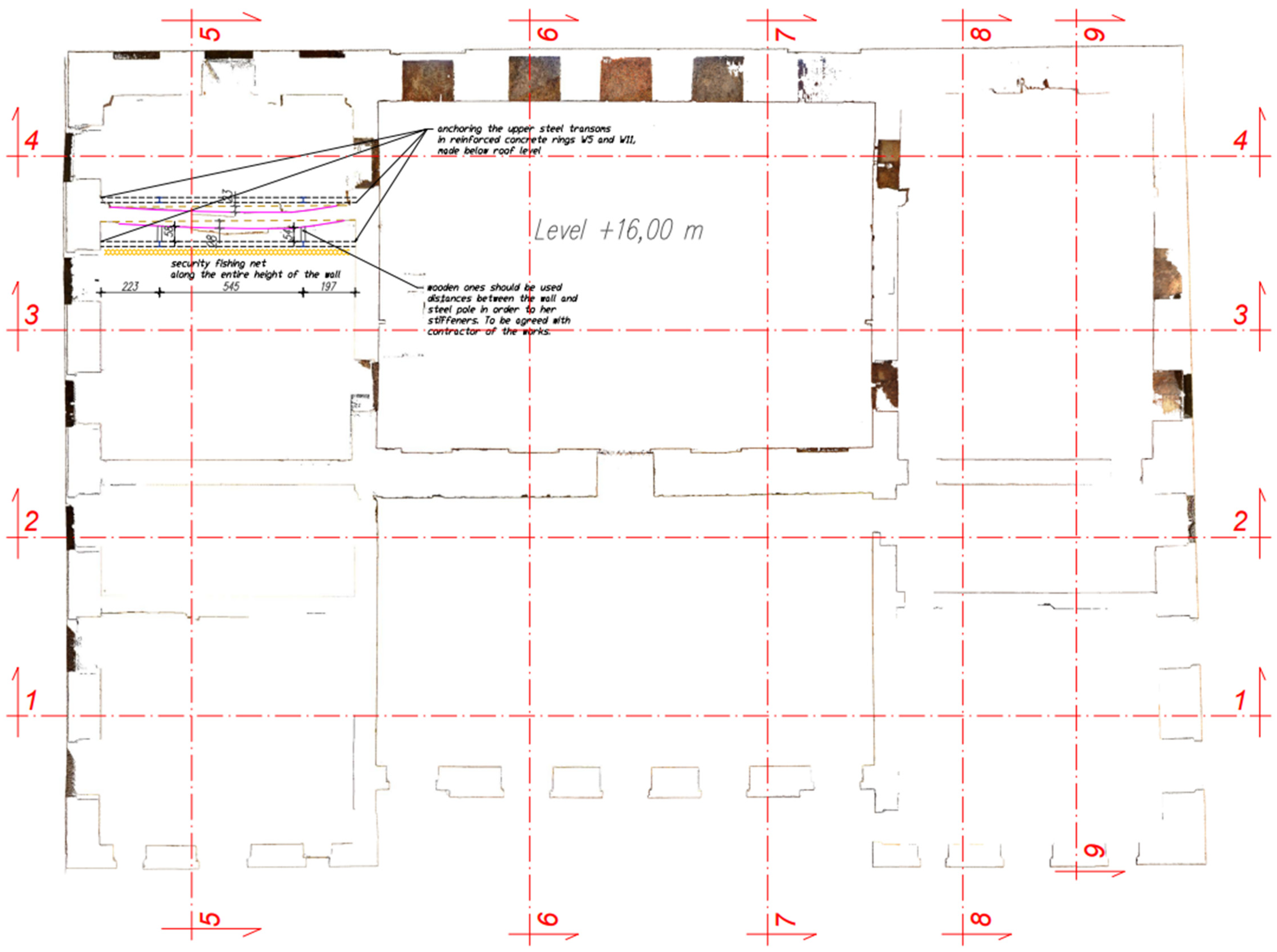
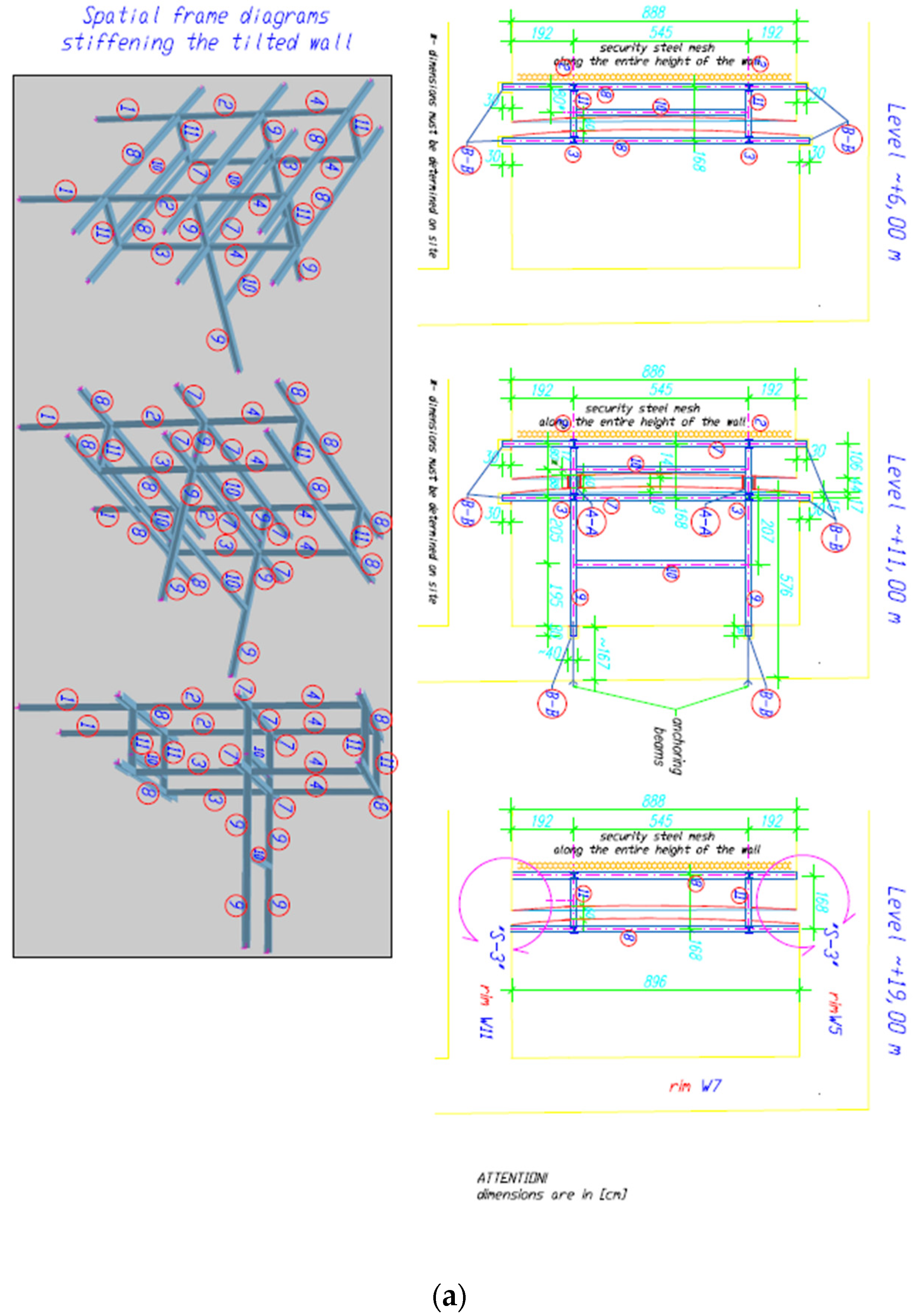
2. Case Study
3. Review of the Literature
4. Materials and Methods
4.1. Materials
4.2. Methods
4.2.1. Testing the Strength of Bricks
4.2.2. Testing the Degree of Moisture of Bricks and Salt Content
- wm—mass moisture, w %
- mw—wet weight of wood (sample), in g (kg)
- ms—mass of wood (sample) dried to solid mass, in g (kg)
- −
- Preliminary ad hoc stamping on both sides;
- −
- Cleaning the floor of the rooms and setting up scaffolding;
- −
- −
- Placing OSB3 boards on platforms to reduce the effects of the impact of a falling wall fragment—they may break, which will allow the rubble to slide more gently to the lower level and the ground floor;
- −
- Filling larger gaps between vault bricks with expansive mortars based on lime, cement, and trass;
- −
- Introduction of reinforcements on damaged wall surfaces using C-FRCM meshes on inorganic mortars; *
- −
- Removal of temporary stamping structures and scaffolding.
5. Results
6. Discussion and Conclusions
Author Contributions
Funding
Institutional Review Board Statement
Informed Consent Statement
Data Availability Statement
Conflicts of Interest
References
- Bajno, D. Rewitalizacja Konstrukcji Budowlanych w Obiektach Zabytkowych; Wydawnictwa Uczelniane Uniwersytetu Technologiczno-Przyrodniczego: Bydgoszcz, Poland, 2013. [Google Scholar]
- Menzel, C.A. Der Steinbau. Handbuch Fuer Architekten, Bauhandwerker und Bauschueler; Karlsruhe, J., Ed.; Blelefeld’s Verlag: London, UK, 1885. [Google Scholar]
- Bungey, J.; Millard, S.; Gratham, M. Testing of Concrete in Structures; Taylor&Francis: London, UK; New York, NY, USA, 2006. [Google Scholar]
- Carino, N.J. Nondestructive Test Methods, Concrete Construction Engineering Handbook; CRC Press: Boca Raton, FL, USA, 1999. [Google Scholar]
- Davis, A.G. The non-destructive impulse response test in North America: 1985–2001. NDTE Int. 2003, 36, 185–193. [Google Scholar] [CrossRef]
- Drobiec, Ł.; Jasiński, R.; Piekarczyk, A. Diagnostyka Konstrukcji żelbetowych. Metodologia, Badania Polowe, Badania Laboratoryjne Betonu i Stali, v. 1; Wydawnictwo Naukowe PWN: Warszawa, Poland, 2010. [Google Scholar]
- Kozak, R. Budownictwo Betonowe. Tom VIII. Badanie Materiałów, Elementów i konstrukcji; Arkady: Warszawa, Poland, 1970. [Google Scholar]
- American Concrete Institute. American Concrete Institute Report ACI 228.2R-98. Nondestructive Test Methods for Evaluation of Concrete in Structures; ACI: Farmington Hills, MI, USA, 1998. [Google Scholar]
- Aliabdo, A.A.E.; Elmoaty, A.E.M.A. Reliability of using nondestructive tests to estimate compressive strength of building stones and bricks. Alex. Eng. J. 2012, 51, 193–203. [Google Scholar] [CrossRef]
- Brencich, A.; Sterpi, E. Compressive Strength of Solid Clay Brick Masonry. Calibration of Experimental Tests and Theoretical Issues. Structural Analysis of Historical Constructions. 2006, pp. 757–766. Available online: https://www.researchgate.net/publication/281109671_Compressive_Strength_of_Solid_Clay_Brick_Masonry_Calibration_of_Experimental_Tests_and_Theoretical_Issues (accessed on 20 April 2024).
- Debailleux, L. Schmidt hammer exposure dating for brick masonry. Geochronometria 2020, 47, 54–62. [Google Scholar] [CrossRef]
- Bajno, D.; Bednarz, Ł.; Nowak, T. Damp proofing of heritage buildings located in historical town centres. In Proceedings of the SAHC2014—9th International Conference on Structural Analysis of Historical Constructions, Mexico City, Mexico, 14–17 October 2014; pp. 1–7. [Google Scholar]
- Bednarz, Ł.; Bajno, D. Remains of urban heritage defence structures—Conservation, monitoring and use. In Proceedings of the Sahc2014—9th International Conference on Structural Analysis of Historical Constructions, Mexico City, Mexico, 14–17 October 2014; pp. 1–12. [Google Scholar]
- Domasławski, W.; Kęsy-Lewandowska, M.; Łukaszewicz, J. Badania nad Konserwacją Murów Ceglanych; Uniwersytet Mikołaja Kopernika: Toruń, Poland, 2004. [Google Scholar]
- Crocci, G. The Conservation and Structural Restoration of Architectural Heritage; WIT Press: Southampton, UK, 1998. [Google Scholar]
- Bajno, D.; Grzybowska, A.; Gajewski, J. Problems with Maintaining in Required Technical Condition and Revitalization of Medieval Defense Fortries. In Key Engineering Materials; Trans Tech Publications Ltd.: Stafa-Zurich, Switzerland, 2019; Volume 817, pp. 665–672. [Google Scholar] [CrossRef]
- Jasienko, J.; Bednarz, Ł.; Bajno, D. Conservation of the structure and materials of historic masonry walls. In Konferencja MURICO 2014 (Włochy) Engineering Materials; Trans Tech Publications: Stafa-Zurich, Switzerland, 2015; Volume 624, pp. 354–362. [Google Scholar] [CrossRef]
- Eurokod 6 Projektowanie Konstrukcji Murowych Część1-1: Reguły Ogólne Dla Zbrojonych i Niezbrojonych Konstrukcji Murowych. Available online: https://integro.bs.katowice.pl/33005402682/normy/eurokod-6?contrast=default (accessed on 20 April 2024).
- Construction Law Act: Ustawa z dnia 7 lipca 1994 roku—Prawo budowlane (jednolity tekst: Dz.U. z 2019 roku, poz. 1186 ze zmianami, tj. zmiany: Dz.U. z 2019 roku, poz, 1309, 1524, 1696, 1712, 1815, 2166, 2170). Available online: https://isap.sejm.gov.pl/isap.nsf/DocDetails.xsp?id=wdu19940890414 (accessed on 20 April 2024).
- Act on the protection and care of monuments: Ustawa z dnia 23 lipca 2003 r. o ochronie zabytków i opiece nad zabytkami (jednolity tekst: Dz.U. z 2018 roku, poz. 2067, zmiany: Dz.U. z 2008 r. poz. 2245 i z 2019 roku poz. 730 i poz. 1696). Available online: https://isap.sejm.gov.pl/isap.nsf/DocDetails.xsp?id=wdu20031621568 (accessed on 20 April 2024).
- Available online: https://polska-org.pl/9789739,foto.html?idEntity=7340286 (accessed on 29 March 2024).
- Available online: https://www.google.com/search?client=firefox-b-d&q=zamek+w+s%C5%82o%C5%84sku#vhid=xi1TkQjvbeLxsM&vssid=l&ip=1 (accessed on 29 March 2024).
- Gorek, M. Skanowanie Laserowe 3D Obiektu Wraz z Opracowaniem Chmury Punktów; Gorek Restauro Sp. z o. o.: Warszawa, Poland, 2022. [Google Scholar]
- JGJ/T 23-2011; Technical Specification for Inspecting of Concrete Compressive Strength by Rebound Method. MOHURD: Beijing, China, 2011.
- Runkiewicz, L.; Rodzik, W. Badania Nieniszczące Wytrzymałości Murowanych Obiektów Zabytkowych. Inżynieria i Budownictwo, No 2/1990.
- Kubissa, J.; Strzelczyk, M. Nieniszczące badania wytrzymałości cegieł ceramicznych, ”Inżynieria i budownictwo” No. 10-11/1987.
- Matysek, P. Identyfikacja wytrztrzymałości na ściskanie i odkształcalności murów ceglanych w obiektach istniejących. Wydawnictwo Politechniki Krakowskiej: Kraków, Poland, 2014; pp. 103–105. Available online: https://repozytorium.biblos.pk.edu.pl/redo/resources/25701/file/suwFiles/MatysekP_IdentyfikacjaWytrzymalosci.pdf (accessed on 20 April 2024).
- Instrukcja stosowania młotków Schmidta do nieniszczącej kontroli jakości betonu w konstrukcji, Instytut Techniki Budowlanej, Warszawa 1977. Available online: https://www.studocu.com/pl/document/politechnika-warszawska/budownictwo-ogolne/instrukcja-itb-210-instrukcja-stosowania-mlotkow-schmidta-do-nieniszczacej-kontroli-jakosci-betonu-w-konstrukcji-warszawa-1977/97134970 (accessed on 20 April 2024).
- Filipowicz, P. Próba Zastosowania Młotka Schmidta do Badań Architektonicznych Ceglanych Murów. Ochr. Zabyt. 2009, 1, 38–42. Available online: http://cejsh.icm.edu.pl/cejsh/element/bwmeta1.element.desklight-a4a5324b-7fe0-46ab-a18f-d3e13b8e263e (accessed on 20 April 2024).
- Mengistu, G.M.; Gyurkó, Z.; Nemes, R. The Influence of the Rebound Hammer Test Location on the Estimation of Compressive Strength of a Historical Solid Clay Brick. Solids 2023, 4, 71–86. [Google Scholar] [CrossRef]
- Łątka, D. Rozprawa Doktorska ”Wytrzymałość i Odkształcalność Ceglanego Muru—Ocena” na Podstawie Badań Nieniszczących i Małoniszczących”, Politechnika Krakowska, Kraków 2023 (Strength and Deformability of Brick Masonry—Evaluation Based on Nondestructive and Semidestructive Tests). Available online: https://repozytorium.biblos.pk.edu.pl/resources/47383 (accessed on 20 April 2024).
- Matysek, P.; Łątka, D. Comments on the application of the sclerometric method in the diagnostics of brick masonry. in Structural analysis of historical constructions. In Proceedings of the International Conference on Structural Analysis of Historical Constructions, SAHC 2012, Wroclaw, Poland, 15–17 October 2012; Volume 3, pp. 2471–2479. [Google Scholar]
- PN-EN 12504-2:2021-12; Badania Betonu w Konstrukcjach—Część 2: Badanie Nieniszczące—Oznaczanie Liczby Odbicia. PKN: Oklahoma City, OK, USA, 2021.
- ASTM C805/C805M; Standard Test Method for Rebound Number of Hardened Concrete. ASTM International: West Conshohocken, PA, USA, 2018. [CrossRef]
- UIC 778-3; Recommendations for the Inspection, Assessment and Maintenance of Masonry Arch Bridges. International Technical Standard: Zdar nad Sazavou, Czech Republic, 2019.
- RILEM Technical Committees. RILEM TC 127-MS.D.2: Determination of Masonry Rebound Hardness. Mater. Struct. 1998, 31, 375–377. [Google Scholar] [CrossRef]
- Schrank, R. Materialeigenschaften historischen Ziegelmauerwerks im Hinblick auf Tragfähigkeitsberechnungen am Beispiel der Leipziger Bundwand. Das Mauerw.–Z. Technol. I Archit. 2002, 10, 201–206. [Google Scholar] [CrossRef]
- Egermann, R. Zur Nachträglichen Bestimmung der Mechanischen Eigenschaften von Mauerziegeln; Ernst und Sohn: Berlin, Germany, 1992. [Google Scholar]
- Brozovsky, J.; Zach, J. Evaluation of Technical Condition of Mansory Structures. In Proceedings of the 15th International Brick and Block Masonry Conference, Santa Caterina, Brazil, 3–6 June 2012. [Google Scholar]
- CSN 731373; Nedestruktivní zkoušení betonu—Tvrdoměrné metody zkoušení betonu. TECHNOR print, s.r.o.: Hradec Králové, Czechia, 2011.
- EN 772-1; Metody badań elementów murowych—Część 1: Określenie wytrzymałości na ściskanie. PKN: Oklahoma City, OK, USA, 2001.
- Roknuzzaman, M.; Hossain, B.; Mostazid, I.; Haque, R.R. Application of Rebound Hammer Method for Estimating Compressive Strength of Bricks. J. Civ. Eng. Res. 2017, 7, 99–104. [Google Scholar] [CrossRef]
- Jasieńko, J.; Matkowski, Z. Zasolenie i Zawilgocenie Murów Ceglanych w Obiektach Zabytkowych—Diagnostyka, Metodyka badań, Techniki Rehabilitacji. Wiadomości Konserwatorskie No. 14, Kraków 2003. Available online: https://www.semanticscholar.org/paper/Zasolenie-i-zawilgocenie-mur%C3%B3w-ceglanych-w-%E2%80%93-bada%C5%84%2C-Jasie%C5%84ko-Matkowski/286ec64bcb4fa52319fca931223da8ba681ef94c#citing-papers (accessed on 20 April 2024).

















| Sample No. | Sample Weight | Average Height/Length of the Prepared Sample | Cross-Sectional Area | Destructive Force | Compressive Strength |
|---|---|---|---|---|---|
| [kg] | [mm] | [mm2] | [kN] | [N/mm2] | |
| 1 | 0.867 | 98/98 | 7543 | 37.8 | 5.0 |
| 2 | 1.387 | 154/98 | 7543 | 83.1 | 11.2 |
| 3 | 1.02 | 122/98 | 7543 | 39.4 | 5.3 |
| 4 | 0.795 | 98/85 | 7543 | 37.2 | 4.9 |
| 5 | 0.946 | 99/98 | 7543 | 40.3 | 5.5 |
| 6 | 0.835 | 89/89 | 7543 | 42.1 | 5.4 |
| 7 | 0.963 | 96/89 | 7543 | 60.4 | 7.2 |
| 8 | 1.234 | 121/92 | 7543 | 41.1 | 5.6 |
| 9 | 1.097 | 101/90 | 7543 | 68.0 | 6.1 |
| 10 | 1.125 | 124/93 | 7543 | 38.2 | 5.1 |
| Sample No. | Moisture | Mark | Moisture Meter Reading |
|---|---|---|---|
| 1 | 5.56% | moderately moist | ≤650 |
| 2 | 15.98% | wet | ~999 |
| 3 | 16.82% | wet | ~999 |
| Type of Salt | Determined Values (% of Mass) | Compartment Qualifying (% of Mass) | Mark | ||
|---|---|---|---|---|---|
| Sample No. 1 | Sample No. 2 | Sample No. 3 | |||
| nitrates NO3 | 0.005% | 0.005% | - | <0.100 | low |
| sulfur SO4 | 0.2% | 0.2% | - | <0.500 | low |
| Chlorides Cl | 0% | 0% | - | <0.500 | low |
| Name | Description |
|---|---|
|
|
|
|
|
|
|
|
| |
| |
Disclaimer/Publisher’s Note: The statements, opinions and data contained in all publications are solely those of the individual author(s) and contributor(s) and not of MDPI and/or the editor(s). MDPI and/or the editor(s) disclaim responsibility for any injury to people or property resulting from any ideas, methods, instructions or products referred to in the content. |
© 2024 by the authors. Licensee MDPI, Basel, Switzerland. This article is an open access article distributed under the terms and conditions of the Creative Commons Attribution (CC BY) license (https://creativecommons.org/licenses/by/4.0/).
Share and Cite
Bajno, D.; Schabowicz, K.; Grzybowska, A. Material Testing of Historic Bricks and Mortars in Degraded Masonry Structures. Materials 2024, 17, 3192. https://doi.org/10.3390/ma17133192
Bajno D, Schabowicz K, Grzybowska A. Material Testing of Historic Bricks and Mortars in Degraded Masonry Structures. Materials. 2024; 17(13):3192. https://doi.org/10.3390/ma17133192
Chicago/Turabian StyleBajno, Dariusz, Krzysztof Schabowicz, and Agnieszka Grzybowska. 2024. "Material Testing of Historic Bricks and Mortars in Degraded Masonry Structures" Materials 17, no. 13: 3192. https://doi.org/10.3390/ma17133192
APA StyleBajno, D., Schabowicz, K., & Grzybowska, A. (2024). Material Testing of Historic Bricks and Mortars in Degraded Masonry Structures. Materials, 17(13), 3192. https://doi.org/10.3390/ma17133192

