Failure Analysis of Hat-Stringer-Stiffened Aircraft Composite Panels under Four-Point Bending Loading
Abstract
:1. Introduction
2. Theoretical Model for Debonding Failure of Composite Materials Considering Fatigue Damage
2.1. Cohesive Zone Model
2.1.1. Bilinear Constitutive Law
2.1.2. Interface Failure Criteria
2.2. Bilinear Cohesive Zone Model with Fatigue Damage
- Displacement increment,
- Stress increment,
- Maximum stress of the cohesive element,
- H Heaviside function,
- Sum of the cumulative displacement increment,
- Characteristic displacement of the cohesive zone model.
- δnormal
- normal displacement
- Tnormal
- normal stress
- δshear
- shear displacement
- Tshear
- shear stress
3. Materials and Methods
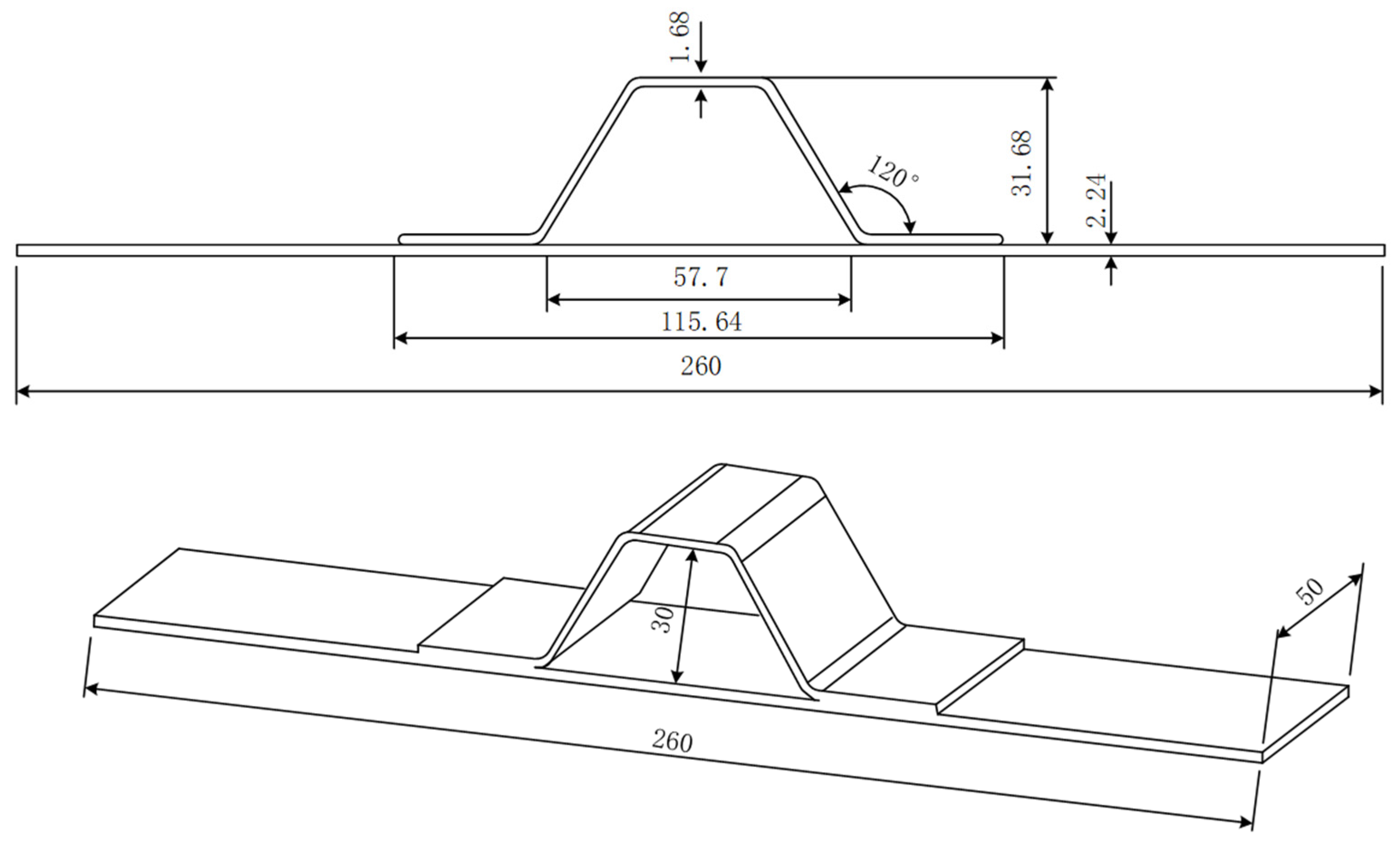
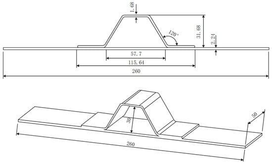
3.1. Specimen Introduction
3.2. Test Set-Up and Method
4. Finite Element Model
5. Results and Discussion
5.1. Experimental and Numerical Results of Static Tests
5.1.1. Experimental Results
5.1.2. Numerical Results
5.2. Experimental and Numerical Results of Fatigue Tests
5.2.1. Experimental Results
5.2.2. Numerical Results
6. Conclusions
- (a)
- Based on the bilinear constitutive law of the cohesive zone model and the interface failure criterion, a cohesive zone model considering fatigue damage is established, which effectively combines the traditional cohesive zone model with the damage accumulation.
- (b)
- Specimen information is introduced. Test set-up is designed for four-point bending static and fatigue tests of the composite hat-shaped girders, which are performed referring to the standard ASTM D7264.
- (c)
- A 3D finite element model is established for the four-point bending of hat-shaped long truss glued structures. Only a quarter of the specimen is modelled because the structure of the tested specimen and the loading form are completely symmetrical. The co-bonding interface between the hat-shaped stringer and the skin is simulated by inserting COH3D8 cohesive elements with zero thickness.
- (d)
- The main failure modes of the static tests of the hat-shaped truss structure are the delamination of the skin and the fiber fracture of the glued parts. The initial debonding load and corresponding displacement obtained from numerical results are 944.19 N and 11.49 mm, respectively. Relative errors with the average value of initial debonding load (897.3 N) and the average value of initial debonding displacement (10.8 mm) from the static tests are within 10%.
- (e)
- The results of the fatigue tests show that the R zone of the hat-shaped truss and the free edge of the truss flange and the skin connected are the weakest parts of the structure that are most likely to cause fatigue damage. The average fatigue failure life of the studied interface is 33,085 cycles, which is also close to the prediction with relative errors within 10%. The fatigue failure mode is the delamination of the skin and the debonding between the girder flange and the skin. In addition, the accumulation of fatigue damage often starts from both sides of the bonding interface, and gradually propagates to the middle of the interface with the increase of the number of cycles, until the final debonding failure.
- (f)
- The proposed theoretical model can reasonably describe the fatigue failure of the glued interface. The numerical method proposed in this study can provide accurate prediction for the static failure behavior and fatigue life of hat-shaped girder structures.
Author Contributions
Funding
Institutional Review Board Statement
Informed Consent Statement
Data Availability Statement
Conflicts of Interest
References
- Ganesan, C.; Joanna, P.S.; Singh, D. Fatigue life modeling of FRP composites: A comprehensive review. Mater. Today Proc. 2021, 1, 555–561. [Google Scholar]
- Mou, H.; Jiang, X.; Feng, Z. Research status and future development of crashworthiness of civil aircraft fuselage structures: An overview. Prog. Aerosp. Sci. 2020, 119, 100644. [Google Scholar] [CrossRef]
- Zhang, Y.X.; Zhu, Z.; Joseph, R.; Shihan, I.J. Damage to aircraft composite structures caused by directed energy system: A literature review. Def. Technol. 2021, 4, 20. [Google Scholar] [CrossRef]
- Zhang, X.; Feng, R.; Zhang, Y.; Guo, W.; Liu, F. Compression Strength Analysis and Test of CFRP Hat-stringer on Civil Aircraft. Mater. Rep. 2019, S2, 215–221. [Google Scholar]
- Zhao, L.; Gong, Y.; Qin, T.; Mehmood, S.; Zhang, J. Failure prediction of out-of-plane woven composite joints using cohesive element. Compos. Struct. 2013, 106, 407–416. [Google Scholar] [CrossRef]
- Yang, N. Composite Structures for New Generation Large Commercial Jet. Acta Aeronaut. Et Astronaut. Sin. 2008, 3, 596–604. [Google Scholar]
- Bertolini, J.; Castanié, B.; Barrau, J.J.; Navarro, J.P. An experimental and numerical study on omega stringer debonding. Compos. Struct. 2008, 1, 233–242. [Google Scholar] [CrossRef]
- Sellitto, A.; Riccio, A.; Russo, A.; Zarrelli, M.; Toscano, C.; Lopresto, V. Compressive behaviour of a damaged omega stiffened panel: Damage detection and numerical analysis. Compos. Struct. 2019, 209, 300–316. [Google Scholar] [CrossRef]
- Sepe, R.; De Luca, A.; Lamanna, G.; Caputo, F. Numerical and experimental investigation of residual strength of a LVI damaged CFRP omega stiffened panel with a cut-out. Compos. Part B 2016, 102, 38–56. [Google Scholar] [CrossRef]
- Riccio, A.; Sellitto, A.; Saputo, S.; Russo, A.; Zarrelli, M.; Lopresto, V. Modelling the damage evolution in notched omega stiffened composite panels under compression. Compos. Part B 2017, 126, 60–71. [Google Scholar] [CrossRef]
- Riccio, A.; Ricchiuto, R.; Saputo, S.; Raimondo, A.; Caputo, F.; Antonucci, V.; Lopresto, V. Impact behaviour of omega stiffened composite panels. Prog. Aerosp. Sci. 2016, 81, 41–48. [Google Scholar] [CrossRef]
- Ji, R.; Zhao, L.; Wang, K.; Liu, F.; Gong, Y.; Zhang, J. Effects of debonding defects on the postbuckling and failure behaviors of composite stiffened panel under uniaxial compression. Compos. Struct. 2021, 256, 113121. [Google Scholar] [CrossRef]
- Vescovini, R.; Bisagni, C. Semi-analytical buckling analysis of omega stiffened panels under multi-axial loads. Compos. Struct. 2015, 120, 285–299. [Google Scholar] [CrossRef]
- Castro, S.G.P.; Donadon, M.W. Assembly of semi-analytical models to address linear buckling and vibration of stiffened composite panels with debonding defect. Compos. Struct. 2017, 160, 232–247. [Google Scholar] [CrossRef]
- Bisagni, C.; Vescovini, R.; Dávila, C.G. Single-Stringer Compression Specimen for the Assessment of Damage Tolerance of Postbuckled Structures. J. Aircr. 2011, 48, 495–502. [Google Scholar] [CrossRef]
- Dávila, C.G.; Bisagni, C. Fatigue life and damage tolerance of postbuckled composite stiffened structures with initial delamination. Compos. Struct. 2017, 161, 73–84. [Google Scholar] [CrossRef]
- Raimondo, A.; Bisagni, C. Fatigue analysis of a post-buckled composite single-stringer specimen taking into account the local stress ratio. Compos. Part B Eng. 2020, 193, 108000. [Google Scholar] [CrossRef]
- Raimondo, A.; Doesburg, S.A.; Bisagni, C. Numerical study of quasi-static and fatigue delamination growth in a post-buckled composite stiffened panel. Compos. Part B Eng. 2020, 182, 107589. [Google Scholar] [CrossRef]
- Mo, Y.; Ge, D.; He, B. Experiment and optimization of the hat-stringer-stiffened composite panels under axial compression. Compos. Part B 2016, 84, 285–293. [Google Scholar] [CrossRef]
- Dávila, C.G.; Camanho, P.P.; Turon Travesa, A. Cohesive Elements for Shells; Technical Publication; NASA Technical Reports Server: Washington, CA, USA, 2007. [Google Scholar]
- Yin, S.; Gong, Y.; Li, W.; Zhao, L.; Zhang, J.; Hu, N. A novel four-linear cohesive law for the delamination simulation in composite DCB laminates. Compos. Part B Eng. 2020, 180, 107526. [Google Scholar] [CrossRef]
- Gong, Y.; Hou, Y.; Zhao, L.; Li, W.; Zhang, J.; Hu, N. A modified mode I cohesive zone model for the delamination growth in DCB laminates with the effect of fiber bridging. Int. J. Mech. Sci. 2020, 176, 105514. [Google Scholar] [CrossRef]
- Camanho, P.P.; Davila, C.G.; De Moura, M.F. Numerical simulation of mixed-mode progressive delamination in composite materials. J. Compos. Mater. 2003, 16, 1415–1438. [Google Scholar] [CrossRef]
- Reedy, E.D.; Mello, F.J.; Guess, T.R. Modeling the initiation and growth of delaminations in composite structures. J. Compos. Mater. 1997, 8, 812–831. [Google Scholar] [CrossRef] [Green Version]
- Gong, Y.; Zhao, L.; Zhang, J.; Wang, Y.; Hu, N. Delamination propagation criterion including the effect of fiber bridging for mixed-mode I/II delamination in CFRP multidirectional laminates. Compos. Sci. Technol. 2017, 151, 302–309. [Google Scholar] [CrossRef]
- Gong, Y.; Zhao, L.; Zhang, J.; Hu, N. An improved power law criterion for the delamination propagation with the effect of large-scale fiber bridging in composite multidirectional laminates. Compos. Struct. 2018, 184, 961–968. [Google Scholar] [CrossRef]
- Wu, E.M.; Reuter, R.C., Jr. Crack Extension in Fiberglass Reinforced Plastics; University of Illinois: Champaign, IL, USA, 1965. [Google Scholar]
- Benzeggagh, M.L.; Kenane, M. Measurement of mixed-mode delamination fracture toughness of unidirectional glass/epoxy composites with mixed-mode bending apparatus. Compos. Sci. Technol. 1996, 4, 439–449. [Google Scholar] [CrossRef]
- Roe, K.L.; Siegmund, T. An irreversible cohesive zone model for interface fatigue crack growth simulation. Eng. Fract. Mech. 2003, 2, 209–232. [Google Scholar] [CrossRef]
- Flexural Properties Testing of Polymer Matrix Composite Materials; ASTM D7264; ASTM International: West Conshohocken, PA, USA, 2015.
- Brunner, A.J.; Murphy, N.; Pinter, G. Development of a standardized procedure for the characterization of interlaminar delamination propagation in advanced composites under fatigue mode I loading conditions. Eng. Fract. Mech. 2009, 18, 2678–2689. [Google Scholar] [CrossRef]
- Hojo, M.; Matsuda, S.; Tanaka, M.; Ochiai, S.; Murakami, A. Mode I delamination fatigue properties of interlayer-toughened CF/epoxy laminates. Compos. Sci. Technol. 2005, 5, 665–675. [Google Scholar] [CrossRef]
- Zhao, L.; Gong, Y.; Zhang, J.; Chen, Y.; Fei, B. Simulation of delamination growth in multidirectional laminates under mode I and mixed mode I/II loadings using cohesive elements. Compos. Struct. 2014, 9, 509–522. [Google Scholar] [CrossRef]












| Young Modulus and Poisson Ratio | Value |
|---|---|
| E11/GPa | 163.5 |
| E22/GPa | 9.00 |
| ν12 | 0.32 |
| G12/GPa | 4.14 |
| G23/GPa | 3.08 |
| Structure | Stacking Sequence | Layer Number | Nominal Thickness/mm |
|---|---|---|---|
| Skin | [45/−45/−45/90/45/0] | 12 | 2.244 |
| Truss | [45/0/0/−45/90/−45/0/0/45] | 9 | 1.683 |
| Interfacial Parameters | Value |
|---|---|
| /MPa | 20 |
| /MPa | 30 |
| /MPa | 30 |
| Normal tensile fracture energy GIC/(N·mm−1) | 0.2 |
| Longitudinal shear fracture energy GIIC/(N·mm−1) | 2 |
| Transverse shear fracture energy GIIIC/(N·mm−1) | 2 |
| Specimen No. | Initial Debonding Load (N) | Initial Debonding Displacement (mm) |
|---|---|---|
| 1# | 935.6 | 11.3 |
| 2# | 846.8 | 10.1 |
| 3# | 909.5 | 11.1 |
| Average | 897.3 | 10.8 |
| CoV | 4.15% | 4.86% |
| Test Specimen No. | Cycles | Main Failure Mode |
|---|---|---|
| F-1# | 31,990 | Debonding at the R zone |
| F-2# | 16,738 | Delamination at the R zone |
| F-3# | 23,361 | Delamination at the R zone |
| F-4# | 46,001 | Debonding at the free edge |
| F-5# | 28,460 | Intralaminar delamination |
| F-6# | 48,327 | Delamination at the R zone |
| F-7# | 36,717 | Delamination at the R zone |
| Average | 33,085 |
Publisher’s Note: MDPI stays neutral with regard to jurisdictional claims in published maps and institutional affiliations. |
© 2022 by the authors. Licensee MDPI, Basel, Switzerland. This article is an open access article distributed under the terms and conditions of the Creative Commons Attribution (CC BY) license (https://creativecommons.org/licenses/by/4.0/).
Share and Cite
Li, B.; Gong, Y.; Gao, Y.; Hou, M.; Li, L. Failure Analysis of Hat-Stringer-Stiffened Aircraft Composite Panels under Four-Point Bending Loading. Materials 2022, 15, 2430. https://doi.org/10.3390/ma15072430
Li B, Gong Y, Gao Y, Hou M, Li L. Failure Analysis of Hat-Stringer-Stiffened Aircraft Composite Panels under Four-Point Bending Loading. Materials. 2022; 15(7):2430. https://doi.org/10.3390/ma15072430
Chicago/Turabian StyleLi, Binkai, Yu Gong, Yukui Gao, Mengqing Hou, and Lei Li. 2022. "Failure Analysis of Hat-Stringer-Stiffened Aircraft Composite Panels under Four-Point Bending Loading" Materials 15, no. 7: 2430. https://doi.org/10.3390/ma15072430
APA StyleLi, B., Gong, Y., Gao, Y., Hou, M., & Li, L. (2022). Failure Analysis of Hat-Stringer-Stiffened Aircraft Composite Panels under Four-Point Bending Loading. Materials, 15(7), 2430. https://doi.org/10.3390/ma15072430

