Impact of Dynamic Soil-Structure Interaction on Performance of a Single Span Footbridge with Overhangs Subjected to Mining-Induced Shocks
Abstract
1. Introduction
2. Materials and Methods
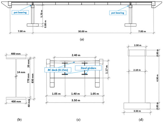
2.1. Structural Layout and Material Data of the Footbridge
2.2. Experimental Set-Up
3. Mining-Induced Shock Scenario
4. Adopted Finite Element Model for Numerical Analyses
5. Soil Characterization vs. Springs’ Constants Estimation
6. Results and Discussion
6.1. Experimental Identification of Modal Parameters of the Footbridge
6.2. Preliminary Finite Element Analysis and Correlation with Experimental Results
6.2.1. Experimental vs. Numerical Frequencies for the FIX_Ovhg and FREE_Ovhg Models
6.2.2. Updating the FE Model by Taking the DSSI into Account
6.3. Performance of the Footbridge under the Mining-Induced Shocks
7. Conclusions
- The first six natural frequencies, modes shapes, and damping ratios of the single-span footbridge with overhangs were estimated experimentally. The obtained modal parameters are consistent with the values given in the literature for such structures.
- The natural frequencies determined numerically for the scheme used usually in static calculations, i.e., a simple supported multi-span beam, turned out to be absolutely inconsistent with the experimental values.
- The model assuming full restraint of the overhangs’ ends gave the natural frequencies closer to the experimental ones. However, the average error of 7% was also far above expectancy. Especially in the case of the third frequency accompanied by the lateral mode, the error of around 26% was unacceptable, concerning that the maximum tolerable error is 15% [43,44].
- The adopted strategy for the FEM model tuning included a set of horizontal and vertical elastic springs to consider DSSI between the end block of the overhangs and the ground. The experimentally and theoretically determined spring constants remain in good agreement. The tuned model with the springs has been verified, and good modal compliance was achieved.
- The impact of the DSSI between the overhangs’ ends on the dynamic response level of the footbridge, in terms of maximal principal stresses for the concrete slab and mises stresses, were evaluated: the DSSI can either amplify or reduce, depending on the spectral characteristics, the mining-induced excitation.
- In the case of the mining-induced shock with a narrowband spectrum, the stresses, determined including the DSSI, were 40% lower than those determined for the fixed overhangs’ ends. However, in the case of the wideband shock, due to the resonance effects, lateral vibrations take on values high enough to outweigh the reduction in amplitudes usually accompanied by the SSI. It led to a 40% increase in the dynamic response level.
Author Contributions
Funding
Institutional Review Board Statement
Informed Consent Statement
Data Availability Statement
Acknowledgments
Conflicts of Interest
References
- Soliz, A.; Perez-Lopez, R. ‘Footbridges’: Pedestrian infrastructure or urban barrier? Curr. Opin. Sust. 2022, 55, 101161. [Google Scholar] [CrossRef]
- Patron, A.; Poon, C.; Melo, A.; Morales, E.; Reyes, E. Design of 10 footbridges in new highway “Express pass of Cuernavaca”, Mexico. In Footbridge 2017 Berlin—Tell a Story; Technische Universität Berlin (TU Berlin): Berlin, Germany, 2017. [Google Scholar] [CrossRef]
- Flaga, A. Footbrides; Transport and Communication Publishers: Warsaw, Poland, 2011. [Google Scholar]
- Wolf, J.P.; Deeks, A.J. Foundation Vibration Analysis: A Strength of Materials Approach; Elsevier: Amsterdam, The Netherlands, 2004. [Google Scholar]
- Reissner, E. Stationäre, axialsymmetrische, durch eine schüttelnde Masse erregte Schwingung eines homogenen elastischen Halbraum. Ing.-Arch. 1936, 7, 381–396. [Google Scholar] [CrossRef]
- Kausel, E. Early History of Soil–Structure Interaction. Soil Dyn. Earthq. Eng. 2010, 30, 822–832. [Google Scholar] [CrossRef]
- Seed, H.B.; Whitman, R.V.; Lysmer, J. Soil-structure interaction effects in the design of nuclear power plants. In Structural and Geotechnical Mechanics, a Volume Honoring Nathan M. Newmark; Chapter, 13; Hall, W.J., Ed.; Prentice-Hall: Old Tappan, NJ, USA, 1977. [Google Scholar]
- Nuzhdin, L.V.; Mikhailov, V.S.; Yankovskaya, I.D. On criterion for considering dynamic soil-structure interaction effects. In Geotechnics Fundamentals and Applications in Construction: New Materials, Structures, Technologies and Calculations; CRC Press/Balkema, Taylor&Francis Group: London, UK, 2019; ISBN 978-0-367-17983-0. [Google Scholar]
- Kuen-Yaw, S.; Robinson, A. Dynamic soil-structure interaction. Civil. Eng. Stud. Struct. Res. Ser. 1980, 484, 1–113. [Google Scholar]
- Mylonakis, G.; Gazetas, G. Seismic soil-structure interaction: Beneficial or detrimental? J. Earthq. Eng. 2000, 4, 277–301. [Google Scholar] [CrossRef]
- Askouni, P.K.; Karabalis, D.L. The Modification of the Estimated Seismic Behaviour of R/C Low-Rise Buildings Due to SSI. Buildings 2022, 12, 975. [Google Scholar] [CrossRef]
- Faridani, H.M.; Moghadasi, L. Investigation of some structural behaviors of suspension footbridges with soil-structure interaction. Int. J. Adv. Eng. Technol. 2012, 4, 1. [Google Scholar]
- Santos da Silva, J.G.; Sieira, A.C.C.F.; Debona, G.L. Analysis of the Dynamic Behaviour of Steel-Concrete Composite Footbridges Considering the Soil-Structure Interaction. Int. J. Eng. Res. Appl. 2016, 6, 11–19. [Google Scholar]
- Gueha, S.K. Mining Induced Seismicity, In Induced Earthquakes; Springer: Dordrecht, The Netherlands, 2020. [Google Scholar] [CrossRef]
- Salajka, V.; Kalab, Z.; Kala, J.; Hradil, P. Response of the residential buildings structure on load technical seismicity due to mining activities. World Acad. Sci. Eng. Technol. 2009, 50, 61–69. [Google Scholar]
- Kuzniar, K.; Stec, K.; Tatara, T. Comparison of approximate assessments of the harmfulness of mining shocks using ground and building foundation vibrations. J. Meas. Eng. 2018, 6, 218–225. [Google Scholar] [CrossRef]
- Boroń, P.; Dulińska, J.M.; Jasińska, D. Impact of high energy mining-induced seismic shocks from different mining activity regions on a multiple-support road viaduct. Energies 2020, 13, 4045. [Google Scholar] [CrossRef]
- Johnson, S.; Chambers, D.; Boltz, M.; Koper, K. Application of a convolutional neural network for seismic phase picking of mining-induced seismicity. Geophys. J. Int. 2021, 224, 230–240. [Google Scholar] [CrossRef] [PubMed]
- Fuławka, K.; Pytel, W.; Pałac-Walko, B. Near-field measurement of six degrees of freedom mining-induced tremors in Lower Silesian Copper Basin. Sensors 2020, 20, 6801. [Google Scholar] [CrossRef]
- Boettcher, M.; Kane, D.; McGarr, A.; Johnston, M.; Reches, Z. Moment tensors and other source parameters of mining-induced earthquakes in TauTona Mine, South Africa. Bull. Seismol. Soc. Am. 2015, 105, 1576–1593. [Google Scholar] [CrossRef]
- Tatara, T. Dynamic Resistance of Building under Mining Tremors; Cracow University of Technology Press: Krakow, Poland, 2012; ISBN 978-83-7242-662-8. (In Polish) [Google Scholar]
- Sobiesiak, M.; Poiata, N.; Bernard, P.; Rudzinski, L.; Lasocki, S. Automated detection and location of mining induced seismicity from Rudna Copper Mine, SW Poland. In Proceedings of the American Geophysical Union, Fall Meeting 2019, San Francisco, CA, USA, 9–13 December 2019. [Google Scholar]
- Wang, D.; Wu, C.; Zhang, Y.; Li, S. Study on vertical vibration control of long-span steel footbridge with tuned mass dampers under pedestrian excitation. J. Constr. Steel Res. 2019, 154, 84–98. [Google Scholar] [CrossRef]
- Cuevas, R.G.; Jimenez-Alonso, J.F.; Martinez, F.; Diaz, I.M. Uncertainty-based approaches for the lateral vibration serviceability assessment of slender footbridges. Structures 2021, 33, 3475–3485. [Google Scholar] [CrossRef]
- Głodek, J.; Błach, M. Detailed and Technical Design; 2005. (In Polish) [Google Scholar]
- Zahid, F.B.; Ong, Z.C.; Khoo, S.Y. A review of operational modal analysis techniques for in-service modal identification. J. Braz. Soc. Mech. Sci. Eng. 2020, 42, 398. [Google Scholar] [CrossRef]
- Uhl, T.; Lisowski, W.; Kurowski, P. In-Operation Modal Analysis and Its Applications; Department of Robotics and Machine Dynamics: Cracow, Poland, 2001. [Google Scholar]
- Jin, S.-S.; Jeong, S.; Sim, S.-H.; Seo, D.-W.; Park, Y.-S. Fully automated peak-picking method for an autonomous stay-cable monitoring system in cable-stayed bridges. Autom. Constr. 2021, 126, 103628. [Google Scholar] [CrossRef]
- Banas, A.; Jankowski, R. Experimental and Numerical Study on Dynamics of Two Footbridges with Different Shapes of Girders. Appl. Sci. 2020, 10, 4505. [Google Scholar] [CrossRef]
- Cao, S.; Nian, H.; Yan, J.; Lu, Z.; Xu, C. Modal analysis and damage localization in plate-type structures via TDD and PE methods based on the data of an integrated highspeed camera system. Mech. Syst. Signal Process. 2022, 178, 109309. [Google Scholar] [CrossRef]
- Ewins, D.J. Modal Testing: Theory, Practice and Application, 2nd ed.; Wiley-Blackwell: Hoboken, NJ, USA, 2009. [Google Scholar]
- Clough, R.W.; Penzien, J. Dynamics of Structures; McGraw Hill Kogakusha LTD: Berkeley, CA, USA, 1975. [Google Scholar]
- Bendat, J.S.; Piersol, A.G. Random Data Analysis and Measurement Procedures, 4th ed.; Wiley: Hoboken, NJ, USA, 2010. [Google Scholar]
- Tatara, T. An Influence of Surface Mining-Related Vibration on Low-Rise Buildings; Cracow University of Technology Press: Krakow, Poland, 2002. (In Polish) [Google Scholar]
- Kudłacik, I.; Kapłon, J.; Lizurek, G.; Crespi, M.; Kurpiński, G. High-rate GPS positioning for tracing anthropogenic seismic activity: The 29 January 2019 mining tremor in Legnica-Głogów Copper District, Poland. Measurement 2021, 168, 108396. [Google Scholar] [CrossRef]
- Dassault Systèmes Simulia Corp. Abaqus/Standard User’s Manual; Dassault Systèmes Simulia Corp: Johnston, RI, USA, 2020. [Google Scholar]
- Savinov, O. Modern Foundations Structure for Machines and Their Calculations; Stroyizdat Press: Leningrad, Russia, 1979. [Google Scholar]
- Lipinski, J. Foundations Structure for Machines; Arkady Press: Warsaw, Poland, 1985. [Google Scholar]
- ASCE 4-98; Seismic Analysis of Safety-Related Nuclear Structures and Commentary. American Society of Civil Engineers (ASCE): Reston, VA, USA, 2000.
- SP 26.13330; Foundations of Machines with Dynamic Loads. Ministry of Regional Development of the Russian Federation: Moscow, Russia, 2012.
- Wei, X.; Russel, J.; Zivanovic, S.; Tobby, J.M. Measured dynamic properties for FRP footbridges and their critical comparison against structures made of conventional construction materials. Compos. Struct. 2019, 223, 110956. [Google Scholar] [CrossRef]
- Al-Raousan, R.Z.; Al-Smadi, Y.M.; Laradhi, A.A. Operational Modal Analysis of the Curved JUST Footbridge Induced by Human, 1st International Conference on Optimization-Driven Architectural Design (OPTARCH 2019). Procedia Manuf. 2020, 44, 599–606. [Google Scholar] [CrossRef]
- Brownjohn, J.M.W.; Xia, P.Q.; Hao, H.; Xia, Y. Civil structure condition assessment by FE model updating: Methodology and case studies. Finite Elem. Anal. Des. 2001, 37, 761–775. [Google Scholar] [CrossRef]
- Saidin, S.S.; Kudus, S.A.; Jamadin, A.; Anuar, M.A.; Amin, N.M.; Ibrahim, Z.; Zakaria, A.B.; Sugiura, K. Operational modal analysis and finite element model updating of ultra-high-performance concrete bridge based on ambient vibration test. Case Stud. Constr. Mater. 2022, 16, e01117. [Google Scholar] [CrossRef]


























| Material Parameters | ||||
|---|---|---|---|---|
| Material | Mass Density [kg/m3] | Elasticity Modulus [GPa] | Poisson’s Ratio [−] | |
| Concrete | 2400.00 | 37.80 | 0.30 | |
| Structural steel | 7850.00 | 205.00 | 0.30 | |
| Element masses [ton] | ||||
| Steel beams | Concrete slab | Concrete block | Piers | Non structural part |
| 26.11 | 72.92 | 29.75 | 73.74 | 5.71 |
| Dynamic Ground Category | Ground Stiffness Conditions | Soil (Voids Ratio e; Consistency Index IL) | C0 |
|---|---|---|---|
| I | Very small stiffness | Clayey sands, dusts, clays and loams in plastic state (IL = 0.40 ÷ 0.50) | 6.00 |
| II | Small Stiffness | Clayey sands, dusts, clays and loams in plastic state (IL = 0.40 ÷ 0.50) | 8.00 ÷ 10.00 |
| Dusty sands, saturated (e > 0.80) | 12.00 | ||
| III | Medium stiffness | Clayey sands, dusts, hard-plastic clays and loams (IL = 0 ÷ 0.25) | 16.00 ÷ 20.00 |
| Dusty sands, dense and medium density | 14.00 | ||
| Fine sands, medium sands, coarse sands | 18.00 | ||
| IV | High stiffness | Sandy clays, semi-compact and compact clays, and loams (IL < 0) | 22.00 ÷ 30.00 |
| Gravel and rubble | 26.00 |
| Mode No. | 1 | 2 | 3 | 4 | 5 | 6 |
|---|---|---|---|---|---|---|
| Experimental Frequency [Hz] | 4.34 | 4.80 | 5.85 | 10.50 | 11.53 | 19.87 |
| Logarithmic decrement [−] | 0.053 | 0.048 | 0.034 | 0.023 | 0.022 | 0.013 |
| Critical Damping [%] | 0.84 | 0.76 | 0.54 | 0.37 | 0.35 | 0.21 |
| Frequency No. | Experimental Investigation | Numerical Investigation | |||
|---|---|---|---|---|---|
| FREE_Ovhg Model | FIX_Ovhg Model | ||||
| Frequency [Hz] | Frequency [Hz] | Error [%] | Frequency [Hz] | Error [%] | |
| 1 | 4.34 | 2.38 | 45.16 | 4.49 | 3.46 |
| 2 | 4.80 | 2.93 | 38.96 | 4.64 | 3.33 |
| 3 | 5.85 | 4.16 | 28.89 | 7.38 | 26.15 |
| 4 | 10.50 | 4.37 | 58.38 | 10.68 | 1.71 |
| 5 | 11.53 | 5.08 | 55.94 | 11.89 | 3.12 |
| 6 | 19.87 | 5.37 | 72.97 | 21.06 | 5.99 |
| Mode No. | Experimental (OMA) Investigation | Numerical Investigation on the FIX_Ovhg Model | Numerical Investigation on the SPRING_Ovhg Model | ||||
|---|---|---|---|---|---|---|---|
| Experimentally Detected Spring Constants | Theoretically Assumed Spring Constants | ||||||
| Frequency [Hz] | Frequency [Hz] | Error [%] | Frequency [Hz] | Error [%] | Frequency [Hz] | Error [%] | |
| 1 | 4.34 | 4.49 | 3.46 | 4.33 | 0.23 | 4.36 | 0.46 |
| 2 | 4.8 | 4.64 | 3.33 | 4.62 | 3.75 | 4.61 | 3.96 |
| 3 | 5.85 | 7.38 | 26.15 | 5.92 | 1.20 | 5.94 | 1.54 |
| 4 | 10.5 | 10.68 | 1.71 | 10.5 | 0.00 | 10.69 | 1.81 |
| 5 | 11.53 | 11.89 | 3.12 | 11.46 | 0.61 | 11.52 | 0.09 |
| 6 | 19.87 | 21.06 | 5.99 | 20.81 | 4.73 | 20.90 | 5.18 |
| Average error [%] | 7.29 | 1.75 | 2.17 | ||||
| Alignment A | A1 | A2 | A3 | A4 | A5 | Error % |
| Mode 1 | −0.05(−0.05) | 0.66(0.63) | 0.94(0.93) | 0.66(0.65) | −0.05(−0.05) | 1.42 |
| Mode 2 | 0.01(0.01) | −0.60(−0.61) | −0.93(−0.92) | −0.60(−0.62) | 0.01(0.01) | 1.22 |
| Mode 3 | 0.25(0.23) | 0.75(0.72) | 0.96(0.92) | 0.78(0.79) | 0.25(0.23) | 5.09 |
| Mode 4 | −0.07(−0.07) | 0.87(0.89) | 0.00(0.00) | −0.88(−0.89) | 0.07(0.07) | 0.69 |
| Mode 5 | −0.23(−0.21) | 0.90(0.86) | 0.00(0.00) | −0.89(−0.86) | 0.20(0.19) | 4.30 |
| Mode 6 | −0.12(−0.13) | 0.86(0.87) | −0.62(−0.64) | 0.85(0.86) | −0.12(−0.13) | 4.45 |
| Error % | 4.17 | 3.02 | 1.59 | 1.97 | 3.56 | |
| Alignment B | B1 | B2 | B3 | B4 | B5 | Error % |
| Mode 1 | −0.05(−0.05) | 0.61(0.62) | 0.91(0.93) | 0.61(0.63) | −0.05(−0.05) | 1.42 |
| Mode 2 | 0.01(0.01) | 0.59(0.59) | 0.93(0.94) | 0.61(0.63) | 0.01(0.01) | 0.87 |
| Mode 3 | 0.20(0.23) | 0.70(0.73) | 0.85(0.88) | 0.75(0.78) | 0.23(0.22) | 6.23 |
| Mode 4 | 0.07(0.07) | −0.86(−0.86) | 0.00(0.00) | 0.86(0.89) | −0.07(−0.07) | 0.70 |
| Mode 5 | 0.22(0.21) | 0.86(0.88) | 0.00(0.00) | −0.81(−0.88) | 0.20(0.19) | 4.10 |
| Mode 6 | −0.12(−0.13) | 0.89(0.87) | −0.62(−0.64) | 0.87(0.87) | −0.12(−0.13) | 4.43 |
| Error % | 4.65 | 1.75 | 1.67 | 3.78 | 2.95 |
| Point | Stress Type | Shock with Compact Frequency Spectrum | Shock with Scattered Frequency Spectrum | ||||
|---|---|---|---|---|---|---|---|
| FIX [MPa] | SPRING [MPa] | Error [%] | FIX [MPa] | SPRING [MPa] | Error [%] | ||
| C1 | Max. principal stress | 0.28 | 0.27 | 3.70 | 0.34 | 0.44 | −22.73 |
| S1 | Mises stress | 6.78 | 6.09 | 11.33 | 6.06 | 8.01 | −24.34 |
| C2 | Max. principal | 0.33 | 0.34 | −2.94 | 0.31 | 0.34 | −8.82 |
| S2 | Mises stress | 3.81 | 3.11 | 22.51 | 3.78 | 5.06 | −25.30 |
Publisher’s Note: MDPI stays neutral with regard to jurisdictional claims in published maps and institutional affiliations. |
© 2022 by the authors. Licensee MDPI, Basel, Switzerland. This article is an open access article distributed under the terms and conditions of the Creative Commons Attribution (CC BY) license (https://creativecommons.org/licenses/by/4.0/).
Share and Cite
Drygala, I.J.; Dulińska, J.M.; Nisticò, N.; Tatara, T. Impact of Dynamic Soil-Structure Interaction on Performance of a Single Span Footbridge with Overhangs Subjected to Mining-Induced Shocks. Materials 2022, 15, 9084. https://doi.org/10.3390/ma15249084
Drygala IJ, Dulińska JM, Nisticò N, Tatara T. Impact of Dynamic Soil-Structure Interaction on Performance of a Single Span Footbridge with Overhangs Subjected to Mining-Induced Shocks. Materials. 2022; 15(24):9084. https://doi.org/10.3390/ma15249084
Chicago/Turabian StyleDrygala, Izabela Joanna, Joanna Maria Dulińska, Nicola Nisticò, and Tadeusz Tatara. 2022. "Impact of Dynamic Soil-Structure Interaction on Performance of a Single Span Footbridge with Overhangs Subjected to Mining-Induced Shocks" Materials 15, no. 24: 9084. https://doi.org/10.3390/ma15249084
APA StyleDrygala, I. J., Dulińska, J. M., Nisticò, N., & Tatara, T. (2022). Impact of Dynamic Soil-Structure Interaction on Performance of a Single Span Footbridge with Overhangs Subjected to Mining-Induced Shocks. Materials, 15(24), 9084. https://doi.org/10.3390/ma15249084

