Cyclic Behavior of Autoclaved Aerated Concrete External Panel with New Connector
Abstract
1. Introduction
2. Materials and Methods
2.1. Properties of Materials
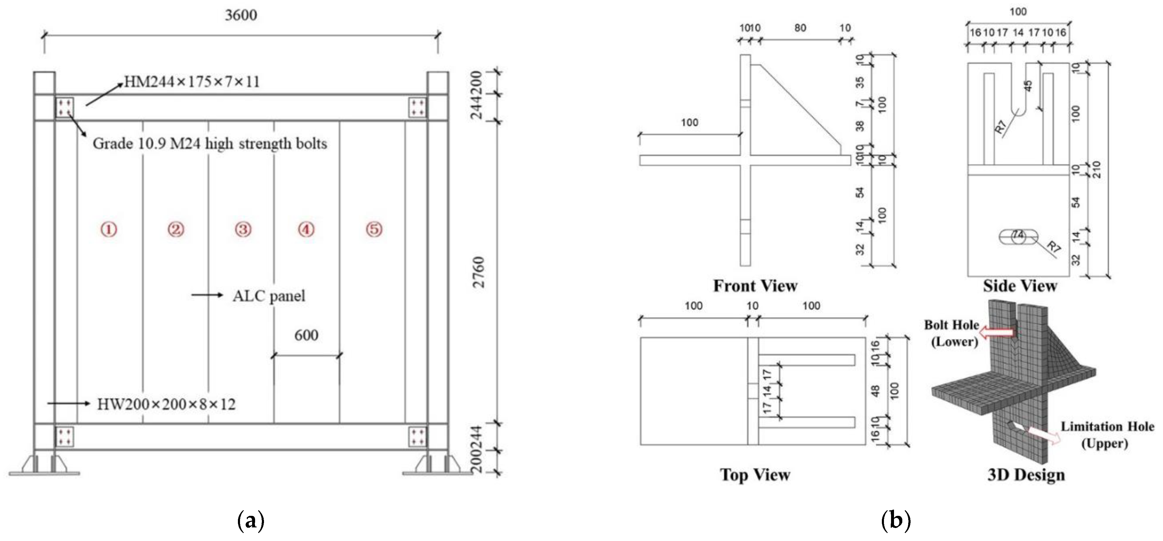
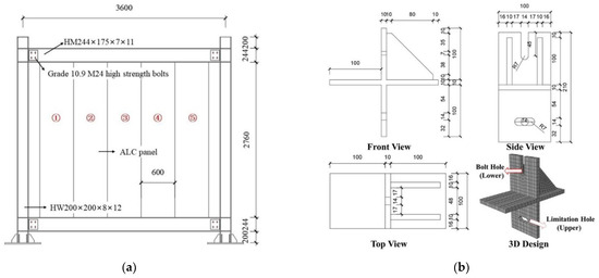
2.2. Experimental Design
2.3. Test Setup and Loading System
3. Results and Discussion
3.1. Test Phenomenon
3.1.1. Specimen JD-1
3.1.2. Specimen JD-2
3.2. Test Results and Analysis
3.2.1. Hysteresis Curve
3.2.2. Skeleton Curve
3.2.3. Stiffness Degradation
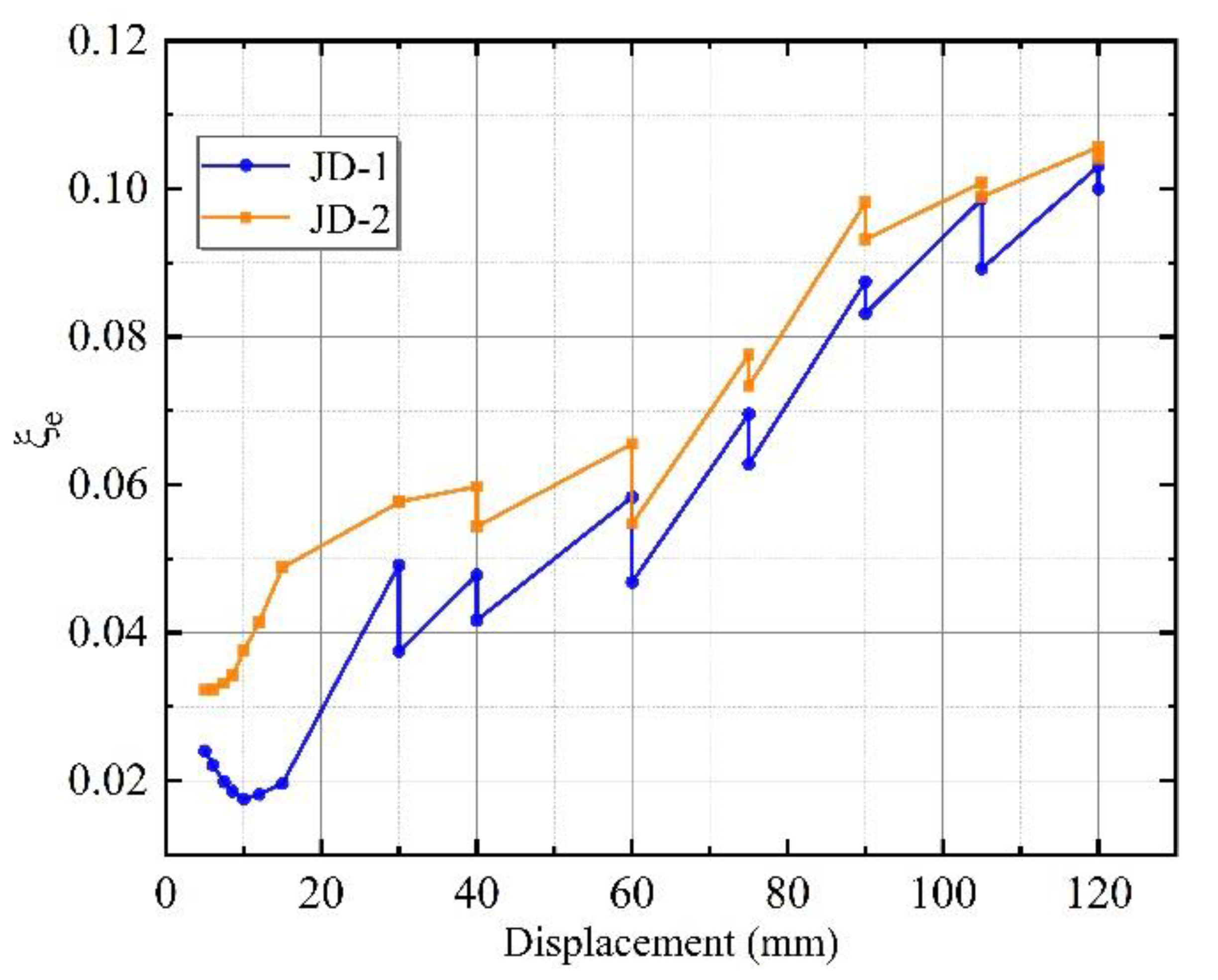
3.2.4. Energy Dissipation
3.3. Finite Element Analysis
3.3.1. Finite Element Analysis Model
3.3.2. Material Properties
3.3.3. Boundary Conditions and Loads
3.3.4. Finite Element Results
3.4. Parameter Analysis
3.4.1. Connector Thickness
3.4.2. Length of the Connector Plates
4. Conclusions
- (1)
- The new connector has better connection behavior and can adapt to larger inter-story displacements. The individual L-hooked bolt became loose and failed to connect with the frame beam at the 75 mm stage, while the new connector worked firmly. The integrity of the panel was great before the slip-type crossing connector reached the edge of the hole. It was proven that the new connector can effectively reduce the damage to ALC panels under minor disasters through the sliding mechanism.
- (2)
- The new connector has better seismic behavior. Compared to the standard L-hooked bolt, the bearing capacity of the new connector increased by 9.7%, and the ultimate load increased by 5.3%. The equivalent viscous damp ratio of the new connector increased by 25.5% at the yield stage. Although the initial stiffness of the new connector was smaller, the stiffness degradation rate was slower than that of the L-hooked bolt and increased by 10.4% at the elastic stage.
- (3)
- The ABAQUS finite element simulated results agreed with the experimental results. In the hysteresis curve results, the curve’s “pinch” impact was more pronounced in the experimental results than in the simulation results, and the initial stiffness was slightly lower than that in the simulated results. All of these differences, however, were within a rational range, and the analysis results of the FEMs had the reference value.
- (4)
- The parametric research revealed that appropriate reduction of the plate length and thickness of the connector can ensure superior seismic performance while saving resources. It follows from the parameter analysis of FEM2 and FEM3-8 that the initial stiffness and the bearing capacity of the specimens with a greater thickness and plate length were slightly higher. The best energy dissipation capacity was achieved when using a 6 mm thickness or a 50 mm plate length in different parameter groups. It is worth mentioning that this finite element analysis method can provide a theoretical guide for future research and implementation of such connectors.
Author Contributions
Funding
Institutional Review Board Statement
Informed Consent Statement
Data Availability Statement
Conflicts of Interest
References
- Farzampour, A.; Mansouri, I.; Lee, C.H.; Sim, H.B.; Hu, J.W. Analysis and design recommendations for corrugated steel plate shear walls with a reduced beam section. Thin Wall. Struct. 2018, 132, 658–666. [Google Scholar] [CrossRef]
- Navaratnam, S.; Ngo, T.; Gunawardena, T.; Henderson, D. Performance review of prefabricated building systems and future research in Australia. Buildings 2019, 9, 38. [Google Scholar] [CrossRef]
- El-Abidi, K.M.A.; Ghazali, F.E.M. Motivations and limitations of prefabricated building: An overview. Appl. Mech. Mater. 2015, 802, 668–675. [Google Scholar] [CrossRef]
- Hao, J.; Sun, X.; Xue, Q.; Fan, C. Research and application of prefabricated steel structure building systems. Eng. Mech. 2017, 34, 1–13. [Google Scholar] [CrossRef]
- Cui, J.; Qin, Q. Study on seismic performance of a new type of assembled beam-column joint. J. DMP 2020, 36, 3. [Google Scholar] [CrossRef]
- Ding, K.; Zhang, X.; Liu, Y.; He, S.; Wang, J.; Shen, W. Research on angle connector in composite beam. Int. J. Concr. Struct. Mater. 2022, 16, 15. [Google Scholar] [CrossRef]
- Zhang, Y.; Ding, K. Study on seismic behavior of fabricated beam-column bolted joint. Struct. Eng. Mech. 2022, 82, 801–812. [Google Scholar] [CrossRef]
- Farzampour, A. Compressive Behavior of Concrete under Environmental Effects. In Compressive Strength of Concrete; IntechOpen: London, UK, 2019; pp. 92–104. [Google Scholar] [CrossRef]
- Kurama, Y.C.; Sritharan, S.; Fleischman, R.B.; Restrepo, J.I.; Henry, R.S.; Cleland, N.M.; Ghosh, S.K.; Bonelli, P. Seismic-resistant precast concrete structures: State of the art. J. Struct. Eng. 2018, 144, 03118001. [Google Scholar] [CrossRef]
- Deng, F.; Chunlei, Z.; Chen, C. Research on construction technology of ALC wall pane. J. Adv. Mater. Sci. Eng. 2021, 1. [Google Scholar] [CrossRef]
- Memon, N.A.; Sumadi, S.R.; Ramli, M. Ferrocement encased lightweight aerated concrete: A novel approach to produce sandwich composite. Mater. Lett. 2007, 61, 4035–4038. [Google Scholar] [CrossRef]
- Ng, S.-C.; Low, K.-S.; Tioh, N.-H. Potential use of clayey soil in aerated lightweight concrete. KSCE J. Civ. Eng. 2012, 16, 809–815. [Google Scholar] [CrossRef]
- Narayanan, N.; Ramamurthy, K. Structure and properties of aerated concrete: A review. Cem. Concr. Compos. 2000, 22, 321–329. [Google Scholar] [CrossRef]
- Yang, Y.M.; Zhang, H. Experimental research on dynamics characteristics and damage of ALC wallboard. Adv. Mater. Res. 2012, 535–537, 1780–1784. [Google Scholar] [CrossRef]
- Low, K.-S.; Ng, S.-C.; Tioh, N.-H. Thermal conductivity of soil-based aerated lightweight concrete. KSCE J. Civ. Eng. 2014, 18, 220–225. [Google Scholar] [CrossRef]
- Fang, M.-J.; Wang, J.-F.; Li, G.-Q. Shaking table test of steel frame with ALC external wall panels. Adv. Mater. Res. 2013, 80, 278–286. [Google Scholar] [CrossRef]
- Wang, B.; Wang, J.; Wan, H.; Hou, H.; Wang, J. Study on performance and connection structure of filled panels of high-rise steel structure building under cyclic load. Prog. Build. Steel Struct. 2015, 17, 6. [Google Scholar] [CrossRef]
- Wang, J.; Li, B. Cyclic testing of square CFST frames with ALC panel or block walls. J. Constr. Steel Res. 2017, 130, 264–279. [Google Scholar] [CrossRef]
- Cao, S.; Shu, G.; Lin, K.; Fan, S.; Gao, H. Analysis and design method of a new type of prefabricated steel structure external wall panel joint. Build. Struct. 2017, 47, 46–52. [Google Scholar] [CrossRef]
- Ding, K.; Zong, D.; Liu, Y.; He, S.; Shen, W. Experimental and finite element analysis of external ALC panel steel frames with new semi-rigid connector. Appl. Sci. 2021, 11, 990. [Google Scholar] [CrossRef]
- Zhang, Y.; Chen, X.; Zhang, A.; Li, X. Shaking table test study of steel frame steel pipe anchor sliding connector with external autoclaved aerated concrete wall panel. Prog. Build. Steel Struct. 2021, 23, 67–74. [Google Scholar] [CrossRef]
- Wang, W.; Chen, Y.; Chen, Y.; Hou, H. Experimental study of layered assembly supported steel frame with external PC composite wall panels on full-scale shaking table. J. Build. Struct. 2019, 40, 88–97. [Google Scholar] [CrossRef]
- Kwon, M.; Seo, H.; Kim, J. Seismic performance of RC-column wrapped with Velcro. Struct. Eng. Mech. 2016, 58, 379–395. [Google Scholar] [CrossRef]
- GB/T 228.1-2010; Metallic Materials-Tensile Testing. Standardization Administration of China: Beijing, China, 2010.
- GB/T 11969-2020; Test Methods of Autoclaved Aerated Concrete. Standardization Administration of China: Beijing, China, 2020.
- JGJ/T101-2015; Specification for Seismic Test of Buildings. Standardization Administration of China: Beijing, China, 2015.
- Ding, K.; Zhang, Y. Experimental study on seismic performance of fabricated bolted joint under low-cycle reciprocating loads. Results Eng. 2021, 9, 100208. [Google Scholar] [CrossRef]
- Ma, S.; Jiang, N. Seismic experimental study on new-type composite exterior wallboard with integrated structural function and insulation. Materials 2015, 8, 3732–3753. [Google Scholar] [CrossRef]
- Ma, Y.; Jia, J. The influence of different parameter on the seismic behavior of SRUHSC frame. Adv. Mater. Sci. Eng. 2017, 2017, 3495150. [Google Scholar] [CrossRef]
- Ding, K.; Ye, Y.; Ma, W. Seismic performance of precast concrete beam-column joint based on the bolt connection. Eng. Struct. 2021, 232, 111884. [Google Scholar] [CrossRef]
- Tang, Z.; Zha, X.; Wang, B. Finite element study on bearing capacities of hook-bolt joint of assembled GRC wall with light steel skeleton frame. IOP Conf. Ser. Earth Environ. Sci. 2019, 242, 062084. [Google Scholar] [CrossRef]
- Genikomsou, A.S.; Polak, M.A. Finite element analysis of punching shear of concrete slabs using damaged plasticity model in ABAQUS. Eng. Struct. 2015, 98, 38–48. [Google Scholar] [CrossRef]
- Qin, H.; Zhao, X. Study on the ABAQUS damage parameter in the concrete damage plasticity model. Struct. Eng. 2013, 29, 27–32. [Google Scholar] [CrossRef]
- Ma, W.; Xu, K.; Cheng, B.; Zhang, Y.; Chen, R.; Chen, D. Experimental study on the seismic behavior of a new single-faced superposed shear wall with the concealed column. Structures 2021, 33, 4446–4460. [Google Scholar] [CrossRef]






















| Specimen | Thickness (t/mm) | Yield Stress (ƒy/MPa) | Ultimate Stress (ƒu/MPa) | Elongation Stress (δ/%) |
|---|---|---|---|---|
| Connector | 10 | 376.6 | 510.1 | 19.6 |
| Beam web | 7 | 275.3 | 411.3 | 22.3 |
| Beam flange | 11 | 263.4 | 401.6 | 25.2 |
| Column web | 8 | 278.2 | 409.8 | 20.8 |
| Column flange | 12 | 289.5 | 435.4 | 24.7 |
| Specimen | Wall Panel Type | Thickness/mm | Connection Method | Connector |
|---|---|---|---|---|
| JD-1 | ALC panel | 200 | External mount | L-hooked bolt |
| JD-2 | ALC panel | 200 | External mount | Slip-type crossing connector |
| Specimen | Yield Point | Peak Point | Limit Point | |||
|---|---|---|---|---|---|---|
| Δy/mm | Py/kN | Δm/mm | Pm/kN | Δγ/mm | Pγ/kN | |
| JD-1 | 51.75 | 137.62 | 68.58 | 169.19 | 120 | 144.14 |
| JD-2 | 58.77 | 156.59 | 84.17 | 185.68 | 120 | 173.48 |
| Material Type | Density (t/mm3) | Modulus of Elasticity (MPa) | Poisson’s Ratio | |
|---|---|---|---|---|
| Steel | Q235B | 7.89 × 10−9 | 200,000 | 0.3 |
| Q345B | 7.89 × 10−9 | 206,000 | 0.3 | |
| ALC | 5 × 10−10 | 1770 | 0.2 | |
Publisher’s Note: MDPI stays neutral with regard to jurisdictional claims in published maps and institutional affiliations. |
© 2022 by the authors. Licensee MDPI, Basel, Switzerland. This article is an open access article distributed under the terms and conditions of the Creative Commons Attribution (CC BY) license (https://creativecommons.org/licenses/by/4.0/).
Share and Cite
Cui, J.; He, S.; Ding, K.; Zhang, Y.; Kong, X. Cyclic Behavior of Autoclaved Aerated Concrete External Panel with New Connector. Materials 2022, 15, 8778. https://doi.org/10.3390/ma15248778
Cui J, He S, Ding K, Zhang Y, Kong X. Cyclic Behavior of Autoclaved Aerated Concrete External Panel with New Connector. Materials. 2022; 15(24):8778. https://doi.org/10.3390/ma15248778
Chicago/Turabian StyleCui, Jianhua, Shulin He, Kewei Ding, Yu Zhang, and Xiaoying Kong. 2022. "Cyclic Behavior of Autoclaved Aerated Concrete External Panel with New Connector" Materials 15, no. 24: 8778. https://doi.org/10.3390/ma15248778
APA StyleCui, J., He, S., Ding, K., Zhang, Y., & Kong, X. (2022). Cyclic Behavior of Autoclaved Aerated Concrete External Panel with New Connector. Materials, 15(24), 8778. https://doi.org/10.3390/ma15248778

