Mechanical Characterisation of GFRP Frame and Beam-to-Column Joints Including Steel Plate Fastened Connections
Abstract
1. Introduction
2. Design Details of the MOOVABAT Modular Element
2.1. Description of the System
2.2. Preliminary Structural Analysis
3. Materials and Methods
3.1. Materials
3.2. Test Configurations and Procedures
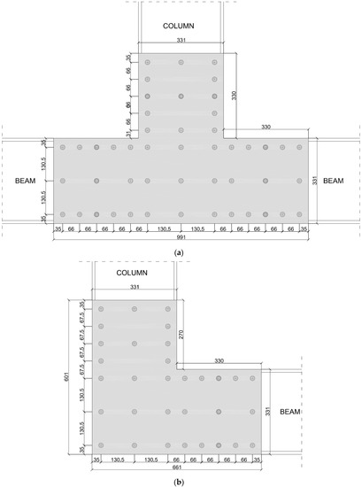
- beam-to-column: it represents a joint connecting a column to two consecutive beams by means of the T-shape connecting system (Figure 4a). Two specimens differing in the fastening elements were tested in this configuration: the first one, named T1 characterised by self-drilling screws without washers, and T2_W characterised by self-drilling screws equipped with screws;
- portal frame: it represents the main longitudinal frame of the MOOVABAT modular structure, characterised by two GFRP columns and two GFRP beams, connected by L-shaped joints (Figure 4b). One specimen, named PF, was tested in this configuration.
3.2.1. Beam-to-Column Element
3.2.2. Portal Frame
4. Results and Discussion
4.1. Beam-to-Column Element
4.1.1. Load-Displacement Response
4.1.2. Moment-Rotation Response
4.2. GFRP Portal Frame
4.2.1. Load-Displacement Response
4.2.2. Comparison with Numerical Analysis
4.2.3. Strain Distribution
5. Conclusions
- Beam-to-column specimens are characterised by a semirigid behaviour exhibiting a failure mode characterised by the shear rupture of the fasteners. Cyclic load tests show a proper response of both the specimens with a symmetrical hysteresis curve with energy dissipation values increasing with the load;
- The use of washers in the fasteners reduces the values of the residual displacements delaying the beginning of the plastic deformation of the joint;
- The analysis of the strain field during the test emphasises that the GFRP member out of the connection behaves in elastic conditions while plastic deformations are concentrated in the joint portion;
- The maximum capacity of the joint is much higher than the expected values from structural analysis. This aspect emphasises that the structure, mainly designed to guarantee practical logistic aspects related to the geometry of the prefabricated elements adopted in the modular prototype, is structurally oversized.
- GFRP frames laterally loaded exhibit a mechanical response characterised by the failure of the most stressed joints, consistent with the behaviour shown by the beam-to-column elements. The analysis of the strain distribution confirms the concentration of plastic deformations in the connecting elements. The localisation of the damages in the connecting elements, without affecting beams and columns, may represent an important aspect in view of repairing interventions in which the structural members may be reused;
- The comparison with numerical analysis emphasises the semi-rigid nature of the joints. The adoption of proper rotational stiffness of the joint allows exhaustive modelling of the mechanical behaviour of the frame that can be adopted in view of modifications aimed at increasing its structural efficiency with respect to oversizing issues.
Author Contributions
Funding
Data Availability Statement
Conflicts of Interest
References
- Jia, J.; Liu, B.; Ma, L.; Wang, H.; Li, D.; Wang, Y. Energy saving performance optimization and regional adaptability of prefabricated buildings with PCM in different climates. Case Stud. Therm. Eng. 2021, 26, 101164. [Google Scholar] [CrossRef]
- Minunno, R.; O’Grady, T.; Morrison, G.M.; Gruner, R.L.; Colling, M. Strategies for Applying the Circular Economy to Prefabricated Buildings. Buildings 2018, 8, 125. [Google Scholar] [CrossRef]
- Gosling, J.; Sassi, P.; Naim, M.; Lark, R. Adaptable buildings: A systems approach. Sustain. Cities Soc. 2013, 7, 44–51. [Google Scholar] [CrossRef]
- Sharafia, M.F.; Alembagheri, M.; Kildashti, K.; Bigdeli, A. Effects of bolted connections properties on natural dynamic characteristics of corner-supported modular steel buildings. In Structures; Elsevier: Amsterdam, The Netherlands, 2022; Volume 45, pp. 1491–1515. [Google Scholar]
- Andersen, S.C.; Sohn, J.; Oldfield, P.; Birkved, M. Evaluating the environmental impacts of conventional and modular buildings in absolute measures: A case study across different geographical contexts. Build. Environ. 2022, 223, 109509. [Google Scholar] [CrossRef]
- Pan, T.P.; Mou, B. An innovative type of module-to-core wall connections for high-rise steel modular buildings. J. Build. Eng. 2022, 62, 105425. [Google Scholar]
- Xu, B.; Xia, J.; Ma, R.; Chang, H.; Yang, C.; Zhang, L. Investigation on interfacial slipping response of laminated channel beams with bolt connections in modular steel buildings. J. Build. Eng. 2022, 63, 105441. [Google Scholar] [CrossRef]
- Xiong, H.; Chen, J.; Wu, Y. Research on seismic performance of a concrete-wood hybrid structural system for tall building. J. Build. Struct. 2018, 39, 62–70. [Google Scholar]
- Martins, D.; Proença, M.; Almeida Gonilha, J.; Figueiredo Sá, M.; Ramôa Correia, J.; Silvestre, N. Experimental and numerical analysis of GFRP frame structures. Part 1: Cyclic behaviour at the connection level. Compos. Struct. 2019, 220, 304–317. [Google Scholar] [CrossRef]
- Martins, D.; Figueiredo Sá, M.; Almeida Gonilha, J.; Ramôa Correia, J.; Silvestre, N.; Gomes Ferreira, J. Experimental and numerical analysis of GFRP frame structures. Part 2: Monotonic and cyclic sway behaviour of plane frames. Compos. Struct. 2019, 220, 194–208. [Google Scholar] [CrossRef]
- Luo, F.J.; Huang, Y.; He, X.; Qi, Y.; Bai, Y. Development of latticed structures with bolted steel sleeve and plate connection and hollow section GFRP members. Thin Walled Struct. 2019, 137, 106–116. [Google Scholar] [CrossRef]
- Rajak, D.K.; Pagar, D.D.; Menezes, P.L.; Linul, E. Fiber-Reinforced Polymer Composites: Manufacturing, Properties, and Applications. Polymers 2019, 11, 1667. [Google Scholar] [CrossRef]
- Alachek, I.; Reboul, N.; Jurkiewiez, B. Experimental and finite element analysis of push-out shear test for adhesive joints between pultruded GFRP and concrete. Int. J. Adhes. Adhes. 2020, 98, 102552. [Google Scholar] [CrossRef]
- Koaik, A.; Bel, S.; Jurkiewiez, B. Experimental tests and analytical model of concrete-GFRP hybrid beams under flexure. Compos. Struct. 2017, 180, 192–210. [Google Scholar] [CrossRef]
- Li, Y.-F.; Lai, J.-Y.; Yu, C.-C. The Push-Over Test and Numerical Analysis Study on the Mechanical Behavior of the GFRP Frame for Sustainable Prefabricated Houses. Sustainability 2019, 11, 6753. [Google Scholar] [CrossRef]
- Shin, Y.H.; Yoong, Y.Y.; Hejazi, F.; Saifulnaz, M.R. Review on pultruded FRP structural design for building construction. In Proceedings of the IOP Conference Series: Earth and Environmental Science; IOP Publishing: Bristol, UK, 2019; Volume 357, p. 012006. [Google Scholar]
- Ascione, L.; Caron, J.F.; Godonou, P.; van IJselmuijden, K.; Knippers, J.; Mottram, T.; Oppe, M.; Gantriis Sorensen, M.; Taby, J.; Tromp, L. Prospect for New Guidance in the Design of FRP: Support to the Implementation, Harmonization and Further Development of the Eurocodes; EUR 27666 EN; European Commission Joint Research Centre: Ispra, Italy, 2016. [Google Scholar] [CrossRef]
- Girão Coelho, A.M.; Mottram, J.T. A review of the behaviour and analysis of bolted connections and joints in pultruded fibre reinforced polymers. Mater. Des. 2015, 74, 86–107. [Google Scholar] [CrossRef]
- Jiang, Z.; Wan, S.; Fang, Z.; Song, A. Static and fatigue behaviours of a bolted GFRP/steel double lap joint. Thin Walled Struct. 2020, 158, 107170. [Google Scholar] [CrossRef]
- Satasivam, S.; Feng, P.; Bai, Y.; Caprani, C. Composite actions within steel-FRP composite beam systems with novel blind bolt shear connections. Eng. Struct. 2017, 138, 63–73. [Google Scholar] [CrossRef]
- Xiao, X.; Zhang, Z.; Bai, Y. Comparative study of energy dissipation capacity of steel and glass fibre-reinforced polymer frames with bonded sleeve connections. J. Reinf. Plast. Compos. 2017, 36, 1665–1679. [Google Scholar] [CrossRef]
- Feroldi, F.; Russo, S. Mechanical Performance of Pultruded FRP Plates in Beam-to-Beam Connections. J. Compos. Constr. 2017, 21, 04017004. [Google Scholar] [CrossRef]
- Martins, D.; Gonilha, J.; Correia, J.R.; Silvestre, N. Exterior beam-to-column bolted connections between GFRP I-shaped pultruded profiles using stainless steel cleats, Part 2: Prediction of initial stiffness and strength. Thin Walled Struct. 2021, 164, 107762. [Google Scholar] [CrossRef]
- Turvey, G.J.; Zhang, Y. Mechanical properties of pultruded GFRP WF, channel and angle profiles for limit state/permissible stress design. Compos. Part B Eng. 2018, 148, 260–271. [Google Scholar] [CrossRef]
- Bank, L.C.; Mosallam, A.S.; McCoy, G.T. Design and performance of connections for pultruded frame structures. J. Reinf. Plast. Compos. 1994, 13, 199–212. [Google Scholar] [CrossRef]
- Technical Sheet, Wall E+. Available online: http://caerostris.fr/walle-materiau-de-construction-innovant-en-composites/ (accessed on 25 August 2021).
- EN 1990: 2002; Basis of Structural Design. European Committee for Standardization: Brussels, Belgium, 2001.
- Company TopGlass. Available online: https://www.topglass.it/en/home-en/ (accessed on 25 August 2021).
- Technical Sheet, Adekit A236. Available online: https://industry.sika.com/dms/getdocument.get/3b9b6c8b-71df-4449-ba69-73f0548df6e2/BRO-launching-file-Adekit%20A236-en.pdf (accessed on 25 August 2021).
- EN ISO 10365: 1995; Adhesives—Designation of Main Failure Patterns. European Committee for Standardization: Brussels, Belgium, 1995.
- Turvey, G.J.; Cerutti, X. Flexural behaviour of pultruded glass fibre reinforced polymer composite beams with bolted splice joints. Compos. Struct. 2015, 119, 543–550. [Google Scholar] [CrossRef]
- EN 1993 1-8 (2005); Eurocode 3: Design of Steel Structures—Part 1–8: Design of Joints. European Committee for Standardization: Brussels, Belgium, 2004.
- De Santis, Y.; Fragiacomo, M. Timber-to-timber and steel-to-timber screw connections: Derivation of the slip modulus via beam on elastic foundation model. Eng. Struct. 2021, 244, 112798. [Google Scholar] [CrossRef]
- Liu, F.; Yao, W.; Zhao, L.; Wu, H.; Zhang, X.; Zhang, J. An improved 2D finite element model for bolt load distribution analysis of composite multi-bolt single-lap joints. Compos. Struct. 2020, 253, 112770. [Google Scholar] [CrossRef]
- Belardi, V.G.; Fanelli, P.; Vivio, F. Analysis of multi-bolt composite joints with a user-defined finite element for the evaluation of load distribution and secondary bending. Compos. Part B Eng. 2021, 227, 109378. [Google Scholar] [CrossRef]
- Schweigler, M.; Bader, T.K.; Hochreiner, G. Engineering modeling of semi-rigid joints with dowel-type fasteners for nonlinear analysis of timber structures. Eng. Struct. 2018, 171, 123–139. [Google Scholar] [CrossRef]
- Zafari, B.; Mottram, J.T. Characterization by Full-Size Testing of Pultruded Frame Joints for the Startlink House. J. Compos. Constr. 2015, 19, 04014033. [Google Scholar] [CrossRef]
- Yang, X.; Bai, Y.; Ding, F. Structural performance of a large-scale space frame assembled using pultruded GFRP composites. Compos. Struct. 2015, 133, 986–996. [Google Scholar] [CrossRef]






















| Type of Load | Value | Unit | Description |
|---|---|---|---|
| Permanent actions (G) | 0.19 | kN/m | deck, facade, and frame members |
| 0.92 | kN/m2 | deck concrete slab | |
| 0.15 | kN/m2 | ventilation | |
| 0.10 | kN/m2 | partitions | |
| 0.36 | kN | connection steel plate | |
| Variable actions (Q) | 5.00 | kN/m2 | - |
| Wind loads (W) | 0.53 | kN/m2 | - |
| Snow load (S) | 0.56 | kN/m2 | - |
| Accidental snow load (AS) | 1.08 | kN/m2 | - |
| Load Case | N | V | Mb | Mj |
|---|---|---|---|---|
| [kN] | [kN] | [kNm] | [kNm] | |
| (*) 1.35·G | −8.2 | 3.3 | 5.7 | −6.6 |
| 1.35·G or 1.35·G + 1.5·Q | 3.9 | 1.2 | 2.2 | 2.5 |
| 1.35·G + 1.5·S | 7.4 | 2.5 | 4.7 | 5.2 |
| 1.35·G + 1.5·S + 0.9·W | 8.3 | 3.2 | 5.1 | 6.3 |
| 1·G + 1.5 W | −6.7 | 3.1 | −3.1 | −3.9 |
| 1.35·G + 1.5·W + 0.9·S | 8.1 | 1.1 | 2.8 | 2.9 |
| Properties | Longitudinal | Transversal | Reference Standard |
|---|---|---|---|
| Tensile strength | 400 MPa | 30 MPa | ASTM D638 |
| Tensile modulus of elasticity | 26 GPa | 8 GPa | |
| Compressive strength | 220 MPa | 70 MPa | ASTMD695 |
| Compressive modulus of elasticity | 18 GPa | 7 GPa | |
| Shear strength | 30 MPa | - | ASTM D2344 |
| Shear modulus of elasticity | 3 GPa | - | EN 13706 |
| Poisson’s ratio | 0.28 | 0.12 | ASTM D3039 |
Publisher’s Note: MDPI stays neutral with regard to jurisdictional claims in published maps and institutional affiliations. |
© 2022 by the authors. Licensee MDPI, Basel, Switzerland. This article is an open access article distributed under the terms and conditions of the Creative Commons Attribution (CC BY) license (https://creativecommons.org/licenses/by/4.0/).
Share and Cite
Ferrara, G.; Helson, O.; Michel, L.; Ferrier, E. Mechanical Characterisation of GFRP Frame and Beam-to-Column Joints Including Steel Plate Fastened Connections. Materials 2022, 15, 8282. https://doi.org/10.3390/ma15238282
Ferrara G, Helson O, Michel L, Ferrier E. Mechanical Characterisation of GFRP Frame and Beam-to-Column Joints Including Steel Plate Fastened Connections. Materials. 2022; 15(23):8282. https://doi.org/10.3390/ma15238282
Chicago/Turabian StyleFerrara, Giuseppe, Olivier Helson, Laurent Michel, and Emmanuel Ferrier. 2022. "Mechanical Characterisation of GFRP Frame and Beam-to-Column Joints Including Steel Plate Fastened Connections" Materials 15, no. 23: 8282. https://doi.org/10.3390/ma15238282
APA StyleFerrara, G., Helson, O., Michel, L., & Ferrier, E. (2022). Mechanical Characterisation of GFRP Frame and Beam-to-Column Joints Including Steel Plate Fastened Connections. Materials, 15(23), 8282. https://doi.org/10.3390/ma15238282

