Experimental Validation of Deflections of Temporary Excavation Support Plates with the Use of 3D Modelling
Abstract
:1. Introduction
2. Materials and Methods
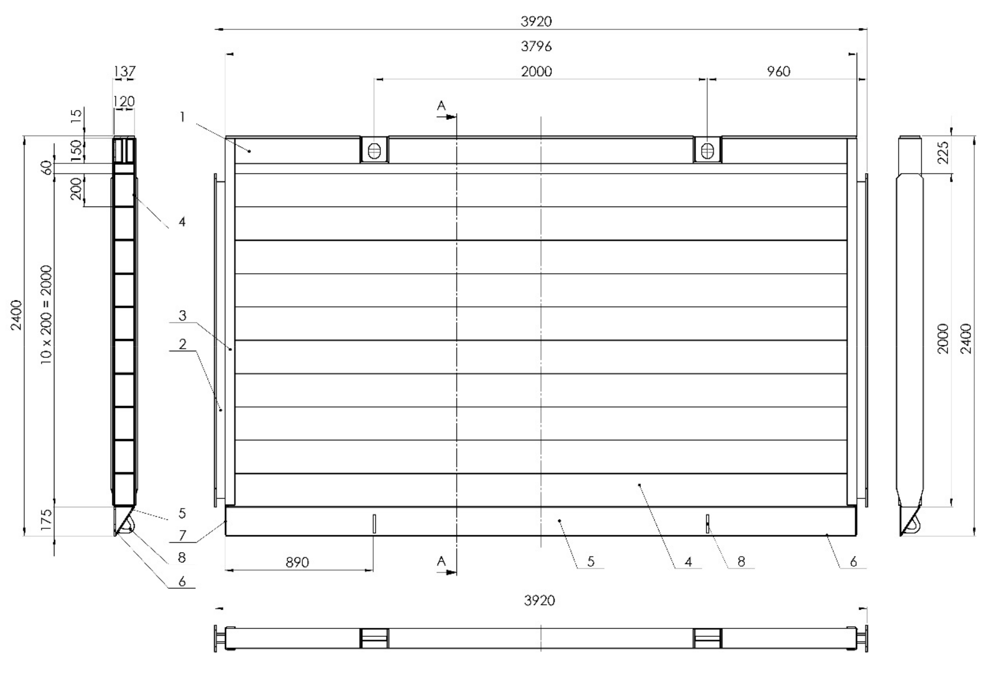
2.1. Description of Research Location and Objectives
2.2. Geotechnical Measurements
2.3. Tests of Stresses in the Soil Using a Hydraulic Probe
2.4. Soil Stress Tests Using a Hydraulic Probe
2.5. Measurement of the Deflection Arrow Taken with a Patch
2.6. TLS Measurement
2.7. Static and Strength Calculations of the Support Plate for the Plate System Calculated with the Finite Difference Method
- w—plate deflection,
- —Poisson’s ratio,
- D—flexural rigidity (),
- h—plate thickness,
- E—elasticity modulus for the plate material,
- Ez—modulus of elasticity for the rib material,
- S—rib area,
- s—size of the mesh division used in calculation, A—plate area,
- q—load perpendicular to the median plane of the plate,
- K—subgrade reaction modulus,
- αt—coefficient of linear thermal expansion of the plate material,
- ΔT = td − tg—temperature difference between the plate planes,
- J—moment of inertia of the rib cross-section.
3. Results
3.1. Geotechnical Tests
3.2. Measurements of the Deflection Arrow Taken with a Patch
3.3. Scanning
3.4. Static and Strength Calculations for a Support Plate Freely Supported on Two Opposite Edges, Based on Tables
3.5. Static and Strength Calculations of a Support Plate for the Plate System Using the Finite Difference Method
3.6. Calculations of the Deflection Arrow of the Plate
4. Analysis of the Results and Discussion
- for S235JR steel qu = = 1.067 kN·cm−1,
- for S355JR steel qu = = 1.61 kN·cm−1.
- lx—length of the plate (lx = 392 cm),
- Ix—moment of inertia (Ix = 7817.01 cm4),
- qu—service load.
5. Conclusions
- Based on the maximum plastic load capacity of the steel fin plate cross-section, the values of permissible deflections were determined. Deflections measured with a patch and a laser scanner were significantly smaller than the values accepted as permissible.
- The analysis of the values of deflections measured both with a patch and a laser scanner (Table 4, Table 5, Table 6 and Table 7) showed that the backfill load does not have a significant effect on the deflection of the lower plate, but it does affect the deflection of the first plate up to a depth of 1.2 m. Deflections of the plate without the backfill load are sometimes greater than deflections with the backfill load recorded for the second and third plate.
- According to PN-EN 13331-1-1:2002 [74], there is no obligation to verify the deflection of support plates of temporary excavations; only the value of the maximum deflection should be provided to users. The authors of the paper believe that this reflects an oversight on the part of the legislator. It would be advantageous if the person conducting construction works (site manager) knew the boundary value of the deflection arrow for excavation support plates, which depends only on the span of the plate, so there is no need to perform any numerical calculations.
- It is recommended, based on Table 11, to assume the limit (maximum) deflection arrow for support plates of temporary excavations at least as , where L is the span of the plate.
Author Contributions
Funding
Institutional Review Board Statement
Informed Consent Statement
Data Availability Statement
Acknowledgments
Conflicts of Interest
References
- Siemińska-Lewandowska, A. Głębokie Wykopy: Projektowanie i Wykonawstwo; Wydawnictwa Komunikacji i Łączności: Warsaw, Poland, 2010; ISBN 8320617650. (In Polish) [Google Scholar]
- Nazarova, E.V.; Kaloshina, S.V.; Zolotozubov, D.G. The choice of a metal sheet piling for the construction of the foundation pit. J. Phys. Conf. Ser. 2021, 1928, 12049. [Google Scholar] [CrossRef]
- Marcinkowski, A.; Gralewski, J. The comparison of the environmental impact of steel and vinyl sheet piling: Life cycle assessment study. Int. J. Environ. Sci. Technol. 2020, 17, 4019–4030. [Google Scholar] [CrossRef]
- Tatiya, R. Surface and Underground Excavations. Methods, Techniques and Equipment, 2nd ed.; CRC Press: Balkema, The Netherlands, 2013; ISBN 9780203440940. [Google Scholar]
- Liu, W.; Li, T.; Wan, J. Deformation Characteristic of a Supported Deep Excavation System: A Case Study in Red Sandstone Stratum. Appl. Sci. 2021, 12, 129. [Google Scholar] [CrossRef]
- Saleh, M.; Vanapalli, S.K. Analysis of Excavation Support Systems Considering the Influence of Saturated and Unsaturated Soil Conditions. J. Geotech. Geoenviron. Eng. 2022, 148, 4022034. [Google Scholar] [CrossRef]
- Kopras, M. Weryfikacja Metod Projektowania i Obliczeń Konstrukcji Płyt Obudowy Wykopów Tymczasowych. Ph.D. Thesis, Poznań University of Life Sciences, Poznań, Poland, 2021. [Google Scholar]
- Jovanović, M.; Zlatkov, D. Excavation support system with piles—Case study. In Proceedings of the 8th International Conference Contemporary Achievements in Civil Engineering, Subotica, Serbia, 22–23 April 2021. [Google Scholar]
- Alam, M.; Chaallal, O.; Galy, B. Flexible temporary shield in soft and sensitive clay: 3D FE modelling of experimental field test. Model. Simul. Eng. 2021, 2021, 6626750. [Google Scholar] [CrossRef]
- Salehi Alamdari, N.; Khosravi, M.H.; Katebi, H. Distribution of lateral active earth pressure on a rigid retaining wall under various motion modes. Int. J. Min. Geo-Eng. 2020, 54, 15–25. [Google Scholar]
- Wang, K.; Liu, G.; Zhang, Y.; Lin, J. Quantification of the active lateral earth pressure changes on retaining walls at the leading edge of steep slopes. Front. Earth Sci. 2022, 223. [Google Scholar] [CrossRef]
- Gołaś, J. Introduction to the Theory of Plates; Opole University of Technology Publishing House: Opole, Poland, 1972. [Google Scholar]
- Donnell, L.H. Beams, Plates and Shells; McGraw-Hill Companies: New York, NY, USA, 1976; ISBN 0070175934. [Google Scholar]
- Naghdi, P.M. The theory of shells and plates. In Linear Theories of Elasticity and Thermoelasticity: Linear and Nonlinear Theories of Rods, Plates, and Shells; Truesdell, C., Ed.; Springer: Berlin/Heidelberg, Germany, 1973; pp. 425–640. ISBN 978-3-662-39776-3. [Google Scholar]
- Panc, V. Theories of Elastic Plates; Springer Science & Business Media: Berlin/Heidelberg, Germany, 1975; ISBN 902860104X. [Google Scholar]
- Timoshenko, S.; Woinowsky-Krieger, S. Theory of Plates and Coatings; Arkady: Warsaw, Poland, 1962. [Google Scholar]
- Szilard, R. Theories and applications of plate analysis: Classical, numerical and engineering methods. Appl. Mech. Rev. 2004, 57, B32–B33. [Google Scholar] [CrossRef]
- Ugural, A.C. Stresses in Plates and Shells; McGraw-Hill Science, Engineering & Mathematics: New York, NY, USA, 1999; ISBN 0070657696. [Google Scholar]
- Wilde, P. Variational approach of finite differences in the theory of plate. In Proceedings of the Materials of XII Scientific Conference of the Committee of Science PZiTB and the Committee of Civil Engineering of Polish Academy of Sciences, Krynica, Poland, 12–17 September 1966; pp. 12–17. [Google Scholar]
- Tribiłło, R. Application of the generalized finite difference method for plate calculations. Arch. Inżynierii Lądowej 1975, 2, 579–586. [Google Scholar]
- Son, M.; Jung, H.S.; Yoon, H.H.; Sung, D.; Kim, J.S. Numerical study on scale Effect of repetitive plate-loading test. Appl. Sci. 2019, 9, 4442. [Google Scholar] [CrossRef] [Green Version]
- Nowacki, W. Z Zastosowań Rachunku Różnic Skończonych W Mechanice Budowli; Wydawnictwo Zakładu Mechaniki Budowlanej Politechniki Gdańskiej: Gdańsk, Poland, 1952. [Google Scholar]
- Rapp, B.E. Chapter 30—Finite Difference Method. In Microfluidics: Modelling, Mechanics and Mathematics, Micro and Nano Technologies; Rapp, B.E., Ed.; William Andrew: Norwich, NY, USA, 2017; pp. 623–631. [Google Scholar]
- Blazek, J. Principles of solution of the governing equations. In Computational Fluid Dynamics: Principles and Applications, 3rd ed.; Blazek, J., Ed.; Butterworth-Heinemann: Woburn, MA, USA, 2015; pp. 121–166. [Google Scholar]
- Sadd, M.H. Chapter 5—Formulation and Solution Strategies. In Elasticity, Theory, Applications, and Numerics; Sadd, M.H., Ed.; Academic Press: Cambridge, MA, USA, 2005; pp. 83–102. [Google Scholar]
- Szymczak-Graczyk, A. Numerical analysis of the impact of thermal spray insulation solutions on floor loading. Appl. Sci. 2020, 10, 1016. [Google Scholar] [CrossRef] [Green Version]
- Szymczak-Graczyk, A. Rectangular plates of a trapezoidal cross-section subjected to thermal load. In IOP Conference Series: Materials Science and Engineering; IOP Publishing: Bristol, UK, 2019; p. 32095. ISBN 1757-899X. [Google Scholar]
- Numayr, K.S.; Haddad, R.H.; Haddad, M.A. Free vibration of composite plates using the finite difference method. Thin-Walled Struct. 2004, 42, 399–414. [Google Scholar] [CrossRef]
- Buczkowski, W.; Szymczak-Graczyk, A.; Walczak, Z. Experimental validation of numerical static calculations for a monolithic rectangular tank with walls of trapezoidal cross-section. Bull. Pol. Acad. Sci. Tech. Sci. 2017, 65, 6. [Google Scholar] [CrossRef] [Green Version]
- Szymczak-Graczyk, A. Floating platforms made of monolithic closed rectangular tanks. Bull. Pol. Acad. Sci. Tech. Sci. 2018, 66, 2. [Google Scholar] [CrossRef]
- Szymczak-Graczyk, A. Numerical Analysis of the Bottom Thickness of Closed Rectangular Tanks Used as Pontoons. Appl. Sci. 2020, 10, 8082. [Google Scholar] [CrossRef]
- Szymczak-Graczyk, A. The Effect of Subgrade Coefficient on Static Work of a Pontoon Made as a Monolithic Closed Tank. Appl. Sci. 2021, 11, 4259. [Google Scholar] [CrossRef]
- Wu, Y.; Qiao, W.; Li, Y.; Jiao, Y.; Zhang, S.; Zhang, Z.; Liu, H. Application of computer method in solving complex engineering technical problems. IEEE Access 2021, 9, 60891–60912. [Google Scholar] [CrossRef]
- Lee, Y.-Z.; Schubert, W. Determination of the round length for tunnel excavation in weak rock. Tunn. Undergr. Space Technol. 2008, 23, 221–231. [Google Scholar] [CrossRef]
- Lemmens, M. Terrestrial Laser Scanning. In Geo-Information: Technologies, Applications and the Environment; Lemmens, M., Ed.; Springer: Dordrecht, The Netherlands, 2011; pp. 101–121. ISBN 978-94-007-1667-4. [Google Scholar]
- Cheng, X.J.; Jin, W. Study on reverse engineering of historical architecture based on 3D laser scanner. In Journal of Physics: Conference Series; IOP Publishing: Bristol, UK, 2006; p. 160. ISBN 1742-6596. [Google Scholar]
- Szolomicki, J. (Ed.) Application of 3D laser scanning to computer model of historic buildings. In Proceedings of the World Congress on Engineering and Computer Science, San Francisco, CA, USA, 21–23 October 2015. [Google Scholar]
- Skwirosz, A.; Bojarowski, K. The Inventory and Recording of Historic Buildings Using Laser Scanning and Spatial Systems. In Proceedings of the 2018 Baltic Geodetic Congress (BGC Geomatics), Olsztyn, Poland, 21–23 June 2018; pp. 340–343, ISBN 1538648989. [Google Scholar]
- Gleń, P.; Krupa, K. The use of 3D scanning for the inventory of historical buildings on the example of the palace in Snopków. Teka Kom. Archit. Urban. Studiów Kraj. 2019, 15, 73–78. [Google Scholar] [CrossRef]
- Lipecki, T. Geodetic and Architectural Inventory of the Historic Wooden Church of St. Szczepan in Mnichów (Poland) in Terms of Safety Assessment of the Geometric Condition of the Structure 2020. Available online: https://assets.researchsquare.com/files/rs-107843/v1/14998c5c-c307-445d-8462-95fede74b381.pdf?c=1631861438 (accessed on 9 July 2022).
- Przyborski, M.; Tysiąc, P. As-built inventory of the office building with the use of terrestrial laser scanning. E3S Web Conf. 2018, 26, 1–4. [Google Scholar] [CrossRef] [Green Version]
- Klapa, P.; Mitka, B.; Bożek, P. Inventory of various stages of construction using TLS technology. In Proceedings of the International Multidisciplinary Scientific GeoConference Surveying Geology and Mining Ecology Management, SGEM, Dobrich, Bulgaria, 30 June 2018; Volume 18, pp. 137–144. [Google Scholar]
- Gardzińska, A. Application of Terrestrial Laser Scanning for the Inventory of Historical Buildings on the Example of Measuring the Elevations of the Buildings in the Old Market Square in Jarosław. Civ. Environ. Eng. Rep. 2021, 31, 293–309. [Google Scholar] [CrossRef]
- Lercari, N. Monitoring earthen archaeological heritage using multi-temporal terrestrial laser scanning and surface change detection. J. Cult. Herit. 2019, 39, 152–165. [Google Scholar] [CrossRef] [Green Version]
- Nowak, R.; Orłowicz, R.; Rutkowski, R. Use of TLS (LiDAR) for building diagnostics with the example of a historic building in Karlino. Buildings 2020, 10, 24. [Google Scholar] [CrossRef] [Green Version]
- Bernat, M.; Janowski, A.; Rzepa, S.; Sobieraj, A.; Szulwic, J. Studies on the use of terrestrial laser scanning in the maintenance of buildings belonging to the cultural heritage. In Proceedings of the 14th Geoconference on Informatics, Geoinformatics and Remote Sensing, SGEM. ORG, Albena, Bulgaria, 17 June 2014; Volume 3, pp. 307–318. [Google Scholar]
- Liu, J.; Zhang, Q.; Wu, J.; Zhao, Y. Dimensional accuracy and structural performance assessment of spatial structure components using 3D laser scanning. Autom. Constr. 2018, 96, 324–336. [Google Scholar] [CrossRef]
- Kwiatkowski, J.; Anigacz, W.; Beben, D. A case study on the noncontact inventory of the oldest european cast-iron bridge using terrestrial laser scanning and photogrammetric techniques. Remote Sens. 2020, 12, 2745. [Google Scholar] [CrossRef]
- Skrzypczak, I.; Oleniacz, G.; Leśniak, A.; Zima, K.; Mrówczyńska, M.; Kazak, J.K. Scan-to-BIM method in construction: Assessment of the 3D buildings model accuracy in terms inventory measurements. Build. Res. Inf. 2022, 1–22. [Google Scholar] [CrossRef]
- Borkowski, A.; Jóźków, G. Accuracy assessment of building models created from laser scanning data. Int. Arch. Photogramm. Remote Sens. Spat. Inf. Sci. 2012, 39, B3. [Google Scholar] [CrossRef] [Green Version]
- Klapa, P.; Mitka, B.; Zygmunt, M. Study into point cloud geometric rigidity and accuracy of TLS-based identification of geometric bodies. In IOP Conference Series: Earth and Environmental Science; IOP Publishing: Bristol, UK, 2017; p. 32008. ISBN 1755-1315. [Google Scholar]
- Zámečníková, M.; Wieser, A.; Woschitz, H.; Ressl, C. Influence of surface reflectivity on reflectorless electronic distance measurement and terrestrial laser scanning. J. Appl. Geod. 2014, 8, 311–326. [Google Scholar] [CrossRef] [Green Version]
- Schmitz, B.; Holst, C.; Medic, T.; Lichti, D.D.; Kuhlmann, H. How to efficiently determine the range precision of 3d terrestrial laser scanners. Sensors 2019, 19, 1466. [Google Scholar] [CrossRef] [Green Version]
- Gleń, P.; Krupa, K. Comparative analysis of the inventory process using manual measurements and laser scanning. Bud. Archit. 2019, 18, 21–30. [Google Scholar] [CrossRef] [Green Version]
- El-Omari, S.; Moselhi, O. Integrating 3D laser scanning and photogrammetry for progress measurement of construction work. Autom. Constr. 2008, 18, 1–9. [Google Scholar] [CrossRef]
- Rocha, G.; Mateus, L.; Fernández, J.; Ferreira, V. A scan-to-BIM methodology applied to heritage buildings. Heritage 2020, 3, 47–67. [Google Scholar] [CrossRef] [Green Version]
- Fawzy, H.E.-D. 3D laser scanning and close-range photogrammetry for buildings documentation: A hybrid technique towards a better accuracy. Alex. Eng. J. 2019, 58, 1191–1204. [Google Scholar] [CrossRef]
- Grussenmeyer, P.; Alby, E.; Landes, T.; Koehl, M.; Guillemin, S.; Hullo, J.-F.; Assali, P.; Smigiel, E. Recording approach of heritage sites based on merging point clouds from high resolution photogrammetry and terrestrial laser scanning. Int. Arch. Photogramm. Remote Sens. Spat. Inf. Sci. 2012, 39, 553–558. [Google Scholar] [CrossRef] [Green Version]
- Remondino, F. Heritage recording and 3D modeling with photogrammetry and 3D scanning. Remote Sens. 2011, 3, 1104–1138. [Google Scholar] [CrossRef] [Green Version]
- Sahin, C.; Alkis, A.; Ergun, B.; Kulur, S.; Batuk, F.; Kilic, A. Producing 3D city model with the combined photogrammetric and laser scanner data in the example of Taksim Cumhuriyet square. Opt. Lasers Eng. 2012, 50, 1844–1853. [Google Scholar] [CrossRef]
- Biagini, C.; Capone, P.; Donato, V.; Facchini, N. Towards the BIM implementation for historical building restoration sites. Autom. Constr. 2016, 71, 74–86. [Google Scholar] [CrossRef]
- Mahdjoubi, L.; Moobela, C.; Laing, R. Providing real-estate services through the integration of 3D laser scanning and building information modelling. Comput. Ind. 2013, 64, 1272–1281. [Google Scholar] [CrossRef]
- Osello, A.; Lucibello, G.; Morgagni, F. HBIM and virtual tools: A new chance to preserve architectural heritage. Buildings 2018, 8, 12. [Google Scholar] [CrossRef] [Green Version]
- López, F.J.; Lerones, P.M.; Llamas, J.; Gómez-García-Bermejo, J.; Zalama, E. A review of heritage building information modeling (H-BIM). Multimodal Technol. Interact. 2018, 2, 21. [Google Scholar] [CrossRef] [Green Version]
- Bruno, S.; de Fino, M.; Fatiguso, F. Historic Building Information Modelling: Performance assessment for diagnosis-aided information modelling and management. Autom. Constr. 2018, 86, 256–276. [Google Scholar] [CrossRef]
- Andriasyan, M.; Moyano, J.; Nieto-Julián, J.E.; Antón, D. From point cloud data to building information modelling: An automatic parametric workflow for heritage. Remote Sens. 2020, 12, 1094. [Google Scholar] [CrossRef] [Green Version]
- Szymczak-Graczyk, A.; Walczak, Z.; Ksit, B.; Szyguła, Z. Multi-criteria diagnostics of historic buildings with the use of 3D laser scanning (a case study). Bull. Pol. Acad. Sci. Tech. Sci. 2022, 70, e140373. [Google Scholar] [CrossRef]
- Lunne, T.; Powell, J.J.M.; Robertson, P.K. Cone Penetration Testing in Geotechnical Practice; CRC Press: Boca Raton, FL, USA, 2002; ISBN 0429177801. [Google Scholar]
- Girardeau-Montaut, D. CloudCompare, v. 2.6.1. Available online: https://danielgm.net/cc/doc/qCC/CloudCompare%20v2.6.1%20-%20User%20manual.pdf (accessed on 9 July 2022).
- Kączkowski, Z. Plates. Static Calculations. Wyd. 3 zm; Arkady: Warszawa, Poland, 2000; ISBN 83-213-4188-8. [Google Scholar]
- PN-81-B-03020; Grunty Budowlane. Posadowienie Bezpośrednie Budowli. Obliczenia Statyczne i Projektowanie. Polish Committee for Standardization: Warsaw, Poland, 1981.
- PN-83-B-03010; Ściany Oporowe, Obliczenia Statyczne i Projektowanie. Polish Committee for Standardization: Warsaw, Poland, 1983.
- Buczkowski, W. Prostokątne Studnie Opuszczone—Tabela do Obliczeń Statycznych Płyt Ściennych; Budownictwo Przemysłowe: Poznań, Poland, 1988. [Google Scholar]
- PN-EN 13331-1-1:2002; Obudowy Ścian Wykopów. Część 1. 2002. Polish Committee for Standardization: Warsaw, Poland, 2002.
- PN-EN 1990:2004; Eurokod. Podstawy projektowania konstrukcji. Polish Committee for Standardization: Warsaw, Poland, 2004.
- Alam, M.; Chaallal, O.; Galy, B. Soil-structure interaction of flexible temporary trench box: Parametric studies using 3D FE modelling. Model. Simul. Eng. 2021, 2021, 9949976. [Google Scholar] [CrossRef]
- Alam, M.; Chaallal, O.; Galy, B. Field test of temporary excavation wall support in sensitive clay. ISSMGE Int. J. Geoengin. Case Hist. IJGCH 2021, 6, 18–40. [Google Scholar]
- PN-EN 1993-1-1:2006; Eurocode 3: Design of Steel Structures. Part 1-1: General Rules and Rules for Buildings. Polish Committee for Standardization: Warsaw, Poland, 2006.
















| Measurement No./Support Plate No. | Height Ordinate Below Ground Level |
|---|---|
| 1/plate 1 (upper) | 0.64 |
| 2/plate 2 (middle) | 1.64 |
| 3/plate 2 (middle) | 2.59 |
| 4/plate 2 (middle) | 3.51 |
| 5/plate 3 (bottom) | 3.86 |
| 6/plate 3 (bottom) | 4.79 |
| 7/plate 3 (bottom) | 5.72 |
| Date | Backfill Load [kN·m−2] | |
|---|---|---|
| Stage-I | 20 September 2019 | 0.00 |
| 29 September 2019 | 15.36 | |
| 06 October 2019 | 26.88 | |
| 12 October 2019 | 38.40 | |
| Stage-II | 29 October 2019 | 3.84 |
| 05 November 2019 | 15.36 | |
| 14 November 2019 | 26.88 | |
| 24 November 2019 | 38.40 |
| Layer Gap | Soil Type | Compaction Degree | Volumetric Weight | Angle of Internal Friction | |
|---|---|---|---|---|---|
| from | to | γ | φu | ||
| [m] | [m] | [-] | [-] | [kN·m−3] | [°] |
| 0.0 | 0.2 | Soil | - | 17.00 | - |
| 0.2 | 0.7 | MSa | 0.74 | 18.86 | 34.61 |
| 0.7 | 1.4 | MSa | 0.45 | 18.43 | 32.67 |
| 1.4 | 1.8 | MSa | 0.57 | 18.61 | 33.47 |
| 1.8 | 2.2 | Saπ | 0.43 | 17.51 | 30.15 |
| 2.2 | 2.8 | MSa | 0.79 | 18.94 | 34.94 |
| 2.8 | 3.8 | FSa | 0.74 | 18.21 | 31.70 |
| 3.8 | 5.1 | FSa | 0.88 | 18.52 | 32.40 |
| 5.1 | 5.7 | Saπ | 0.47 | 17.60 | 30.35 |
| 5.7 | 6.0 | MSa | 0.94 | 19.16 | 35.94 |
| Date | I 24 September 2019 | II 25 September 2019 | III 26 September 2019 | IV 30 September 2019 | V 04 October 2019 | VI 14 October 2019 | |
|---|---|---|---|---|---|---|---|
| Plate | Ordinate of the measurement m below ground level | Backfill load [kN⋅m−2] | |||||
| 0.00 | 3.84 | 15.36 | 15.36 | 26.88 | 38.4 | ||
| [mm] | [mm] | [mm] | [mm] | [mm] | [mm] | ||
| upper plate | 0.64 | - | - | - | 2.00 | 2.00 | 2.00 |
| middle plate | 1.64 | - | 5.50 | 5.75 | 5.00 | 5.50 | 5.00 |
| 2.59 | - | 5.00 | 7.00 | 5.50 | 5.25 | 5.25 | |
| 3.51 | 9.00 | 9.25 | 9.75 | 8.00 | 8.50 | 8.00 | |
| bottom plate | 3.86 | 7.00 | 6.75 | 7.25 | 7.25 | 7.50 | 7.50 |
| 4.79 | 12.50 | 12.50 | 12.00 | 12.00 | 12.00 | 12.00 | |
| 5.72 | 15.50 | 15.50 | 15.25 | 14.75 | 14.75 | 14.75 | |
| Date | 29 October 2019 | 05 November 2019 | 12 November 2019 | 21 November 2019 | |
|---|---|---|---|---|---|
| Plate | m below ground level | Backfill load [kN⋅m−2] | |||
| 3.84 | 15.36 | 26.88 | 38.40 | ||
| upper plate | 0.64 | 1.00 | 4.50 | 4.50 | 5.50 |
| middle plate | 1.64 | 8.50 | 7.50 | 7.50 | 8.00 |
| 2.59 | 6.00 | 6.25 | 7.00 | 6.75 | |
| 3.51 | 11.75 | 12.00 | 12.00 | 12.50 | |
| bottom plate | 3.86 | 5.00 | 4.00 | 4.50 | 4.00 |
| 4.79 | 9.00 | 10.00 | 10.00 | 10.00 | |
| 5.72 | 10.00 | 10.50 | 10.50 | 11.00 | |
| Date | 20 September 2019 | 29 September 2019 | 06 October 2019 | 12 October 2019 | |
|---|---|---|---|---|---|
| Plate | m belowground level | Backfill load [kN⋅m−2] | |||
| 0.00 | 15.36 | 26.88 | 38.40 | ||
| [mm] | [mm] | [mm] | [mm] | ||
| upper plate | 0.64 | 0.30 | 3.50 | 4.00 | 9.20 |
| middle plate | 1.64 | 6.80 | 7.00 | 7.00 | 7.20 |
| 2.59 | 5.50 | 4.90 | 5.60 | 5.40 | |
| 3.51 | 9.30 | 9.30 | 9.10 | 8.80 | |
| bottom plate | 3.86 | 8.10 | 7.60 | 7.40 | 7.90 |
| 4.79 | 12.60 | 12.50 | 12.90 | 12.40 | |
| 5.72 | 16.00 | 15.70 | 14.40 | 15.00 | |
| Date | 29 October 2019 | 05 November 2019 | 12 November 2019 | 24 November 2019 | |
|---|---|---|---|---|---|
| Plate | m belowground level | Backfill load [kN⋅m−2] | |||
| 3.84 | 15.36 | 26.88 | 38.40 | ||
| upper plate | 0.64 | 4.68 | 5.67 | 5.87 | 6.65 |
| middle plate | 1.64 | 6.98 | 7.65 | 7.57 | 8.68 |
| 2.59 | 7.62 | 8.57 | 7.53 | 8.44 | |
| 3.51 | 11.90 | 11.96 | 12.90 | 13.21 | |
| bottom plate | 3.86 | 4.26 | 4.18 | 4.26 | 4.36 |
| 4.79 | 7.39 | 7.52 | 7.27 | 7.95 | |
| 5.72 | 11.50 | 11.23 | 11.51 | 11.11 | |
| Date | 30 September 2019 (Scanner: 29 September 2019) | 04 October 2019 (Scanner: 06 October 2019) | 14 October 2019 (Scanner: 12 October 2019) | ||||
|---|---|---|---|---|---|---|---|
| Backfill load [kN⋅m−2] | 15.36 | 26.88 | 38.4 | ||||
| P | S | P | S | P | S | ||
| m belowground level | [mm] | ||||||
| upper plate | 0.64 | 2.00 | 3.50 | 2.00 | 4.00 | 2.00 | 9.20 |
| middle plate | 1.64 | 5.00 | 7.00 | 5.50 | 7.00 | 5.00 | 7.20 |
| 2.59 | 5.50 | 4.90 | 5.25 | 5.60 | 5.25 | 5.40 | |
| 3.51 | 8.00 | 9.30 | 8.50 | 9.10 | 8.00 | 8.80 | |
| bottom plate | 3.86 | 7.25 | 7.60 | 7.50 | 7.40 | 7.50 | 7.90 |
| 4.79 | 12.00 | 12.50 | 12.00 | 12.90 | 12.00 | 12.40 | |
| 5.72 | 14.75 | 15.70 | 14.75 | 14.40 | 14.75 | 15.00 | |
| Date | 28 October 2019 (Scanner: 29 October 2019) | 05 November 2019 | 12 November 2019 (Scanner: 14 November 2019) | 21 November 2019 (Scanner: 24 November 2019) | |||||
|---|---|---|---|---|---|---|---|---|---|
| Backfill load [kN⋅m−2] | 3.84 | 15.36 | 26.88 | 38.40 | |||||
| P | S | P | S | P | S | P | S | ||
| m below ground level | [mm] | ||||||||
| upper plate | 0.64 | 1.00 | 4.68 | 4.50 | 5.67 | 4.50 | 5.87 | 5.50 | 6.65 |
| middle plate | 1.64 | 8.50 | 6.98 | 7.50 | 7.65 | 7.50 | 7.57 | 8.00 | 8.68 |
| 2.59 | 6.00 | 7.62 | 6.25 | 8.57 | 7.00 | 7.53 | 6.75 | 8.44 | |
| 3.51 | 11.75 | 11.90 | 12.00 | 11.96 | 12.00 | 12.90 | 12.50 | 13.21 | |
| bottom plate | 3.86 | 5.00 | 4.26 | 4.00 | 4.18 | 4.50 | 4.26 | 4.00 | 4.36 |
| 4.79 | 9.00 | 7.39 | 10.00 | 7.52 | 10.00 | 7.27 | 10.00 | 7.95 | |
| 5.72 | 10.00 | 11.50 | 10.50 | 11.23 | 10.50 | 11.51 | 11.00 | 11.11 | |
| The Method of Obtaining the Values of Deflections | The Value of Deflection in the Lower Edge of the Plate, at the Bottom of the Excavation, for Backfill Load 0.00 kN⋅m−2 |
|---|---|
| patch (Table 4) | w = 15.50 mm |
| scanner (Table 6) | w = 16.00 mm |
| calculations acc. [73] | w = 14.95 mm |
| detailed FDM calculations | w = 14.99 mm |
| The Method of Obtaining the Values of Deflection | Calculated Value of the Deflection Arrow (Where lx Is the Length of the Plate) |
|---|---|
| Patch (wmax = 15.50 mm) | |
| Scanner (wmax = 16.00 mm) | |
| Calculations acc. [73] (wmax = 14.95 mm) | |
| Detailed FDM calculations (wmax = 14.99 mm) | |
| Calculations based on the maximum plastic load capacity for S235JR steel | |
| Calculations based on the maximum plastic load capacity for S355JR steel |
Publisher’s Note: MDPI stays neutral with regard to jurisdictional claims in published maps and institutional affiliations. |
© 2022 by the authors. Licensee MDPI, Basel, Switzerland. This article is an open access article distributed under the terms and conditions of the Creative Commons Attribution (CC BY) license (https://creativecommons.org/licenses/by/4.0/).
Share and Cite
Kopras, M.; Buczkowski, W.; Szymczak-Graczyk, A.; Walczak, Z.; Gogolik, S. Experimental Validation of Deflections of Temporary Excavation Support Plates with the Use of 3D Modelling. Materials 2022, 15, 4856. https://doi.org/10.3390/ma15144856
Kopras M, Buczkowski W, Szymczak-Graczyk A, Walczak Z, Gogolik S. Experimental Validation of Deflections of Temporary Excavation Support Plates with the Use of 3D Modelling. Materials. 2022; 15(14):4856. https://doi.org/10.3390/ma15144856
Chicago/Turabian StyleKopras, Marek, Wiesław Buczkowski, Anna Szymczak-Graczyk, Zbigniew Walczak, and Sławomir Gogolik. 2022. "Experimental Validation of Deflections of Temporary Excavation Support Plates with the Use of 3D Modelling" Materials 15, no. 14: 4856. https://doi.org/10.3390/ma15144856
APA StyleKopras, M., Buczkowski, W., Szymczak-Graczyk, A., Walczak, Z., & Gogolik, S. (2022). Experimental Validation of Deflections of Temporary Excavation Support Plates with the Use of 3D Modelling. Materials, 15(14), 4856. https://doi.org/10.3390/ma15144856

