In Situ Experimental Study on the Behavior of UHPC Composite Orthotropic Steel Bridge Deck
Abstract
:1. Introduction
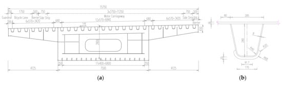
2. Case Bridge Information
3. Load Test of the Bridge Deck
3.1. Test Content and Arrangement of Testing Points
3.2. Loading Procedures
4. Test Results
4.1. Tangential Stresses of Diaphragm Cutout
4.2. Principal Stresses of Rib-to-Diaphragm
4.3. Hotpot Stresses of Rib Web-to-Deck
4.4. Hotpot Stresses of Girder Web-to-Deck
4.5. Stresses of Deck Plate
4.6. Stresses of U-Shape Rib
4.7. Deflection of OSD Components
5. Conclusions
- The composite deck with UHPC layer significantly reduced the hot spot stress of U rib web-to-deck connection region and the stress of deck plate. The stress of weld toe at U rib web and deck plated decreased 75% and 42%, respectively, and the transverse stress of deck plate decreased 69%. In addition, the UHPC layer significantly improved the integral rigidity of the bridge deck system. The deflection of U rib and deck plate averagely decreased 23% and 27% after UHPC layer paving, respectively;
- The composite deck with UHPC layer effectively reduced the stress of U rib-to-diaphragm connection region. After UHPC layer paving, the stress of U rib surface, under the rib-to-diaphragm weld bottom toe, averagely decreased 26%. The stress of U rib surface, beside the rib-to-diaphragm weld bottom toe, averagely decreased 27%;
- The composite deck with UHPC layer slightly reduced the stress of U shape rib, girder web-to-deck and diaphragm cutout.
Author Contributions
Funding
Conflicts of Interest
References
- De Jong, F.B.P. Overview fatigue phenomenon in orthotropic bridge decks in the Netherlands. In Proceedings of the 2004 Orthotropic Bridge Conference, Sacramento, CA, USA, 25–27 August 2004. [Google Scholar]
- Kolstein, M.H. Fatigue Classification of Welded Joints in Orthotropic Steel Bridge Decks. Ph.D. Thesis, Delft University of Technology, Mekelweg, The Netherlands, 2007. [Google Scholar]
- Li, M.; Suzuki, Y.; Hashimoto, K.; Sugiura, K. Experimental study on fatigue resistance of rib-to-deck joint in orthotropic steel bridge deck. J. Bridge Eng. 2017, 23, 04017128. [Google Scholar] [CrossRef]
- Cheng, B.; Ye, X.; Cao, X.; Mbako, D.D.; Cao, Y. Experimental study on fatigue failure of rib-to-deck welded connections in orthotropic steel bridge decks. Int. J. Fatigue 2017, 103, 157–167. [Google Scholar] [CrossRef]
- Kainuma, S.; Yang, M.; Jeong, Y.S.; Inokuchi, S.; Kawabata, A.; Uchida, D. Experiment on fatigue behavior of rib-to-deck weld root in orthotropic steel decks. J. Constr. Steel Res. 2016, 119, 113–122. [Google Scholar] [CrossRef]
- Xiao, Z.G.; Yamada, K.; Inoue, J.; Yamaguchi, K. Fatigue cracks in longitudinal ribs of steel orthotropic deck. J. Constr. Steel Res. 2006, 28, 409–416. [Google Scholar] [CrossRef]
- Choi, J.H.; Kim, D.H. Stress characteristics and fatigue crack behaviour of the longitudinal rib-to-cross beam joints in an orthotropic steel deck. Adv. Struct. Eng. 2008, 11, 189–198. [Google Scholar] [CrossRef]
- Aygül, M.; Al-Emrani, M.; Urushadze, S. Modelling and fatigue life assessment of orthotropic bridge deck details using FEM. Int. J. Fatigue 2012, 40, 129–142. [Google Scholar] [CrossRef]
- Battista, R.C.; Pfeil, M.S. Enhancing the fatigue life of Rio-Niteroi bridge’s orthotropic steel deck. In Proceedings of the IABSE Symposium, Rio de Janeiro, Brazil, 23–28 August 1999. [Google Scholar]
- Arnaud, L.; Houel, A. Fatigue damage of asphalt pavement on an orthotropic bridge deck: Mechanical monitoring with ultrasonic wave propagation. Road Mater. Pavement 2007, 8, 505–522. [Google Scholar] [CrossRef]
- Günther, G.H.; Bild, S.; Sedlacek, G. Durability of asphaltic pavements on orthotropic decks of steel bridges. J. Constr. Steel Res. 1987, 7, 85–106. [Google Scholar] [CrossRef]
- Seim, C.; Ingham, T. Influence of wearing surfacing on performance of orthotropic steel plate decks. Transport. Res. Rec. 2004, 1892, 98–106. [Google Scholar] [CrossRef]
- Liu, Y.; Qian, Z.; Hu, J.; Jin, L. Temperature behavior and stability analysis of orthotropic steel bridge deck during gussasphalt pavement paving. J. Bridge Eng. 2017, 23, 04017117. [Google Scholar] [CrossRef]
- Lu, Q.; Bors, J. Alternate uses of epoxy asphalt on bridge decks and roadways. Constr. Build. Mater. 2015, 78, 18–25. [Google Scholar] [CrossRef]
- Qian, Z.; Chen, C.; Jiang, C.; De Fortier, S.A. Development of a lightweight epoxy asphalt mixture for bridge decks. Constr. Build. Mater. 2013, 48, 516–520. [Google Scholar] [CrossRef]
- Huang, W. Integrated design procedure for epoxy asphalt concrete–based wearing surface on long-span orthotropic steel deck bridges. J. Mater. Civ. Eng. 2015, 28, 04015189. [Google Scholar] [CrossRef]
- Buitelaar, P.; Braam, R.; Kaptijn, N. Reinforced high performance concrete overlay system for rehabilitation and strengthening of orthotropic steel bridge decks. In Proceedings of the 2004 Orthotropic Bridge Conference, Sacramento, CA, USA, 25–27 August 2004. [Google Scholar]
- Murakoshi, J.; Yanadori, N.; Ishii, H. Research on steel fiber reinforced concrete pavement for orthotropic steel deck as a countermeasure for fatigue. Stress 2008, 1, 1–13. [Google Scholar]
- Hajar, Z.; Novarin, M.; Servant, C.; Généreux, G.; Przybyla, D.; Bitar, D. Innovative solution for strengthening orthotropic decks using UHPFRC: The Illzach bridge. Proceedings of International Symposium on Ultra-High Performance Fiber-Reinforced Concrete, Marseille, France, 1–3 October 2013. [Google Scholar]
- Shao, X.; Yi, D.; Huang, Z.; Zhao, H.; Chen, B.; Liu, M. Basic performance of the composite deck system composed of orthotropic steel deck and ultrathin RPC layer. J. Bridge Eng. 2013, 18, 417–428. [Google Scholar] [CrossRef]
- Shao, X.; Cao, J. Fatigue assessment of steel-UHPC lightweight composite deck based on multiscale FE analysis: Case study. J. Bridge Eng. 2017, 23, 05017015. [Google Scholar] [CrossRef]
- Zhang, S.; Shao, X.; Cao, J.; Cui, J.; Hu, J.; Deng, L. Fatigue performance of a lightweight composite bridge deck with open ribs. J. Bridge Eng. 2016, 21, 04016039. [Google Scholar] [CrossRef]
- Zhu, Z.; Yuan, T.; Xiang, Z.; Huang, Y.; Zhou, Y.E.; Shao, X. Behavior and fatigue performance of details in an orthotropic steel bridge with UHPC-deck plate composite system under in-service traffic flows. J. Bridge Eng. 2017, 23, 04017142. [Google Scholar] [CrossRef]
- Cao, J.; Shao, X.; Deng, L.; Gan, Y. Static and fatigue behavior of short-headed studs embedded in a thin ultrahigh-performance concrete layer. J. Bridge Eng. 2017, 22, 04017005. [Google Scholar] [CrossRef]
- Shao, X.; Qu, W.; Cao, J.; Yao, Y. Static and fatigue properties of the steel-UHPC lightweight composite bridge deck with large U ribs. J. Constr. Steel Res. 2018, 148, 491–507. [Google Scholar] [CrossRef]
- Wang, S.; Ke, Z.; Gao, Y.; Zhang, Y. Long-term in situ performance investigation of orthotropic steel bridge deck strengthened by SPS and RPC solutions. J. Bridge Eng. 2019, 24, 04019054. [Google Scholar] [CrossRef]



















| Elements | Density (kg/m3) | Elastic Modulus (MPa) | Poisson’s Ratio | Tensile Strength (MPa) | Compressive Strength (MPa) |
|---|---|---|---|---|---|
| steel deck plate | 7850 | 2.06 × 105 | 0.30 | 345 | - |
| reinforcing bar | 7850 | 2.06 × 105 | 0.30 | 400 | - |
| stud | 7850 | 2.06 × 105 | 0.30 | 375 | - |
| UHPC | 2700 | 4.26 × 104 | 0.2 | 7.89 | 129.1 |
| asphalt wearing surface | 2430 | 1.00 × 103 | 0.30 | 1 | - |
© 2020 by the authors. Licensee MDPI, Basel, Switzerland. This article is an open access article distributed under the terms and conditions of the Creative Commons Attribution (CC BY) license (http://creativecommons.org/licenses/by/4.0/).
Share and Cite
Su, L.; Wang, S.; Gao, Y.; Liu, J.; Shao, X. In Situ Experimental Study on the Behavior of UHPC Composite Orthotropic Steel Bridge Deck. Materials 2020, 13, 253. https://doi.org/10.3390/ma13010253
Su L, Wang S, Gao Y, Liu J, Shao X. In Situ Experimental Study on the Behavior of UHPC Composite Orthotropic Steel Bridge Deck. Materials. 2020; 13(1):253. https://doi.org/10.3390/ma13010253
Chicago/Turabian StyleSu, Li, Shilei Wang, Yan Gao, Jianlei Liu, and Xudong Shao. 2020. "In Situ Experimental Study on the Behavior of UHPC Composite Orthotropic Steel Bridge Deck" Materials 13, no. 1: 253. https://doi.org/10.3390/ma13010253
APA StyleSu, L., Wang, S., Gao, Y., Liu, J., & Shao, X. (2020). In Situ Experimental Study on the Behavior of UHPC Composite Orthotropic Steel Bridge Deck. Materials, 13(1), 253. https://doi.org/10.3390/ma13010253

