Experimental and Numerical Simulation of the Resistance Characteristics and Desulfurization Efficiency of Rod-Shaped Turbulators in WFGD for Green Power Systems
Abstract
1. Introduction
2. Cold Model Experiment
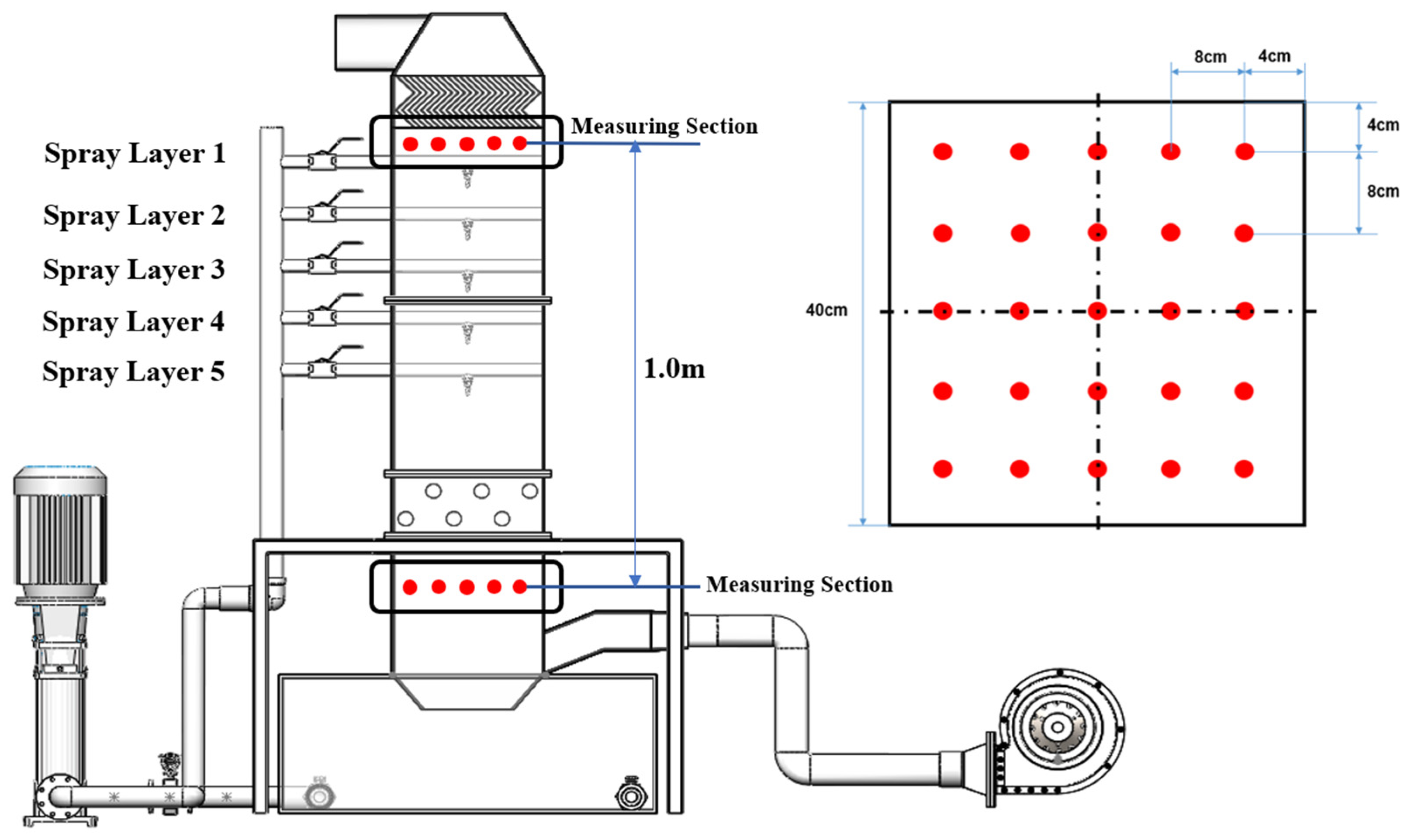
2.1. Experimental Installation
2.2. Measurement Position and Data Processing Method
- —Velocity standard deviation, m/s;
- —Speed average, m/s;
- —Measured value of velocity on the section, m/s.
3. Mathematical Model
3.1. Model Simplification
- The changes in the flue gas flow rate and the pressure caused by the gas absorption reaction are ignored, and the flue gas components are simplified into oxygen, nitrogen, water vapor, and SO2;
- The droplet is considered as a rigid ball, and the collision, fragmentation, and coalescence of slurry droplets are not considered;
- The flow is steady and incompressible, and the turbulence is isotropic;
- The concentration of calcium ion in the slurry is constant, and there is no concentration gradient in the liquid phase;
- SO2 absorption has little effect on droplet quality, and the change in droplet quality can be ignored;
- The influence of products on the reaction and the concentration of calcium ions is not considered;
- The reaction heat is ignored and it is assumed that the temperature is constant during the reaction;
- The oxidation of CaSO3 and the crystallization of CaSO4 in the absorption area are ignored;
- The absorption process of SO2 is loaded into the governing equation as source term [21].
3.2. Mathematical Model Governing Equation
3.2.1. Gas Phase Flow
- is the turbulent Prandtl number of turbulent kinetic energy ;
- is the turbulent Prandtl number of turbulent energy dissipation rate ;
- is the turbulent kinetic energy generated by the time average velocity gradient.
- = 1.44, = 1.9, = 1.0, = 1.2.
3.2.2. Liquid Phase Flow
- is the other external forces except gravity and drag (such as Brownian force and thermophoresis force), N (Newton);
- is the droplet density, kg·m−3;
- is the Flue gas density, kg·m−3;
- , are the velocity of flue gas and droplets, respectively, m·s−1.
- , , are the coefficient variables;
- is the dynamic viscosity of flue gas, Pa·s;
- is the droplet diameter, m.
3.2.3. Absorption Reaction Model
- is the diffusion coefficient of SO2 in the gas phase;
- is the Schwood number;
- is the Schmidt number.
- is the diffusion coefficient of SO2 in liquid phase;
- is the liquid phase surface tension, N·m−1;
- is the droplet mass, kg.
3.3. Boundary Conditions
- Gas phase inlet and outlet boundary conditions
- 2.
- Droplet inlet boundary condition
- 3.
- Wall boundary conditions
3.4. Numerical Method and Grid Independence Assessment
4. Results Analysis
4.1. Comparison Between Simulation Results and Experimental Results
4.2. Influence of Turbulator on Flow Field in Spray Scrubber
4.2.1. The Influence of the Turbulator on the Flow Resistance in a Spray Scrubber
4.2.2. Influence of Turbulator on Residence Time of Droplets
4.3. Influence of Turbulator on the Running Resistance of Spray Scrubber
4.4. Influence of Turbulator on Desulfurization Efficiency
4.5. Influence of Operating Parameters on Desulfurization Efficiency
4.5.1. Relationship Between Desulfurization Efficiency and Flue Gas Temperature
4.5.2. Relationship Between Desulfurization Efficiency and Liquid–Gas Ratio
5. Conclusions
- The flow resistance of flue gas in a desulfurization spray scrubber mainly comes from the influence of spray droplets, and the resistance brought by a turbulator is relatively small. According to the test results, the relationship between the resistance coefficient in the scrubber, the Reynolds number, and the liquid–gas ratio is obtained: f = 0.0288 Re0.359(L/G)0.754;
- Based on the double film theory, the mass transfer model of the SO2 absorption process was established and loaded into Fluent in UDF code. The desulfurization efficiency before and after adding turbulence was compared. After adding the turbulator, the flue gas flow field in the spray scrubber is more uniform, the residence time of the spray slurry increases, the utilization rate of the spray slurry is improved, and the desulfurization efficiency increases by 2.49%;
- When the average flow rate of flue gas and the spray amount remain unchanged (flue gas velocity = 3 m/s, liquid–gas ratio = 17.3), the desulfurization efficiency gradually decreases with the increase in temperature, showing an approximately linear change. Under the condition of keeping the average flow rate of flue gas and flue gas temperature unchanged, the desulfurization efficiency increases with the increase in the liquid–gas ratio and the change trend represents an approximate “s” curve. The desulfurization efficiency slows down with the increase in the liquid–gas ratio, and the reasonable value of liquid–gas ratio is 20~30.
Author Contributions
Funding
Data Availability Statement
Conflicts of Interest
Abbreviations
| WFGD | Wet Flue Gas Desulfurization |
| UDF | User-Defined Function |
| CFD | Computational Fluid Dynamics |
| APEC | Asia-Pacific Economic Cooperation |
| GDP | Gross Domestic Product |
| RANS | Reynolds-Averaged Navier–Stokes |
| SST | Shear Stress Transport |
| DES | Detached Eddy Simulation |
| URANS | Unsteady Reynolds-Averaged Navier–Stokes |
| LES | Large-Eddy Simulations |
| PMMA | Polymeric Methyl Methacrylate |
| SIMPLE | Semi-Implicit Method for Pressure Linked Equations |
| ICEM | The Integrated Computer Engineering and Manufacturing code |
| a, b, c | Coefficient variables, [–] |
| Velocity standard deviation coefficient, [–] | |
| The concentration of component at the interface, [kmol/m3] | |
| The concentration of component in the bulk, [kmol/m3] | |
| model, = 1.44 | |
| model, = 1.9 | |
| CD | Drag coefficient, [–] |
| Diameter, [m] | |
| Mean particle size, [m] | |
| dd | Droplet diameter, [m] |
| Diffusion coefficient of SO2 in liquid phase, [–] | |
| Diffusion coefficient of SO2 in gas phase, [–] | |
| ε | Dissipation rate of turbulent kinetic energy per unit mass, [m3·s–3] |
| FD | Drag force on a droplet per unit mass, [N (Newton)] |
| Fx | Other external forces except gravity and drag (such as Brownian force and thermophoresis force), [N (Newton)] |
| Component (gas) of mass transfer per unit time, [kmol/s] | |
| Component (liquid) of mass transfer per unit time, [kmol/s] | |
| Turbulent kinetic energy generated by the time average velocity gradient, [J·m–3·s–1] | |
| Turbulent kinetic energy, [m2·s–2] | |
| Gas film mass transfer coefficient, [kmol/(m2·s·kPa)] | |
| Liquid film mass transfer coefficient, [kmol/(m2·s·kPa)] | |
| Droplet mass, [kg] | |
| size distribution (or spread) parameter, [–] | |
| Gas film mass transfer rate, [kmol/(m2·s)] | |
| Velocity standard deviation, [m/s] | |
| Liquid phase surface tension, [N·m−1] | |
| Turbulent Prandtl number of turbulent kinetic energy = 1.0 | |
| Turbulent Prandtl number of turbulent energy dissipation rate = 1.2 | |
| Partial pressure of the gas in the bulk, [kPa] | |
| Partial pressure of the gas at the interface, [kPa] | |
| Flue gas density, [kg·m−3] | |
| Droplet density, [kg·m−3] | |
| Mass fraction of droplets of diameter greater than a certain diameter, [–] | |
| Reynolds number, [–] | |
| Coefficient of Determination, [–] | |
| Interphase contact area, [m2] | |
| Schmidt number, [–] | |
| Schwood number, [–] | |
| Velocity components, [m·s–1] | |
| Dynamic viscosity of flue gas, [Pa·s] | |
| Speed average, [m/s] | |
| Measured value of velocity on the section, [m/s] |
References
- APEC, Policy Support Unit (PSU). Products & Publications; APEC: Canberra, ACT, Australia, 2024. [Google Scholar]
- Tapio, R.M.; Barlow, J.T.; Tarekegne, B.W.; Bloyd, C.N. Just Transition Principles: Prepared for the APEC Energy Working Group Workshop on Promoting a Just Energy Transition; Pacific Northwest National Laboratory: Richland, WA, USA, 2023. [Google Scholar]
- Smith, S.; Giampetro, M. ‘Best’ Coal-Fired Power Plant and Cogeneration Case Studies; APEC: Canberra, ACT, Australia, 2022. [Google Scholar]
- Li, X.; Han, J.; Liu, Y.; Dou, Z.; Zhang, T. Summary of research progress on industrial flue gas desulfurization technology. Sep. Purif. Technol. 2022, 281, 119849. [Google Scholar] [CrossRef]
- Larki, I.; Zahedi, A.; Asadi, M.; Forootan, M.M.; Farajollahi, M.; Ahmadi, R.; Ahmadi, A. Mitigation approaches and techniques for combustion power plants flue gas emissions: A comprehensive review. Sci. Total Environ. 2023, 903, 166108. [Google Scholar] [CrossRef] [PubMed]
- Chen, Y.; Zhang, Y.; Ling, W. Practice on ultra-low emission and energy efficient technologies in coal-fired power plants. Front. Eng. Manag. 2016, 3, 377–383. [Google Scholar] [CrossRef]
- Miao, Q. Research status and progress of steam coal desulfurization technologies. Clean Coal Technol. 2015, 21, 59–63. [Google Scholar]
- Lin, Y.; Gao, X.; Cen, K. Numerical Simulation on Resistance Characteristic of Large Scale Wet Flue Gas Desulphurization Spraying Scrubber. Proc. CSEE 2008, 28, 28–33. [Google Scholar]
- Chen, X. Experimental Study on Desulfurization and Nitrification in Spray Scrubber; Zhejiang University: Hangzhou, China, 2008. [Google Scholar]
- Zohir, A.E.; Abdel Aziz, A.A.; Habib, M.A. Heat transfer characteristics in a sudden expansion pipe equipped with swirl generators. Int. J. Heat Fluid Flow 2011, 32, 352–361. [Google Scholar] [CrossRef]
- Yang, L.; Xu, M.; Wang, J.; Song, L.; Wang, J. Experimental and numerical analysis of a demister with vortex generators. Chin. J. Chem. Eng. 2021, 33, 83–95. [Google Scholar] [CrossRef]
- Wang, P. Flow Behavior through Venturi Rod Banks in WFGD Spray Tower. J. East China Univ. Sci. Technol. 2016, 42, 9. [Google Scholar]
- Jan, N.; Tomá, V.; Petra, D.O.; Tomá, V. Numerical simulation of flow in the wet scrubber for desulfurization. EPJ Web Conf. 2015, 92, 02055. [Google Scholar]
- Marocco, L.; Inzoli, F. Multiphase Euler–Lagrange CFD simulation applied to Wet Flue Gas Desulphurisation technology. Int. J. Multiphas. Flow 2009, 35, 185–194. [Google Scholar] [CrossRef]
- Chen, L.; Brakmann, R.G.A.; Weigand, B.; Rodriguez, J.; Crawford, M.; Poser, R. Experimental and numerical heat transfer investigation of an impingement jet array with V-ribs on the target plate and on the impingement plate. Int. J. Heat Fluid Flow 2017, 68, 126–138. [Google Scholar] [CrossRef]
- Viswanathan, A.K.; Tafti, D.K. Detached eddy simulation of flow and heat transfer in fully developed rotating internal cooling channel with normal ribs. Int. J. Heat Fluid Flow 2006, 27, 351–370. [Google Scholar] [CrossRef]
- Córdoba, P. Status of Flue Gas Desulphurisation (FGD) systems from coal-fired power plants: Overview of the physic-chemical control processes of wet limestone FGDs. Fuel 2015, 144, 274–286. [Google Scholar] [CrossRef]
- Koech, L.; Rutto, H.; Lerotholi, L.; Everson, R.C.; Neomagus, H.; Branken, D.; Moganelwa, A. Spray drying absorption for desulphurization: A review of recent developments. Clean Technol. Environ. 2021, 23, 1665–1686. [Google Scholar] [CrossRef]
- ANSYSInc. Fluent; ANSYSInc: Canonsburg, PA, USA, 2019. [Google Scholar]
- Liu, B.; Tan, P. Theory and Technology of Waste Heat Recovery of Ash and Slag in Circulating Fluidized Bed Boiler; China Electric Power Press: Beijing, China, 2017. [Google Scholar]
- Xiao, S. Numerical Simulation and Optimization Analysis of Process in WFGD Tower with Tangentially Spray Method. Master’s Thesis, South China University of Technology, Guangzhou, China, 2016. [Google Scholar]
- Sokolichin, A.; Eigenberger, G.; Lapin, A.; Lübert, A. Dynamic numerical simulation of gas-liquid two-phase flows Euler/Euler versus Euler/Lagrange. Chem. Eng. Sci. 1997, 52, 611–626. [Google Scholar] [CrossRef]
- He, S.; Yuan, H.; Fu, S.; Yao, Y. Numerical simulation of velocity and pressure in gas phase in rotating stream tray column. Chem. Ind. Eng. Prog. 2011, 30, 2399–2403. [Google Scholar]
- Shih, T.; Liou, W.W.; Shabbir, A.; Yang, Z.; Zhu, J. A New k-ε Eddy Viscosity Model for High Reynolds Number Turbulent Flows: Model Development and Validation. In NASA Technical Memorandum; No. CMOTT-94-6; NASA: Washington, DC, USA, 1994. [Google Scholar]
- Zhao, G. Theoretical Study on Sulfur Dioxide Absorption Process by Limestone-Gypsum Method; Northeastern University: Shenyang, China, 2008. [Google Scholar]
- Brogren, C.; Karlsson, H.T. Modeling the absorption of SO2 in a spray scrubber using the penetration theory. Chem. Eng. Sci. 1997, 52, 3085–3099. [Google Scholar] [CrossRef]
- Gomez, A.; Fueyo, N.; Tomas, A. Detailed modelling of a flue-gas desulfurisation plant. Comput. Chem. Eng. 2007, 31, 1419–1431. [Google Scholar] [CrossRef]
- Alderliesten, M. Mean Particle Diameters. Part VII. The Rosin-Rammler Size Distribution: Physical and Mathematical Properties and Relationships to Moment-Ratio Defined Mean Particle Diameters. Part. Part. Syst. Char. 2013, 30, 244–257. [Google Scholar] [CrossRef]
- Van Doormaal, J.P.; Raithby, G.D. Enhancements of the SIMPLE method for predicting incompressible fluid flows. Numer. Heat Transf. 1984, 7, 147–163. [Google Scholar] [CrossRef]
- Michalski, J.A. Aerodynamic characteristics of FGD spray towers. Chem. Eng. Technol. 1997, 20, 108–117. [Google Scholar] [CrossRef]
- Michalski, J.A. Vertical motion of spherical particles. Chem. Eng. Technol. 1995, 18, 434–439. [Google Scholar] [CrossRef]
- Wang, P.; Zhuang, L.; Dai, G. Synergistic effect of droplet self-adjustment and rod bank internal on fluid distribution in a WFGD spray column. Chem. Eng. Sci. 2017, 162, 227–244. [Google Scholar] [CrossRef]
- Guo, T. Numerical Study on the Flow and Absorption of Sulfur Dioxide in Droplets; Jiangsu University: Zhenjiang, China, 2017. [Google Scholar]


















| Inlet Flow | Outlet Flow | |
|---|---|---|
| Type | Velocity Inlet | Pressure Outlet |
| Dataset | 2 m/s | 1 atm (101,325 Pa) |
| 2.5 m/s | ||
| 3 m/s | ||
| 3.5 m/s | ||
| 4 m/s | ||
| Ambient temperature | 300 | - |
| Setting | |
|---|---|
| Spray Type | Solid cone |
| Spray angle | 90° |
| Spray speed | 10 m/s |
| Droplet size distribution | Rosin–Rammler |
| Mean particle size | 2.2 mm |
| Size distribution parameter | 2.51 |
| Dataset | 2 m/s | 3 m/s | 4 m/s | |
|---|---|---|---|---|
| Figure 8a | Experiment (m/s) | 3.014 | 4.622 | 6.378 |
| Simulation (m/s) | 3.073 | 4.216 | 6.257 | |
| Relative deviation (Error, %) | 1.96 | 8.78 | 1.90 | |
| Figure 8b | Experiment (m/s) | 1.980 | 3.209 | 3.847 |
| Simulation (m/s) | 2.069 | 3.015 | 3.984 | |
| Relative deviation (Error, %) | 4.49 | 6.05 | 3.57 | |
| Figure 8c | Experiment (Pa) | 1.687 | 6.327 | 13.683 |
| Simulation (Pa) | 1.909 | 7.072 | 11.919 | |
| Relative deviation (Error, %) | 13.16 | 11.78 | 12.89 |
Disclaimer/Publisher’s Note: The statements, opinions and data contained in all publications are solely those of the individual author(s) and contributor(s) and not of MDPI and/or the editor(s). MDPI and/or the editor(s) disclaim responsibility for any injury to people or property resulting from any ideas, methods, instructions or products referred to in the content. |
© 2025 by the authors. Licensee MDPI, Basel, Switzerland. This article is an open access article distributed under the terms and conditions of the Creative Commons Attribution (CC BY) license (https://creativecommons.org/licenses/by/4.0/).
Share and Cite
Yang, L.; Su, F.; Li, X.; Liu, X.; Wen, Z.; Lou, G.; Zhou, W. Experimental and Numerical Simulation of the Resistance Characteristics and Desulfurization Efficiency of Rod-Shaped Turbulators in WFGD for Green Power Systems. Energies 2025, 18, 761. https://doi.org/10.3390/en18040761
Yang L, Su F, Li X, Liu X, Wen Z, Lou G, Zhou W. Experimental and Numerical Simulation of the Resistance Characteristics and Desulfurization Efficiency of Rod-Shaped Turbulators in WFGD for Green Power Systems. Energies. 2025; 18(4):761. https://doi.org/10.3390/en18040761
Chicago/Turabian StyleYang, Likun, Fuyong Su, Xiangpeng Li, Xunliang Liu, Zhi Wen, Guofeng Lou, and Wenlei Zhou. 2025. "Experimental and Numerical Simulation of the Resistance Characteristics and Desulfurization Efficiency of Rod-Shaped Turbulators in WFGD for Green Power Systems" Energies 18, no. 4: 761. https://doi.org/10.3390/en18040761
APA StyleYang, L., Su, F., Li, X., Liu, X., Wen, Z., Lou, G., & Zhou, W. (2025). Experimental and Numerical Simulation of the Resistance Characteristics and Desulfurization Efficiency of Rod-Shaped Turbulators in WFGD for Green Power Systems. Energies, 18(4), 761. https://doi.org/10.3390/en18040761

