Dynamic Response Study of Overhead Contact System Portal Structure Based on Vehicle–Track–Bridge Coupled Vibration
Abstract
1. Introduction
2. Construction of Models
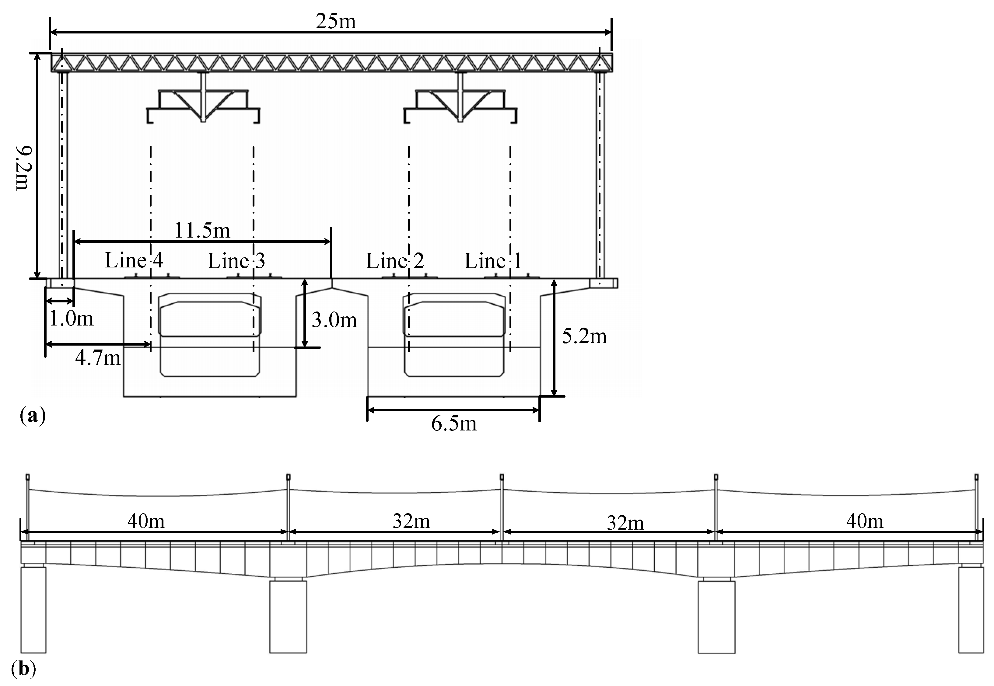
2.1. Modeling of Bridge–Portal Structure
2.2. Modeling of Vehicle–Track Coupling System
3. Dynamic Response of Vehicle–Track Systems
3.1. Simulation of Track Irregularities
3.2. Different Driving Speeds
3.3. Different Track Irregularities
4. Dynamic Response of Existing Portal Structure
4.1. Modal Analysis of Existing Portal Structure
4.2. Dynamic Response of Existing Portal Structure under Different Conditions
4.2.1. Different Driving Speeds
4.2.2. Different Driving Conditions
4.2.3. Different Track Irregularities
5. Dynamic Response of Truss-Type Pillar Portal Structure
5.1. Modal Analysis of Truss-Type Pillar Portal Structure
5.2. Dynamic Response of Truss-Type Pillar Portal Structure under Different Conditions
5.2.1. Different Driving Speeds
5.2.2. Different Driving Conditions
5.2.3. Different Track Irregularities
5.3. Comparison Analysis
6. Conclusions
- (1)
- By using the SIMPACK dynamic analysis platform and the ANSYS finite element analysis platform, the dynamics models of the vehicle–track system and the finite element model of the bridge–catenary portal structure were, respectively, built. Based on the track irregularity power spectral density function, track irregularity samples were obtained to input driving excitation, and then the dynamic response characteristics of the vehicle–track coupled system were analyzed.
- (2)
- Based on the track irregularity time-domain samples, the dynamic response characteristics of trains under different operating speeds and different track irregularity amplitudes were analyzed. The results show that the lateral and vertical forces between the vehicle and the track are positively correlated with the speed and irregularity amplitude. Moreover, the vertical force is more sensitive to changes in train speed than the lateral force. Meanwhile, the response values of the derailment coefficient and wheel load reduction rate are within the specified range of relevant standards, validating the rationality of the model.
- (3)
- The low-order modes of the existing portal structure were analyzed, showing that the predominant vibration mode of the structure is longitudinal vibration, with fewer lateral and vertical vibration modes, which are secondary vibration forms. Additionally, torsional vibration modes do not exist in the low-order modes, indicating that the structure has a high torsional stiffness and can meet the requirements. The vibration characteristics of the catenary portal structure on the bridge were analyzed, obtaining displacement and stress response values under different conditions. The results indicate that, compared to the effects of train speed and irregularity amplitude, the increase in the complexity of operating conditions has a more significant impact on the dynamic response of the structure.
- (4)
- The low-order modes of the truss-type pillar portal structure were analyzed, and the results indicated that this structure has relatively high natural frequencies for low-order modes and good stability. The dynamic response of the truss-type pillar portal structure under different conditions was also analyzed, showing an average reduction of 15.76% and 18.50% in maximum displacement and stress, respectively, compared to the existing model. This structure demonstrates good adaptability to higher vehicle speeds and more complex operating conditions.
Author Contributions
Funding
Data Availability Statement
Conflicts of Interest
References
- Jiang, Y.; Wu, P.; Zeng, J.; Wu, X.; Zhang, Y.; Yang, Z.; Gao, R.; Dai, X. Researches on the resonance of a new type of suspended monorail vehicle-bridge coupling system based on modal analysis and rigid-flexible coupling dynamics. Veh. Syst. Dyn. 2021, 59, 135–154. [Google Scholar] [CrossRef]
- Song, Y.; Wang, Z.; Liu, Z.; Wang, R. A spatial coupling model to study dynamic performance of pantograph-catenary with vehicle-track excitation. Mech. Syst. Signal Process. 2021, 151, 107336. [Google Scholar] [CrossRef]
- Liu, Z.; Song, Y.; Gao, S.; Wang, H. Review of Perspectives on Pantograph-Catenary Interaction Research for High-Speed Railways Operating at 400 km/h and above. IEEE Trans. Transp. Electrif. 2023; early access. [Google Scholar] [CrossRef]
- Song, Y.; Duan, F.; Liu, Z. Analysis of critical speed for high-speed railway pantograph-catenary system. IEEE Trans. Veh. Technol. 2021, 71, 3547–3555. [Google Scholar] [CrossRef]
- Song, Y.; Lu, X.; Yin, Y.; Liu, Y.; Liu, Z. Optimization of Railway Pantograph-Catenary Systems for over 350 km/h Based on an Experimentally Validated Model. IEEE Trans. Ind. Inform. 2024, 20, 7654–7664. [Google Scholar] [CrossRef]
- Ambrósio, J.; Pombo, J.; Pereira, M.; Antunes, P.; Mósca, A. A computational procedure for the dynamic analysis of the catenary-pantograph interaction in high-speed trains. J. Theor. Appl. Mech. 2012, 50, 681–699. [Google Scholar]
- Jin, Z.; Liu, W.; Pei, S. Probabilistic evaluation of railway vehicle’s safety on bridges under random earthquake and track irregularity excitations. Eng. Struct. 2022, 266, 114527. [Google Scholar] [CrossRef]
- Sun, K.; Nong, X.; Feng, Q.; Chen, H.; Xiao, J. Numerical analysis of interface damage in ballastless track on simply supported bridge due to thermal and vehicle dynamic load. Constr. Build. Mater. 2023, 366, 130181. [Google Scholar] [CrossRef]
- Nunia, B.; Rahman, T.; Choudhury, S.; Janardhan, P. Effect of vehicle speed and road surface roughness on the impact factor of simply supported bridges due to IRC Class A and B loading. SN Appl. Sci. 2020, 2, 3–19. [Google Scholar] [CrossRef]
- Auersch, L. The dynamic train–track interaction on a bridge and in a tunnel compared with the simultaneous vehicle, track and ground vibration measurements on a surface line. Appl. Sci. 2023, 13, 10992. [Google Scholar] [CrossRef]
- König, P.; Salcher, P.; Adam, C. An efficient model for the dynamic vehicle-track-bridge-soil interaction system. Eng. Struct. 2022, 253, 113769. [Google Scholar] [CrossRef]
- Gou, H.; Liu, C.; Zhou, W.; Bao, Y.; Pu, Q. Dynamic responses of a high-speed train passing a deformed bridge using a vehicle-track-bridge coupled model. Proc. Inst. Mech. Eng. 2021, 235, 463–477. [Google Scholar] [CrossRef]
- Cui, C.; Feng, F.; Meng, X.; Liu, X. Fatigue life assessment of intercity track viaduct based on vehicle–bridge coupled system. Mathematics 2022, 10, 1663. [Google Scholar] [CrossRef]
- Zhao, G.; Wang, M.; Liu, Y.; Zhang, M. Dynamic Response of Transmission Tower-Line Systems Due to Ground Vibration Caused by High-Speed Trains. Buildings 2023, 13, 2884. [Google Scholar] [CrossRef]
- Wu, J.; Cai, C.; Li, X.; Liu, D. Dynamic analysis of train and bridge in crosswinds based on a coupled wind-train-track-bridge model. Adv. Struct. Eng. 2023, 26, 904–919. [Google Scholar] [CrossRef]
- Zhang, M.; Li, Y.; Wang, B. Effects of fundamental factors on coupled vibration of wind-rail vehicle-bridge system for long-span cable-stayed bridge. J. Cent. South Univ. 2016, 23, 1264–1272. [Google Scholar] [CrossRef]
- Lei, X.; Wang, H. Dynamic analysis of the high speed train–track spatial nonlinear coupling system under track irregularity excitation. Int. J. Struct. Stab. Dyn. 2023, 23, 25–29. [Google Scholar] [CrossRef]
- Singh, A. Dynamic modeling and ride comfort evaluation of railway vehicle under random track irregularities: A case study of a Linke-Hofmann-Busch coach. J. Eng. Res. 2023, 4, 77–81. [Google Scholar]
- Xu, L.; Zhai, W. Stochastic analysis model for vehicle-track coupled systems subject to earthquakes and track random irregularities. J. Sound Vib. 2017, 40, 209–215. [Google Scholar] [CrossRef]
- Xu, L.; Zhai, W.; Gao, J. A probabilistic model for track random irregularities in vehicle/track coupled dynamics. Appl. Math. Model. 2017, 51, 145–158. [Google Scholar] [CrossRef]
- Zhang, K.; Yang, J.; Liu, C.; Wang, J.; Yao, D. Dynamic Characteristics of a Traction Drive System in High-Speed Train Based on Electromechanical Coupling Modeling under Variable Conditions. Energies 2022, 15, 1202. [Google Scholar] [CrossRef]
- Kisilowski, J.; Kowalik, R. Mechanical Wear Contact between the Wheel and Rail on a Turnout with Variable Stiffness. Energies 2021, 14, 7520. [Google Scholar] [CrossRef]
- Yang, Y.; He, Q.; Cai, C.; Zhu, S.; Zhai, W. A novel 3D train–bridge interaction model for monorail system considering nonlinear wheel-track slipping behavior. Nonlinear Dyn. 2024, 112, 3265–3301. [Google Scholar] [CrossRef]
- Xu, L.; Zhai, W.; Gao, J. Extended applications of track irregularity probabilistic model and vehicle–slab track coupled model on dynamics of railway systems. Veh. Syst. Dyn. 2017, 55, 1686–1706. [Google Scholar] [CrossRef]
- Heleno, R.; Montenegro, P.A.; Carvalho, H.; Ribeiro, D.; Calcada, R.; Baker, C.J. Influence of the railway vehicle properties in the running safety against crosswinds. J. Wind Eng. Ind. Aerodyn. 2021, 217, 104732. [Google Scholar] [CrossRef]
- Gao, M.; Xu, X.; He, R.; Chen, Q.; Li, D. Vibration of subgrade and evaluation of derailment coefficient of train under combined earthquake-moving train load. Soils Found. 2021, 61, 386–400. [Google Scholar] [CrossRef]
- Liu, Y.; Sun, J.; Li, W.; Peng, Q.; Zhang, Q. Dynamic Response of Flexible Wheelset High-speed Train Passing through Turnout. J. Qingdao Univ. (Nat. Sci. Ed.) 2024, 37, 69–78. [Google Scholar]
- Najm, H.M.; Ibrahim, A.M.; Sabri, M.M.; Hassan, A.; Morkhade, S.; Mashaan, N.S.; Eldirderi, M.M.A.; Khedher, K.M. Modelling of Cyclic Load Behaviour of Smart Composite Steel-Concrete Shear Wall Using Finite Element Analysis. Buildings 2022, 12, 850. [Google Scholar] [CrossRef]
- Wang, S.; Li, X. Vibration Characteristics Analysis and Structure Optimization of Catenary Portal Structure on Four-Wire Bridge. Struct. Durab. Health Monit. 2022, 16, 361–382. [Google Scholar] [CrossRef]


















| Number | Material | Young’s Modulus /MPa | Poisson’s Ratio | Density /kg·m−3 | Bulk Modulus /MPa | Shear Modulus /MPa |
|---|---|---|---|---|---|---|
| 1 | Concrete 50 | 3.45 × 104 | 0.20 | 2500 | 1.92 × 104 | 1.44 × 104 |
| 2 | Q345 steel | 2.06 × 105 | 0.28 | 7850 | 1.56 × 105 | 0.80 × 105 |
| 3 | 45Mn steel | 2.10 × 105 | 0.27 | 7850 | 1.72 × 105 | 0.79 × 105 |
| 4 | DN350 | 1.77 × 105 | 0.30 | 7850 | 1.48 × 105 | 0.68 × 105 |
| Structure | Forms of Motion | |||||
|---|---|---|---|---|---|---|
| Longitudinal | Lateral | Bounce | Roll | Pitch | Yaw | |
| Car body | xc | yc | zc | φc | βc | ψc |
| Bogie frame | xt | yt | zt | φt | βt | ψt |
| Wheelset | xw | yw | zw | φw | βw | ψw |
| Response Values | Left Rail Vertical Force (kN) | Right Rail Vertical Force (kN) | Left Rail Lateral Force (kN) | Right Rail Lateral Force (kN) | Derailment Coefficient | Wheel Load Reduction Rate |
|---|---|---|---|---|---|---|
| Simulation | 63.83 | 62.67 | 1.71 | 1.79 | 0.023 | 0.068 |
| Reference [27] | 69.09 | 69.07 | 1.88 | 1.63 | 0.027 | 0.07 |
| Relative error | 7.61% | 9.27% | 9.04% | 9.82% | 14.81% | 2.86% |
| Mode | 1 | 2 | 3 | 4 | 5 | 6 |
|---|---|---|---|---|---|---|
| f (Hz) | 1.2742 | 1.9745 | 2.2432 | 3.8697 | 4.0206 | 5.4278 |
| T (s) | 0.7848 | 0.5065 | 0.4458 | 0.2584 | 0.2487 | 0.1842 |
| Response Values | Maximum Displacement (mm) | Maximum Stress (MPa) |
|---|---|---|
| Simulation | 19.494 | 24.889 |
| Reference [29] | 21.08 | 24.24 |
| Relative error | 7.52% | 2.68% |
| Mode | 1 | 2 | 3 | 4 | 5 | 6 |
|---|---|---|---|---|---|---|
| f (Hz) | 1.7056 | 3.1006 | 4.2799 | 4.4587 | 5.1725 | 5.2404 |
| T (s) | 0.5863 | 0.3225 | 0.2337 | 0.2243 | 0.1933 | 0.1908 |
Disclaimer/Publisher’s Note: The statements, opinions and data contained in all publications are solely those of the individual author(s) and contributor(s) and not of MDPI and/or the editor(s). MDPI and/or the editor(s) disclaim responsibility for any injury to people or property resulting from any ideas, methods, instructions or products referred to in the content. |
© 2024 by the authors. Licensee MDPI, Basel, Switzerland. This article is an open access article distributed under the terms and conditions of the Creative Commons Attribution (CC BY) license (https://creativecommons.org/licenses/by/4.0/).
Share and Cite
Li, T.; Zhao, X. Dynamic Response Study of Overhead Contact System Portal Structure Based on Vehicle–Track–Bridge Coupled Vibration. Energies 2024, 17, 2510. https://doi.org/10.3390/en17112510
Li T, Zhao X. Dynamic Response Study of Overhead Contact System Portal Structure Based on Vehicle–Track–Bridge Coupled Vibration. Energies. 2024; 17(11):2510. https://doi.org/10.3390/en17112510
Chicago/Turabian StyleLi, Tao, and Xia Zhao. 2024. "Dynamic Response Study of Overhead Contact System Portal Structure Based on Vehicle–Track–Bridge Coupled Vibration" Energies 17, no. 11: 2510. https://doi.org/10.3390/en17112510
APA StyleLi, T., & Zhao, X. (2024). Dynamic Response Study of Overhead Contact System Portal Structure Based on Vehicle–Track–Bridge Coupled Vibration. Energies, 17(11), 2510. https://doi.org/10.3390/en17112510
