Next Article in Journal
A CFD Modelling Approach of Fuel Spray under Initial Non-Reactive Conditions in an Optical Engine
Previous Article in Journal
Optimization Approaches for Cost and Lifetime Improvements of Lithium-Ion Batteries in Electric Vehicle Powertrains
 
 
Font Type:
Arial Georgia Verdana
Font Size:
Aa Aa Aa
Line Spacing:
Column Width:
Background:
Article

The ‘Z-Free’ Home: A Circular Thinking and Eco-Cycle Design Practice

1
Department of Urban Studies, Malmo University, 211 19 Malmo, Sweden
2
Department of Building and Environmental Technology, Lund University, 221 00 Lund, Sweden
3
Department of Architecture and Media Technology, Aalborg University, 9000 Aalborg, Denmark
*
Author to whom correspondence should be addressed.
Energies 2023, 16(18), 6536; https://doi.org/10.3390/en16186536
Submission received: 24 December 2022 / Revised: 7 March 2023 / Accepted: 9 March 2023 / Published: 11 September 2023

Abstract

:
In recent years, the need for affordable sustainable housing has increased. At the same time, there has been a gradual rising interest in compact living. With the mounting impacts of climate change, a new way of thinking is needed to develop more resilient and climate responsive ways of living that are compact, affordable, and climate-conscious. In response to this need, the idea of a ‘Z-Free Home’ was born. The ‘Z-Free Home’ is a tiny mobile house equipped with essential passive and eco-cycle systems that achieves nine zero targets. The main design and construction concept is based on circular design and a return to nature life cycle principles. In this paper, the architectural design concept, building energy modelling, and simulation for the Z-Free Home design proposal is discussed. This paper describes the concept design and design development phases together with building modelling and simulation. A focus was made on the use of virtual reality in design development assessment as a new method for evaluating passive and eco-cycle systems. The results show that it’s possible to achieve nine different zero goals while the analysis illustrates the challenges in achieving them. The paper also described the next steps planned for the proof of concept, i.e., the 1:1 house model. The project is ongoing, and it aims at a full-scale physical prototype as a proof of concept for the zero targets. The ‘Z-Free Home’ is designed for the cold Swedish climate but could be more widely applicable in other mild climates as well as hot climates.

1. Introduction and Problem Definition

We live in an era of multiple complex challenges, including negative social, economic, and climatic outcomes that affect the daily life of people around the world. The pressure on the environment caused by climate change is increasing but we are still woefully unprepared for severe and extreme consequence on our natural and built environments. Greenhouse gas emissions are increasing, sea levels are rising, average global temperatures are mounting, and severe weather patterns are accelerating. All of these hasten resource competition and place extra burdens on economies, societies, and governance institutions around the world. The human impact of humanitarian crises is on the rise, caused by extreme weather, natural disasters, and political conflicts. This destabilization is associated with resource competition, mass migration, the lack of housing in cities, and many more factors. Even with hard-hitting and organized global actions to mitigate climate change impacts, we are still vulnerable to disruption and conflict.
In terms of housing, according to the World Bank, housing shortage could impact 1.6 billion people by 2025 [1]. Unaffordable prices and land shortages together with the high price and scarcity of building materials contributes to this housing crisis in many parts of the world, especially in Europe [2]. According to the UN Human Settlements Programme (UN-Habitat), the world needs to build over 95,000 new affordable homes every day to accommodate the demand of approximately 3 billion people who are in need of decent and adequate housing [3]. With the recent economic crises, the cost of housing is rising faster than the growth in average peoples’ income. In a survey carried out by the Lincoln Institute of Land Policy on housing affordability, results show that 90% of their sample of 200 cities around the world are unaffordable to live in [4].
In order to solve housing shortages, especially during or after a crisis, mass building using industrial materials is the quickest and easiest solution [5]. A building’s impact on the environment typically comes as a low priority [6,7]. Many opportunities exist to deploy energy efficient and low-carbon solutions for buildings and construction [8,9,10]. However, such ideas are not yet mainstream in the building market, especially within the residential sector.
In this paper, an experimental study is discussed as a pilot project for the design of a climate responsive home. The study followed five methodological steps to achieve nine zero targets following circular design principles. Three evaluation methods were used in this study to assess the feasibility of designing and building an eco-cycle home that reaches nine zero goals. The three evaluation methods used include: evaluation by experts, building simulation, and virtual reality experimentation. The three methods helped by providing indication for the development and rectification of the house design preparing for the living lab experimental work in Lund, Sweden, where a demo house in full scale will be built. While the study is ongoing, this paper reports on the results of what has been achieved so far. The house was designed for a Swedish climate, specifically for Lund, in southern Sweden. However, the methodological approach is possible to follow in different climatic and geographical contexts.

2. The Z-Free Home Design Concept

The Z-Free Home is an eco-cycle passive home design that is considered high-risk for implementation, but would have high-gain for climate conscious design outcomes. No mechanical systems will be used. The house is designed to rely mainly on natural passive means for heating, cooling, daylight, and natural ventilation. The use of passive means will approximately save over 40% of cooling and heating needs compared to an average energy efficient building in Sweden. The main passive systems used are the Trombe wall, green wall, and an Earth Air Heat Exchanger (EAHE). The house skeleton is designed from modular elements made from upcycled bio-based fibers that are sometimes disregarded as agriculture waste. The use of natural materials exemplifies a return to nature-based design solutions. The idea here is that after the house’s end of life, the house’s skeleton can return to nature without harmful impacts. The housing elements can be easily disassembled and reassembled in another location or re-claimed for another project. The main modular elements can be uses as main structural elements up to ten times.
The Z-Free Home is powered by renewable energy sources and can function off-grid and on-grid. The building will be based on natural zero-energy solutions that function year-round and produce more energy than the building consumes. The house will offset all its carbon emissions, if any, and aim to reach a negative carbon footprint. This is due to the use of natural fibers as main building elements.
When it is time to demolish the building, all the main building components can be re-used as building materials, food for animals, or as biofuel. If the materials are not recuperated, they can decompose as compost and return to nature. All organic waste and wastewater will be recycled and reused again, leaving zero waste behind. The design is simple, and all the eco-cycle systems will function as plug and play solutions.
The project is challenging—constructing the house in only five days with the help of seven volunteers in a do-it-yourself (DIY) fashion, using only screwdrivers. In this way, the house is a unique challenge—it requires zero outside energy inputs, generates zero building material waste, produces zero carbon dioxide emissions, requires zero material costs, bears zero transportation impacts, creates zero operational waste, and requires zero labor costs. Finally, it has zero impact on the environment when the building is demolished.

3. Methodology

The whole Z-Free Home project follows five main methodological phases from the design to the evaluation of the 1:1 prototype. However, this paper will only present the outcomes of the accomplished parts of the first and second phases, as the rest are yet to be completed. The five phases of the Z-Free Home project are as follows.

3.1. Phase One: Design and Design Development

This phase starts with conceptual design sketches for the Z-Free Home’s architectural concept. Following that, a literature search for technical passive and eco-cycle systems was carried out, followed by ten intensive structured interviews with technical experts in the field of green environmental systems. The interviews were carried out with two experts in bio-based materials; one in eco-cycle systems, two in passive systems, one in using natural building techniques, one in safety codes and standards for natural materials in buildings, and finally, three in renewable energies. The literature search and interviews formed a basis for validating the architectural design concept, especially for the innovative passive and eco-cycle systems.
After finalizing the architectural design, the technical detailed designs for all the passive and eco-cycle systems were finalized to prepare for successive runs of building simulations using building energy modelling as a decision support tool and verification for the passive and the eco-cycle systems design. Towards the end of phase one, two participatory and transdisciplinary workshops were carried out with technical experts, municipality personnel, a designer, representatives from the green construction building sector, and local homeowners representing the non-technical home occupants. The outcomes of these workshops were meant to assist in enhancing and fine-tuning the eco-cycle systems and adding user-friendly detailing in the design of some of the features that were not accepted by the technical experts or homeowners.
As understanding the functionality of the eco-cycle systems can be hard to visualize or comprehend through verbal explanation, two-dimensional drawings and three-dimensional renders, Virtual Reality (VR) interactive tools were deployed as an interactive method. Over the course of two weeks, several mini workshop sessions were held with the help of media technology students at Aalborg University in Denmark. Seventeen design and architecture students joined the VR experimental demo of the Z-Free Home systems. Workshop participants selected through a random sampling from a pool of volunteers. VR was chosen as a method and tool to facilitate the understanding of the several passive and eco-cycle systems inside the house. The outcomes of each user’s interaction with the eco-cycle and passive systems were monitored and followed up by a questionnaire after the VR experience to document perceptions and get feedback on the manual use of the different systems.

3.2. Phase Two: Technical Calculations and Simulation

A more advanced modelling and computational fluid dynamics simulation was carried out for energy use, heating and cooling loads and renewable energy power generation. The evaluation of the primary energy number and visual comfort of the Z-free home was measured with the ClimateStudio simulation software. The building was exported from a Sketch-Up model to Rhinoceros 7 3D and modified for the simulations. The outdoor climate conditions were taken from the Climate OneBuilding database [11] for Malmö (Sweden), with information from 2004 through 2018. The parameters used for the simulations are provided in Table 1. All windows were recreated using Therm7.7 and Window7 software [12]—Berkeley National Laboratory public software to simulate glazing constructions and imported as .idf files in ClimateStudio. The Trombe wall, defined in the model, was modelled based on [13]. Later as next step lab experiments on building materials will be carried out to test the materials proposed to be used in the construction of the house. Tests such as water and fire resistance, compression, tension strength, and structural stability were conducted.
The evaluation of energy use was conducted based on the following parameters:
  • Primary energy demand for heating and cooling, which was used in reference to BEN 2 [14];
  • Swedish environmental buildings standard Miljöbyggnad [15];
  • and German Passive House Institute standards [16]. This parameter should not exceed 15 kWh/m2y after implementing passive measures according to these standards.
According to the aforementioned standards, energy use intensity should be below 75 kWh/m2y.
The thermal comfort requirement is taken from the FEBY18 standard [17]. For Sweden, this standard defines thermal comfort as when the indoor temperature stays between 21 °C and 26 °C. An indoor temperature above 26 °C between April and September is considered overheating. According to FEBY18, temperatures above 26 °C should not exceed 10% of the hours when people are present in the building.
The building’s moisture safety was also evaluated in the WUFI software with using the MATLAB script for data processing, based on [18]. The assumptions include a 0% fraction of adhering rain, with explicit radiation balance turned on, indoor climate conditions according to the standard EN13788, a humidity class of 2, and a temperature of 21 °C. Exterior climate conditions for the original construction were taken from the WUFI database using the location of Lund, Sweden. The insulation layer ThermoJute 100 was selected as a critical layer.
The evaluation of the daylight quality was conducted based on the following parameters:
  • Daylight factor (DF) is the ratio of daylight illuminance on a specific surface to simultaneous illuminance from an overcast sky, which is compared against the Miljöbyggnad standard. Spatial daylight autonomy (sDA) is defined as the percentage of points that meet a threshold level of 300 lux horizontal illuminance for over 50% of the occupied hours and compared against the LEED 4.1 standard [19]. Spatial disturbing glare is defined as the percentage of views across the regularly occupied floor area that experience disturbing or intolerable glare (daylight glare probability (DGP) > 38%) for at least 5% of occupied hours [20], compared against the LEED 4.1 standard.
All metrics were calculated twice—for the windows without any blinds and for static Venetian blinds, with a constant 45 degree inclination of the fins of the blinds to assess the potential losses on the glare removal measures.
This study had several limitations, which will be addressed in the future stages of the project. At the moment, there is no defined pattern of occupancy of the building. Therefore, the continuous presence of a person in the building was assumed for the purposes of the simulations. In future stages, the values taken from regulations might be re-evaluated by introducing the specific occupancy.
Furthermore, daylight simulations were conducted using a static position of the blinds since dynamic blinds modelling is not an option in ClimateStudio. Electric lighting was not precisely calculated due to the lack of data on the occupancy of the building at the present stage. Instead, BEN 2 requirements were used to obtain electric lighting values. The values of the domestic hot water and internal equipment loads were not calculated at this stage. Instead, they were also taken from the BEN 2 requirement for residential construction, providing values of 20 kWh/m2y for domestic hot water and 30 kWh/m2y for household needs. These values were added to the final energy use intensity.
Infiltration was calculated to measure the level of airtightness of the construction using Equation (1). In this calculation, an infiltration rate of @50Pa was set to 0.3 l/s/m2 in accordance with FEBY building requirements for passive house buildings.
A C H a t 4   P a = V o l u m e   o f   a i r   l e a k a g e   p e r   h o u r V o l u m e   o f   t h e   b u i l d i n g × 0.204 = i n f i l t r a t i o n   r a t e @ 50 P a 1000 × E n v e l o p e   a r e a × 3600 V o l u m e   o f   t h e   b u i l d i n g × 0.204
The internal load is a sum of people load and equipment load. ‘People load’ was calculated using Equation (2) and accounts for the heat gains from the presence of people in the building. ‘Equipment load’ was calculated based on Equation (3), and accounts for the heat generated by household equipment. In this case, the equipment load includes electric lighting, fans, pumps, and domestic appliances. Both equations and calculations were conducted based on figures provided by BEN 2.
For the ‘people load’, the heat load per person was assumed to be 80 W/person and is expressed as L in Equation (2). The number of people present in the building is expressed as p in Equation (2) and is equal to 1.42, according to BEN2 requirements. For the domestic household equipment heat generation calculation, energy use intensity is assumed to be 30 kWh/m2y as per BEN2 requirements, and is expressed as E in Equation (3). The usable heat fraction of the equipment is assumed to be 70%, and is expressed in Equation (3) as f.
P e o p l e   l o a d W / m 2 = p × L A ,
E q u i p m e n t   l o a d W / m 2 = f × E × 1000 8760 ,
The results of this calculation gave 5.39 W/m2 for ‘people load’ and 2.68 W/m2 for ‘equipment load’, equaling a total of 8.07 W/m2 in internal gains for the building.
Due to the programming logic of Climate Studio plugin, the default EUI value extracted from the simulation is not suitable for the analysis. This is because of the programming logic of Climate Studio, where heat generation from the building’s occupants is included in the final EUI calculation, which leads to an incorrect overestimation of energy use. Moreover, a ground–air heat exchanger was used for heating and cooling the building, which decreases energy consumption. As modelling of the EAHE was conducted in PHLuft software from the Passive House Institute, a manual calculation in the interface of Climate Studio was conducted. In accordance with BEN2 requirements, Equation (4) was employed to incorporate these factors:
E U I = E e q u i p m e n t + E d o m e s t i c   h o t   w a t e r + E h e a t i n g
Electricity produced through solar panels was also calculated at this stage through the System Advisor Model software [21]. The simulation included specific monocrystalline solar modules—model CS3K-300MS—maintaining a 20% nominal efficiency. The inverter used for the photovoltaic installation was Solar Power YS YS-3000TL, 240 V. The system covers a total of 16 m2 of the roof.

3.3. Phase Three: Physical Prototype for Proof-of-Concept Phase

This phase aims to test the proposed low impact building envelope using natural materials (clay and plant-based materials like straw, reeds, wood, kenaf, and jute) together with the passive eco-cycle systems in real life. A prototype of the test cells will be built in a laboratory environment to reduce the performance gap between the building performance simulation calculation and the real building performance. It will also allow for necessary design rectifications to be made before the full-scale house prototype is implemented. The proposed passive systems, a Trombe wall and a green wall, will be tested in the solar simulator lab. They will be simulated again together with earth pipes in the wind tunnel simulator lab to test the efficiency of passive heating and cooling with natural ventilation and natural air purification systems. Test cells are also important in order to estimate the efficiency expected from eco-cycle systems such as the composting toilet and the biogas stove. They can also be used for water heating. A demonstration test hybrid renewable energy system (PV and domestic wind turbine) without batteries will also be tested in both the solar lab and the wind lab. This is to ensure a net plus energy production in connection to the passive heating and cooling systems. The same tests will be conducted for the earth fridge and the low-tech waterless machines. In parallel to this phase, the researchers will prepare a detailed inventory for the test cells from a cradle-to-cradle life cycle perspective. The payback time for the systems and the whole buildings will also be calculated.

3.4. Phase Four: DIY Construction in an Urban Living Lab

The building construction stages for a physical full house model (20 m2) with the eco-cycle and passive systems as a proof of concept were planned in a participatory Do It Yourself (DIY) fashion. The house will be built in the experimental urban living lab area in the city of Lund in southern Sweden. With the help of seven volunteer, construction is expected to take between five and seven working days. However, poor weather conditions could delay the construction process. Architecture and building construction students, together with students at vocational schools, will be the main target groups of volunteers. Volunteers will receive instructions on safety regulations. This phase of the study will also aim to engage Syrian and Ukrainian refugees through post-conflict rebuilding training. The DIY proof of concept demo model house is expected to be showcased and used for monitoring purposes for one year.

3.5. Phase Five: Pre- and Post-Occupancy Evaluation

In this phase, pre-occupancy structural safety tests together with water leakage and indoor air infiltration tests will be carried out on site. This is to ensure that the house is safe for test occupancy. The house will be monitored for its performance for one full year. Thermal performance and energy production will be central. Data loggers will be used to monitor indoor temperature, humidity, CO2 concentration, indoor air quality, and daylight hours during different seasons and different times of the day. A short occupancy time will be carried out with guest occupants for daytime visits. A post-occupancy survey questionnaire will be used whereby occupants will be asked how satisfied they were with indoor thermal comfort, indoor air quality, and noise comfort. They will also be asked their level of satisfaction with the passive system for heating and cooling and eco-cycle systems for waste treatment and water supply. Additionally, occupants will report on their experience with the earth fridge, water free dishwasher and washing machine. User satisfaction and feedback on each system’s performance is an important part of the whole proof of concept.

4. Results

In this section, outcomes from each phase will be presented in chronological order. The iterative approach from ideation to literature search and expert consultations will first be presented, followed by a presentation of the technical design drawings as the de facto design results. Outcomes from the virtual reality (VR) workshops are explicitly shown, as VR is considered one of the novel approaches in the research methods.
The simulation and numerical calculations will be provided at the end.

4.1. Results of Phase One: Literature and Interviews

Conducting a literature search helped ground this study. It helped the researchers understand whether similar research on passive and eco-cycle building design has been conducted using circular design concepts. Target sources included journal articles, books, and technical reports from research projects, architecture projects, construction companies, and real-estate companies. The outcome of the literature search could be summarized as having identified a gap between academia and practice when it comes to testing passive and eco-cycle solutions for zero-emission building design. The search also showed that the majority of circular buildings end up as pilot projects, but still do not make it into common practice. It is evident that there are very few eco-cycle systems that are applied in practice in an integrated manner with passive systems and circular design principles. There are no existing design protocols that can combine all three objectives—passive heating and cooling, circular design principles, and eco-cycle systems. Circularity as a concept that includes disassembly principles and re-claimed or repurposed materials is still in an infant stage worldwide. Here, we see an important contribution of this research project in offering ways to incorporate circular, passive, and eco-cycle design concepts in an integrated way. The literature overview also revealed the dearth of research that combines compact ways of living with carbon neutrality and climate responsive design. The literature was found to mainly focus on construction methods, affordability, and the possibility to assemble and disassemble something in a do-it-yourself fashion. Climate considerations and energy efficiency were not centrally considered when tiny houses or compact living were discussed. In addition, the literature shows the challenges that still exist in obtaining building permits to implement eco-cycle systems and natural materials as main construction materials. This part was particularly aligned with the experts’ answers during the interviews who shared their experiences with applying for building permits for similar pilot research projects.
The interviews with expert designers were very informative in the design of the passive systems. Interviewees raised their concerns about how the eco-cycle and passive systems function. The interviewed architects are considered specialists in green building design. One had used the EAHE as a geothermal system for passive heating and one had used the Trombe wall for passive heating. Thus, the shallow EAHE used in the Z-Free Home was a new application for them, as it is for passive heating, ventilation, and air purification. Additionally, new for the interviewees was the use of the Trombe wall, which is integrated with the green wall and used for heating, cooling, and air filtration. Some of the concerns raised for the passive systems were related to the mold formation in EAHE and the efficiency of the passive systems. The numerical calculations and the outcome of the simulation were used to support the discussion and show the expected efficiency of the passive and eco-cycle systems. Only one expert architect had previously worked with eco-cycle systems and had personally tested many of the approaches proposed in the Z-Free Home, such as the composting toilet. The rest of the architects shared doubts on how the waste management works and the efficiency of the systems for biogas production and the heating of water. The outcome of the interviews was helpful to adjust the design of the house.
The experts’ interviews were also very informative in relation to building standards and codes that still hinder the possible integration of natural materials, passive and eco-cycle systems in the Swedish context. Sweden is a highly regulated country, and there are many restrictions in order to ensure human safety. Using bio-based materials or natural materials that are not in building codes is still one of the biggest obstacles. For example, Sweden still does not have a code or standard for building with earth or straw. Therefore, using agriculture bio-waste or other natural fibers like kenaf or jute in building constriction is uncommon. For example, there are no standard tests for fire safety or water resistance for these unconventional ways of building, even if such natural materials are low impact materials and contribute to the carbon neutrality goals that the country aims to achieve. However, such eco-cycle concepts are hard to apply. Thus, this project also aims to disrupt the building design and building construction fields. The proof-of-concept using test cells for experimental evaluation of the Z-Free Home will hopefully show reliable proof that using natural materials and investing in passive and eco-cycle systems is a viable way forward towards carbon neutrality and climate-conscious design.

4.2. Results from Phase One: The Design Proposal

The design process resulted in a 20 m2 compact-living house prototype. The tiny house contains the main necessities for daily life. Architectural plans, sections, and main elevations are demonstrated and shown in Figure 1, Figure 2 and Figure 3. The design is based on using folded furniture concepts that are operated manually. This helps in maximizing the use of the space. During the Covid-19 lockdown and periods of quarantine, it was clear to many that a rethinking of the ‘home’ concept was needed as it became a workplace for many. During the pandemic, family members often occupied various un-used spaces of the home, but this often necessitated a reconfiguration of space. The folded furniture concept makes it possible to have different daytime and evening functions for the house as well as accommodate workspace and living space in a compact manner. The Z-Free Home offers a flexible layout so that the tiny house, for example, can be used for office space during the day if needed. If guests are invited, the bedroom can fold-up to create extra space. The same applies for the kitchen and dining space. Figure 1, Figure 2 and Figure 3 show the interior layout of the house.
Several passive systems were used to cover heating and cooling needs, natural ventilation, and daylight. A hybrid Trombe wall and green wall are used for passive heating and for indoor air purification. An Earth Air Heat Exchanger (EAHE), which takes advantage of both open and closed air cycles, is used for passive heating, passive cooling, and natural ventilation. A skylight is integrated in the roof design for adequate daylight, which is always a challenge in Scandinavian climates which lack sun for the majority of the winter season days. The architectural design, along with the technical designs for eco-cycle systems, are shown in Figure 4, Figure 5 and Figure 6. The passive systems are exchangeable depending on the season and day or night-time needs. The passive systems rely mainly on natural energy from the sun and wind. For that reason, three passive systems are suggested to complement each other to accommodate primary cooling, heating, and daylight needs. User interaction with passive systems is very important as the Z-Free Home’s performance mainly depends on how well users can operate the manual functionality of the passive systems. The Trombe wall and the green wall were designed to be as user friendly as possible. That is why the participatory and interactive VR workshops were important supportive design tools that test users’ preferences and understanding of all passive and eco-cycle systems.
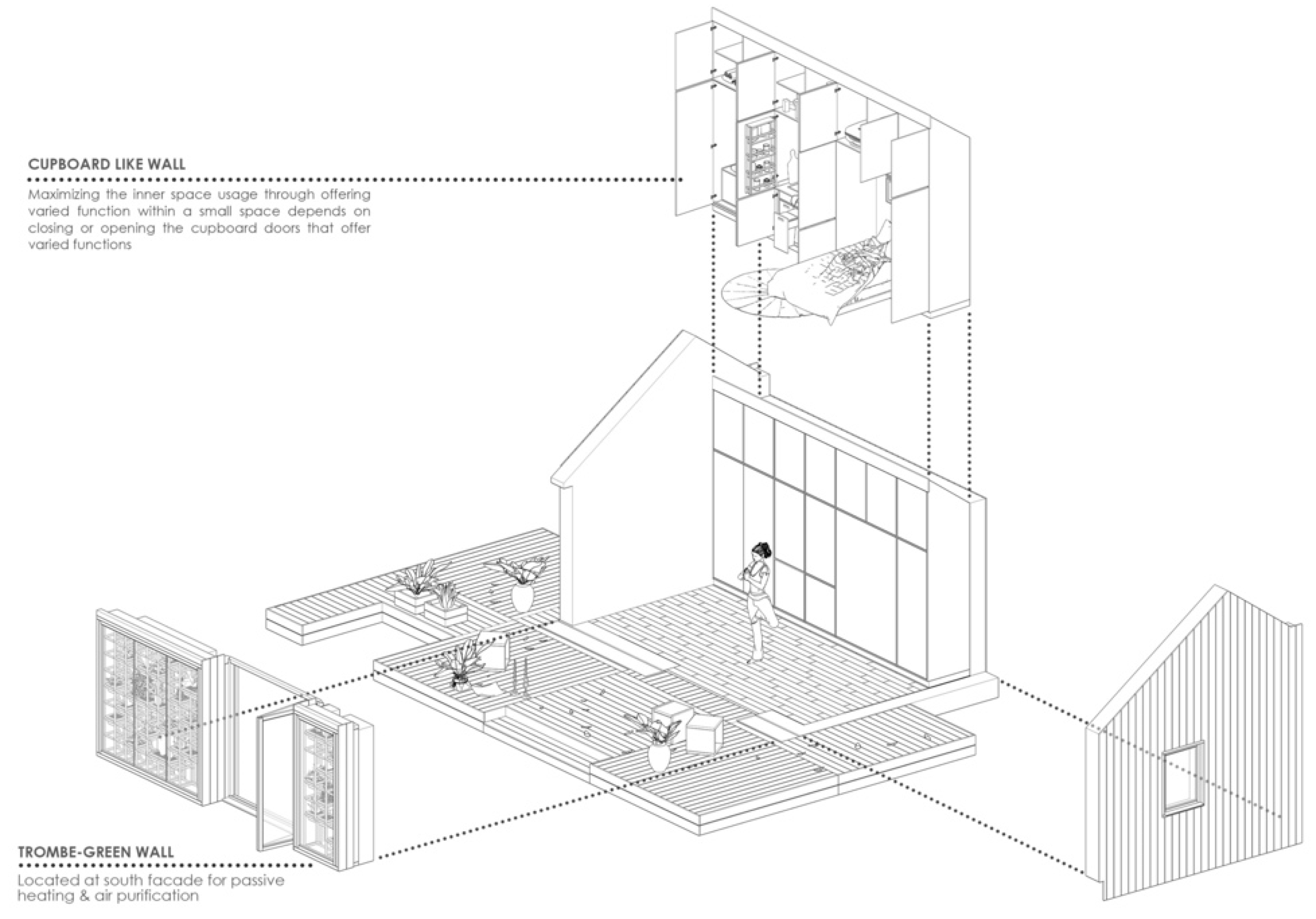
In addition to the flexible folded furniture, the house has a built-in kitchen and bathroom. The kitchen is equipped with a stove, an earth refrigerator, and a biogas composting system as fuel for the stove. The bathroom has a toilet that separates solid waste as compost or biofuel to heat water. The kitchen also has an organic composter where organic waste from the bathroom can be mixed to produce biofuel for cooking and to heat water. The grey water from both the bathroom and the kitchen is filtered and reused for household cleaning and irrigating non-edible crops in the green wall. The kitchen is also equipped with a manual dish washer and washing machine that use only one cup of water for washing. It is operated through manual spinners. The functionality of these two low-tech machines needs further investigation. The overall design of all the household components are illustrated Figure 7, which shows the integrated hybrid green wall and Trombe wall together with folded and built-in furniture concepts.

4.3. Results of Phase One: VR Interactive Workshop for Design Development

Co-developing a VR model of the Z-Free Home to enable interactive, pre-built exploration with architecture and industrial design students was the main activity in this phase. To explore the sense of scale and how to interact with passive systems, the Z-Free Home was first constructed as a VR prototype. Resonating with suggestions from Portman, A. Natapov, and Fisher-Gewirtzman (2015) [22], the aim of the prototype was to move beyond VR as a mere visualization tool and include the mimicked interaction with the house eco-cycle and passive systems to better transfer the ideas of their functions. Translating the design into VR required an interdisciplinary partnership between experienced computer science students and the first author as the Z free home designer. Fine tuning the 3D model, including resolving overlapping meshes, high polycounts, and mimicking interactions between the house’s various elements—from sliding doors to the geothermal fridge—took several iterations. Details on the prototype are published in Rodil et al. (2022) [23]. The prototype has a sophisticated data logging system which allows for more detailed inspection of certain elements. For instance, the person navigating can see the number of framerates in the simulation or how the space was utilized, e.g., if and where users would move inside the correct scale of the Z-Free Home.
After constructing a fully interactive VR prototype of the design proposal, the prototype was evaluated with 17 architecture and design students who were meant to represent potential homeowners. This evaluation proved highly informative for furthering the researchers’ understanding of the design proposal through the experience of participants with no prior exposure to the project. The participants were able to understand the mechanisms to operate the various passive systems using VR tools and could enhance their experiences through video recordings. This provided participants the opportunity to give their feedback on how easy or how difficult it was, for example, to open the green wall or the earth refrigerator. In post-analysis, the data gathered enabled an improved understanding across participants on their behavior inside the VR prototype. On several occasions, participants provided design ideas and gave ideas for improvement, which were not considered in the sketch phases. One example was the inaccessibility of the plant wall (or herb garden) from inside the house, which revealed in the VR that a series of steps were needed to access it, thereby making the experience cumbersome. In general, feedback from the participants was helpful for adjusting the design for the passive and the eco-cycle systems. Figure 8 and Figure 9 show the VR experiment.

4.4. Results of Phase Two: Simulation and Numerical Calculations Outcomes

The outcomes of the building simulation for heating loads, cooling loads, and energy production were valuable for optimizing the passive systems’ efficiency for reducing heating and cooling demands and optimizing active renewable systems. Based on the simulation, the building requires approximately 13 kWh/m2y of primary energy to cover the cooling demands and approximately 10 kWh/m2y of primary energy to cover the heating demands. Both values were calculated with the consideration of EAHE. Paired with the energy use intensity of approximately 73 kWh/m2y, the evaluated house satisfies the passive house standard. The skylight proved detrimental for the winter and summer periods due to the increased heat losses from transmission and night cooling during the winter and significant overheating during the summer. The skylight also posed visual glare problems over the whole year, where all the views directly under the skylight showed either intolerable or disturbing glare. However, the cooling and heating systems solved the thermal energy problems, as demonstrated in Figure 10. The critical layer is moisture safe, as shown in Figure 11, with the mold index peaking in the first three years and then entirely disappearing in the following years. The total energy use for different household functions (e.g., dishwasher, washing machine, etc.) was 1467 kWh, while the electricity produced from solar panels was 3452 kWh, as shown in Figure 12, which is more than the calculated energy consumption. Therefore, the house will perform as an energy-positive house.
The daylight factor was within the standard range for both windows without blinds and venetian blinds in the static mode, except in the zone under the skylight, as demonstrated in Figure 13 and Figure 14. The spatial daylight autonomy was above 70%, as shown in Figure 15 and Figure 16 on most of the area of the Z-Free Home, reducing the need to use electric light sources and yielding three credits in LEED 4.1. It should be noted that the northwest corner of the home was problematic when blinds were introduced, but overall, the sDA of the building is satisfactory. The spatial disturbing glare simulation showed a significant number of views with an intolerable glare, as demonstrated in Figure 17 and Figure 18. The issues with the glare discomfort were partially resolved when interior venetian blinds were installed in a static position. Due to constraints of the simulation, it is suggested that potential occupants adjust the position of the venetian blinds depending on their specific needs. To simulate natural ventilation, the EAHE was sufficient to provide the adequate air intake for fresh air needed given the small size of the house.

5. Discussion

The Z-Free Home, as a pilot, is a trial to combine eco-cycle systems with passive means through circular design. It is anticipated to be a high gain project, despite all the challenges it is trying to overcome. From the phases finished so far, one can say that the design details for the passive and eco-cycle systems in the house are the main reason it is able to achieve zero energy, zero emissions, zero waste, and zero carbon. The rest of the zeros will be verified after finalizing the rest of the methodological phases. The involvement of architects and engineers was important to improve the design details and achieve better performance. The involvement of laymen in the VR workshop helped sharpen certain mechanisms and the ease of use of some household features. Many concepts in the Z-Free Home are not common in normal residential units, so it was important to employ a user human-centered design approach to make the space and functionality experiential using embodied VR. This allowed for several insights into the design proposal, which yielded a different experience for participants than first imagined, for instance on the practicalities of the plant wall. Employing a data-logging approach to inspect how participants explore spaces in VR is a relatively new approach, and in combination with post-VR simulation inquiry methods, can enable a broader understanding of how participants experience a concept digitally in advance of physical proof-of-concept experience and re-design.
The simulation phase as a design support tool was important to make several optimizations. For example, blinds were introduced over the skylight to reduce glare and overheating over summer. The integration of an EAHE is another solution which is not typically implemented in Nordic climates; however, the preliminary results demonstrate its viability, even with the earth-thermal balance. From a technical perspective, there were a few limitations in this study, which will be eliminated in later stages of the project. The materials of the building envelope are produced in Germany, which could negatively impact the LCC and LCA of the building. Therefore, identifying locally available substitutes might be considered during the integrated life cycle analysis. Occupants’ behaviors were also not considered, which negatively impacted the results of the simulations. In later stages of the project, they will be integrated, reducing the energy use intensity and visual discomfort issues. Another potential issue is the optimization of the PV panel installation. While in Nordic climates a large portion of energy use occurs in the winter months, most electricity is generated by PV panels during summer months. The installation of batteries might be a solution, but it could also negatively impact the cost and environmental impact of the project. Nevertheless, at the current stage of the project, the simulation results demonstrate the viability of the project, with the energy use requirements fulfilling the Swedish standards and Passive House Institute Standards and daylight quality fulfilling LEED 4.1 and Miljöbyggnad gold requirements. Moreover, the building is moisture safe.
There are still challenges ahead of this project, particularly in relation to fire proofing, water resistance, and construction detailing. Once the construction of the house is complete and the building envelope is tested, a complete life cycle assessment and life cost analysis will be conducted to review the final performance of the house and the payback time. Additionally, the post-occupancy evaluation and the building monitoring will show the real performance and evaluate users’ preferences and interaction with the house’s several eco-cycle and passive systems. The concepts applied in the Z-Free Home are considered a disruption in the field. Adopting such daring concepts that are mainly self-sufficient and do-it-yourself can be uncomfortable to many investors and construction companies. In recent years, it has been observed that the building sector has been moving steadily towards energy and resource efficiency, yet still not enough has been done to offset the rising energy demands of the building and construction industry to a level that matches our current climate challenges. Over the next 40 years, the world expects to build 230 billion square meters in new construction [24]. That is the equivalent of adding a city the size of Paris to the planet every single week and a city the size of New York City every month. The environment needs to think Z-Free in the residential sector as a bare minimum. Z-Free thinking can be applied in office buildings, industrial buildings, and more. We have to start using passive and eco-cycle systems in a more advanced way to help eliminate the building sector’s carbon footprint and harmful impact on natural resources. The UN’s Sustainable Development Goals are giving new purpose to businesses, their buildings, and how they are designed, constructed, and used [25]. Ambitious action is needed without delay to avoid locking in long-lived, inefficient building assets for decades to come [26,27]. That is hopefully what the Z-Free Home is offering in terms of a start towards a more sustainable built environment.

6. Conclusions

This paper details the outcomes of the first two phases of the Z-Free Home research project, showing the design and the different participatory approaches with expert interviews and VR workshops with laymen participants. The project is a high-gain project, as preliminary outcomes show that the house performs better than standard energy efficient residential buildings according to Swedish standards. However, it is also a high-risk project since the performance of passive and eco-cycle system in real life can differ than simulation. As this project is ongoing, the home’s final performance outcomes are difficult to conclude; however, preliminary results are promising. The full-scale final proof of concept will demonstrate all final study outcomes and the real performance in the real climate in Lund, Sweden.

Author Contributions

Conceptualization, M.D.; methodology, M.D., I.I. and K.R.; software, I.I.; validation, I.I. and M.D.; formal analysis, M.D., I.I. and K.R.; investigation, M.D.; resources, M.D.; data curation, M.D., I.I. and K.R.; writing—original draft preparation, M.D. and I.I.; writing—review and editing, M.D., I.I. and K.R.; visualization, M.D., I.I. and K.R.; supervision, M.D.; project administration, M.D.; funding acquisition, M.D. All authors have read and agreed to the published version of the manuscript.

Funding

This research received no external funding.

Data Availability Statement

The software Rhinoceros 7, ClimateStudio and Matlab is lincense based. The software System Advisor Model, Therm 7.7 and Window7 are available to general public.

Acknowledgments

The authors would like to thank research assistant Mohamed ElBangy for the help with architectural and technical drawings, the students at the Medialogy education at Aalborg University for developing and evaluating the VR prototype together with acknowledging Crafoord foundation for the research grant.

Conflicts of Interest

The authors declare no conflict of interest.

References

  1. Behr, D.M.; Chen, L.; Goel, A.; Haider, K.T.; Singh, S.; Zaman, A. Introducing the Adequate Housing Index (AHI). In A New Approach to Estimate the Adequate Housing Deficit within and across Emerging Economies; World Bank Group: Washington, DC, USA, 2021. [Google Scholar]
  2. Glowacki, D.M. Living and Leaving: A Social History of Regional Depopulation in Thirteenth-Century Mesa Verde; University of Arizona Press: Tucson, AZ, USA, 2017. [Google Scholar] [CrossRef]
  3. UN-Habitat. Housing at the Centre of the New Urban Agenda; UN-Habitat: Nairobi, Kenya, 2015; p. 20. [Google Scholar]
  4. Kallergis, A.; Angel, S.; Liu, Y.; Blei, A.M.; Galarza Sanchez, N.; Lamson-Hall, P. Housing Affordability in a Global Perspective; Lincoln Institute of Land Policy: Cambridge, MA, USA, 2018. [Google Scholar]
  5. Aquilino, M.J. Beyond Shelter: Architecture for Crisis; Thames & Hudson: London, UK, 2011. [Google Scholar]
  6. Dabaieh, M. Design and build with straw, earth and reeds for a minus carbon and plus energy building practice. In Proceedings of the IOP Conference Series: Earth and Environmental Science, Moscow, Russia, 27 May–6 June 2019. [Google Scholar] [CrossRef]
  7. Dabaieh, M.; Borham, A. Acclimatization Measures for Temporary Refugee Shelters in Hot Arid Climates; Low-Tech Mobile Solutions Using Bedouin Tents. Architecture in (R) Evolution. In Proceedings of the 31st International PLEA Conference, Bologna, Italy, 9–11 September 2015. [Google Scholar]
  8. Dabaieh, M. Minus Carbon & Plus Energy: A Design Home Kit; Malmö University: Malmö, Sweden, 2017. [Google Scholar]
  9. IEA. World Energy Outlook 2021: Part of the World Energy Outlook. Int. Energy Agency 2021, 8, 386. Available online: https://www.iea.org/reports/world-energy-outlook-2021 (accessed on 13 July 2023).
  10. Feifer, L.; Imperadori, M.; Salvalai, G.; Brambilla, A.; Brunone, F. Active House: Smart Nearly Zero Energy Buildings; Springer International Publishing: Cham, Switzerland, 2018. [Google Scholar]
  11. OneBuilding. Available online: https://www.climate.onebuilding.org/ (accessed on 12 September 2022).
  12. Home|Windows and Daylighting. Available online: https://windows.lbl.gov/ (accessed on 27 February 2023).
  13. Ellis, P.G. Development and Validation of the Unvented Trombe Wall Model in EnergyPlus; University of Illinois at Urbana-Champaign: Urbana-Champaign, IL, USA, 2003. [Google Scholar]
  14. Svensson, Y. Boverkets Föreskrifter om Ändring av Verkets Föreskrifter och Allmänna Råd. Boverkets Författningssamling. Available online: https://rinfo.boverket.se/BEN/PDF/BFS2017-6-BEN-2.pdf (accessed on 9 December 2021).
  15. Sweden Green Building Council. Miljöbyggnad 4.0. 2022. Available online: www.sgbc.se (accessed on 9 December 2021).
  16. Passive House Institute. Criteria for the Passive House, EnerPHit and PHI Low Energy Building Standard. 2016. Available online: https://passivehouse.com/ (accessed on 12 September 2022).
  17. Forum för Energieffektivt Byggande. 2018. Available online: https://www.feby.se/ (accessed on 18 February 2018).
  18. Hukka, A.; Viitanen, H.A. A mathematical model of mould growth on wooden material. Wood Sci. Technol. 1999, 33, 475–485. [Google Scholar] [CrossRef]
  19. U.S. Green Building Council. LEED v4.1. 2022. Available online: https://www.usgbc.org/leed/v41 (accessed on 12 September 2022).
  20. Annual Glare—ClimateStudio Latest Documentation. Available online: https://climatestudiodocs.com/docs/annualGlare.html (accessed on 27 February 2023).
  21. National Renewable Energy Laboratory. System Advisor Model Version. 2020. Available online: https://sam.nrel.gov/forum/forum-general/302 (accessed on 11 November 2020).
  22. Portman, M.E.; Natapov, A.; Fisher-Gewirtzman, D. To go where no man has gone before: Virtual reality in architecture, landscape architecture and environmental planning. Comput. Environ. Urban Syst. 2015, 54, 376–384. [Google Scholar] [CrossRef]
  23. Rodil, K.; Bisbo, K.; Kronborg, K.T.; Kristensen, L.B.; Atkinson, P.B.; Dabaieh, M. Using Virtual Reality to Demonstrate Sustainable Architecture Concepts: Making Passive Systems Interactive. In Proceedings of the 2022 Nordic Human-Computer Interaction Conference, Aarhus, Denmark, 8–12 October 2022; pp. 1–2. [Google Scholar]
  24. United Nations. Global Status Report for Buildings and Construction 2021. United Nations Environment Programme. 2021. Available online: https://globalabc.org/resources/publications/2021-global-status-report-buildings-and-construction (accessed on 13 July 2023).
  25. French, D.; Kotzé, L. (Eds.) Sustainable Development Goals: Law, Theory and Implementation; Edward Elgar Publishing: Cheltenham, UK, 2018. [Google Scholar]
  26. Lopes, M.A.R.; Antunes, C.H.; Reis, A.; Martins, N. Estimating energy savings from behaviours using building performance simulations. Build. Res. Inf. 2017, 45, 303–319. [Google Scholar] [CrossRef]
  27. Hes, D.; Du Plessis, C. Designing for Hope: Pathways to Regenerative Sustainability; Routledge: New York, NY, USA, 2015. [Google Scholar]
Figure 1. House plan. The (top) plan shows the house in “folded” mode, and the (lower) plan shows the house in “unfolded” mode. Section A-A is shown in Figure 3.
Figure 1. House plan. The (top) plan shows the house in “folded” mode, and the (lower) plan shows the house in “unfolded” mode. Section A-A is shown in Figure 3.
Energies 16 06536 g001
Figure 2. Cross-section of the house showing the different interior foldable facilities.
Figure 2. Cross-section of the house showing the different interior foldable facilities.
Energies 16 06536 g002
Figure 3. Cross-section from the south showing the hybrid Trombe wall and the green wall together with the skylight.
Figure 3. Cross-section from the south showing the hybrid Trombe wall and the green wall together with the skylight.
Energies 16 06536 g003
Figure 4. EAHE for passive cooling and heating used both for fresh and tight mode.
Figure 4. EAHE for passive cooling and heating used both for fresh and tight mode.
Energies 16 06536 g004
Figure 5. Waste management systems for recycling and reusing grey and black water in addition to rainwater harvesting.
Figure 5. Waste management systems for recycling and reusing grey and black water in addition to rainwater harvesting.
Energies 16 06536 g005
Figure 6. Waste management system for biofuel.
Figure 6. Waste management system for biofuel.
Energies 16 06536 g006
Figure 7. Axonometric of the house showing the folded furniture design, integrated Trombe wall and green wall passive systems.
Figure 7. Axonometric of the house showing the folded furniture design, integrated Trombe wall and green wall passive systems.
Energies 16 06536 g007
Figure 8. Testing the Eco-cycle systems in VR. Photo credits MED 8 at Aalborg University.
Figure 8. Testing the Eco-cycle systems in VR. Photo credits MED 8 at Aalborg University.
Energies 16 06536 g008
Figure 9. Testing the Hybrid Trombe wall and green wall in VR. The (left) side shows a VR participant interacting from an in-room view. The (right) side shows the participant interacting inside the VR Z-Free Home.
Figure 9. Testing the Hybrid Trombe wall and green wall in VR. The (left) side shows a VR participant interacting from an in-room view. The (right) side shows the participant interacting inside the VR Z-Free Home.
Energies 16 06536 g009
Figure 10. Temperature distribution within the Z-Free Home on an hourly basis.
Figure 10. Temperature distribution within the Z-Free Home on an hourly basis.
Energies 16 06536 g010
Figure 11. Mold index of the Thermo Jute 100 layer.
Figure 11. Mold index of the Thermo Jute 100 layer.
Energies 16 06536 g011
Figure 12. Annual photovoltaic (PV) electricity generation.
Figure 12. Annual photovoltaic (PV) electricity generation.
Energies 16 06536 g012
Figure 13. Daylight factor in the Z-Free Home without blinds.
Figure 13. Daylight factor in the Z-Free Home without blinds.
Energies 16 06536 g013
Figure 14. Daylight factor in the Z-Free Home with static venetian blinds.
Figure 14. Daylight factor in the Z-Free Home with static venetian blinds.
Energies 16 06536 g014
Figure 15. Spatial daylight autonomy in the Z-Free Home without blinds.
Figure 15. Spatial daylight autonomy in the Z-Free Home without blinds.
Energies 16 06536 g015
Figure 16. Spatial daylight autonomy in the Z-Free Home with static venetian blinds.
Figure 16. Spatial daylight autonomy in the Z-Free Home with static venetian blinds.
Energies 16 06536 g016
Figure 17. Spatial disturbing glare in the Z-free home on an annual basis.
Figure 17. Spatial disturbing glare in the Z-free home on an annual basis.
Energies 16 06536 g017
Figure 18. Spatial disturbing glare in the Z-Free Home on an annual basis with static venetian blinds.
Figure 18. Spatial disturbing glare in the Z-Free Home on an annual basis with static venetian blinds.
Energies 16 06536 g018
Table 1. Energy and thermal comfort simulation results.
Table 1. Energy and thermal comfort simulation results.
Type of the ConstructionParameterValueMaterials Used in ClimateStudio
Opaque constructionsU-value, W/(m2K)0.1215 cm Claytec Blähtonleichtlehm, 22 cm Thermo Jute 100, 1 cm naturbo Innendämmplatte: Lehmputz, 6 cm naturbo Innendämmplatte: Holzweichfaser, 2 cm Larch.
Opaque constructionsReflectance, %20.58Lambertian material Bark 3.
Windows and doorU-value, W/(m2K)1.53SFE4-14-HmG06-16-SFE4
Windows and doorg-value, a fraction of a unit0.7SFE4-14-HmG06-16-SFE4
Windows and doorVisual transmittance, a fraction of a unit0.74SFE4-14-HmG06-16-SFE4
SkylightsU-value, W/(m2K)0.66HmG06-16-FE4
Skylightsg-value, a fraction of a unit0.48HmG06-16-FE4
SkylightsVisual transmittance, a fraction of a unit0.66HmG06-16-FE4
Disclaimer/Publisher’s Note: The statements, opinions and data contained in all publications are solely those of the individual author(s) and contributor(s) and not of MDPI and/or the editor(s). MDPI and/or the editor(s) disclaim responsibility for any injury to people or property resulting from any ideas, methods, instructions or products referred to in the content.

Share and Cite

MDPI and ACS Style

Dabaieh, M.; Iarkov, I.; Rodil, K. The ‘Z-Free’ Home: A Circular Thinking and Eco-Cycle Design Practice. Energies 2023, 16, 6536. https://doi.org/10.3390/en16186536

AMA Style

Dabaieh M, Iarkov I, Rodil K. The ‘Z-Free’ Home: A Circular Thinking and Eco-Cycle Design Practice. Energies. 2023; 16(18):6536. https://doi.org/10.3390/en16186536

Chicago/Turabian Style

Dabaieh, Marwa, Ilia Iarkov, and Kasper Rodil. 2023. "The ‘Z-Free’ Home: A Circular Thinking and Eco-Cycle Design Practice" Energies 16, no. 18: 6536. https://doi.org/10.3390/en16186536

APA Style

Dabaieh, M., Iarkov, I., & Rodil, K. (2023). The ‘Z-Free’ Home: A Circular Thinking and Eco-Cycle Design Practice. Energies, 16(18), 6536. https://doi.org/10.3390/en16186536

Note that from the first issue of 2016, this journal uses article numbers instead of page numbers. See further details here.

Article Metrics

Back to TopTop