Contemporary Atrium Architecture: A Sustainable Approach to the Determination of Smoke Ventilation Criteria in the Event of a Fire
Abstract
:1. Introduction
- Sterile atria, which are fully separated from the rest of the building, with the use of fire resistance and smoke-proof partitions;
- Closed atria, which are also separated from the rest of the building, while the partitions used for separation do not have to have a fire resistance class or be smoke-tight;
- Partially open atria, where only higher floors remain, which—like in closed atria—have not been separated by smoke-tight or fire-resistant partitions;
- Open atria, where all floors are open on the atrium space.
1.1. Smoke Control Systems of Atria
1.2. CFD Simulations in the Smoke Control Systems’ Design
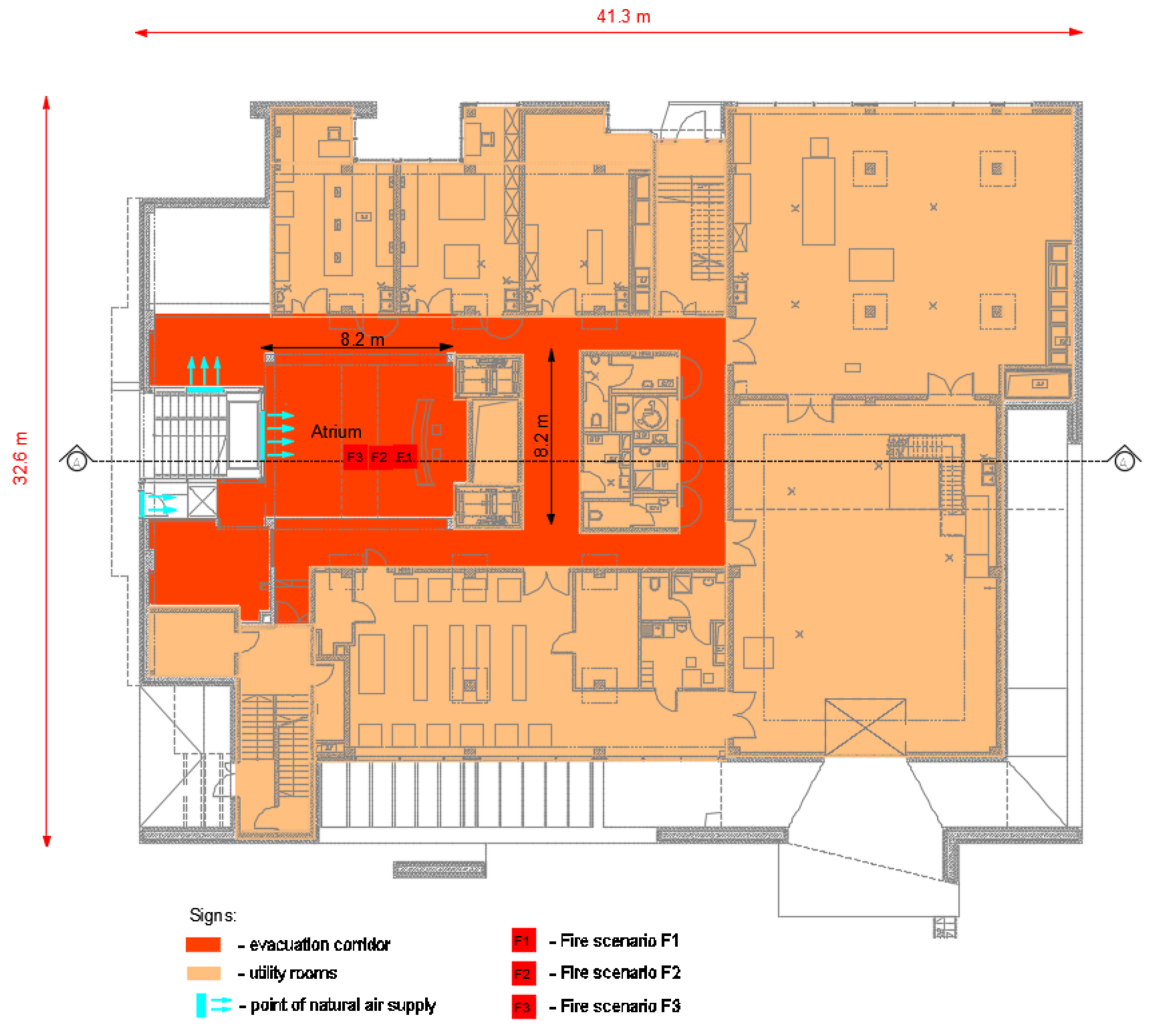
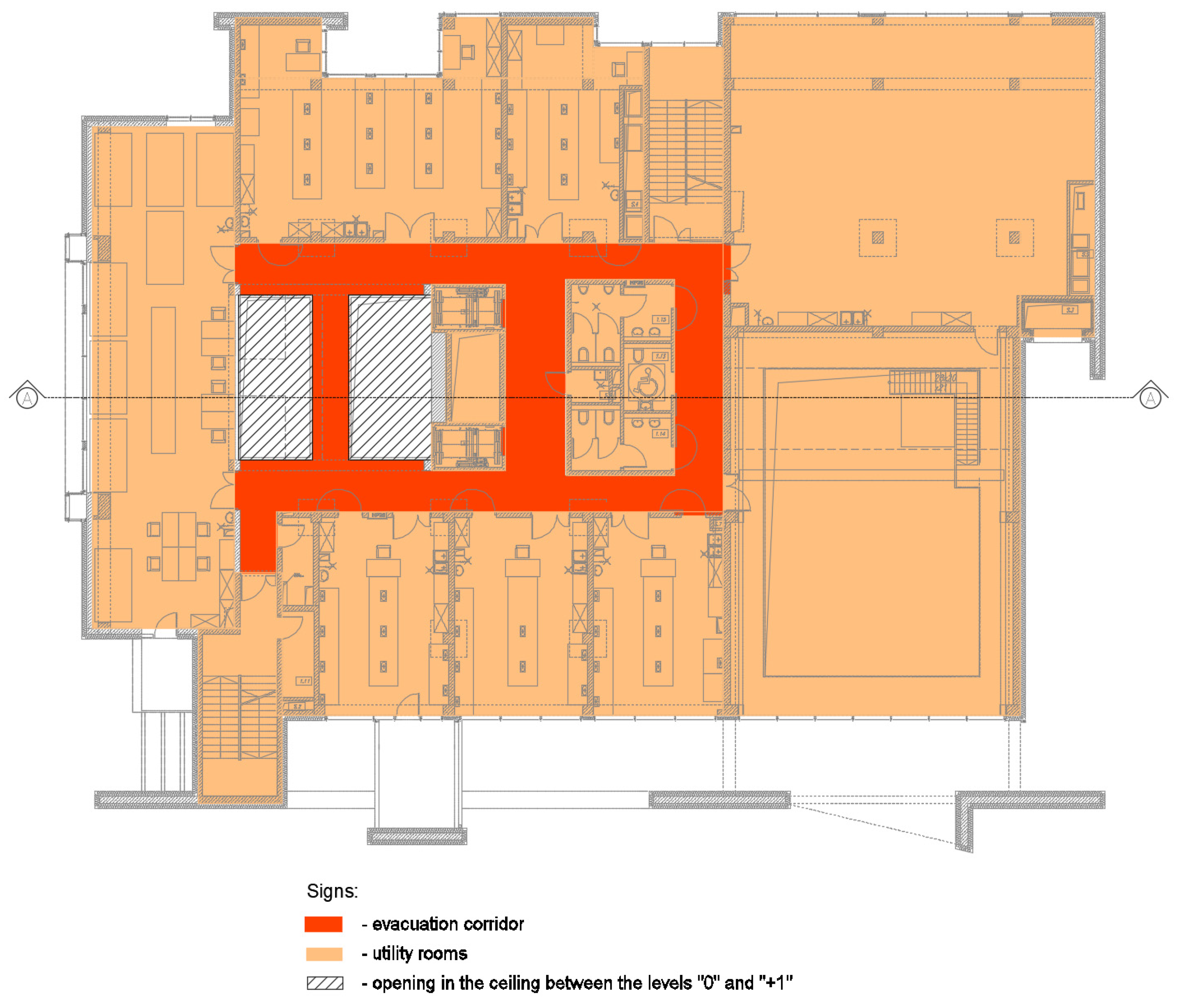
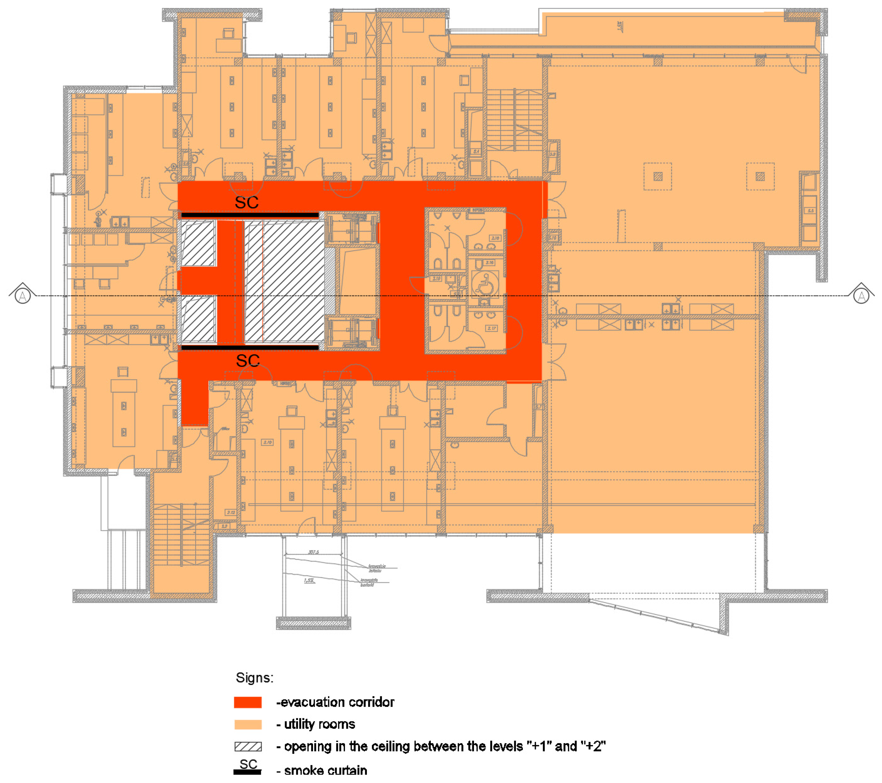
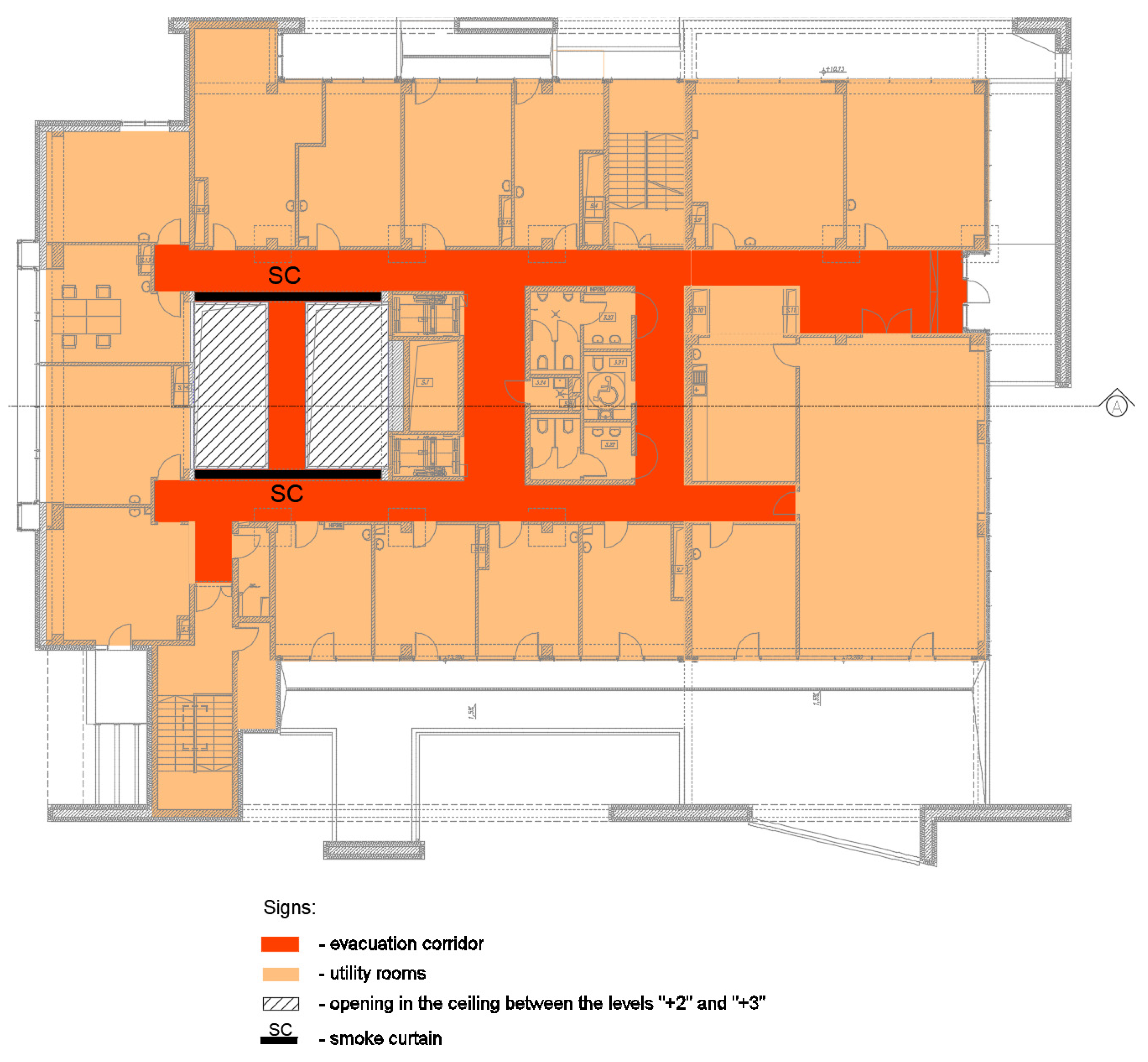
2. The Exemplar Atrium Analysis
2.1. Atrium in the LabFactor Building
2.2. The Atrium Smoke Control System
2.3. CFD Computer Simulations’ Boundary Conditions
3. Discussion
4. Conclusions
Author Contributions
Funding
Institutional Review Board Statement
Informed Consent Statement
Data Availability Statement
Conflicts of Interest
References
- Klote, J.H. Sustainability and Smoke Control. In Proceedings of the Chartered Institution of Building Services Engineers, London, UK, 13 March 2013; pp. 1–11. [Google Scholar]
- Chow, W.K.; Chow, C.L. Evacuation with smoke control for atria in green and sustainable buildings. Build. Environ. 2005, 40, 195–200. [Google Scholar] [CrossRef]
- Brzezińska, D.; Bryant, P. Risk index method—A tool for sustainable, holistic building fire strategies. Sustainability 2020, 12, 4469. [Google Scholar] [CrossRef]
- Fang, L.; Nielsen, P.v.; Brohus, H. Investigation on Smoke Movement and Smoke Control for Atrium in Green and Sustainable Buildings; Aalborg University: Aalborg, Denmark, 2007; p. 124. [Google Scholar]
- Morgan, H.P.; Ghosh, B.K.; Garrad, G. Design Methodologies for Smoke and Heat Exhaust Ventilation; Building Research Establishment (BRE): London, UK; American Society of Heating, Refrigerating and Air-Conditioning Engineers & Society of Fire Protection Engineers: Atlanta, GA, USA, 1999. [Google Scholar]
- Klote, J.H.; Milke, J.A. Principles of Smoke Management; American Society of Heating, Refrigerating and Air-Conditioning Engineers & Society of Fire Protection Engineers: Atlanta, GA, USA, 2002. [Google Scholar]
- Klote, J.H.; Milke, J.A. Design of Smoke Management Systems; Amer Society of Heating: Washington, DC, USA, 1992. [Google Scholar]
- Doheim, R.M.; Yohanis, Y.G.; Nadjai, A.; Elkadi, H. The impact of atrium shape on natural smoke ventilation. Fire Saf. J. 2014, 63, 9–16. [Google Scholar] [CrossRef]
- Brzezińska, D. Wentylacja Pożarowa Obiektów Budowlanych, 1st ed.; Lodz University of Technology: Lodz, Poland, 2015. [Google Scholar]
- Minister Infrastruktury, Rozporządzenie Ministra Infrastruktury z dnia 12 kwietnia 2002 r. w Sprawie Warunków Technicznych, Jakim Powinny Odpowiadać Budynki i ich Usytuowanie (Dz. U. 2019, poz. 1065 z późn. zm.) [Regulation of the Minister of Infrastructure of 12 April 2002 on the Technical Conditions to Be Met by Buildings and Their Location (Journal of Laws of 2019, Item 1065, as Amended)]. 2002. Available online: https://isap.sejm.gov.pl/isap.nsf/download.xsp/WDU20190001065/O/D20191065.pdf (accessed on 5 March 2022).
- Karlson, B.Q.J.G. Enclosure Fire Dynamics; CRC Press: Boca Raton, FL, USA, 2000. [Google Scholar] [CrossRef]
- Brzezińska, D. Projektowanie systemów wentylacji pożarowej, a nowelizacja przepisów techniczno-budowlanych [Design of fire ventilation systems and amendment of technical and construction regulations] Ochrona Przeciwpożarowa 4. 2009. [Google Scholar]
- Ivanov, M.L.; Peng, W.; Wang, Q.; Chow, W.K. Sustainable smoke extraction system for atrium: A numerical study. Sustainability 2021, 13, 7406. [Google Scholar] [CrossRef]
- Ayala, P.; Cantizano, A.; Rein, G.; Vigne, G.; Gutiérrez-Montes, C. Fire Experiments and Simulations in a Full-scale Atrium Under Transient and Asymmetric Venting Conditions. Fire Technol. 2016, 52, 51–78. [Google Scholar] [CrossRef]
- Pongratz, C.; Milke, J.A.; Trouve, A. CFD Study Atrium Smoke Control. ASHRAE Trans. 2016, 122, 10–26. [Google Scholar]
- Rundle, C.A.; Lightstone, M.F.; Oosthuizen, P.; Karava, P.; Mouriki, E. Validation of computational fluid dynamics simulations for atria geometries. Build. Environ. 2011, 46, 1343–1353. [Google Scholar] [CrossRef]
- Kerber, S.; Milke, J.A. Using FDS to simulate smoke layer interface height in a simple atrium. Fire Technol. 2007, 43, 45–75. [Google Scholar] [CrossRef]
- Volley, M.K. Verification and validation—How determine the accuracy of fire models. Fire Prot. Eng. 2007. Available online: https://www.nist.gov/publications/verification-and-validation-how-determine-accuracy-fire-models (accessed on 15 February 2022).
- Nuclear Regulatory Commission Office of Nuclear Regulatory Research (RES). Verification & Validation of Selected Fire Models for Nuclear Power Plant Applications; Main Report; 2007; Volume 1. Available online: https://www.nrc.gov/reading-rm/doc-collections/nuregs/staff/sr1824/s1/index.html (accessed on 15 February 2022).
- Brzezińska, D. Practical aspects of jet fan ventilation systems modelling in fire dynamics simulator code. Int. J. Vent. 2018, 17, 225–239. [Google Scholar] [CrossRef]
- Baolati, J.; Li, K.; Zou, Y.; Frank, K.; Hare, G.; Zhang, J.; Ge, F. Large eddy simulation of room fire spread using a medium scale compartment made of medium density fibreboard (MDF) panels. Build. Simul. 2022, 15, 495–510. [Google Scholar] [CrossRef]
- Xiao, H.; Makarov, D.; Sun, J.; Molkov, V. Experimental and numerical investigation of premixed flame propagation with distorted tulip shape in a closed duct. Combust. Flame 2012, 159, 1523–1538. [Google Scholar] [CrossRef]
- BSI, BS 7346-4. Components for smoke and heat control systems—Part 4: Functional recommendations and calculation methods for smoke and heat exhaust ventilation systems, employing steady-state design fires—Code of practice. 2003.
- NFPA, NFPA 204 Standard for Smoke and Heat Venting. 2021.












| Scenario F1 | Scenario F2 | Scenario F3 |
|---|---|---|
| Fire in the open space | Fire partly under balcony | Fire under balcony |
![]() | ![]() | ![]() |
| Time | Scenario F1 | Scenario F2 | Scenario F3 | Scale |
|---|---|---|---|---|
| 180 s | ![]() | ![]() | ![]() | ![]() |
| 240 s | ![]() | ![]() | ![]() | |
| 300 s | ![]() | ![]() | ![]() | |
| 420 s | ![]() | ![]() | ![]() |
| Time | Scenario F1 | Scenario F2 | Scenario F3 | Scale |
|---|---|---|---|---|
| 90 s | ![]() | ![]() | ![]() | ![]() |
| 120 s | ![]() | ![]() | ![]() | |
| 180 s | ![]() | ![]() | ![]() | |
| 420 s | ![]() | ![]() | ![]() |
| Time | Scenario F1 | Scenario F2 | Scenario F3 | Scale |
|---|---|---|---|---|
| 240 s | ![]() | ![]() | ![]() | ![]() |
| 300 s | ![]() | ![]() | ![]() | |
| 360 s | ![]() | ![]() | ![]() | |
| 420 s | ![]() | ![]() | ![]() |
Publisher’s Note: MDPI stays neutral with regard to jurisdictional claims in published maps and institutional affiliations. |
© 2022 by the authors. Licensee MDPI, Basel, Switzerland. This article is an open access article distributed under the terms and conditions of the Creative Commons Attribution (CC BY) license (https://creativecommons.org/licenses/by/4.0/).
Share and Cite
Brzezińska, M.; Brzezińska, D. Contemporary Atrium Architecture: A Sustainable Approach to the Determination of Smoke Ventilation Criteria in the Event of a Fire. Energies 2022, 15, 2484. https://doi.org/10.3390/en15072484
Brzezińska M, Brzezińska D. Contemporary Atrium Architecture: A Sustainable Approach to the Determination of Smoke Ventilation Criteria in the Event of a Fire. Energies. 2022; 15(7):2484. https://doi.org/10.3390/en15072484
Chicago/Turabian StyleBrzezińska, Maria, and Dorota Brzezińska. 2022. "Contemporary Atrium Architecture: A Sustainable Approach to the Determination of Smoke Ventilation Criteria in the Event of a Fire" Energies 15, no. 7: 2484. https://doi.org/10.3390/en15072484
APA StyleBrzezińska, M., & Brzezińska, D. (2022). Contemporary Atrium Architecture: A Sustainable Approach to the Determination of Smoke Ventilation Criteria in the Event of a Fire. Energies, 15(7), 2484. https://doi.org/10.3390/en15072484











































