Next Article in Journal
Optimal Sizing, Location, and Assignment of Photovoltaic Distributed Generators with an Energy Storage System for Islanded Microgrids
Previous Article in Journal
The Social Return Potential of Micro Hydropower in Water Networks Based on Demonstrator Examples
 
 
Font Type:
Arial Georgia Verdana
Font Size:
Aa Aa Aa
Line Spacing:
Column Width:
Background:
Article

Release of Energy from Groundwater/with Reduction in CO2 Emissions of More Than 50% from HVAC in the Extension and Revitalization of the Former Palace of the Sobieski Family in Lublin

1
Faculty of Civil Engineering and Architecture, Lublin University of Technology, Nadbystrzycka 40, 20-618 Lublin, Poland
2
Sanitary Engineer “WAKAD”, 20-250 Lublin, Poland
*
Author to whom correspondence should be addressed.
Energies 2022, 15(18), 6627; https://doi.org/10.3390/en15186627
Submission received: 10 August 2022 / Revised: 6 September 2022 / Accepted: 7 September 2022 / Published: 10 September 2022
(This article belongs to the Section G: Energy and Buildings)

Abstract

:
The direct release of energy from the groundwater under the building of the Sobieski Family Palace in Lublin, Poland, and the obtainment of heat and cooling energy for Heating, Ventilation, and Air Conditioning systems (HVAC) provide an opportunity to reduce electricity and heat consumption and to limit CO2 emissions by 15–50%. The upgrade to the Sobieski Family Palace and the addition of new educational and administrative functions require state-of-the-art, energy-saving, and environmentally friendly solutions such as Fuel Cells and Hydrogen for Heating, Ventilation, and Air Conditioning (FCH HVAC) systems. As part of the program “Research for high-quality air in architecture and urban studies,” carried out since 2018 at the Institute of Architecture Planning, Department of Contemporary Architecture, Faculty of Civil Engineering and Architecture of the Lublin University of Technology, in 2021, further research was carried out in order to prepare for the potential implementation in 2022 of the project entitled “Development and Upgrade of the Former Sobieski Family Palace in Lublin. The main body of the building—educational and administrative function,” whose chief designer was Architect J. Wrana, Lublin University of Technology, 2021. The objective of this paper is to identify technologies and solutions specifically designed for HVAC systems in upgraded and renovated historic buildings. This paper is also a call for cooperation among institutions, scientists, higher education institutions, as well as an expression of appreciation for the immense energy stored in groundwater. This energy not only has the lowest carbon footprint but also is the only generally accessible large storage source from which we were unable to obtain ecologically pure energy before the introduction of FCH technology.

1. Introduction

If our CO2 emissions and power demand remain high over the next few years, heat waves caused by climate change will affect all of Europe [1,2,3]. According to a report by the International Energy Agency [4], the demand for energy will only rapidly increase in the coming years, so we should prepare for this phenomenon in a variety of technical and economic ways. The European Commission has created a long-term strategy for the climate economy up to 2050 [5,6]. Given the objectives set by the European Union (EU) in terms of energy, climate, and air quality policy, district heating systems can contribute to increasing energy savings and reducing CO2 emissions [7].
An analysis of Figure 1 shows that France uses the most nuclear energy, which remains controversial as a green solution. Many experts point to the fact that nuclear energy poses an enormous threat to the natural environment if a disaster happens, as demonstrated by the cases of Chernobyl and Fukushima [8]. It should also be remembered that nuclear power plants produce waste that is harmful to humans and the environment and will remain toxic for thousands of years [9,10]. Another problem is the age of the currently operating power plants and their obsolete control and safety systems [8,11]. The above-described plants and the 75% share of nuclear energy in France’s power generation provide a complete picture of the energy security of that country. Despite having the largest number of wind turbines and solar collectors, which allows for the generation of large amounts of electrical energy, Germany depends on wind and sun energy and grapples with the problem of energy storage [12].
The United Kingdom, which used to mine enormous amounts of coal, built a number of nuclear plants at that time, and today, these facilities are close to becoming obsolete [14]. Sweden’s and Finland’s nuclear power plants constructed 40 years ago still account for about half of the total energy generation in those countries. In Sweden, the other half is provided by hydro-electric plants and, in Finland, mainly by biomass [15]. Combined heat-and-power plants using resources from Finland’s large forested areas and high volumes of forest industry waste have become the Finnish specialty, just like nuclear power plants “imported” from the Union of Soviet Socialist Republics (USSR) have been for the Czech Republic, Slovakia, and Hungary [16]. These solutions cover a substantial part of the energy demand, but they have been used for a long time now and should be modernized or replaced [17,18].
There is, therefore, one conclusion for Europe. The nuclear power plant is an outdated solution that is not well aligned with present times [19,20,21]. Probably in 20 years, we will take advantage of nuclear fusion, but currently, especially bearing in mind the Chernobyl and Fukushima disasters, societies are wary of nuclear energy and environmentalists approach it with a great deal of skepticism. Wind turbines are an excellent solution, but the amount of energy harvested from wind differs with each day [22]. Similarly, solar collectors depend on exposure to the sun, and there is a problem with energy storage. Considering these circumstances, it is best to seek a different energy type from an alternative resource, and the answer may lie in energy from groundwater [23,24,25,26,27].

2. Materials and Methods

2.1. The Issue of Energy Storage Effects

The main focus of the research presented in this article is nature and turning our attention to an alternative natural, green, and energy-efficient resource of energy accumulated in groundwater. It is worth emphasizing that this energy is unlimited, free, and available across about 70% of this country’s area, making it possible to heat ventilation air in winter from −20 °C to, for example, +7 °C, and allowing the cooling of ventilation air in the summer from an outdoor temperature of +35 °C to +22 °C. These parameters form the basis of research and are cause for optimism in considering CO2 reductions in Heating, Ventilation, and Air Conditioning systems (HVAC) [28,29]. The HVAC system is exactly the same as a traditional installation, except that in FCH HVAC, installations have an additional system of lateral air intakes and outlets that reduce electricity consumption by about 10%. The design has not changed, so rotary exchangers, cross-flow heat exchangers, and other recovery methods along with mixing chambers can be used in this system. In the FCH HVAC system, coolers and FCH heaters are introduced in addition. Details of this solution are available in patent P-229828 [30]. See these differences in Figure 2, which presents a FCH glycol 35% heater–cooler functioning as a heater in winter (item 5), with a temperature range from −18 to +7 °C, and as a FCH cooler (items 11–17).
Research and analysis over the years have led to the conclusion that groundwater is a suitable low-level heating and cooling source, due to its high thermal capacity and stable temperatures throughout the year [28]. Vertical collectors are used to recover heat and cold from groundwater, as below the depth of 10 m, the ground temperature is completely independent of the outdoor air temperature. This allows for obtaining stable heating power throughout the year. Vertical collectors usually pass through several different layers of material [31,32], which means that there are virtually no methods, other than experimental ones, to assess the possibility of boring for heating purposes in a specific location. Groundwater is, as demonstrated in a further section of this paper, one of the best low-lying sources of heat. It is characterized by a very high thermal capacity and stable high temperatures. The vertical collectors built in the zone up to 50 m, according to our knowledge and experience, are optimal for an FCH air-conditioning system, working in a closed circuit [33].

2.2. Energy Store Studies Using the Direct Measurement Method and a PC FCH HVAC 1700 Air Handling Unit

The results for the summer will be confirmed with direct measurements of the capacity using the PC FCH HVAC 1700 air handling unit, presented in Figure 3, where the unit with a full heating load collected actual energy from groundwater at a specific time at the studied location. The air handling unit is powered by a 20 kW electric heater to ensure maximum outdoor conditions, which allows for obtaining a temperature of +35 °C for the incoming air, which is the maximum temperature for Polish climate conditions in the summer.

2.3. Energy Stores. How to Obtain this Energy and at What Amount for FCH HVAC Systems

This research presents the actual configuration of the systems described using a project implemented in Mielec as an example, which had an area of 33,000 m2 of commercial space. An economical system supporting FCH heating and air-conditioning using a low-lying energy source was provided as a navigator in Mielec. The FCH system is based on geological boreholes in a closed-circuit along with a distribution manifold well and a pump unit. According to the projects made by the Geological Survey team, more than 700 complete boreholes have been drilled at locations in Poland. For each of the boreholes, the data are different, as are the conditions:
Zamość: Gallery with an area of 5000 m2, borehole depth of approximately 50 m, borehole diameter 250 mm—mud method.
The installation was horizontal, and risers were made of PE pipes and acid pipes only in the groundwater flow zone approx. 12 m in size.
Pipe diameter: 25, 32; 40 mm; 10 sets; flow temperature summer 18 °C. Winter has no data installation only for cooling.
The installation cooled the outside air from 35 °C to 22 °C. Under these conditions, the temperature in the hall measured at a height of 2 m was 25–26°C.
Gdansk: Gallery with an area of 5000 sq m. well depth, about 70 °C.
Poznań: Sports shop in which the installation was discontinued as the investor did not have the means, area with 5 000 m2 deep wells, about 20 °C.
Olsztyn: Gallery with an area of 20,000 m2, well depth ca. 80 m.
Sosnowiec: Gallery with an area of 15,000 m2, well depth ca. 70 m.
Warsaw: Gallery with an area of 15,000 m2, well depth approx. 78 m.
Mielec: Gallery with an area of 33,000 m2, borehole depth approx. 18 m, borehole diameter 250 mm—mud method.
The installation was horizontal, and risers were made of PE pipes and acid pipes only in the groundwater flow zone with a size of about 12 m, pipe diameter 32, 40 mm 280 sets, supply temperature summer 17–19 °C, return temperature 22–25 °C.
The system cooled the outside air from 35 °C to 22 °C. Under these conditions, the temperature in the hall was measured at 2 m (21–24 °C).
These are variable values depending on time and external conditions. Inlet and outlet temperatures to and from the boreholes vary from 5 °C in winter to 18 °C.
The FCH system involves a low-lying source of cooling/heating and indoor feed systems for ventilation air handling units. The FCH system involves recovering heat and cold from groundwater using a ground heat exchanger equipped with vertical boreholes to a depth of 20 m. A multi-section distribution manifold is fed through individual wells connected to circuits with a head, polyethylene pipes (PEHD 100 PN10 SDR17), and steel inserts of thin-walled acid-resistant pipes to facilitate the exchange of cold and heat in this system.
At the boundary between the low-lying source and the indoor system, there is a multi-section manifold located in an external well, e.g., SPIDER manufactured by Energeo (wells equipped with D600 manhole covers). In every circuit, the connection to the distribution manifold will feature shut-off ball valves, control valves (Stromax 4017 M manufactured by Herz), thermometers at return and supply from the low-lying source, and an air vent. The internal FCH system was constructed as a forced-circulation double-pipe closed-circuit system. The elements that ensure the desirable flow parameters of the agent in the system are circulator pumps. The pump unit will feature shut-off ball valves, a return valve, a screen-filter, and manometers. The design for the return duct includes a shut-off valve and a manometer. The dn15 safety valve type 1915, manufactured by SYR, with opening pressure set to 4.0 bar, and the pressure vessel type NG f-my, manufactured by Reflex, with a capacity of 50 dm3, protect the system against pressure growth. A 35% solution of ethylene glycol was used as the heating/cooling factor.
The amount of obtained energy and confirmation of results for winter can be read directly from the BMS chart in Figure 4 (2), where outdoor temperature is −18.3 °C and the amount of air is 9000 m3/h, and inFigure 4 (1), where the temperature behind the FCH heater is 7.6 °C and the power is 0.34 × 9000 × 25.9 = 79.25 kW.
As shown, energy in this system is free, unlimited, and environment-friendly and has zero carbon footprint. The parameters and energy consumption can be compared:
  • A traditional water chiller system consumes 41 kW of electrical energy to produce 103 kW of cooling energy, COP 2.51.
  • An FCH system produces the same amount of cooling energy using only 5 kW of electrical energy, COP 20.
Our results leave no room for doubt. HVAC systems, not only in Poland but also anywhere around the world, should be supplied with environment-friendly FCH technologies, which use only 10% of the electrical energy used by water chillers and reduce the carbon footprint to a minimum.

2.4. The Application of Environmentally Friendly Low-Emision Technologies for Modernizing Current Worn-Out Systems

This paper presents the concept of green FCH systems to be introduced in the course of modernizing current systems that have been used for years at The Sobieski Palace Complex, 13 Bernardyńska Street, Lublin. A visualization of the revitalization project for this site is shown in Figure 5.
Revitalization of the Sobieski Palace Complex, 13 Bernardyńska Street in Lublin, for a new educational function (shown in Figure 6) assumes a functional program: enter from Bernardyńska Street, between cordegardes buildings C and D. Along the outbuilding E, we go down to a two-level car park, shown in Figure 7. Building A in Figure 8 is intended for educational purposes—the three-story main body of the palace with two wings (basement at −3.15 m) and a five story tower (basement at −6.25 m and basement at −3.15 m) located centrally.
The building can be entered on the ground floor through the main hall with a panoramic elevator and a spacious staircase (Figure 7); the corridor on the right leads from connector E to annex E; the corridor on the left leads from connector B to annex B; on the right is sales; and on the left is a set of administration rooms.
At the southern elevation, a new building was designed from the side of the slope (building A’, intended for the auditorium building and a two-level car park after the foundations of the palace body are built up and secured; the excessive amount of soil on the slope will be removed along with the existing small buildings of poor technical condition).
Figure 9 shows the auditorium—a multimedia room for 196 viewers with the possibility of organizing lectures, conducting dialogues using audiovisual means at symposia, and conferences (projection and simultaneous interpreting booths). It is accessible from the ground floor of building A by a panoramic lift and a staircase, through the hall, and from the first level of the parking lot through a lock at the level of −3.15 m (the second level of the car park, the level of the existing foundations of the palace) and 25 m along the showroom with a panoramic view of the city of Lublin. The two-level underground parking is accessible by an exit to the courtyard at the −3.15 m level. Access to the parking lot at the −3.15 m and −6.25 m levels can be obtained through the locks. The technical level at −9.35 m was designed for technical service of the facility. At this level, a boiler room, a hydrophore plant, and a ventilation room are located.
The Sobieski Palace Complex, 13 Bernardyńska Street, Lublin, has a usable area of 6253.05 m2:
  • A-A’  building with a usable area of 4291.45 m2;
  • B-B’   building with a usable area of  819.56 m2;
  • C    building with a usable area of  22.81 m2;
  • D    building with a usable area of  24.54 m2;
  • E-E’   building with a usable area of 1094.69 m2.

3. Results

For building A–A’, the usable floor area is 4291.45 m2; the assumed V is 35,000 m3/h; three FCH air handling units cover 12,000 m3/h on average each, with a demand for heat and cooling from the FCH system of 300 kW. Energy is sourced from 50 boreholes and FCH units up to 60 m. The boreholes are located in the green zones.
For building B–B’, the usable floor area is 819.56 m2; the assumed V is 7000 m3/h; and the FCH air handling units covers 7000 m3/h on average each, with a demand for heat and cooling from the FCH system of 70 kW. Energy is sourced from 10 boreholes and FCH units up to 60 m. The boreholes are located in the green zones.
For buildings C and D, the usable floor area is 47.35 m2; the assumed V is 500 m3/h; the FCH air handling units cover 500 m3/h on average each, with a demand for heat and cooling from the FCH system of 14 kW. Energy is sourced from two boreholes and FCH units up to 60 m. The boreholes are located in the green zones.
For the E–E’, the usable floor area is 1094.69 m2; the assumed V is 9000 m3/h; and FCH air handling units cover 10,000 m3/h on average each, with a demand for heat and cooling from the FCH system of 80 kW. Energy is sourced from 12 boreholes and FCH units up to 60 m. The boreholes are located in the green zones.
The total usable floor area is 6253.05 m2, the amount of ventilation air V is 51,500 m3/h, the FCH system power is 464 kW, and the number of boreholes up to 60 m depth is 74. The assumed energy consumption reduction in relation to HVAC is up to 50%; the reduced heat energy consumption is up to 60%; and the operating costs reached EUR 4–5/m2/year for 2021, with previous costs being at EUR 22/m2/year.
Figure 10 shows partial results for outdoor temperatures greater than 35 °C. The room is about 21 °C. The high output of the FCH ground heat exchanger is confirmed. The 0.3 °C increase in room temperature is due to the increase in outdoor temperature from 36 °C to 37 °C between 3:55 p.m. and 4:08 p.m. The supply temperature after 4:10 p.m. automatically returned to the previous level after the outdoor temperature dropped to 36 °C. Based on the temperature difference after determining the capacity of the opening using the simplified method, 1700 m3/h of supply air × 0.34 × 13/delta 35 °C–22 °C = 7.51 kW supply air temperature.

4. Discussion

The implementation of environmental regulations through new technologies is a major factor in mitigating global warming and introducing strategies to reduce carbon dioxide emissions [34]. The accumulated energy stocks in the buildings will cover 70% of the energy demand, and thus, the anticipated reduction in CO2 emissions will reach the expected level. Launch, following waste, route, and power, remain at CO2 informing levels [35]. Ecologically innovative technologies influencing environmental pollution are also reflected in the business market [36]. During the implementation of the modernization work phase of the described facility, it is advisable to equip it with additional equipment such as photovoltaic cells. This will help reduce operating costs along with reducing CO2 emissions. The burning of fossil fuels has a significant impact on the climate. Consequently, the use of modern solutions for heating systems will undoubtedly contribute to a significant reduction in CO2 emissions [37]. The solutions of the energy sources used and presented in this article significantly reduce CO2 emission and save a significant amount of energy [38,39]. The side effects of the innovative technology presented in this article are significantly reduced compared to the current technologies used [40,41,42,43]. Introducing this type of technology can ultimately significantly improve the quality of the environment [44,45]. From the last few centuries to the present day, the use of fossil fuels has accumulated. CO2 that has been stored over the years has also returned to the atmosphere at an alarming rate. Therefore, solutions to reduce emissivity are extremely important [46].

5. Conclusions

The present paper and the results of the studies described open avenues for further research. The indoor conditions, fresh air, and temperature are identical; the carbon footprint of the green system FCH is 10 times lower than that for traditional systems; and environment-friendly systems emit 10 times less CO2 and have a lower energy demand, which results in smaller grids, systems, fees, and environmental pollution.
The above considerations, paired with the current situation with CO2 emissions, provide a lot of space for studies of such environment-friendly systems. The results of the professional research presented as well as the actual energy consumption reduction display prime examples of environment-friendly solutions and confirm the huge untapped potential of groundwater.

Author Contributions

Conceptualization, J.W.; data curation, W.S.; formal analysis, B.K. and P.G.; funding acquisition, J.W. and W.S.; investigation, W.S. and P.G.; methodology, W.S. and P.G.; project administration, J.W.; resources, J.W. and W.S.; supervision, J.W. and B.K.; writing—original draft, J.W., W.S., B.K., and P.G.; writing—review and editing, W.S. and P.G. All authors have read and agreed to the published version of the manuscript.

Funding

This research received no external funding.

Institutional Review Board Statement

Not applicable.

Informed Consent Statement

Not applicable.

Data Availability Statement

Not applicable.

Conflicts of Interest

The authors declare no conflict of interest.

References

  1. Air Quality in Europe-2018—European Environment Agency. Available online: https://www.eea.europa.eu/publications/air-quality-in-europe-2018 (accessed on 3 August 2022).
  2. Schwenkenbecher, A.; Brueckner, M. Renewable Energy. In The Routledge Companion to Environmental Ethics; Routledge: Abingdon, UK, 2022; ISBN 978-1-315-76809-0. [Google Scholar]
  3. Tagliapietra, S.; Zachmann, G.; Edenhofer, O.; Glachant, J.-M.; Linares, P.; Loeschel, A. The European Union Energy Transition: Key Priorities for the next Five Years. Energy Policy 2019, 132, 950–954. [Google Scholar] [CrossRef]
  4. CO2 Emissions-Global Energy Review 2021-Analysis. Available online: https://www.iea.org/reports/global-energy-review-2021/co2-emissions (accessed on 3 August 2022).
  5. 2050 Long-Term Strategy. Available online: https://ec.europa.eu/clima/eu-action/climate-strategies-targets/2050-long-term-strategy_en (accessed on 3 August 2022).
  6. World Energy Outlook 2021 Shows a New Energy Economy Is Emerging-but Not yet Quickly Enough to Reach Net Zero by 2050-News. Available online: https://www.iea.org/news/world-energy-outlook-2021-shows-a-new-energy-economy-is-emerging-but-not-yet-quickly-enough-to-reach-net-zero-by-2050 (accessed on 3 August 2022).
  7. Latõšov, E.; Umbleja, S.; Volkova, A. CO2 Emission Intensity of the Estonian DH Sector. Smart Energy 2022, 6, 100070. [Google Scholar] [CrossRef]
  8. Singh, S. Nuclear Energy as a Tool of Sustainable Development: Myth or Reality? Int’l. J.L. Mgmt. Human. 2021, 4, 336. [Google Scholar]
  9. Kurniawan, T.A.; Othman, M.H.D.; Singh, D.; Avtar, R.; Hwang, G.H.; Setiadi, T.; Lo, W. Technological Solutions for Long-Term Storage of Partially Used Nuclear Waste: A Critical Review. Ann. Nucl. Energy 2022, 166, 108736. [Google Scholar] [CrossRef]
  10. Iqbal, J.; Howari, F.M.; Mohamed, A.-M.O.; Paleologos, E.K. Chapter 20-Assessment of Radiation Pollution from Nuclear Power Plants. In Pollution Assessment for Sustainable Practices in Applied Sciences and Engineering; Mohamed, A.-M.O., Paleologos, E.K., Howari, F.M., Eds.; Butterworth-Heinemann: Amsterdam, The Netherlands, 2021; pp. 1027–1053. ISBN 978-0-12-809582-9. [Google Scholar]
  11. Nolt, J. Nuclear Power. In The Routledge Companion to Environmental Ethics; Routledge: Abingdon, UK, 2022; ISBN 978-1-315-76809-0. [Google Scholar]
  12. Comparative Analysis of Decision Making Regarding Nuclear Policy after the Fukushima Dai-Ichi Nuclear Power Plant Accident: Case Study in Germany and Japan. Technol. Soc. 2021, 67, 101735. [CrossRef]
  13. WysokieNapiecie.pl in English. Available online: https://wysokienapiecie.pl/ (accessed on 19 May 2022).
  14. Haves, E. Nuclear Power in the UK. House Lords Libr. 2021. [Google Scholar]
  15. Ericsson, K.; Werner, S. The Introduction and Expansion of Biomass Use in Swedish District Heating Systems. Biomass Bioenergy 2016, 94, 57–65. [Google Scholar] [CrossRef]
  16. Brook, B.W.; Bradshaw, C.J.A. Key Role for Nuclear Energy in Global Biodiversity Conservation: Biodiversity and Sustainable Energy. Conservation Biology 2015, 29, 702–712. [Google Scholar] [CrossRef]
  17. Sorrell, S. Reducing Energy Demand: A Review of Issues, Challenges and Approaches. Renew. Sustain. Energy Rev. 2015, 47, 74–82. [Google Scholar] [CrossRef]
  18. Ahuja, D.; Tatsutani, M. Sustainable energy for developing countries. S.A.P.I.EN.S. Surv. Perspect. Integr. Environ. Soc. 2009, 2. [Google Scholar]
  19. Sonnberger, M.; Ruddat, M.; Arnold, A.; Scheer, D.; Poortinga, W.; Böhm, G.; Bertoldo, R.; Mays, C.; Pidgeon, N.; Poumadère, M.; et al. Climate Concerned but Anti-Nuclear: Exploring (Dis)Approval of Nuclear Energy in Four European Countries. Energy Res. Soc. Sci. 2021, 75, 102008. [Google Scholar] [CrossRef]
  20. Moriarty, P.; Moriarty, P. Global Nuclear Energy: An Uncertain Future. AIMSE 2021, 9, 1027–1042. [Google Scholar] [CrossRef]
  21. Faudon, V. Power Generation from Nuclear Energy. In The Palgrave Handbook of International Energy Economics; Hafner, M., Luciani, G., Eds.; Springer International Publishing: Cham, Switzerland, 2022; pp. 131–144. ISBN 978-3-030-86884-0. [Google Scholar]
  22. Zou, Y.; Zhao, J.; Ding, D.; Miao, F.; Sobhani, B. Solving Dynamic Economic and Emission Dispatch in Power System Integrated Electric Vehicle and Wind Turbine Using Multi-Objective Virus Colony Search Algorithm. Sustain. Cities Soc. 2021, 67, 102722. [Google Scholar] [CrossRef]
  23. Abualigah, L.; Zitar, R.A.; Almotairi, K.H.; Hussein, A.M.; Abd Elaziz, M.; Nikoo, M.R.; Gandomi, A.H. Wind, Solar, and Photovoltaic Renewable Energy Systems with and without Energy Storage Optimization: A Survey of Advanced Machine Learning and Deep Learning Techniques. Energies 2022, 15, 578. [Google Scholar] [CrossRef]
  24. Burlig, F.; Preonas, L.; Woerman, M. Energy, Groundwater, and Crop Choice 2021. Natl. Bur. Econ. Res. 2021. [Google Scholar] [CrossRef]
  25. Hilarydoss, S. Suitability, Sizing, Economics, Environmental Impacts and Limitations of Solar Photovoltaic Water Pumping System for Groundwater Irrigation—a Brief Review. Env. Sci Pollut. Res. 2021, 1–20. [Google Scholar] [CrossRef] [PubMed]
  26. Prajapati, M.; Shah, M.; Soni, B.; Parikh, S.; Sircar, A.; Balchandani, S.; Thakore, S.; Tala, M. Geothermal-Solar Integrated Groundwater Desalination System: Current Status and Future Perspective. Groundw. Sustain. Dev. 2021, 12, 100506. [Google Scholar] [CrossRef]
  27. Stemmle, R.; Blum, P.; Schüppler, S.; Fleuchaus, P.; Limoges, M.; Bayer, P.; Menberg, K. Environmental Impacts of Aquifer Thermal Energy Storage (ATES). Renew. Sustain. Energy Rev. 2021, 151, 111560. [Google Scholar] [CrossRef]
  28. Wrana, J.; Struzik, W.; Gleń, P. Natural Energy Stored in Groundwater Deposits as a New Way of Obtaining Green Energy for Urban Planners, Architects and Environmentalists. Energies 2022, 15, 4716. [Google Scholar] [CrossRef]
  29. Kandelousi, M.S. HVAC System; BoD-Books on Demand: Norderstedt, Germany, 2018; ISBN 978-1-78984-432-0. [Google Scholar]
  30. Struzik, W. PAT-P.415163. Available online: https://ewyszukiwarka.pue.uprp.gov.pl/search/pwp-details/P.415163?lng=pl (accessed on 23 May 2022).
  31. Cao, K.; Zhang, F.; Zaeri, A.; Zgeib, R.; Chang, R.C. A Charge-Based Mechanistic Study into the Effect of Collector Temperature on Melt Electrohydrodynamic Printing Outcomes. Adv. Mater. Technol. 2021, 6, 2100251. [Google Scholar] [CrossRef]
  32. Nižetić, S.; Jurčević, M.; Čoko, D.; Arıcı, M.; Hoang, A.T. Implementation of Phase Change Materials for Thermal Regulation of Photovoltaic Thermal Systems: Comprehensive Analysis of Design Approaches. Energy 2021, 228, 120546. [Google Scholar] [CrossRef]
  33. Ozbek, E.; Yalin, G.; Karaoglan, M.U.; Ekici, S.; Colpan, C.O.; Karakoc, T.H. Architecture Design and Performance Analysis of a Hybrid Hydrogen Fuel Cell System for Unmanned Aerial Vehicle. Int. J. Hydrog. Energy 2021, 46, 16453–16464. [Google Scholar] [CrossRef]
  34. Hashmi, R.; Alam, K. Dynamic Relationship among Environmental Regulation, Innovation, CO2 Emissions, Population, and Economic Growth in OECD Countries: A Panel Investigation. J. Clean. Prod. 2019, 231, 1100–1109. [Google Scholar] [CrossRef]
  35. Danish; Ulucak, R. How Do Environmental Technologies Affect Green Growth? Evidence from BRICS Economies. Sci. Total Environ. 2020, 712, 136504. [Google Scholar] [CrossRef] [PubMed]
  36. Mahmood, N.; Zhao, Y.; Lou, Q.; Geng, J. Role of Environmental Regulations and Eco-Innovation in Energy Structure Transition for Green Growth: Evidence from OECD. Technol. Forecast. Soc. Change 2022, 183, 121890. [Google Scholar] [CrossRef]
  37. Quadrelli, R.; Peterson, S. The Energy–Climate Challenge: Recent Trends in CO2 Emissions from Fuel Combustion. Energy Policy 2007, 35, 5938–5952. [Google Scholar] [CrossRef]
  38. Yoro, K.O.; Daramola, M.O. Chapter 1-CO2 Emission Sources, Greenhouse Gases, and the Global Warming Effect. In Advances in Carbon Capture; Rahimpour, M.R., Farsi, M., Makarem, M.A., Eds.; Woodhead Publishing: Cambridge, UK, 2020; pp. 3–28. ISBN 978-0-12-819657-1. [Google Scholar]
  39. Bauer, N.; Rose, S.K.; Fujimori, S.; van Vuuren, D.P.; Weyant, J.; Wise, M.; Cui, Y.; Daioglou, V.; Gidden, M.J.; Kato, E.; et al. Global Energy Sector Emission Reductions and Bioenergy Use: Overview of the Bioenergy Demand Phase of the EMF-33 Model Comparison. Clim. Change 2020, 163, 1553–1568. [Google Scholar] [CrossRef]
  40. Lachman, P. Porównanie emisji zanieczyszczeń różnych technologii grzewczych wg raportu IPTS dla Komisji Europejskiej. InstalReporter 2013, 1, 29–30. [Google Scholar]
  41. Grochowska, E. Technologie Grzewcze a Niska Emisja|Planergia. Available online: https://www.planergia.pl/post/technologie-grzewcze-a-niska-emisja (accessed on 10 August 2022).
  42. Hausner, J.; Białecka, B. Analiza procesu wdrażania czystych technologii węglowych w Polsce. Prac. Nauk. GIG. Górnictwo I Sr. Główny Inst. Górnictwa 2012, 33–47. Available online: https://bibliotekanauki.pl/api/full-texts/2020/12/11/b1ed840a-7c4a-4f42-b2d2-983d6b933420.pdf (accessed on 10 August 2022).
  43. Majchrzak, H. Rola czystych technologii węglowych w realizacji klimatycznych zobowiązań. Czysta Energ. 2016. Available online: https://omega.polsl.pl/info/article/PSL32fe8c292fc54d5480af2e955e028d12/ (accessed on 10 August 2022).
  44. Chen, Y.; Lee, C.-C. Does Technological Innovation Reduce CO2 Emissions? Cross-Country Evidence. J. Clean. Prod. 2020, 263, 121550. [Google Scholar] [CrossRef]
  45. Kubkowska, M. Niewyczerpalne źródło czystej energii. Logistyka Odzysku 2016, 3, 31–62. [Google Scholar]
  46. Peter, S.C. Reduction of CO2 to Chemicals and Fuels: A Solution to Global Warming and Energy Crisis. ACS Energy Lett. 2018, 3, 1557–1561. [Google Scholar] [CrossRef]
Figure 1. The energy sources used by Germany, the United Kingdom, France, and the Czech Republic, Europe’s major countries until 2018. Source: www.wysokienapięcie.pl (accessed on 11 August 2022) [13].
Figure 1. The energy sources used by Germany, the United Kingdom, France, and the Czech Republic, Europe’s major countries until 2018. Source: www.wysokienapięcie.pl (accessed on 11 August 2022) [13].
Energies 15 06627 g001
Figure 2. Diagram showing the FCH glycol 35% heater–cooler heating during winter from −18 to +7 degrees C. Source: the authors.
Figure 2. Diagram showing the FCH glycol 35% heater–cooler heating during winter from −18 to +7 degrees C. Source: the authors.
Energies 15 06627 g002
Figure 3. View of the PC FCH HVAC 1700 air handling unit. Source: the authors.
Figure 3. View of the PC FCH HVAC 1700 air handling unit. Source: the authors.
Energies 15 06627 g003
Figure 4. View of the BMS FCH HVAC with the coldest winter temperatures Source: the authors.
Figure 4. View of the BMS FCH HVAC with the coldest winter temperatures Source: the authors.
Energies 15 06627 g004
Figure 5. View of the visualization of the Sobieski Palace in Lublin. (A) Main palace building, (B) left wing, (B’) new facade of left wing, (C) left-hand cordeguarde, (D) right-hand cordeguarde, (E) right wing, (E’) new facade of right wing and entrance to the underground car park. Source: the authors.
Figure 5. View of the visualization of the Sobieski Palace in Lublin. (A) Main palace building, (B) left wing, (B’) new facade of left wing, (C) left-hand cordeguarde, (D) right-hand cordeguarde, (E) right wing, (E’) new facade of right wing and entrance to the underground car park. Source: the authors.
Energies 15 06627 g005
Figure 6. View of the development plan of the Sobieski Palace in Lublin. (A) Main palace building, (A’) underground car park, (B) left wing, (B’) new facade of left wing, (C) left-hand cordeguarde, (D) right-hand cordeguarde, (E) right wing, (E’) new facade of right wing and entrance to the underground car park. Source: the authors.
Figure 6. View of the development plan of the Sobieski Palace in Lublin. (A) Main palace building, (A’) underground car park, (B) left wing, (B’) new facade of left wing, (C) left-hand cordeguarde, (D) right-hand cordeguarde, (E) right wing, (E’) new facade of right wing and entrance to the underground car park. Source: the authors.
Energies 15 06627 g006
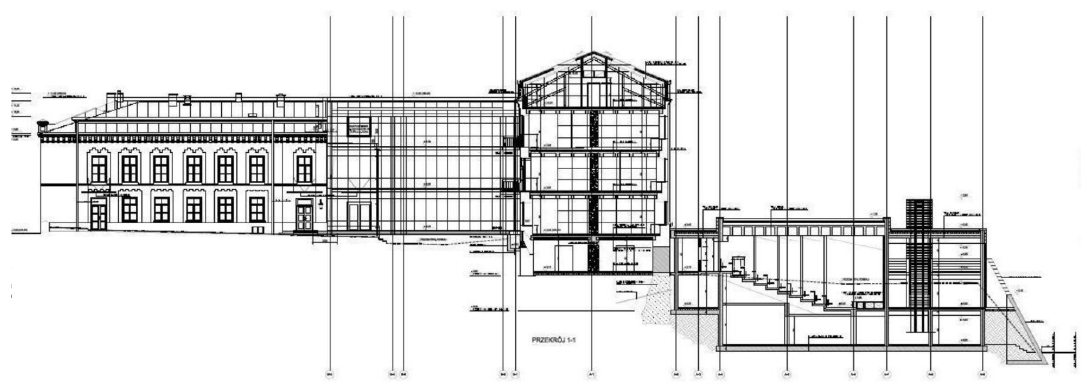
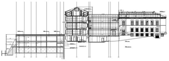
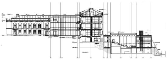
Figure 7. Building A and B cross section from the car-park side. Source: the authors.
Figure 7. Building A and B cross section from the car-park side. Source: the authors.
Energies 15 06627 g007
Figure 8. View of building A from Bernardyńska str.13. Source: the authors.
Figure 8. View of building A from Bernardyńska str.13. Source: the authors.
Energies 15 06627 g008
Figure 9. Building A and E cross section from the auditorium Source: the authors.
Figure 9. Building A and E cross section from the auditorium Source: the authors.
Energies 15 06627 g009
Figure 10. Results of FCH system performance studies, in Poland (blue color)—feed temperature maintained artificially using an electric heater—outdoor temperature (red color)—room temperature (green)—temperature supply air. Source: the authors.
Figure 10. Results of FCH system performance studies, in Poland (blue color)—feed temperature maintained artificially using an electric heater—outdoor temperature (red color)—room temperature (green)—temperature supply air. Source: the authors.
Energies 15 06627 g010
Publisher’s Note: MDPI stays neutral with regard to jurisdictional claims in published maps and institutional affiliations.

Share and Cite

MDPI and ACS Style

Wrana, J.; Struzik, W.; Kwiatkowski, B.; Gleń, P. Release of Energy from Groundwater/with Reduction in CO2 Emissions of More Than 50% from HVAC in the Extension and Revitalization of the Former Palace of the Sobieski Family in Lublin. Energies 2022, 15, 6627. https://doi.org/10.3390/en15186627

AMA Style

Wrana J, Struzik W, Kwiatkowski B, Gleń P. Release of Energy from Groundwater/with Reduction in CO2 Emissions of More Than 50% from HVAC in the Extension and Revitalization of the Former Palace of the Sobieski Family in Lublin. Energies. 2022; 15(18):6627. https://doi.org/10.3390/en15186627

Chicago/Turabian Style

Wrana, Jan, Wojciech Struzik, Bartłomiej Kwiatkowski, and Piotr Gleń. 2022. "Release of Energy from Groundwater/with Reduction in CO2 Emissions of More Than 50% from HVAC in the Extension and Revitalization of the Former Palace of the Sobieski Family in Lublin" Energies 15, no. 18: 6627. https://doi.org/10.3390/en15186627

APA Style

Wrana, J., Struzik, W., Kwiatkowski, B., & Gleń, P. (2022). Release of Energy from Groundwater/with Reduction in CO2 Emissions of More Than 50% from HVAC in the Extension and Revitalization of the Former Palace of the Sobieski Family in Lublin. Energies, 15(18), 6627. https://doi.org/10.3390/en15186627

Note that from the first issue of 2016, this journal uses article numbers instead of page numbers. See further details here.

Article Metrics

Back to TopTop