Revisiting Home Heat Control Theories through a UK Care Home Field Trial
Abstract
:1. Introduction
2. Background
2.1. Heat Demand in Care Homes
2.2. Smart Heating Controls
2.3. Usability of Controls and Mental Models
2.4. Thermostatic Radiator Valves (TRVs)
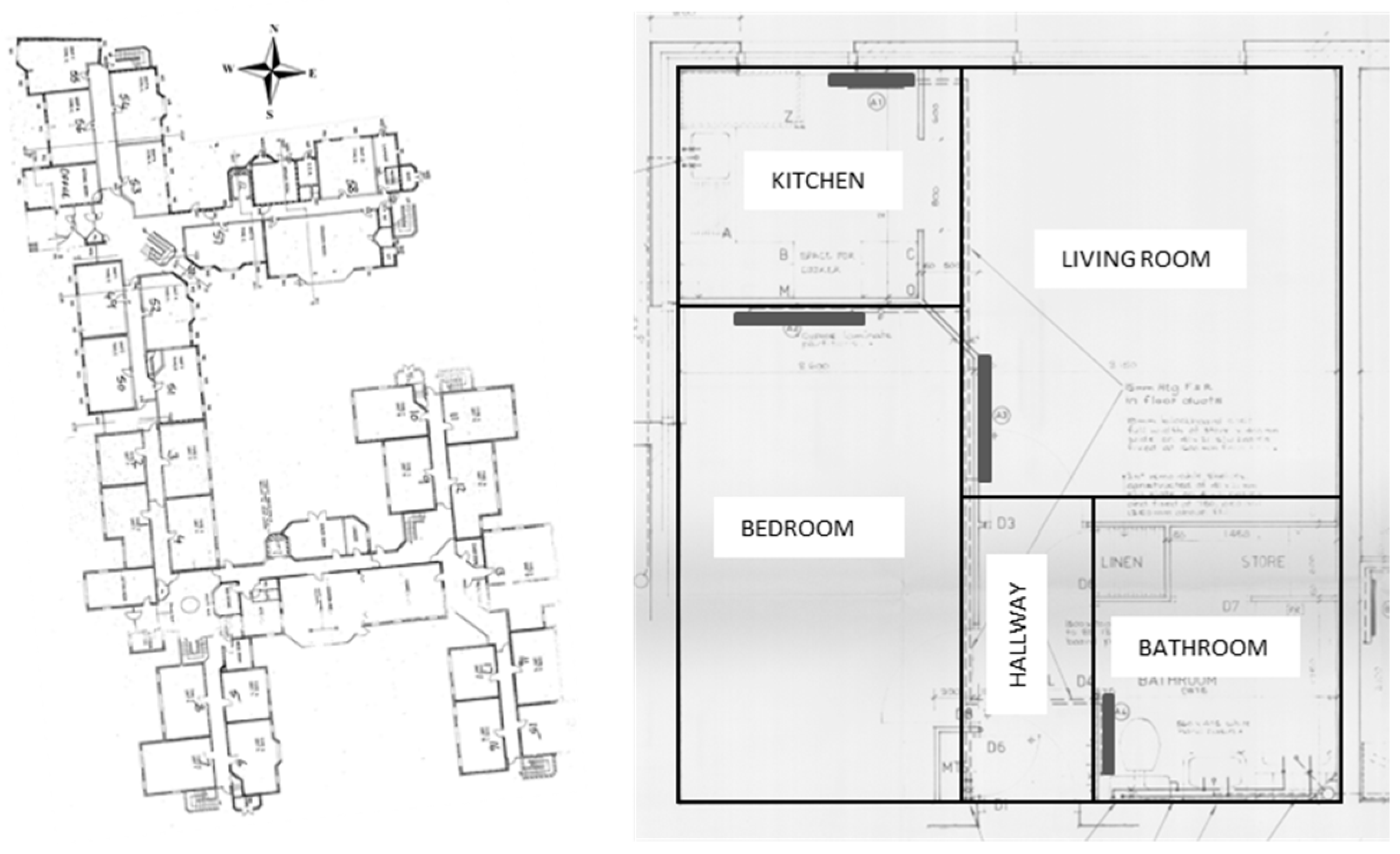
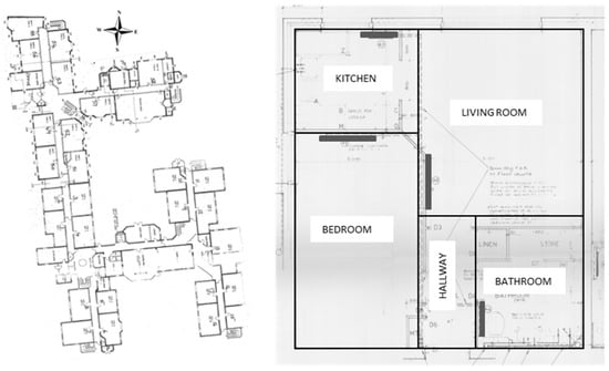
3. Case Study
4. Study Design
4.1. Data Cleaning
4.2. Identification of Interactions with STVs
4.3. Grouping
4.4. Weather
5. Results and Discussion
5.1. Occupant’s Perception of the Smart Thermostatic Valves
5.2. Group Characteristics
5.3. Mental Models
5.4. Patterns of Interaction
6. Conclusions
Author Contributions
Funding
Institutional Review Board Statement
Informed Consent Statement
Conflicts of Interest
References
- Palmer, J.; Cooper, I. United Kingdom Housing Energy Fact File 2013. Available online: https://assets.publishing.service.gov.uk/government/uploads/system/uploads/attachment_data/file/345141/uk_housing_fact_file_2013.pdf (accessed on 23 September 2019).
- Jones, R.V.; Fuertes, A.; Boomsma, C.; Pahl, S. Space heating preferences in UK social housing: A socio-technical household survey combined with building audits. Energy Build. 2016, 127, 382–398. [Google Scholar] [CrossRef] [Green Version]
- Department for Business Energy & Industrial Strategy. Energy Follow Up Survey: Heating Patterns and Occupancy Final Report. 2021. Available online: https://assets.publishing.service.gov.uk/government/uploads/system/uploads/attachment_data/file/1018727/efus-heating-patterns-occupancy.pdf (accessed on 1 October 2021).
- Munton, A.G.; Wright, A.J.; Mallaburn, P.S.; Boait, P. How Heating Controls Affect Domestic Energy Demand: A Rapid Evidence Assessment; Department of Energy & Climate Change: London, UK, 2014; pp. 10–63. [Google Scholar]
- HM Government. Conservation of Fuel and Power (Approved Document L1 and L2); HM Government: London, UK, 2014. [Google Scholar] [CrossRef]
- Day, J.K.; McIlvennie, C.; Brackley, C.; Tarantini, M.; Piselli, C.; Hahn, J.; O’Brien, W.; Rajus, V.S.; De Simone, M.; Kjærgaard, M.B.; et al. A review of select human-building interfaces and their relationship to human behavior, energy use and occupant comfort. Build. Environ. 2020, 178, 106920. [Google Scholar] [CrossRef]
- University of Southampton. Occupancy Patterns Scoping Review Project. 2016. Available online: https://www.gov.uk/government/publications/scoping-review-of-occupancy-patterns (accessed on 7 July 2016).
- Revell, K.M.A.; Stanton, N.A. Mental Models Design of User Interaction and Interfaces for Domestic Energy Systems; CRC Press: Boca Raton, FL, USA, 2017. [Google Scholar]
- Kempton, W. Two Theories of Home Heat Control. Cogn. Sci. 1986, 10, 75–90. Available online: http://onlinelibrary.wiley.com/doi/10.1207/s15516709cog1001_3/abstract (accessed on 5 December 2020). [CrossRef]
- IEA Annex 79. Recorded Sessions from the Annex 79 Symposium. 2020. Available online: https://energy.soton.ac.uk/recorded-sessions-from-the-5th-international-symposium-on-occupant-behaviour/ (accessed on 15 March 2021).
- Office for National Statistics. Changes in the Older Resident Care Home Population between 2001 and 2011. 2014. Available online: https://www.ons.gov.uk/peoplepopulationandcommunity/birthsdeathsandmarriages/ageing/articles/changesintheolderresidentcarehomepopulationbetween2001and2011/2014-08-01 (accessed on 29 September 2021).
- Brounen, D.; Kok, N.; Quigley, J.M. Energy literacy, awareness, and conservation behavior of residential households. Energy Econ. 2013, 38, 42–50. [Google Scholar] [CrossRef]
- Gram-Hanssen, K. Residential heat comfort practices: Understanding users. Build. Res. Inf. 2010, 38, 175–186. [Google Scholar] [CrossRef]
- Zhang, T.; Siebers, P.-O.; Aickelin, U. A three-dimensional model of residential energy consumer archetypes for local energy policy design in the UK. Energy Policy 2012, 47, 102–110. [Google Scholar] [CrossRef]
- Hanmer, C.; Shipworth, M.; Shipworth, D.; Carter, E. How household thermal routines shape UK home heating demand patterns. Energy Efficiency 2019, 12, 5–17. [Google Scholar] [CrossRef] [Green Version]
- Burak Gunay, H.; O’Brien, W.; Beausoleil-Morrison, I.; Perna, A. On the behavioral effects of residential electricity submetering in a heating season. Build. Environ. 2014, 81, 396–403. [Google Scholar] [CrossRef]
- Andersen, S.; Andersen, R.K.; Olesen, B.W. Influence of heat cost allocation on occupants’ control of indoor environment in 56 apartments: Studied with measurements, interviews and questionnaires. Build. Environ. 2016, 101, 1–8. [Google Scholar] [CrossRef] [Green Version]
- Guerra-Santin, O.; Itard, L. Occupants’ behaviour: Determinants and effects on residential heating consumption. Build. Res. Inf. 2010, 38, 318–338. [Google Scholar] [CrossRef]
- Guerra Santin, O. Behavioural Patterns and User Profiles related to energy consumption for heating. Energy Build. 2011, 43, 2662–2672. [Google Scholar] [CrossRef]
- Guerra-santin, O.; Tweed, C. Summer post occupancy evaluation of a Passivhaus care home in the UK. In Proceedings of the PLEA Sustainable Architecture for a Renewable Future, Munich, Germany, 10–12 September 2013. [Google Scholar]
- Lewis, A. Designing for an imagined user: Provision for thermal comfort in energy-efficient extra-care housing. Energy Policy 2015, 84, 204–212. [Google Scholar] [CrossRef]
- Day, R.; Hitchings, R. Older People and Their Winter Warmth Behaviours: Understanding the Contextual Dynamics. 2009. Available online: https://research.birmingham.ac.uk/portal/en/publications/older-people-and-their-winter-warmth-behaviours(1bd54821-4707-43b2-9370-7d62bb327c54).html (accessed on 3 September 2017).
- Department of Energy and Climate Change. Smarter Heating Controls Research Program; Department of Energy and Climate Change: London, UK, 2015; pp. 1–11. Available online: https://assets.publishing.service.gov.uk/government/uploads/system/uploads/attachment_data/file/254877/smarter_heating_controls_research_programme_overview.pdf (accessed on 7 March 2022).
- Shipworth, M.; Firth, S.K.; Gentry, M.I.; Wright, A.J.; Shipworth, D.T.; Lomas, K.J. Central heating thermostat settings and timing: Building demographics. Build. Res. Inf. 2010, 38, 50–69. [Google Scholar] [CrossRef] [Green Version]
- Dyson, A.A. Energy Reduction in Domestic Homes Using Smart Control Systems; Energy Technology and Innovation Initiative, The University of Leeds: Leeds, UK, 2016; Available online: https://etheses.whiterose.ac.uk/14373/1/Dyson_A_A_Energy_PhD_2016.pdf (accessed on 17 February 2022).
- Miu, L.M.; Mazur, C.M.; van Dam, K.H.; Lambert, R.S.; Hawkes, A.; Shah, N. Going smart, staying confused: Perceptions and use of smart thermostats in British homes. Energy Res. Soc. Sci. 2019, 57, 101228. [Google Scholar] [CrossRef]
- Department of Energy and Climate Change. Usability Testing of Smarter Heating Controls. 2013. Available online: https://assets.publishing.service.gov.uk/government/uploads/system/uploads/attachment_data/file/266220/usability_testing_smarter_heating_controls.pdf (accessed on 7 March 2022).
- European Comission. Building and District Thermal Retrofit and Management Solutions. 2020. Available online: https://cordis.europa.eu/project/id/723562 (accessed on 6 May 2022).
- Wade, F.; Shipworth, M.; Hitchings, R. How installers select and explain domestic heating controls. Build. Res. Inf. 2017, 45, 371–383. [Google Scholar] [CrossRef]
- Berg, V. Care Home Stats: Number of Settings, Population & Workforce. 2021. Available online: https://www.carehome.co.uk/advice/care-home-stats-number-of-settings-population-workforce (accessed on 29 September 2021).
- HM Department for Communities and Local Government. English Housing Survey. Headline Report. 2017. Available online: https://www.gov.uk/government/collections/english-housing-survey (accessed on 26 June 2020).
- Turner, W.J.N.; Walker, I.S.; Roux, J. Peak load reductions: Electric load shifting with mechanical pre-cooling of residential buildings with low thermal mass. Energy 2015, 82, 1057–1067. [Google Scholar] [CrossRef]
- CIBSE. Degree-Days: Theory and Application (TM 41); The Chartered Institution of Building Services Engineers: London, UK, 2006. [Google Scholar]
- Godoe, P.; Johansen, T.S. Understanding adoption of new technologies: Technology readiness and technology acceptance as an integrated concept. J. Eur. Psychol. Students 2012, 3, 38–52. [Google Scholar] [CrossRef]
- Morton, A.; Haines, V.; Allinson, D. How do households interact with their heating controls? In Conference Contribution, Proceedings of the BEHAVE 2016 4th European Conference on Behaviour and Energy Efficiency, Coimbra, Portugal, 8–9 September 2016; Energy for Sustainability Initiative of the University of Coimbra (EfS-UC) and the Portuguese Energy Agency (ADENE), Loughborough University: Coimbra, Portugal, 2016; Available online: https://hdl.handle.net/2134/21758 (accessed on 2 July 2020).
- Aragon, V.; Gauthier, S.; Warren, P.; James, P.; Anderson, B. Developing English domestic occupancy profiles. Build. Res. Inf. 2017, 47, 375–393. [Google Scholar] [CrossRef] [Green Version]
- Yano, T.; Imahara, S. Field Study on Actual Usage of Occupancy-Reactive Space Heating Control. IEEE Access 2021, 9, 47204–47215. [Google Scholar] [CrossRef]








| Type of Interaction | Number of Movements | Change in Setpoint |
|---|---|---|
| A | 1 | Setpoint changed, UP or DOWN |
| B | >1 | Setpoint changed, UP or DOWN |
| C | >1 | No change |
| Title 1 | Living Room | Bedroom | |||||
|---|---|---|---|---|---|---|---|
| Group | 1 | 2 | 3 | 1 | 2 | 3 | |
| Number of flats | 10 | 18 | 10 | 9 | 20 | 10 | |
| Type of interaction | A | 78.6% | 70.3% | 76.6% | 58.3% | 75.9% | 82.3% |
| B | 17.9% | 23.7% | 21.9% | 33.4% | 15.6% | 9.1% | |
| C | 3.5% | 6.0% | 1.5% | 8.3% | 8.5% | 8.6% | |
| Median number of setpoint changes (Interaction types A and B) | 2 | 13 | 167 | 1 | 9 | 58 | |
| Setpoint °C | Max. | 30.0 | 30.0 | 30.0 | 25.0 | 30.0 | 30.0 |
| Q3 | 30.0 | 29.0 | 28.0 | 22.5 | 29.5 | 29 | |
| Mdn. | 24.4 | 25.0 | 22.5 | 20.0 | 22.5 | 24.4 | |
| Q1 | 22.0 | 19.5 | 10.0 | 18.0 | 14.0 | 10.0 | |
| Min. | 10.0 | 10.0 | 10.0 | 10.0 | 10.0 | 10.0 | |
| Max. | 28.1 | 30.0 | 29.6 | 30.0 | 30.0 | 30.0 | |
| Q3 | 24.0 | 25.9 | 24.9 | 24.0 | 24.8 | 24.9 | |
| Mean daily temperature °C | Mdn. | 22.9 | 24.0 | 23.3 | 23.2 | 23.4 | 22.4 |
| Q1 | 21.2 | 22.5 | 20.8 | 22.5 | 21.9 | 21.7 | |
| Min. | 12.8 | 14.5 | 10.8 | 14.3 | 12.8 | 10.8 | |
Publisher’s Note: MDPI stays neutral with regard to jurisdictional claims in published maps and institutional affiliations. |
© 2022 by the authors. Licensee MDPI, Basel, Switzerland. This article is an open access article distributed under the terms and conditions of the Creative Commons Attribution (CC BY) license (https://creativecommons.org/licenses/by/4.0/).
Share and Cite
Aragon, V.; James, P.; Gauthier, S. Revisiting Home Heat Control Theories through a UK Care Home Field Trial. Energies 2022, 15, 4990. https://doi.org/10.3390/en15144990
Aragon V, James P, Gauthier S. Revisiting Home Heat Control Theories through a UK Care Home Field Trial. Energies. 2022; 15(14):4990. https://doi.org/10.3390/en15144990
Chicago/Turabian StyleAragon, Victoria, Patrick James, and Stephanie Gauthier. 2022. "Revisiting Home Heat Control Theories through a UK Care Home Field Trial" Energies 15, no. 14: 4990. https://doi.org/10.3390/en15144990
APA StyleAragon, V., James, P., & Gauthier, S. (2022). Revisiting Home Heat Control Theories through a UK Care Home Field Trial. Energies, 15(14), 4990. https://doi.org/10.3390/en15144990

