Retrofit Methodology Based on Energy Simulation Modeling Applied for the Enhancement of a Historical Building in L’Aquila
Abstract
1. Introduction
2. Materials and Methods
2.1. Historical Masonry Building: Constraints and Improving Performance
2.2. Historical Analysis, On Site Investigations, Non-Destructive Techniques and Simulation Software: Too Many Tools for a Coherent Retrofit Approach?
2.3. Methodology
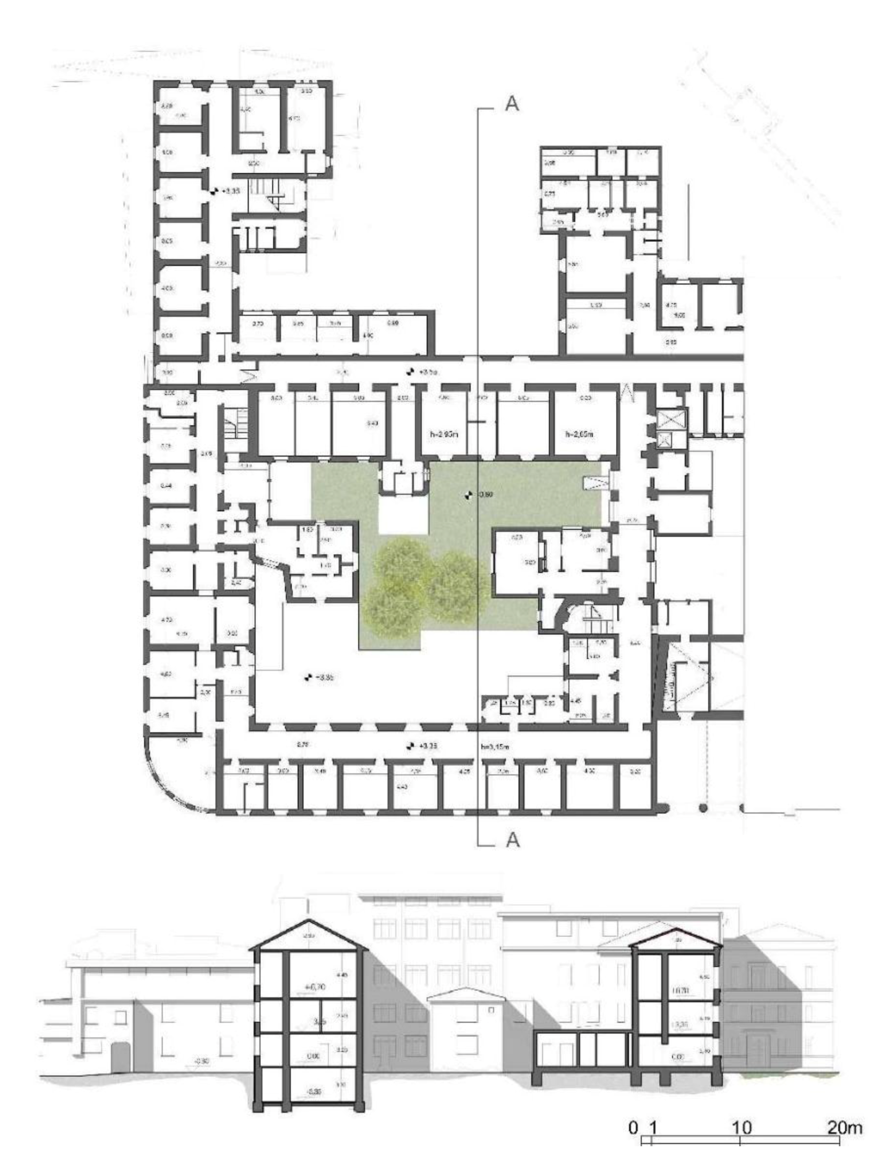
3. Stage 1, Steps 1 and 2: The Case Study and Surveys
3.1. Ambiguous Constraints
3.2. Damage Analysis
3.3. Surface Degradation Analysis
3.4. The Values/Transformability Map
3.5. Energy Audit in the Current State
4. Step 3. The Project-Strategy Map
4.1. Highlighting Compatible Strategies for Seismic Retrofitting
4.1.1. Interventions on Slabs
4.1.2. Stone Masonry
4.2. Step 4. Compatible Strategies for Energy Retrofitting
4.2.1. Slabs
4.2.2. Ground Slab
4.2.3. Roof
4.2.4. Stone Masonry
4.2.5. Windows
5. Results
5.1. Step 5. Indentifying Compatible Scenarios
5.2. Step 6 and 7. Modelling and Evaluating Different Scenarios
5.3. Step 8. Dynamic Simulation Results
6. Discussion
7. Conclusions
Author Contributions
Funding
Acknowledgments
Conflicts of Interest
References
- Change, IPCC Climate. Buildings, Climate Change 2014: Mitigation of Climate Change. Contribution of Working Group III to the Fifth Assessment Report of the Intergovernmental Panel on Climate Change; The Intergovernmental Panel on Climate Change (IPCC): Geneva, Switzerland, 2014. [Google Scholar]
- Available online: http://www.bp.com/ (accessed on 3 April 2020).
- Lavagna, M.; Baldassarri, C.; Campioli, A.; Dalla Valle, S.G.A.; Castellani, V.; Sala, S. Benchmarks for environmental impact of housing in Europe: Definition of archetypes and LCA of the residential building stock. Build. Environ. 2018, 145, 260–275. [Google Scholar] [CrossRef]
- Economidou, M.; Atanasiu, B.; Despret, C.; Maio, J.; Nolte, I.; Rapf, O. Europe’s Buildings under the Microscope: A Country-By-Country Review of the Energy Performance of Buildings; Building Performance Institute Europe (BPIE): Brussels, Belgium, 2011; p. 43. ISBN 9789491143014. [Google Scholar]
- Koukkari, H.; Brangança, L. Review on the European strategies for energy-efficient buildings. Int. J. Sustain. Build Technol. Urban Dev. 2012, 2, 87–99. [Google Scholar] [CrossRef]
- The European parliament and the Council of the European Union. Directive 2010/31/EU of the European Parliament and of the Council on the Energy Performance of Buildings, EPBD (Energy Performance of Buildings Directive); The European parliament and the Council of the European Union: Brussels, Belgium, 2010. [Google Scholar]
- Available online: https://ec.europa.eu/energy/topics/energy-efficiency/energy-efficient-buildings/energy-performance-buildings-directive_en (accessed on 3 April 2020).
- Costanzo, S.; Cusumano, A.; Giaconia, C.; Giaconia, G. Preservation of the artistic heritage within the seat of the Chancellorship of the University of Palermo: A proposal on a methodology regarding an environmental investigation according to Italian Standards. Build. Environ. 2006, 41, 1847–1859. [Google Scholar] [CrossRef]
- Berg, F.; Flyen, A.C.; Godbolt, A.L.; Broström, T. User-driven energy efficiency in historic buildings: A review. J. Cult. Herit. 2017, 28, 188–195. [Google Scholar] [CrossRef]
- Magrini, A.; Franco, G. The energy performance improvement of historic buildings and their environmental sustainability assessment. J. Cult. Herit. 2016, 21, 834–841. [Google Scholar] [CrossRef]
- Pigliautile, I.; Castaldo, V.L.; Makaremi, N.; Pisello, A.L.; Cabeza, L.F.; Cotana, F. On an innovative approach for microclimate enhancement and retrofit of historic buildings and artworks preservation by means of innovative thin envelope materials. J. Cult. Herit. 2019, 36, 222–231. [Google Scholar] [CrossRef]
- ICOMOS/ISCARSAH Committee. Recommendations for the Analysis, Conservation and Structural Restoration of Architectural Heritage; International Council on Monuments and Sites: Paris, France, 2005. [Google Scholar]
- International Council on Monuments and Sites. International charter for the conservation and restoration of monuments and sites (The Venice Charter). In Proceedings of the IInd International Congress of Architects and Technicians of Historic, Venice, Italy, 25–31 May 1964. [Google Scholar]
- Comite Europeen de Normalisation (CEN). Conservation of Cultural Heritage e Guidelines for Improving the Energy Performance of Historic Buildings; SS-EN-16883; Comite Europeen de Normalisation (CEN): Brussels, Belgium, 2017. [Google Scholar]
- Webb, A.L. Energy retrofits in historic and traditional buildings: A review of problems and methods. Renew. Sustain. Energy Rev. 2017, 77, 748–759. [Google Scholar] [CrossRef]
- Galatioto, A.; Ciulla, G.; Ricciu, R. An overview of energy retrofit actions feasibility on Italian historical buildings. Energy 2017, 137, 991–1000. [Google Scholar] [CrossRef]
- Boarin, P.; Guglielmino, D.; Pisello, A.L.; Cotana, F. Sustainability assessment of historic buildings: Lesson learnt from an Italian case study through LEED® rating system. Energy Procedia 2014, 61, 1029–1032. [Google Scholar] [CrossRef]
- Napoli, G.; Gabrielli, L.; Barbaro, S. The efficiency of the incentives for the public buildings energy retrofit. The case of the Italian Regions of the “Objective Convergence”. Valori Valutazioni 2017, 18, 25–39. [Google Scholar]
- Di Pilla, L.; Desogus, G.; Mura, S.; Ricciu, R.; Di Francesco, M. Optimizing the dis-tribution of Italian building energy retrofit incentives with Linear Programming. Energy Build. 2016, 112, 21–27. [Google Scholar] [CrossRef]
- Galatioto, A.; Ricciu, R.; Salem, T.; Kinab, E. Energy and economic analysis on retrofit actions for Italian public historic buildings. Energy 2019, 176, 58–66. [Google Scholar] [CrossRef]
- Ascione, F.; De Rossi, F.; Vanoli, G.P. Energy retrofit of historical buildings: Theoretical and experimental investigations for the modelling of reliable performance scenarios. Energy Build. 2011, 43, 1925–1936. [Google Scholar] [CrossRef]
- Cornaro, C.; Puggioni, V.A.; Strollo, R.M. Dynamic simulation and on-site measurements for energy retrofit of complex historic buildings: Villa Mondragone case study. J. Build. Eng. 2016, 6, 17–28. [Google Scholar] [CrossRef]
- Ciulla, G.; Galatioto, A.; Ricciu, R. Energy and economic analysis and feasibility of retrofit actions in Italian residential historical buildings. Energy Build. 2016, 128, 649–659. [Google Scholar] [CrossRef]
- Filippi, M. Remarks on the green retrofitting of historic buildings in Italy. Energy Build. 2015, 95, 15–22. [Google Scholar] [CrossRef]
- Evangelisti, L.; Guattari, C.; Gori, P. Energy retrofit strategies for residential building envelopes: An Italian case study of an early-50s building. Sustainability 2015, 7, 10445–10460. [Google Scholar] [CrossRef]
- Ma, Z.; Cooper, P.; Daly, D.; Ledo, L. Existing building retrofits: Methodology and state-of-the-art. Energy Build. 2012, 55, 889–902. [Google Scholar] [CrossRef]
- Roberti, F.; Oberegger, U.F.; Lucchi, E.; Troi, A. Energy retrofit and conservation of a historic building using multi-objective optimization and an analytic hierarchy process. Energy Build. 2017, 138, 1–10. [Google Scholar] [CrossRef]
- Pisello, A.L.; Petrozzi, A.; Castaldo, V.L.; Cotana, F. On an innovative integrated technique for energy refurbishment of historical buildings: Thermal-energy, economic and environmental analysis of a case study. Appl. Energy 2016, 162, 1313–1322. [Google Scholar] [CrossRef]
- Gabrielli, L.; Ruggeri, A.G. Developing a model for energy retrofit in large building portfolios: Energy assessment, optimization and uncertainty. Energy Build. 2019, 202, 109356. [Google Scholar] [CrossRef]
- Available online: https://whc.unesco.org/en/list/ (accessed on 30 March 2020).
- Bartolomucci, C.; Giancola, F.; Capannolo, L.; De Vita, M.; Laurini, E.; Marchionni, C.; (University of L’Aquila, DICEAA & National Research Council, ITC, L’Aquila, Italy). Studio di Fattibilità per il Progetto di un Polo Universitario nell’ex Ospedale San Salvatore. Feasibility Study; Scientific Contributor De Berardinis, P.. Personal communication, 2017. [Google Scholar]
- De Berardinis, P.; Bartolomucci, C.; Capannolo, L.; De Vita, M.; Laurini, E.; Marchionni, C. Instruments for Assessing Historical Built Environments in Emergency Contexts: Non-Destructive Techniques for Sustainable Recovery. Buildings 2018, 8, 27. [Google Scholar] [CrossRef]
- De Vita, M.; Massari, G.; De Berardinis, P.; Palmero Iglesias, L. Non destructive surveys for the protection of cultural heritage: Restoration in a post earthquake context. SCIRES-IT Sci. Res. Inf. Technol. 2019, 9, 85–94. [Google Scholar]
- UNESCO—United Nations Educational, Scientific and Cultural Organization. Available online: https://whc.unesco.org (accessed on 29 October 2018).
- Schiavi, A.; Cellai, G.; Secchi, S.; Brocchi, F.; Grazzini, A.; Prato, A.; Mazzoleni, F. Stone masonry buildings: Analysis of structural acoustic and energy performance within the seismic safety criteria. Constr. Build. Mater. 2019, 220, 29–42. [Google Scholar] [CrossRef]
- Feilden, B. Conservation of Historic Buildings; Routledge: Abingdon, UK, 2007. [Google Scholar]
- Spyrakos, C.C. Bridging performance based seismic design with restricted interventions on cultural heritage structures. Eng. Struct. 2018, 160, 34–43. [Google Scholar] [CrossRef]
- Morel, J.C.; Mesbah, A.; Oggero, M.; Walker, P. Building houses with local materials: Means to drastically reduce the environmental impact of construction. Build. Environ. 2001, 36, 1119–1126. [Google Scholar] [CrossRef]
- MiBACT, Italian Ministry of Cultural Heritage and Activities and Tourism. D.P.C.M. 9 Febbraio 2011. Valutazione e Riduzione del Rischio Sismico del Patrimonio Culturale con Riferimento Alle Norme Tecniche per le Costruzioni di cui al Decreto Ministeriale 14 Gennaio 2008 S.O. alla G.U. del 26.02.2011. Gazz. Uff. 2011. Available online: https://www.veneto.beniculturali.it/normativa-e-disposizioni/dpcm-9-febbraio-2011-valutazione-e-riduzione-del-rischio-sismico-del (accessed on 24 June 2020).
- Ministero Delle Infrastrutture e dei Trasporti. D.M. 17 Gennaio 2018. Aggiornamento Delle «Norme Tecniche per le Costruzioni». S. O. Alla G.U n. 42 del 20 Febbraio 2018—Serie Generale. Gazz. Uff. Repub. Ital. 2018. Available online: https://www.gazzettaufficiale.it/eli/gu/2018/02/20/42/so/8/sg/pdf (accessed on 24 June 2020).
- IL Ministro Dell’ambiente e Della Tutela del Territorio e del Mare. D.M. 11 ottobre 2017. Criteri Ambientali Minimi per L’affidamento di Servizi di Progettazione e Lavori per la Nuova Costruzione, Ristrutturazione e Manutenzione di Edifici Pubblici. Gazz. Uff. 2017. Available online: https://www.anit.it/wp-content/uploads/2017/11/DM-11-ottobre-2017-1.pdf (accessed on 24 June 2020).
- Akkurt, G.G.; Aste, N.; Borderon, J.; Buda, A.; Calzolari, M.; Chung, D.; Leonforte, F. Dynamic thermal and hygrometric simulation of historical buildings: Critical factors and possible solutions. Renew. Sustain. Energy Rev. 2020, 118, 109509. [Google Scholar] [CrossRef]
- MiBACT, Italian Ministry of Cultural Heritage and Activities and Tourism. Linee di Indirizzo Per il Miglioramento Dell’efficienza Energetica nel Patrimonio Culturale; Italian Ministry of Cultural Heritage and Activities and Tourism: Rome, Italy, 2015. [Google Scholar]
- CIPE, Inter-Ministerial Committee for Economic Planning. Sisma Abruzzo 2009—Assegnazione di Risorse al Settore Ricostruzione del Patrimonio Pubblico—“Edifici Universitari”—Piano Annual 2018—; Resolution n.113/2017; Ministero Dell’istruzione, Dell’università e Della Rcercar: Rome, Italy, 2009.
- CED Della Corte di Cassazione. Nuovo Testo delle Norme Tecniche di Edilizia Con Speciali Prescrizioni Per le Località Colpite dai Terremoti; RDL, 25 Marzo 1935, n. 640; CED della Corte di Cassazione: Rome, Italy, 1935. [Google Scholar]
- Bartolomucci, C. Il complesso dell’ex-ospedale San Salvatore a L’Aquila: Il contributo del restauro per il progetto di un nuovo polo universitario. In Le Nuove Frontiere del Restauro: Trasferimenti, Contaminazioni, Ibridazioni. Proceedings of the “Scienza e Beni Culturali” 33th International Congress, Bressanone, Italy, 30 June–3 July 2017; Arcadia Ricerche: Venezia, Italy, 2017; pp. 27–30. [Google Scholar]
- Guarino, M.; Vittorini, M. Studi Preparatori Per la Realizzazione di un Centro Ospedaliero a L’Aquila; Alterocca: Terni, Italy, 1968. [Google Scholar]
- Leosini, A. Monumenti Storici Artistici Della Città di Aquila e Suoi Contorni; Perchiazzi: Aquila, Italy, 1848. [Google Scholar]
- Mariani, E. Memorie Istoriche Della Città di Aquila; Manuscript in Biblioteca Provinciale Tommasiana; Chiese e Collegiate: L’Aquila, Italy, XIX Century; Volume I, pp. 405–410. [Google Scholar]
- Mariani, E. Memorie Istoriche dei Pubblici Stabilimenti di Beneficenza Della Città di Aquila, Parte V: Conservatori, Scuole Pie ed Ospedali Chiusi ed Esistenti, XIX Century; 40–55.
- Mariani, E. Memorie Istoriche dei Pubblici Stabilimenti di Beneficenza Della Città di Aquila, Parte III: Monisteri di Donne Esistenti e Soppressi, XIX Century; Volume L, tomo I, 89.
- Ministry of Public Education. Elenco degli Edifici Monumentali: Provincia di Aquila; Provveditorato Generale dello Stato, Libreria: Roma, Italy, 1927; Volume 46. [Google Scholar]
- Pezzi, A.G. Tutela e Restauro in Abruzzo: Dall’Unità alla Seconda Guerra Mondiale: 1860–1940; Gangemi: Roma, Italy, 2005. [Google Scholar]
- Stockel, G. La Città Dell’Aquila: Il Centro Storico Tra il 1860 e il 1960; Edizioni del Gallo Cedrone: L’Aquila, Italy, 1981. [Google Scholar]
- Tozzi, A. (Ed.) L’Ospedale S. Salvatore dell’Aquila: Nel Passato e nel Presente; Tip. F.lli Centofanti: L’Aquila, Italy, 1956. [Google Scholar]
- Tozzi, A. San Giovanni da Capestrano Fondatore dell’Ospedale, S. Salvatore dell’Aquila: Nel 6° Centenario della Nascita; Ente Provinciale per il Turismo: L’Aquila, Italy, 1986. [Google Scholar]
- Vicari, L. Due architetti romani operanti ad Aquila nei primi anni del sec. XVIII: Sebastiano Cipriani e Giovanbattista Contini. Bull. Deput. Abruzz. Stor. Patria 1972, 57–59, 199–214. [Google Scholar]



















| Name | Value |
|---|---|
| Climate File Activity | ITA_CAMOBASSO_IGDG Classroom-University |
| Occupancy/Density | 0.2034 people/m2 |
| Trasmittance perimeter wall-level 1 | 1.82 W/m2K |
| Trasmittance perimeter wall-level 2 | 1.95 W/m2K |
| Trasmittance perimeter wall-level 2 | 2.10 W/m2K |
| Trasmittance cement-brick slab | 0.95 W/m2K |
| Trasmittance uninsulated floor | 1.47 W/m2K |
| Trasmittance tilted roof | 2.70 W/m2K |
| Trasmittance windows (single glass) | 3.10 W/m2K |
| Window sizes | 1.40 x 2.00 m |
| Parapet height | 0.90 m |
| Window spacing | 3.50 m |
| Mechanical ventilation | ON |
| Heating | Natural gas |
| ACS | Natural gas |
| Compatible Strategies | Intervention | Reversibility | Invasiveness/Compatibility |
|---|---|---|---|
| Consolidation | GFRP nets and bars | high | medium |
| Connectors and electrowelded mesh | high | medium | |
| Refurbishment (new slabs) | New brick slab | zero | high |
| EPS slab | zero | low | |
| Steel floor | zero | medium |
| Compatible Strategies | Intervention | Reversibility | Invasiveness |
|---|---|---|---|
| Consolidation | New pillars insertion | zero | high |
| Injections | zero | low | |
| Reinforced plaster | medium | medium | |
| CAM system | low | high | |
| FRP | medium | medium | |
| Armed injections | low | high | |
| Hooping of the openings | high | medium |
| Compatible Strategies: Integration | Intervention | Thickness (cm) | U-Value | Condensation Risk | Costs | |
|---|---|---|---|---|---|---|
| (W/m2K) | (€/m2) | |||||
| Existing slabs | Insulating panel Cork | 10 | 0.343 | NO | 20–40 | |
| Insulating panel EPS 1 | 8 | 0.272 | NO | 8–15 | ||
| Rock wool | 10 | 0.297 | NO | 10–19 | ||
| Insulating Aerogel 1 | 5 | 0.264 | NO | 80–85 | ||
| New slabs | EPS | 4 cm | 4 | 0.41 | NO | 20 |
| 6 cm | 6 | 0.30 | NO | 20 | ||
| Aerogel | 4 + 2 | 0.28 | NO | 20 + 80 | ||
| Steel slab | Rock wool | 10 | 0.31 | YES | 10–19 | |
| Panel EPS | 7 | 0.30 | YES | 8–15 | ||
| Aerogel | 5 | 0.27 | NO | 80–85 | ||
| Compatible Strategies: Integration | Intervention | Thickness (cm) | U-Value | Condensation Risk | Costs |
|---|---|---|---|---|---|
| (W/m2K) | (€/m2) | ||||
| Integration | Insulating panel EPS | 10 | 0.31 | YES | 8–15 |
| Insulating Aerogel 1 | 5 | 0.26 | NO | 80–85 | |
| Crawl space | 30 | 0.32 | NO | 30–40 | |
| with expanded clay |
| Compatible Strategies: Integration | Intervention | Thickness (cm) | U-Value | Condensation Risk | Costs (€/m2) |
|---|---|---|---|---|---|
| (W/m2K) | |||||
| External wall insulation | Thermal plaster | 4 | 0.90 | NO | 9–12 |
| Insulating panel EPS | 8 | 0.279 | NO | 8–15 | |
| Insulating panel Rock wool | 10 | 0.307 | NO | 10–19 | |
| Insulating Aerogel | 5 | 0.271 | NO | 80–85 | |
| Vacuum panels VIP | 3 | 0.259 | NO | 60–70 | |
| Internal wall insulation | Thermal plaster | 4 | 0.90 | YES | 9–12 |
| Insulating panel EPS | 8 | 0.279 | YES | 8–15 | |
| Insulating panel Rock wool | 10 | 0.307 | YES | 10–19 | |
| Insulating Aerogel | 5 | 0.271 | NO | 80–85 | |
| Vacuum panels VIP 1 | 3 | 0.259 | NO | 60–70 | |
| Internal and esternal wall insulation | Thermal plaster | 4 + 4 | 0.60 | YES | 9–12 |
| Insulating panel EPS | 2 + 6 | 0.279 | NO | 8–15 | |
| Insulating panel Rock wool | 2 + 8 | 0.307 | NO | 10–19 | |
| Insulating Aerogel 1 | 2 + 3 | 0.271 | NO | 80–85 | |
| Vacuum panels VIP | 2 + 2 | 0.201 | NO | 60–70 |
| Name | Value |
|---|---|
| Climate File Activity | ITA_CAMOBASSO_IGDG Classroom-University |
| Occupancy/Density | 0.2034 people/ m2 |
| Trasmittance uninsulated floor | 0.260 W/m2K |
| Trasmittance tilted roof | 0.240 W/m2K |
| Trasmittance windows (single glass) | 1.30 W/m2K |
| Window sizes | 1.40x2.00 m |
| Parapet height | 0.90 m |
| Window spacing | 3.50 m |
| Mechanical ventilation | ON |
| Heating | Natural gas |
| ACS | Natural gas |
| First Scenario | |
| Trasmittance perimeter wall-level 1 | 0.251 W/m2K |
| Trasmittance perimeter wall-level 2 | 0.254 W/m2K |
| Trasmittance perimeter wall-level 3 | 0.259 W/m2K |
| Trasmittance cement-brick slab | 0.264 W/m2K |
| Second Scenario | |
| Trasmittance perimeter wall-level 1 | 0.280 W/m2K |
| Trasmittance perimeter wall-level 2 | 0.275 W/m2K |
| Trasmittance perimeter wall-level 3 | 0.271 W/m2K |
| Trasmittance cement-brick slab | 0.264 W/m2K |
| Third Scenario | |
| Trasmittance perimeter wall-level 1 | 0.251 W/m2K |
| Trasmittance perimeter wall-level 2 | 0.254 W/m2K |
| Trasmittance perimeter wall-level 3 | 0.259 W/m2K |
| Trasmittance cement-brick slab | 0.272 W/m2K |
| Fourth Scenario | |
| Trasmittance perimeter wall-level 1 | 0.280 W/m2K |
| Trasmittance perimeter wall-level 2 | 0.275 W/m2K |
| Trasmittance perimeter wall-level 3 | 0.271 W/m2K |
| Trasmittance cement-brick slab | 0.272 W/m2K |
| Name | First Scenario | Second Scenario | ||
|---|---|---|---|---|
| Results | % of decrease | Results | % of decrease | |
| Gas consumption | 862.27 MWh | 25.02% | 866.54 MWh | 24.64% |
| Electricity consumption | 368.27 MWh | 5.50% | 370.44 MWh | 5.01% |
| CO2 production | 384.95 kg | 14.41% | 387.78 kg | 13.78% |
| Third Scenario | Fourth Scenario | |||
| Name | Results | % of decrease | Results | % of decrease |
| Gas consumption | 866.54 MWh | 24.64% | 897.90 MWh | 22.44% |
| Electricity consumption | 370.44 MWh | 5.01% | 376.44 MWh | 3.47% |
| CO2 production | 387.78 kg | 24.77% | 395.41 kg | 12.08% |
© 2020 by the authors. Licensee MDPI, Basel, Switzerland. This article is an open access article distributed under the terms and conditions of the Creative Commons Attribution (CC BY) license (http://creativecommons.org/licenses/by/4.0/).
Share and Cite
De Vita, M.; Massari, G.; De Berardinis, P. Retrofit Methodology Based on Energy Simulation Modeling Applied for the Enhancement of a Historical Building in L’Aquila. Energies 2020, 13, 3289. https://doi.org/10.3390/en13123289
De Vita M, Massari G, De Berardinis P. Retrofit Methodology Based on Energy Simulation Modeling Applied for the Enhancement of a Historical Building in L’Aquila. Energies. 2020; 13(12):3289. https://doi.org/10.3390/en13123289
Chicago/Turabian StyleDe Vita, Mariangela, Giulia Massari, and Pierluigi De Berardinis. 2020. "Retrofit Methodology Based on Energy Simulation Modeling Applied for the Enhancement of a Historical Building in L’Aquila" Energies 13, no. 12: 3289. https://doi.org/10.3390/en13123289
APA StyleDe Vita, M., Massari, G., & De Berardinis, P. (2020). Retrofit Methodology Based on Energy Simulation Modeling Applied for the Enhancement of a Historical Building in L’Aquila. Energies, 13(12), 3289. https://doi.org/10.3390/en13123289

