Electromagnetic Exposure from RF Antennas on Subway Station Attendant: A Thermal Analysis
Abstract
1. Introduction
2. Models and Methods
2.1. RF Antenna Model
2.2. Numerical Human Body Model
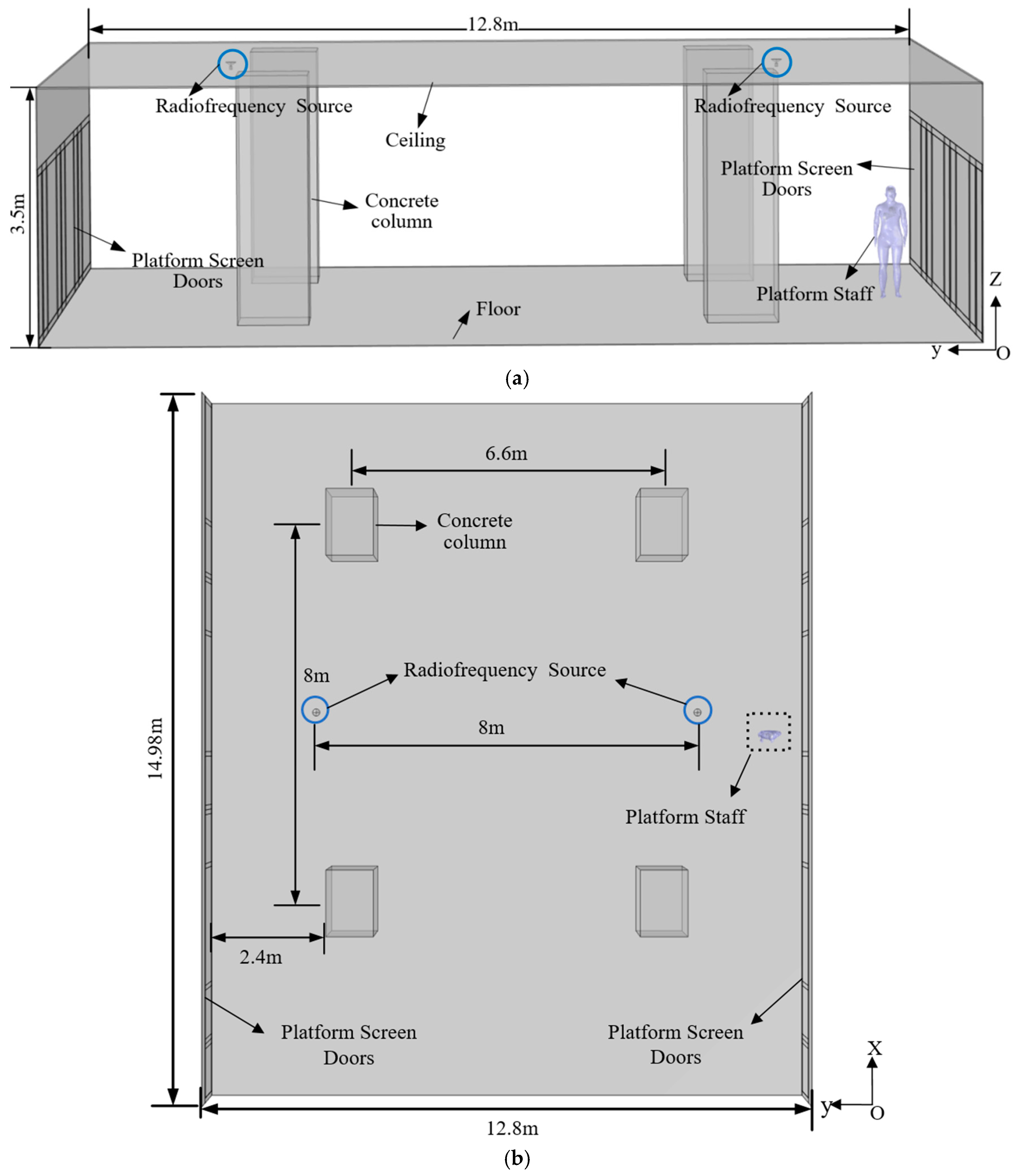
2.3. Electromagnetic Exposure Scenario Model
2.4. Numerical Computation
2.4.1. Electromagnetic Wave Propagation Analysis
2.4.2. Specific Absorption Rate (SAR)
2.4.3. Bioheat Transfer Theory
- Electromagnetic waves directly interact with the human body and are completely absorbed by the tissues.
- Interactions between electromagnetic waves and tissues occur in an open-field environment.
- A scattering boundary condition is applied to truncate the free-space region surrounding the body.
- Thermal properties of all tissues are assumed to be homogeneous and constant.
2.4.4. Numerical Calculation Method
2.5. Verification of the Model Validity
3. Analysis of the Calculation Results
3.1. SAR Distribution
3.2. Temperature Distribution
3.2.1. Temperature Rise in Human Tissues at 900 MHz
3.2.2. Temperature Rise Curves at 900 MHz
3.2.3. Temperature Rise Under Different Frequencies and Ambient Conditions
3.2.4. The Impact of the Built Environment on Human Body Temperature Rise
3.2.5. The Effects of Different Positions on Human Electromagnetic Exposure
4. Discussion
- (1)
- In this study, the SAR distribution within the body of subway station attendants varied significantly with operating frequency. At 900 MHz, the SAR peak occurred in the arm closest to the antenna; at 2600 MHz, it was located in the head; at 3500 MHz, it was observed in the head and neck regions. The maximum SAR values in References [10,21] also occurred in the trunk and head.
- (2)
- Temperature rise in key organs and tissues was computed for RF antenna exposure at different frequencies, with irradiation durations of 1 min, 6 min, and 30 min. The results show that when the exposure duration reaches 30 min, the temperature rise in all critical tissues attained a steady-state condition. Owing to the combined influence of thermal conductivity, dielectric properties, and blood perfusion rates, the RF-induced temperature increase in biological tissues was not directly proportional to the SAR distribution. The maximum temperature rise occurred in brain tissue under winter station conditions with an ambient temperature of 18 °C at 900 MHz, reaching 0.2123 °C, which corresponded to 21.23% of the 1 °C temperature-rise limit specified by the ICNIRP guidelines.
- (3)
- At an operating frequency of 900 MHz, a comparative analysis was performed between scenarios with and without surrounding architecture structures in a subway station environment. In the scenario without ceilings, platform screen doors, and concrete columns, the maximum spatial electric field intensity reached 17.5 V/m, exceeding the 11.5 V/m observed with buildings. The maximum tissue temperature rise in the scenario without architecture structures was 0.1802 °C, slightly higher than the 0.1795 °C recorded with structural elements present, and both values remain well below the ICNIRP guideline limit of 1 °C. These findings indicate that architectural structures exert reflective, partially absorptive, and shielding effects on electromagnetic wave propagation.
- (1)
- Developing a multi-body coupled model and investigating the effect of passenger density variations in different time periods on exposure levels;
- (2)
- Developing a dynamic exposure assessment model considering the movement of subway station attendants;
- (3)
- Investigating the electromagnetic exposure of subway station attendants in other work areas, such as station entrances;
- (4)
- This study is limited to the female digital human model with a specific height of 1.63 m (Ella), and the results of studies on different statures may vary.
5. Conclusions
Author Contributions
Funding
Institutional Review Board Statement
Informed Consent Statement
Data Availability Statement
Conflicts of Interest
References
- UITP. Global Metro Figures 2024. 2025. Available online: https://www.uitp.org/publications/global-metro-figures-2024/ (accessed on 1 May 2025).
- Ministry of Transport of the People’s Republic of China. Monthly Bulletin of Urban Rail Transit Operation Data. 2025. Available online: https://www.mot.gov.cn/fenxigongbao/yunlifenxi/202509/t20250909_4176362.html (accessed on 9 September 2025).
- Yin, L.; Song, T.; Ni, Q.; Xiao, Q.; Sun, Y.; Guo, W. New Signal and Algorithms for 5G/6G High Precision Train Positioning in Tunnel With Leaky Coaxial Cable. IEEE J. Sel. Areas Commun. 2024, 42, 223–238. [Google Scholar] [CrossRef]
- Guan, K.; Zhong, Z.; Alonso, J.I.; Briso-Rodriguez, C. Measurement of Distributed Antenna Systems at 2.4 GHz in a Realistic Subway Tunnel Environment. IEEE Trans. Veh. Technol. 2012, 61, 834–837. [Google Scholar] [CrossRef]
- Domínguez-Bolaño, T.; Rodríguez-Piñeiro, J.; García-Naya, J.A.; Yin, X.; Castedo, L. Measurement-Based Characterization of Train-to-Infrastructure 2.6 GHz Propagation Channel in a Modern Subway Station. IEEE Access 2018, 6, 52814–52830. [Google Scholar] [CrossRef]
- Hou, W.; Zhang, X.; Wang, J.; Sarris, C.D. Hybrid Numerical Modeling of Electromagnetic Interference in Train Communication Systems. IEEE Trans. Electromagn. Compat. 2020, 62, 715–724. [Google Scholar] [CrossRef]
- Chen, J.X.; Xing, H.T.; Huang, J.M.; Wang, M.N.; Ma, Z.H. A Three-dimensional Compact Propeller-shaped Circularly Polarized Ceiling Antenna. ACES J. 2023, 38, 231–239. [Google Scholar] [CrossRef]
- ICNIRP. Guidelines for limiting exposure to electromagnetic fields (100 kHz to 300 GHz). Health Phys. 2020, 118, 483–524. [Google Scholar] [CrossRef]
- IEEE. IEEE Standard for Safety Levels with Respect to Human Exposure to Electric, Magnetic, and Electromagnetic Fields, 0 Hz to 300 GHz; IEEE: New York, NY, USA, 2019; pp. 1–312. [Google Scholar]
- Bonato, M.; Tognola, G.; Benini, M.; Gallucci, S.; Chiaramello, E.; Fiocchi, S.; Parazzini, M. Assessment of SAR in Road-Users from 5G-V2X Vehicular Connectivity Based on Computational Simulations. Sensors 2022, 22, 6564. [Google Scholar] [CrossRef]
- Sakacı, F.H.; Cerezci, O. Prediction of Magnetic Pollution with Artificial Neural Network in Living Areas. J. Electr. Eng. Technol. 2021, 16, 2701–2708. [Google Scholar] [CrossRef]
- Lin, J.; Ding, G.; Liu, X. Assessment of the potential threats to brain health posed by the radiation from 5G sub-6 GHz base stations in China using dosimetric methods. Environ. Sci. Pollut. Res. 2024, 31, 31015–31027. [Google Scholar] [CrossRef]
- Omar, S.M.; Nasr, M.; Rafla, D.A. Transdermal patches loaded with L-cysteine HCL as a strategy for protection from mobile phone emitting electromagnetic radiation hazards. Saudi Pharm. J. 2019, 27, 112–125. [Google Scholar] [CrossRef] [PubMed]
- Periyasamy, M.; Dhanasekaran, R.; Mahendran, G. Selected studies of electromagnetic exposure levels in the countries of Asia-a review. In Proceedings of the International Conference on Communication and Signal Processing (ICCSP) 2018, Chennai, India, 3–5 April 2018. [Google Scholar]
- Carlberg, M.; Hardell, L. Evaluation of Mobile Phone and Cordless Phone Use and Glioma Risk Using the Bradford Hill Viewpoints from 1965 on Association or Causation. J. Environ. Public Health 2017, 2017, 9218486. [Google Scholar] [CrossRef]
- Panagopoulos, D.J. Comparing DNA damage induced by mobile telephony and other types of man-made electromagnetic fields. Mutat. Res./Rev. Mutat. Res. 2019, 781, 53–62. [Google Scholar] [CrossRef] [PubMed]
- Katiyar, S.; Jain, R.K.; Agrawal, N.K. R.F. pollution reduction in cellular communication. Int. J. Sci. Eng. Res. 2012, 3, 21–26. [Google Scholar]
- Wang, S.; Lu, M. Assessment of RF Electromagnetic Exposure to Car Driver from Monopole Array Antennas in V2V Communications Considering Thermal Characteristics. Sensors 2025, 25, 3247. [Google Scholar] [CrossRef]
- Bhargava, D.; Leeprechanon, N.; Rattanadecho, P.; Wessapan, T. Specific absorption rate and temperature elevation in the human head due to overexposure to mobile phone radiation with different usage patterns. Int. J. Heat Mass Transf. 2019, 130, 1178–1188. [Google Scholar] [CrossRef]
- Jovanovic, U.; Zigar, D.; Malenovic-Nikolic, J.K.D. Assessing SAR1g Distribution in the Human Head During Hands-Free Mobile Phone Usage. Serbian J. Electr. Eng. 2024, 21, 135–147. [Google Scholar] [CrossRef]
- Zhou, W.Y.; Xu, J.J.; Lu, M.; Li, Y.X. Electromagnetic compatibility study of trackside antenna array miniaturization in the subway tunnel. Phys. Scr. 2024, 99, 125513. [Google Scholar] [CrossRef]
- Wang, Y.; Lu, M. Assessment of Global System for Mobile Communications—Railway (GSM-R) electromagnetic fields exposure along the railway lines in Lanzhou, China. Environ. Res. 2025, 272, 121138. [Google Scholar] [CrossRef]
- Ashraf, M.A.; Celik, T. Evaluating radiofrequency electromagnetic field exposure in confined spaces: A systematic review of recent studies and future directions. Radiat. Prot. Dosim. 2024, 200, 598–616. [Google Scholar] [CrossRef]
- Zhang, X.J.; He, R.S.; Yang, M.; Qi, Z.Y.; Zhang, Z.Y.; Ai, B. Narrowband Channel Measurements and Statistical Characterization in Subway Tunnels at 1.8 and 5.8 GHz. IEEE Trans. Veh. Technol. 2024, 73, 10228–10240. [Google Scholar] [CrossRef]
- Worel, N.; Mišík, M.; Kundi, M.; Ferk, F.; Hutter, H.-P.; Nersesyan, A.; Wultsch, G.; Krupitza, G.; Knasmueller, S. Impact of high (1950 MHz) and extremely low (50 Hz) frequency electromagnetic fields on DNA damage caused by occupationally relevant exposures in human derived cell lines. Toxicol. Vitr. 2024, 100, 105902. [Google Scholar] [CrossRef]
- Li, J.; Lu, M. Safety Assessment of Occupational Electromagnetic Exposure for Subway Attendant by Leaky Coaxial Cable. J. Electr. Eng. Technol. 2024, 19, 1701–1713. [Google Scholar] [CrossRef]
- Turuban, M.; Kromhout, H.; Vila, J.; Vallbona-Vistós, M.; Baldi, I.; Turner, M.C. Personal exposure to radiofrequency electromagnetic fields in various occupations in Spain and France. Environ. Int. 2023, 180, 108156. [Google Scholar] [CrossRef] [PubMed]
- Wu, R.; Li, C.R.; Chen, F.C. Tri-Band Dual-Polarized Shared-Aperture Antenna Array for Base Station Applications. IEEE Antennas Wirel. Propag. Lett. 2025, 24, 3213–3217. [Google Scholar] [CrossRef]
- Fan, F.F.; Chen, Q.L.; Xu, Y.X.; Zhao, X.F.; Feng, J.C.; Yan, Z.H. A Wide band Compact Printed Dipole Antenna Array With SICL Feeding Network for 5G Application. IEEE Antennas Wirel. Propag. Lett. 2023, 22, 283–287. [Google Scholar] [CrossRef]
- Cole, K.S.; Cole, R.H. Dispersion and absorption in dielectrics I. Alternating current characteristics. J. Chem. Phys. 1941, 9, 341–351. [Google Scholar] [CrossRef]
- Gabriel, C.; Gabriel, S.; Corthout, E. The Dielectric Properties of Biological Tissues: I. Literature Survey. Phys. Med. Biol. 1996, 41, 2231–2249. [Google Scholar] [CrossRef]
- Gabriel, S.; Lau, R.W.; Gabriel, C. The Dielectric Properties of Biological Tissues: II. Measurements in the Frequency Range 10 Hz to 20 GHz. Phys. Med. Biol. 1996, 41, 2251–2269. [Google Scholar] [CrossRef] [PubMed]
- Gabriel, S.; Lau, R.W.; Gabriel, C. The Dielectric Properties of Biological Tissues: III. Parametric Models for the Dielectric Spectrum of Tissues. Phys. Med. Biol. 1996, 41, 2271–2293. [Google Scholar] [CrossRef]
- Gosselin, M.-C.; Neufeld, E.; Moser, H.; Huber, E.; Farcito, S.; Gerber, L.; Jedensjö, M.; Hilber, I.; Gennaro, F.D.; Lloyd, B.; et al. Development of a New Generation of High-Resolution Anatomical Models for Medical Device Evaluation: The Virtual Population 3.0. Phys. Med. Biol. 2014, 59, 5287. [Google Scholar] [CrossRef]
- Martellosio, A. Dielectric Properties Characterization From 0.5 to 50 GHz of Breast Cancer Tissues. IEEE Trans. Microw. Theory Tech. 2017, 65, 998–1011. [Google Scholar] [CrossRef]
- Wessapan, T.; Rattanadecho, P. Temperature induced in human organs due to near-field and far-field electromagnetic exposure effects. Int. J. Heat Mass Transf. 2018, 119, 65–76. [Google Scholar] [CrossRef]
- Dong, X.; Qian, Y.; Lu, M. Electromagnetic Exposure Levels of Electric Vehicle Drive Motors to Passenger Wearing Cardiac Pacemakers. Sensors 2024, 24, 4395. [Google Scholar] [CrossRef] [PubMed]
- Hussain, M.G.M. A comparison of transient solutions of Maxwell’s equations to that of the modified Maxwell’s equations. IEEE Trans. Electromagn. Compat. 1992, 34, 482–486. [Google Scholar] [CrossRef]
- IEEE C95.3-1991; IEEE Recommended Practice for the Measurement of Potentially Hazardous Electromagnetic Fields-RF and Microwave. IEEE: Piscataway, NJ, USA, 1991.
- IEEE C95.3-2002; IEEE Recommended Practice for Measurements and Computations of Radio Frequency Electromagnetic Fields with Respect to Human Exposure to Such Fields, 100 kHz–300 GHz. IEEE: Piscataway, NJ, USA, 2002.
- Pennes, H.H. Analysis of tissue and arterial blood temperatures in the resting human forearm. J. Appl. Physiol. 1948, 1, 93–122. [Google Scholar] [CrossRef]
- Li, C.; Yao, J.; Li, Y.; Wei, Y.; Li, M.; Shen, Y.; Shao, G.; Feng, H.; Zheng, H. The application and development of Pennes’ biological heat transfer model in human comfort and thermal therapy. Int. Commun. Heat Mass Transf. 2025, 169, 109724. [Google Scholar] [CrossRef]
- Singh, M. Modified Pennes bioheat equation with heterogeneous blood perfusion: A newer perspective. Int. J. Heat Mass Transf. 2024, 218, 124698. [Google Scholar] [CrossRef]
- Tasnim, Z.J.; Nasrin, R. Thermal wave and Pennes’ models of bioheat transfer in human skin: A transient comparative analysis. Heliyon 2024, 10, e40109. [Google Scholar] [CrossRef]
- Spiegel, R.J. A Review of Numerical Models for Predicting the Energy Deposition and Resultant Thermal Response of Humans Exposed to Electromagnetic Fields. IEEE Trans. Microw. Theory Tech. 1984, 32, 730–746. [Google Scholar] [CrossRef]
- The International Commission on Non-Ionizing Radiation Protection. Guidelines for limiting exposure to time-varying electric, magnetic, and electromagnetic fields (up to 300 GHz). Health Phys. 1998, 74, 494–522. [Google Scholar]
- The International Commission on Non-Ionizing Radiation Protection. Guidelines for limiting exposure to time-varying electric and magnetic fields (1 Hz to 100 kHz). Health Phys. 2010, 99, 818–836. [Google Scholar] [CrossRef] [PubMed]
- Riu, P.J.; Foster, K.R. Heating of Tissue by Near-Field Exposure to a Dipole: A Model Analysis. IEEE Trans. Biomed. Eng. 1999, 46, 911–917. [Google Scholar] [CrossRef] [PubMed]

























| Tissue | 900 MHz | 2600 MHz | 3500 MHz | |||
|---|---|---|---|---|---|---|
| σ (S/m) | σ (S/m) | σ (S/m) | ||||
| Brain | 45.8055 | 0.76653 | 42.33 | 1.6033 | 41.154 | 2.223 |
| Heart | 59.893 | 1.2298 | 54.508 | 2.3795 | 52.831 | 3.2048 |
| Liver | 46.833 | 0.85497 | 42.79 | 1.7879 | 41.417 | 2.4677 |
| Trunk | 42.56275 | 0.8727225 | 39.924755 | 1.619515 | 38.94075 | 2.1909675 |
| Human Tissue | () | k (W/(m·°C)) | C (J/(kg·°C)) | () |
|---|---|---|---|---|
| Brain | 1038 | 0.53 | 3650 | 0.00883 |
| Heart | 1050 | 0.43 | 3638 | 0.02 |
| Liver | 1079 | 0.52 | 3540 | 0.01505 |
| Trunk | 1293.5 | 0.4375 | 2987.75 | 0.0051837 |
| Exposure Scenario | Frequency Range | Whole-Body Average SAR (W/kg) |
|---|---|---|
| Occupational | 100 kHz–6 GHz | 0.4 |
| Position 1 | Position 2 | Position 3 | Position 4 | Position 5 | |
|---|---|---|---|---|---|
| SAR(W/kg) | |||||
| Temperature rise(°C) | 0.1791 | 0.1798 | 0.1863 | 0.1795 | 0.1701 |
Disclaimer/Publisher’s Note: The statements, opinions and data contained in all publications are solely those of the individual author(s) and contributor(s) and not of MDPI and/or the editor(s). MDPI and/or the editor(s) disclaim responsibility for any injury to people or property resulting from any ideas, methods, instructions or products referred to in the content. |
© 2026 by the authors. Licensee MDPI, Basel, Switzerland. This article is an open access article distributed under the terms and conditions of the Creative Commons Attribution (CC BY) license.
Share and Cite
Li, J.; Zhang, Q.; Lu, M. Electromagnetic Exposure from RF Antennas on Subway Station Attendant: A Thermal Analysis. Sensors 2026, 26, 709. https://doi.org/10.3390/s26020709
Li J, Zhang Q, Lu M. Electromagnetic Exposure from RF Antennas on Subway Station Attendant: A Thermal Analysis. Sensors. 2026; 26(2):709. https://doi.org/10.3390/s26020709
Chicago/Turabian StyleLi, Jin, Qianqian Zhang, and Mai Lu. 2026. "Electromagnetic Exposure from RF Antennas on Subway Station Attendant: A Thermal Analysis" Sensors 26, no. 2: 709. https://doi.org/10.3390/s26020709
APA StyleLi, J., Zhang, Q., & Lu, M. (2026). Electromagnetic Exposure from RF Antennas on Subway Station Attendant: A Thermal Analysis. Sensors, 26(2), 709. https://doi.org/10.3390/s26020709

