Influence of Moisture in Museum Rooms on the State of Microbial Contamination of the Air and Decoration Surfaces: The Example of a 17th Century Monument in the Museum of King John III’s Palace at Wilanow (Warsaw, Poland)
Abstract
1. Introduction
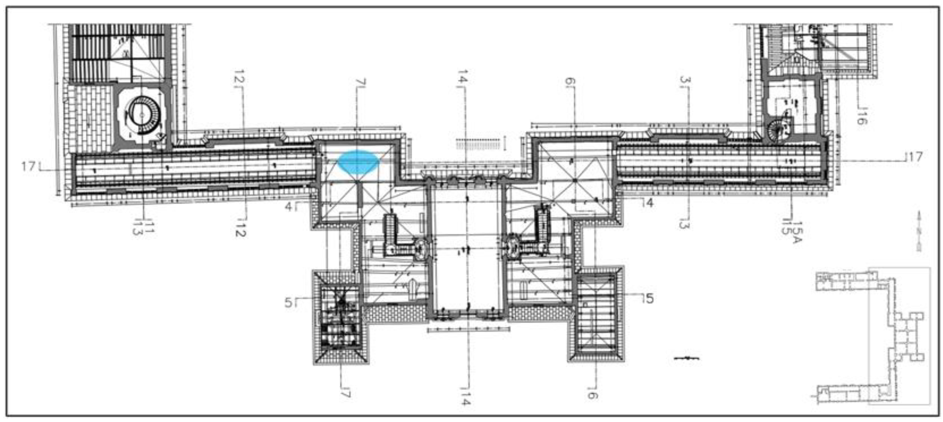
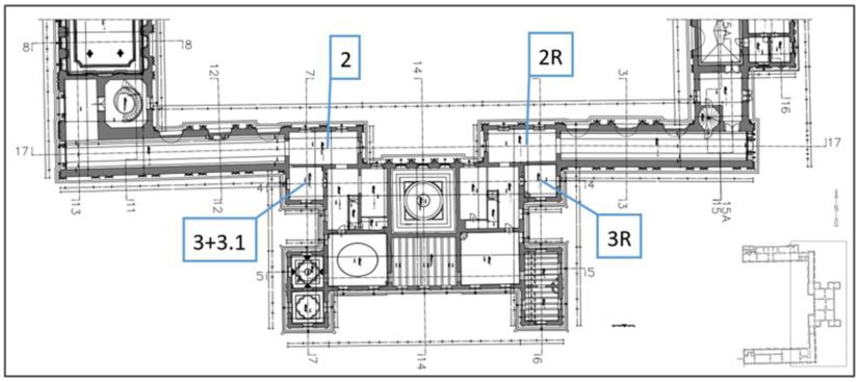
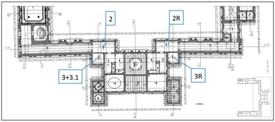
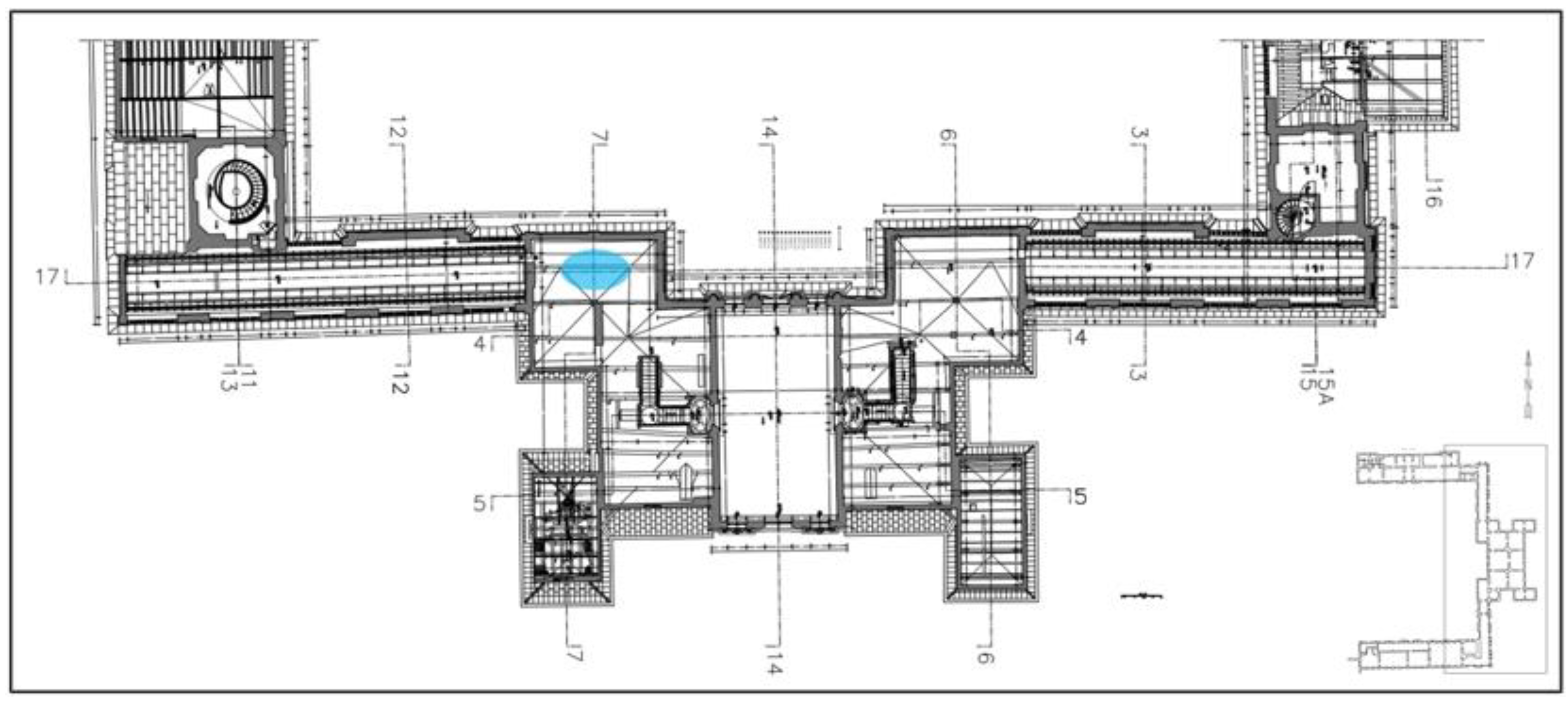
2. Materials and Methods
- Immediate shut-off of the water supply to the system;
- Immediate shut-off of the electricity supply to this part of the palace;
- Immediate dismantling of the display and mobile decorations of the alcove (paintings on canvas incorporated into stucco framing of the ceiling-forming plafonds);
- Drying the wall paintings in the Room above the Chapel using conservation methods;
- Involvement of a professional service experienced in repairing damage after floods and inundations;
- Involvement of an expert mycologist, due to the development of microorganisms being considered the biggest threat, followed by the danger of indirect physical and chemical effects of water on historic decorative materials.
3. Results
3.1. Evaluation of the Actual Technical Condition and Description of the Observed Defects
3.2. Assessment of Microbiological Air Pollution
3.3. Evaluation of Microbial Contamination of Stucco Surfaces and Painting Surfaces
4. Discussion
5. Conclusions
Author Contributions
Funding
Institutional Review Board Statement
Informed Consent Statement
Data Availability Statement
Acknowledgments
Conflicts of Interest
References
- Dyda, M. Zagrożenia Mikrobiologiczne Zbiorów Muzealnych; Narodowy Instytut Muzealnictwa i Zbiorów Muzealnych: Warsaw, Poland, 2020; pp. 1–92. [Google Scholar]
- Skóra, J.; Zduniak, K.; Gutarowska, B.; Rembisz, D. Harmful biological agents at museum workposts. Med. Pract. 2012, 63, 153–165. [Google Scholar]
- Stryjakowska-Sekulska, M.; Piotraszewska-Pająk, A.; Szyszka, A.; Nowicki, M.; Filipiak, M. Microbiological quality of indoor air in university rooms. Polish J. Environ. Stud. 2007, 16, 623–632. [Google Scholar]
- Kumar, P.; Singh, A.B.; Singh, R. Comprehensive health risk assessment of microbial indoor air quality in microenvironments. PLoS ONE 2022, 17, e0264226. [Google Scholar] [CrossRef] [PubMed]
- Abel, E.; Andersson, J.V.; Dawidowicz, N.; Christophersen, E.; Hanssen, S.O.; Lindèn, A.-L.; Lindvall, T.; Pasanen, A.-L. The Swedish key action “the healthy building”—Research results achieved during the frst three years period 1998–2000. In Indoor Air 2002, Proceedings of the 9th International Conference on Indoor Air Quality and Climate, Monterey/Santa Cruz, CA, USA, 30 June–5 July 2002; Levin, H., Ed.; The International Academy of Indoor Air Sciences: Santa Cruz, CA, USA, 2002; pp. 996–1001. [Google Scholar]
- Information Series Post-Remediation Guidelines; Wonder Makers Environmental, Inc.: Kolamazoo, MI, USA, 2001; p. 147. Available online: www.wondermakers.com (accessed on 1 January 2023).
- Gutarowska, B. Grzyby strzępkowe zasiedlające materiały budowlane. Wzrost oraz produkcja mikotoksyn i alergenów. Zesz. Nauk. Rozpr. Nauk. 2010, 398, 3–161. [Google Scholar]
- Międzyresortowa Komisja do Spraw Najwyższych Dopuszczalnych Stężeń i Natężeń Czynników Szkodliwych dla Zdrowia w Środowisku Pracy. Available online: www.ciop.pl (accessed on 20 February 2023).
- Wiszniewska, M.; Walusiak, J.; Gutarowska, B.; Żakowska, Z.; Pałczyński, C. Grzyby pleśniowe w środowisku komunalnym i miejscu pracy—Istotne zagrożenie zdrowotne. Med. Pract. 2004, 55, 257–266. [Google Scholar]
- Dziurzyński, M.; Ciuchcinski, K.; Dyda, M.; Szych, A.; Drabik, P.; Laudy, A.; Dziewit, Ł. Assessment of bacterial contamination of air at the museum of King John III’s Palace at Wilanow (Warsaw, Poland): Selection of an optimal growth medium for analyzing airborne bacteria diversity. Appl. Sci. 2020, 10, 7128. [Google Scholar] [CrossRef]
- Rojas, T.I.; Martínez, E.; Gómez, Y.; Alvarado, Y. Airborne spores of Aspergillus species in cultural institutions at Havana University. Grana 2002, 41, 190–193. [Google Scholar] [CrossRef]
- Saridaki, A.; Glytsos, T.; Raisi, L.; Katsivela, E.; Tsiamis, G.; Kalogerakis, N.; Lazaridis, M. Airborne particles, bacterial and fungal communities insights of two museum exhibition halls with diverse air quality characteristics. Areobiologia 2022, 39, 69–86. [Google Scholar] [CrossRef]
- Ilieş, D.C.; Marcu, F.; Caciora, T.; Indrie, L.; Ilieş, A.; Albu, A.; Costea, M.; Burtă, L.; Baias, Ş.; Ilieş, M.; et al. Investigations of museum indoor microclimate and air quality. Case study from Romania. Atmosphere 2021, 12, 286. [Google Scholar] [CrossRef]
- Morawski, K. W Stronę Uniwersalnej Nauki. Dekoracja Rzeźbiarsko-Malarska Biblioteki Jana III w Pałacu w Wilanowie; Muzeum Pałacu Króla Jana III w Wilanowie: Warsaw, Poland, 2022; p. 12. [Google Scholar]
- Górny, R.L.; Cyprowski, M.; Stobnicka, A.; Gołofit-Szymczak, M.; Ławniczek-Wałczyk, A. Bezpieczeństwo Biologiczne w Muzeach i Pracowniach Konserwacji Zabytków; CIOP-PIB: Warsaw, Poland, 2013; pp. 1–40. [Google Scholar]
- Piontek, M. Grzyby Pleśniowe; Uniwersytet Zielonogórski: Zielona Góra, Poland, 1999; p. 32. [Google Scholar]
- Krzyściak, P.; Skóra, M.; Macura, A.B. Atlas Grzybów Chorobotwórczych Człowieka; MedPharm Polska: Wrocław, Poland, 2011; pp. 1–342. [Google Scholar]
- Instrukcja I-01/PO-03: Pobieranie, Transport i Przechowywanie Próbek do Badań. Available online: https://www.gov.pl/attachment/48e0e97d-da96-42c5-bbde-497d46f4603d (accessed on 18 February 2023).
- Procedura badawcza PB-OBP-019: Pobór, Wykrywanie i Identyfikacja Oraz Oznaczanie Liczby Bakterii i Grzybów w Próbkach Środowiskowych. Available online: https://www.gov.pl/attachment/16f0cfd5-d07f-41b6-b8ac-a31d6fedc7f8 (accessed on 18 February 2023).
- Prośniak, M.; Skowroń, J. (Eds.) Czynniki Szkodliwe w Środowisku Pracy. Wartości Dopuszczalne 2022; Międzyresortowa Komisja ds. Najwyższych Dopuszczalnych Stężeń i Natężeń Czynników Szkodliwych dla Zdrowia w Środowisku Pracy; CIOP-PIB: Warsaw, Poland, 2022; pp. 1–396. [Google Scholar]
- Twaroch, T.E.; Curin, M.; Valenta, W.; Swoboda, J. Mold Allergens in Respiratory Allergy: From Structure to Therapy. Allergy Asthma Immunol. Res. 2015, 7, 205–220. [Google Scholar] [CrossRef] [PubMed]
- Nielsen, K.F. Mycotoxin production by indoor molds. Fungal Genet. Biol. 2003, 39, 103–117. [Google Scholar] [CrossRef] [PubMed]
- Bennett, J.W.; Klich, J.W.; Mycotoxins, M. Mycotoxins. Clin. Microbiol. Rev. 2003, 16, 497–516. [Google Scholar] [CrossRef] [PubMed]
- Andersen, B.; Frisvad, J.C.; Søndergaard, I.; Rasmussen, I.S.; Larsen, L.S. Associations between Fungal Species and Water-Damaged Building Materials. Appl. Environ. Microbiol. 2011, 77, 4180–4188. [Google Scholar] [CrossRef] [PubMed]
- Visagie, C.M.; Hirooka, Y.; Tanney, J.B.; Whitfield, E.; Mwange, K.; Meijer, M.; Amend, A.S.; Seifert, K.A.; Samson, R.A. Aspergillus, Penicillium and Talaromyces isolated from house dust samples collected around the world. Stud. Mycol. 2014, 78, 63–139. [Google Scholar] [CrossRef] [PubMed]
- Waller, R. Conservation Risk Assessment: A Strategy for Managing Resources for Preventive Conservation, 39, Suplement 2: Preventive Conservation: Practice, Theory and Research; Taylor & Francis: Abingdon, UK, 1999; pp. 12–16. [Google Scholar]
- Wójcik, A.; Laudy, A.; Andres, B.; Oleksiewicz, A. Fungi in museum obiects: A case study of Museum of King Jan III’s Palace at Wilanów. J. Herit. Conserv. 2015, 41, 92–98. [Google Scholar]
- Gutarowska, B.; Piotrowska, M.; Koziróg, A. Grzyby w Budynkach-Zagrożenie, Ochrona, Zwalczanie; PWN: Warsaw, Poland, 2019; pp. 1–166. [Google Scholar]
- Andres, B.; Gierasimiuk, E. Wyniki wstępnych badań nad wpływem grzybów pleśniowych na pigmenty stosowane w XV w. w małopolskim malarstwie tablicowym. Ochr. Zabyt. 2009, 62, 91–95. [Google Scholar]
- Andres, B.; Wojciechowska, J. The impact of mold fungi on the pigments used for wall and ceiling decoration based on the example of the wooden church of St Stanislaus the Bishop in Boguszyce. Ochr. Zabyt. 2017, 1, 223–238. [Google Scholar]
- Strzelczyk, A.B.; Karbowska-Berent, J. Drobnoustroje i Owady Niszczące Zabytki i ich Zwalczanie; Uniwersytet Mikołaja Kopernika: Toruń, Poland, 2004; pp. 1–250. [Google Scholar]
- Brągoszewska, E.; Pastuszka, J.S. Influence of meteorological factors on the level and characteristics of culturable bacteria in the air in Gliwice, Upper Silesia (Poland). Aerobiologia 2018, 34, 241–255. [Google Scholar] [CrossRef] [PubMed]
- Górny, R.L. Biologiczne czynniki szkodliwe: Normy, zalecenia i propozycje wartości dopuszczalnych. Podst. Metod. Oceny Środ. Pract. 2004, 3, 17–39. [Google Scholar]
- Pinzari, F.; Gutarowska, B. Extreme colonizers and rapid profiteers: The challenging world of microorganisms that attack paper and parchment. In Microorganisms in the Deterioration and Preservation of Cultural Heritage; Springer: Cham, Switzerland, 2021; pp. 79–113. [Google Scholar]

























| Symbol Sample | Sampling Location | Molds * | Bacteria * |
|---|---|---|---|
| [cfu/m3] | [cfu/m3] | ||
| 1 | King’s Library | 15 | 40 |
| 1.1 | King’s Library: inter-ceiling | 15 | 15 |
| 1R | Cabinet in front of the gallery: reference samples for the King’s Library | <1 | 45 |
| 2 | (Historical Cabinet) | 15 | 30 |
| 2R | Cabinet with portraits of the Poniatowskis: reference samples for the Historical Cabinet | 5 | 45 |
| 3 | Room above the Chapel | 40 | 40 |
| 3.1 | Room above the Chapel: space above the ceiling | 85 | 40 |
| 3R | Room al fresco: reference samples for the chapel | 5 | 65 |
| Symbol Sample | Sampling Location | Tagged Mold Fungi |
|---|---|---|
| 1. | King’s Library | Cladosporium cladosporioides *,**, Epicoccum nigrum *, Penicillium expansum *,** |
| 1.1 | King’s Library: inter-ceiling | Aspergillus sydowii *, Penicillium meleagrinum **, Penicillium chrysogenum *,** |
| 2. | Historical Cabinet | Penicillium chrysogenum *,** |
| 3. | Room above the Chapel | Alternaria alternata *,**, Aspergillus versicolor *,**, Aspergillus ustus **, Penicillium chrysogenum *,** |
| 3.1 | Room above the Chapel: space above the ceiling | Alternaria alternata *,**, Aspergillus ustus **, Penicillium chrysogenum *,** |
| Sample Description | Test Result |
|---|---|
| Stucco, soggy wall zone | Alternaria alternata *,**, very numerous Alternaria tenuissima *,**, very numerous Cladosporium cladosporioides *,**, very numerous Penicillium chrysogenum *,**, very numerous Epicoccum nigrum *, single |
| Sample Description | Test Result |
|---|---|
| Large plafond, reverse, undusted zone | Penicillium bravicompactum *,**, very numerous |
| Penicillium chrysogenum *, very numerous | |
| Penicillium glabrum *, single | |
| Large plafond, reverse, zone dusted | Penicillium bravicompactum *,**, single |
| Large plafond, reverse, stain zone | Penicillium chrysogenum *,**, single |
| Large plafond, reverse, pocket between canvas and stretcher bar | Penicillium chrysogenum *,**, very numerous |
| Penicillium bravicompactum *, single | |
| Large plafond, reverse, slot stretcher bar | Aureobasidium pullulans, very numerous |
| Large plafond, face, land zone | Penicillium bravicompactum *,**, very numerous |
| Penicillium roseopurpureum *, single | |
| Large plafond, face, ocean zone | Penicillium chrysogenum *,**, very numerous |
| Alternaria alternata *,**, single | |
| Fusarium poae *,**, single | |
| Small plafond, reverse, stain zone | Talaromyces macrosporus, single |
| Small plafond, face, portrait background (part 1) | Penicillium chrysogenum *,**, very numerous |
| Fusarium poae *,**, single | |
| Small plafond, face, portrait background (part 2) | Penicillium chrysogenum *,**, very numerous |
| Fusarium poae *,**, single |
Disclaimer/Publisher’s Note: The statements, opinions and data contained in all publications are solely those of the individual author(s) and contributor(s) and not of MDPI and/or the editor(s). MDPI and/or the editor(s) disclaim responsibility for any injury to people or property resulting from any ideas, methods, instructions or products referred to in the content. |
© 2023 by the authors. Licensee MDPI, Basel, Switzerland. This article is an open access article distributed under the terms and conditions of the Creative Commons Attribution (CC BY) license (https://creativecommons.org/licenses/by/4.0/).
Share and Cite
Andres, B.; Betlej, I.; Bagiński, W. Influence of Moisture in Museum Rooms on the State of Microbial Contamination of the Air and Decoration Surfaces: The Example of a 17th Century Monument in the Museum of King John III’s Palace at Wilanow (Warsaw, Poland). Air 2023, 1, 104-124. https://doi.org/10.3390/air1020009
Andres B, Betlej I, Bagiński W. Influence of Moisture in Museum Rooms on the State of Microbial Contamination of the Air and Decoration Surfaces: The Example of a 17th Century Monument in the Museum of King John III’s Palace at Wilanow (Warsaw, Poland). Air. 2023; 1(2):104-124. https://doi.org/10.3390/air1020009
Chicago/Turabian StyleAndres, Bogusław, Izabela Betlej, and Wojciech Bagiński. 2023. "Influence of Moisture in Museum Rooms on the State of Microbial Contamination of the Air and Decoration Surfaces: The Example of a 17th Century Monument in the Museum of King John III’s Palace at Wilanow (Warsaw, Poland)" Air 1, no. 2: 104-124. https://doi.org/10.3390/air1020009
APA StyleAndres, B., Betlej, I., & Bagiński, W. (2023). Influence of Moisture in Museum Rooms on the State of Microbial Contamination of the Air and Decoration Surfaces: The Example of a 17th Century Monument in the Museum of King John III’s Palace at Wilanow (Warsaw, Poland). Air, 1(2), 104-124. https://doi.org/10.3390/air1020009

